Property
Account |
| Property ID: | 24506 | Abbreviated Legal Description: | BECKETT POINT FISHERMAN'S CLUB ASSESSOR'S PLAT SOUTH BEACH ANNEX LOT 9 INCL LEASEHOLD LAND |
| Parcel # / Geo ID: | 932200709 | Agent Code: | BPFCA_HOA |
| Type: | Real | | |
| Tax Area: | 0111 - 1-50F1E1H2L1 | Land Use Code | 11 |
| Open Space: | N | DFL | N |
| Historic Property: | N | Remodel Property: | N |
| Multi-Family Redevelopment: | N | | |
| Township: | 30N | Section: | 24 |
| Range: | 2W |
Location |
| Address: | 1190 BECKETT POINT RD PORT TOWNSEND, WA 98368 | Mapsco: | 005/009 |
| Neighborhood: | BECKETT POINT | Map ID: | |
| Neighborhood CD: | 5580 |
Owner |
| Name: | ROBERT M KRIMMEL | Owner ID: | 106188 |
| Mailing Address: | NADINE OLIVER 14542 SW POHL RD VASHON, WA 98070-8737 | % Ownership: | 100.0000000000% |
| | | Exemptions: | |
Pay Tax Due
There is currently No Amount Due on this property.
Taxes and Assessment Details
Property Tax Information as of
03/12/2026
Click on "Statement Details" to expand or collapse a tax statement.
* Please enter a valid date ** Please enter a valid date *
Statement Details |
| 2026 | 13906 | STATE - STATE LEVY (SCHOOL) | $513.05 | $513.04 | $0.00 | $0.00 | $1026.09 | $0.00 |
| 2026 | 13906 | COUNTY - COUNTY LEVIES (CE, DD, VET, MH) | $205.13 | $205.11 | $0.00 | $0.00 | $410.24 | $0.00 |
| 2026 | 13906 | CONSERVE - CONSERVATION FUTURES | $6.15 | $6.15 | $0.00 | $0.00 | $12.30 | $0.00 |
| 2026 | 13906 | COROADS - COUNTY ROADS (ROADS, DIV TO CE) | $165.47 | $165.47 | $0.00 | $0.00 | $330.94 | $0.00 |
| 2026 | 13906 | PORTPT - PORT DISTRICT | $82.85 | $82.83 | $0.00 | $0.00 | $165.68 | $0.00 |
| 2026 | 13906 | PUD1 - PUD #1 | $13.34 | $13.34 | $0.00 | $0.00 | $26.68 | $0.00 |
| 2026 | 13906 | LIB1 - LIBRARY DIST #1 | $64.02 | $64.02 | $0.00 | $0.00 | $128.04 | $0.00 |
| 2026 | 13906 | HD2 - HOSP DIST #2 | $11.97 | $11.96 | $0.00 | $0.00 | $23.93 | $0.00 |
| 2026 | 13906 | SD50 - SCHOOL DIST #50 | $406.45 | $406.44 | $0.00 | $0.00 | $812.89 | $0.00 |
| 2026 | 13906 | FD1 - FIRE DISTRICT #1 | $271.62 | $271.62 | $0.00 | $0.00 | $543.24 | $0.00 |
| 2026 | 13906 | EMS1 - FIRE DIST #1 EMS | $104.44 | $104.43 | $0.00 | $0.00 | $208.87 | $0.00 |
| 2026 | 13906 | JCCD - JC Conservation District | $2.55 | $2.55 | $0.00 | $0.00 | $5.10 | $0.00 |
| 2026 | 13906 | NWA - Noxious Weed Assessment | $2.98 | $2.97 | $0.00 | $0.00 | $5.95 | $0.00 |
| 2026 | 13906 | WAT - Clean Water District | $13.00 | $13.00 | $0.00 | $0.00 | $26.00 | $0.00 |
| 2026 | 13906 | TOTAL: | $1863.02 | $1862.93 | $0.00 | $0.00 | $3725.95 | $0.00 |
|
| 2026 | 13906 | $1863.02 | $1862.93 | $0.00 | $0.00 | $3725.95 | $0.00 |
Statement Details |
| 2025 | 13950 | STATE - STATE LEVY (SCHOOL) | $510.81 | $510.80 | $0.00 | $0.00 | $1021.61 | $0.00 |
| 2025 | 13950 | COUNTY - COUNTY LEVIES (CE, DD, VET, MH) | $200.88 | $200.85 | $0.00 | $0.00 | $401.73 | $0.00 |
| 2025 | 13950 | CONSERVE - CONSERVATION FUTURES | $6.03 | $6.02 | $0.00 | $0.00 | $12.05 | $0.00 |
| 2025 | 13950 | COROADS - COUNTY ROADS (ROADS, DIV TO CE) | $160.93 | $160.93 | $0.00 | $0.00 | $321.86 | $0.00 |
| 2025 | 13950 | PORTPT - PORT DISTRICT | $81.98 | $81.96 | $0.00 | $0.00 | $163.94 | $0.00 |
| 2025 | 13950 | PUD1 - PUD #1 | $13.15 | $13.14 | $0.00 | $0.00 | $26.29 | $0.00 |
| 2025 | 13950 | LIB1 - LIBRARY DIST #1 | $62.26 | $62.26 | $0.00 | $0.00 | $124.52 | $0.00 |
| 2025 | 13950 | HD2 - HOSP DIST #2 | $11.72 | $11.72 | $0.00 | $0.00 | $23.44 | $0.00 |
| 2025 | 13950 | SD50 - SCHOOL DIST #50 | $373.32 | $373.30 | $0.00 | $0.00 | $746.62 | $0.00 |
| 2025 | 13950 | FD1 - FIRE DISTRICT #1 | $265.07 | $265.07 | $0.00 | $0.00 | $530.14 | $0.00 |
| 2025 | 13950 | EMS1 - FIRE DIST #1 EMS | $101.96 | $101.95 | $0.00 | $0.00 | $203.91 | $0.00 |
| 2025 | 13950 | JCCD - JC Conservation District | $2.55 | $2.55 | $0.00 | $0.00 | $5.10 | $0.00 |
| 2025 | 13950 | NWA - Noxious Weed Assessment | $2.15 | $2.15 | $0.00 | $0.00 | $4.30 | $0.00 |
| 2025 | 13950 | WAT - Clean Water District | $13.00 | $13.00 | $0.00 | $0.00 | $26.00 | $0.00 |
| 2025 | 13950 | TOTAL: | $1805.81 | $1805.70 | $0.00 | $0.00 | $3611.51 | $0.00 |
|
| 2025 | 13950 | $1805.81 | $1805.70 | $0.00 | $0.00 | $3611.51 | $0.00 |
Statement Details |
| 2024 | 13980 | STATE - STATE LEVY (SCHOOL) | $399.84 | $399.84 | $0.00 | $0.00 | $799.68 | $0.00 |
| 2024 | 13980 | COUNTY - COUNTY LEVIES (CE, DD, VET, MH) | $171.11 | $171.08 | $0.00 | $0.00 | $342.19 | $0.00 |
| 2024 | 13980 | CONSERVE - CONSERVATION FUTURES | $5.13 | $5.13 | $0.00 | $0.00 | $10.26 | $0.00 |
| 2024 | 13980 | COROADS - COUNTY ROADS (ROADS, DIV TO CE) | $137.68 | $137.67 | $0.00 | $0.00 | $275.35 | $0.00 |
| 2024 | 13980 | PORTPT - PORT DISTRICT | $70.68 | $70.66 | $0.00 | $0.00 | $141.34 | $0.00 |
| 2024 | 13980 | PUD1 - PUD #1 | $11.24 | $11.24 | $0.00 | $0.00 | $22.48 | $0.00 |
| 2024 | 13980 | LIB1 - LIBRARY DIST #1 | $53.27 | $53.26 | $0.00 | $0.00 | $106.53 | $0.00 |
| 2024 | 13980 | HD2 - HOSP DIST #2 | $9.99 | $9.98 | $0.00 | $0.00 | $19.97 | $0.00 |
| 2024 | 13980 | SD50 - SCHOOL DIST #50 | $323.50 | $323.48 | $0.00 | $0.00 | $646.98 | $0.00 |
| 2024 | 13980 | FD1 - FIRE DISTRICT #1 | $226.23 | $226.23 | $0.00 | $0.00 | $452.46 | $0.00 |
| 2024 | 13980 | EMS1 - FIRE DIST #1 EMS | $86.41 | $86.41 | $0.00 | $0.00 | $172.82 | $0.00 |
| 2024 | 13980 | JCCD - JC Conservation District | $2.55 | $2.55 | $0.00 | $0.00 | $5.10 | $0.00 |
| 2024 | 13980 | NWA - Noxious Weed Assessment | $2.15 | $2.15 | $0.00 | $0.00 | $4.30 | $0.00 |
| 2024 | 13980 | WAT - Clean Water District | $12.50 | $12.50 | $0.00 | $0.00 | $25.00 | $0.00 |
| 2024 | 13980 | TOTAL: | $1512.28 | $1512.18 | $0.00 | $0.00 | $3024.46 | $0.00 |
|
| 2024 | 13980 | $1512.28 | $1512.18 | $0.00 | $0.00 | $3024.46 | $0.00 |
Statement Details |
| 2023 | 14003 | STATE - STATE LEVY (SCHOOL) | $400.97 | $400.96 | $0.00 | $0.00 | $801.93 | $0.00 |
| 2023 | 14003 | COUNTY - COUNTY LEVIES (CE, DD, VET, MH) | $174.99 | $174.95 | $0.00 | $0.00 | $349.94 | $0.00 |
| 2023 | 14003 | CONSERVE - CONSERVATION FUTURES | $5.25 | $5.24 | $0.00 | $0.00 | $10.49 | $0.00 |
| 2023 | 14003 | COROADS - COUNTY ROADS (ROADS, DIV TO CE) | $141.57 | $141.56 | $0.00 | $0.00 | $283.13 | $0.00 |
| 2023 | 14003 | PORTPT - PORT DISTRICT | $73.71 | $73.70 | $0.00 | $0.00 | $147.41 | $0.00 |
| 2023 | 14003 | PUD1 - PUD #1 | $11.60 | $11.60 | $0.00 | $0.00 | $23.20 | $0.00 |
| 2023 | 14003 | LIB1 - LIBRARY DIST #1 | $54.77 | $54.77 | $0.00 | $0.00 | $109.54 | $0.00 |
| 2023 | 14003 | HD2 - HOSP DIST #2 | $10.21 | $10.21 | $0.00 | $0.00 | $20.42 | $0.00 |
| 2023 | 14003 | SD50 - SCHOOL DIST #50 | $318.19 | $318.16 | $0.00 | $0.00 | $636.35 | $0.00 |
| 2023 | 14003 | FD1 - FIRE DISTRICT #1 | $144.14 | $144.14 | $0.00 | $0.00 | $288.28 | $0.00 |
| 2023 | 14003 | EMS1 - FIRE DIST #1 EMS | $61.32 | $61.31 | $0.00 | $0.00 | $122.63 | $0.00 |
| 2023 | 14003 | JCCD - JC Conservation District | $2.55 | $2.55 | $0.00 | $0.00 | $5.10 | $0.00 |
| 2023 | 14003 | NWA - Noxious Weed Assessment | $2.15 | $2.15 | $0.00 | $0.00 | $4.30 | $0.00 |
| 2023 | 14003 | WAT - Clean Water District | $12.00 | $12.00 | $0.00 | $0.00 | $24.00 | $0.00 |
| 2023 | 14003 | TOTAL: | $1413.42 | $1413.30 | $0.00 | $0.00 | $2826.72 | $0.00 |
|
| 2023 | 14003 | $1413.42 | $1413.30 | $0.00 | $0.00 | $2826.72 | $0.00 |
Values
| (+) Improvement Homesite Value: | + | $0 | |
| (+) Improvement Non-Homesite Value: | + | $138,306 | |
| (+) Land Homesite Value: | + | $0 | |
| (+) Land Non-Homesite Value: | + | $308,000 | |
| (+) Curr Use (HS): | + | $0 | $0 |
| (+) Curr Use (NHS): | + | $0 | $0 |
| | | -------------------------- | |
| (=) Market Value: | = | $446,306 | |
| (–) Productivity Loss: | – | $0 | |
| | | -------------------------- | |
| (=) Subtotal: | = | $446,306 | |
| (+) Senior Appraised Value: | + | $0 | |
| (+) Non-Senior Appraised Value: | + | $446,306 | |
| | | -------------------------- | |
| (=) Total Appraised Value: | = | $446,306 | |
| (–) Senior Exemption Loss: | – | $0 | |
| (–) Exemption Loss: | – | $0 | |
| | | -------------------------- | |
| (=) Taxable Value: | = | $446,306 | |
Taxing Jurisdiction
| Owner: | ROBERT M KRIMMEL | | |
| % Ownership: | 100.0000000000% | | |
| Total Value: | N/A | | |
| Tax Area: | 0111 - 1-50F1E1H2L1 |
| CE | COUNTY CURRENT EXPENSE | N/A | N/A | N/A | N/A | | |
| CNTYDD | DEVELOPMENTAL DISABILITIES | N/A | N/A | N/A | N/A | | |
| CNTYVET | VETERANS RELIEF | N/A | N/A | N/A | N/A | | |
| MENTAL | MENTAL HEALTH | N/A | N/A | N/A | N/A | | |
| ROADS | COUNTY ROADS | N/A | N/A | N/A | N/A | | |
| HOSP2CASH | HOSP DIST #2 GENERAL | N/A | N/A | N/A | N/A | | |
| SCH50BOND | SCHOOL DIST #50 BOND 2016 | N/A | N/A | N/A | N/A | | |
| SCH50CP | SCHOOL DIST #50 CAP PROJ | N/A | N/A | N/A | N/A | | |
| SCH50MO | SCHOOL DIST #50 EP & O | N/A | N/A | N/A | N/A | | |
| CONSERVE | CONSERVATION FUTURES | N/A | N/A | N/A | N/A | | |
| EMS1 | FIRE DIST #1 EMS | N/A | N/A | N/A | N/A | | |
| FD1 | FIRE DIST #1 GENERAL | N/A | N/A | N/A | N/A | | |
| LIB1 | LIBRARY DIST #1 GENERAL | N/A | N/A | N/A | N/A | | |
| PORTPT | PORT OF PT GENERAL | N/A | N/A | N/A | N/A | | |
| PORTPTIDD | PORT OF PT IDD 2019 | N/A | N/A | N/A | N/A | | |
| PUD1 | PUD #1 GENERAL | N/A | N/A | N/A | N/A | | |
| STATE | STATE SCHOOL PART 1 | N/A | N/A | N/A | N/A | | |
| STATE2 | STATE SCHOOL PART 2 | N/A | N/A | N/A | N/A | | |
| | Total Tax Rate: | N/A | | | | | |
| | | | | Taxes w/Current Exemptions: | N/A | | |
| | | | | Taxes w/o Exemptions: | N/A | | |
Improvement / Building
| Improvement #1: | Residential Bldg | State Code: | 11 | 796.0 sqft | Value: | $138,306 |
| Exterior Wall: | SI/ST | Fireplace: | WD ST-GOOD | | Floor Construction: | FRAME | Foundation: | CONPR | | Heating/Cooling: | OTHER | Roof Cover: | METAL |
|
| | Type | Description | Class CD | Sub Class CD | Year Built | Area |
| | MA | Main Area | 4 | 1S | 1956 | 796.0 |
| | HDECK | House Deck | 4 | * | 1956 | 288.0 |
| | ADDN | Addition (Table Not Dep) | 4 | 1S | 1956 | 418.0 |
| | GARAG | Garage (Table Not Dep) | 2 | * | 1956 | 570.0 |
| | CONCD | Concrete Drive | 4 | * | 1956 | 221.0 |
Sketch
Property Image
Land
| 1 | 5580-1115S | | 0.0000 | 0.00 | 0.00 | 0.00 | 1.00 | $308,000 | $0 |
Roll Value History
| 2026 | N/A | N/A | N/A | N/A | N/A |
| 2025 | $138,306 | $308,000 | $0 | $446,306 | $446,306 |
| 2024 | $132,020 | $294,000 | $0 | $426,020 | $426,020 |
| 2023 | $130,645 | $215,000 | $0 | $345,645 | $345,645 |
| 2022 | $130,645 | $210,000 | $0 | $340,645 | $340,645 |
Deed and Sales History
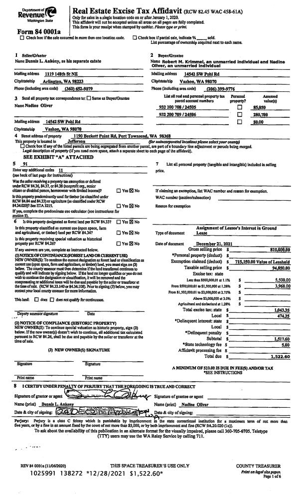
| 1 | 12/21/2021 | LEASE | Lease or Assignment of Lease | | ROBERT M KRIMMEL | | | $810,000.00 | 138272 | |
|   | |
Payout Agreement
| No payout information available.. |