Property
Account |
| Property ID: | 24557 | Abbreviated Legal Description: | BISHOP ACRES LOT 16 |
| Parcel # / Geo ID: | 932300016 | Agent Code: | |
| Type: | Real | | |
| Tax Area: | 0211 - 1-49F1E1H2L1 | Land Use Code | 11 |
| Open Space: | N | DFL | N |
| Historic Property: | N | Remodel Property: | N |
| Multi-Family Redevelopment: | N | | |
| Township: | 29N | Section: | 2 |
| Range: | 1W |
Location |
| Address: | 212 FIR CIRCLE PORT HADLOCK, WA 98339 | Mapsco: | 005/016 |
| Neighborhood: | BISHOP ACRES; TAMARACK VILLAGE; WOODLAND ACRES | Map ID: | |
| Neighborhood CD: | 4214 |
Owner |
| Name: | JAMES CUNNINGTON | Owner ID: | 110812 |
| Mailing Address: | 212 FIR CIRCLE PORT HADLOCK, WA 98339-9597 | % Ownership: | 100.0000000000% |
| | | Exemptions: | |
Pay Tax Due
Select the appropriate checkbox next to the year to be paid. Multiple years may be selected.
*Convenience Fee not included
Taxes and Assessment Details
Property Tax Information as of
03/13/2026
Click on "Statement Details" to expand or collapse a tax statement.
* Please enter a valid date ** Please enter a valid date *
Statement Details |
| 2026 | 13954 | STATE - STATE LEVY (SCHOOL) | $493.62 | $493.62 | $0.00 | $0.00 | $0.00 | $987.24 |
| 2026 | 13954 | COUNTY - COUNTY LEVIES (CE, DD, VET, MH) | $197.36 | $197.34 | $0.00 | $0.00 | $0.00 | $394.70 |
| 2026 | 13954 | CONSERVE - CONSERVATION FUTURES | $5.92 | $5.92 | $0.00 | $0.00 | $0.00 | $11.84 |
| 2026 | 13954 | COROADS - COUNTY ROADS (ROADS, DIV TO CE) | $159.21 | $159.20 | $0.00 | $0.00 | $0.00 | $318.41 |
| 2026 | 13954 | PORTPT - PORT DISTRICT | $79.71 | $79.69 | $0.00 | $0.00 | $0.00 | $159.40 |
| 2026 | 13954 | PUD1 - PUD #1 | $12.84 | $12.83 | $0.00 | $0.00 | $0.00 | $25.67 |
| 2026 | 13954 | LIB1 - LIBRARY DIST #1 | $61.60 | $61.59 | $0.00 | $0.00 | $0.00 | $123.19 |
| 2026 | 13954 | HD2 - HOSP DIST #2 | $11.51 | $11.51 | $0.00 | $0.00 | $0.00 | $23.02 |
| 2026 | 13954 | SD49 - SCHOOL DIST #49 | $271.73 | $271.71 | $0.00 | $0.00 | $0.00 | $543.44 |
| 2026 | 13954 | FD1 - FIRE DISTRICT #1 | $261.34 | $261.33 | $0.00 | $0.00 | $0.00 | $522.67 |
| 2026 | 13954 | EMS1 - FIRE DIST #1 EMS | $100.48 | $100.48 | $0.00 | $0.00 | $0.00 | $200.96 |
| 2026 | 13954 | JCCD - JC Conservation District | $2.55 | $2.55 | $0.00 | $0.00 | $0.00 | $5.10 |
| 2026 | 13954 | NWA - Noxious Weed Assessment | $2.98 | $2.97 | $0.00 | $0.00 | $0.00 | $5.95 |
| 2026 | 13954 | OSS - On Site Septic | $23.10 | $23.10 | $0.00 | $0.00 | $0.00 | $46.20 |
| 2026 | 13954 | WAT - Clean Water District | $13.00 | $13.00 | $0.00 | $0.00 | $0.00 | $26.00 |
| 2026 | 13954 | TOTAL: | $1696.95 | $1696.84 | $0.00 | $0.00 | $0.00 | $3393.79 |
|
| 2026 | 13954 | $1696.95 | $1696.84 | $0.00 | $0.00 | $0.00 | $3393.79 |
Statement Details |
| 2025 | 14001 | STATE - STATE LEVY (SCHOOL) | $492.24 | $492.22 | $0.00 | $0.00 | $984.46 | $0.00 |
| 2025 | 14001 | COUNTY - COUNTY LEVIES (CE, DD, VET, MH) | $193.58 | $193.55 | $0.00 | $0.00 | $387.13 | $0.00 |
| 2025 | 14001 | CONSERVE - CONSERVATION FUTURES | $5.81 | $5.80 | $0.00 | $0.00 | $11.61 | $0.00 |
| 2025 | 14001 | COROADS - COUNTY ROADS (ROADS, DIV TO CE) | $155.08 | $155.08 | $0.00 | $0.00 | $310.16 | $0.00 |
| 2025 | 14001 | PORTPT - PORT DISTRICT | $78.99 | $78.98 | $0.00 | $0.00 | $157.97 | $0.00 |
| 2025 | 14001 | PUD1 - PUD #1 | $12.67 | $12.66 | $0.00 | $0.00 | $25.33 | $0.00 |
| 2025 | 14001 | LIB1 - LIBRARY DIST #1 | $60.00 | $60.00 | $0.00 | $0.00 | $120.00 | $0.00 |
| 2025 | 14001 | HD2 - HOSP DIST #2 | $11.30 | $11.29 | $0.00 | $0.00 | $22.59 | $0.00 |
| 2025 | 14001 | SD49 - SCHOOL DIST #49 | $263.81 | $263.80 | $0.00 | $0.00 | $527.61 | $0.00 |
| 2025 | 14001 | FD1 - FIRE DISTRICT #1 | $255.43 | $255.43 | $0.00 | $0.00 | $510.86 | $0.00 |
| 2025 | 14001 | EMS1 - FIRE DIST #1 EMS | $98.25 | $98.24 | $0.00 | $0.00 | $196.49 | $0.00 |
| 2025 | 14001 | JCCD - JC Conservation District | $2.55 | $2.55 | $0.00 | $0.00 | $5.10 | $0.00 |
| 2025 | 14001 | NWA - Noxious Weed Assessment | $2.15 | $2.15 | $0.00 | $0.00 | $4.30 | $0.00 |
| 2025 | 14001 | OSS - On Site Septic | $21.50 | $21.50 | $0.00 | $0.00 | $43.00 | $0.00 |
| 2025 | 14001 | WAT - Clean Water District | $13.00 | $13.00 | $0.00 | $0.00 | $26.00 | $0.00 |
| 2025 | 14001 | TOTAL: | $1666.36 | $1666.25 | $0.00 | $0.00 | $3332.61 | $0.00 |
|
| 2025 | 14001 | $1666.36 | $1666.25 | $0.00 | $0.00 | $3332.61 | $0.00 |
Statement Details |
| 2024 | 14031 | STATE - STATE LEVY (SCHOOL) | $447.29 | $447.27 | $0.00 | $0.00 | $894.56 | $0.00 |
| 2024 | 14031 | COUNTY - COUNTY LEVIES (CE, DD, VET, MH) | $191.40 | $191.39 | $0.00 | $0.00 | $382.79 | $0.00 |
| 2024 | 14031 | CONSERVE - CONSERVATION FUTURES | $5.74 | $5.74 | $0.00 | $0.00 | $11.48 | $0.00 |
| 2024 | 14031 | COROADS - COUNTY ROADS (ROADS, DIV TO CE) | $154.01 | $154.01 | $0.00 | $0.00 | $308.02 | $0.00 |
| 2024 | 14031 | PORTPT - PORT DISTRICT | $79.05 | $79.05 | $0.00 | $0.00 | $158.10 | $0.00 |
| 2024 | 14031 | PUD1 - PUD #1 | $12.57 | $12.57 | $0.00 | $0.00 | $25.14 | $0.00 |
| 2024 | 14031 | LIB1 - LIBRARY DIST #1 | $59.59 | $59.58 | $0.00 | $0.00 | $119.17 | $0.00 |
| 2024 | 14031 | HD2 - HOSP DIST #2 | $11.17 | $11.16 | $0.00 | $0.00 | $22.33 | $0.00 |
| 2024 | 14031 | SD49 - SCHOOL DIST #49 | $199.73 | $199.73 | $0.00 | $0.00 | $399.46 | $0.00 |
| 2024 | 14031 | FD1 - FIRE DISTRICT #1 | $253.07 | $253.07 | $0.00 | $0.00 | $506.14 | $0.00 |
| 2024 | 14031 | EMS1 - FIRE DIST #1 EMS | $96.67 | $96.66 | $0.00 | $0.00 | $193.33 | $0.00 |
| 2024 | 14031 | JCCD - JC Conservation District | $2.55 | $2.55 | $0.00 | $0.00 | $5.10 | $0.00 |
| 2024 | 14031 | NWA - Noxious Weed Assessment | $2.15 | $2.15 | $0.00 | $0.00 | $4.30 | $0.00 |
| 2024 | 14031 | OSS - On Site Septic | $21.00 | $21.00 | $0.00 | $0.00 | $42.00 | $0.00 |
| 2024 | 14031 | WAT - Clean Water District | $12.50 | $12.50 | $0.00 | $0.00 | $25.00 | $0.00 |
| 2024 | 14031 | TOTAL: | $1548.49 | $1548.43 | $0.00 | $0.00 | $3096.92 | $0.00 |
|
| 2024 | 14031 | $1548.49 | $1548.43 | $0.00 | $0.00 | $3096.92 | $0.00 |
Statement Details |
| 2023 | 14054 | STATE - STATE LEVY (SCHOOL) | $404.32 | $404.30 | $0.00 | $0.00 | $808.62 | $0.00 |
| 2023 | 14054 | COUNTY - COUNTY LEVIES (CE, DD, VET, MH) | $176.43 | $176.42 | $0.00 | $0.00 | $352.85 | $0.00 |
| 2023 | 14054 | CONSERVE - CONSERVATION FUTURES | $5.29 | $5.29 | $0.00 | $0.00 | $10.58 | $0.00 |
| 2023 | 14054 | COROADS - COUNTY ROADS (ROADS, DIV TO CE) | $142.75 | $142.74 | $0.00 | $0.00 | $285.49 | $0.00 |
| 2023 | 14054 | PORTPT - PORT DISTRICT | $74.33 | $74.31 | $0.00 | $0.00 | $148.64 | $0.00 |
| 2023 | 14054 | PUD1 - PUD #1 | $11.70 | $11.69 | $0.00 | $0.00 | $23.39 | $0.00 |
| 2023 | 14054 | LIB1 - LIBRARY DIST #1 | $55.23 | $55.22 | $0.00 | $0.00 | $110.45 | $0.00 |
| 2023 | 14054 | HD2 - HOSP DIST #2 | $10.30 | $10.29 | $0.00 | $0.00 | $20.59 | $0.00 |
| 2023 | 14054 | SD49 - SCHOOL DIST #49 | $189.00 | $188.99 | $0.00 | $0.00 | $377.99 | $0.00 |
| 2023 | 14054 | FD1 - FIRE DISTRICT #1 | $145.35 | $145.34 | $0.00 | $0.00 | $290.69 | $0.00 |
| 2023 | 14054 | EMS1 - FIRE DIST #1 EMS | $61.83 | $61.82 | $0.00 | $0.00 | $123.65 | $0.00 |
| 2023 | 14054 | JCCD - JC Conservation District | $2.55 | $2.55 | $0.00 | $0.00 | $5.10 | $0.00 |
| 2023 | 14054 | NWA - Noxious Weed Assessment | $2.15 | $2.15 | $0.00 | $0.00 | $4.30 | $0.00 |
| 2023 | 14054 | OSS - On Site Septic | $20.50 | $20.50 | $0.00 | $0.00 | $41.00 | $0.00 |
| 2023 | 14054 | WAT - Clean Water District | $12.00 | $12.00 | $0.00 | $0.00 | $24.00 | $0.00 |
| 2023 | 14054 | TOTAL: | $1313.73 | $1313.61 | $0.00 | $0.00 | $2627.34 | $0.00 |
|
| 2023 | 14054 | $1313.73 | $1313.61 | $0.00 | $0.00 | $2627.34 | $0.00 |
Values
| (+) Improvement Homesite Value: | + | $0 | |
| (+) Improvement Non-Homesite Value: | + | $324,904 | |
| (+) Land Homesite Value: | + | $0 | |
| (+) Land Non-Homesite Value: | + | $104,500 | |
| (+) Curr Use (HS): | + | $0 | $0 |
| (+) Curr Use (NHS): | + | $0 | $0 |
| | | -------------------------- | |
| (=) Market Value: | = | $429,404 | |
| (–) Productivity Loss: | – | $0 | |
| | | -------------------------- | |
| (=) Subtotal: | = | $429,404 | |
| (+) Senior Appraised Value: | + | $0 | |
| (+) Non-Senior Appraised Value: | + | $429,404 | |
| | | -------------------------- | |
| (=) Total Appraised Value: | = | $429,404 | |
| (–) Senior Exemption Loss: | – | $0 | |
| (–) Exemption Loss: | – | $0 | |
| | | -------------------------- | |
| (=) Taxable Value: | = | $429,404 | |
Taxing Jurisdiction
| Owner: | JAMES CUNNINGTON | | |
| % Ownership: | 100.0000000000% | | |
| Total Value: | $429,404 | | |
| Tax Area: | 0211 - 1-49F1E1H2L1 |
| CE | COUNTY CURRENT EXPENSE | 0.9034619479 | $429,404 | $429,404 | $387.95 | | |
| CNTYDD | DEVELOPMENTAL DISABILITIES | 0.0052121823 | $429,404 | $429,404 | $2.24 | | |
| CNTYVET | VETERANS RELIEF | 0.0052777810 | $429,404 | $429,404 | $2.27 | | |
| MENTAL | MENTAL HEALTH | 0.0052121823 | $429,404 | $429,404 | $2.24 | | |
| ROADS | COUNTY ROADS | 0.7415066410 | $429,404 | $429,404 | $318.41 | | |
| ROADSCU | COUNTY ROADS TO CUR EXP | 0.0000000000 | $429,404 | $429,404 | $0.00 | | |
| HOSP2CASH | HOSP DIST #2 GENERAL | 0.0536075306 | $429,404 | $429,404 | $23.02 | | |
| SCH49CP | SCHOOL DIST #49 CAP PROJ | 0.6279093905 | $429,404 | $429,404 | $269.63 | | |
| SCH49MO | SCHOOL DIST #49 EP & O | 0.6376483602 | $429,404 | $429,404 | $273.81 | | |
| CONSERVE | CONSERVATION FUTURES | 0.0275621078 | $429,404 | $429,404 | $11.84 | | |
| EMS1 | FIRE DIST #1 EMS | 0.4679948282 | $429,404 | $429,404 | $200.96 | | |
| FD1 | FIRE DIST #1 GENERAL | 1.2171942929 | $429,404 | $429,404 | $522.67 | | |
| LIB1 | LIBRARY DIST #1 GENERAL | 0.2868827388 | $429,404 | $429,404 | $123.19 | | |
| PORTPT | PORT OF PT GENERAL | 0.1134941229 | $429,404 | $429,404 | $48.73 | | |
| PORTPTIDD | PORT OF PT IDD 2019 | 0.2577346692 | $429,404 | $429,404 | $110.67 | | |
| PUD1 | PUD #1 GENERAL | 0.0597888892 | $429,404 | $429,404 | $25.67 | | |
| STATE | STATE SCHOOL PART 1 | 1.4940692947 | $429,404 | $429,404 | $641.56 | | |
| STATE2 | STATE SCHOOL PART 2 | 0.8050170049 | $429,404 | $429,404 | $345.68 | | |
| | Total Tax Rate: | 7.7095739644 | | | | | |
| | | | | Taxes w/Current Exemptions: | $3,310.54 | | |
| | | | | Taxes w/o Exemptions: | $3,310.54 | | |
Improvement / Building
| Improvement #1: | Residential Bldg | State Code: | 11 | 1465.0 sqft | Value: | $324,904 |
| Bathrooms (#): | 2 (FULL) | Bedrooms (#): | 3 | | Exterior Wall: | SI/ST | Fireplace: | WD ST-AVG | | Floor Construction: | FRAME | Foundation: | CONPR | | Heating/Cooling: | HPUMP | Roof Cover: | COMP |
|
| | Type | Description | Class CD | Sub Class CD | Year Built | Area |
| | MA | Main Area | 3+ | 1S | 1992 | 1465.0 |
| | HWPOR | House Wood Porch | 3 | * | 1992 | 264.0 |
| | GATT | House Attached Garage | 3 | 1S | 1992 | 441.0 |
Sketch
Property Image
Land
| 1 | 4214-1185L | | 0.0000 | 0.00 | 0.00 | 0.00 | 1.00 | $104,500 | $0 |
Roll Value History
| 2026 | N/A | N/A | N/A | N/A | N/A |
| 2025 | $324,904 | $104,500 | $0 | $429,404 | $429,404 |
| 2024 | $310,778 | $99,750 | $0 | $410,528 | $410,528 |
| 2023 | $296,651 | $90,000 | $0 | $386,651 | $386,651 |
| 2022 | $258,488 | $85,000 | $0 | $343,488 | $343,488 |
Deed and Sales History
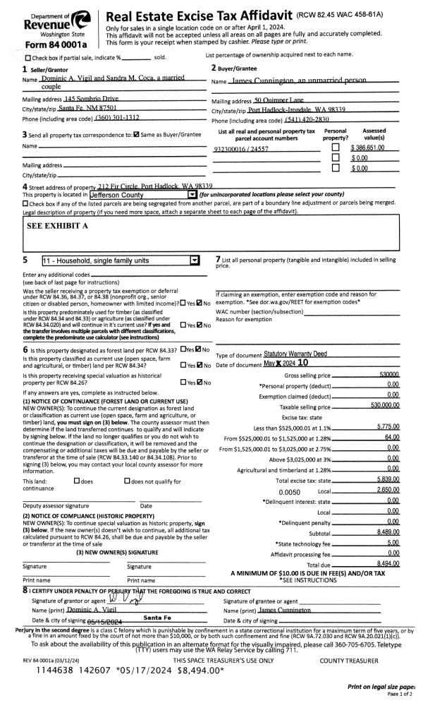
| 1 | 05/10/2024 | SWD | Statutory Warranty Deed | DOMINIC A VIGIL | JAMES CUNNINGTON | | | $530,000.00 | 142607 | |
| 2 | 02/03/1999 | SWD | Statutory Warranty Deed | HAM, CAMERON W/MICHELLE L | VIGIL, DOMINIC A/COCA, SANDRA | 0 | 0 | $127,600.00 | 86292 | 0 |
| 3 | 01/23/1992 | SWD | Statutory Warranty Deed | ELLIS, GARY J/DONNA M | HAM, CAMERON W/MICHELLE | 0 | 0 | $12,000.00 | 67605 | 0 |
Payout Agreement
| No payout information available.. |