Property
Account |
| Property ID: | 24670 | Abbreviated Legal Description: | BISHOP'S SUB DIV 11 (TAX 11) W250' LS TAX 22 |
| Parcel # / Geo ID: | 932700083 | Agent Code: | |
| Type: | Real | | |
| Tax Area: | 0324 - 1-48F2E2H2C2L1Z3 | Land Use Code | 11 |
| Open Space: | N | DFL | N |
| Historic Property: | N | Remodel Property: | N |
| Multi-Family Redevelopment: | N | | |
| Township: | 27N | Section: | 14 |
| Range: | 2W |
Location |
| Address: | 371 WILDWOOD RD QUILCENE, WA 98376 | Mapsco: | 101/014 |
| Neighborhood: | S14 T27N R2W & BISHOP'S SUB & BARTLEY/COVEY/HYDE/HELANDER SP | Map ID: | |
| Neighborhood CD: | 2540 |
Owner |
| Name: | KJERSTIN M GOULD | Owner ID: | 105432 |
| Mailing Address: | 371 WILDWOOD RD QUILCENE, WA 98376-9595 | % Ownership: | 100.0000000000% |
| | | Exemptions: | |
Pay Tax Due
Select the appropriate checkbox next to the year to be paid. Multiple years may be selected.
*Convenience Fee not included
Taxes and Assessment Details
Property Tax Information as of
03/11/2026
Click on "Statement Details" to expand or collapse a tax statement.
* Please enter a valid date ** Please enter a valid date *
Statement Details |
| 2026 | 14067 | STATE - STATE LEVY (SCHOOL) | $428.13 | $428.11 | $0.00 | $0.00 | $0.00 | $856.24 |
| 2026 | 14067 | COUNTY - COUNTY LEVIES (CE, DD, VET, MH) | $171.17 | $171.15 | $0.00 | $0.00 | $0.00 | $342.32 |
| 2026 | 14067 | CONSERVE - CONSERVATION FUTURES | $5.13 | $5.13 | $0.00 | $0.00 | $0.00 | $10.26 |
| 2026 | 14067 | COROADS - COUNTY ROADS (ROADS, DIV TO CE) | $138.08 | $138.08 | $0.00 | $0.00 | $0.00 | $276.16 |
| 2026 | 14067 | PORTPT - PORT DISTRICT | $69.14 | $69.12 | $0.00 | $0.00 | $0.00 | $138.26 |
| 2026 | 14067 | PUD1 - PUD #1 | $11.14 | $11.13 | $0.00 | $0.00 | $0.00 | $22.27 |
| 2026 | 14067 | LIB1 - LIBRARY DIST #1 | $53.42 | $53.42 | $0.00 | $0.00 | $0.00 | $106.84 |
| 2026 | 14067 | HD2 - HOSP DIST #2 | $9.98 | $9.98 | $0.00 | $0.00 | $0.00 | $19.96 |
| 2026 | 14067 | SD48 - SCHOOL DIST #48 | $262.94 | $262.94 | $0.00 | $0.00 | $0.00 | $525.88 |
| 2026 | 14067 | FD2 - FIRE DISTRICT #2 | $140.59 | $140.59 | $0.00 | $0.00 | $0.00 | $281.18 |
| 2026 | 14067 | EMS2 - FIRE DIST #2 EMS | $79.17 | $79.17 | $0.00 | $0.00 | $0.00 | $158.34 |
| 2026 | 14067 | CEM2 - CEMETERY DIST #2 | $4.50 | $4.49 | $0.00 | $0.00 | $0.00 | $8.99 |
| 2026 | 14067 | FP - DNR Forest Fire Protection Assmt | $8.50 | $8.50 | $0.00 | $0.00 | $0.00 | $17.00 |
| 2026 | 14067 | FPLCA - DNR Landowner Contingency Assmt | $3.00 | $3.00 | $0.00 | $0.00 | $0.00 | $6.00 |
| 2026 | 14067 | JCCD - JC Conservation District | $2.55 | $2.55 | $0.00 | $0.00 | $0.00 | $5.10 |
| 2026 | 14067 | NWA - Noxious Weed Assessment | $2.98 | $2.97 | $0.00 | $0.00 | $0.00 | $5.95 |
| 2026 | 14067 | OSS - On Site Septic | $23.10 | $23.10 | $0.00 | $0.00 | $0.00 | $46.20 |
| 2026 | 14067 | WAT - Clean Water District | $13.00 | $13.00 | $0.00 | $0.00 | $0.00 | $26.00 |
| 2026 | 14067 | FP ADMIN - FP ADMIN | $0.50 | $0.00 | $0.00 | $0.00 | $0.00 | $0.50 |
| 2026 | 14067 | TOTAL: | $1427.02 | $1426.43 | $0.00 | $0.00 | $0.00 | $2853.45 |
|
| 2026 | 14067 | $1427.02 | $1426.43 | $0.00 | $0.00 | $0.00 | $2853.45 |
Statement Details |
| 2025 | 14114 | STATE - STATE LEVY (SCHOOL) | $427.77 | $427.75 | $0.00 | $0.00 | $855.52 | $0.00 |
| 2025 | 14114 | COUNTY - COUNTY LEVIES (CE, DD, VET, MH) | $168.22 | $168.21 | $0.00 | $0.00 | $336.43 | $0.00 |
| 2025 | 14114 | CONSERVE - CONSERVATION FUTURES | $5.05 | $5.04 | $0.00 | $0.00 | $10.09 | $0.00 |
| 2025 | 14114 | COROADS - COUNTY ROADS (ROADS, DIV TO CE) | $134.77 | $134.76 | $0.00 | $0.00 | $269.53 | $0.00 |
| 2025 | 14114 | PORTPT - PORT DISTRICT | $68.64 | $68.64 | $0.00 | $0.00 | $137.28 | $0.00 |
| 2025 | 14114 | PUD1 - PUD #1 | $11.01 | $11.00 | $0.00 | $0.00 | $22.01 | $0.00 |
| 2025 | 14114 | LIB1 - LIBRARY DIST #1 | $52.14 | $52.14 | $0.00 | $0.00 | $104.28 | $0.00 |
| 2025 | 14114 | HD2 - HOSP DIST #2 | $9.82 | $9.81 | $0.00 | $0.00 | $19.63 | $0.00 |
| 2025 | 14114 | SD48 - SCHOOL DIST #48 | $251.90 | $251.89 | $0.00 | $0.00 | $503.79 | $0.00 |
| 2025 | 14114 | FD2 - FIRE DISTRICT #2 | $139.08 | $139.08 | $0.00 | $0.00 | $278.16 | $0.00 |
| 2025 | 14114 | EMS2 - FIRE DIST #2 EMS | $78.31 | $78.31 | $0.00 | $0.00 | $156.62 | $0.00 |
| 2025 | 14114 | CEM2 - CEMETERY DIST #2 | $4.44 | $4.43 | $0.00 | $0.00 | $8.87 | $0.00 |
| 2025 | 14114 | FP - DNR Forest Fire Protection Assmt | $8.50 | $8.50 | $0.00 | $0.00 | $17.00 | $0.00 |
| 2025 | 14114 | FPLCA - DNR Landowner Contingency Assmt | $3.00 | $3.00 | $0.00 | $0.00 | $6.00 | $0.00 |
| 2025 | 14114 | JCCD - JC Conservation District | $2.55 | $2.55 | $0.00 | $0.00 | $5.10 | $0.00 |
| 2025 | 14114 | NWA - Noxious Weed Assessment | $2.15 | $2.15 | $0.00 | $0.00 | $4.30 | $0.00 |
| 2025 | 14114 | OSS - On Site Septic | $21.50 | $21.50 | $0.00 | $0.00 | $43.00 | $0.00 |
| 2025 | 14114 | WAT - Clean Water District | $13.00 | $13.00 | $0.00 | $0.00 | $26.00 | $0.00 |
| 2025 | 14114 | FP ADMIN - FP ADMIN | $0.50 | $0.00 | $0.00 | $0.00 | $0.50 | $0.00 |
| 2025 | 14114 | TOTAL: | $1402.35 | $1401.76 | $0.00 | $0.00 | $2804.11 | $0.00 |
|
| 2025 | 14114 | $1402.35 | $1401.76 | $0.00 | $0.00 | $2804.11 | $0.00 |
Statement Details |
| 2024 | 14144 | STATE - STATE LEVY (SCHOOL) | $388.52 | $388.50 | $0.00 | $0.00 | $777.02 | $0.00 |
| 2024 | 14144 | COUNTY - COUNTY LEVIES (CE, DD, VET, MH) | $166.25 | $166.25 | $0.00 | $0.00 | $332.50 | $0.00 |
| 2024 | 14144 | CONSERVE - CONSERVATION FUTURES | $4.99 | $4.98 | $0.00 | $0.00 | $9.97 | $0.00 |
| 2024 | 14144 | COROADS - COUNTY ROADS (ROADS, DIV TO CE) | $133.77 | $133.77 | $0.00 | $0.00 | $267.54 | $0.00 |
| 2024 | 14144 | PORTPT - PORT DISTRICT | $68.67 | $68.66 | $0.00 | $0.00 | $137.33 | $0.00 |
| 2024 | 14144 | PUD1 - PUD #1 | $10.92 | $10.92 | $0.00 | $0.00 | $21.84 | $0.00 |
| 2024 | 14144 | LIB1 - LIBRARY DIST #1 | $51.76 | $51.75 | $0.00 | $0.00 | $103.51 | $0.00 |
| 2024 | 14144 | HD2 - HOSP DIST #2 | $9.70 | $9.70 | $0.00 | $0.00 | $19.40 | $0.00 |
| 2024 | 14144 | SD48 - SCHOOL DIST #48 | $174.01 | $174.00 | $0.00 | $0.00 | $348.01 | $0.00 |
| 2024 | 14144 | FD2 - FIRE DISTRICT #2 | $138.21 | $138.21 | $0.00 | $0.00 | $276.42 | $0.00 |
| 2024 | 14144 | EMS2 - FIRE DIST #2 EMS | $77.81 | $77.80 | $0.00 | $0.00 | $155.61 | $0.00 |
| 2024 | 14144 | CEM2 - CEMETERY DIST #2 | $4.43 | $4.42 | $0.00 | $0.00 | $8.85 | $0.00 |
| 2024 | 14144 | FP - DNR Forest Fire Protection Assmt | $8.50 | $8.50 | $0.00 | $0.00 | $17.00 | $0.00 |
| 2024 | 14144 | FPLCA - DNR Landowner Contingency Assmt | $3.00 | $3.00 | $0.00 | $0.00 | $6.00 | $0.00 |
| 2024 | 14144 | JCCD - JC Conservation District | $2.55 | $2.55 | $0.00 | $0.00 | $5.10 | $0.00 |
| 2024 | 14144 | NWA - Noxious Weed Assessment | $2.15 | $2.15 | $0.00 | $0.00 | $4.30 | $0.00 |
| 2024 | 14144 | OSS - On Site Septic | $21.00 | $21.00 | $0.00 | $0.00 | $42.00 | $0.00 |
| 2024 | 14144 | WAT - Clean Water District | $12.50 | $12.50 | $0.00 | $0.00 | $25.00 | $0.00 |
| 2024 | 14144 | FP ADMIN - FP ADMIN | $0.50 | $0.00 | $0.00 | $0.00 | $0.50 | $0.00 |
| 2024 | 14144 | TOTAL: | $1279.24 | $1278.66 | $0.00 | $0.00 | $2557.90 | $0.00 |
|
| 2024 | 14144 | $1279.24 | $1278.66 | $0.00 | $0.00 | $2557.90 | $0.00 |
Statement Details |
| 2023 | 14167 | STATE - STATE LEVY (SCHOOL) | $351.09 | $351.09 | $0.00 | $0.00 | $702.18 | $0.00 |
| 2023 | 14167 | COUNTY - COUNTY LEVIES (CE, DD, VET, MH) | $153.21 | $153.20 | $0.00 | $0.00 | $306.41 | $0.00 |
| 2023 | 14167 | CONSERVE - CONSERVATION FUTURES | $4.60 | $4.59 | $0.00 | $0.00 | $9.19 | $0.00 |
| 2023 | 14167 | COROADS - COUNTY ROADS (ROADS, DIV TO CE) | $123.96 | $123.94 | $0.00 | $0.00 | $247.90 | $0.00 |
| 2023 | 14167 | PORTPT - PORT DISTRICT | $64.54 | $64.53 | $0.00 | $0.00 | $129.07 | $0.00 |
| 2023 | 14167 | PUD1 - PUD #1 | $10.16 | $10.15 | $0.00 | $0.00 | $20.31 | $0.00 |
| 2023 | 14167 | LIB1 - LIBRARY DIST #1 | $47.96 | $47.95 | $0.00 | $0.00 | $95.91 | $0.00 |
| 2023 | 14167 | HD2 - HOSP DIST #2 | $8.95 | $8.94 | $0.00 | $0.00 | $17.89 | $0.00 |
| 2023 | 14167 | SD48 - SCHOOL DIST #48 | $169.55 | $169.54 | $0.00 | $0.00 | $339.09 | $0.00 |
| 2023 | 14167 | FD2 - FIRE DISTRICT #2 | $132.99 | $132.98 | $0.00 | $0.00 | $265.97 | $0.00 |
| 2023 | 14167 | EMS2 - FIRE DIST #2 EMS | $74.57 | $74.57 | $0.00 | $0.00 | $149.14 | $0.00 |
| 2023 | 14167 | CEM2 - CEMETERY DIST #2 | $4.24 | $4.23 | $0.00 | $0.00 | $8.47 | $0.00 |
| 2023 | 14167 | FP - DNR Forest Fire Protection Assmt | $8.50 | $8.50 | $0.00 | $0.00 | $17.00 | $0.00 |
| 2023 | 14167 | FPLCA - DNR Landowner Contingency Assmt | $3.00 | $3.00 | $0.00 | $0.00 | $6.00 | $0.00 |
| 2023 | 14167 | JCCD - JC Conservation District | $2.55 | $2.55 | $0.00 | $0.00 | $5.10 | $0.00 |
| 2023 | 14167 | NWA - Noxious Weed Assessment | $2.15 | $2.15 | $0.00 | $0.00 | $4.30 | $0.00 |
| 2023 | 14167 | OSS - On Site Septic | $20.50 | $20.50 | $0.00 | $0.00 | $41.00 | $0.00 |
| 2023 | 14167 | WAT - Clean Water District | $12.00 | $12.00 | $0.00 | $0.00 | $24.00 | $0.00 |
| 2023 | 14167 | FP ADMIN - FP ADMIN | $0.50 | $0.00 | $0.00 | $0.00 | $0.50 | $0.00 |
| 2023 | 14167 | TOTAL: | $1195.02 | $1194.41 | $0.00 | $0.00 | $2389.43 | $0.00 |
|
| 2023 | 14167 | $1195.02 | $1194.41 | $0.00 | $0.00 | $2389.43 | $0.00 |
Values
| (+) Improvement Homesite Value: | + | $0 | |
| (+) Improvement Non-Homesite Value: | + | $291,925 | |
| (+) Land Homesite Value: | + | $0 | |
| (+) Land Non-Homesite Value: | + | $80,500 | |
| (+) Curr Use (HS): | + | $0 | $0 |
| (+) Curr Use (NHS): | + | $0 | $0 |
| | | -------------------------- | |
| (=) Market Value: | = | $372,425 | |
| (–) Productivity Loss: | – | $0 | |
| | | -------------------------- | |
| (=) Subtotal: | = | $372,425 | |
| (+) Senior Appraised Value: | + | $0 | |
| (+) Non-Senior Appraised Value: | + | $372,425 | |
| | | -------------------------- | |
| (=) Total Appraised Value: | = | $372,425 | |
| (–) Senior Exemption Loss: | – | $0 | |
| (–) Exemption Loss: | – | $0 | |
| | | -------------------------- | |
| (=) Taxable Value: | = | $372,425 | |
Taxing Jurisdiction
| Owner: | KJERSTIN M GOULD | | |
| % Ownership: | 100.0000000000% | | |
| Total Value: | $372,425 | | |
| Tax Area: | 0324 - 1-48F2E2H2C2L1Z3 |
| CE | COUNTY CURRENT EXPENSE | 0.9034619479 | $372,425 | $372,425 | $336.47 | | |
| CNTYDD | DEVELOPMENTAL DISABILITIES | 0.0052121823 | $372,425 | $372,425 | $1.94 | | |
| CNTYVET | VETERANS RELIEF | 0.0052777810 | $372,425 | $372,425 | $1.97 | | |
| MENTAL | MENTAL HEALTH | 0.0052121823 | $372,425 | $372,425 | $1.94 | | |
| ROADS | COUNTY ROADS | 0.7415066410 | $372,425 | $372,425 | $276.16 | | |
| ROADSCU | COUNTY ROADS TO CUR EXP | 0.0000000000 | $372,425 | $372,425 | $0.00 | | |
| HOSP2CASH | HOSP DIST #2 GENERAL | 0.0536075306 | $372,425 | $372,425 | $19.96 | | |
| SCH48MO | SCHOOL DIST #48 EP & O | 1.4120478917 | $372,425 | $372,425 | $525.88 | | |
| CEM2 | CEMETERY DIST #2 GENERAL | 0.0241266154 | $372,425 | $372,425 | $8.99 | | |
| CONSERVE | CONSERVATION FUTURES | 0.0275621078 | $372,425 | $372,425 | $10.26 | | |
| FD2 | FIRE DIST #2 GENERAL | 0.7549976873 | $372,425 | $372,425 | $281.18 | | |
| LIB1 | LIBRARY DIST #1 GENERAL | 0.2868827388 | $372,425 | $372,425 | $106.84 | | |
| PORTPT | PORT OF PT GENERAL | 0.1134941229 | $372,425 | $372,425 | $42.27 | | |
| PORTPTIDD | PORT OF PT IDD 2019 | 0.2577346692 | $372,425 | $372,425 | $95.99 | | |
| PUD1 | PUD #1 GENERAL | 0.0597888892 | $372,425 | $372,425 | $22.27 | | |
| STATE | STATE SCHOOL PART 1 | 1.4940692947 | $372,425 | $372,425 | $556.43 | | |
| STATE2 | STATE SCHOOL PART 2 | 0.8050170049 | $372,425 | $372,425 | $299.81 | | |
| EMS2 | FIRE DIST #2 EMS | 0.4251727858 | $372,425 | $372,425 | $158.34 | | |
| | Total Tax Rate: | 7.3751720728 | | | | | |
| | | | | Taxes w/Current Exemptions: | $2,746.70 | | |
| | | | | Taxes w/o Exemptions: | $2,746.70 | | |
Improvement / Building
| Improvement #1: | Residential Bldg | State Code: | 11 | 1217.0 sqft | Value: | $291,925 |
| Bathrooms (#): | 1 (FULL) | Bedrooms (#): | 2 | | Exterior Wall: | PL/T1 | Floor Construction: | FRAME | | Foundation: | CONBL | Heating/Cooling: | HPUMP | | Inside Verify: | YES | Roof Cover: | METAL |
|
| | Type | Description | Class CD | Sub Class CD | Year Built | Area |
| | MA | Main Area | 4 | 1S | 1964 | 1217.0 |
| | HCPOR | House Concrete Porch | 4 | * | 1964 | 93.0 |
| | HDECK | House Deck | 4 | * | 1964 | 112.0 |
| | CARPTN | Carport W/O Floor | 4 | * | 1964 | 378.0 |
| | SHED | Shed (Table Not Dep) | 4 | * | 1964 | 120.0 |
Sketch
Property Image
Land
| 1 | 2540-1375S | | 0.0000 | 0.00 | 0.00 | 0.00 | 1.00 | $80,500 | $0 |
Roll Value History
| 2026 | N/A | N/A | N/A | N/A | N/A |
| 2025 | $291,925 | $80,500 | $0 | $372,425 | $372,425 |
| 2024 | $279,762 | $77,000 | $0 | $356,762 | $356,762 |
| 2023 | $267,598 | $68,250 | $0 | $335,848 | $335,848 |
| 2022 | $243,271 | $55,000 | $0 | $298,271 | $298,271 |
Deed and Sales History
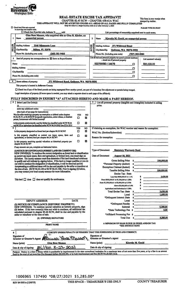
| 1 | 08/18/2021 | SWD | Statutory Warranty Deed | GINA R MASSON | KJERSTIN M GOULD | | | $330,000.00 | 137490 | |
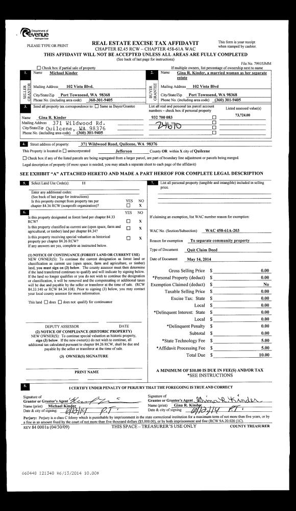
| 2 | 05/14/2014 | QCD | Quit Claim Deed | | | | | | 121348 | |
| 3 | 05/14/2014 | SWD | Statutory Warranty Deed | KATHLEEN E ANDERSON TRSTEE | GINA R KINDER | | | $72,200.00 | 121347 | |
| 4 | 08/26/2011 | QCD | Quit Claim Deed | ANDERSON TRSTEE, KATHLEEN | ANDERSON REVOCABLE TRUST, KATH | 0 | 0 | $0.00 | 116922 | 0 |
| 5 | 08/26/2011 | QCD | Quit Claim Deed | ANDERSON, KATHLEEN E | ANDERSON REV TR, KATHLEEN E | 0 | 0 | $0.00 | 116645 | 0 |
Payout Agreement
| No payout information available.. |