Property
Account |
| Property ID: | 24733 | Abbreviated Legal Description: | BRACKEN'S ADDITION BLK 2 LOTS 15 & 16 |
| Parcel # / Geo ID: | 933300207 | Agent Code: | |
| Type: | Real | | |
| Tax Area: | 0110 - C-50F1E1H2 | Land Use Code | 11 |
| Open Space: | N | DFL | N |
| Historic Property: | N | Remodel Property: | N |
| Multi-Family Redevelopment: | N | | |
| Township: | 31N | Section: | 34 |
| Range: | 1W |
Location |
| Address: | 305 49TH ST PORT TOWNSEND, WA 98368 | Mapsco: | 005/014 |
| Neighborhood: | BRACKENS ADDITION, HAPPY VALLEY, FAIRGROUNDS | Map ID: | |
| Neighborhood CD: | 6050 |
Owner |
| Name: | ARIC B SPENCER | Owner ID: | 101986 |
| Mailing Address: | BRADLEY C SPENCER KAREN S SPENCER 305 49TH ST PORT TOWNSEND, WA 98368-2001 | % Ownership: | 100.0000000000% |
| | | Exemptions: | |
Pay Tax Due
Select the appropriate checkbox next to the year to be paid. Multiple years may be selected.
*Convenience Fee not included
Taxes and Assessment Details
Property Tax Information as of
03/11/2026
Click on "Statement Details" to expand or collapse a tax statement.
* Please enter a valid date ** Please enter a valid date *
Statement Details |
| 2026 | 14130 | STATE - STATE LEVY (SCHOOL) | $528.86 | $528.86 | $0.00 | $0.00 | $0.00 | $1057.72 |
| 2026 | 14130 | COUNTY - COUNTY LEVIES (CE, DD, VET, MH) | $211.45 | $211.43 | $0.00 | $0.00 | $0.00 | $422.88 |
| 2026 | 14130 | CONSERVE - CONSERVATION FUTURES | $6.34 | $6.34 | $0.00 | $0.00 | $0.00 | $12.68 |
| 2026 | 14130 | CITYPT - CITY OF PT | $300.12 | $300.11 | $0.00 | $0.00 | $0.00 | $600.23 |
| 2026 | 14130 | PORTPT - PORT DISTRICT | $85.40 | $85.38 | $0.00 | $0.00 | $0.00 | $170.78 |
| 2026 | 14130 | PUD1 - PUD #1 | $13.76 | $13.75 | $0.00 | $0.00 | $0.00 | $27.51 |
| 2026 | 14130 | HD2 - HOSP DIST #2 | $12.33 | $12.33 | $0.00 | $0.00 | $0.00 | $24.66 |
| 2026 | 14130 | SD50 - SCHOOL DIST #50 | $418.98 | $418.97 | $0.00 | $0.00 | $0.00 | $837.95 |
| 2026 | 14130 | FD1 - FIRE DISTRICT #1 | $279.99 | $279.99 | $0.00 | $0.00 | $0.00 | $559.98 |
| 2026 | 14130 | EMS1 - FIRE DIST #1 EMS | $107.66 | $107.65 | $0.00 | $0.00 | $0.00 | $215.31 |
| 2026 | 14130 | JCCD - JC Conservation District | $2.55 | $2.55 | $0.00 | $0.00 | $0.00 | $5.10 |
| 2026 | 14130 | NWA - Noxious Weed Assessment | $2.98 | $2.97 | $0.00 | $0.00 | $0.00 | $5.95 |
| 2026 | 14130 | TOTAL: | $1970.42 | $1970.33 | $0.00 | $0.00 | $0.00 | $3940.75 |
|
| 2026 | 14130 | $1970.42 | $1970.33 | $0.00 | $0.00 | $0.00 | $3940.75 |
Statement Details |
| 2025 | 14177 | STATE - STATE LEVY (SCHOOL) | $532.54 | $532.54 | $0.00 | $0.00 | $1065.08 | $0.00 |
| 2025 | 14177 | COUNTY - COUNTY LEVIES (CE, DD, VET, MH) | $209.43 | $209.41 | $0.00 | $0.00 | $418.84 | $0.00 |
| 2025 | 14177 | CONSERVE - CONSERVATION FUTURES | $6.28 | $6.28 | $0.00 | $0.00 | $12.56 | $0.00 |
| 2025 | 14177 | CITYPT - CITY OF PT | $302.01 | $302.00 | $0.00 | $0.00 | $604.01 | $0.00 |
| 2025 | 14177 | PORTPT - PORT DISTRICT | $85.46 | $85.45 | $0.00 | $0.00 | $170.91 | $0.00 |
| 2025 | 14177 | PUD1 - PUD #1 | $13.71 | $13.70 | $0.00 | $0.00 | $27.41 | $0.00 |
| 2025 | 14177 | HD2 - HOSP DIST #2 | $12.22 | $12.22 | $0.00 | $0.00 | $24.44 | $0.00 |
| 2025 | 14177 | SD50 - SCHOOL DIST #50 | $389.21 | $389.19 | $0.00 | $0.00 | $778.40 | $0.00 |
| 2025 | 14177 | FD1 - FIRE DISTRICT #1 | $276.35 | $276.35 | $0.00 | $0.00 | $552.70 | $0.00 |
| 2025 | 14177 | EMS1 - FIRE DIST #1 EMS | $106.29 | $106.29 | $0.00 | $0.00 | $212.58 | $0.00 |
| 2025 | 14177 | JCCD - JC Conservation District | $2.55 | $2.55 | $0.00 | $0.00 | $5.10 | $0.00 |
| 2025 | 14177 | NWA - Noxious Weed Assessment | $2.15 | $2.15 | $0.00 | $0.00 | $4.30 | $0.00 |
| 2025 | 14177 | TOTAL: | $1938.20 | $1938.13 | $0.00 | $0.00 | $3876.33 | $0.00 |
|
| 2025 | 14177 | $1938.20 | $1938.13 | $0.00 | $0.00 | $3876.33 | $0.00 |
Statement Details |
| 2024 | 14207 | STATE - STATE LEVY (SCHOOL) | $462.59 | $462.59 | $0.00 | $0.00 | $925.18 | $0.00 |
| 2024 | 14207 | COUNTY - COUNTY LEVIES (CE, DD, VET, MH) | $197.95 | $197.95 | $0.00 | $0.00 | $395.90 | $0.00 |
| 2024 | 14207 | CONSERVE - CONSERVATION FUTURES | $5.94 | $5.93 | $0.00 | $0.00 | $11.87 | $0.00 |
| 2024 | 14207 | CITYPT - CITY OF PT | $282.84 | $282.83 | $0.00 | $0.00 | $565.67 | $0.00 |
| 2024 | 14207 | PORTPT - PORT DISTRICT | $81.76 | $81.76 | $0.00 | $0.00 | $163.52 | $0.00 |
| 2024 | 14207 | PUD1 - PUD #1 | $13.00 | $13.00 | $0.00 | $0.00 | $26.00 | $0.00 |
| 2024 | 14207 | HD2 - HOSP DIST #2 | $11.55 | $11.55 | $0.00 | $0.00 | $23.10 | $0.00 |
| 2024 | 14207 | SD50 - SCHOOL DIST #50 | $374.26 | $374.26 | $0.00 | $0.00 | $748.52 | $0.00 |
| 2024 | 14207 | FD1 - FIRE DISTRICT #1 | $261.73 | $261.73 | $0.00 | $0.00 | $523.46 | $0.00 |
| 2024 | 14207 | EMS1 - FIRE DIST #1 EMS | $99.97 | $99.97 | $0.00 | $0.00 | $199.94 | $0.00 |
| 2024 | 14207 | JCCD - JC Conservation District | $2.55 | $2.55 | $0.00 | $0.00 | $5.10 | $0.00 |
| 2024 | 14207 | NWA - Noxious Weed Assessment | $2.15 | $2.15 | $0.00 | $0.00 | $4.30 | $0.00 |
| 2024 | 14207 | TOTAL: | $1796.29 | $1796.27 | $0.00 | $0.00 | $3592.56 | $0.00 |
|
| 2024 | 14207 | $1796.29 | $1796.27 | $0.00 | $0.00 | $3592.56 | $0.00 |
Statement Details |
| 2023 | 14230 | STATE - STATE LEVY (SCHOOL) | $464.82 | $464.81 | $0.00 | $0.00 | $929.63 | $0.00 |
| 2023 | 14230 | COUNTY - COUNTY LEVIES (CE, DD, VET, MH) | $202.83 | $202.82 | $0.00 | $0.00 | $405.65 | $0.00 |
| 2023 | 14230 | CONSERVE - CONSERVATION FUTURES | $6.08 | $6.08 | $0.00 | $0.00 | $12.16 | $0.00 |
| 2023 | 14230 | CITYPT - CITY OF PT | $286.68 | $286.66 | $0.00 | $0.00 | $573.34 | $0.00 |
| 2023 | 14230 | PORTPT - PORT DISTRICT | $85.45 | $85.44 | $0.00 | $0.00 | $170.89 | $0.00 |
| 2023 | 14230 | PUD1 - PUD #1 | $13.45 | $13.44 | $0.00 | $0.00 | $26.89 | $0.00 |
| 2023 | 14230 | HD2 - HOSP DIST #2 | $11.84 | $11.83 | $0.00 | $0.00 | $23.67 | $0.00 |
| 2023 | 14230 | SD50 - SCHOOL DIST #50 | $368.85 | $368.84 | $0.00 | $0.00 | $737.69 | $0.00 |
| 2023 | 14230 | FD1 - FIRE DISTRICT #1 | $167.09 | $167.09 | $0.00 | $0.00 | $334.18 | $0.00 |
| 2023 | 14230 | EMS1 - FIRE DIST #1 EMS | $71.08 | $71.08 | $0.00 | $0.00 | $142.16 | $0.00 |
| 2023 | 14230 | JCCD - JC Conservation District | $2.55 | $2.55 | $0.00 | $0.00 | $5.10 | $0.00 |
| 2023 | 14230 | NWA - Noxious Weed Assessment | $2.15 | $2.15 | $0.00 | $0.00 | $4.30 | $0.00 |
| 2023 | 14230 | TOTAL: | $1682.87 | $1682.79 | $0.00 | $0.00 | $3365.66 | $0.00 |
|
| 2023 | 14230 | $1682.87 | $1682.79 | $0.00 | $0.00 | $3365.66 | $0.00 |
Values
| (+) Improvement Homesite Value: | + | $0 | |
| (+) Improvement Non-Homesite Value: | + | $166,061 | |
| (+) Land Homesite Value: | + | $0 | |
| (+) Land Non-Homesite Value: | + | $294,000 | |
| (+) Curr Use (HS): | + | $0 | $0 |
| (+) Curr Use (NHS): | + | $0 | $0 |
| | | -------------------------- | |
| (=) Market Value: | = | $460,061 | |
| (–) Productivity Loss: | – | $0 | |
| | | -------------------------- | |
| (=) Subtotal: | = | $460,061 | |
| (+) Senior Appraised Value: | + | $0 | |
| (+) Non-Senior Appraised Value: | + | $460,061 | |
| | | -------------------------- | |
| (=) Total Appraised Value: | = | $460,061 | |
| (–) Senior Exemption Loss: | – | $0 | |
| (–) Exemption Loss: | – | $0 | |
| | | -------------------------- | |
| (=) Taxable Value: | = | $460,061 | |
Taxing Jurisdiction
| Owner: | ARIC B SPENCER | | |
| % Ownership: | 100.0000000000% | | |
| Total Value: | $460,061 | | |
| Tax Area: | 0110 - C-50F1E1H2 |
| CE | COUNTY CURRENT EXPENSE | 0.9034619479 | $460,061 | $460,061 | $415.65 | | |
| CNTYDD | DEVELOPMENTAL DISABILITIES | 0.0052121823 | $460,061 | $460,061 | $2.40 | | |
| CNTYVET | VETERANS RELIEF | 0.0052777810 | $460,061 | $460,061 | $2.43 | | |
| MENTAL | MENTAL HEALTH | 0.0052121823 | $460,061 | $460,061 | $2.40 | | |
| PTGEN | CITY OF PT GENERAL | 0.8551967795 | $460,061 | $460,061 | $393.44 | | |
| PTLLL | CITY OF PT - LIBRARY LID LIFT | 0.4010114288 | $460,061 | $460,061 | $184.49 | | |
| PTMVBOND | CITY OF PT MV BOND | 0.0484717981 | $460,061 | $460,061 | $22.30 | | |
| HOSP2CASH | HOSP DIST #2 GENERAL | 0.0536075306 | $460,061 | $460,061 | $24.66 | | |
| SCH50BOND | SCHOOL DIST #50 BOND 2016 | 0.5377451389 | $460,061 | $460,061 | $247.40 | | |
| SCH50CP | SCHOOL DIST #50 CAP PROJ | 0.4573475088 | $460,061 | $460,061 | $210.41 | | |
| SCH50MO | SCHOOL DIST #50 EP & O | 0.8262822886 | $460,061 | $460,061 | $380.14 | | |
| CONSERVE | CONSERVATION FUTURES | 0.0275621078 | $460,061 | $460,061 | $12.68 | | |
| EMS1 | FIRE DIST #1 EMS | 0.4679948282 | $460,061 | $460,061 | $215.31 | | |
| FD1 | FIRE DIST #1 GENERAL | 1.2171942929 | $460,061 | $460,061 | $559.98 | | |
| PORTPT | PORT OF PT GENERAL | 0.1134941229 | $460,061 | $460,061 | $52.21 | | |
| PORTPTIDD | PORT OF PT IDD 2019 | 0.2577346692 | $460,061 | $460,061 | $118.57 | | |
| PUD1 | PUD #1 GENERAL | 0.0597888892 | $460,061 | $460,061 | $27.51 | | |
| STATE | STATE SCHOOL PART 1 | 1.4940692947 | $460,061 | $460,061 | $687.36 | | |
| STATE2 | STATE SCHOOL PART 2 | 0.8050170049 | $460,061 | $460,061 | $370.36 | | |
| | Total Tax Rate: | 8.5416817766 | | | | | |
| | | | | Taxes w/Current Exemptions: | $3,929.70 | | |
| | | | | Taxes w/o Exemptions: | $3,929.70 | | |
Improvement / Building
| Improvement #1: | Residential Bldg | State Code: | 11 | 738.0 sqft | Value: | $166,061 |
| Bathrooms (#): | 1 (FULL) | Bedrooms (#): | 2 | | Exterior Wall: | SI/ST | Fireplace: | WD ST-GOOD | | Floor Construction: | FRAME | Foundation: | CONPR | | Heating/Cooling: | WD/NO | Roof Cover: | COMP |
|
| | Type | Description | Class CD | Sub Class CD | Year Built | Area |
| | MA | Main Area | 4- | 1S | 1951 | 738.0 |
| | HCPOR | House Concrete Porch | 4 | * | 1951 | 20.0 |
| | SHED | Shed (Table Not Dep) | 4 | * | 2012 | 64.0 |
| | SHED | Shed (Table Not Dep) | 4 | * | 2018 | 160.0 |
Sketch
Property Image
Land
| 1 | 6050-1155L | | 0.0000 | 0.00 | 0.00 | 0.00 | 1.00 | $162,000 | $0 |
| 2 | 6050-1155L | | 0.0000 | 0.00 | 0.00 | 0.00 | 1.00 | $132,000 | $0 |
Roll Value History
| 2026 | N/A | N/A | N/A | N/A | N/A |
| 2025 | $166,061 | $294,000 | $0 | $460,061 | $460,061 |
| 2024 | $147,150 | $297,000 | $0 | $444,150 | $444,150 |
| 2023 | $134,888 | $265,000 | $0 | $399,888 | $399,888 |
| 2022 | $134,888 | $260,000 | $0 | $394,888 | $394,888 |
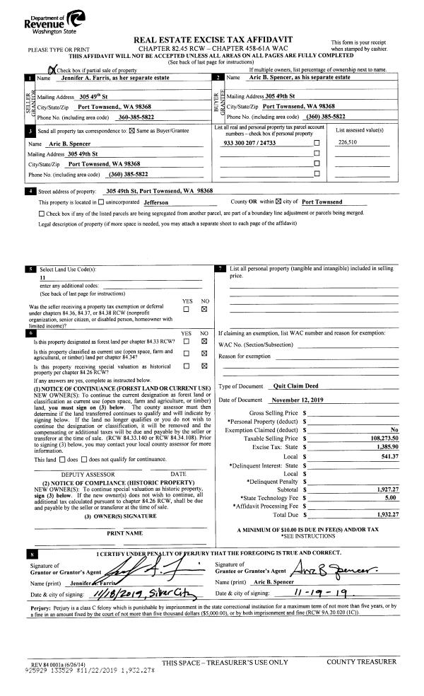
Deed and Sales History
| 1 | 11/12/2019 | QCD | Quit Claim Deed | ARIC B SPENCER | ARIC B SPENCER | | | | 133530 | |
| 2 | 11/12/2019 | QCD | Quit Claim Deed | | | | | $108,274.00 | 133529 | |
| 3 | 06/03/2016 | SWD | Statutory Warranty Deed | AMY R LEITMAN | JENNIFER A FARRIS | | | $255,000.00 | 125584 | |
| 4 | 10/05/1998 | SWD | Statutory Warranty Deed | WYLDE, ELLEN BLACK | ZINNEMANN, PAULA/LEITMAN, AMY | 0 | 0 | $73,500.00 | 85482 | 0 |
| 5 | 09/14/1998 | SWD | Statutory Warranty Deed | WYLDE, ELLEN BLACK | ZINNEMANN, PAULA/LEITMAN, AMY | 0 | 0 | $10,000.00 | 85315 | 0 |
Payout Agreement
| No payout information available.. |