Property
Account |
| Property ID: | 24734 | Abbreviated Legal Description: | BRACKEN'S ADDITION BLK 2 LOT 14 |
| Parcel # / Geo ID: | 933300208 | Agent Code: | |
| Type: | Real | | |
| Tax Area: | 0110 - C-50F1E1H2 | Land Use Code | 11 |
| Open Space: | N | DFL | N |
| Historic Property: | N | Remodel Property: | N |
| Multi-Family Redevelopment: | N | | |
| Township: | 31N | Section: | 34 |
| Range: | 1W |
Location |
| Address: | 4754 HAINES ST PORT TOWNSEND, WA 98368 | Mapsco: | 005/013 |
| Neighborhood: | BRACKENS ADDITION, HAPPY VALLEY, FAIRGROUNDS | Map ID: | |
| Neighborhood CD: | 6050 |
Owner |
| Name: | THOMAS ATKINSON | Owner ID: | 110360 |
| Mailing Address: | SHARON DEAN 4754 HAINES ST PORT TOWNSEND, WA 98368-2109 | % Ownership: | 100.0000000000% |
| | | Exemptions: | |
Pay Tax Due
Select the appropriate checkbox next to the year to be paid. Multiple years may be selected.
*Convenience Fee not included
Taxes and Assessment Details
Property Tax Information as of
03/09/2026
Click on "Statement Details" to expand or collapse a tax statement.
* Please enter a valid date ** Please enter a valid date *
Statement Details |
| 2026 | 14131 | STATE - STATE LEVY (SCHOOL) | $818.93 | $818.92 | $0.00 | $0.00 | $0.00 | $1637.85 |
| 2026 | 14131 | COUNTY - COUNTY LEVIES (CE, DD, VET, MH) | $327.41 | $327.39 | $0.00 | $0.00 | $0.00 | $654.80 |
| 2026 | 14131 | CONSERVE - CONSERVATION FUTURES | $9.82 | $9.82 | $0.00 | $0.00 | $0.00 | $19.64 |
| 2026 | 14131 | CITYPT - CITY OF PT | $464.73 | $464.72 | $0.00 | $0.00 | $0.00 | $929.45 |
| 2026 | 14131 | PORTPT - PORT DISTRICT | $132.24 | $132.22 | $0.00 | $0.00 | $0.00 | $264.46 |
| 2026 | 14131 | PUD1 - PUD #1 | $21.30 | $21.29 | $0.00 | $0.00 | $0.00 | $42.59 |
| 2026 | 14131 | HD2 - HOSP DIST #2 | $19.10 | $19.09 | $0.00 | $0.00 | $0.00 | $38.19 |
| 2026 | 14131 | SD50 - SCHOOL DIST #50 | $648.78 | $648.76 | $0.00 | $0.00 | $0.00 | $1297.54 |
| 2026 | 14131 | FD1 - FIRE DISTRICT #1 | $433.56 | $433.56 | $0.00 | $0.00 | $0.00 | $867.12 |
| 2026 | 14131 | EMS1 - FIRE DIST #1 EMS | $166.70 | $166.70 | $0.00 | $0.00 | $0.00 | $333.40 |
| 2026 | 14131 | JCCD - JC Conservation District | $2.55 | $2.55 | $0.00 | $0.00 | $0.00 | $5.10 |
| 2026 | 14131 | NWA - Noxious Weed Assessment | $2.98 | $2.97 | $0.00 | $0.00 | $0.00 | $5.95 |
| 2026 | 14131 | TOTAL: | $3048.10 | $3047.99 | $0.00 | $0.00 | $0.00 | $6096.09 |
|
| 2026 | 14131 | $3048.10 | $3047.99 | $0.00 | $0.00 | $0.00 | $6096.09 |
Statement Details |
| 2025 | 14178 | STATE - STATE LEVY (SCHOOL) | $758.83 | $758.83 | $0.00 | $0.00 | $1517.66 | $0.00 |
| 2025 | 14178 | COUNTY - COUNTY LEVIES (CE, DD, VET, MH) | $298.41 | $298.41 | $0.00 | $0.00 | $596.82 | $0.00 |
| 2025 | 14178 | CONSERVE - CONSERVATION FUTURES | $8.95 | $8.95 | $0.00 | $0.00 | $17.90 | $0.00 |
| 2025 | 14178 | CITYPT - CITY OF PT | $430.34 | $430.32 | $0.00 | $0.00 | $860.66 | $0.00 |
| 2025 | 14178 | PORTPT - PORT DISTRICT | $121.77 | $121.76 | $0.00 | $0.00 | $243.53 | $0.00 |
| 2025 | 14178 | PUD1 - PUD #1 | $19.53 | $19.52 | $0.00 | $0.00 | $39.05 | $0.00 |
| 2025 | 14178 | HD2 - HOSP DIST #2 | $17.41 | $17.41 | $0.00 | $0.00 | $34.82 | $0.00 |
| 2025 | 14178 | SD50 - SCHOOL DIST #50 | $554.58 | $554.57 | $0.00 | $0.00 | $1109.15 | $0.00 |
| 2025 | 14178 | FD1 - FIRE DISTRICT #1 | $393.78 | $393.78 | $0.00 | $0.00 | $787.56 | $0.00 |
| 2025 | 14178 | EMS1 - FIRE DIST #1 EMS | $151.46 | $151.46 | $0.00 | $0.00 | $302.92 | $0.00 |
| 2025 | 14178 | JCCD - JC Conservation District | $2.55 | $2.55 | $0.00 | $0.00 | $5.10 | $0.00 |
| 2025 | 14178 | NWA - Noxious Weed Assessment | $2.15 | $2.15 | $0.00 | $0.00 | $4.30 | $0.00 |
| 2025 | 14178 | TOTAL: | $2759.76 | $2759.71 | $0.00 | $0.00 | $5519.47 | $0.00 |
|
| 2025 | 14178 | $2759.76 | $2759.71 | $0.00 | $0.00 | $5519.47 | $0.00 |
Statement Details |
| 2024 | 14208 | STATE - STATE LEVY (SCHOOL) | $582.72 | $582.71 | $0.00 | $0.00 | $1165.43 | $0.00 |
| 2024 | 14208 | COUNTY - COUNTY LEVIES (CE, DD, VET, MH) | $249.36 | $249.34 | $0.00 | $0.00 | $498.70 | $0.00 |
| 2024 | 14208 | CONSERVE - CONSERVATION FUTURES | $7.48 | $7.47 | $0.00 | $0.00 | $14.95 | $0.00 |
| 2024 | 14208 | CITYPT - CITY OF PT | $356.29 | $356.28 | $0.00 | $0.00 | $712.57 | $0.00 |
| 2024 | 14208 | PORTPT - PORT DISTRICT | $103.00 | $102.99 | $0.00 | $0.00 | $205.99 | $0.00 |
| 2024 | 14208 | PUD1 - PUD #1 | $16.38 | $16.38 | $0.00 | $0.00 | $32.76 | $0.00 |
| 2024 | 14208 | HD2 - HOSP DIST #2 | $14.55 | $14.55 | $0.00 | $0.00 | $29.10 | $0.00 |
| 2024 | 14208 | SD50 - SCHOOL DIST #50 | $471.45 | $471.43 | $0.00 | $0.00 | $942.88 | $0.00 |
| 2024 | 14208 | FD1 - FIRE DISTRICT #1 | $329.70 | $329.69 | $0.00 | $0.00 | $659.39 | $0.00 |
| 2024 | 14208 | EMS1 - FIRE DIST #1 EMS | $125.93 | $125.93 | $0.00 | $0.00 | $251.86 | $0.00 |
| 2024 | 14208 | JCCD - JC Conservation District | $2.55 | $2.55 | $0.00 | $0.00 | $5.10 | $0.00 |
| 2024 | 14208 | NWA - Noxious Weed Assessment | $2.15 | $2.15 | $0.00 | $0.00 | $4.30 | $0.00 |
| 2024 | 14208 | TOTAL: | $2261.56 | $2261.47 | $0.00 | $0.00 | $4523.03 | $0.00 |
|
| 2024 | 14208 | $2261.56 | $2261.47 | $0.00 | $0.00 | $4523.03 | $0.00 |
Statement Details |
| 2023 | 14231 | STATE - STATE LEVY (SCHOOL) | $547.12 | $547.11 | $0.00 | $0.00 | $1094.23 | $0.00 |
| 2023 | 14231 | COUNTY - COUNTY LEVIES (CE, DD, VET, MH) | $238.75 | $238.73 | $0.00 | $0.00 | $477.48 | $0.00 |
| 2023 | 14231 | CONSERVE - CONSERVATION FUTURES | $7.16 | $7.16 | $0.00 | $0.00 | $14.32 | $0.00 |
| 2023 | 14231 | CITYPT - CITY OF PT | $337.44 | $337.42 | $0.00 | $0.00 | $674.86 | $0.00 |
| 2023 | 14231 | PORTPT - PORT DISTRICT | $100.58 | $100.57 | $0.00 | $0.00 | $201.15 | $0.00 |
| 2023 | 14231 | PUD1 - PUD #1 | $15.83 | $15.82 | $0.00 | $0.00 | $31.65 | $0.00 |
| 2023 | 14231 | HD2 - HOSP DIST #2 | $13.94 | $13.93 | $0.00 | $0.00 | $27.87 | $0.00 |
| 2023 | 14231 | SD50 - SCHOOL DIST #50 | $434.15 | $434.14 | $0.00 | $0.00 | $868.29 | $0.00 |
| 2023 | 14231 | FD1 - FIRE DISTRICT #1 | $196.68 | $196.68 | $0.00 | $0.00 | $393.36 | $0.00 |
| 2023 | 14231 | EMS1 - FIRE DIST #1 EMS | $83.67 | $83.66 | $0.00 | $0.00 | $167.33 | $0.00 |
| 2023 | 14231 | JCCD - JC Conservation District | $2.55 | $2.55 | $0.00 | $0.00 | $5.10 | $0.00 |
| 2023 | 14231 | NWA - Noxious Weed Assessment | $2.15 | $2.15 | $0.00 | $0.00 | $4.30 | $0.00 |
| 2023 | 14231 | TOTAL: | $1980.02 | $1979.92 | $0.00 | $0.00 | $3959.94 | $0.00 |
|
| 2023 | 14231 | $1980.02 | $1979.92 | $0.00 | $0.00 | $3959.94 | $0.00 |
Values
| (+) Improvement Homesite Value: | + | $0 | |
| (+) Improvement Non-Homesite Value: | + | $484,392 | |
| (+) Land Homesite Value: | + | $0 | |
| (+) Land Non-Homesite Value: | + | $228,000 | |
| (+) Curr Use (HS): | + | $0 | $0 |
| (+) Curr Use (NHS): | + | $0 | $0 |
| | | -------------------------- | |
| (=) Market Value: | = | $712,392 | |
| (–) Productivity Loss: | – | $0 | |
| | | -------------------------- | |
| (=) Subtotal: | = | $712,392 | |
| (+) Senior Appraised Value: | + | $0 | |
| (+) Non-Senior Appraised Value: | + | $712,392 | |
| | | -------------------------- | |
| (=) Total Appraised Value: | = | $712,392 | |
| (–) Senior Exemption Loss: | – | $0 | |
| (–) Exemption Loss: | – | $0 | |
| | | -------------------------- | |
| (=) Taxable Value: | = | $712,392 | |
Taxing Jurisdiction
| Owner: | THOMAS ATKINSON | | |
| % Ownership: | 100.0000000000% | | |
| Total Value: | $712,392 | | |
| Tax Area: | 0110 - C-50F1E1H2 |
| CE | COUNTY CURRENT EXPENSE | 0.9034619479 | $712,392 | $712,392 | $643.62 | | |
| CNTYDD | DEVELOPMENTAL DISABILITIES | 0.0052121823 | $712,392 | $712,392 | $3.71 | | |
| CNTYVET | VETERANS RELIEF | 0.0052777810 | $712,392 | $712,392 | $3.76 | | |
| MENTAL | MENTAL HEALTH | 0.0052121823 | $712,392 | $712,392 | $3.71 | | |
| PTGEN | CITY OF PT GENERAL | 0.8551967795 | $712,392 | $712,392 | $609.24 | | |
| PTLLL | CITY OF PT - LIBRARY LID LIFT | 0.4010114288 | $712,392 | $712,392 | $285.68 | | |
| PTMVBOND | CITY OF PT MV BOND | 0.0484717981 | $712,392 | $712,392 | $34.53 | | |
| HOSP2CASH | HOSP DIST #2 GENERAL | 0.0536075306 | $712,392 | $712,392 | $38.19 | | |
| SCH50BOND | SCHOOL DIST #50 BOND 2016 | 0.5377451389 | $712,392 | $712,392 | $383.09 | | |
| SCH50CP | SCHOOL DIST #50 CAP PROJ | 0.4573475088 | $712,392 | $712,392 | $325.81 | | |
| SCH50MO | SCHOOL DIST #50 EP & O | 0.8262822886 | $712,392 | $712,392 | $588.64 | | |
| CONSERVE | CONSERVATION FUTURES | 0.0275621078 | $712,392 | $712,392 | $19.64 | | |
| EMS1 | FIRE DIST #1 EMS | 0.4679948282 | $712,392 | $712,392 | $333.40 | | |
| FD1 | FIRE DIST #1 GENERAL | 1.2171942929 | $712,392 | $712,392 | $867.12 | | |
| PORTPT | PORT OF PT GENERAL | 0.1134941229 | $712,392 | $712,392 | $80.85 | | |
| PORTPTIDD | PORT OF PT IDD 2019 | 0.2577346692 | $712,392 | $712,392 | $183.61 | | |
| PUD1 | PUD #1 GENERAL | 0.0597888892 | $712,392 | $712,392 | $42.59 | | |
| STATE | STATE SCHOOL PART 1 | 1.4940692947 | $712,392 | $712,392 | $1,064.36 | | |
| STATE2 | STATE SCHOOL PART 2 | 0.8050170049 | $712,392 | $712,392 | $573.49 | | |
| | Total Tax Rate: | 8.5416817766 | | | | | |
| | | | | Taxes w/Current Exemptions: | $6,085.04 | | |
| | | | | Taxes w/o Exemptions: | $6,085.04 | | |
Improvement / Building
| Improvement #1: | Residential Bldg | State Code: | 11 | 1732.0 sqft | Value: | $484,392 |
| Bathrooms (#): | 2 (FULL) | Bedrooms (#): | 3 | | Exterior Wall: | METAL | Floor Construction: | FRAME | | Foundation: | CONPR | Heating/Cooling: | OTHER | | Roof Cover: | COMP |   |   |
|
| | Type | Description | Class CD | Sub Class CD | Year Built | Area |
| | MA | Main Area | 5 | 15SF | 2019 | 940.0 |
| | MA2 | Second Floor Main Area | 5 | 15SF | 2019 | 792.0 |
| | BSMTF | House basement finished | 5 | 15SF | 2019 | 180.0 |
| | HDECK | House Deck | 5 | * | 2019 | 40.0 |
Sketch
Property Image
Land
| 1 | 6050-1155L | | 0.0000 | 0.00 | 0.00 | 0.00 | 1.00 | $228,000 | $0 |
Roll Value History
| 2026 | N/A | N/A | N/A | N/A | N/A |
| 2025 | $484,392 | $228,000 | $0 | $712,392 | $712,392 |
| 2024 | $467,879 | $165,000 | $0 | $632,879 | $632,879 |
| 2023 | $358,728 | $145,000 | $0 | $503,728 | $503,728 |
| 2022 | $324,809 | $140,000 | $0 | $464,809 | $464,809 |
Deed and Sales History
| 1 | 02/08/2024 | SWD | Statutory Warranty Deed | SEAN YEARIAN & CRISTINA DASILVA | THOMAS ATKINSON | | | $850,000.00 | 142209 | |
| 2 | 11/29/2018 | SWD | Statutory Warranty Deed | JENNIFER A FARRIS | SEAN YEARIAN & CRISTINA DASILVA | | | $99,000.00 | 131499 | |
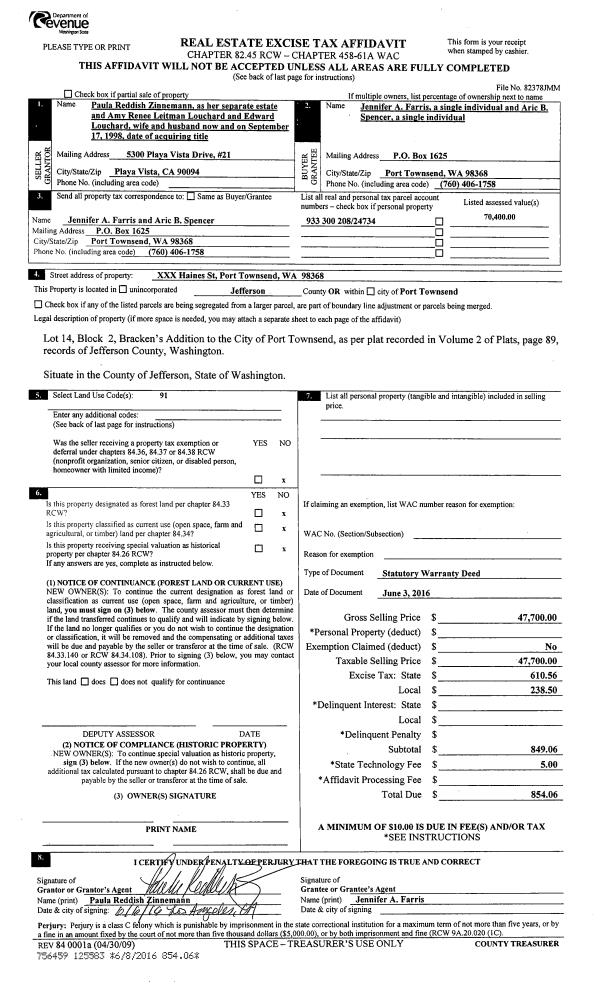
| 3 | 06/03/2016 | SWD | Statutory Warranty Deed | AMY R LEITMAN | JENNIFER A FARRIS | | | $47,700.00 | 125583 | |
Payout Agreement
| No payout information available.. |