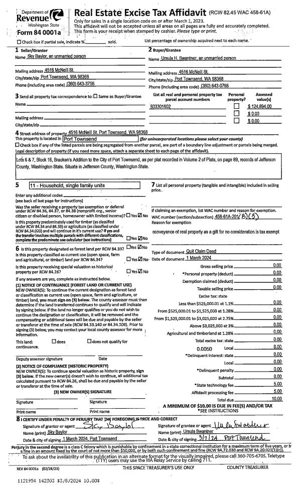
Property
Account |
| Property ID: | 24757 | Abbreviated Legal Description: | BRACKEN'S ADDITION BLK 16 LOTS 6 & 7 BND BY LOTS OF RECORD # 625503 LUP19-074 |
| Parcel # / Geo ID: | 933301602 | Agent Code: | |
| Type: | Real | | |
| Tax Area: | 0110 - C-50F1E1H2 | Land Use Code | 11 |
| Open Space: | N | DFL | N |
| Historic Property: | N | Remodel Property: | N |
| Multi-Family Redevelopment: | N | | |
| Township: | 31N | Section: | 34 |
| Range: | 1W |
Location |
| Address: | 4516 MCNEIL ST PORT TOWNSEND, WA 98368 | Mapsco: | 005/055A |
| Neighborhood: | BRACKENS ADDITION, HAPPY VALLEY, FAIRGROUNDS | Map ID: | |
| Neighborhood CD: | 6050 |
Owner |
| Name: | URSULA H SWANTNER | Owner ID: | 110488 |
| Mailing Address: | 4516 MCNEILL ST PORT TOWNSEND, WA 98368-2106 | % Ownership: | 100.0000000000% |
| | | Exemptions: | |
Pay Tax Due
There is currently No Amount Due on this property.
Taxes and Assessment Details
Property Tax Information as of
03/10/2026
Click on "Statement Details" to expand or collapse a tax statement.
* Please enter a valid date ** Please enter a valid date *
Statement Details |
| 2026 | 14154 | STATE - STATE LEVY (SCHOOL) | $196.12 | $196.12 | $0.00 | $0.00 | $392.24 | $0.00 |
| 2026 | 14154 | COUNTY - COUNTY LEVIES (CE, DD, VET, MH) | $78.42 | $78.40 | $0.00 | $0.00 | $156.82 | $0.00 |
| 2026 | 14154 | CONSERVE - CONSERVATION FUTURES | $2.35 | $2.35 | $0.00 | $0.00 | $4.70 | $0.00 |
| 2026 | 14154 | CITYPT - CITY OF PT | $111.30 | $111.28 | $0.00 | $0.00 | $222.58 | $0.00 |
| 2026 | 14154 | PORTPT - PORT DISTRICT | $31.67 | $31.66 | $0.00 | $0.00 | $63.33 | $0.00 |
| 2026 | 14154 | PUD1 - PUD #1 | $5.10 | $5.10 | $0.00 | $0.00 | $10.20 | $0.00 |
| 2026 | 14154 | HD2 - HOSP DIST #2 | $4.58 | $4.57 | $0.00 | $0.00 | $9.15 | $0.00 |
| 2026 | 14154 | SD50 - SCHOOL DIST #50 | $155.38 | $155.36 | $0.00 | $0.00 | $310.74 | $0.00 |
| 2026 | 14154 | FD1 - FIRE DISTRICT #1 | $103.83 | $103.83 | $0.00 | $0.00 | $207.66 | $0.00 |
| 2026 | 14154 | EMS1 - FIRE DIST #1 EMS | $39.92 | $39.92 | $0.00 | $0.00 | $79.84 | $0.00 |
| 2026 | 14154 | JCCD - JC Conservation District | $2.50 | $2.50 | $0.00 | $0.00 | $5.00 | $0.00 |
| 2026 | 14154 | NWA - Noxious Weed Assessment | $2.75 | $2.75 | $0.00 | $0.00 | $5.50 | $0.00 |
| 2026 | 14154 | TOTAL: | $733.92 | $733.84 | $0.00 | $0.00 | $1467.76 | $0.00 |
|
| 2026 | 14154 | $733.92 | $733.84 | $0.00 | $0.00 | $1467.76 | $0.00 |
Statement Details |
| 2025 | 14201 | STATE - STATE LEVY (SCHOOL) | $171.07 | $171.05 | $0.00 | $0.00 | $342.12 | $0.00 |
| 2025 | 14201 | COUNTY - COUNTY LEVIES (CE, DD, VET, MH) | $67.27 | $67.26 | $0.00 | $0.00 | $134.53 | $0.00 |
| 2025 | 14201 | CONSERVE - CONSERVATION FUTURES | $2.02 | $2.01 | $0.00 | $0.00 | $4.03 | $0.00 |
| 2025 | 14201 | CITYPT - CITY OF PT | $97.01 | $97.00 | $0.00 | $0.00 | $194.01 | $0.00 |
| 2025 | 14201 | PORTPT - PORT DISTRICT | $27.46 | $27.44 | $0.00 | $0.00 | $54.90 | $0.00 |
| 2025 | 14201 | PUD1 - PUD #1 | $4.40 | $4.40 | $0.00 | $0.00 | $8.80 | $0.00 |
| 2025 | 14201 | HD2 - HOSP DIST #2 | $3.93 | $3.92 | $0.00 | $0.00 | $7.85 | $0.00 |
| 2025 | 14201 | SD50 - SCHOOL DIST #50 | $125.02 | $125.01 | $0.00 | $0.00 | $250.03 | $0.00 |
| 2025 | 14201 | FD1 - FIRE DISTRICT #1 | $88.77 | $88.76 | $0.00 | $0.00 | $177.53 | $0.00 |
| 2025 | 14201 | EMS1 - FIRE DIST #1 EMS | $34.14 | $34.14 | $0.00 | $0.00 | $68.28 | $0.00 |
| 2025 | 14201 | JCCD - JC Conservation District | $2.50 | $2.50 | $0.00 | $0.00 | $5.00 | $0.00 |
| 2025 | 14201 | NWA - Noxious Weed Assessment | $2.00 | $2.00 | $0.00 | $0.00 | $4.00 | $0.00 |
| 2025 | 14201 | TOTAL: | $625.59 | $625.49 | $0.00 | $0.00 | $1251.08 | $0.00 |
|
| 2025 | 14201 | $625.59 | $625.49 | $0.00 | $0.00 | $1251.08 | $0.00 |
Statement Details |
| 2024 | 14231 | STATE - STATE LEVY (SCHOOL) | $144.49 | $144.47 | $0.00 | $0.00 | $288.96 | $0.00 |
| 2024 | 14231 | COUNTY - COUNTY LEVIES (CE, DD, VET, MH) | $61.83 | $61.82 | $0.00 | $0.00 | $123.65 | $0.00 |
| 2024 | 14231 | CONSERVE - CONSERVATION FUTURES | $1.86 | $1.85 | $0.00 | $0.00 | $3.71 | $0.00 |
| 2024 | 14231 | CITYPT - CITY OF PT | $88.35 | $88.33 | $0.00 | $0.00 | $176.68 | $0.00 |
| 2024 | 14231 | PORTPT - PORT DISTRICT | $25.54 | $25.53 | $0.00 | $0.00 | $51.07 | $0.00 |
| 2024 | 14231 | PUD1 - PUD #1 | $4.06 | $4.06 | $0.00 | $0.00 | $8.12 | $0.00 |
| 2024 | 14231 | HD2 - HOSP DIST #2 | $3.61 | $3.60 | $0.00 | $0.00 | $7.21 | $0.00 |
| 2024 | 14231 | SD50 - SCHOOL DIST #50 | $116.89 | $116.88 | $0.00 | $0.00 | $233.77 | $0.00 |
| 2024 | 14231 | FD1 - FIRE DISTRICT #1 | $81.75 | $81.74 | $0.00 | $0.00 | $163.49 | $0.00 |
| 2024 | 14231 | EMS1 - FIRE DIST #1 EMS | $31.23 | $31.22 | $0.00 | $0.00 | $62.45 | $0.00 |
| 2024 | 14231 | JCCD - JC Conservation District | $2.50 | $2.50 | $0.00 | $0.00 | $5.00 | $0.00 |
| 2024 | 14231 | NWA - Noxious Weed Assessment | $2.00 | $2.00 | $0.00 | $0.00 | $4.00 | $0.00 |
| 2024 | 14231 | TOTAL: | $564.11 | $564.00 | $0.00 | $0.00 | $1128.11 | $0.00 |
|
| 2024 | 14231 | $564.11 | $564.00 | $0.00 | $0.00 | $1128.11 | $0.00 |
Statement Details |
| 2023 | 14254 | STATE - STATE LEVY (SCHOOL) | $141.13 | $141.12 | $0.00 | $0.00 | $282.25 | $0.00 |
| 2023 | 14254 | COUNTY - COUNTY LEVIES (CE, DD, VET, MH) | $61.59 | $61.58 | $0.00 | $0.00 | $123.17 | $0.00 |
| 2023 | 14254 | CONSERVE - CONSERVATION FUTURES | $1.85 | $1.84 | $0.00 | $0.00 | $3.69 | $0.00 |
| 2023 | 14254 | CITYPT - CITY OF PT | $87.05 | $87.02 | $0.00 | $0.00 | $174.07 | $0.00 |
| 2023 | 14254 | PORTPT - PORT DISTRICT | $25.95 | $25.94 | $0.00 | $0.00 | $51.89 | $0.00 |
| 2023 | 14254 | PUD1 - PUD #1 | $4.08 | $4.08 | $0.00 | $0.00 | $8.16 | $0.00 |
| 2023 | 14254 | HD2 - HOSP DIST #2 | $3.60 | $3.59 | $0.00 | $0.00 | $7.19 | $0.00 |
| 2023 | 14254 | SD50 - SCHOOL DIST #50 | $112.00 | $111.97 | $0.00 | $0.00 | $223.97 | $0.00 |
| 2023 | 14254 | FD1 - FIRE DISTRICT #1 | $50.73 | $50.73 | $0.00 | $0.00 | $101.46 | $0.00 |
| 2023 | 14254 | EMS1 - FIRE DIST #1 EMS | $21.58 | $21.58 | $0.00 | $0.00 | $43.16 | $0.00 |
| 2023 | 14254 | JCCD - JC Conservation District | $2.50 | $2.50 | $0.00 | $0.00 | $5.00 | $0.00 |
| 2023 | 14254 | NWA - Noxious Weed Assessment | $2.00 | $2.00 | $0.00 | $0.00 | $4.00 | $0.00 |
| 2023 | 14254 | TOTAL: | $514.06 | $513.95 | $0.00 | $0.00 | $1028.01 | $0.00 |
|
| 2023 | 14254 | $514.06 | $513.95 | $0.00 | $0.00 | $1028.01 | $0.00 |
Values
| (+) Improvement Homesite Value: | + | $56,606 | |
| (+) Improvement Non-Homesite Value: | + | $0 | |
| (+) Land Homesite Value: | + | $114,000 | |
| (+) Land Non-Homesite Value: | + | $0 | |
| (+) Curr Use (HS): | + | $0 | $0 |
| (+) Curr Use (NHS): | + | $0 | $0 |
| | | -------------------------- | |
| (=) Market Value: | = | $170,606 | |
| (–) Productivity Loss: | – | $0 | |
| | | -------------------------- | |
| (=) Subtotal: | = | $170,606 | |
| (+) Senior Appraised Value: | + | $0 | |
| (+) Non-Senior Appraised Value: | + | $170,606 | |
| | | -------------------------- | |
| (=) Total Appraised Value: | = | $170,606 | |
| (–) Senior Exemption Loss: | – | $0 | |
| (–) Exemption Loss: | – | $0 | |
| | | -------------------------- | |
| (=) Taxable Value: | = | $170,606 | |
Taxing Jurisdiction
| Owner: | URSULA H SWANTNER | | |
| % Ownership: | 100.0000000000% | | |
| Total Value: | $170,606 | | |
| Tax Area: | 0110 - C-50F1E1H2 |
| CE | COUNTY CURRENT EXPENSE | 0.9034619479 | $170,606 | $170,606 | $154.14 | | |
| CNTYDD | DEVELOPMENTAL DISABILITIES | 0.0052121823 | $170,606 | $170,606 | $0.89 | | |
| CNTYVET | VETERANS RELIEF | 0.0052777810 | $170,606 | $170,606 | $0.90 | | |
| MENTAL | MENTAL HEALTH | 0.0052121823 | $170,606 | $170,606 | $0.89 | | |
| PTGEN | CITY OF PT GENERAL | 0.8551967795 | $170,606 | $170,606 | $145.90 | | |
| PTLLL | CITY OF PT - LIBRARY LID LIFT | 0.4010114288 | $170,606 | $170,606 | $68.41 | | |
| PTMVBOND | CITY OF PT MV BOND | 0.0484717981 | $170,606 | $170,606 | $8.27 | | |
| HOSP2CASH | HOSP DIST #2 GENERAL | 0.0536075306 | $170,606 | $170,606 | $9.15 | | |
| SCH50BOND | SCHOOL DIST #50 BOND 2016 | 0.5377451389 | $170,606 | $170,606 | $91.74 | | |
| SCH50CP | SCHOOL DIST #50 CAP PROJ | 0.4573475088 | $170,606 | $170,606 | $78.03 | | |
| SCH50MO | SCHOOL DIST #50 EP & O | 0.8262822886 | $170,606 | $170,606 | $140.97 | | |
| CONSERVE | CONSERVATION FUTURES | 0.0275621078 | $170,606 | $170,606 | $4.70 | | |
| EMS1 | FIRE DIST #1 EMS | 0.4679948282 | $170,606 | $170,606 | $79.84 | | |
| FD1 | FIRE DIST #1 GENERAL | 1.2171942929 | $170,606 | $170,606 | $207.66 | | |
| PORTPT | PORT OF PT GENERAL | 0.1134941229 | $170,606 | $170,606 | $19.36 | | |
| PORTPTIDD | PORT OF PT IDD 2019 | 0.2577346692 | $170,606 | $170,606 | $43.97 | | |
| PUD1 | PUD #1 GENERAL | 0.0597888892 | $170,606 | $170,606 | $10.20 | | |
| STATE | STATE SCHOOL PART 1 | 1.4940692947 | $170,606 | $170,606 | $254.90 | | |
| STATE2 | STATE SCHOOL PART 2 | 0.8050170049 | $170,606 | $170,606 | $137.34 | | |
| | Total Tax Rate: | 8.5416817766 | | | | | |
| | | | | Taxes w/Current Exemptions: | $1,457.26 | | |
| | | | | Taxes w/o Exemptions: | $1,457.26 | | |
Improvement / Building
| Improvement #1: | Residential Bldg | State Code: | 11 | 660.0 sqft | Value: | $56,606 |
| Bathrooms (#): | 1 (FULL) | Bedrooms (#): | 1 | | Exterior Wall: | SI/ST | Fireplace: | WD ST-GOOD | | Floor Construction: | FRAME | Foundation: | PO&BL | | Heating/Cooling: | WD/NO | Roof Cover: | COMP |
|
| | Type | Description | Class CD | Sub Class CD | Year Built | Area |
| | MA | Main Area | 2- | 1S | 1910 | 660.0 |
| | HWPOR | House Wood Porch | 2 | * | 1910 | 54.0 |
| | GATT | House Attached Garage | 1 | 1S | 1910 | 252.0 |
Sketch
Property Image
Land
| 1 | 6050-1185L | | 0.0000 | 0.00 | 0.00 | 0.00 | 2.00 | $114,000 | $0 |
Roll Value History
| 2026 | N/A | N/A | N/A | N/A | N/A |
| 2025 | $56,606 | $114,000 | $0 | $170,606 | $170,606 |
| 2024 | $26,066 | $116,600 | $0 | $142,666 | $142,666 |
| 2023 | $23,894 | $101,000 | $0 | $124,894 | $124,894 |
| 2022 | $23,894 | $96,000 | $0 | $119,894 | $119,894 |
Deed and Sales History
| 1 | 03/01/2024 | QCD | Quit Claim Deed | SKY BAYLOR | URSULA H SWANTNER | | | | 142303 | |
| 2 | 07/30/2019 | SWD | Statutory Warranty Deed | ERIC & JANEANN TWELKER | URSULA H SWANTNER | | | $100,000.00 | 132822 | |
| 3 | 10/20/2016 | BSD | Bargain and Sale Deed | TATIANA WRIGHT | ERIC & JANEANN TWELKER | | | $235,000.00 | 126525 | |
Payout Agreement
| No payout information available.. |