Property
Account |
| Property ID: | 24807 | Abbreviated Legal Description: | BRACKEN'S ADDITION BLK 26 LOTS 5 & 6 |
| Parcel # / Geo ID: | 933302605 | Agent Code: | |
| Type: | Real | | |
| Tax Area: | 0110 - C-50F1E1H2 | Land Use Code | 11 |
| Open Space: | N | DFL | N |
| Historic Property: | N | Remodel Property: | N |
| Multi-Family Redevelopment: | N | | |
| Township: | 31N | Section: | 34 |
| Range: | 1W |
Location |
| Address: | 4383 HOLCOMB ST PORT TOWNSEND, WA 98368 | Mapsco: | 006/044 |
| Neighborhood: | BRACKENS ADDITION, HAPPY VALLEY, FAIRGROUNDS | Map ID: | |
| Neighborhood CD: | 6050 |
Owner |
| Name: | ROBERT E BORING | Owner ID: | 98412 |
| Mailing Address: | 4383 HOLCOMB ST PORT TOWNSEND, WA 98368-2131 | % Ownership: | 100.0000000000% |
| | | Exemptions: | |
Pay Tax Due
Select the appropriate checkbox next to the year to be paid. Multiple years may be selected.
*Convenience Fee not included
Taxes and Assessment Details
Property Tax Information as of
03/09/2026
Click on "Statement Details" to expand or collapse a tax statement.
* Please enter a valid date ** Please enter a valid date *
Statement Details |
| 2026 | 14204 | STATE - STATE LEVY (SCHOOL) | $711.16 | $711.16 | $0.00 | $0.00 | $0.00 | $1422.32 |
| 2026 | 14204 | COUNTY - COUNTY LEVIES (CE, DD, VET, MH) | $284.32 | $284.31 | $0.00 | $0.00 | $0.00 | $568.63 |
| 2026 | 14204 | CONSERVE - CONSERVATION FUTURES | $8.53 | $8.52 | $0.00 | $0.00 | $0.00 | $17.05 |
| 2026 | 14204 | CITYPT - CITY OF PT | $403.58 | $403.56 | $0.00 | $0.00 | $0.00 | $807.14 |
| 2026 | 14204 | PORTPT - PORT DISTRICT | $114.84 | $114.82 | $0.00 | $0.00 | $0.00 | $229.66 |
| 2026 | 14204 | PUD1 - PUD #1 | $18.50 | $18.49 | $0.00 | $0.00 | $0.00 | $36.99 |
| 2026 | 14204 | HD2 - HOSP DIST #2 | $16.58 | $16.58 | $0.00 | $0.00 | $0.00 | $33.16 |
| 2026 | 14204 | SD50 - SCHOOL DIST #50 | $563.40 | $563.39 | $0.00 | $0.00 | $0.00 | $1126.79 |
| 2026 | 14204 | FD1 - FIRE DISTRICT #1 | $376.51 | $376.50 | $0.00 | $0.00 | $0.00 | $753.01 |
| 2026 | 14204 | EMS1 - FIRE DIST #1 EMS | $144.76 | $144.76 | $0.00 | $0.00 | $0.00 | $289.52 |
| 2026 | 14204 | JCCD - JC Conservation District | $2.55 | $2.55 | $0.00 | $0.00 | $0.00 | $5.10 |
| 2026 | 14204 | NWA - Noxious Weed Assessment | $2.98 | $2.97 | $0.00 | $0.00 | $0.00 | $5.95 |
| 2026 | 14204 | TOTAL: | $2647.71 | $2647.61 | $0.00 | $0.00 | $0.00 | $5295.32 |
|
| 2026 | 14204 | $2647.71 | $2647.61 | $0.00 | $0.00 | $0.00 | $5295.32 |
Statement Details |
| 2025 | 14251 | STATE - STATE LEVY (SCHOOL) | $695.03 | $695.02 | $0.00 | $0.00 | $1390.05 | $0.00 |
| 2025 | 14251 | COUNTY - COUNTY LEVIES (CE, DD, VET, MH) | $273.33 | $273.29 | $0.00 | $0.00 | $546.62 | $0.00 |
| 2025 | 14251 | CONSERVE - CONSERVATION FUTURES | $8.20 | $8.19 | $0.00 | $0.00 | $16.39 | $0.00 |
| 2025 | 14251 | CITYPT - CITY OF PT | $394.15 | $394.14 | $0.00 | $0.00 | $788.29 | $0.00 |
| 2025 | 14251 | PORTPT - PORT DISTRICT | $111.53 | $111.52 | $0.00 | $0.00 | $223.05 | $0.00 |
| 2025 | 14251 | PUD1 - PUD #1 | $17.89 | $17.88 | $0.00 | $0.00 | $35.77 | $0.00 |
| 2025 | 14251 | HD2 - HOSP DIST #2 | $15.95 | $15.94 | $0.00 | $0.00 | $31.89 | $0.00 |
| 2025 | 14251 | SD50 - SCHOOL DIST #50 | $507.96 | $507.94 | $0.00 | $0.00 | $1015.90 | $0.00 |
| 2025 | 14251 | FD1 - FIRE DISTRICT #1 | $360.67 | $360.66 | $0.00 | $0.00 | $721.33 | $0.00 |
| 2025 | 14251 | EMS1 - FIRE DIST #1 EMS | $138.72 | $138.72 | $0.00 | $0.00 | $277.44 | $0.00 |
| 2025 | 14251 | JCCD - JC Conservation District | $2.55 | $2.55 | $0.00 | $0.00 | $5.10 | $0.00 |
| 2025 | 14251 | NWA - Noxious Weed Assessment | $2.15 | $2.15 | $0.00 | $0.00 | $4.30 | $0.00 |
| 2025 | 14251 | TOTAL: | $2528.13 | $2528.00 | $0.00 | $0.00 | $5056.13 | $0.00 |
|
| 2025 | 14251 | $2528.13 | $2528.00 | $0.00 | $0.00 | $5056.13 | $0.00 |
Statement Details |
| 2024 | 14281 | STATE - STATE LEVY (SCHOOL) | $607.87 | $607.86 | $0.00 | $0.00 | $1215.73 | $0.00 |
| 2024 | 14281 | COUNTY - COUNTY LEVIES (CE, DD, VET, MH) | $260.12 | $260.11 | $0.00 | $0.00 | $520.23 | $0.00 |
| 2024 | 14281 | CONSERVE - CONSERVATION FUTURES | $7.80 | $7.80 | $0.00 | $0.00 | $15.60 | $0.00 |
| 2024 | 14281 | CITYPT - CITY OF PT | $371.67 | $371.66 | $0.00 | $0.00 | $743.33 | $0.00 |
| 2024 | 14281 | PORTPT - PORT DISTRICT | $107.44 | $107.43 | $0.00 | $0.00 | $214.87 | $0.00 |
| 2024 | 14281 | PUD1 - PUD #1 | $17.09 | $17.08 | $0.00 | $0.00 | $34.17 | $0.00 |
| 2024 | 14281 | HD2 - HOSP DIST #2 | $15.18 | $15.17 | $0.00 | $0.00 | $30.35 | $0.00 |
| 2024 | 14281 | SD50 - SCHOOL DIST #50 | $491.81 | $491.78 | $0.00 | $0.00 | $983.59 | $0.00 |
| 2024 | 14281 | FD1 - FIRE DISTRICT #1 | $343.93 | $343.93 | $0.00 | $0.00 | $687.86 | $0.00 |
| 2024 | 14281 | EMS1 - FIRE DIST #1 EMS | $131.37 | $131.37 | $0.00 | $0.00 | $262.74 | $0.00 |
| 2024 | 14281 | JCCD - JC Conservation District | $2.55 | $2.55 | $0.00 | $0.00 | $5.10 | $0.00 |
| 2024 | 14281 | NWA - Noxious Weed Assessment | $2.15 | $2.15 | $0.00 | $0.00 | $4.30 | $0.00 |
| 2024 | 14281 | TOTAL: | $2358.98 | $2358.89 | $0.00 | $0.00 | $4717.87 | $0.00 |
|
| 2024 | 14281 | $2358.98 | $2358.89 | $0.00 | $0.00 | $4717.87 | $0.00 |
Statement Details |
| 2023 | 14304 | STATE - STATE LEVY (SCHOOL) | $487.62 | $487.61 | $0.00 | $0.00 | $975.23 | $0.00 |
| 2023 | 14304 | COUNTY - COUNTY LEVIES (CE, DD, VET, MH) | $212.79 | $212.78 | $0.00 | $0.00 | $425.57 | $0.00 |
| 2023 | 14304 | CONSERVE - CONSERVATION FUTURES | $6.38 | $6.38 | $0.00 | $0.00 | $12.76 | $0.00 |
| 2023 | 14304 | CITYPT - CITY OF PT | $300.74 | $300.73 | $0.00 | $0.00 | $601.47 | $0.00 |
| 2023 | 14304 | PORTPT - PORT DISTRICT | $89.64 | $89.63 | $0.00 | $0.00 | $179.27 | $0.00 |
| 2023 | 14304 | PUD1 - PUD #1 | $14.11 | $14.10 | $0.00 | $0.00 | $28.21 | $0.00 |
| 2023 | 14304 | HD2 - HOSP DIST #2 | $12.42 | $12.41 | $0.00 | $0.00 | $24.83 | $0.00 |
| 2023 | 14304 | SD50 - SCHOOL DIST #50 | $386.94 | $386.93 | $0.00 | $0.00 | $773.87 | $0.00 |
| 2023 | 14304 | FD1 - FIRE DISTRICT #1 | $175.29 | $175.29 | $0.00 | $0.00 | $350.58 | $0.00 |
| 2023 | 14304 | EMS1 - FIRE DIST #1 EMS | $74.57 | $74.56 | $0.00 | $0.00 | $149.13 | $0.00 |
| 2023 | 14304 | JCCD - JC Conservation District | $2.55 | $2.55 | $0.00 | $0.00 | $5.10 | $0.00 |
| 2023 | 14304 | NWA - Noxious Weed Assessment | $2.15 | $2.15 | $0.00 | $0.00 | $4.30 | $0.00 |
| 2023 | 14304 | TOTAL: | $1765.20 | $1765.12 | $0.00 | $0.00 | $3530.32 | $0.00 |
|
| 2023 | 14304 | $1765.20 | $1765.12 | $0.00 | $0.00 | $3530.32 | $0.00 |
Values
| (+) Improvement Homesite Value: | + | $0 | |
| (+) Improvement Non-Homesite Value: | + | $504,648 | |
| (+) Land Homesite Value: | + | $0 | |
| (+) Land Non-Homesite Value: | + | $114,000 | |
| (+) Curr Use (HS): | + | $0 | $0 |
| (+) Curr Use (NHS): | + | $0 | $0 |
| | | -------------------------- | |
| (=) Market Value: | = | $618,648 | |
| (–) Productivity Loss: | – | $0 | |
| | | -------------------------- | |
| (=) Subtotal: | = | $618,648 | |
| (+) Senior Appraised Value: | + | $0 | |
| (+) Non-Senior Appraised Value: | + | $618,648 | |
| | | -------------------------- | |
| (=) Total Appraised Value: | = | $618,648 | |
| (–) Senior Exemption Loss: | – | $0 | |
| (–) Exemption Loss: | – | $0 | |
| | | -------------------------- | |
| (=) Taxable Value: | = | $618,648 | |
Taxing Jurisdiction
| Owner: | ROBERT E BORING | | |
| % Ownership: | 100.0000000000% | | |
| Total Value: | $618,648 | | |
| Tax Area: | 0110 - C-50F1E1H2 |
| CE | COUNTY CURRENT EXPENSE | 0.9034619479 | $618,648 | $618,648 | $558.92 | | |
| CNTYDD | DEVELOPMENTAL DISABILITIES | 0.0052121823 | $618,648 | $618,648 | $3.22 | | |
| CNTYVET | VETERANS RELIEF | 0.0052777810 | $618,648 | $618,648 | $3.27 | | |
| MENTAL | MENTAL HEALTH | 0.0052121823 | $618,648 | $618,648 | $3.22 | | |
| PTGEN | CITY OF PT GENERAL | 0.8551967795 | $618,648 | $618,648 | $529.07 | | |
| PTLLL | CITY OF PT - LIBRARY LID LIFT | 0.4010114288 | $618,648 | $618,648 | $248.08 | | |
| PTMVBOND | CITY OF PT MV BOND | 0.0484717981 | $618,648 | $618,648 | $29.99 | | |
| HOSP2CASH | HOSP DIST #2 GENERAL | 0.0536075306 | $618,648 | $618,648 | $33.16 | | |
| SCH50BOND | SCHOOL DIST #50 BOND 2016 | 0.5377451389 | $618,648 | $618,648 | $332.67 | | |
| SCH50CP | SCHOOL DIST #50 CAP PROJ | 0.4573475088 | $618,648 | $618,648 | $282.94 | | |
| SCH50MO | SCHOOL DIST #50 EP & O | 0.8262822886 | $618,648 | $618,648 | $511.18 | | |
| CONSERVE | CONSERVATION FUTURES | 0.0275621078 | $618,648 | $618,648 | $17.05 | | |
| EMS1 | FIRE DIST #1 EMS | 0.4679948282 | $618,648 | $618,648 | $289.52 | | |
| FD1 | FIRE DIST #1 GENERAL | 1.2171942929 | $618,648 | $618,648 | $753.01 | | |
| PORTPT | PORT OF PT GENERAL | 0.1134941229 | $618,648 | $618,648 | $70.21 | | |
| PORTPTIDD | PORT OF PT IDD 2019 | 0.2577346692 | $618,648 | $618,648 | $159.45 | | |
| PUD1 | PUD #1 GENERAL | 0.0597888892 | $618,648 | $618,648 | $36.99 | | |
| STATE | STATE SCHOOL PART 1 | 1.4940692947 | $618,648 | $618,648 | $924.30 | | |
| STATE2 | STATE SCHOOL PART 2 | 0.8050170049 | $618,648 | $618,648 | $498.02 | | |
| | Total Tax Rate: | 8.5416817766 | | | | | |
| | | | | Taxes w/Current Exemptions: | $5,284.27 | | |
| | | | | Taxes w/o Exemptions: | $5,284.27 | | |
Improvement / Building
| Improvement #1: | Residential Bldg | State Code: | 11 | 1500.0 sqft | Value: | $504,648 |
| Bathrooms (#): | 3 (FULL) | Bedrooms (#): | 4 | | Exterior Wall: | SI/ST | Floor Construction: | FRAME | | Foundation: | CONPR | Heating/Cooling: | ELBB | | Roof Cover: | METAL |   |   |
|
| | Type | Description | Class CD | Sub Class CD | Year Built | Area |
| | MA | Main Area | 4- | 1S | 1992 | 1500.0 |
| | HDECK | House Deck | 4 | * | 1992 | 360.0 |
| | GBSMT | Basement Garage | 4 | 1S | 1992 | 650.0 |
| | BSMTF | House basement finished | 4 | * | 1992 | 754.0 |
| | CONCD | Concrete Drive | 3 | * | 1992 | 400.0 |
| | PATIO | House Patio | 3 | * | 1992 | 60.0 |
Sketch
Property Image
Land
| 1 | 6050-1185L | | 0.0000 | 0.00 | 0.00 | 0.00 | 2.00 | $114,000 | $0 |
Roll Value History
| 2026 | N/A | N/A | N/A | N/A | N/A |
| 2025 | $504,648 | $114,000 | $0 | $618,648 | $618,648 |
| 2024 | $463,062 | $116,600 | $0 | $579,662 | $579,662 |
| 2023 | $424,474 | $101,000 | $0 | $525,474 | $525,474 |
| 2022 | $318,261 | $96,000 | $0 | $414,261 | $414,261 |
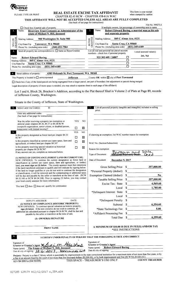
Deed and Sales History
| 1 | 12/05/2017 | BSD | Bargain and Sale Deed | MICHAEL N HILL | ROBERT E BORING | | | $357,000.00 | 129179 | |
| 2 | 12/05/2017 | QCD | Quit Claim Deed | | | | | | 129180 | |
| 3 | 09/23/2010 | SWD | Statutory Warranty Deed | RITLAND, JANICE V | HILL, MICHAEL N/TERRY K | 0 | 0 | $212,000.00 | 114965 | 0 |
| 4 | 11/06/2008 | WD | Warranty Deed | RITLAND, MURRAY R ESTATE | RITLAND, JANICE V | 0 | 0 | $0.00 | 112126 | 0 |
Payout Agreement
| No payout information available.. |