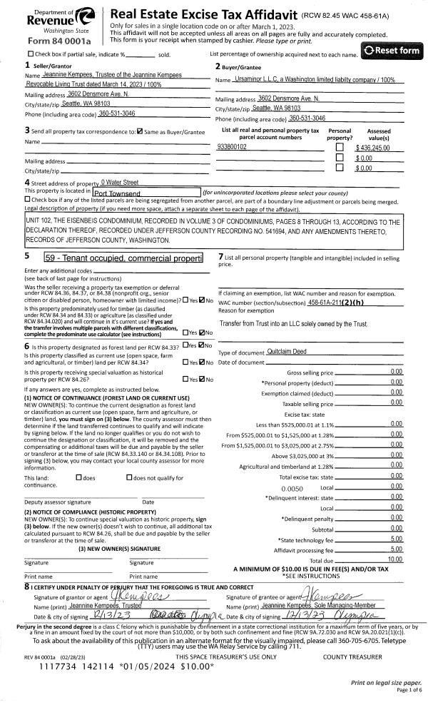
Property
Account |
| Property ID: | 24847 | Abbreviated Legal Description: | THE EISENBEIS CONDOMINIUM UNIT 102 |
| Parcel # / Geo ID: | 933800102 | Agent Code: | |
| Type: | Real | | |
| Tax Area: | 0110 - C-50F1E1H2 | Land Use Code | 59 |
| Open Space: | N | DFL | N |
| Historic Property: | N | Remodel Property: | N |
| Multi-Family Redevelopment: | N | | |
| Township: | 30N | Section: | 1 |
| Range: | 1W |
Location |
| Address: | 0 WATER ST PORT TOWNSEND, WA 98368 | Mapsco: | 044/002 |
| Neighborhood: | CYCLE 6 CONDOMINIUMS - PORT TOWNSEND | Map ID: | |
| Neighborhood CD: | 6900 |
Owner |
| Name: | URSAMINOR LLC | Owner ID: | 91218 |
| Mailing Address: | 1287 48TH ST PORT TOWNSEND, WA 98368-8234 | % Ownership: | 100.0000000000% |
| | | Exemptions: | |
Pay Tax Due
Select the appropriate checkbox next to the year to be paid. Multiple years may be selected.
*Convenience Fee not included
Taxes and Assessment Details
Property Tax Information as of
03/11/2026
Click on "Statement Details" to expand or collapse a tax statement.
* Please enter a valid date ** Please enter a valid date *
Statement Details |
| 2026 | 14243 | STATE - STATE LEVY (SCHOOL) | $571.25 | $571.24 | $0.00 | $0.00 | $0.00 | $1142.49 |
| 2026 | 14243 | COUNTY - COUNTY LEVIES (CE, DD, VET, MH) | $228.39 | $228.37 | $0.00 | $0.00 | $0.00 | $456.76 |
| 2026 | 14243 | CONSERVE - CONSERVATION FUTURES | $6.85 | $6.85 | $0.00 | $0.00 | $0.00 | $13.70 |
| 2026 | 14243 | CITYPT - CITY OF PT | $324.18 | $324.15 | $0.00 | $0.00 | $0.00 | $648.33 |
| 2026 | 14243 | PORTPT - PORT DISTRICT | $92.24 | $92.24 | $0.00 | $0.00 | $0.00 | $184.48 |
| 2026 | 14243 | PUD1 - PUD #1 | $14.86 | $14.85 | $0.00 | $0.00 | $0.00 | $29.71 |
| 2026 | 14243 | HD2 - HOSP DIST #2 | $13.32 | $13.32 | $0.00 | $0.00 | $0.00 | $26.64 |
| 2026 | 14243 | SD50 - SCHOOL DIST #50 | $452.55 | $452.54 | $0.00 | $0.00 | $0.00 | $905.09 |
| 2026 | 14243 | FD1 - FIRE DISTRICT #1 | $302.43 | $302.43 | $0.00 | $0.00 | $0.00 | $604.86 |
| 2026 | 14243 | EMS1 - FIRE DIST #1 EMS | $116.28 | $116.28 | $0.00 | $0.00 | $0.00 | $232.56 |
| 2026 | 14243 | JCCD - JC Conservation District | $2.53 | $2.53 | $0.00 | $0.00 | $0.00 | $5.06 |
| 2026 | 14243 | NWA - Noxious Weed Assessment | $2.98 | $2.97 | $0.00 | $0.00 | $0.00 | $5.95 |
| 2026 | 14243 | TOTAL: | $2127.86 | $2127.77 | $0.00 | $0.00 | $0.00 | $4255.63 |
|
| 2026 | 14243 | $2127.86 | $2127.77 | $0.00 | $0.00 | $0.00 | $4255.63 |
Statement Details |
| 2025 | 14290 | STATE - STATE LEVY (SCHOOL) | $595.83 | $595.82 | $0.00 | $0.00 | $1191.65 | $0.00 |
| 2025 | 14290 | COUNTY - COUNTY LEVIES (CE, DD, VET, MH) | $234.31 | $234.29 | $0.00 | $0.00 | $468.60 | $0.00 |
| 2025 | 14290 | CONSERVE - CONSERVATION FUTURES | $7.03 | $7.02 | $0.00 | $0.00 | $14.05 | $0.00 |
| 2025 | 14290 | CITYPT - CITY OF PT | $337.91 | $337.88 | $0.00 | $0.00 | $675.79 | $0.00 |
| 2025 | 14290 | PORTPT - PORT DISTRICT | $95.61 | $95.61 | $0.00 | $0.00 | $191.22 | $0.00 |
| 2025 | 14290 | PUD1 - PUD #1 | $15.33 | $15.33 | $0.00 | $0.00 | $30.66 | $0.00 |
| 2025 | 14290 | HD2 - HOSP DIST #2 | $13.67 | $13.67 | $0.00 | $0.00 | $27.34 | $0.00 |
| 2025 | 14290 | SD50 - SCHOOL DIST #50 | $435.46 | $435.44 | $0.00 | $0.00 | $870.90 | $0.00 |
| 2025 | 14290 | FD1 - FIRE DISTRICT #1 | $309.19 | $309.19 | $0.00 | $0.00 | $618.38 | $0.00 |
| 2025 | 14290 | EMS1 - FIRE DIST #1 EMS | $118.93 | $118.92 | $0.00 | $0.00 | $237.85 | $0.00 |
| 2025 | 14290 | JCCD - JC Conservation District | $2.53 | $2.53 | $0.00 | $0.00 | $5.06 | $0.00 |
| 2025 | 14290 | NWA - Noxious Weed Assessment | $2.15 | $2.15 | $0.00 | $0.00 | $4.30 | $0.00 |
| 2025 | 14290 | TOTAL: | $2167.95 | $2167.85 | $0.00 | $0.00 | $4335.80 | $0.00 |
|
| 2025 | 14290 | $2167.95 | $2167.85 | $0.00 | $0.00 | $4335.80 | $0.00 |
Statement Details |
| 2024 | 14320 | STATE - STATE LEVY (SCHOOL) | $532.47 | $532.46 | $0.00 | $0.00 | $1064.93 | $0.00 |
| 2024 | 14320 | COUNTY - COUNTY LEVIES (CE, DD, VET, MH) | $227.86 | $227.83 | $0.00 | $0.00 | $455.69 | $0.00 |
| 2024 | 14320 | CONSERVE - CONSERVATION FUTURES | $6.83 | $6.83 | $0.00 | $0.00 | $13.66 | $0.00 |
| 2024 | 14320 | CITYPT - CITY OF PT | $325.56 | $325.56 | $0.00 | $0.00 | $651.12 | $0.00 |
| 2024 | 14320 | PORTPT - PORT DISTRICT | $94.12 | $94.10 | $0.00 | $0.00 | $188.22 | $0.00 |
| 2024 | 14320 | PUD1 - PUD #1 | $14.97 | $14.96 | $0.00 | $0.00 | $29.93 | $0.00 |
| 2024 | 14320 | HD2 - HOSP DIST #2 | $13.30 | $13.29 | $0.00 | $0.00 | $26.59 | $0.00 |
| 2024 | 14320 | SD50 - SCHOOL DIST #50 | $430.80 | $430.78 | $0.00 | $0.00 | $861.58 | $0.00 |
| 2024 | 14320 | FD1 - FIRE DISTRICT #1 | $301.27 | $301.26 | $0.00 | $0.00 | $602.53 | $0.00 |
| 2024 | 14320 | EMS1 - FIRE DIST #1 EMS | $115.08 | $115.07 | $0.00 | $0.00 | $230.15 | $0.00 |
| 2024 | 14320 | JCCD - JC Conservation District | $2.53 | $2.53 | $0.00 | $0.00 | $5.06 | $0.00 |
| 2024 | 14320 | NWA - Noxious Weed Assessment | $2.15 | $2.15 | $0.00 | $0.00 | $4.30 | $0.00 |
| 2024 | 14320 | TOTAL: | $2066.94 | $2066.82 | $0.00 | $0.00 | $4133.76 | $0.00 |
|
| 2024 | 14320 | $2066.94 | $2066.82 | $0.00 | $0.00 | $4133.76 | $0.00 |
Statement Details |
| 2023 | 14343 | STATE - STATE LEVY (SCHOOL) | $513.50 | $513.49 | $0.00 | $0.00 | $1026.99 | $0.00 |
| 2023 | 14343 | COUNTY - COUNTY LEVIES (CE, DD, VET, MH) | $224.07 | $224.07 | $0.00 | $0.00 | $448.14 | $0.00 |
| 2023 | 14343 | CONSERVE - CONSERVATION FUTURES | $6.72 | $6.72 | $0.00 | $0.00 | $13.44 | $0.00 |
| 2023 | 14343 | CITYPT - CITY OF PT | $316.70 | $316.69 | $0.00 | $0.00 | $633.39 | $0.00 |
| 2023 | 14343 | PORTPT - PORT DISTRICT | $94.40 | $94.39 | $0.00 | $0.00 | $188.79 | $0.00 |
| 2023 | 14343 | PUD1 - PUD #1 | $14.86 | $14.85 | $0.00 | $0.00 | $29.71 | $0.00 |
| 2023 | 14343 | HD2 - HOSP DIST #2 | $13.08 | $13.07 | $0.00 | $0.00 | $26.15 | $0.00 |
| 2023 | 14343 | SD50 - SCHOOL DIST #50 | $407.47 | $407.47 | $0.00 | $0.00 | $814.94 | $0.00 |
| 2023 | 14343 | FD1 - FIRE DISTRICT #1 | $184.59 | $184.59 | $0.00 | $0.00 | $369.18 | $0.00 |
| 2023 | 14343 | EMS1 - FIRE DIST #1 EMS | $78.52 | $78.52 | $0.00 | $0.00 | $157.04 | $0.00 |
| 2023 | 14343 | JCCD - JC Conservation District | $2.53 | $2.53 | $0.00 | $0.00 | $5.06 | $0.00 |
| 2023 | 14343 | NWA - Noxious Weed Assessment | $2.15 | $2.15 | $0.00 | $0.00 | $4.30 | $0.00 |
| 2023 | 14343 | TOTAL: | $1858.59 | $1858.54 | $0.00 | $0.00 | $3717.13 | $0.00 |
|
| 2023 | 14343 | $1858.59 | $1858.54 | $0.00 | $0.00 | $3717.13 | $0.00 |
Values
| (+) Improvement Homesite Value: | + | $0 | |
| (+) Improvement Non-Homesite Value: | + | $302,280 | |
| (+) Land Homesite Value: | + | $0 | |
| (+) Land Non-Homesite Value: | + | $194,650 | |
| (+) Curr Use (HS): | + | $0 | $0 |
| (+) Curr Use (NHS): | + | $0 | $0 |
| | | -------------------------- | |
| (=) Market Value: | = | $496,930 | |
| (–) Productivity Loss: | – | $0 | |
| | | -------------------------- | |
| (=) Subtotal: | = | $496,930 | |
| (+) Senior Appraised Value: | + | $0 | |
| (+) Non-Senior Appraised Value: | + | $496,930 | |
| | | -------------------------- | |
| (=) Total Appraised Value: | = | $496,930 | |
| (–) Senior Exemption Loss: | – | $0 | |
| (–) Exemption Loss: | – | $0 | |
| | | -------------------------- | |
| (=) Taxable Value: | = | $496,930 | |
Taxing Jurisdiction
| Owner: | URSAMINOR LLC | | |
| % Ownership: | 100.0000000000% | | |
| Total Value: | $496,930 | | |
| Tax Area: | 0110 - C-50F1E1H2 |
| CE | COUNTY CURRENT EXPENSE | 0.9034619479 | $496,930 | $496,930 | $448.96 | | |
| CNTYDD | DEVELOPMENTAL DISABILITIES | 0.0052121823 | $496,930 | $496,930 | $2.59 | | |
| CNTYVET | VETERANS RELIEF | 0.0052777810 | $496,930 | $496,930 | $2.62 | | |
| MENTAL | MENTAL HEALTH | 0.0052121823 | $496,930 | $496,930 | $2.59 | | |
| PTGEN | CITY OF PT GENERAL | 0.8551967795 | $496,930 | $496,930 | $424.97 | | |
| PTLLL | CITY OF PT - LIBRARY LID LIFT | 0.4010114288 | $496,930 | $496,930 | $199.27 | | |
| PTMVBOND | CITY OF PT MV BOND | 0.0484717981 | $496,930 | $496,930 | $24.09 | | |
| HOSP2CASH | HOSP DIST #2 GENERAL | 0.0536075306 | $496,930 | $496,930 | $26.64 | | |
| SCH50BOND | SCHOOL DIST #50 BOND 2016 | 0.5377451389 | $496,930 | $496,930 | $267.22 | | |
| SCH50CP | SCHOOL DIST #50 CAP PROJ | 0.4573475088 | $496,930 | $496,930 | $227.27 | | |
| SCH50MO | SCHOOL DIST #50 EP & O | 0.8262822886 | $496,930 | $496,930 | $410.60 | | |
| CONSERVE | CONSERVATION FUTURES | 0.0275621078 | $496,930 | $496,930 | $13.70 | | |
| EMS1 | FIRE DIST #1 EMS | 0.4679948282 | $496,930 | $496,930 | $232.56 | | |
| FD1 | FIRE DIST #1 GENERAL | 1.2171942929 | $496,930 | $496,930 | $604.86 | | |
| PORTPT | PORT OF PT GENERAL | 0.1134941229 | $496,930 | $496,930 | $56.40 | | |
| PORTPTIDD | PORT OF PT IDD 2019 | 0.2577346692 | $496,930 | $496,930 | $128.08 | | |
| PUD1 | PUD #1 GENERAL | 0.0597888892 | $496,930 | $496,930 | $29.71 | | |
| STATE | STATE SCHOOL PART 1 | 1.4940692947 | $496,930 | $496,930 | $742.45 | | |
| STATE2 | STATE SCHOOL PART 2 | 0.8050170049 | $496,930 | $496,930 | $400.04 | | |
| | Total Tax Rate: | 8.5416817766 | | | | | |
| | | | | Taxes w/Current Exemptions: | $4,244.62 | | |
| | | | | Taxes w/o Exemptions: | $4,244.62 | | |
Improvement / Building
| Improvement #1: | Residential Bldg | State Code: | 59 | 2290.0 sqft | Value: | $302,280 |
Sketch
| No sketches available for this property. |
Property Image
Land
| 1 | 9338-6263Q | | 0.0526 | 2290.00 | 0.00 | 0.00 | 0.00 | $194,650 | $0 |
Roll Value History
| 2026 | N/A | N/A | N/A | N/A | N/A |
| 2025 | $302,280 | $194,650 | $0 | $496,930 | $496,930 |
| 2024 | $302,280 | $194,650 | $0 | $496,930 | $496,930 |
| 2023 | $277,090 | $183,200 | $0 | $460,290 | $460,290 |
| 2022 | $253,045 | $183,200 | $0 | $436,245 | $436,245 |
Deed and Sales History
| 1 | 01/05/2024 | QCD | Quit Claim Deed | JEANNINE KEMPEES REVOCABLE LIVING TRUST | URSAMINOR LLC | | | | 142114 | |
| 2 | 03/14/2023 | QCD | Quit Claim Deed | URSAMINOR LLC | JEANNINE KEMPEES REVOCABLE LIVING TRUST | | | | 140635 | |
| 3 | 12/12/2013 | SWD | Statutory Warranty Deed | PORT TOWNSEND ASSOCIATES | URSAMINOR LLC | | | $346,000.00 | 120598 | |
| 4 | 12/27/2012 | SPWD | Special Warranty Deed | CRACKER FACTORY LLC | PORT TOWNSEND ASSOCIATES | | | $820,000.00 | 118588 | |
|   | |
Payout Agreement
| No payout information available.. |