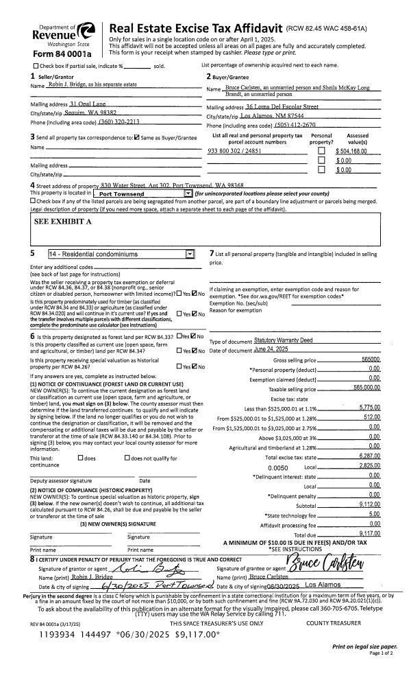
Property
Account |
| Property ID: | 24851 | Abbreviated Legal Description: | THE EISENBEIS CONDOMINIUM UNIT 302 |
| Parcel # / Geo ID: | 933800302 | Agent Code: | |
| Type: | Real | | |
| Tax Area: | 0110 - C-50F1E1H2 | Land Use Code | 14 |
| Open Space: | N | DFL | N |
| Historic Property: | N | Remodel Property: | N |
| Multi-Family Redevelopment: | N | | |
| Township: | 30N | Section: | 2 |
| Range: | 1W |
Location |
| Address: | 0 WATER ST PORT TOWNSEND, WA 98368 | Mapsco: | 044/006 |
| Neighborhood: | CYCLE 6 CONDOMINIUMS - PORT TOWNSEND | Map ID: | |
| Neighborhood CD: | 6900 |
Owner |
| Name: | BRUCE CARLSTEN | Owner ID: | 112842 |
| Mailing Address: | SHEILA M L BRANDT 36 LOMA DEL ESCOLAR ST LOS ALAMOS, NM 87544-2524 | % Ownership: | 100.0000000000% |
| | | Exemptions: | |
Pay Tax Due
Select the appropriate checkbox next to the year to be paid. Multiple years may be selected.
*Convenience Fee not included
Taxes and Assessment Details
Property Tax Information as of
02/13/2026
Click on "Statement Details" to expand or collapse a tax statement.
* Please enter a valid date ** Please enter a valid date *
Statement Details |
| 2026 | 14247 | STATE - STATE LEVY (SCHOOL) | $579.56 | $579.56 | $0.00 | $0.00 | $0.00 | $1159.12 |
| 2026 | 14247 | COUNTY - COUNTY LEVIES (CE, DD, VET, MH) | $231.72 | $231.70 | $0.00 | $0.00 | $0.00 | $463.42 |
| 2026 | 14247 | CONSERVE - CONSERVATION FUTURES | $6.95 | $6.95 | $0.00 | $0.00 | $0.00 | $13.90 |
| 2026 | 14247 | CITYPT - CITY OF PT | $328.89 | $328.89 | $0.00 | $0.00 | $0.00 | $657.78 |
| 2026 | 14247 | PORTPT - PORT DISTRICT | $93.58 | $93.58 | $0.00 | $0.00 | $0.00 | $187.16 |
| 2026 | 14247 | PUD1 - PUD #1 | $15.07 | $15.07 | $0.00 | $0.00 | $0.00 | $30.14 |
| 2026 | 14247 | HD2 - HOSP DIST #2 | $13.52 | $13.51 | $0.00 | $0.00 | $0.00 | $27.03 |
| 2026 | 14247 | SD50 - SCHOOL DIST #50 | $459.15 | $459.13 | $0.00 | $0.00 | $0.00 | $918.28 |
| 2026 | 14247 | FD1 - FIRE DISTRICT #1 | $306.84 | $306.83 | $0.00 | $0.00 | $0.00 | $613.67 |
| 2026 | 14247 | EMS1 - FIRE DIST #1 EMS | $117.98 | $117.97 | $0.00 | $0.00 | $0.00 | $235.95 |
| 2026 | 14247 | JCCD - JC Conservation District | $2.55 | $2.55 | $0.00 | $0.00 | $0.00 | $5.10 |
| 2026 | 14247 | NWA - Noxious Weed Assessment | $2.98 | $2.97 | $0.00 | $0.00 | $0.00 | $5.95 |
| 2026 | 14247 | TOTAL: | $2158.79 | $2158.71 | $0.00 | $0.00 | $0.00 | $4317.50 |
|
| 2026 | 14247 | $2158.79 | $2158.71 | $0.00 | $0.00 | $0.00 | $4317.50 |
Statement Details |
| 2025 | 14294 | STATE - STATE LEVY (SCHOOL) | $604.51 | $604.50 | $0.00 | $0.00 | $1209.01 | $0.00 |
| 2025 | 14294 | COUNTY - COUNTY LEVIES (CE, DD, VET, MH) | $237.73 | $237.70 | $0.00 | $0.00 | $475.43 | $0.00 |
| 2025 | 14294 | CONSERVE - CONSERVATION FUTURES | $7.13 | $7.13 | $0.00 | $0.00 | $14.26 | $0.00 |
| 2025 | 14294 | CITYPT - CITY OF PT | $342.82 | $342.81 | $0.00 | $0.00 | $685.63 | $0.00 |
| 2025 | 14294 | PORTPT - PORT DISTRICT | $97.00 | $97.00 | $0.00 | $0.00 | $194.00 | $0.00 |
| 2025 | 14294 | PUD1 - PUD #1 | $15.56 | $15.55 | $0.00 | $0.00 | $31.11 | $0.00 |
| 2025 | 14294 | HD2 - HOSP DIST #2 | $13.87 | $13.87 | $0.00 | $0.00 | $27.74 | $0.00 |
| 2025 | 14294 | SD50 - SCHOOL DIST #50 | $441.80 | $441.78 | $0.00 | $0.00 | $883.58 | $0.00 |
| 2025 | 14294 | FD1 - FIRE DISTRICT #1 | $313.70 | $313.69 | $0.00 | $0.00 | $627.39 | $0.00 |
| 2025 | 14294 | EMS1 - FIRE DIST #1 EMS | $120.66 | $120.65 | $0.00 | $0.00 | $241.31 | $0.00 |
| 2025 | 14294 | JCCD - JC Conservation District | $2.55 | $2.55 | $0.00 | $0.00 | $5.10 | $0.00 |
| 2025 | 14294 | NWA - Noxious Weed Assessment | $2.15 | $2.15 | $0.00 | $0.00 | $4.30 | $0.00 |
| 2025 | 14294 | TOTAL: | $2199.48 | $2199.38 | $0.00 | $0.00 | $4398.86 | $0.00 |
|
| 2025 | 14294 | $2199.48 | $2199.38 | $0.00 | $0.00 | $4398.86 | $0.00 |
Statement Details |
| 2024 | 14324 | STATE - STATE LEVY (SCHOOL) | $542.44 | $542.42 | $0.00 | $0.00 | $1084.86 | $0.00 |
| 2024 | 14324 | COUNTY - COUNTY LEVIES (CE, DD, VET, MH) | $232.11 | $232.10 | $0.00 | $0.00 | $464.21 | $0.00 |
| 2024 | 14324 | CONSERVE - CONSERVATION FUTURES | $6.96 | $6.96 | $0.00 | $0.00 | $13.92 | $0.00 |
| 2024 | 14324 | CITYPT - CITY OF PT | $331.66 | $331.64 | $0.00 | $0.00 | $663.30 | $0.00 |
| 2024 | 14324 | PORTPT - PORT DISTRICT | $95.87 | $95.87 | $0.00 | $0.00 | $191.74 | $0.00 |
| 2024 | 14324 | PUD1 - PUD #1 | $15.25 | $15.24 | $0.00 | $0.00 | $30.49 | $0.00 |
| 2024 | 14324 | HD2 - HOSP DIST #2 | $13.55 | $13.54 | $0.00 | $0.00 | $27.09 | $0.00 |
| 2024 | 14324 | SD50 - SCHOOL DIST #50 | $438.86 | $438.84 | $0.00 | $0.00 | $877.70 | $0.00 |
| 2024 | 14324 | FD1 - FIRE DISTRICT #1 | $306.91 | $306.90 | $0.00 | $0.00 | $613.81 | $0.00 |
| 2024 | 14324 | EMS1 - FIRE DIST #1 EMS | $117.23 | $117.22 | $0.00 | $0.00 | $234.45 | $0.00 |
| 2024 | 14324 | JCCD - JC Conservation District | $2.55 | $2.55 | $0.00 | $0.00 | $5.10 | $0.00 |
| 2024 | 14324 | NWA - Noxious Weed Assessment | $2.15 | $2.15 | $0.00 | $0.00 | $4.30 | $0.00 |
| 2024 | 14324 | TOTAL: | $2105.54 | $2105.43 | $0.00 | $0.00 | $4210.97 | $0.00 |
|
| 2024 | 14324 | $2105.54 | $2105.43 | $0.00 | $0.00 | $4210.97 | $0.00 |
Statement Details |
| 2023 | 14347 | STATE - STATE LEVY (SCHOOL) | $542.00 | $542.00 | $0.00 | $0.00 | $1084.00 | $0.00 |
| 2023 | 14347 | COUNTY - COUNTY LEVIES (CE, DD, VET, MH) | $236.53 | $236.50 | $0.00 | $0.00 | $473.03 | $0.00 |
| 2023 | 14347 | CONSERVE - CONSERVATION FUTURES | $7.09 | $7.09 | $0.00 | $0.00 | $14.18 | $0.00 |
| 2023 | 14347 | CITYPT - CITY OF PT | $334.28 | $334.26 | $0.00 | $0.00 | $668.54 | $0.00 |
| 2023 | 14347 | PORTPT - PORT DISTRICT | $99.64 | $99.63 | $0.00 | $0.00 | $199.27 | $0.00 |
| 2023 | 14347 | PUD1 - PUD #1 | $15.68 | $15.68 | $0.00 | $0.00 | $31.36 | $0.00 |
| 2023 | 14347 | HD2 - HOSP DIST #2 | $13.81 | $13.80 | $0.00 | $0.00 | $27.61 | $0.00 |
| 2023 | 14347 | SD50 - SCHOOL DIST #50 | $430.10 | $430.08 | $0.00 | $0.00 | $860.18 | $0.00 |
| 2023 | 14347 | FD1 - FIRE DISTRICT #1 | $194.84 | $194.84 | $0.00 | $0.00 | $389.68 | $0.00 |
| 2023 | 14347 | EMS1 - FIRE DIST #1 EMS | $82.88 | $82.88 | $0.00 | $0.00 | $165.76 | $0.00 |
| 2023 | 14347 | JCCD - JC Conservation District | $2.55 | $2.55 | $0.00 | $0.00 | $5.10 | $0.00 |
| 2023 | 14347 | NWA - Noxious Weed Assessment | $2.15 | $2.15 | $0.00 | $0.00 | $4.30 | $0.00 |
| 2023 | 14347 | TOTAL: | $1961.55 | $1961.46 | $0.00 | $0.00 | $3923.01 | $0.00 |
|
| 2023 | 14347 | $1961.55 | $1961.46 | $0.00 | $0.00 | $3923.01 | $0.00 |
Values
| (+) Improvement Homesite Value: | + | $0 | |
| (+) Improvement Non-Homesite Value: | + | $315,168 | |
| (+) Land Homesite Value: | + | $0 | |
| (+) Land Non-Homesite Value: | + | $189,000 | |
| (+) Curr Use (HS): | + | $0 | $0 |
| (+) Curr Use (NHS): | + | $0 | $0 |
| | | -------------------------- | |
| (=) Market Value: | = | $504,168 | |
| (–) Productivity Loss: | – | $0 | |
| | | -------------------------- | |
| (=) Subtotal: | = | $504,168 | |
| (+) Senior Appraised Value: | + | $0 | |
| (+) Non-Senior Appraised Value: | + | $504,168 | |
| | | -------------------------- | |
| (=) Total Appraised Value: | = | $504,168 | |
| (–) Senior Exemption Loss: | – | $0 | |
| (–) Exemption Loss: | – | $0 | |
| | | -------------------------- | |
| (=) Taxable Value: | = | $504,168 | |
Taxing Jurisdiction
| Owner: | BRUCE CARLSTEN | | |
| % Ownership: | 100.0000000000% | | |
| Total Value: | N/A | | |
| Tax Area: | 0110 - C-50F1E1H2 |
| CE | COUNTY CURRENT EXPENSE | N/A | N/A | N/A | N/A | | |
| CNTYDD | DEVELOPMENTAL DISABILITIES | N/A | N/A | N/A | N/A | | |
| CNTYVET | VETERANS RELIEF | N/A | N/A | N/A | N/A | | |
| MENTAL | MENTAL HEALTH | N/A | N/A | N/A | N/A | | |
| PTGEN | CITY OF PT GENERAL | N/A | N/A | N/A | N/A | | |
| PTLLL | CITY OF PT - LIBRARY LID LIFT | N/A | N/A | N/A | N/A | | |
| PTMVBOND | CITY OF PT MV BOND | N/A | N/A | N/A | N/A | | |
| HOSP2CASH | HOSP DIST #2 GENERAL | N/A | N/A | N/A | N/A | | |
| SCH50BOND | SCHOOL DIST #50 BOND 2016 | N/A | N/A | N/A | N/A | | |
| SCH50CP | SCHOOL DIST #50 CAP PROJ | N/A | N/A | N/A | N/A | | |
| SCH50MO | SCHOOL DIST #50 EP & O | N/A | N/A | N/A | N/A | | |
| CONSERVE | CONSERVATION FUTURES | N/A | N/A | N/A | N/A | | |
| EMS1 | FIRE DIST #1 EMS | N/A | N/A | N/A | N/A | | |
| FD1 | FIRE DIST #1 GENERAL | N/A | N/A | N/A | N/A | | |
| PORTPT | PORT OF PT GENERAL | N/A | N/A | N/A | N/A | | |
| PORTPTIDD | PORT OF PT IDD 2019 | N/A | N/A | N/A | N/A | | |
| PUD1 | PUD #1 GENERAL | N/A | N/A | N/A | N/A | | |
| STATE | STATE SCHOOL PART 1 | N/A | N/A | N/A | N/A | | |
| STATE2 | STATE SCHOOL PART 2 | N/A | N/A | N/A | N/A | | |
| | Total Tax Rate: | N/A | | | | | |
| | | | | Taxes w/Current Exemptions: | N/A | | |
| | | | | Taxes w/o Exemptions: | N/A | | |
Improvement / Building
| Improvement #1: | Residential Bldg | State Code: | 14 | 938.0 sqft | Value: | $315,168 |
Sketch
| No sketches available for this property. |
Property Image
Land
| 1 | 9338-4113S | | 0.0000 | 0.00 | 0.00 | 0.00 | 1.00 | $189,000 | $0 |
Roll Value History
| 2026 | N/A | N/A | N/A | N/A | N/A |
| 2025 | $315,168 | $189,000 | $0 | $504,168 | $504,168 |
| 2024 | $315,168 | $189,000 | $0 | $504,168 | $504,168 |
| 2023 | $288,904 | $180,000 | $0 | $468,904 | $468,904 |
| 2022 | $280,462 | $180,000 | $0 | $460,462 | $460,462 |
Deed and Sales History
| 1 | 06/24/2025 | SWD | Statutory Warranty Deed | ROBIN J BRIDGE | BRUCE CARLSTEN | | | $565,000.00 | 144497 | |
| 2 | 05/26/2020 | SWD | Statutory Warranty Deed | LARSON KEYSTONE INHERITANCE TRUST | ROBIN J BRIDGE | | | $440,000.00 | 134420 | |
| 3 | 11/05/2013 | SWD | Statutory Warranty Deed | PORT TOWNSEND ASSOCIATES | LARSON KEYSTONE INHERITANCE TRUST | | | $268,000.00 | 120307 | |
| 4 | 12/27/2012 | SPWD | Special Warranty Deed | CRACKER FACTORY LLC | PORT TOWNSEND ASSOCIATES | | | $820,000.00 | 118588 | |
|   | |
Payout Agreement
| No payout information available.. |