Property
Account |
| Property ID: | 24852 | Abbreviated Legal Description: | THE EISENBEIS CONDOMINIUM UNIT 303 |
| Parcel # / Geo ID: | 933800303 | Agent Code: | |
| Type: | Real | | |
| Tax Area: | 0110 - C-50F1E1H2 | Land Use Code | 14 |
| Open Space: | N | DFL | N |
| Historic Property: | N | Remodel Property: | N |
| Multi-Family Redevelopment: | N | | |
| Township: | 30N | Section: | 1 |
| Range: | 1W |
Location |
| Address: | 0 WATER ST PORT TOWNSEND, WA 98368 | Mapsco: | 044/007 |
| Neighborhood: | CYCLE 6 CONDOMINIUMS - PORT TOWNSEND | Map ID: | |
| Neighborhood CD: | 6900 |
Owner |
| Name: | MICHAEL B RUBIN | Owner ID: | 113188 |
| Mailing Address: | 5443 BEACH DR SW SEATTLE, WA 98136 | % Ownership: | 100.0000000000% |
| | | Exemptions: | |
Pay Tax Due
Select the appropriate checkbox next to the year to be paid. Multiple years may be selected.
*Convenience Fee not included
Taxes and Assessment Details
Property Tax Information as of
02/13/2026
Click on "Statement Details" to expand or collapse a tax statement.
* Please enter a valid date ** Please enter a valid date *
Statement Details |
| 2026 | 14248 | STATE - STATE LEVY (SCHOOL) | $620.51 | $620.50 | $0.00 | $0.00 | $0.00 | $1241.01 |
| 2026 | 14248 | COUNTY - COUNTY LEVIES (CE, DD, VET, MH) | $248.09 | $248.05 | $0.00 | $0.00 | $0.00 | $496.14 |
| 2026 | 14248 | CONSERVE - CONSERVATION FUTURES | $7.44 | $7.44 | $0.00 | $0.00 | $0.00 | $14.88 |
| 2026 | 14248 | CITYPT - CITY OF PT | $352.12 | $352.12 | $0.00 | $0.00 | $0.00 | $704.24 |
| 2026 | 14248 | PORTPT - PORT DISTRICT | $100.19 | $100.19 | $0.00 | $0.00 | $0.00 | $200.38 |
| 2026 | 14248 | PUD1 - PUD #1 | $16.14 | $16.13 | $0.00 | $0.00 | $0.00 | $32.27 |
| 2026 | 14248 | HD2 - HOSP DIST #2 | $14.47 | $14.47 | $0.00 | $0.00 | $0.00 | $28.94 |
| 2026 | 14248 | SD50 - SCHOOL DIST #50 | $491.59 | $491.56 | $0.00 | $0.00 | $0.00 | $983.15 |
| 2026 | 14248 | FD1 - FIRE DISTRICT #1 | $328.51 | $328.51 | $0.00 | $0.00 | $0.00 | $657.02 |
| 2026 | 14248 | EMS1 - FIRE DIST #1 EMS | $126.31 | $126.31 | $0.00 | $0.00 | $0.00 | $252.62 |
| 2026 | 14248 | JCCD - JC Conservation District | $2.55 | $2.55 | $0.00 | $0.00 | $0.00 | $5.10 |
| 2026 | 14248 | NWA - Noxious Weed Assessment | $2.98 | $2.97 | $0.00 | $0.00 | $0.00 | $5.95 |
| 2026 | 14248 | TOTAL: | $2310.90 | $2310.80 | $0.00 | $0.00 | $0.00 | $4621.70 |
|
| 2026 | 14248 | $2310.90 | $2310.80 | $0.00 | $0.00 | $0.00 | $4621.70 |
Statement Details |
| 2025 | 14295 | STATE - STATE LEVY (SCHOOL) | $647.22 | $647.20 | $0.00 | $0.00 | $1294.42 | $0.00 |
| 2025 | 14295 | COUNTY - COUNTY LEVIES (CE, DD, VET, MH) | $254.51 | $254.51 | $0.00 | $0.00 | $509.02 | $0.00 |
| 2025 | 14295 | CONSERVE - CONSERVATION FUTURES | $7.63 | $7.63 | $0.00 | $0.00 | $15.26 | $0.00 |
| 2025 | 14295 | CITYPT - CITY OF PT | $367.04 | $367.02 | $0.00 | $0.00 | $734.06 | $0.00 |
| 2025 | 14295 | PORTPT - PORT DISTRICT | $103.86 | $103.85 | $0.00 | $0.00 | $207.71 | $0.00 |
| 2025 | 14295 | PUD1 - PUD #1 | $16.66 | $16.65 | $0.00 | $0.00 | $33.31 | $0.00 |
| 2025 | 14295 | HD2 - HOSP DIST #2 | $14.85 | $14.85 | $0.00 | $0.00 | $29.70 | $0.00 |
| 2025 | 14295 | SD50 - SCHOOL DIST #50 | $473.02 | $472.99 | $0.00 | $0.00 | $946.01 | $0.00 |
| 2025 | 14295 | FD1 - FIRE DISTRICT #1 | $335.86 | $335.85 | $0.00 | $0.00 | $671.71 | $0.00 |
| 2025 | 14295 | EMS1 - FIRE DIST #1 EMS | $129.18 | $129.18 | $0.00 | $0.00 | $258.36 | $0.00 |
| 2025 | 14295 | JCCD - JC Conservation District | $2.55 | $2.55 | $0.00 | $0.00 | $5.10 | $0.00 |
| 2025 | 14295 | NWA - Noxious Weed Assessment | $2.15 | $2.15 | $0.00 | $0.00 | $4.30 | $0.00 |
| 2025 | 14295 | TOTAL: | $2354.53 | $2354.43 | $0.00 | $0.00 | $4708.96 | $0.00 |
|
| 2025 | 14295 | $2354.53 | $2354.43 | $0.00 | $0.00 | $4708.96 | $0.00 |
Statement Details |
| 2024 | 14325 | STATE - STATE LEVY (SCHOOL) | $580.20 | $580.19 | $0.00 | $0.00 | $1160.39 | $0.00 |
| 2024 | 14325 | COUNTY - COUNTY LEVIES (CE, DD, VET, MH) | $248.27 | $248.27 | $0.00 | $0.00 | $496.54 | $0.00 |
| 2024 | 14325 | CONSERVE - CONSERVATION FUTURES | $7.45 | $7.44 | $0.00 | $0.00 | $14.89 | $0.00 |
| 2024 | 14325 | CITYPT - CITY OF PT | $354.75 | $354.74 | $0.00 | $0.00 | $709.49 | $0.00 |
| 2024 | 14325 | PORTPT - PORT DISTRICT | $102.55 | $102.54 | $0.00 | $0.00 | $205.09 | $0.00 |
| 2024 | 14325 | PUD1 - PUD #1 | $16.31 | $16.30 | $0.00 | $0.00 | $32.61 | $0.00 |
| 2024 | 14325 | HD2 - HOSP DIST #2 | $14.49 | $14.48 | $0.00 | $0.00 | $28.97 | $0.00 |
| 2024 | 14325 | SD50 - SCHOOL DIST #50 | $469.41 | $469.41 | $0.00 | $0.00 | $938.82 | $0.00 |
| 2024 | 14325 | FD1 - FIRE DISTRICT #1 | $328.28 | $328.27 | $0.00 | $0.00 | $656.55 | $0.00 |
| 2024 | 14325 | EMS1 - FIRE DIST #1 EMS | $125.39 | $125.39 | $0.00 | $0.00 | $250.78 | $0.00 |
| 2024 | 14325 | JCCD - JC Conservation District | $2.55 | $2.55 | $0.00 | $0.00 | $5.10 | $0.00 |
| 2024 | 14325 | NWA - Noxious Weed Assessment | $2.15 | $2.15 | $0.00 | $0.00 | $4.30 | $0.00 |
| 2024 | 14325 | TOTAL: | $2251.80 | $2251.73 | $0.00 | $0.00 | $4503.53 | $0.00 |
|
| 2024 | 14325 | $2251.80 | $2251.73 | $0.00 | $0.00 | $4503.53 | $0.00 |
Statement Details |
| 2023 | 14348 | STATE - STATE LEVY (SCHOOL) | $579.31 | $579.31 | $0.00 | $0.00 | $1158.62 | $0.00 |
| 2023 | 14348 | COUNTY - COUNTY LEVIES (CE, DD, VET, MH) | $252.81 | $252.78 | $0.00 | $0.00 | $505.59 | $0.00 |
| 2023 | 14348 | CONSERVE - CONSERVATION FUTURES | $7.58 | $7.58 | $0.00 | $0.00 | $15.16 | $0.00 |
| 2023 | 14348 | CITYPT - CITY OF PT | $357.29 | $357.27 | $0.00 | $0.00 | $714.56 | $0.00 |
| 2023 | 14348 | PORTPT - PORT DISTRICT | $106.50 | $106.48 | $0.00 | $0.00 | $212.98 | $0.00 |
| 2023 | 14348 | PUD1 - PUD #1 | $16.76 | $16.75 | $0.00 | $0.00 | $33.51 | $0.00 |
| 2023 | 14348 | HD2 - HOSP DIST #2 | $14.76 | $14.75 | $0.00 | $0.00 | $29.51 | $0.00 |
| 2023 | 14348 | SD50 - SCHOOL DIST #50 | $459.70 | $459.68 | $0.00 | $0.00 | $919.38 | $0.00 |
| 2023 | 14348 | FD1 - FIRE DISTRICT #1 | $208.25 | $208.25 | $0.00 | $0.00 | $416.50 | $0.00 |
| 2023 | 14348 | EMS1 - FIRE DIST #1 EMS | $88.59 | $88.58 | $0.00 | $0.00 | $177.17 | $0.00 |
| 2023 | 14348 | JCCD - JC Conservation District | $2.55 | $2.55 | $0.00 | $0.00 | $5.10 | $0.00 |
| 2023 | 14348 | NWA - Noxious Weed Assessment | $2.15 | $2.15 | $0.00 | $0.00 | $4.30 | $0.00 |
| 2023 | 14348 | TOTAL: | $2096.25 | $2096.13 | $0.00 | $0.00 | $4192.38 | $0.00 |
|
| 2023 | 14348 | $2096.25 | $2096.13 | $0.00 | $0.00 | $4192.38 | $0.00 |
Values
| (+) Improvement Homesite Value: | + | $0 | |
| (+) Improvement Non-Homesite Value: | + | $350,784 | |
| (+) Land Homesite Value: | + | $0 | |
| (+) Land Non-Homesite Value: | + | $189,000 | |
| (+) Curr Use (HS): | + | $0 | $0 |
| (+) Curr Use (NHS): | + | $0 | $0 |
| | | -------------------------- | |
| (=) Market Value: | = | $539,784 | |
| (–) Productivity Loss: | – | $0 | |
| | | -------------------------- | |
| (=) Subtotal: | = | $539,784 | |
| (+) Senior Appraised Value: | + | $0 | |
| (+) Non-Senior Appraised Value: | + | $539,784 | |
| | | -------------------------- | |
| (=) Total Appraised Value: | = | $539,784 | |
| (–) Senior Exemption Loss: | – | $0 | |
| (–) Exemption Loss: | – | $0 | |
| | | -------------------------- | |
| (=) Taxable Value: | = | $539,784 | |
Taxing Jurisdiction
| Owner: | MICHAEL B RUBIN | | |
| % Ownership: | 100.0000000000% | | |
| Total Value: | N/A | | |
| Tax Area: | 0110 - C-50F1E1H2 |
| CE | COUNTY CURRENT EXPENSE | N/A | N/A | N/A | N/A | | |
| CNTYDD | DEVELOPMENTAL DISABILITIES | N/A | N/A | N/A | N/A | | |
| CNTYVET | VETERANS RELIEF | N/A | N/A | N/A | N/A | | |
| MENTAL | MENTAL HEALTH | N/A | N/A | N/A | N/A | | |
| PTGEN | CITY OF PT GENERAL | N/A | N/A | N/A | N/A | | |
| PTLLL | CITY OF PT - LIBRARY LID LIFT | N/A | N/A | N/A | N/A | | |
| PTMVBOND | CITY OF PT MV BOND | N/A | N/A | N/A | N/A | | |
| HOSP2CASH | HOSP DIST #2 GENERAL | N/A | N/A | N/A | N/A | | |
| SCH50BOND | SCHOOL DIST #50 BOND 2016 | N/A | N/A | N/A | N/A | | |
| SCH50CP | SCHOOL DIST #50 CAP PROJ | N/A | N/A | N/A | N/A | | |
| SCH50MO | SCHOOL DIST #50 EP & O | N/A | N/A | N/A | N/A | | |
| CONSERVE | CONSERVATION FUTURES | N/A | N/A | N/A | N/A | | |
| EMS1 | FIRE DIST #1 EMS | N/A | N/A | N/A | N/A | | |
| FD1 | FIRE DIST #1 GENERAL | N/A | N/A | N/A | N/A | | |
| PORTPT | PORT OF PT GENERAL | N/A | N/A | N/A | N/A | | |
| PORTPTIDD | PORT OF PT IDD 2019 | N/A | N/A | N/A | N/A | | |
| PUD1 | PUD #1 GENERAL | N/A | N/A | N/A | N/A | | |
| STATE | STATE SCHOOL PART 1 | N/A | N/A | N/A | N/A | | |
| STATE2 | STATE SCHOOL PART 2 | N/A | N/A | N/A | N/A | | |
| | Total Tax Rate: | N/A | | | | | |
| | | | | Taxes w/Current Exemptions: | N/A | | |
| | | | | Taxes w/o Exemptions: | N/A | | |
Improvement / Building
| Improvement #1: | Residential Bldg | State Code: | 14 | 1044.0 sqft | Value: | $350,784 |
Sketch
| No sketches available for this property. |
Property Image
Land
| 1 | 9338-4113S | | 0.0000 | 0.00 | 0.00 | 0.00 | 1.00 | $189,000 | $0 |
Roll Value History
| 2026 | N/A | N/A | N/A | N/A | N/A |
| 2025 | $350,784 | $189,000 | $0 | $539,784 | $539,784 |
| 2024 | $350,784 | $189,000 | $0 | $539,784 | $539,784 |
| 2023 | $321,552 | $180,000 | $0 | $501,552 | $501,552 |
| 2022 | $312,156 | $180,000 | $0 | $492,156 | $492,156 |
Deed and Sales History
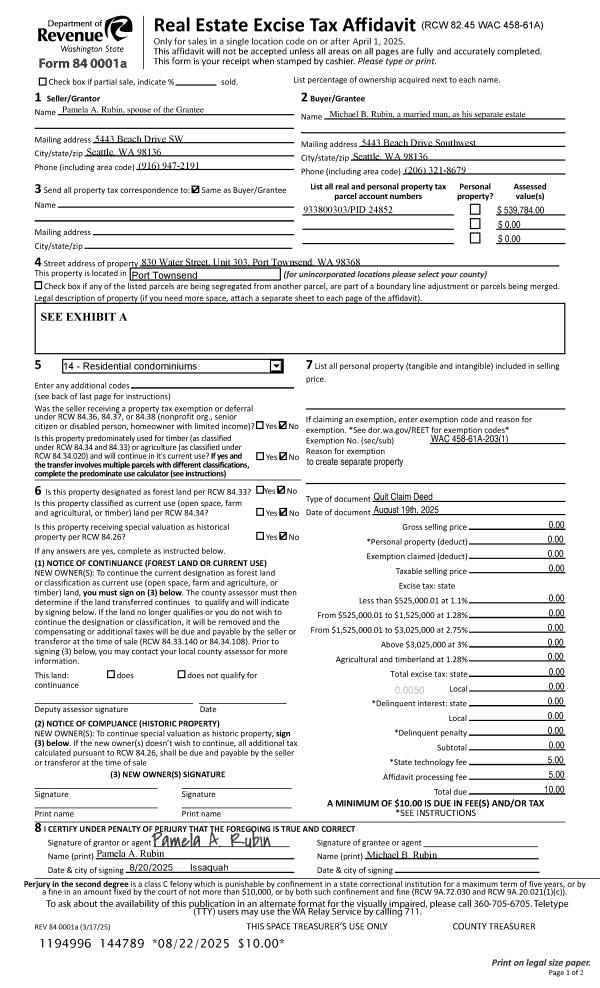
| 1 | 08/19/2025 | QCD | Quit Claim Deed | PAMELA A RUBIN | MICHAEL B RUBIN | | | | 144789 | |
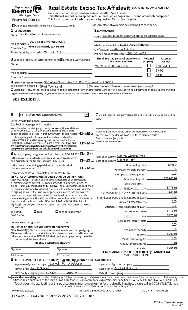
| 2 | 08/19/2025 | SWD | Statutory Warranty Deed | JACK E SEBBEN | MICHAEL B RUBIN | | | $575,000.00 | 144788 | |
| 3 | 09/22/2023 | SWD | Statutory Warranty Deed | WILLIAM APPLETON | JACK E SEBBEN | | | $550,000.00 | 141630 | |
| 4 | 04/23/2020 | SWD | Statutory Warranty Deed | | | | | | 136577 | |
| 5 | 04/23/2020 | SWD | Statutory Warranty Deed | PORT TOWNSEND ASSOCIATES | WILLIAM APPLETON | | | $379,000.00 | 134294 | |
| 6 | 12/27/2012 | SPWD | Special Warranty Deed | CRACKER FACTORY LLC | PORT TOWNSEND ASSOCIATES | | | $820,000.00 | 118588 | |
|   | |
Payout Agreement
| No payout information available.. |