Property
Account |
| Property ID: | 24855 | Abbreviated Legal Description: | THE EISENBEIS CONDOMINIUM UNIT 402 |
| Parcel # / Geo ID: | 933800402 | Agent Code: | |
| Type: | Real | | |
| Tax Area: | 0110 - C-50F1E1H2 | Land Use Code | 14 |
| Open Space: | N | DFL | N |
| Historic Property: | N | Remodel Property: | N |
| Multi-Family Redevelopment: | N | | |
| Township: | 30N | Section: | 1 |
| Range: | 1W |
Location |
| Address: | 0 WATER ST PORT TOWNSEND, WA 98368 | Mapsco: | 044/010 |
| Neighborhood: | CYCLE 6 CONDOMINIUMS - PORT TOWNSEND | Map ID: | |
| Neighborhood CD: | 6900 |
Owner |
| Name: | CARL R RABELER | Owner ID: | 109631 |
| Mailing Address: | LISA D MANSFIELD PO BOX 1473 PORT TOWNSEND, WA 98368-0041 | % Ownership: | 100.0000000000% |
| | | Exemptions: | |
Pay Tax Due
Select the appropriate checkbox next to the year to be paid. Multiple years may be selected.
*Convenience Fee not included
Taxes and Assessment Details
Property Tax Information as of
02/13/2026
Click on "Statement Details" to expand or collapse a tax statement.
* Please enter a valid date ** Please enter a valid date *
Statement Details |
| 2026 | 14251 | STATE - STATE LEVY (SCHOOL) | $631.33 | $631.31 | $0.00 | $0.00 | $0.00 | $1262.64 |
| 2026 | 14251 | COUNTY - COUNTY LEVIES (CE, DD, VET, MH) | $252.40 | $252.39 | $0.00 | $0.00 | $0.00 | $504.79 |
| 2026 | 14251 | CONSERVE - CONSERVATION FUTURES | $7.57 | $7.57 | $0.00 | $0.00 | $0.00 | $15.14 |
| 2026 | 14251 | CITYPT - CITY OF PT | $358.27 | $358.25 | $0.00 | $0.00 | $0.00 | $716.52 |
| 2026 | 14251 | PORTPT - PORT DISTRICT | $101.95 | $101.93 | $0.00 | $0.00 | $0.00 | $203.88 |
| 2026 | 14251 | PUD1 - PUD #1 | $16.42 | $16.42 | $0.00 | $0.00 | $0.00 | $32.84 |
| 2026 | 14251 | HD2 - HOSP DIST #2 | $14.72 | $14.72 | $0.00 | $0.00 | $0.00 | $29.44 |
| 2026 | 14251 | SD50 - SCHOOL DIST #50 | $500.16 | $500.13 | $0.00 | $0.00 | $0.00 | $1000.29 |
| 2026 | 14251 | FD1 - FIRE DISTRICT #1 | $334.24 | $334.23 | $0.00 | $0.00 | $0.00 | $668.47 |
| 2026 | 14251 | EMS1 - FIRE DIST #1 EMS | $128.51 | $128.51 | $0.00 | $0.00 | $0.00 | $257.02 |
| 2026 | 14251 | JCCD - JC Conservation District | $2.55 | $2.55 | $0.00 | $0.00 | $0.00 | $5.10 |
| 2026 | 14251 | NWA - Noxious Weed Assessment | $2.98 | $2.97 | $0.00 | $0.00 | $0.00 | $5.95 |
| 2026 | 14251 | TOTAL: | $2351.10 | $2350.98 | $0.00 | $0.00 | $0.00 | $4702.08 |
|
| 2026 | 14251 | $2351.10 | $2350.98 | $0.00 | $0.00 | $0.00 | $4702.08 |
Statement Details |
| 2025 | 14298 | STATE - STATE LEVY (SCHOOL) | $658.49 | $658.49 | $0.00 | $0.00 | $1316.98 | $0.00 |
| 2025 | 14298 | COUNTY - COUNTY LEVIES (CE, DD, VET, MH) | $258.97 | $258.93 | $0.00 | $0.00 | $517.90 | $0.00 |
| 2025 | 14298 | CONSERVE - CONSERVATION FUTURES | $7.77 | $7.76 | $0.00 | $0.00 | $15.53 | $0.00 |
| 2025 | 14298 | CITYPT - CITY OF PT | $373.43 | $373.42 | $0.00 | $0.00 | $746.85 | $0.00 |
| 2025 | 14298 | PORTPT - PORT DISTRICT | $105.67 | $105.66 | $0.00 | $0.00 | $211.33 | $0.00 |
| 2025 | 14298 | PUD1 - PUD #1 | $16.95 | $16.94 | $0.00 | $0.00 | $33.89 | $0.00 |
| 2025 | 14298 | HD2 - HOSP DIST #2 | $15.11 | $15.11 | $0.00 | $0.00 | $30.22 | $0.00 |
| 2025 | 14298 | SD50 - SCHOOL DIST #50 | $481.25 | $481.24 | $0.00 | $0.00 | $962.49 | $0.00 |
| 2025 | 14298 | FD1 - FIRE DISTRICT #1 | $341.71 | $341.71 | $0.00 | $0.00 | $683.42 | $0.00 |
| 2025 | 14298 | EMS1 - FIRE DIST #1 EMS | $131.43 | $131.43 | $0.00 | $0.00 | $262.86 | $0.00 |
| 2025 | 14298 | JCCD - JC Conservation District | $2.55 | $2.55 | $0.00 | $0.00 | $5.10 | $0.00 |
| 2025 | 14298 | NWA - Noxious Weed Assessment | $2.15 | $2.15 | $0.00 | $0.00 | $4.30 | $0.00 |
| 2025 | 14298 | TOTAL: | $2395.48 | $2395.39 | $0.00 | $0.00 | $4790.87 | $0.00 |
|
| 2025 | 14298 | $2395.48 | $2395.39 | $0.00 | $0.00 | $4790.87 | $0.00 |
Statement Details |
| 2024 | 14328 | STATE - STATE LEVY (SCHOOL) | $591.91 | $591.91 | $0.00 | $0.00 | $1183.82 | $0.00 |
| 2024 | 14328 | COUNTY - COUNTY LEVIES (CE, DD, VET, MH) | $253.29 | $253.28 | $0.00 | $0.00 | $506.57 | $0.00 |
| 2024 | 14328 | CONSERVE - CONSERVATION FUTURES | $7.60 | $7.59 | $0.00 | $0.00 | $15.19 | $0.00 |
| 2024 | 14328 | CITYPT - CITY OF PT | $361.91 | $361.90 | $0.00 | $0.00 | $723.81 | $0.00 |
| 2024 | 14328 | PORTPT - PORT DISTRICT | $104.62 | $104.61 | $0.00 | $0.00 | $209.23 | $0.00 |
| 2024 | 14328 | PUD1 - PUD #1 | $16.64 | $16.63 | $0.00 | $0.00 | $33.27 | $0.00 |
| 2024 | 14328 | HD2 - HOSP DIST #2 | $14.78 | $14.78 | $0.00 | $0.00 | $29.56 | $0.00 |
| 2024 | 14328 | SD50 - SCHOOL DIST #50 | $478.89 | $478.86 | $0.00 | $0.00 | $957.75 | $0.00 |
| 2024 | 14328 | FD1 - FIRE DISTRICT #1 | $334.90 | $334.90 | $0.00 | $0.00 | $669.80 | $0.00 |
| 2024 | 14328 | EMS1 - FIRE DIST #1 EMS | $127.92 | $127.92 | $0.00 | $0.00 | $255.84 | $0.00 |
| 2024 | 14328 | JCCD - JC Conservation District | $2.55 | $2.55 | $0.00 | $0.00 | $5.10 | $0.00 |
| 2024 | 14328 | NWA - Noxious Weed Assessment | $2.15 | $2.15 | $0.00 | $0.00 | $4.30 | $0.00 |
| 2024 | 14328 | TOTAL: | $2297.16 | $2297.08 | $0.00 | $0.00 | $4594.24 | $0.00 |
|
| 2024 | 14328 | $2297.16 | $2297.08 | $0.00 | $0.00 | $4594.24 | $0.00 |
Statement Details |
| 2023 | 14351 | STATE - STATE LEVY (SCHOOL) | $592.25 | $592.25 | $0.00 | $0.00 | $1184.50 | $0.00 |
| 2023 | 14351 | COUNTY - COUNTY LEVIES (CE, DD, VET, MH) | $258.45 | $258.42 | $0.00 | $0.00 | $516.87 | $0.00 |
| 2023 | 14351 | CONSERVE - CONSERVATION FUTURES | $7.75 | $7.75 | $0.00 | $0.00 | $15.50 | $0.00 |
| 2023 | 14351 | CITYPT - CITY OF PT | $365.27 | $365.26 | $0.00 | $0.00 | $730.53 | $0.00 |
| 2023 | 14351 | PORTPT - PORT DISTRICT | $108.87 | $108.87 | $0.00 | $0.00 | $217.74 | $0.00 |
| 2023 | 14351 | PUD1 - PUD #1 | $17.13 | $17.13 | $0.00 | $0.00 | $34.26 | $0.00 |
| 2023 | 14351 | HD2 - HOSP DIST #2 | $15.09 | $15.07 | $0.00 | $0.00 | $30.16 | $0.00 |
| 2023 | 14351 | SD50 - SCHOOL DIST #50 | $469.96 | $469.96 | $0.00 | $0.00 | $939.92 | $0.00 |
| 2023 | 14351 | FD1 - FIRE DISTRICT #1 | $212.91 | $212.90 | $0.00 | $0.00 | $425.81 | $0.00 |
| 2023 | 14351 | EMS1 - FIRE DIST #1 EMS | $90.57 | $90.56 | $0.00 | $0.00 | $181.13 | $0.00 |
| 2023 | 14351 | JCCD - JC Conservation District | $2.55 | $2.55 | $0.00 | $0.00 | $5.10 | $0.00 |
| 2023 | 14351 | NWA - Noxious Weed Assessment | $2.15 | $2.15 | $0.00 | $0.00 | $4.30 | $0.00 |
| 2023 | 14351 | TOTAL: | $2142.95 | $2142.87 | $0.00 | $0.00 | $4285.82 | $0.00 |
|
| 2023 | 14351 | $2142.95 | $2142.87 | $0.00 | $0.00 | $4285.82 | $0.00 |
Values
| (+) Improvement Homesite Value: | + | $0 | |
| (+) Improvement Non-Homesite Value: | + | $318,192 | |
| (+) Land Homesite Value: | + | $0 | |
| (+) Land Non-Homesite Value: | + | $231,000 | |
| (+) Curr Use (HS): | + | $0 | $0 |
| (+) Curr Use (NHS): | + | $0 | $0 |
| | | -------------------------- | |
| (=) Market Value: | = | $549,192 | |
| (–) Productivity Loss: | – | $0 | |
| | | -------------------------- | |
| (=) Subtotal: | = | $549,192 | |
| (+) Senior Appraised Value: | + | $0 | |
| (+) Non-Senior Appraised Value: | + | $549,192 | |
| | | -------------------------- | |
| (=) Total Appraised Value: | = | $549,192 | |
| (–) Senior Exemption Loss: | – | $0 | |
| (–) Exemption Loss: | – | $0 | |
| | | -------------------------- | |
| (=) Taxable Value: | = | $549,192 | |
Taxing Jurisdiction
| Owner: | CARL R RABELER | | |
| % Ownership: | 100.0000000000% | | |
| Total Value: | N/A | | |
| Tax Area: | 0110 - C-50F1E1H2 |
| CE | COUNTY CURRENT EXPENSE | N/A | N/A | N/A | N/A | | |
| CNTYDD | DEVELOPMENTAL DISABILITIES | N/A | N/A | N/A | N/A | | |
| CNTYVET | VETERANS RELIEF | N/A | N/A | N/A | N/A | | |
| MENTAL | MENTAL HEALTH | N/A | N/A | N/A | N/A | | |
| PTGEN | CITY OF PT GENERAL | N/A | N/A | N/A | N/A | | |
| PTLLL | CITY OF PT - LIBRARY LID LIFT | N/A | N/A | N/A | N/A | | |
| PTMVBOND | CITY OF PT MV BOND | N/A | N/A | N/A | N/A | | |
| HOSP2CASH | HOSP DIST #2 GENERAL | N/A | N/A | N/A | N/A | | |
| SCH50BOND | SCHOOL DIST #50 BOND 2016 | N/A | N/A | N/A | N/A | | |
| SCH50CP | SCHOOL DIST #50 CAP PROJ | N/A | N/A | N/A | N/A | | |
| SCH50MO | SCHOOL DIST #50 EP & O | N/A | N/A | N/A | N/A | | |
| CONSERVE | CONSERVATION FUTURES | N/A | N/A | N/A | N/A | | |
| EMS1 | FIRE DIST #1 EMS | N/A | N/A | N/A | N/A | | |
| FD1 | FIRE DIST #1 GENERAL | N/A | N/A | N/A | N/A | | |
| PORTPT | PORT OF PT GENERAL | N/A | N/A | N/A | N/A | | |
| PORTPTIDD | PORT OF PT IDD 2019 | N/A | N/A | N/A | N/A | | |
| PUD1 | PUD #1 GENERAL | N/A | N/A | N/A | N/A | | |
| STATE | STATE SCHOOL PART 1 | N/A | N/A | N/A | N/A | | |
| STATE2 | STATE SCHOOL PART 2 | N/A | N/A | N/A | N/A | | |
| | Total Tax Rate: | N/A | | | | | |
| | | | | Taxes w/Current Exemptions: | N/A | | |
| | | | | Taxes w/o Exemptions: | N/A | | |
Improvement / Building
| Improvement #1: | Residential Bldg | State Code: | 14 | 947.0 sqft | Value: | $318,192 |
Sketch
| No sketches available for this property. |
Property Image
Land
| 1 | 9338-4113S | | 0.0000 | 0.00 | 0.00 | 0.00 | 1.00 | $231,000 | $0 |
Roll Value History
| 2026 | N/A | N/A | N/A | N/A | N/A |
| 2025 | $318,192 | $231,000 | $0 | $549,192 | $549,192 |
| 2024 | $318,192 | $231,000 | $0 | $549,192 | $549,192 |
| 2023 | $291,676 | $220,000 | $0 | $511,676 | $511,676 |
| 2022 | $283,153 | $220,000 | $0 | $503,153 | $503,153 |
Deed and Sales History
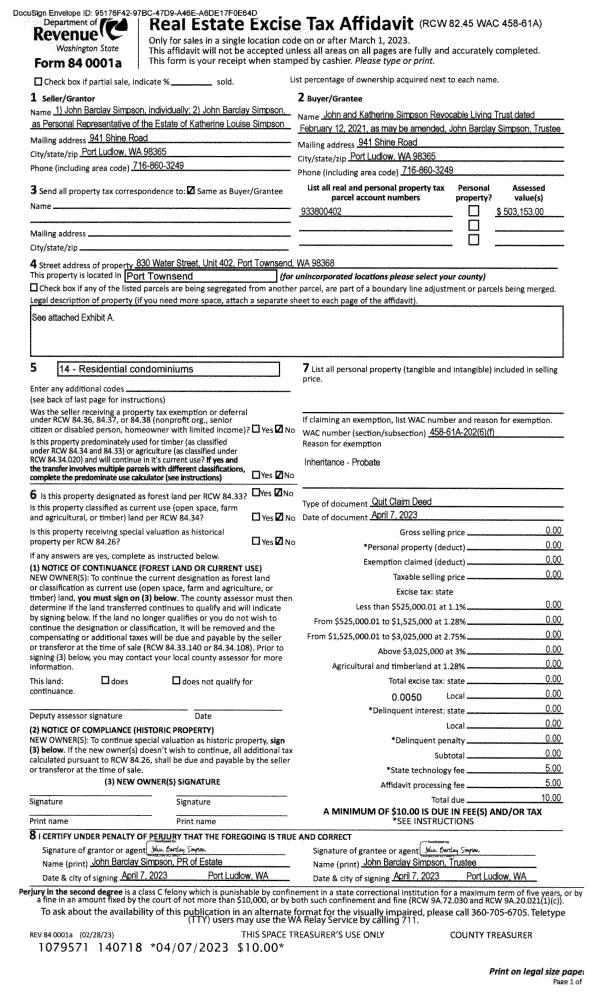
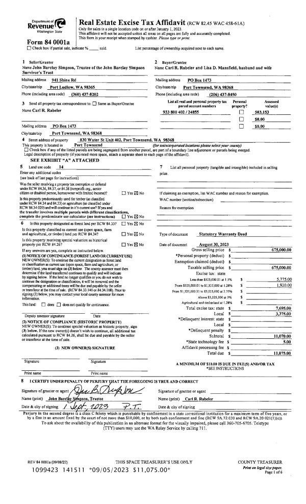
| 1 | 08/30/2023 | SWD | Statutory Warranty Deed | JOHN B SIMPSON SURVIVOR'S TRUST | CARL R RABELER | | | $675,000.00 | 141511 | |
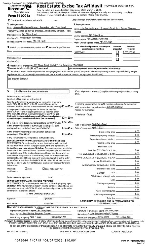
| 2 | 04/07/2023 | QCD | Quit Claim Deed | JOHN & KATHERINE SIMPSON REVOCABLE LIVING TRUST | JOHN B SIMPSON SURVIVOR'S TRUST | | | | 140719 | |
| 3 | 04/07/2023 | QCD | Quit Claim Deed | JOHN B SIMPSON | JOHN & KATHERINE SIMPSON REVOCABLE LIVING TRUST | | | | 140718 | |
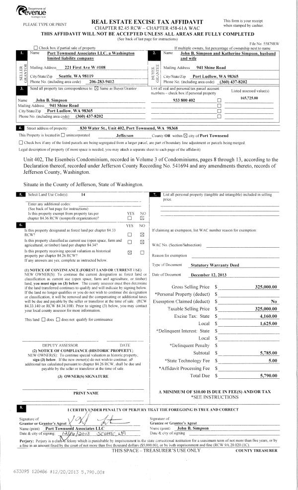
| 4 | 12/12/2013 | SWD | Statutory Warranty Deed | PORT TOWNSEND ASSOCIATES | JOHN B SIMPSON | | | $325,000.00 | 120486 | |
| 5 | 12/27/2012 | SPWD | Special Warranty Deed | CRACKER FACTORY LLC | PORT TOWNSEND ASSOCIATES | | | $820,000.00 | 118588 | |
|   | |
Payout Agreement
| No payout information available.. |