Property
Account |
| Property ID: | 24856 | Abbreviated Legal Description: | THE EISENBEIS CONDOMINIUM UNIT 403 |
| Parcel # / Geo ID: | 933800403 | Agent Code: | |
| Type: | Real | | |
| Tax Area: | 0110 - C-50F1E1H2 | Land Use Code | 14 |
| Open Space: | N | DFL | N |
| Historic Property: | N | Remodel Property: | N |
| Multi-Family Redevelopment: | N | | |
| Township: | 30N | Section: | 1 |
| Range: | 1W |
Location |
| Address: | 0 WATER ST PORT TOWNSEND, WA 98368 | Mapsco: | 044/011 |
| Neighborhood: | CYCLE 6 CONDOMINIUMS - PORT TOWNSEND | Map ID: | |
| Neighborhood CD: | 6900 |
Owner |
| Name: | HOLLIDAE A NAYAK | Owner ID: | 111758 |
| Mailing Address: | 830 WATER ST APT 403 PORT TOWNSEND, WA 98368-5763 | % Ownership: | 100.0000000000% |
| | | Exemptions: | |
Pay Tax Due
Select the appropriate checkbox next to the year to be paid. Multiple years may be selected.
*Convenience Fee not included
Taxes and Assessment Details
Property Tax Information as of
02/13/2026
Click on "Statement Details" to expand or collapse a tax statement.
* Please enter a valid date ** Please enter a valid date *
Statement Details |
| 2026 | 14252 | STATE - STATE LEVY (SCHOOL) | $462.92 | $462.92 | $0.00 | $0.00 | $0.00 | $925.84 |
| 2026 | 14252 | COUNTY - COUNTY LEVIES (CE, DD, VET, MH) | $185.08 | $185.07 | $0.00 | $0.00 | $0.00 | $370.15 |
| 2026 | 14252 | CONSERVE - CONSERVATION FUTURES | $5.55 | $5.55 | $0.00 | $0.00 | $0.00 | $11.10 |
| 2026 | 14252 | CITYPT - CITY OF PT | $262.70 | $262.69 | $0.00 | $0.00 | $0.00 | $525.39 |
| 2026 | 14252 | PORTPT - PORT DISTRICT | $74.75 | $74.74 | $0.00 | $0.00 | $0.00 | $149.49 |
| 2026 | 14252 | PUD1 - PUD #1 | $12.04 | $12.04 | $0.00 | $0.00 | $0.00 | $24.08 |
| 2026 | 14252 | HD2 - HOSP DIST #2 | $10.80 | $10.79 | $0.00 | $0.00 | $0.00 | $21.59 |
| 2026 | 14252 | SD50 - SCHOOL DIST #50 | $366.74 | $366.72 | $0.00 | $0.00 | $0.00 | $733.46 |
| 2026 | 14252 | FD1 - FIRE DISTRICT #1 | $245.08 | $245.08 | $0.00 | $0.00 | $0.00 | $490.16 |
| 2026 | 14252 | EMS1 - FIRE DIST #1 EMS | $94.23 | $94.23 | $0.00 | $0.00 | $0.00 | $188.46 |
| 2026 | 14252 | JCCD - JC Conservation District | $2.55 | $2.55 | $0.00 | $0.00 | $0.00 | $5.10 |
| 2026 | 14252 | NWA - Noxious Weed Assessment | $2.98 | $2.97 | $0.00 | $0.00 | $0.00 | $5.95 |
| 2026 | 14252 | TOTAL: | $1725.42 | $1725.35 | $0.00 | $0.00 | $0.00 | $3450.77 |
|
| 2026 | 14252 | $1725.42 | $1725.35 | $0.00 | $0.00 | $0.00 | $3450.77 |
Statement Details |
| 2025 | 14299 | STATE - STATE LEVY (SCHOOL) | $482.84 | $482.84 | $0.00 | $0.00 | $965.68 | $0.00 |
| 2025 | 14299 | COUNTY - COUNTY LEVIES (CE, DD, VET, MH) | $189.89 | $189.86 | $0.00 | $0.00 | $379.75 | $0.00 |
| 2025 | 14299 | CONSERVE - CONSERVATION FUTURES | $5.70 | $5.69 | $0.00 | $0.00 | $11.39 | $0.00 |
| 2025 | 14299 | CITYPT - CITY OF PT | $273.82 | $273.81 | $0.00 | $0.00 | $547.63 | $0.00 |
| 2025 | 14299 | PORTPT - PORT DISTRICT | $77.49 | $77.47 | $0.00 | $0.00 | $154.96 | $0.00 |
| 2025 | 14299 | PUD1 - PUD #1 | $12.43 | $12.42 | $0.00 | $0.00 | $24.85 | $0.00 |
| 2025 | 14299 | HD2 - HOSP DIST #2 | $11.08 | $11.08 | $0.00 | $0.00 | $22.16 | $0.00 |
| 2025 | 14299 | SD50 - SCHOOL DIST #50 | $352.87 | $352.87 | $0.00 | $0.00 | $705.74 | $0.00 |
| 2025 | 14299 | FD1 - FIRE DISTRICT #1 | $250.56 | $250.56 | $0.00 | $0.00 | $501.12 | $0.00 |
| 2025 | 14299 | EMS1 - FIRE DIST #1 EMS | $96.37 | $96.37 | $0.00 | $0.00 | $192.74 | $0.00 |
| 2025 | 14299 | JCCD - JC Conservation District | $2.55 | $2.55 | $0.00 | $0.00 | $5.10 | $0.00 |
| 2025 | 14299 | NWA - Noxious Weed Assessment | $2.15 | $2.15 | $0.00 | $0.00 | $4.30 | $0.00 |
| 2025 | 14299 | TOTAL: | $1757.75 | $1757.67 | $0.00 | $0.00 | $3515.42 | $0.00 |
|
| 2025 | 14299 | $1757.75 | $1757.67 | $0.00 | $0.00 | $3515.42 | $0.00 |
Statement Details |
| 2024 | 14329 | STATE - STATE LEVY (SCHOOL) | $436.56 | $436.56 | $0.00 | $0.00 | $873.12 | $0.00 |
| 2024 | 14329 | COUNTY - COUNTY LEVIES (CE, DD, VET, MH) | $186.82 | $186.80 | $0.00 | $0.00 | $373.62 | $0.00 |
| 2024 | 14329 | CONSERVE - CONSERVATION FUTURES | $5.60 | $5.60 | $0.00 | $0.00 | $11.20 | $0.00 |
| 2024 | 14329 | CITYPT - CITY OF PT | $266.93 | $266.91 | $0.00 | $0.00 | $533.84 | $0.00 |
| 2024 | 14329 | PORTPT - PORT DISTRICT | $77.17 | $77.15 | $0.00 | $0.00 | $154.32 | $0.00 |
| 2024 | 14329 | PUD1 - PUD #1 | $12.27 | $12.27 | $0.00 | $0.00 | $24.54 | $0.00 |
| 2024 | 14329 | HD2 - HOSP DIST #2 | $10.90 | $10.90 | $0.00 | $0.00 | $21.80 | $0.00 |
| 2024 | 14329 | SD50 - SCHOOL DIST #50 | $353.21 | $353.19 | $0.00 | $0.00 | $706.40 | $0.00 |
| 2024 | 14329 | FD1 - FIRE DISTRICT #1 | $247.01 | $247.00 | $0.00 | $0.00 | $494.01 | $0.00 |
| 2024 | 14329 | EMS1 - FIRE DIST #1 EMS | $94.35 | $94.34 | $0.00 | $0.00 | $188.69 | $0.00 |
| 2024 | 14329 | JCCD - JC Conservation District | $2.55 | $2.55 | $0.00 | $0.00 | $5.10 | $0.00 |
| 2024 | 14329 | NWA - Noxious Weed Assessment | $2.15 | $2.15 | $0.00 | $0.00 | $4.30 | $0.00 |
| 2024 | 14329 | TOTAL: | $1695.52 | $1695.42 | $0.00 | $0.00 | $3390.94 | $0.00 |
|
| 2024 | 14329 | $1695.52 | $1695.42 | $0.00 | $0.00 | $3390.94 | $0.00 |
Statement Details |
| 2023 | 14352 | STATE - STATE LEVY (SCHOOL) | $438.81 | $438.79 | $0.00 | $0.00 | $877.60 | $0.00 |
| 2023 | 14352 | COUNTY - COUNTY LEVIES (CE, DD, VET, MH) | $191.49 | $191.46 | $0.00 | $0.00 | $382.95 | $0.00 |
| 2023 | 14352 | CONSERVE - CONSERVATION FUTURES | $5.74 | $5.74 | $0.00 | $0.00 | $11.48 | $0.00 |
| 2023 | 14352 | CITYPT - CITY OF PT | $270.63 | $270.62 | $0.00 | $0.00 | $541.25 | $0.00 |
| 2023 | 14352 | PORTPT - PORT DISTRICT | $80.67 | $80.66 | $0.00 | $0.00 | $161.33 | $0.00 |
| 2023 | 14352 | PUD1 - PUD #1 | $12.70 | $12.69 | $0.00 | $0.00 | $25.39 | $0.00 |
| 2023 | 14352 | HD2 - HOSP DIST #2 | $11.18 | $11.17 | $0.00 | $0.00 | $22.35 | $0.00 |
| 2023 | 14352 | SD50 - SCHOOL DIST #50 | $348.21 | $348.18 | $0.00 | $0.00 | $696.39 | $0.00 |
| 2023 | 14352 | FD1 - FIRE DISTRICT #1 | $157.74 | $157.74 | $0.00 | $0.00 | $315.48 | $0.00 |
| 2023 | 14352 | EMS1 - FIRE DIST #1 EMS | $67.10 | $67.10 | $0.00 | $0.00 | $134.20 | $0.00 |
| 2023 | 14352 | JCCD - JC Conservation District | $2.55 | $2.55 | $0.00 | $0.00 | $5.10 | $0.00 |
| 2023 | 14352 | NWA - Noxious Weed Assessment | $2.15 | $2.15 | $0.00 | $0.00 | $4.30 | $0.00 |
| 2023 | 14352 | TOTAL: | $1588.97 | $1588.85 | $0.00 | $0.00 | $3177.82 | $0.00 |
|
| 2023 | 14352 | $1588.97 | $1588.85 | $0.00 | $0.00 | $3177.82 | $0.00 |
Values
| (+) Improvement Homesite Value: | + | $0 | |
| (+) Improvement Non-Homesite Value: | + | $171,696 | |
| (+) Land Homesite Value: | + | $0 | |
| (+) Land Non-Homesite Value: | + | $231,000 | |
| (+) Curr Use (HS): | + | $0 | $0 |
| (+) Curr Use (NHS): | + | $0 | $0 |
| | | -------------------------- | |
| (=) Market Value: | = | $402,696 | |
| (–) Productivity Loss: | – | $0 | |
| | | -------------------------- | |
| (=) Subtotal: | = | $402,696 | |
| (+) Senior Appraised Value: | + | $0 | |
| (+) Non-Senior Appraised Value: | + | $402,696 | |
| | | -------------------------- | |
| (=) Total Appraised Value: | = | $402,696 | |
| (–) Senior Exemption Loss: | – | $0 | |
| (–) Exemption Loss: | – | $0 | |
| | | -------------------------- | |
| (=) Taxable Value: | = | $402,696 | |
Taxing Jurisdiction
| Owner: | HOLLIDAE A NAYAK | | |
| % Ownership: | 100.0000000000% | | |
| Total Value: | N/A | | |
| Tax Area: | 0110 - C-50F1E1H2 |
| CE | COUNTY CURRENT EXPENSE | N/A | N/A | N/A | N/A | | |
| CNTYDD | DEVELOPMENTAL DISABILITIES | N/A | N/A | N/A | N/A | | |
| CNTYVET | VETERANS RELIEF | N/A | N/A | N/A | N/A | | |
| MENTAL | MENTAL HEALTH | N/A | N/A | N/A | N/A | | |
| PTGEN | CITY OF PT GENERAL | N/A | N/A | N/A | N/A | | |
| PTLLL | CITY OF PT - LIBRARY LID LIFT | N/A | N/A | N/A | N/A | | |
| PTMVBOND | CITY OF PT MV BOND | N/A | N/A | N/A | N/A | | |
| HOSP2CASH | HOSP DIST #2 GENERAL | N/A | N/A | N/A | N/A | | |
| SCH50BOND | SCHOOL DIST #50 BOND 2016 | N/A | N/A | N/A | N/A | | |
| SCH50CP | SCHOOL DIST #50 CAP PROJ | N/A | N/A | N/A | N/A | | |
| SCH50MO | SCHOOL DIST #50 EP & O | N/A | N/A | N/A | N/A | | |
| CONSERVE | CONSERVATION FUTURES | N/A | N/A | N/A | N/A | | |
| EMS1 | FIRE DIST #1 EMS | N/A | N/A | N/A | N/A | | |
| FD1 | FIRE DIST #1 GENERAL | N/A | N/A | N/A | N/A | | |
| PORTPT | PORT OF PT GENERAL | N/A | N/A | N/A | N/A | | |
| PORTPTIDD | PORT OF PT IDD 2019 | N/A | N/A | N/A | N/A | | |
| PUD1 | PUD #1 GENERAL | N/A | N/A | N/A | N/A | | |
| STATE | STATE SCHOOL PART 1 | N/A | N/A | N/A | N/A | | |
| STATE2 | STATE SCHOOL PART 2 | N/A | N/A | N/A | N/A | | |
| | Total Tax Rate: | N/A | | | | | |
| | | | | Taxes w/Current Exemptions: | N/A | | |
| | | | | Taxes w/o Exemptions: | N/A | | |
Improvement / Building
| Improvement #1: | Residential Bldg | State Code: | 14 | 511.0 sqft | Value: | $171,696 |
Sketch
| No sketches available for this property. |
Property Image
Land
| 1 | 9338-4113S | | 0.0000 | 0.00 | 0.00 | 0.00 | 1.00 | $231,000 | $0 |
Roll Value History
| 2026 | N/A | N/A | N/A | N/A | N/A |
| 2025 | $171,696 | $231,000 | $0 | $402,696 | $402,696 |
| 2024 | $171,696 | $231,000 | $0 | $402,696 | $402,696 |
| 2023 | $157,388 | $220,000 | $0 | $377,388 | $377,388 |
| 2022 | $152,789 | $220,000 | $0 | $372,789 | $372,789 |
Deed and Sales History
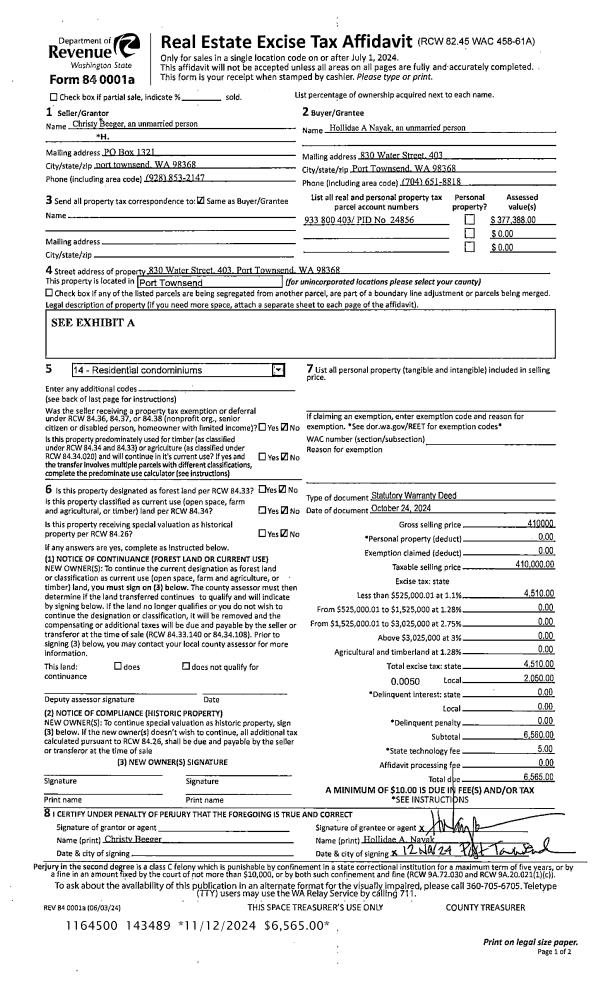
| 1 | 10/24/2024 | SWD | Statutory Warranty Deed | CHRISTY BEEGER | HOLLIDAE A NAYAK | | | $410,000.00 | 143489 | |
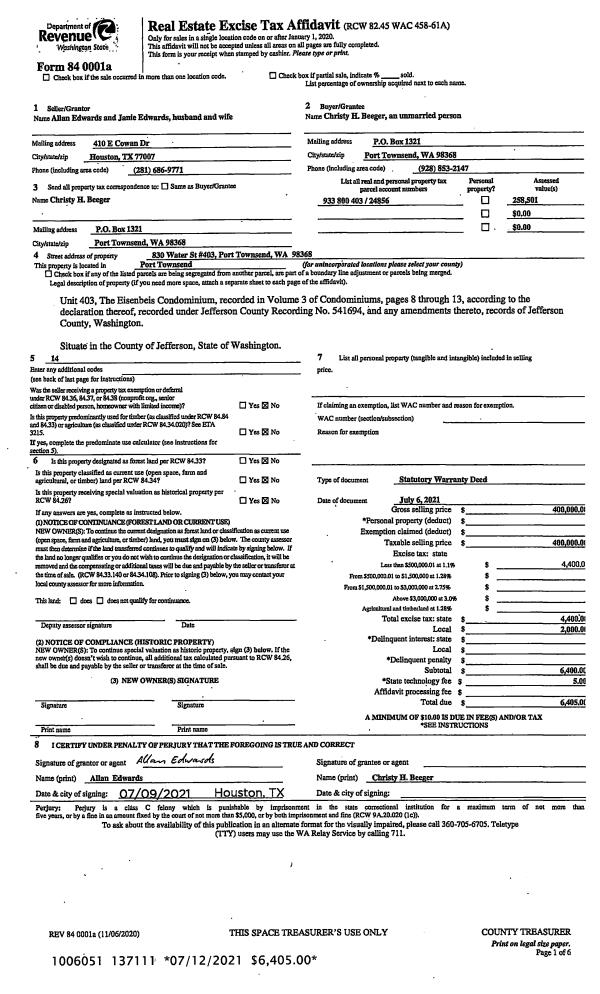
| 2 | 07/06/2021 | SWD | Statutory Warranty Deed | ALLAN & JANIE EDWARDS | CHRISTY BEEGER | | | $400,000.00 | 137111 | |
| 3 | 07/01/2020 | SWD | Statutory Warranty Deed | PORT TOWNSEND ASSOCIATES | ALLAN & JANIE EDWARDS | | | $315,000.00 | 134629 | |
| 4 | 12/27/2012 | SPWD | Special Warranty Deed | CRACKER FACTORY LLC | PORT TOWNSEND ASSOCIATES | | | $820,000.00 | 118588 | |
|   | |
Payout Agreement
| No payout information available.. |