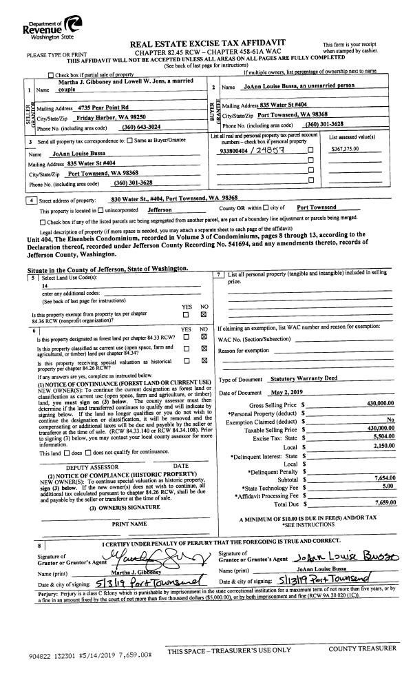
Property
Account |
| Property ID: | 24857 | Abbreviated Legal Description: | THE EISENBEIS CONDOMINIUM UNIT 404 |
| Parcel # / Geo ID: | 933800404 | Agent Code: | |
| Type: | Real | | |
| Tax Area: | 0110 - C-50F1E1H2 | Land Use Code | 14 |
| Open Space: | N | DFL | N |
| Historic Property: | N | Remodel Property: | N |
| Multi-Family Redevelopment: | N | | |
| Township: | 30N | Section: | 1 |
| Range: | 1W |
Location |
| Address: | 0 WATER ST PORT TOWNSEND, WA 98368 | Mapsco: | 044/012 |
| Neighborhood: | CYCLE 6 CONDOMINIUMS - PORT TOWNSEND | Map ID: | |
| Neighborhood CD: | 6900 |
Owner |
| Name: | JOANN L BUSSA | Owner ID: | 100991 |
| Mailing Address: | 830 WATER ST # 404 PORT TOWNSEND, WA 98368 | % Ownership: | 100.0000000000% |
| | | Exemptions: | |
Pay Tax Due
Select the appropriate checkbox next to the year to be paid. Multiple years may be selected.
*Convenience Fee not included
Taxes and Assessment Details
Property Tax Information as of
02/13/2026
Click on "Statement Details" to expand or collapse a tax statement.
* Please enter a valid date ** Please enter a valid date *
Statement Details |
| 2026 | 14253 | STATE - STATE LEVY (SCHOOL) | $723.25 | $723.24 | $0.00 | $0.00 | $0.00 | $1446.49 |
| 2026 | 14253 | COUNTY - COUNTY LEVIES (CE, DD, VET, MH) | $289.15 | $289.15 | $0.00 | $0.00 | $0.00 | $578.30 |
| 2026 | 14253 | CONSERVE - CONSERVATION FUTURES | $8.67 | $8.67 | $0.00 | $0.00 | $0.00 | $17.34 |
| 2026 | 14253 | CITYPT - CITY OF PT | $410.43 | $410.43 | $0.00 | $0.00 | $0.00 | $820.86 |
| 2026 | 14253 | PORTPT - PORT DISTRICT | $116.79 | $116.78 | $0.00 | $0.00 | $0.00 | $233.57 |
| 2026 | 14253 | PUD1 - PUD #1 | $18.81 | $18.81 | $0.00 | $0.00 | $0.00 | $37.62 |
| 2026 | 14253 | HD2 - HOSP DIST #2 | $16.87 | $16.86 | $0.00 | $0.00 | $0.00 | $33.73 |
| 2026 | 14253 | SD50 - SCHOOL DIST #50 | $572.97 | $572.96 | $0.00 | $0.00 | $0.00 | $1145.93 |
| 2026 | 14253 | FD1 - FIRE DISTRICT #1 | $382.91 | $382.90 | $0.00 | $0.00 | $0.00 | $765.81 |
| 2026 | 14253 | EMS1 - FIRE DIST #1 EMS | $147.22 | $147.22 | $0.00 | $0.00 | $0.00 | $294.44 |
| 2026 | 14253 | JCCD - JC Conservation District | $2.55 | $2.55 | $0.00 | $0.00 | $0.00 | $5.10 |
| 2026 | 14253 | NWA - Noxious Weed Assessment | $2.98 | $2.97 | $0.00 | $0.00 | $0.00 | $5.95 |
| 2026 | 14253 | TOTAL: | $2692.60 | $2692.54 | $0.00 | $0.00 | $0.00 | $5385.14 |
|
| 2026 | 14253 | $2692.60 | $2692.54 | $0.00 | $0.00 | $0.00 | $5385.14 |
Statement Details |
| 2025 | 14300 | STATE - STATE LEVY (SCHOOL) | $754.37 | $754.37 | $0.00 | $0.00 | $1508.74 | $0.00 |
| 2025 | 14300 | COUNTY - COUNTY LEVIES (CE, DD, VET, MH) | $296.66 | $296.65 | $0.00 | $0.00 | $593.31 | $0.00 |
| 2025 | 14300 | CONSERVE - CONSERVATION FUTURES | $8.90 | $8.89 | $0.00 | $0.00 | $17.79 | $0.00 |
| 2025 | 14300 | CITYPT - CITY OF PT | $427.81 | $427.79 | $0.00 | $0.00 | $855.60 | $0.00 |
| 2025 | 14300 | PORTPT - PORT DISTRICT | $121.05 | $121.05 | $0.00 | $0.00 | $242.10 | $0.00 |
| 2025 | 14300 | PUD1 - PUD #1 | $19.41 | $19.41 | $0.00 | $0.00 | $38.82 | $0.00 |
| 2025 | 14300 | HD2 - HOSP DIST #2 | $17.31 | $17.30 | $0.00 | $0.00 | $34.61 | $0.00 |
| 2025 | 14300 | SD50 - SCHOOL DIST #50 | $551.33 | $551.31 | $0.00 | $0.00 | $1102.64 | $0.00 |
| 2025 | 14300 | FD1 - FIRE DISTRICT #1 | $391.47 | $391.46 | $0.00 | $0.00 | $782.93 | $0.00 |
| 2025 | 14300 | EMS1 - FIRE DIST #1 EMS | $150.57 | $150.57 | $0.00 | $0.00 | $301.14 | $0.00 |
| 2025 | 14300 | JCCD - JC Conservation District | $2.55 | $2.55 | $0.00 | $0.00 | $5.10 | $0.00 |
| 2025 | 14300 | NWA - Noxious Weed Assessment | $2.15 | $2.15 | $0.00 | $0.00 | $4.30 | $0.00 |
| 2025 | 14300 | TOTAL: | $2743.58 | $2743.50 | $0.00 | $0.00 | $5487.08 | $0.00 |
|
| 2025 | 14300 | $2743.58 | $2743.50 | $0.00 | $0.00 | $5487.08 | $0.00 |
Statement Details |
| 2024 | 14330 | STATE - STATE LEVY (SCHOOL) | $676.71 | $676.70 | $0.00 | $0.00 | $1353.41 | $0.00 |
| 2024 | 14330 | COUNTY - COUNTY LEVIES (CE, DD, VET, MH) | $289.59 | $289.55 | $0.00 | $0.00 | $579.14 | $0.00 |
| 2024 | 14330 | CONSERVE - CONSERVATION FUTURES | $8.69 | $8.68 | $0.00 | $0.00 | $17.37 | $0.00 |
| 2024 | 14330 | CITYPT - CITY OF PT | $413.76 | $413.75 | $0.00 | $0.00 | $827.51 | $0.00 |
| 2024 | 14330 | PORTPT - PORT DISTRICT | $119.61 | $119.60 | $0.00 | $0.00 | $239.21 | $0.00 |
| 2024 | 14330 | PUD1 - PUD #1 | $19.02 | $19.02 | $0.00 | $0.00 | $38.04 | $0.00 |
| 2024 | 14330 | HD2 - HOSP DIST #2 | $16.90 | $16.89 | $0.00 | $0.00 | $33.79 | $0.00 |
| 2024 | 14330 | SD50 - SCHOOL DIST #50 | $547.49 | $547.49 | $0.00 | $0.00 | $1094.98 | $0.00 |
| 2024 | 14330 | FD1 - FIRE DISTRICT #1 | $382.88 | $382.88 | $0.00 | $0.00 | $765.76 | $0.00 |
| 2024 | 14330 | EMS1 - FIRE DIST #1 EMS | $146.25 | $146.24 | $0.00 | $0.00 | $292.49 | $0.00 |
| 2024 | 14330 | JCCD - JC Conservation District | $2.55 | $2.55 | $0.00 | $0.00 | $5.10 | $0.00 |
| 2024 | 14330 | NWA - Noxious Weed Assessment | $2.15 | $2.15 | $0.00 | $0.00 | $4.30 | $0.00 |
| 2024 | 14330 | TOTAL: | $2625.60 | $2625.50 | $0.00 | $0.00 | $5251.10 | $0.00 |
|
| 2024 | 14330 | $2625.60 | $2625.50 | $0.00 | $0.00 | $5251.10 | $0.00 |
Statement Details |
| 2023 | 14353 | STATE - STATE LEVY (SCHOOL) | $676.02 | $676.01 | $0.00 | $0.00 | $1352.03 | $0.00 |
| 2023 | 14353 | COUNTY - COUNTY LEVIES (CE, DD, VET, MH) | $295.01 | $294.97 | $0.00 | $0.00 | $589.98 | $0.00 |
| 2023 | 14353 | CONSERVE - CONSERVATION FUTURES | $8.85 | $8.84 | $0.00 | $0.00 | $17.69 | $0.00 |
| 2023 | 14353 | CITYPT - CITY OF PT | $416.93 | $416.91 | $0.00 | $0.00 | $833.84 | $0.00 |
| 2023 | 14353 | PORTPT - PORT DISTRICT | $124.28 | $124.26 | $0.00 | $0.00 | $248.54 | $0.00 |
| 2023 | 14353 | PUD1 - PUD #1 | $19.56 | $19.55 | $0.00 | $0.00 | $39.11 | $0.00 |
| 2023 | 14353 | HD2 - HOSP DIST #2 | $17.22 | $17.20 | $0.00 | $0.00 | $34.42 | $0.00 |
| 2023 | 14353 | SD50 - SCHOOL DIST #50 | $536.44 | $536.43 | $0.00 | $0.00 | $1072.87 | $0.00 |
| 2023 | 14353 | FD1 - FIRE DISTRICT #1 | $243.02 | $243.01 | $0.00 | $0.00 | $486.03 | $0.00 |
| 2023 | 14353 | EMS1 - FIRE DIST #1 EMS | $103.38 | $103.37 | $0.00 | $0.00 | $206.75 | $0.00 |
| 2023 | 14353 | JCCD - JC Conservation District | $2.55 | $2.55 | $0.00 | $0.00 | $5.10 | $0.00 |
| 2023 | 14353 | NWA - Noxious Weed Assessment | $2.15 | $2.15 | $0.00 | $0.00 | $4.30 | $0.00 |
| 2023 | 14353 | TOTAL: | $2445.41 | $2445.25 | $0.00 | $0.00 | $4890.66 | $0.00 |
|
| 2023 | 14353 | $2445.41 | $2445.25 | $0.00 | $0.00 | $4890.66 | $0.00 |
Values
| (+) Improvement Homesite Value: | + | $0 | |
| (+) Improvement Non-Homesite Value: | + | $398,160 | |
| (+) Land Homesite Value: | + | $0 | |
| (+) Land Non-Homesite Value: | + | $231,000 | |
| (+) Curr Use (HS): | + | $0 | $0 |
| (+) Curr Use (NHS): | + | $0 | $0 |
| | | -------------------------- | |
| (=) Market Value: | = | $629,160 | |
| (–) Productivity Loss: | – | $0 | |
| | | -------------------------- | |
| (=) Subtotal: | = | $629,160 | |
| (+) Senior Appraised Value: | + | $0 | |
| (+) Non-Senior Appraised Value: | + | $629,160 | |
| | | -------------------------- | |
| (=) Total Appraised Value: | = | $629,160 | |
| (–) Senior Exemption Loss: | – | $0 | |
| (–) Exemption Loss: | – | $0 | |
| | | -------------------------- | |
| (=) Taxable Value: | = | $629,160 | |
Taxing Jurisdiction
| Owner: | JOANN L BUSSA | | |
| % Ownership: | 100.0000000000% | | |
| Total Value: | N/A | | |
| Tax Area: | 0110 - C-50F1E1H2 |
| CE | COUNTY CURRENT EXPENSE | N/A | N/A | N/A | N/A | | |
| CNTYDD | DEVELOPMENTAL DISABILITIES | N/A | N/A | N/A | N/A | | |
| CNTYVET | VETERANS RELIEF | N/A | N/A | N/A | N/A | | |
| MENTAL | MENTAL HEALTH | N/A | N/A | N/A | N/A | | |
| PTGEN | CITY OF PT GENERAL | N/A | N/A | N/A | N/A | | |
| PTLLL | CITY OF PT - LIBRARY LID LIFT | N/A | N/A | N/A | N/A | | |
| PTMVBOND | CITY OF PT MV BOND | N/A | N/A | N/A | N/A | | |
| HOSP2CASH | HOSP DIST #2 GENERAL | N/A | N/A | N/A | N/A | | |
| SCH50BOND | SCHOOL DIST #50 BOND 2016 | N/A | N/A | N/A | N/A | | |
| SCH50CP | SCHOOL DIST #50 CAP PROJ | N/A | N/A | N/A | N/A | | |
| SCH50MO | SCHOOL DIST #50 EP & O | N/A | N/A | N/A | N/A | | |
| CONSERVE | CONSERVATION FUTURES | N/A | N/A | N/A | N/A | | |
| EMS1 | FIRE DIST #1 EMS | N/A | N/A | N/A | N/A | | |
| FD1 | FIRE DIST #1 GENERAL | N/A | N/A | N/A | N/A | | |
| PORTPT | PORT OF PT GENERAL | N/A | N/A | N/A | N/A | | |
| PORTPTIDD | PORT OF PT IDD 2019 | N/A | N/A | N/A | N/A | | |
| PUD1 | PUD #1 GENERAL | N/A | N/A | N/A | N/A | | |
| STATE | STATE SCHOOL PART 1 | N/A | N/A | N/A | N/A | | |
| STATE2 | STATE SCHOOL PART 2 | N/A | N/A | N/A | N/A | | |
| | Total Tax Rate: | N/A | | | | | |
| | | | | Taxes w/Current Exemptions: | N/A | | |
| | | | | Taxes w/o Exemptions: | N/A | | |
Improvement / Building
| Improvement #1: | Residential Bldg | State Code: | 14 | 1185.0 sqft | Value: | $398,160 |
Sketch
| No sketches available for this property. |
Property Image
Land
| 1 | 9338-4113S | | 0.0000 | 0.00 | 0.00 | 0.00 | 1.00 | $231,000 | $0 |
Roll Value History
| 2026 | N/A | N/A | N/A | N/A | N/A |
| 2025 | $398,160 | $231,000 | $0 | $629,160 | $629,160 |
| 2024 | $398,160 | $231,000 | $0 | $629,160 | $629,160 |
| 2023 | $364,980 | $220,000 | $0 | $584,980 | $584,980 |
| 2022 | $354,315 | $220,000 | $0 | $574,315 | $574,315 |
Deed and Sales History
| 1 | 05/02/2019 | SWD | Statutory Warranty Deed | LOWELL W JONS | JOANN L BUSSA | | | $430,000.00 | 132301 | |
| 2 | 09/14/2017 | SWD | Statutory Warranty Deed | DANIEL M BRONSKI & | LOWELL W JONS | | | $390,000.00 | 128575 | |
| 3 | 05/07/2014 | SWD | Statutory Warranty Deed | PORT TOWNSEND ASSOCIATES | DANIEL M BRONSKI & | | | $315,000.00 | 121191 | |
| 4 | 12/27/2012 | SPWD | Special Warranty Deed | CRACKER FACTORY LLC | PORT TOWNSEND ASSOCIATES | | | $820,000.00 | 118588 | |
|   | |
Payout Agreement
| No payout information available.. |