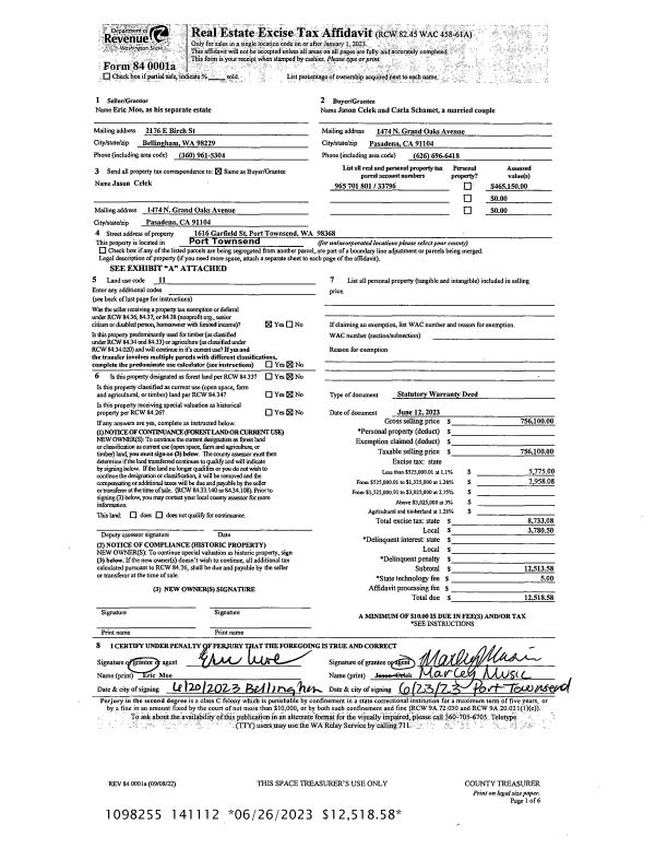
Property
Account |
| Property ID: | 24959 | Abbreviated Legal Description: | BRIDGEHAVEN DIV 5 LOT 7 |
| Parcel # / Geo ID: | 935100034 | Agent Code: | |
| Type: | Real | | |
| Tax Area: | 0213 - 1-49F1E1H2L1 | Land Use Code | 11 |
| Open Space: | N | DFL | N |
| Historic Property: | N | Remodel Property: | N |
| Multi-Family Redevelopment: | N | | |
| Township: | 27N | Section: | 9 |
| Range: | 1E |
Location |
| Address: | 865 THORNDYKE RD PORT LUDLOW, WA 98365 | Mapsco: | 008/022 |
| Neighborhood: | BRIDGEHAVEN (ALL DIVISIONS 1-8) | Map ID: | |
| Neighborhood CD: | 3430 |
Owner |
| Name: | JAMES A COLE | Owner ID: | 106869 |
| Mailing Address: | 865 THORNDYKE RD PORT LUDLOW, WA 98365-9291 | % Ownership: | 100.0000000000% |
| | | Exemptions: | |
Pay Tax Due
Select the appropriate checkbox next to the year to be paid. Multiple years may be selected.
*Convenience Fee not included
Taxes and Assessment Details
Property Tax Information as of
03/10/2026
Click on "Statement Details" to expand or collapse a tax statement.
* Please enter a valid date ** Please enter a valid date *
Statement Details |
| 2026 | 14352 | STATE - STATE LEVY (SCHOOL) | $693.36 | $693.34 | $0.00 | $0.00 | $0.00 | $1386.70 |
| 2026 | 14352 | COUNTY - COUNTY LEVIES (CE, DD, VET, MH) | $277.19 | $277.19 | $0.00 | $0.00 | $0.00 | $554.38 |
| 2026 | 14352 | CONSERVE - CONSERVATION FUTURES | $8.31 | $8.31 | $0.00 | $0.00 | $0.00 | $16.62 |
| 2026 | 14352 | COROADS - COUNTY ROADS (ROADS, DIV TO CE) | $223.62 | $223.62 | $0.00 | $0.00 | $0.00 | $447.24 |
| 2026 | 14352 | PORTPT - PORT DISTRICT | $111.96 | $111.94 | $0.00 | $0.00 | $0.00 | $223.90 |
| 2026 | 14352 | PUD1 - PUD #1 | $18.03 | $18.03 | $0.00 | $0.00 | $0.00 | $36.06 |
| 2026 | 14352 | LIB1 - LIBRARY DIST #1 | $86.52 | $86.51 | $0.00 | $0.00 | $0.00 | $173.03 |
| 2026 | 14352 | HD2 - HOSP DIST #2 | $16.17 | $16.16 | $0.00 | $0.00 | $0.00 | $32.33 |
| 2026 | 14352 | SD49 - SCHOOL DIST #49 | $381.66 | $381.66 | $0.00 | $0.00 | $0.00 | $763.32 |
| 2026 | 14352 | FD1 - FIRE DISTRICT #1 | $367.08 | $367.07 | $0.00 | $0.00 | $0.00 | $734.15 |
| 2026 | 14352 | EMS1 - FIRE DIST #1 EMS | $141.14 | $141.13 | $0.00 | $0.00 | $0.00 | $282.27 |
| 2026 | 14352 | FPLCA - DNR Landowner Contingency Assmt | $3.00 | $3.00 | $0.00 | $0.00 | $0.00 | $6.00 |
| 2026 | 14352 | JCCD - JC Conservation District | $2.55 | $2.55 | $0.00 | $0.00 | $0.00 | $5.10 |
| 2026 | 14352 | NWA - Noxious Weed Assessment | $2.98 | $2.97 | $0.00 | $0.00 | $0.00 | $5.95 |
| 2026 | 14352 | OSS - On Site Septic | $23.10 | $23.10 | $0.00 | $0.00 | $0.00 | $46.20 |
| 2026 | 14352 | WAT - Clean Water District | $13.00 | $13.00 | $0.00 | $0.00 | $0.00 | $26.00 |
| 2026 | 14352 | TOTAL: | $2369.67 | $2369.58 | $0.00 | $0.00 | $0.00 | $4739.25 |
|
| 2026 | 14352 | $2369.67 | $2369.58 | $0.00 | $0.00 | $0.00 | $4739.25 |
Statement Details |
| 2025 | 14400 | STATE - STATE LEVY (SCHOOL) | $692.30 | $692.30 | $0.00 | $0.00 | $1384.60 | $0.00 |
| 2025 | 14400 | COUNTY - COUNTY LEVIES (CE, DD, VET, MH) | $272.25 | $272.24 | $0.00 | $0.00 | $544.49 | $0.00 |
| 2025 | 14400 | CONSERVE - CONSERVATION FUTURES | $8.17 | $8.16 | $0.00 | $0.00 | $16.33 | $0.00 |
| 2025 | 14400 | COROADS - COUNTY ROADS (ROADS, DIV TO CE) | $218.12 | $218.10 | $0.00 | $0.00 | $436.22 | $0.00 |
| 2025 | 14400 | PORTPT - PORT DISTRICT | $111.10 | $111.08 | $0.00 | $0.00 | $222.18 | $0.00 |
| 2025 | 14400 | PUD1 - PUD #1 | $17.82 | $17.81 | $0.00 | $0.00 | $35.63 | $0.00 |
| 2025 | 14400 | LIB1 - LIBRARY DIST #1 | $84.39 | $84.38 | $0.00 | $0.00 | $168.77 | $0.00 |
| 2025 | 14400 | HD2 - HOSP DIST #2 | $15.89 | $15.88 | $0.00 | $0.00 | $31.77 | $0.00 |
| 2025 | 14400 | SD49 - SCHOOL DIST #49 | $371.03 | $371.03 | $0.00 | $0.00 | $742.06 | $0.00 |
| 2025 | 14400 | FD1 - FIRE DISTRICT #1 | $359.26 | $359.25 | $0.00 | $0.00 | $718.51 | $0.00 |
| 2025 | 14400 | EMS1 - FIRE DIST #1 EMS | $138.18 | $138.18 | $0.00 | $0.00 | $276.36 | $0.00 |
| 2025 | 14400 | FP - DNR Forest Fire Protection Assmt | $8.50 | $8.50 | $0.00 | $0.00 | $17.00 | $0.00 |
| 2025 | 14400 | FPLCA - DNR Landowner Contingency Assmt | $3.00 | $3.00 | $0.00 | $0.00 | $6.00 | $0.00 |
| 2025 | 14400 | JCCD - JC Conservation District | $2.55 | $2.55 | $0.00 | $0.00 | $5.10 | $0.00 |
| 2025 | 14400 | NWA - Noxious Weed Assessment | $2.15 | $2.15 | $0.00 | $0.00 | $4.30 | $0.00 |
| 2025 | 14400 | OSS - On Site Septic | $21.50 | $21.50 | $0.00 | $0.00 | $43.00 | $0.00 |
| 2025 | 14400 | WAT - Clean Water District | $13.00 | $13.00 | $0.00 | $0.00 | $26.00 | $0.00 |
| 2025 | 14400 | FP ADMIN - FP ADMIN | $0.50 | $0.00 | $0.00 | $0.00 | $0.50 | $0.00 |
| 2025 | 14400 | TOTAL: | $2339.71 | $2339.11 | $0.00 | $0.00 | $4678.82 | $0.00 |
|
| 2025 | 14400 | $2339.71 | $2339.11 | $0.00 | $0.00 | $4678.82 | $0.00 |
Statement Details |
| 2024 | 14430 | STATE - STATE LEVY (SCHOOL) | $632.35 | $632.35 | $0.00 | $0.00 | $1264.70 | $0.00 |
| 2024 | 14430 | COUNTY - COUNTY LEVIES (CE, DD, VET, MH) | $270.60 | $270.58 | $0.00 | $0.00 | $541.18 | $0.00 |
| 2024 | 14430 | CONSERVE - CONSERVATION FUTURES | $8.12 | $8.11 | $0.00 | $0.00 | $16.23 | $0.00 |
| 2024 | 14430 | COROADS - COUNTY ROADS (ROADS, DIV TO CE) | $217.74 | $217.73 | $0.00 | $0.00 | $435.47 | $0.00 |
| 2024 | 14430 | PORTPT - PORT DISTRICT | $111.77 | $111.76 | $0.00 | $0.00 | $223.53 | $0.00 |
| 2024 | 14430 | PUD1 - PUD #1 | $17.78 | $17.77 | $0.00 | $0.00 | $35.55 | $0.00 |
| 2024 | 14430 | LIB1 - LIBRARY DIST #1 | $84.24 | $84.24 | $0.00 | $0.00 | $168.48 | $0.00 |
| 2024 | 14430 | HD2 - HOSP DIST #2 | $15.79 | $15.79 | $0.00 | $0.00 | $31.58 | $0.00 |
| 2024 | 14430 | SD49 - SCHOOL DIST #49 | $282.38 | $282.37 | $0.00 | $0.00 | $564.75 | $0.00 |
| 2024 | 14430 | FD1 - FIRE DISTRICT #1 | $357.78 | $357.78 | $0.00 | $0.00 | $715.56 | $0.00 |
| 2024 | 14430 | EMS1 - FIRE DIST #1 EMS | $136.66 | $136.66 | $0.00 | $0.00 | $273.32 | $0.00 |
| 2024 | 14430 | FP - DNR Forest Fire Protection Assmt | $8.50 | $8.50 | $0.00 | $0.00 | $17.00 | $0.00 |
| 2024 | 14430 | FPLCA - DNR Landowner Contingency Assmt | $3.00 | $3.00 | $0.00 | $0.00 | $6.00 | $0.00 |
| 2024 | 14430 | JCCD - JC Conservation District | $2.55 | $2.55 | $0.00 | $0.00 | $5.10 | $0.00 |
| 2024 | 14430 | NWA - Noxious Weed Assessment | $2.15 | $2.15 | $0.00 | $0.00 | $4.30 | $0.00 |
| 2024 | 14430 | OSS - On Site Septic | $21.00 | $21.00 | $0.00 | $0.00 | $42.00 | $0.00 |
| 2024 | 14430 | WAT - Clean Water District | $12.50 | $12.50 | $0.00 | $0.00 | $25.00 | $0.00 |
| 2024 | 14430 | FP ADMIN - FP ADMIN | $0.50 | $0.00 | $0.00 | $0.00 | $0.50 | $0.00 |
| 2024 | 14430 | TOTAL: | $2185.41 | $2184.84 | $0.00 | $0.00 | $4370.25 | $0.00 |
|
| 2024 | 14430 | $2185.41 | $2184.84 | $0.00 | $0.00 | $4370.25 | $0.00 |
Statement Details |
| 2023 | 14455 | STATE - STATE LEVY (SCHOOL) | $147.14 | $147.13 | $0.00 | $0.00 | $294.27 | $0.00 |
| 2023 | 14455 | COUNTY - COUNTY LEVIES (CE, DD, VET, MH) | $64.22 | $64.19 | $0.00 | $0.00 | $128.41 | $0.00 |
| 2023 | 14455 | CONSERVE - CONSERVATION FUTURES | $1.93 | $1.92 | $0.00 | $0.00 | $3.85 | $0.00 |
| 2023 | 14455 | COROADS - COUNTY ROADS (ROADS, DIV TO CE) | $51.95 | $51.94 | $0.00 | $0.00 | $103.89 | $0.00 |
| 2023 | 14455 | PORTPT - PORT DISTRICT | $27.05 | $27.05 | $0.00 | $0.00 | $54.10 | $0.00 |
| 2023 | 14455 | PUD1 - PUD #1 | $4.26 | $4.25 | $0.00 | $0.00 | $8.51 | $0.00 |
| 2023 | 14455 | LIB1 - LIBRARY DIST #1 | $20.10 | $20.10 | $0.00 | $0.00 | $40.20 | $0.00 |
| 2023 | 14455 | HD2 - HOSP DIST #2 | $3.75 | $3.75 | $0.00 | $0.00 | $7.50 | $0.00 |
| 2023 | 14455 | SD49 - SCHOOL DIST #49 | $68.78 | $68.77 | $0.00 | $0.00 | $137.55 | $0.00 |
| 2023 | 14455 | FD3 - FIRE DISTRICT #3 | $63.88 | $63.87 | $0.00 | $0.00 | $127.75 | $0.00 |
| 2023 | 14455 | EMS3 - FIRE DIST #3 EMS | $22.84 | $22.83 | $0.00 | $0.00 | $45.67 | $0.00 |
| 2023 | 14455 | FP - DNR Forest Fire Protection Assmt | $8.50 | $8.50 | $0.00 | $0.00 | $17.00 | $0.00 |
| 2023 | 14455 | FPLCA - DNR Landowner Contingency Assmt | $3.00 | $3.00 | $0.00 | $0.00 | $6.00 | $0.00 |
| 2023 | 14455 | JCCD - JC Conservation District | $2.53 | $2.53 | $0.00 | $0.00 | $5.06 | $0.00 |
| 2023 | 14455 | NWA - Noxious Weed Assessment | $2.15 | $2.15 | $0.00 | $0.00 | $4.30 | $0.00 |
| 2023 | 14455 | OSS - On Site Septic | $20.50 | $20.50 | $0.00 | $0.00 | $41.00 | $0.00 |
| 2023 | 14455 | WAT - Clean Water District | $12.00 | $12.00 | $0.00 | $0.00 | $24.00 | $0.00 |
| 2023 | 14455 | FP ADMIN - FP ADMIN | $0.50 | $0.00 | $0.00 | $0.00 | $0.50 | $0.00 |
| 2023 | 14455 | TOTAL: | $525.08 | $524.48 | $0.00 | $0.00 | $1049.56 | $0.00 |
|
| 2023 | 14455 | $525.08 | $524.48 | $0.00 | $0.00 | $1049.56 | $0.00 |
Values
| (+) Improvement Homesite Value: | + | $0 | |
| (+) Improvement Non-Homesite Value: | + | $438,150 | |
| (+) Land Homesite Value: | + | $0 | |
| (+) Land Non-Homesite Value: | + | $165,000 | |
| (+) Curr Use (HS): | + | $0 | $0 |
| (+) Curr Use (NHS): | + | $0 | $0 |
| | | -------------------------- | |
| (=) Market Value: | = | $603,150 | |
| (–) Productivity Loss: | – | $0 | |
| | | -------------------------- | |
| (=) Subtotal: | = | $603,150 | |
| (+) Senior Appraised Value: | + | $0 | |
| (+) Non-Senior Appraised Value: | + | $603,150 | |
| | | -------------------------- | |
| (=) Total Appraised Value: | = | $603,150 | |
| (–) Senior Exemption Loss: | – | $0 | |
| (–) Exemption Loss: | – | $0 | |
| | | -------------------------- | |
| (=) Taxable Value: | = | $603,150 | |
Taxing Jurisdiction
| Owner: | JAMES A COLE | | |
| % Ownership: | 100.0000000000% | | |
| Total Value: | $603,150 | | |
| Tax Area: | 0213 - 1-49F1E1H2L1 |
| CE | COUNTY CURRENT EXPENSE | 0.9034619479 | $603,150 | $603,150 | $544.92 | | |
| CNTYDD | DEVELOPMENTAL DISABILITIES | 0.0052121823 | $603,150 | $603,150 | $3.14 | | |
| CNTYVET | VETERANS RELIEF | 0.0052777810 | $603,150 | $603,150 | $3.18 | | |
| MENTAL | MENTAL HEALTH | 0.0052121823 | $603,150 | $603,150 | $3.14 | | |
| ROADS | COUNTY ROADS | 0.7415066410 | $603,150 | $603,150 | $447.24 | | |
| ROADSCU | COUNTY ROADS TO CUR EXP | 0.0000000000 | $603,150 | $603,150 | $0.00 | | |
| HOSP2CASH | HOSP DIST #2 GENERAL | 0.0536075306 | $603,150 | $603,150 | $32.33 | | |
| SCH49CP | SCHOOL DIST #49 CAP PROJ | 0.6279093905 | $603,150 | $603,150 | $378.72 | | |
| SCH49MO | SCHOOL DIST #49 EP & O | 0.6376483602 | $603,150 | $603,150 | $384.60 | | |
| CONSERVE | CONSERVATION FUTURES | 0.0275621078 | $603,150 | $603,150 | $16.62 | | |
| EMS1 | FIRE DIST #1 EMS | 0.4679948282 | $603,150 | $603,150 | $282.27 | | |
| FD1 | FIRE DIST #1 GENERAL | 1.2171942929 | $603,150 | $603,150 | $734.15 | | |
| LIB1 | LIBRARY DIST #1 GENERAL | 0.2868827388 | $603,150 | $603,150 | $173.03 | | |
| PORTPT | PORT OF PT GENERAL | 0.1134941229 | $603,150 | $603,150 | $68.45 | | |
| PORTPTIDD | PORT OF PT IDD 2019 | 0.2577346692 | $603,150 | $603,150 | $155.45 | | |
| PUD1 | PUD #1 GENERAL | 0.0597888892 | $603,150 | $603,150 | $36.06 | | |
| STATE | STATE SCHOOL PART 1 | 1.4940692947 | $603,150 | $603,150 | $901.15 | | |
| STATE2 | STATE SCHOOL PART 2 | 0.8050170049 | $603,150 | $603,150 | $485.55 | | |
| | Total Tax Rate: | 7.7095739644 | | | | | |
| | | | | Taxes w/Current Exemptions: | $4,650.00 | | |
| | | | | Taxes w/o Exemptions: | $4,650.00 | | |
Improvement / Building
| Improvement #1: | Residential Bldg | State Code: | 11 | 1646.0 sqft | Value: | $438,150 |
| Bathrooms (#): | 2 (FULL) | Bedrooms (#): | 3 | | Exterior Wall: | SI/ST | Floor Construction: | FRAME | | Foundation: | CONPR | Heating/Cooling: | HPUMP | | Interior Finish: | FIN | Roof Cover: | COMP |
|
| | Type | Description | Class CD | Sub Class CD | Year Built | Area |
| | MA | Main Area | 4+ | 2S | 2022 | 676.0 |
| | MA2 | Second Floor Main Area | 4 | 2S | 2022 | 970.0 |
| | GBLTIN | Builtin Garage | 4 | 2S | 2022 | 286.0 |
| | HWPOR | House Wood Porch | 4 | 2S | 2022 | 112.0 |
| | HDECK | House Deck | 4 | 2S | 2022 | 176.0 |
Sketch
Property Image
Land
| 1 | 3430-1143L | | 0.0000 | 0.00 | 0.00 | 0.00 | 1.00 | $165,000 | $0 |
Roll Value History
| 2026 | N/A | N/A | N/A | N/A | N/A |
| 2025 | $438,150 | $165,000 | $0 | $603,150 | $603,150 |
| 2024 | $419,894 | $157,500 | $0 | $577,394 | $577,394 |
| 2023 | $401,638 | $145,000 | $0 | $546,638 | $546,638 |
| 2022 | $0 | $125,000 | $0 | $125,000 | $125,000 |
Deed and Sales History
| 1 | 04/27/2022 | QCD | Quit Claim Deed | VIRGINIA BARNHILL | JAMES A COLE | | | $12,000.00 | 139003 | |
| 2 | 11/10/2020 | SWD | Statutory Warranty Deed | KATHY MCGOUGH | JAMES A COLE | | | $119,000.00 | 135562 | |
| 3 | 04/24/2018 | SWD | Statutory Warranty Deed | STEVEN R HARGROVE TRSTEE | KATHY MCGOUGH | | | $94,500.00 | 130026 | |
| 4 | 02/19/2007 | QCD | Quit Claim Deed | HARGROVE, STEVEN R/GLORIA | HARGROVE, STEVEN R/GLORIA F TR | | | $0.00 | 108919 | 0 |
| 5 | 07/16/2003 | SWD | Statutory Warranty Deed | BENN, EDMUND B/ESTATE | HARGROVE, STEVEN/GLORIA | 0 | 0 | $217,500.00 | 97828 | 0 |
|   | |
| 6 | 10/10/2002 | WD | Warranty Deed | BENN, EDMUND B, PERSONAL | BENN, EDMUND B | 0 | 0 | $0.00 | 95749 | 0 |
| 7 | 06/01/1995 | QCD | Quit Claim Deed | BENN, EDMUND B/ANITIA M | BENN, EDMUND & ANITIA/JTWROS | 0 | 0 | $0.00 | 77040 | 0 |
Payout Agreement
| No payout information available.. |