Property
Account |
| Property ID: | 24960 | Abbreviated Legal Description: | BRIDGEHAVEN DIV 6 LOT 1 |
| Parcel # / Geo ID: | 935400001 | Agent Code: | |
| Type: | Real | | |
| Tax Area: | 0213 - 1-49F1E1H2L1 | Land Use Code | 91 |
| Open Space: | N | DFL | N |
| Historic Property: | N | Remodel Property: | N |
| Multi-Family Redevelopment: | N | | |
| Township: | 27N | Section: | 9 |
| Range: | 1E |
Location |
| Address: | 60 FINCH LN PORT LUDLOW, WA 98365 | Mapsco: | 009/001 |
| Neighborhood: | BRIDGEHAVEN (ALL DIVISIONS 1-8) | Map ID: | |
| Neighborhood CD: | 3430 |
Owner |
| Name: | WAYNE & MARITES BECK | Owner ID: | 107764 |
| Mailing Address: | 14527 SE 234TH PL KENT, WA 98042-3833 | % Ownership: | 100.0000000000% |
| | | Exemptions: | |
Pay Tax Due
Select the appropriate checkbox next to the year to be paid. Multiple years may be selected.
*Convenience Fee not included
Taxes and Assessment Details
Property Tax Information as of
03/13/2026
Click on "Statement Details" to expand or collapse a tax statement.
* Please enter a valid date ** Please enter a valid date *
Statement Details |
| 2026 | 14353 | STATE - STATE LEVY (SCHOOL) | $50.58 | $50.58 | $0.00 | $0.00 | $0.00 | $101.16 |
| 2026 | 14353 | COUNTY - COUNTY LEVIES (CE, DD, VET, MH) | $20.24 | $20.20 | $0.00 | $0.00 | $0.00 | $40.44 |
| 2026 | 14353 | CONSERVE - CONSERVATION FUTURES | $0.61 | $0.60 | $0.00 | $0.00 | $0.00 | $1.21 |
| 2026 | 14353 | COROADS - COUNTY ROADS (ROADS, DIV TO CE) | $16.32 | $16.31 | $0.00 | $0.00 | $0.00 | $32.63 |
| 2026 | 14353 | PORTPT - PORT DISTRICT | $8.17 | $8.16 | $0.00 | $0.00 | $0.00 | $16.33 |
| 2026 | 14353 | PUD1 - PUD #1 | $1.32 | $1.31 | $0.00 | $0.00 | $0.00 | $2.63 |
| 2026 | 14353 | LIB1 - LIBRARY DIST #1 | $6.31 | $6.31 | $0.00 | $0.00 | $0.00 | $12.62 |
| 2026 | 14353 | HD2 - HOSP DIST #2 | $1.18 | $1.18 | $0.00 | $0.00 | $0.00 | $2.36 |
| 2026 | 14353 | SD49 - SCHOOL DIST #49 | $27.85 | $27.84 | $0.00 | $0.00 | $0.00 | $55.69 |
| 2026 | 14353 | FD1 - FIRE DISTRICT #1 | $26.78 | $26.78 | $0.00 | $0.00 | $0.00 | $53.56 |
| 2026 | 14353 | EMS1 - FIRE DIST #1 EMS | $10.30 | $10.29 | $0.00 | $0.00 | $0.00 | $20.59 |
| 2026 | 14353 | FP - DNR Forest Fire Protection Assmt | $8.50 | $8.50 | $0.00 | $0.00 | $0.00 | $17.00 |
| 2026 | 14353 | FPLCA - DNR Landowner Contingency Assmt | $3.00 | $3.00 | $0.00 | $0.00 | $0.00 | $6.00 |
| 2026 | 14353 | JCCD - JC Conservation District | $2.53 | $2.53 | $0.00 | $0.00 | $0.00 | $5.06 |
| 2026 | 14353 | NWA - Noxious Weed Assessment | $2.98 | $2.97 | $0.00 | $0.00 | $0.00 | $5.95 |
| 2026 | 14353 | WAT - Clean Water District | $13.00 | $13.00 | $0.00 | $0.00 | $0.00 | $26.00 |
| 2026 | 14353 | FP ADMIN - FP ADMIN | $0.50 | $0.00 | $0.00 | $0.00 | $0.00 | $0.50 |
| 2026 | 14353 | TOTAL: | $200.17 | $199.56 | $0.00 | $0.00 | $0.00 | $399.73 |
|
| 2026 | 14353 | $200.17 | $199.56 | $0.00 | $0.00 | $0.00 | $399.73 |
Statement Details |
| 2025 | 14401 | STATE - STATE LEVY (SCHOOL) | $50.36 | $50.36 | $0.00 | $0.00 | $100.72 | $0.00 |
| 2025 | 14401 | COUNTY - COUNTY LEVIES (CE, DD, VET, MH) | $19.81 | $19.79 | $0.00 | $0.00 | $39.60 | $0.00 |
| 2025 | 14401 | CONSERVE - CONSERVATION FUTURES | $0.60 | $0.59 | $0.00 | $0.00 | $1.19 | $0.00 |
| 2025 | 14401 | COROADS - COUNTY ROADS (ROADS, DIV TO CE) | $15.87 | $15.86 | $0.00 | $0.00 | $31.73 | $0.00 |
| 2025 | 14401 | PORTPT - PORT DISTRICT | $8.09 | $8.07 | $0.00 | $0.00 | $16.16 | $0.00 |
| 2025 | 14401 | PUD1 - PUD #1 | $1.30 | $1.29 | $0.00 | $0.00 | $2.59 | $0.00 |
| 2025 | 14401 | LIB1 - LIBRARY DIST #1 | $6.14 | $6.14 | $0.00 | $0.00 | $12.28 | $0.00 |
| 2025 | 14401 | HD2 - HOSP DIST #2 | $1.16 | $1.15 | $0.00 | $0.00 | $2.31 | $0.00 |
| 2025 | 14401 | SD49 - SCHOOL DIST #49 | $27.00 | $26.98 | $0.00 | $0.00 | $53.98 | $0.00 |
| 2025 | 14401 | FD1 - FIRE DISTRICT #1 | $26.13 | $26.13 | $0.00 | $0.00 | $52.26 | $0.00 |
| 2025 | 14401 | EMS1 - FIRE DIST #1 EMS | $10.05 | $10.05 | $0.00 | $0.00 | $20.10 | $0.00 |
| 2025 | 14401 | FP - DNR Forest Fire Protection Assmt | $8.50 | $8.50 | $0.00 | $0.00 | $17.00 | $0.00 |
| 2025 | 14401 | FPLCA - DNR Landowner Contingency Assmt | $3.00 | $3.00 | $0.00 | $0.00 | $6.00 | $0.00 |
| 2025 | 14401 | JCCD - JC Conservation District | $2.53 | $2.53 | $0.00 | $0.00 | $5.06 | $0.00 |
| 2025 | 14401 | NWA - Noxious Weed Assessment | $2.15 | $2.15 | $0.00 | $0.00 | $4.30 | $0.00 |
| 2025 | 14401 | WAT - Clean Water District | $13.00 | $13.00 | $0.00 | $0.00 | $26.00 | $0.00 |
| 2025 | 14401 | FP ADMIN - FP ADMIN | $0.50 | $0.00 | $0.00 | $0.00 | $0.50 | $0.00 |
| 2025 | 14401 | TOTAL: | $196.19 | $195.59 | $0.00 | $0.00 | $391.78 | $0.00 |
|
| 2025 | 14401 | $196.19 | $195.59 | $0.00 | $0.00 | $391.78 | $0.00 |
Statement Details |
| 2024 | 14431 | STATE - STATE LEVY (SCHOOL) | $46.28 | $46.26 | $0.00 | $0.00 | $92.54 | $0.00 |
| 2024 | 14431 | COUNTY - COUNTY LEVIES (CE, DD, VET, MH) | $19.81 | $19.79 | $0.00 | $0.00 | $39.60 | $0.00 |
| 2024 | 14431 | CONSERVE - CONSERVATION FUTURES | $0.60 | $0.59 | $0.00 | $0.00 | $1.19 | $0.00 |
| 2024 | 14431 | COROADS - COUNTY ROADS (ROADS, DIV TO CE) | $15.94 | $15.93 | $0.00 | $0.00 | $31.87 | $0.00 |
| 2024 | 14431 | PORTPT - PORT DISTRICT | $8.19 | $8.17 | $0.00 | $0.00 | $16.36 | $0.00 |
| 2024 | 14431 | PUD1 - PUD #1 | $1.30 | $1.30 | $0.00 | $0.00 | $2.60 | $0.00 |
| 2024 | 14431 | LIB1 - LIBRARY DIST #1 | $6.17 | $6.16 | $0.00 | $0.00 | $12.33 | $0.00 |
| 2024 | 14431 | HD2 - HOSP DIST #2 | $1.16 | $1.15 | $0.00 | $0.00 | $2.31 | $0.00 |
| 2024 | 14431 | SD49 - SCHOOL DIST #49 | $20.67 | $20.66 | $0.00 | $0.00 | $41.33 | $0.00 |
| 2024 | 14431 | FD1 - FIRE DISTRICT #1 | $26.18 | $26.18 | $0.00 | $0.00 | $52.36 | $0.00 |
| 2024 | 14431 | EMS1 - FIRE DIST #1 EMS | $10.00 | $10.00 | $0.00 | $0.00 | $20.00 | $0.00 |
| 2024 | 14431 | FP - DNR Forest Fire Protection Assmt | $8.50 | $8.50 | $0.00 | $0.00 | $17.00 | $0.00 |
| 2024 | 14431 | FPLCA - DNR Landowner Contingency Assmt | $3.00 | $3.00 | $0.00 | $0.00 | $6.00 | $0.00 |
| 2024 | 14431 | JCCD - JC Conservation District | $2.53 | $2.53 | $0.00 | $0.00 | $5.06 | $0.00 |
| 2024 | 14431 | NWA - Noxious Weed Assessment | $2.15 | $2.15 | $0.00 | $0.00 | $4.30 | $0.00 |
| 2024 | 14431 | WAT - Clean Water District | $12.50 | $12.50 | $0.00 | $0.00 | $25.00 | $0.00 |
| 2024 | 14431 | FP ADMIN - FP ADMIN | $0.50 | $0.00 | $0.00 | $0.00 | $0.50 | $0.00 |
| 2024 | 14431 | TOTAL: | $185.48 | $184.87 | $0.00 | $0.00 | $370.35 | $0.00 |
|
| 2024 | 14431 | $185.48 | $184.87 | $0.00 | $0.00 | $370.35 | $0.00 |
Statement Details |
| 2023 | 14456 | STATE - STATE LEVY (SCHOOL) | $23.55 | $23.54 | $0.00 | $0.00 | $47.09 | $0.00 |
| 2023 | 14456 | COUNTY - COUNTY LEVIES (CE, DD, VET, MH) | $10.28 | $10.27 | $0.00 | $0.00 | $20.55 | $0.00 |
| 2023 | 14456 | CONSERVE - CONSERVATION FUTURES | $0.31 | $0.31 | $0.00 | $0.00 | $0.62 | $0.00 |
| 2023 | 14456 | COROADS - COUNTY ROADS (ROADS, DIV TO CE) | $8.31 | $8.31 | $0.00 | $0.00 | $16.62 | $0.00 |
| 2023 | 14456 | PORTPT - PORT DISTRICT | $4.33 | $4.33 | $0.00 | $0.00 | $8.66 | $0.00 |
| 2023 | 14456 | PUD1 - PUD #1 | $0.68 | $0.68 | $0.00 | $0.00 | $1.36 | $0.00 |
| 2023 | 14456 | LIB1 - LIBRARY DIST #1 | $3.22 | $3.21 | $0.00 | $0.00 | $6.43 | $0.00 |
| 2023 | 14456 | HD2 - HOSP DIST #2 | $0.60 | $0.60 | $0.00 | $0.00 | $1.20 | $0.00 |
| 2023 | 14456 | SD49 - SCHOOL DIST #49 | $11.01 | $11.00 | $0.00 | $0.00 | $22.01 | $0.00 |
| 2023 | 14456 | FD3 - FIRE DISTRICT #3 | $10.22 | $10.22 | $0.00 | $0.00 | $20.44 | $0.00 |
| 2023 | 14456 | EMS3 - FIRE DIST #3 EMS | $3.66 | $3.65 | $0.00 | $0.00 | $7.31 | $0.00 |
| 2023 | 14456 | FP - DNR Forest Fire Protection Assmt | $8.50 | $8.50 | $0.00 | $0.00 | $17.00 | $0.00 |
| 2023 | 14456 | FPLCA - DNR Landowner Contingency Assmt | $3.00 | $3.00 | $0.00 | $0.00 | $6.00 | $0.00 |
| 2023 | 14456 | JCCD - JC Conservation District | $2.53 | $2.53 | $0.00 | $0.00 | $5.06 | $0.00 |
| 2023 | 14456 | NWA - Noxious Weed Assessment | $2.15 | $2.15 | $0.00 | $0.00 | $4.30 | $0.00 |
| 2023 | 14456 | WAT - Clean Water District | $12.00 | $12.00 | $0.00 | $0.00 | $24.00 | $0.00 |
| 2023 | 14456 | FP ADMIN - FP ADMIN | $0.50 | $0.00 | $0.00 | $0.00 | $0.50 | $0.00 |
| 2023 | 14456 | TOTAL: | $104.85 | $104.30 | $0.00 | $0.00 | $209.15 | $0.00 |
|
| 2023 | 14456 | $104.85 | $104.30 | $0.00 | $0.00 | $209.15 | $0.00 |
Values
| (+) Improvement Homesite Value: | + | $0 | |
| (+) Improvement Non-Homesite Value: | + | $0 | |
| (+) Land Homesite Value: | + | $0 | |
| (+) Land Non-Homesite Value: | + | $44,000 | |
| (+) Curr Use (HS): | + | $0 | $0 |
| (+) Curr Use (NHS): | + | $0 | $0 |
| | | -------------------------- | |
| (=) Market Value: | = | $44,000 | |
| (–) Productivity Loss: | – | $0 | |
| | | -------------------------- | |
| (=) Subtotal: | = | $44,000 | |
| (+) Senior Appraised Value: | + | $0 | |
| (+) Non-Senior Appraised Value: | + | $44,000 | |
| | | -------------------------- | |
| (=) Total Appraised Value: | = | $44,000 | |
| (–) Senior Exemption Loss: | – | $0 | |
| (–) Exemption Loss: | – | $0 | |
| | | -------------------------- | |
| (=) Taxable Value: | = | $44,000 | |
Taxing Jurisdiction
| Owner: | WAYNE & MARITES BECK | | |
| % Ownership: | 100.0000000000% | | |
| Total Value: | $44,000 | | |
| Tax Area: | 0213 - 1-49F1E1H2L1 |
| CE | COUNTY CURRENT EXPENSE | 0.9034619479 | $44,000 | $44,000 | $39.75 | | |
| CNTYDD | DEVELOPMENTAL DISABILITIES | 0.0052121823 | $44,000 | $44,000 | $0.23 | | |
| CNTYVET | VETERANS RELIEF | 0.0052777810 | $44,000 | $44,000 | $0.23 | | |
| MENTAL | MENTAL HEALTH | 0.0052121823 | $44,000 | $44,000 | $0.23 | | |
| ROADS | COUNTY ROADS | 0.7415066410 | $44,000 | $44,000 | $32.63 | | |
| ROADSCU | COUNTY ROADS TO CUR EXP | 0.0000000000 | $44,000 | $44,000 | $0.00 | | |
| HOSP2CASH | HOSP DIST #2 GENERAL | 0.0536075306 | $44,000 | $44,000 | $2.36 | | |
| SCH49CP | SCHOOL DIST #49 CAP PROJ | 0.6279093905 | $44,000 | $44,000 | $27.63 | | |
| SCH49MO | SCHOOL DIST #49 EP & O | 0.6376483602 | $44,000 | $44,000 | $28.06 | | |
| CONSERVE | CONSERVATION FUTURES | 0.0275621078 | $44,000 | $44,000 | $1.21 | | |
| EMS1 | FIRE DIST #1 EMS | 0.4679948282 | $44,000 | $44,000 | $20.59 | | |
| FD1 | FIRE DIST #1 GENERAL | 1.2171942929 | $44,000 | $44,000 | $53.56 | | |
| LIB1 | LIBRARY DIST #1 GENERAL | 0.2868827388 | $44,000 | $44,000 | $12.62 | | |
| PORTPT | PORT OF PT GENERAL | 0.1134941229 | $44,000 | $44,000 | $4.99 | | |
| PORTPTIDD | PORT OF PT IDD 2019 | 0.2577346692 | $44,000 | $44,000 | $11.34 | | |
| PUD1 | PUD #1 GENERAL | 0.0597888892 | $44,000 | $44,000 | $2.63 | | |
| STATE | STATE SCHOOL PART 1 | 1.4940692947 | $44,000 | $44,000 | $65.74 | | |
| STATE2 | STATE SCHOOL PART 2 | 0.8050170049 | $44,000 | $44,000 | $35.42 | | |
| | Total Tax Rate: | 7.7095739644 | | | | | |
| | | | | Taxes w/Current Exemptions: | $339.22 | | |
| | | | | Taxes w/o Exemptions: | $339.22 | | |
Improvement / Building
Sketch
| No sketches available for this property. |
Property Image
Land
| 1 | 3430-1145L | | 0.0000 | 0.00 | 0.00 | 0.00 | 1.00 | $44,000 | $0 |
Roll Value History
| 2026 | N/A | N/A | N/A | N/A | N/A |
| 2025 | $0 | $44,000 | $0 | $44,000 | $44,000 |
| 2024 | $0 | $42,000 | $0 | $42,000 | $42,000 |
| 2023 | $0 | $40,000 | $0 | $40,000 | $40,000 |
| 2022 | $0 | $20,000 | $0 | $20,000 | $20,000 |
Deed and Sales History
| 1 | 09/27/2022 | SWD | Statutory Warranty Deed | MICHAEL C DEER TRUST | WAYNE & MARITES BECK | | | $58,000.00 | 139911 | |
| 2 | 05/28/2020 | QCD | Quit Claim Deed | MICHAEL C DEER FAMILY TRUST 1 | MICHAEL C DEER TRUST | | | | 134429 | |
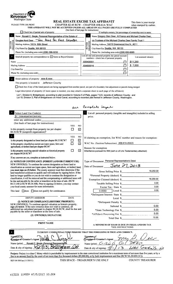
| 3 | 06/27/2013 | PRD | Personal Representatives Deed | | MICHAEL C DEER FAMILY TRUST 1 | | | | 119559 | |
Payout Agreement
| No payout information available.. |