Property
Account |
| Property ID: | 24999 | Abbreviated Legal Description: | BRIDGEHAVEN DIV 7 7 & TL TAX A32 |
| Parcel # / Geo ID: | 935700007 | Agent Code: | |
| Type: | Real | | |
| Tax Area: | 0213 - 1-49F1E1H2L1 | Land Use Code | 11 |
| Open Space: | N | DFL | N |
| Historic Property: | N | Remodel Property: | N |
| Multi-Family Redevelopment: | N | | |
| Township: | 27N | Section: | 16 |
| Range: | 1E |
Location |
| Address: | 170 N BEACH DR PORT LUDLOW, WA 98365 | Mapsco: | 009/041 |
| Neighborhood: | BRIDGEHAVEN (ALL DIVISIONS 1-8) | Map ID: | |
| Neighborhood CD: | 3430 |
Owner |
| Name: | JOAN I FLOOD | Owner ID: | 100570 |
| Mailing Address: | 5007 ERSKINE WAY SW SEATTLE, WA 98136-1137 | % Ownership: | 100.0000000000% |
| | | Exemptions: | |
Pay Tax Due
Select the appropriate checkbox next to the year to be paid. Multiple years may be selected.
*Convenience Fee not included
Taxes and Assessment Details
Property Tax Information as of
03/10/2026
Click on "Statement Details" to expand or collapse a tax statement.
* Please enter a valid date ** Please enter a valid date *
Statement Details |
| 2026 | 14392 | STATE - STATE LEVY (SCHOOL) | $535.98 | $535.97 | $0.00 | $0.00 | $0.00 | $1071.95 |
| 2026 | 14392 | COUNTY - COUNTY LEVIES (CE, DD, VET, MH) | $214.29 | $214.27 | $0.00 | $0.00 | $0.00 | $428.56 |
| 2026 | 14392 | CONSERVE - CONSERVATION FUTURES | $6.43 | $6.42 | $0.00 | $0.00 | $0.00 | $12.85 |
| 2026 | 14392 | COROADS - COUNTY ROADS (ROADS, DIV TO CE) | $172.87 | $172.86 | $0.00 | $0.00 | $0.00 | $345.73 |
| 2026 | 14392 | PORTPT - PORT DISTRICT | $86.55 | $86.54 | $0.00 | $0.00 | $0.00 | $173.09 |
| 2026 | 14392 | PUD1 - PUD #1 | $13.94 | $13.94 | $0.00 | $0.00 | $0.00 | $27.88 |
| 2026 | 14392 | LIB1 - LIBRARY DIST #1 | $66.88 | $66.88 | $0.00 | $0.00 | $0.00 | $133.76 |
| 2026 | 14392 | HD2 - HOSP DIST #2 | $12.50 | $12.49 | $0.00 | $0.00 | $0.00 | $24.99 |
| 2026 | 14392 | SD49 - SCHOOL DIST #49 | $295.03 | $295.03 | $0.00 | $0.00 | $0.00 | $590.06 |
| 2026 | 14392 | FD1 - FIRE DISTRICT #1 | $283.76 | $283.76 | $0.00 | $0.00 | $0.00 | $567.52 |
| 2026 | 14392 | EMS1 - FIRE DIST #1 EMS | $109.10 | $109.10 | $0.00 | $0.00 | $0.00 | $218.20 |
| 2026 | 14392 | JCCD - JC Conservation District | $2.55 | $2.55 | $0.00 | $0.00 | $0.00 | $5.10 |
| 2026 | 14392 | NWA - Noxious Weed Assessment | $2.98 | $2.97 | $0.00 | $0.00 | $0.00 | $5.95 |
| 2026 | 14392 | OSS - On Site Septic | $23.10 | $23.10 | $0.00 | $0.00 | $0.00 | $46.20 |
| 2026 | 14392 | WAT - Clean Water District | $13.00 | $13.00 | $0.00 | $0.00 | $0.00 | $26.00 |
| 2026 | 14392 | TOTAL: | $1838.96 | $1838.88 | $0.00 | $0.00 | $0.00 | $3677.84 |
|
| 2026 | 14392 | $1838.96 | $1838.88 | $0.00 | $0.00 | $0.00 | $3677.84 |
Statement Details |
| 2025 | 14440 | STATE - STATE LEVY (SCHOOL) | $534.34 | $534.34 | $0.00 | $0.00 | $1068.68 | $0.00 |
| 2025 | 14440 | COUNTY - COUNTY LEVIES (CE, DD, VET, MH) | $210.14 | $210.12 | $0.00 | $0.00 | $420.26 | $0.00 |
| 2025 | 14440 | CONSERVE - CONSERVATION FUTURES | $6.30 | $6.30 | $0.00 | $0.00 | $12.60 | $0.00 |
| 2025 | 14440 | COROADS - COUNTY ROADS (ROADS, DIV TO CE) | $168.35 | $168.34 | $0.00 | $0.00 | $336.69 | $0.00 |
| 2025 | 14440 | PORTPT - PORT DISTRICT | $85.75 | $85.74 | $0.00 | $0.00 | $171.49 | $0.00 |
| 2025 | 14440 | PUD1 - PUD #1 | $13.75 | $13.75 | $0.00 | $0.00 | $27.50 | $0.00 |
| 2025 | 14440 | LIB1 - LIBRARY DIST #1 | $65.13 | $65.13 | $0.00 | $0.00 | $130.26 | $0.00 |
| 2025 | 14440 | HD2 - HOSP DIST #2 | $12.26 | $12.26 | $0.00 | $0.00 | $24.52 | $0.00 |
| 2025 | 14440 | SD49 - SCHOOL DIST #49 | $286.38 | $286.37 | $0.00 | $0.00 | $572.75 | $0.00 |
| 2025 | 14440 | FD1 - FIRE DISTRICT #1 | $277.29 | $277.28 | $0.00 | $0.00 | $554.57 | $0.00 |
| 2025 | 14440 | EMS1 - FIRE DIST #1 EMS | $106.65 | $106.65 | $0.00 | $0.00 | $213.30 | $0.00 |
| 2025 | 14440 | JCCD - JC Conservation District | $2.55 | $2.55 | $0.00 | $0.00 | $5.10 | $0.00 |
| 2025 | 14440 | NWA - Noxious Weed Assessment | $2.15 | $2.15 | $0.00 | $0.00 | $4.30 | $0.00 |
| 2025 | 14440 | OSS - On Site Septic | $21.50 | $21.50 | $0.00 | $0.00 | $43.00 | $0.00 |
| 2025 | 14440 | WAT - Clean Water District | $13.00 | $13.00 | $0.00 | $0.00 | $26.00 | $0.00 |
| 2025 | 14440 | TOTAL: | $1805.54 | $1805.48 | $0.00 | $0.00 | $3611.02 | $0.00 |
|
| 2025 | 14440 | $1805.54 | $1805.48 | $0.00 | $0.00 | $3611.02 | $0.00 |
Statement Details |
| 2024 | 14470 | STATE - STATE LEVY (SCHOOL) | $485.91 | $485.91 | $0.00 | $0.00 | $971.82 | $0.00 |
| 2024 | 14470 | COUNTY - COUNTY LEVIES (CE, DD, VET, MH) | $207.94 | $207.92 | $0.00 | $0.00 | $415.86 | $0.00 |
| 2024 | 14470 | CONSERVE - CONSERVATION FUTURES | $6.24 | $6.23 | $0.00 | $0.00 | $12.47 | $0.00 |
| 2024 | 14470 | COROADS - COUNTY ROADS (ROADS, DIV TO CE) | $167.31 | $167.31 | $0.00 | $0.00 | $334.62 | $0.00 |
| 2024 | 14470 | PORTPT - PORT DISTRICT | $85.89 | $85.88 | $0.00 | $0.00 | $171.77 | $0.00 |
| 2024 | 14470 | PUD1 - PUD #1 | $13.66 | $13.65 | $0.00 | $0.00 | $27.31 | $0.00 |
| 2024 | 14470 | LIB1 - LIBRARY DIST #1 | $64.73 | $64.73 | $0.00 | $0.00 | $129.46 | $0.00 |
| 2024 | 14470 | HD2 - HOSP DIST #2 | $12.13 | $12.13 | $0.00 | $0.00 | $24.26 | $0.00 |
| 2024 | 14470 | SD49 - SCHOOL DIST #49 | $216.99 | $216.98 | $0.00 | $0.00 | $433.97 | $0.00 |
| 2024 | 14470 | FD1 - FIRE DISTRICT #1 | $274.93 | $274.93 | $0.00 | $0.00 | $549.86 | $0.00 |
| 2024 | 14470 | EMS1 - FIRE DIST #1 EMS | $105.02 | $105.01 | $0.00 | $0.00 | $210.03 | $0.00 |
| 2024 | 14470 | JCCD - JC Conservation District | $2.55 | $2.55 | $0.00 | $0.00 | $5.10 | $0.00 |
| 2024 | 14470 | NWA - Noxious Weed Assessment | $2.15 | $2.15 | $0.00 | $0.00 | $4.30 | $0.00 |
| 2024 | 14470 | OSS - On Site Septic | $21.00 | $21.00 | $0.00 | $0.00 | $42.00 | $0.00 |
| 2024 | 14470 | WAT - Clean Water District | $12.50 | $12.50 | $0.00 | $0.00 | $25.00 | $0.00 |
| 2024 | 14470 | TOTAL: | $1678.95 | $1678.88 | $0.00 | $0.00 | $3357.83 | $0.00 |
|
| 2024 | 14470 | $1678.95 | $1678.88 | $0.00 | $0.00 | $3357.83 | $0.00 |
Statement Details |
| 2023 | 14495 | STATE - STATE LEVY (SCHOOL) | $480.88 | $480.86 | $0.00 | $0.00 | $961.74 | $0.00 |
| 2023 | 14495 | COUNTY - COUNTY LEVIES (CE, DD, VET, MH) | $209.84 | $209.82 | $0.00 | $0.00 | $419.66 | $0.00 |
| 2023 | 14495 | CONSERVE - CONSERVATION FUTURES | $6.29 | $6.29 | $0.00 | $0.00 | $12.58 | $0.00 |
| 2023 | 14495 | COROADS - COUNTY ROADS (ROADS, DIV TO CE) | $169.78 | $169.76 | $0.00 | $0.00 | $339.54 | $0.00 |
| 2023 | 14495 | PORTPT - PORT DISTRICT | $88.40 | $88.39 | $0.00 | $0.00 | $176.79 | $0.00 |
| 2023 | 14495 | PUD1 - PUD #1 | $13.91 | $13.91 | $0.00 | $0.00 | $27.82 | $0.00 |
| 2023 | 14495 | LIB1 - LIBRARY DIST #1 | $65.69 | $65.68 | $0.00 | $0.00 | $131.37 | $0.00 |
| 2023 | 14495 | HD2 - HOSP DIST #2 | $12.25 | $12.24 | $0.00 | $0.00 | $24.49 | $0.00 |
| 2023 | 14495 | SD49 - SCHOOL DIST #49 | $224.79 | $224.77 | $0.00 | $0.00 | $449.56 | $0.00 |
| 2023 | 14495 | FD3 - FIRE DISTRICT #3 | $208.76 | $208.75 | $0.00 | $0.00 | $417.51 | $0.00 |
| 2023 | 14495 | EMS3 - FIRE DIST #3 EMS | $74.63 | $74.63 | $0.00 | $0.00 | $149.26 | $0.00 |
| 2023 | 14495 | JCCD - JC Conservation District | $2.55 | $2.55 | $0.00 | $0.00 | $5.10 | $0.00 |
| 2023 | 14495 | NWA - Noxious Weed Assessment | $2.15 | $2.15 | $0.00 | $0.00 | $4.30 | $0.00 |
| 2023 | 14495 | OSS - On Site Septic | $20.50 | $20.50 | $0.00 | $0.00 | $41.00 | $0.00 |
| 2023 | 14495 | WAT - Clean Water District | $12.00 | $12.00 | $0.00 | $0.00 | $24.00 | $0.00 |
| 2023 | 14495 | TOTAL: | $1592.42 | $1592.30 | $0.00 | $0.00 | $3184.72 | $0.00 |
|
| 2023 | 14495 | $1592.42 | $1592.30 | $0.00 | $0.00 | $3184.72 | $0.00 |
Values
| (+) Improvement Homesite Value: | + | $0 | |
| (+) Improvement Non-Homesite Value: | + | $156,601 | |
| (+) Land Homesite Value: | + | $0 | |
| (+) Land Non-Homesite Value: | + | $309,650 | |
| (+) Curr Use (HS): | + | $0 | $0 |
| (+) Curr Use (NHS): | + | $0 | $0 |
| | | -------------------------- | |
| (=) Market Value: | = | $466,251 | |
| (–) Productivity Loss: | – | $0 | |
| | | -------------------------- | |
| (=) Subtotal: | = | $466,251 | |
| (+) Senior Appraised Value: | + | $0 | |
| (+) Non-Senior Appraised Value: | + | $466,251 | |
| | | -------------------------- | |
| (=) Total Appraised Value: | = | $466,251 | |
| (–) Senior Exemption Loss: | – | $0 | |
| (–) Exemption Loss: | – | $0 | |
| | | -------------------------- | |
| (=) Taxable Value: | = | $466,251 | |
Taxing Jurisdiction
| Owner: | JOAN I FLOOD | | |
| % Ownership: | 100.0000000000% | | |
| Total Value: | $466,251 | | |
| Tax Area: | 0213 - 1-49F1E1H2L1 |
| CE | COUNTY CURRENT EXPENSE | 0.9034619479 | $466,251 | $466,251 | $421.24 | | |
| CNTYDD | DEVELOPMENTAL DISABILITIES | 0.0052121823 | $466,251 | $466,251 | $2.43 | | |
| CNTYVET | VETERANS RELIEF | 0.0052777810 | $466,251 | $466,251 | $2.46 | | |
| MENTAL | MENTAL HEALTH | 0.0052121823 | $466,251 | $466,251 | $2.43 | | |
| ROADS | COUNTY ROADS | 0.7415066410 | $466,251 | $466,251 | $345.73 | | |
| ROADSCU | COUNTY ROADS TO CUR EXP | 0.0000000000 | $466,251 | $466,251 | $0.00 | | |
| HOSP2CASH | HOSP DIST #2 GENERAL | 0.0536075306 | $466,251 | $466,251 | $24.99 | | |
| SCH49CP | SCHOOL DIST #49 CAP PROJ | 0.6279093905 | $466,251 | $466,251 | $292.76 | | |
| SCH49MO | SCHOOL DIST #49 EP & O | 0.6376483602 | $466,251 | $466,251 | $297.30 | | |
| CONSERVE | CONSERVATION FUTURES | 0.0275621078 | $466,251 | $466,251 | $12.85 | | |
| EMS1 | FIRE DIST #1 EMS | 0.4679948282 | $466,251 | $466,251 | $218.20 | | |
| FD1 | FIRE DIST #1 GENERAL | 1.2171942929 | $466,251 | $466,251 | $567.52 | | |
| LIB1 | LIBRARY DIST #1 GENERAL | 0.2868827388 | $466,251 | $466,251 | $133.76 | | |
| PORTPT | PORT OF PT GENERAL | 0.1134941229 | $466,251 | $466,251 | $52.92 | | |
| PORTPTIDD | PORT OF PT IDD 2019 | 0.2577346692 | $466,251 | $466,251 | $120.17 | | |
| PUD1 | PUD #1 GENERAL | 0.0597888892 | $466,251 | $466,251 | $27.88 | | |
| STATE | STATE SCHOOL PART 1 | 1.4940692947 | $466,251 | $466,251 | $696.61 | | |
| STATE2 | STATE SCHOOL PART 2 | 0.8050170049 | $466,251 | $466,251 | $375.34 | | |
| | Total Tax Rate: | 7.7095739644 | | | | | |
| | | | | Taxes w/Current Exemptions: | $3,594.59 | | |
| | | | | Taxes w/o Exemptions: | $3,594.59 | | |
Improvement / Building
| Improvement #1: | Residential Bldg | State Code: | 11 | 1056.0 sqft | Value: | $156,601 |
| Bathrooms (#): | 1 (FULL) | Bathrooms (#): | 1 (HALF) | | Bedrooms (#): | 3 | Exterior Wall: | PL/T1 | | Fireplace: | SIN 1-GOOD | Floor Construction: | FRAME | | Foundation: | CONPR | Heating/Cooling: | ELBB | | Inside Verify: | NO | Roof Cover: | COMP |
|
| | Type | Description | Class CD | Sub Class CD | Year Built | Area |
| | MA | Main Area | 3- | 1S | 1967 | 1056.0 |
| | PATIO | House Patio | 3 | * | 1967 | 350.0 |
| | GDET | Detached Garage | 3 | 1S | 1967 | 572.0 |
| | CARPTF | Carport W/Floor | 2 | * | 1967 | 264.0 |
| | SHED | Shed (Table Not Dep) | 2 | * | 1967 | 240.0 |
| | HRPO | House Roof Patio | 3 | * | 1967 | 230.0 |
Sketch
Property Image
Land
| 1 | 3430-1113L | | 0.0000 | 0.00 | 0.00 | 0.00 | 1.00 | $308,000 | $0 |
| 2 | 9301F | | 0.0000 | 0.00 | 0.00 | 0.00 | 0.00 | $1,650 | $0 |
Roll Value History
| 2026 | N/A | N/A | N/A | N/A | N/A |
| 2025 | $156,601 | $309,650 | $0 | $466,251 | $466,251 |
| 2024 | $150,076 | $295,575 | $0 | $445,651 | $445,651 |
| 2023 | $143,551 | $276,500 | $0 | $420,051 | $420,051 |
| 2022 | $137,026 | $271,500 | $0 | $408,526 | $408,526 |
Deed and Sales History
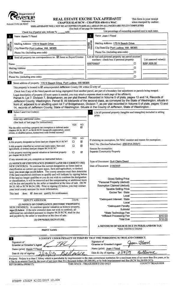
| 1 | 02/18/2019 | QCD | Quit Claim Deed | JOAN I FLOOD | | | | | 131829 | |
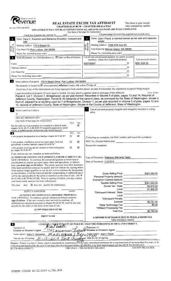
| 2 | 02/18/2019 | SWD | Statutory Warranty Deed | GARY C KNOWLTON | JOAN I FLOOD | | | $381,000.00 | 131828 | |
Payout Agreement
| No payout information available.. |