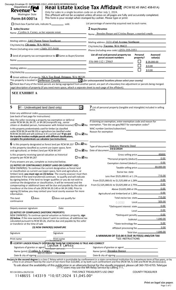
Property
Account |
| Property ID: | 25065 | Abbreviated Legal Description: | BRINNONWOLD BLK 1 LOT 12 SUBJ/EASE |
| Parcel # / Geo ID: | 936000112 | Agent Code: | |
| Type: | Real | | |
| Tax Area: | 0441 - 1-46F4E4H2C1L1P2 | Land Use Code | 91 |
| Open Space: | N | DFL | N |
| Historic Property: | N | Remodel Property: | N |
| Multi-Family Redevelopment: | N | | |
| Township: | 26N | Section: | 23 |
| Range: | 2W |
Location |
| Address: | | Mapsco: | 003/012 |
| Neighborhood: | BRINNONWOLD | Map ID: | |
| Neighborhood CD: | 1345 |
Owner |
| Name: | BRENDEN & CRISTINA BARGER | Owner ID: | 111574 |
| Mailing Address: | 3131 43RD AVE NE TACOMA, WA 98422-2806 | % Ownership: | 100.0000000000% |
| | | Exemptions: | |
Pay Tax Due
There is currently No Amount Due on this property.
Taxes and Assessment Details
Property Tax Information as of
03/10/2026
Click on "Statement Details" to expand or collapse a tax statement.
* Please enter a valid date ** Please enter a valid date *
Statement Details |
| | TOTAL: | $0.00 | $0.00 | $0.00 | $0.00 | $0.00 | $0.00 |
|
| | $0.00 | $0.00 | $0.00 | $0.00 | $0.00 | $0.00 |
Values
| (+) Improvement Homesite Value: | + | $0 | |
| (+) Improvement Non-Homesite Value: | + | $0 | |
| (+) Land Homesite Value: | + | $0 | |
| (+) Land Non-Homesite Value: | + | $55,000 | |
| (+) Curr Use (HS): | + | $0 | $0 |
| (+) Curr Use (NHS): | + | $0 | $0 |
| | | -------------------------- | |
| (=) Market Value: | = | $55,000 | |
| (–) Productivity Loss: | – | $0 | |
| | | -------------------------- | |
| (=) Subtotal: | = | $55,000 | |
| (+) Senior Appraised Value: | + | $0 | |
| (+) Non-Senior Appraised Value: | + | $55,000 | |
| | | -------------------------- | |
| (=) Total Appraised Value: | = | $55,000 | |
| (–) Senior Exemption Loss: | – | $0 | |
| (–) Exemption Loss: | – | $0 | |
| | | -------------------------- | |
| (=) Taxable Value: | = | $55,000 | |
Taxing Jurisdiction
| Owner: | BRENDEN & CRISTINA BARGER | | |
| % Ownership: | 100.0000000000% | | |
| Total Value: | $55,000 | | |
| Tax Area: | 0441 - 1-46F4E4H2C1L1P2 |
| CE | COUNTY CURRENT EXPENSE | 0.9034619479 | $55,000 | $55,000 | $49.69 | | |
| CNTYDD | DEVELOPMENTAL DISABILITIES | 0.0052121823 | $55,000 | $55,000 | $0.29 | | |
| CNTYVET | VETERANS RELIEF | 0.0052777810 | $55,000 | $55,000 | $0.29 | | |
| MENTAL | MENTAL HEALTH | 0.0052121823 | $55,000 | $55,000 | $0.29 | | |
| ROADS | COUNTY ROADS | 0.7415066410 | $55,000 | $55,000 | $40.78 | | |
| ROADSCU | COUNTY ROADS TO CUR EXP | 0.0000000000 | $55,000 | $55,000 | $0.00 | | |
| HOSP2CASH | HOSP DIST #2 GENERAL | 0.0536075306 | $55,000 | $55,000 | $2.95 | | |
| SCH46MO | SCHOOL DIST #46 EP & O | 0.6890207067 | $55,000 | $55,000 | $37.90 | | |
| CEM1 | CEMETERY DIST #1 GENERAL | 0.0107168292 | $55,000 | $55,000 | $0.59 | | |
| CONSERVE | CONSERVATION FUTURES | 0.0275621078 | $55,000 | $55,000 | $1.52 | | |
| EMS4 | FIRE DIST #4 EMS | 0.4644216158 | $55,000 | $55,000 | $25.54 | | |
| FD4 | FIRE DIST #4 GENERAL | 1.3939598390 | $55,000 | $55,000 | $76.67 | | |
| FD4BOND | FIRE DIST #4 BOND 2019 | 0.2748466981 | $55,000 | $55,000 | $15.12 | | |
| LIB1 | LIBRARY DIST #1 GENERAL | 0.2868827388 | $55,000 | $55,000 | $15.78 | | |
| PORTPT | PORT OF PT GENERAL | 0.1134941229 | $55,000 | $55,000 | $6.24 | | |
| PORTPTIDD | PORT OF PT IDD 2019 | 0.2577346692 | $55,000 | $55,000 | $14.18 | | |
| PUD1 | PUD #1 GENERAL | 0.0597888892 | $55,000 | $55,000 | $3.29 | | |
| STATE | STATE SCHOOL PART 1 | 1.4940692947 | $55,000 | $55,000 | $82.17 | | |
| STATE2 | STATE SCHOOL PART 2 | 0.8050170049 | $55,000 | $55,000 | $44.28 | | |
| | Total Tax Rate: | 7.5917927814 | | | | | |
| | | | | Taxes w/Current Exemptions: | $417.57 | | |
| | | | | Taxes w/o Exemptions: | $417.57 | | |
Improvement / Building
Sketch
| No sketches available for this property. |
Property Image
Land
| 1 | 1345-1165L | Lots in Brinnonwold Adj for Topo variations | 0.0000 | 0.00 | 0.00 | 0.00 | 1.00 | $55,000 | $0 |
Roll Value History
| 2026 | N/A | N/A | N/A | N/A | N/A |
| 2025 | $0 | $55,000 | $0 | $55,000 | $55,000 |
| 2024 | $0 | $36,750 | $0 | $36,750 | $36,750 |
| 2023 | $0 | $35,000 | $0 | $35,000 | $35,000 |
| 2022 | $0 | $40,000 | $0 | $40,000 | $40,000 |
Deed and Sales History
| 1 | 10/02/2024 | SWD | Statutory Warranty Deed | CYNTHIA A CARNEY | BRENDEN & CRISTINA BARGER | | | $65,000.00 | 143319 | |
| 2 | 09/16/2022 | SWD | Statutory Warranty Deed | TIMOTHY GROSS | CYNTHIA A CARNEY | | | $30,000.00 | 139882 | |
| 3 | 06/17/2005 | SWD | Statutory Warranty Deed | HOLTGEERTS, KENNETH H/MAR | GROSS, TIMOTHY/ELISABETH | | | $28,500.00 | 103924 | 0 |
| 4 | 08/02/1994 | SWD | Statutory Warranty Deed | MARVIN, TRENT B G | HOLTGEERTS, KENNETH H/MARY LOU | 0 | 0 | $20,000.00 | 74820 | 0 |
Payout Agreement
| No payout information available.. |