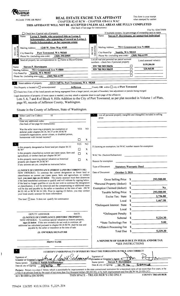
Property
Account |
| Property ID: | 25074 | Abbreviated Legal Description: | BRINNONWOLD BLK 2 LOTS 1 & 2 BND TGTH THRU LOT CONSOL AF#667190 SUB2024-00019 |
| Parcel # / Geo ID: | 936000202 | Agent Code: | |
| Type: | Real | | |
| Tax Area: | 0441 - 1-46F4E4H2C1L1P2 | Land Use Code | 11 |
| Open Space: | N | DFL | N |
| Historic Property: | N | Remodel Property: | N |
| Multi-Family Redevelopment: | N | | |
| Township: | 26N | Section: | 23 |
| Range: | 2W |
Location |
| Address: | | Mapsco: | 003/021 |
| Neighborhood: | BRINNONWOLD | Map ID: | |
| Neighborhood CD: | 1345 |
Owner |
| Name: | TERRY L TIBBATTS | Owner ID: | 96179 |
| Mailing Address: | 352 TOG RD BRINNON, WA 98320-9616 | % Ownership: | 100.0000000000% |
| | | Exemptions: | |
Pay Tax Due
Select the appropriate checkbox next to the year to be paid. Multiple years may be selected.
*Convenience Fee not included
Taxes and Assessment Details
Property Tax Information as of
03/10/2026
Click on "Statement Details" to expand or collapse a tax statement.
* Please enter a valid date ** Please enter a valid date *
Statement Details |
| 2026 | 14465 | STATE - STATE LEVY (SCHOOL) | $386.91 | $386.90 | $0.00 | $0.00 | $0.00 | $773.81 |
| 2026 | 14465 | COUNTY - COUNTY LEVIES (CE, DD, VET, MH) | $154.69 | $154.67 | $0.00 | $0.00 | $0.00 | $309.36 |
| 2026 | 14465 | CONSERVE - CONSERVATION FUTURES | $4.64 | $4.64 | $0.00 | $0.00 | $0.00 | $9.28 |
| 2026 | 14465 | COROADS - COUNTY ROADS (ROADS, DIV TO CE) | $124.79 | $124.78 | $0.00 | $0.00 | $0.00 | $249.57 |
| 2026 | 14465 | PORTPT - PORT DISTRICT | $62.48 | $62.47 | $0.00 | $0.00 | $0.00 | $124.95 |
| 2026 | 14465 | PUD1 - PUD #1 | $10.06 | $10.06 | $0.00 | $0.00 | $0.00 | $20.12 |
| 2026 | 14465 | LIB1 - LIBRARY DIST #1 | $48.28 | $48.28 | $0.00 | $0.00 | $0.00 | $96.56 |
| 2026 | 14465 | HD2 - HOSP DIST #2 | $9.02 | $9.02 | $0.00 | $0.00 | $0.00 | $18.04 |
| 2026 | 14465 | SD46 - SCHOOL DIST #46 | $115.95 | $115.95 | $0.00 | $0.00 | $0.00 | $231.90 |
| 2026 | 14465 | FD4 - FIRE DISTRICT #4 | $280.85 | $280.83 | $0.00 | $0.00 | $0.00 | $561.68 |
| 2026 | 14465 | EMS4 - FIRE DIST #4 EMS | $78.16 | $78.15 | $0.00 | $0.00 | $0.00 | $156.31 |
| 2026 | 14465 | CEM1 - CEMETERY DIST #1 | $1.81 | $1.80 | $0.00 | $0.00 | $0.00 | $3.61 |
| 2026 | 14465 | JCCD - JC Conservation District | $2.55 | $2.55 | $0.00 | $0.00 | $0.00 | $5.10 |
| 2026 | 14465 | NWA - Noxious Weed Assessment | $2.98 | $2.97 | $0.00 | $0.00 | $0.00 | $5.95 |
| 2026 | 14465 | OSS - On Site Septic | $23.10 | $23.10 | $0.00 | $0.00 | $0.00 | $46.20 |
| 2026 | 14465 | WAT - Clean Water District | $13.00 | $13.00 | $0.00 | $0.00 | $0.00 | $26.00 |
| 2026 | 14465 | TOTAL: | $1319.27 | $1319.17 | $0.00 | $0.00 | $0.00 | $2638.44 |
|
| 2026 | 14465 | $1319.27 | $1319.17 | $0.00 | $0.00 | $0.00 | $2638.44 |
Statement Details |
| 2025 | 14515 | STATE - STATE LEVY (SCHOOL) | $385.67 | $385.67 | $0.00 | $0.00 | $771.34 | $0.00 |
| 2025 | 14515 | COUNTY - COUNTY LEVIES (CE, DD, VET, MH) | $151.67 | $151.66 | $0.00 | $0.00 | $303.33 | $0.00 |
| 2025 | 14515 | CONSERVE - CONSERVATION FUTURES | $4.55 | $4.55 | $0.00 | $0.00 | $9.10 | $0.00 |
| 2025 | 14515 | COROADS - COUNTY ROADS (ROADS, DIV TO CE) | $121.51 | $121.50 | $0.00 | $0.00 | $243.01 | $0.00 |
| 2025 | 14515 | PORTPT - PORT DISTRICT | $61.89 | $61.88 | $0.00 | $0.00 | $123.77 | $0.00 |
| 2025 | 14515 | PUD1 - PUD #1 | $9.93 | $9.92 | $0.00 | $0.00 | $19.85 | $0.00 |
| 2025 | 14515 | LIB1 - LIBRARY DIST #1 | $47.01 | $47.01 | $0.00 | $0.00 | $94.02 | $0.00 |
| 2025 | 14515 | HD2 - HOSP DIST #2 | $8.85 | $8.85 | $0.00 | $0.00 | $17.70 | $0.00 |
| 2025 | 14515 | SD46 - SCHOOL DIST #46 | $101.94 | $101.93 | $0.00 | $0.00 | $203.87 | $0.00 |
| 2025 | 14515 | FD4 - FIRE DISTRICT #4 | $282.51 | $282.50 | $0.00 | $0.00 | $565.01 | $0.00 |
| 2025 | 14515 | EMS4 - FIRE DIST #4 EMS | $78.38 | $78.38 | $0.00 | $0.00 | $156.76 | $0.00 |
| 2025 | 14515 | CEM1 - CEMETERY DIST #1 | $1.82 | $1.81 | $0.00 | $0.00 | $3.63 | $0.00 |
| 2025 | 14515 | JCCD - JC Conservation District | $2.55 | $2.55 | $0.00 | $0.00 | $5.10 | $0.00 |
| 2025 | 14515 | NWA - Noxious Weed Assessment | $2.15 | $2.15 | $0.00 | $0.00 | $4.30 | $0.00 |
| 2025 | 14515 | OSS - On Site Septic | $21.50 | $21.50 | $0.00 | $0.00 | $43.00 | $0.00 |
| 2025 | 14515 | WAT - Clean Water District | $13.00 | $13.00 | $0.00 | $0.00 | $26.00 | $0.00 |
| 2025 | 14515 | TOTAL: | $1294.93 | $1294.86 | $0.00 | $0.00 | $2589.79 | $0.00 |
|
| 2025 | 14515 | $1294.93 | $1294.86 | $0.00 | $0.00 | $2589.79 | $0.00 |
Statement Details |
| 2024 | 14545 | STATE - STATE LEVY (SCHOOL) | $268.34 | $268.33 | $0.00 | $0.00 | $536.67 | $0.00 |
| 2024 | 14545 | COUNTY - COUNTY LEVIES (CE, DD, VET, MH) | $114.83 | $114.82 | $0.00 | $0.00 | $229.65 | $0.00 |
| 2024 | 14545 | CONSERVE - CONSERVATION FUTURES | $3.45 | $3.44 | $0.00 | $0.00 | $6.89 | $0.00 |
| 2024 | 14545 | COROADS - COUNTY ROADS (ROADS, DIV TO CE) | $92.40 | $92.39 | $0.00 | $0.00 | $184.79 | $0.00 |
| 2024 | 14545 | PORTPT - PORT DISTRICT | $47.43 | $47.43 | $0.00 | $0.00 | $94.86 | $0.00 |
| 2024 | 14545 | PUD1 - PUD #1 | $7.54 | $7.54 | $0.00 | $0.00 | $15.08 | $0.00 |
| 2024 | 14545 | LIB1 - LIBRARY DIST #1 | $35.75 | $35.74 | $0.00 | $0.00 | $71.49 | $0.00 |
| 2024 | 14545 | HD2 - HOSP DIST #2 | $6.70 | $6.70 | $0.00 | $0.00 | $13.40 | $0.00 |
| 2024 | 14545 | SD46 - SCHOOL DIST #46 | $80.56 | $80.55 | $0.00 | $0.00 | $161.11 | $0.00 |
| 2024 | 14545 | FD4 - FIRE DISTRICT #4 | $208.10 | $208.09 | $0.00 | $0.00 | $416.19 | $0.00 |
| 2024 | 14545 | EMS4 - FIRE DIST #4 EMS | $57.99 | $57.99 | $0.00 | $0.00 | $115.98 | $0.00 |
| 2024 | 14545 | CEM1 - CEMETERY DIST #1 | $1.36 | $1.35 | $0.00 | $0.00 | $2.71 | $0.00 |
| 2024 | 14545 | JCCD - JC Conservation District | $2.55 | $2.55 | $0.00 | $0.00 | $5.10 | $0.00 |
| 2024 | 14545 | NWA - Noxious Weed Assessment | $2.15 | $2.15 | $0.00 | $0.00 | $4.30 | $0.00 |
| 2024 | 14545 | OSS - On Site Septic | $21.00 | $21.00 | $0.00 | $0.00 | $42.00 | $0.00 |
| 2024 | 14545 | WAT - Clean Water District | $12.50 | $12.50 | $0.00 | $0.00 | $25.00 | $0.00 |
| 2024 | 14545 | TOTAL: | $962.65 | $962.57 | $0.00 | $0.00 | $1925.22 | $0.00 |
|
| 2024 | 14545 | $962.65 | $962.57 | $0.00 | $0.00 | $1925.22 | $0.00 |
Statement Details |
| 2023 | 14570 | STATE - STATE LEVY (SCHOOL) | $250.37 | $250.35 | $0.00 | $0.00 | $500.72 | $0.00 |
| 2023 | 14570 | COUNTY - COUNTY LEVIES (CE, DD, VET, MH) | $109.25 | $109.25 | $0.00 | $0.00 | $218.50 | $0.00 |
| 2023 | 14570 | CONSERVE - CONSERVATION FUTURES | $3.28 | $3.27 | $0.00 | $0.00 | $6.55 | $0.00 |
| 2023 | 14570 | COROADS - COUNTY ROADS (ROADS, DIV TO CE) | $88.39 | $88.39 | $0.00 | $0.00 | $176.78 | $0.00 |
| 2023 | 14570 | PORTPT - PORT DISTRICT | $46.02 | $46.02 | $0.00 | $0.00 | $92.04 | $0.00 |
| 2023 | 14570 | PUD1 - PUD #1 | $7.24 | $7.24 | $0.00 | $0.00 | $14.48 | $0.00 |
| 2023 | 14570 | LIB1 - LIBRARY DIST #1 | $34.20 | $34.19 | $0.00 | $0.00 | $68.39 | $0.00 |
| 2023 | 14570 | HD2 - HOSP DIST #2 | $6.38 | $6.37 | $0.00 | $0.00 | $12.75 | $0.00 |
| 2023 | 14570 | SD46 - SCHOOL DIST #46 | $81.72 | $81.71 | $0.00 | $0.00 | $163.43 | $0.00 |
| 2023 | 14570 | FD4 - FIRE DISTRICT #4 | $135.87 | $135.87 | $0.00 | $0.00 | $271.74 | $0.00 |
| 2023 | 14570 | EMS4 - FIRE DIST #4 EMS | $38.64 | $38.64 | $0.00 | $0.00 | $77.28 | $0.00 |
| 2023 | 14570 | CEM1 - CEMETERY DIST #1 | $1.37 | $1.36 | $0.00 | $0.00 | $2.73 | $0.00 |
| 2023 | 14570 | JCCD - JC Conservation District | $2.55 | $2.55 | $0.00 | $0.00 | $5.10 | $0.00 |
| 2023 | 14570 | NWA - Noxious Weed Assessment | $2.15 | $2.15 | $0.00 | $0.00 | $4.30 | $0.00 |
| 2023 | 14570 | OSS - On Site Septic | $20.50 | $20.50 | $0.00 | $0.00 | $41.00 | $0.00 |
| 2023 | 14570 | WAT - Clean Water District | $12.00 | $12.00 | $0.00 | $0.00 | $24.00 | $0.00 |
| 2023 | 14570 | TOTAL: | $839.93 | $839.86 | $0.00 | $0.00 | $1679.79 | $0.00 |
|
| 2023 | 14570 | $839.93 | $839.86 | $0.00 | $0.00 | $1679.79 | $0.00 |
Values
| (+) Improvement Homesite Value: | + | $0 | |
| (+) Improvement Non-Homesite Value: | + | $193,571 | |
| (+) Land Homesite Value: | + | $0 | |
| (+) Land Non-Homesite Value: | + | $143,000 | |
| (+) Curr Use (HS): | + | $0 | $0 |
| (+) Curr Use (NHS): | + | $0 | $0 |
| | | -------------------------- | |
| (=) Market Value: | = | $336,571 | |
| (–) Productivity Loss: | – | $0 | |
| | | -------------------------- | |
| (=) Subtotal: | = | $336,571 | |
| (+) Senior Appraised Value: | + | $0 | |
| (+) Non-Senior Appraised Value: | + | $336,571 | |
| | | -------------------------- | |
| (=) Total Appraised Value: | = | $336,571 | |
| (–) Senior Exemption Loss: | – | $0 | |
| (–) Exemption Loss: | – | $0 | |
| | | -------------------------- | |
| (=) Taxable Value: | = | $336,571 | |
Taxing Jurisdiction
| Owner: | TERRY L TIBBATTS | | |
| % Ownership: | 100.0000000000% | | |
| Total Value: | $336,571 | | |
| Tax Area: | 0441 - 1-46F4E4H2C1L1P2 |
| CE | COUNTY CURRENT EXPENSE | 0.9034619479 | $336,571 | $336,571 | $304.08 | | |
| CNTYDD | DEVELOPMENTAL DISABILITIES | 0.0052121823 | $336,571 | $336,571 | $1.75 | | |
| CNTYVET | VETERANS RELIEF | 0.0052777810 | $336,571 | $336,571 | $1.78 | | |
| MENTAL | MENTAL HEALTH | 0.0052121823 | $336,571 | $336,571 | $1.75 | | |
| ROADS | COUNTY ROADS | 0.7415066410 | $336,571 | $336,571 | $249.57 | | |
| ROADSCU | COUNTY ROADS TO CUR EXP | 0.0000000000 | $336,571 | $336,571 | $0.00 | | |
| HOSP2CASH | HOSP DIST #2 GENERAL | 0.0536075306 | $336,571 | $336,571 | $18.04 | | |
| SCH46MO | SCHOOL DIST #46 EP & O | 0.6890207067 | $336,571 | $336,571 | $231.90 | | |
| CEM1 | CEMETERY DIST #1 GENERAL | 0.0107168292 | $336,571 | $336,571 | $3.61 | | |
| CONSERVE | CONSERVATION FUTURES | 0.0275621078 | $336,571 | $336,571 | $9.28 | | |
| EMS4 | FIRE DIST #4 EMS | 0.4644216158 | $336,571 | $336,571 | $156.31 | | |
| FD4 | FIRE DIST #4 GENERAL | 1.3939598390 | $336,571 | $336,571 | $469.17 | | |
| FD4BOND | FIRE DIST #4 BOND 2019 | 0.2748466981 | $336,571 | $336,571 | $92.51 | | |
| LIB1 | LIBRARY DIST #1 GENERAL | 0.2868827388 | $336,571 | $336,571 | $96.56 | | |
| PORTPT | PORT OF PT GENERAL | 0.1134941229 | $336,571 | $336,571 | $38.20 | | |
| PORTPTIDD | PORT OF PT IDD 2019 | 0.2577346692 | $336,571 | $336,571 | $86.75 | | |
| PUD1 | PUD #1 GENERAL | 0.0597888892 | $336,571 | $336,571 | $20.12 | | |
| STATE | STATE SCHOOL PART 1 | 1.4940692947 | $336,571 | $336,571 | $502.86 | | |
| STATE2 | STATE SCHOOL PART 2 | 0.8050170049 | $336,571 | $336,571 | $270.95 | | |
| | Total Tax Rate: | 7.5917927814 | | | | | |
| | | | | Taxes w/Current Exemptions: | $2,555.19 | | |
| | | | | Taxes w/o Exemptions: | $2,555.19 | | |
Improvement / Building
| Improvement #1: | Manufactured Home | State Code: | 11 | 1296.0 sqft | Value: | $164,099 |
| Bathrooms (#): | 1 (FULL) | Bathrooms (#): | 1 (HALF) | | Bedrooms (#): | 1 | Exterior Wall: | SI/ST | | Floor Construction: | FRAME | Foundation: | CONPR | | Heating/Cooling: | F/A | Roof Cover: | COMP |
|
| | Type | Description | Class CD | Sub Class CD | Year Built | Area |
| | MA | Main Area | 4+ | MDBL | 2010 | 1296.0 |
| | MWPOR | MH Wood Porch | 4 | * | 2010 | 216.0 |
| Improvement #2: | Residential Bldg | State Code: | 19 | 0.0 sqft | Value: | $29,472 |
| | Type | Description | Class CD | Sub Class CD | Year Built | Area |
| | CARPT | Carport (Table Not Dep) | 4 | * | 0 | 460.0 |
| | GARAG | Garage (Table Not Dep) | 4 | * | 0 | 580.0 |
Sketch
Property Image
Land
| 1 | 1345-1165L | | 0.0000 | 0.00 | 0.00 | 0.00 | 1.00 | $88,000 | $0 |
| 2 | 1345-1165L | | 0.0000 | 0.00 | 0.00 | 0.00 | 1.00 | $55,000 | $0 |
Roll Value History
| 2026 | N/A | N/A | N/A | N/A | N/A |
| 2025 | $193,571 | $143,000 | $0 | $336,571 | $336,571 |
| 2024 | $185,156 | $136,500 | $0 | $321,656 | $321,656 |
| 2023 | $156,965 | $75,000 | $0 | $231,965 | $231,965 |
| 2022 | $142,695 | $70,000 | $0 | $212,695 | $212,695 |
Deed and Sales History
| 1 | 09/23/2016 | SWD | Statutory Warranty Deed | BERNARD H GODDARD | TERRY L TIBBATTS | | | $215,000.00 | 126345 | |
| 2 | 02/03/2009 | QCD | Quit Claim Deed | GODDARD, BERNARD H | GODDARD, BERNARD/WELLER,DIANNA | 0 | 0 | $0.00 | 112471 | 0 |
| 3 | 12/15/1999 | SWD | Statutory Warranty Deed | BRINNONWOLD ASSOCIATES, A | GODDARD, BERNARD H | 0 | 0 | $0.00 | 91947 | 0 |
| 4 | 08/27/1999 | WD | Warranty Deed | GERMANI, NANCY D/ET AL | BRINNONWOLD ASSOCIATES | 0 | 0 | $0.00 | 87703 | 0 |
Payout Agreement
| No payout information available.. |