Property
Account |
| Property ID: | 25075 | Abbreviated Legal Description: | BRINNONWOLD BLK 2 LOT 3 |
| Parcel # / Geo ID: | 936000203 | Agent Code: | |
| Type: | Real | | |
| Tax Area: | 0441 - 1-46F4E4H2C1L1P2 | Land Use Code | 18 |
| Open Space: | N | DFL | N |
| Historic Property: | N | Remodel Property: | N |
| Multi-Family Redevelopment: | N | | |
| Township: | 26N | Section: | 23 |
| Range: | 2W |
Location |
| Address: | 322 TOG RD BRINNON, WA 98320 | Mapsco: | 003/022 |
| Neighborhood: | BRINNONWOLD | Map ID: | |
| Neighborhood CD: | 1345 |
Owner |
| Name: | LUCAS OBERHANSLY | Owner ID: | 95676 |
| Mailing Address: | C/O JASON WIKLUND 9005 201ST ST CT E GRAHAM, WA 98338 | % Ownership: | 100.0000000000% |
| | | Exemptions: | |
Pay Tax Due
There is currently No Amount Due on this property.
Taxes and Assessment Details
Property Tax Information as of
03/11/2026
Click on "Statement Details" to expand or collapse a tax statement.
* Please enter a valid date ** Please enter a valid date *
Statement Details |
| | TOTAL: | $0.00 | $0.00 | $0.00 | $0.00 | $0.00 | $0.00 |
|
| | $0.00 | $0.00 | $0.00 | $0.00 | $0.00 | $0.00 |
Values
| (+) Improvement Homesite Value: | + | $0 | |
| (+) Improvement Non-Homesite Value: | + | $73,107 | |
| (+) Land Homesite Value: | + | $0 | |
| (+) Land Non-Homesite Value: | + | $88,000 | |
| (+) Curr Use (HS): | + | $0 | $0 |
| (+) Curr Use (NHS): | + | $0 | $0 |
| | | -------------------------- | |
| (=) Market Value: | = | $161,107 | |
| (–) Productivity Loss: | – | $0 | |
| | | -------------------------- | |
| (=) Subtotal: | = | $161,107 | |
| (+) Senior Appraised Value: | + | $0 | |
| (+) Non-Senior Appraised Value: | + | $161,107 | |
| | | -------------------------- | |
| (=) Total Appraised Value: | = | $161,107 | |
| (–) Senior Exemption Loss: | – | $0 | |
| (–) Exemption Loss: | – | $0 | |
| | | -------------------------- | |
| (=) Taxable Value: | = | $161,107 | |
Taxing Jurisdiction
| Owner: | LUCAS OBERHANSLY | | |
| % Ownership: | 100.0000000000% | | |
| Total Value: | $161,107 | | |
| Tax Area: | 0441 - 1-46F4E4H2C1L1P2 |
| CE | COUNTY CURRENT EXPENSE | 0.9034619479 | $161,107 | $161,107 | $145.55 | | |
| CNTYDD | DEVELOPMENTAL DISABILITIES | 0.0052121823 | $161,107 | $161,107 | $0.84 | | |
| CNTYVET | VETERANS RELIEF | 0.0052777810 | $161,107 | $161,107 | $0.85 | | |
| MENTAL | MENTAL HEALTH | 0.0052121823 | $161,107 | $161,107 | $0.84 | | |
| ROADS | COUNTY ROADS | 0.7415066410 | $161,107 | $161,107 | $119.46 | | |
| ROADSCU | COUNTY ROADS TO CUR EXP | 0.0000000000 | $161,107 | $161,107 | $0.00 | | |
| HOSP2CASH | HOSP DIST #2 GENERAL | 0.0536075306 | $161,107 | $161,107 | $8.64 | | |
| SCH46MO | SCHOOL DIST #46 EP & O | 0.6890207067 | $161,107 | $161,107 | $111.01 | | |
| CEM1 | CEMETERY DIST #1 GENERAL | 0.0107168292 | $161,107 | $161,107 | $1.73 | | |
| CONSERVE | CONSERVATION FUTURES | 0.0275621078 | $161,107 | $161,107 | $4.44 | | |
| EMS4 | FIRE DIST #4 EMS | 0.4644216158 | $161,107 | $161,107 | $74.82 | | |
| FD4 | FIRE DIST #4 GENERAL | 1.3939598390 | $161,107 | $161,107 | $224.58 | | |
| FD4BOND | FIRE DIST #4 BOND 2019 | 0.2748466981 | $161,107 | $161,107 | $44.28 | | |
| LIB1 | LIBRARY DIST #1 GENERAL | 0.2868827388 | $161,107 | $161,107 | $46.22 | | |
| PORTPT | PORT OF PT GENERAL | 0.1134941229 | $161,107 | $161,107 | $18.28 | | |
| PORTPTIDD | PORT OF PT IDD 2019 | 0.2577346692 | $161,107 | $161,107 | $41.52 | | |
| PUD1 | PUD #1 GENERAL | 0.0597888892 | $161,107 | $161,107 | $9.63 | | |
| STATE | STATE SCHOOL PART 1 | 1.4940692947 | $161,107 | $161,107 | $240.71 | | |
| STATE2 | STATE SCHOOL PART 2 | 0.8050170049 | $161,107 | $161,107 | $129.69 | | |
| | Total Tax Rate: | 7.5917927814 | | | | | |
| | | | | Taxes w/Current Exemptions: | $1,223.09 | | |
| | | | | Taxes w/o Exemptions: | $1,223.09 | | |
Improvement / Building
| Improvement #1: | Residential Bldg | State Code: | 19 | 0.0 sqft | Value: | $73,107 |
| | Type | Description | Class CD | Sub Class CD | Year Built | Area |
| | GDET | Detached Garage | 5 | * | 2001 | 720.0 |
| | HLOFT | House Loft | 4 | * | 2001 | 240.0 |
Sketch
Property Image
Land
| 1 | 1345-1165L | Lots in Brinnonwold Adj for Topo variations | 0.0000 | 0.00 | 0.00 | 0.00 | 1.00 | $88,000 | $0 |
Roll Value History
| 2026 | N/A | N/A | N/A | N/A | N/A |
| 2025 | $73,107 | $88,000 | $0 | $161,107 | $161,107 |
| 2024 | $69,928 | $84,000 | $0 | $153,928 | $153,928 |
| 2023 | $69,928 | $75,000 | $0 | $144,928 | $144,928 |
| 2022 | $63,571 | $70,000 | $0 | $133,571 | $133,571 |
Deed and Sales History
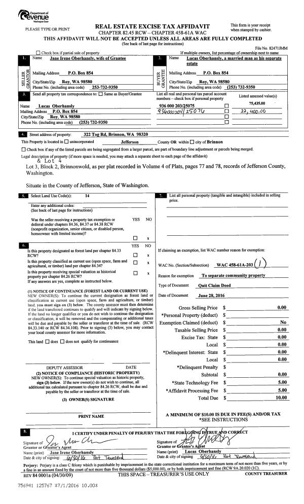
| 1 | 06/28/2016 | QCD | Quit Claim Deed | | | | | | 125767 | |
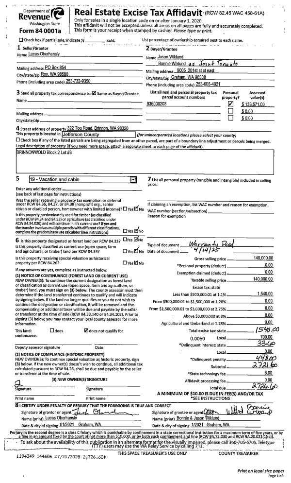
| 2 | 06/28/2016 | SWD | Statutory Warranty Deed | DALE R JOHNSON | LUCAS OBERHANSLY | | | $119,000.00 | 125766 | |
|   | |
| 3 | 07/27/1998 | SWD | Statutory Warranty Deed | CEARLEY, MELVIN F & NELLE | JOHNSON, DALE R & MARY M | 0 | 0 | $28,000.00 | 84996 | 0 |
Payout Agreement
| No payout information available.. |