Property
Account |
| Property ID: | 25103 | Abbreviated Legal Description: | BRINNON BEACH ESTATES NORTH RESIDENTIAL SUB-DIV LOT F LOT F(REVISED) |
| Parcel # / Geo ID: | 936100106 | Agent Code: | |
| Type: | Real | | |
| Tax Area: | 0441 - 1-46F4E4H2C1L1P2 | Land Use Code | 91 |
| Open Space: | N | DFL | N |
| Historic Property: | N | Remodel Property: | N |
| Multi-Family Redevelopment: | N | | |
| Township: | 26N | Section: | 23 |
| Range: | 2W |
Location |
| Address: | | Mapsco: | 003/050 |
| Neighborhood: | S14 THROUGH S23 T26N R2W & BRINNON R.V. PARK & DISHERS S.P. | Map ID: | |
| Neighborhood CD: | 1320 |
Owner |
| Name: | STEVEN R & CATHERINE L CARLSON | Owner ID: | 103274 |
| Mailing Address: | PO BOX 869 PRESTON, WA 98050-0869 | % Ownership: | 100.0000000000% |
| | | Exemptions: | |
Pay Tax Due
Select the appropriate checkbox next to the year to be paid. Multiple years may be selected.
*Convenience Fee not included
Taxes and Assessment Details
Property Tax Information as of
03/11/2026
Click on "Statement Details" to expand or collapse a tax statement.
* Please enter a valid date ** Please enter a valid date *
Statement Details |
| 2026 | 14493 | STATE - STATE LEVY (SCHOOL) | $118.98 | $118.98 | $0.00 | $0.00 | $0.00 | $237.96 |
| 2026 | 14493 | COUNTY - COUNTY LEVIES (CE, DD, VET, MH) | $47.58 | $47.56 | $0.00 | $0.00 | $0.00 | $95.14 |
| 2026 | 14493 | CONSERVE - CONSERVATION FUTURES | $1.43 | $1.42 | $0.00 | $0.00 | $0.00 | $2.85 |
| 2026 | 14493 | COROADS - COUNTY ROADS (ROADS, DIV TO CE) | $38.38 | $38.37 | $0.00 | $0.00 | $0.00 | $76.75 |
| 2026 | 14493 | PORTPT - PORT DISTRICT | $19.22 | $19.21 | $0.00 | $0.00 | $0.00 | $38.43 |
| 2026 | 14493 | PUD1 - PUD #1 | $3.10 | $3.09 | $0.00 | $0.00 | $0.00 | $6.19 |
| 2026 | 14493 | LIB1 - LIBRARY DIST #1 | $14.85 | $14.84 | $0.00 | $0.00 | $0.00 | $29.69 |
| 2026 | 14493 | HD2 - HOSP DIST #2 | $2.78 | $2.77 | $0.00 | $0.00 | $0.00 | $5.55 |
| 2026 | 14493 | SD46 - SCHOOL DIST #46 | $35.66 | $35.65 | $0.00 | $0.00 | $0.00 | $71.31 |
| 2026 | 14493 | FD4 - FIRE DISTRICT #4 | $86.37 | $86.35 | $0.00 | $0.00 | $0.00 | $172.72 |
| 2026 | 14493 | EMS4 - FIRE DIST #4 EMS | $24.04 | $24.03 | $0.00 | $0.00 | $0.00 | $48.07 |
| 2026 | 14493 | CEM1 - CEMETERY DIST #1 | $0.56 | $0.55 | $0.00 | $0.00 | $0.00 | $1.11 |
| 2026 | 14493 | FP - DNR Forest Fire Protection Assmt | $8.50 | $8.50 | $0.00 | $0.00 | $0.00 | $17.00 |
| 2026 | 14493 | FPLCA - DNR Landowner Contingency Assmt | $3.00 | $3.00 | $0.00 | $0.00 | $0.00 | $6.00 |
| 2026 | 14493 | JCCD - JC Conservation District | $2.53 | $2.53 | $0.00 | $0.00 | $0.00 | $5.06 |
| 2026 | 14493 | NWA - Noxious Weed Assessment | $2.98 | $2.97 | $0.00 | $0.00 | $0.00 | $5.95 |
| 2026 | 14493 | OSS - On Site Septic | $23.10 | $23.10 | $0.00 | $0.00 | $0.00 | $46.20 |
| 2026 | 14493 | WAT - Clean Water District | $13.00 | $13.00 | $0.00 | $0.00 | $0.00 | $26.00 |
| 2026 | 14493 | FP ADMIN - FP ADMIN | $0.50 | $0.00 | $0.00 | $0.00 | $0.00 | $0.50 |
| 2026 | 14493 | TOTAL: | $446.56 | $445.92 | $0.00 | $0.00 | $0.00 | $892.48 |
|
| 2026 | 14493 | $446.56 | $445.92 | $0.00 | $0.00 | $0.00 | $892.48 |
Statement Details |
| 2025 | 14543 | STATE - STATE LEVY (SCHOOL) | $113.31 | $113.30 | $0.00 | $0.00 | $226.61 | $0.00 |
| 2025 | 14543 | COUNTY - COUNTY LEVIES (CE, DD, VET, MH) | $44.56 | $44.55 | $0.00 | $0.00 | $89.11 | $0.00 |
| 2025 | 14543 | CONSERVE - CONSERVATION FUTURES | $1.34 | $1.33 | $0.00 | $0.00 | $2.67 | $0.00 |
| 2025 | 14543 | COROADS - COUNTY ROADS (ROADS, DIV TO CE) | $35.70 | $35.70 | $0.00 | $0.00 | $71.40 | $0.00 |
| 2025 | 14543 | PORTPT - PORT DISTRICT | $18.18 | $18.18 | $0.00 | $0.00 | $36.36 | $0.00 |
| 2025 | 14543 | PUD1 - PUD #1 | $2.92 | $2.91 | $0.00 | $0.00 | $5.83 | $0.00 |
| 2025 | 14543 | LIB1 - LIBRARY DIST #1 | $13.81 | $13.81 | $0.00 | $0.00 | $27.62 | $0.00 |
| 2025 | 14543 | HD2 - HOSP DIST #2 | $2.60 | $2.60 | $0.00 | $0.00 | $5.20 | $0.00 |
| 2025 | 14543 | SD46 - SCHOOL DIST #46 | $29.95 | $29.95 | $0.00 | $0.00 | $59.90 | $0.00 |
| 2025 | 14543 | FD4 - FIRE DISTRICT #4 | $83.00 | $82.99 | $0.00 | $0.00 | $165.99 | $0.00 |
| 2025 | 14543 | EMS4 - FIRE DIST #4 EMS | $23.03 | $23.02 | $0.00 | $0.00 | $46.05 | $0.00 |
| 2025 | 14543 | CEM1 - CEMETERY DIST #1 | $0.54 | $0.53 | $0.00 | $0.00 | $1.07 | $0.00 |
| 2025 | 14543 | FP - DNR Forest Fire Protection Assmt | $8.50 | $8.50 | $0.00 | $0.00 | $17.00 | $0.00 |
| 2025 | 14543 | FPLCA - DNR Landowner Contingency Assmt | $3.00 | $3.00 | $0.00 | $0.00 | $6.00 | $0.00 |
| 2025 | 14543 | JCCD - JC Conservation District | $2.53 | $2.53 | $0.00 | $0.00 | $5.06 | $0.00 |
| 2025 | 14543 | NWA - Noxious Weed Assessment | $2.15 | $2.15 | $0.00 | $0.00 | $4.30 | $0.00 |
| 2025 | 14543 | OSS - On Site Septic | $21.50 | $21.50 | $0.00 | $0.00 | $43.00 | $0.00 |
| 2025 | 14543 | WAT - Clean Water District | $13.00 | $13.00 | $0.00 | $0.00 | $26.00 | $0.00 |
| 2025 | 14543 | FP ADMIN - FP ADMIN | $0.50 | $0.00 | $0.00 | $0.00 | $0.50 | $0.00 |
| 2025 | 14543 | TOTAL: | $420.12 | $419.55 | $0.00 | $0.00 | $839.67 | $0.00 |
|
| 2025 | 14543 | $420.12 | $419.55 | $0.00 | $0.00 | $839.67 | $0.00 |
Statement Details |
| 2024 | 14574 | STATE - STATE LEVY (SCHOOL) | $103.25 | $103.24 | $0.00 | $0.00 | $206.49 | $0.00 |
| 2024 | 14574 | COUNTY - COUNTY LEVIES (CE, DD, VET, MH) | $44.19 | $44.18 | $0.00 | $0.00 | $88.37 | $0.00 |
| 2024 | 14574 | CONSERVE - CONSERVATION FUTURES | $1.33 | $1.32 | $0.00 | $0.00 | $2.65 | $0.00 |
| 2024 | 14574 | COROADS - COUNTY ROADS (ROADS, DIV TO CE) | $35.56 | $35.54 | $0.00 | $0.00 | $71.10 | $0.00 |
| 2024 | 14574 | PORTPT - PORT DISTRICT | $18.26 | $18.24 | $0.00 | $0.00 | $36.50 | $0.00 |
| 2024 | 14574 | PUD1 - PUD #1 | $2.90 | $2.90 | $0.00 | $0.00 | $5.80 | $0.00 |
| 2024 | 14574 | LIB1 - LIBRARY DIST #1 | $13.76 | $13.75 | $0.00 | $0.00 | $27.51 | $0.00 |
| 2024 | 14574 | HD2 - HOSP DIST #2 | $2.58 | $2.58 | $0.00 | $0.00 | $5.16 | $0.00 |
| 2024 | 14574 | SD46 - SCHOOL DIST #46 | $31.00 | $30.99 | $0.00 | $0.00 | $61.99 | $0.00 |
| 2024 | 14574 | FD4 - FIRE DISTRICT #4 | $80.07 | $80.07 | $0.00 | $0.00 | $160.14 | $0.00 |
| 2024 | 14574 | EMS4 - FIRE DIST #4 EMS | $22.32 | $22.31 | $0.00 | $0.00 | $44.63 | $0.00 |
| 2024 | 14574 | CEM1 - CEMETERY DIST #1 | $0.52 | $0.52 | $0.00 | $0.00 | $1.04 | $0.00 |
| 2024 | 14574 | FP - DNR Forest Fire Protection Assmt | $8.50 | $8.50 | $0.00 | $0.00 | $17.00 | $0.00 |
| 2024 | 14574 | FPLCA - DNR Landowner Contingency Assmt | $3.00 | $3.00 | $0.00 | $0.00 | $6.00 | $0.00 |
| 2024 | 14574 | JCCD - JC Conservation District | $2.53 | $2.53 | $0.00 | $0.00 | $5.06 | $0.00 |
| 2024 | 14574 | NWA - Noxious Weed Assessment | $2.15 | $2.15 | $0.00 | $0.00 | $4.30 | $0.00 |
| 2024 | 14574 | OSS - On Site Septic | $21.00 | $21.00 | $0.00 | $0.00 | $42.00 | $0.00 |
| 2024 | 14574 | WAT - Clean Water District | $12.50 | $12.50 | $0.00 | $0.00 | $25.00 | $0.00 |
| 2024 | 14574 | FP ADMIN - FP ADMIN | $0.50 | $0.00 | $0.00 | $0.00 | $0.50 | $0.00 |
| 2024 | 14574 | TOTAL: | $405.92 | $405.32 | $0.00 | $0.00 | $811.24 | $0.00 |
|
| 2024 | 14574 | $405.92 | $405.32 | $0.00 | $0.00 | $811.24 | $0.00 |
Statement Details |
| 2023 | 14599 | STATE - STATE LEVY (SCHOOL) | $88.29 | $88.27 | $0.00 | $0.00 | $176.56 | $0.00 |
| 2023 | 14599 | COUNTY - COUNTY LEVIES (CE, DD, VET, MH) | $38.53 | $38.52 | $0.00 | $0.00 | $77.05 | $0.00 |
| 2023 | 14599 | CONSERVE - CONSERVATION FUTURES | $1.16 | $1.15 | $0.00 | $0.00 | $2.31 | $0.00 |
| 2023 | 14599 | COROADS - COUNTY ROADS (ROADS, DIV TO CE) | $31.18 | $31.16 | $0.00 | $0.00 | $62.34 | $0.00 |
| 2023 | 14599 | PORTPT - PORT DISTRICT | $16.23 | $16.22 | $0.00 | $0.00 | $32.45 | $0.00 |
| 2023 | 14599 | PUD1 - PUD #1 | $2.56 | $2.55 | $0.00 | $0.00 | $5.11 | $0.00 |
| 2023 | 14599 | LIB1 - LIBRARY DIST #1 | $12.06 | $12.06 | $0.00 | $0.00 | $24.12 | $0.00 |
| 2023 | 14599 | HD2 - HOSP DIST #2 | $2.25 | $2.24 | $0.00 | $0.00 | $4.49 | $0.00 |
| 2023 | 14599 | SD46 - SCHOOL DIST #46 | $28.82 | $28.81 | $0.00 | $0.00 | $57.63 | $0.00 |
| 2023 | 14599 | FD4 - FIRE DISTRICT #4 | $47.91 | $47.91 | $0.00 | $0.00 | $95.82 | $0.00 |
| 2023 | 14599 | EMS4 - FIRE DIST #4 EMS | $13.63 | $13.62 | $0.00 | $0.00 | $27.25 | $0.00 |
| 2023 | 14599 | CEM1 - CEMETERY DIST #1 | $0.48 | $0.48 | $0.00 | $0.00 | $0.96 | $0.00 |
| 2023 | 14599 | FP - DNR Forest Fire Protection Assmt | $8.50 | $8.50 | $0.00 | $0.00 | $17.00 | $0.00 |
| 2023 | 14599 | FPLCA - DNR Landowner Contingency Assmt | $3.00 | $3.00 | $0.00 | $0.00 | $6.00 | $0.00 |
| 2023 | 14599 | JCCD - JC Conservation District | $2.53 | $2.53 | $0.00 | $0.00 | $5.06 | $0.00 |
| 2023 | 14599 | NWA - Noxious Weed Assessment | $2.15 | $2.15 | $0.00 | $0.00 | $4.30 | $0.00 |
| 2023 | 14599 | OSS - On Site Septic | $20.50 | $20.50 | $0.00 | $0.00 | $41.00 | $0.00 |
| 2023 | 14599 | WAT - Clean Water District | $12.00 | $12.00 | $0.00 | $0.00 | $24.00 | $0.00 |
| 2023 | 14599 | FP ADMIN - FP ADMIN | $0.50 | $0.00 | $0.00 | $0.00 | $0.50 | $0.00 |
| 2023 | 14599 | TOTAL: | $332.28 | $331.67 | $0.00 | $0.00 | $663.95 | $0.00 |
|
| 2023 | 14599 | $332.28 | $331.67 | $0.00 | $0.00 | $663.95 | $0.00 |
Values
| (+) Improvement Homesite Value: | + | $0 | |
| (+) Improvement Non-Homesite Value: | + | $0 | |
| (+) Land Homesite Value: | + | $0 | |
| (+) Land Non-Homesite Value: | + | $103,500 | |
| (+) Curr Use (HS): | + | $0 | $0 |
| (+) Curr Use (NHS): | + | $0 | $0 |
| | | -------------------------- | |
| (=) Market Value: | = | $103,500 | |
| (–) Productivity Loss: | – | $0 | |
| | | -------------------------- | |
| (=) Subtotal: | = | $103,500 | |
| (+) Senior Appraised Value: | + | $0 | |
| (+) Non-Senior Appraised Value: | + | $103,500 | |
| | | -------------------------- | |
| (=) Total Appraised Value: | = | $103,500 | |
| (–) Senior Exemption Loss: | – | $0 | |
| (–) Exemption Loss: | – | $0 | |
| | | -------------------------- | |
| (=) Taxable Value: | = | $103,500 | |
Taxing Jurisdiction
| Owner: | STEVEN R & CATHERINE L CARLSON | | |
| % Ownership: | 100.0000000000% | | |
| Total Value: | $103,500 | | |
| Tax Area: | 0441 - 1-46F4E4H2C1L1P2 |
| CE | COUNTY CURRENT EXPENSE | 0.9034619479 | $103,500 | $103,500 | $93.51 | | |
| CNTYDD | DEVELOPMENTAL DISABILITIES | 0.0052121823 | $103,500 | $103,500 | $0.54 | | |
| CNTYVET | VETERANS RELIEF | 0.0052777810 | $103,500 | $103,500 | $0.55 | | |
| MENTAL | MENTAL HEALTH | 0.0052121823 | $103,500 | $103,500 | $0.54 | | |
| ROADS | COUNTY ROADS | 0.7415066410 | $103,500 | $103,500 | $76.75 | | |
| ROADSCU | COUNTY ROADS TO CUR EXP | 0.0000000000 | $103,500 | $103,500 | $0.00 | | |
| HOSP2CASH | HOSP DIST #2 GENERAL | 0.0536075306 | $103,500 | $103,500 | $5.55 | | |
| SCH46MO | SCHOOL DIST #46 EP & O | 0.6890207067 | $103,500 | $103,500 | $71.31 | | |
| CEM1 | CEMETERY DIST #1 GENERAL | 0.0107168292 | $103,500 | $103,500 | $1.11 | | |
| CONSERVE | CONSERVATION FUTURES | 0.0275621078 | $103,500 | $103,500 | $2.85 | | |
| EMS4 | FIRE DIST #4 EMS | 0.4644216158 | $103,500 | $103,500 | $48.07 | | |
| FD4 | FIRE DIST #4 GENERAL | 1.3939598390 | $103,500 | $103,500 | $144.27 | | |
| FD4BOND | FIRE DIST #4 BOND 2019 | 0.2748466981 | $103,500 | $103,500 | $28.45 | | |
| LIB1 | LIBRARY DIST #1 GENERAL | 0.2868827388 | $103,500 | $103,500 | $29.69 | | |
| PORTPT | PORT OF PT GENERAL | 0.1134941229 | $103,500 | $103,500 | $11.75 | | |
| PORTPTIDD | PORT OF PT IDD 2019 | 0.2577346692 | $103,500 | $103,500 | $26.68 | | |
| PUD1 | PUD #1 GENERAL | 0.0597888892 | $103,500 | $103,500 | $6.19 | | |
| STATE | STATE SCHOOL PART 1 | 1.4940692947 | $103,500 | $103,500 | $154.64 | | |
| STATE2 | STATE SCHOOL PART 2 | 0.8050170049 | $103,500 | $103,500 | $83.32 | | |
| | Total Tax Rate: | 7.5917927814 | | | | | |
| | | | | Taxes w/Current Exemptions: | $785.77 | | |
| | | | | Taxes w/o Exemptions: | $785.77 | | |
Improvement / Building
Sketch
| No sketches available for this property. |
Property Image
Land
| 1 | 1320-1343S | | 0.0000 | 0.00 | 0.00 | 0.00 | 1.00 | $103,500 | $0 |
Roll Value History
| 2026 | N/A | N/A | N/A | N/A | N/A |
| 2025 | $0 | $103,500 | $0 | $103,500 | $103,500 |
| 2024 | $0 | $94,500 | $0 | $94,500 | $94,500 |
| 2023 | $0 | $89,250 | $0 | $89,250 | $89,250 |
| 2022 | $0 | $75,000 | $0 | $75,000 | $75,000 |
Deed and Sales History
| 1 | 08/31/2020 | SWD | Statutory Warranty Deed | DOUGLAS & KIMBERLY HIXSON | STEVEN R & CATHERINE L CARLSON | | | $129,500.00 | 135031 | |
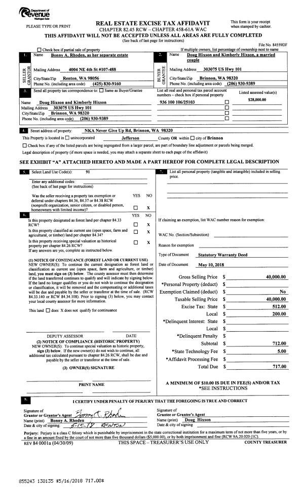
| 2 | 05/10/2018 | SWD | Statutory Warranty Deed | BONNY A RHODEN | DOUGLAS & KIMBERLY HIXSON | | | $40,000.00 | 130135 | |
| 3 | 04/09/2015 | DILF | Deed in Lieu of Foreclosure | WANDA J FALCONE | BONNY A RHODEN | | | | 123034 | |
| 4 | 06/15/2005 | SWD | Statutory Warranty Deed | DALGLEISH, JAMES SCOTT | FALCONE, WANDA JEAN | | | $35,000.00 | 103884 | 0 |
| 5 | 06/02/2003 | QCD | Quit Claim Deed | DALGLEISH, ANDREW CHESTER | DALGLEISH, JAMES SCOTT | 0 | 0 | $0.00 | 97502 | 0 |
Payout Agreement
| No payout information available.. |