Property
Account |
| Property ID: | 25168 | Abbreviated Legal Description: | BROOKSIDE ESTATES LOT 2 (UNDIV 1/6 INT IN TRACT A) SUBJ/OPEN SPACE TRACT |
| Parcel # / Geo ID: | 936500002 | Agent Code: | |
| Type: | Real | | |
| Tax Area: | 0211 - 1-49F1E1H2L1 | Land Use Code | 11 |
| Open Space: | N | DFL | N |
| Historic Property: | N | Remodel Property: | N |
| Multi-Family Redevelopment: | N | | |
| Township: | 29N | Section: | 11 |
| Range: | 1W |
Location |
| Address: | 72 BROOKSIDE ST CHIMACUM, WA 98325 | Mapsco: | 011/002 |
| Neighborhood: | S11 T29N R1W; ELKINS; LOPEMAN, COLLINS, GOEHNER, SCHADE S.P. | Map ID: | |
| Neighborhood CD: | 4240 |
Owner |
| Name: | ALANA L LINDEROTH | Owner ID: | 109496 |
| Mailing Address: | RALPH W RICCIO 735 GRANT ST PORT TOWNSEND, WA 98368-2405 | % Ownership: | 100.0000000000% |
| | | Exemptions: | |
Pay Tax Due
Select the appropriate checkbox next to the year to be paid. Multiple years may be selected.
*Convenience Fee not included
Taxes and Assessment Details
Property Tax Information as of
03/12/2026
Click on "Statement Details" to expand or collapse a tax statement.
* Please enter a valid date ** Please enter a valid date *
Statement Details |
| 2026 | 14556 | STATE - STATE LEVY (SCHOOL) | $400.54 | $400.53 | $0.00 | $0.00 | $0.00 | $801.07 |
| 2026 | 14556 | COUNTY - COUNTY LEVIES (CE, DD, VET, MH) | $160.14 | $160.14 | $0.00 | $0.00 | $0.00 | $320.28 |
| 2026 | 14556 | CONSERVE - CONSERVATION FUTURES | $4.80 | $4.80 | $0.00 | $0.00 | $0.00 | $9.60 |
| 2026 | 14556 | COROADS - COUNTY ROADS (ROADS, DIV TO CE) | $129.19 | $129.18 | $0.00 | $0.00 | $0.00 | $258.37 |
| 2026 | 14556 | PORTPT - PORT DISTRICT | $64.68 | $64.67 | $0.00 | $0.00 | $0.00 | $129.35 |
| 2026 | 14556 | PUD1 - PUD #1 | $10.42 | $10.41 | $0.00 | $0.00 | $0.00 | $20.83 |
| 2026 | 14556 | LIB1 - LIBRARY DIST #1 | $49.98 | $49.98 | $0.00 | $0.00 | $0.00 | $99.96 |
| 2026 | 14556 | HD2 - HOSP DIST #2 | $9.34 | $9.34 | $0.00 | $0.00 | $0.00 | $18.68 |
| 2026 | 14556 | SD49 - SCHOOL DIST #49 | $220.48 | $220.48 | $0.00 | $0.00 | $0.00 | $440.96 |
| 2026 | 14556 | FD1 - FIRE DISTRICT #1 | $212.06 | $212.05 | $0.00 | $0.00 | $0.00 | $424.11 |
| 2026 | 14556 | EMS1 - FIRE DIST #1 EMS | $81.53 | $81.53 | $0.00 | $0.00 | $0.00 | $163.06 |
| 2026 | 14556 | FP - DNR Forest Fire Protection Assmt | $8.50 | $8.50 | $0.00 | $0.00 | $0.00 | $17.00 |
| 2026 | 14556 | FPLCA - DNR Landowner Contingency Assmt | $3.00 | $3.00 | $0.00 | $0.00 | $0.00 | $6.00 |
| 2026 | 14556 | JCCD - JC Conservation District | $2.60 | $2.60 | $0.00 | $0.00 | $0.00 | $5.20 |
| 2026 | 14556 | NWA - Noxious Weed Assessment | $3.20 | $3.20 | $0.00 | $0.00 | $0.00 | $6.40 |
| 2026 | 14556 | WAT - Clean Water District | $13.00 | $13.00 | $0.00 | $0.00 | $0.00 | $26.00 |
| 2026 | 14556 | FP ADMIN - FP ADMIN | $0.50 | $0.00 | $0.00 | $0.00 | $0.00 | $0.50 |
| 2026 | 14556 | TOTAL: | $1373.96 | $1373.41 | $0.00 | $0.00 | $0.00 | $2747.37 |
|
| 2026 | 14556 | $1373.96 | $1373.41 | $0.00 | $0.00 | $0.00 | $2747.37 |
Statement Details |
| 2025 | 14606 | STATE - STATE LEVY (SCHOOL) | $145.49 | $145.48 | $0.00 | $0.00 | $290.97 | $0.00 |
| 2025 | 14606 | COUNTY - COUNTY LEVIES (CE, DD, VET, MH) | $57.23 | $57.20 | $0.00 | $0.00 | $114.43 | $0.00 |
| 2025 | 14606 | CONSERVE - CONSERVATION FUTURES | $1.72 | $1.71 | $0.00 | $0.00 | $3.43 | $0.00 |
| 2025 | 14606 | COROADS - COUNTY ROADS (ROADS, DIV TO CE) | $45.84 | $45.83 | $0.00 | $0.00 | $91.67 | $0.00 |
| 2025 | 14606 | PORTPT - PORT DISTRICT | $23.35 | $23.34 | $0.00 | $0.00 | $46.69 | $0.00 |
| 2025 | 14606 | PUD1 - PUD #1 | $3.75 | $3.74 | $0.00 | $0.00 | $7.49 | $0.00 |
| 2025 | 14606 | LIB1 - LIBRARY DIST #1 | $17.74 | $17.73 | $0.00 | $0.00 | $35.47 | $0.00 |
| 2025 | 14606 | HD2 - HOSP DIST #2 | $3.34 | $3.34 | $0.00 | $0.00 | $6.68 | $0.00 |
| 2025 | 14606 | SD49 - SCHOOL DIST #49 | $77.98 | $77.97 | $0.00 | $0.00 | $155.95 | $0.00 |
| 2025 | 14606 | FD1 - FIRE DISTRICT #1 | $75.50 | $75.49 | $0.00 | $0.00 | $150.99 | $0.00 |
| 2025 | 14606 | EMS1 - FIRE DIST #1 EMS | $29.04 | $29.04 | $0.00 | $0.00 | $58.08 | $0.00 |
| 2025 | 14606 | FP - DNR Forest Fire Protection Assmt | $8.50 | $8.50 | $0.00 | $0.00 | $17.00 | $0.00 |
| 2025 | 14606 | FPLCA - DNR Landowner Contingency Assmt | $3.00 | $3.00 | $0.00 | $0.00 | $6.00 | $0.00 |
| 2025 | 14606 | JCCD - JC Conservation District | $2.57 | $2.57 | $0.00 | $0.00 | $5.14 | $0.00 |
| 2025 | 14606 | NWA - Noxious Weed Assessment | $2.30 | $2.30 | $0.00 | $0.00 | $4.60 | $0.00 |
| 2025 | 14606 | WAT - Clean Water District | $13.00 | $13.00 | $0.00 | $0.00 | $26.00 | $0.00 |
| 2025 | 14606 | FP ADMIN - FP ADMIN | $0.50 | $0.00 | $0.00 | $0.00 | $0.50 | $0.00 |
| 2025 | 14606 | TOTAL: | $510.85 | $510.24 | $0.00 | $0.00 | $1021.09 | $0.00 |
|
| 2025 | 14606 | $510.85 | $510.24 | $0.00 | $0.00 | $1021.09 | $0.00 |
Statement Details |
| 2024 | 14637 | STATE - STATE LEVY (SCHOOL) | $98.78 | $98.78 | $0.00 | $0.00 | $197.56 | $0.00 |
| 2024 | 14637 | COUNTY - COUNTY LEVIES (CE, DD, VET, MH) | $42.27 | $42.27 | $0.00 | $0.00 | $84.54 | $0.00 |
| 2024 | 14637 | CONSERVE - CONSERVATION FUTURES | $1.27 | $1.26 | $0.00 | $0.00 | $2.53 | $0.00 |
| 2024 | 14637 | COROADS - COUNTY ROADS (ROADS, DIV TO CE) | $34.02 | $34.00 | $0.00 | $0.00 | $68.02 | $0.00 |
| 2024 | 14637 | PORTPT - PORT DISTRICT | $17.46 | $17.46 | $0.00 | $0.00 | $34.92 | $0.00 |
| 2024 | 14637 | PUD1 - PUD #1 | $2.78 | $2.77 | $0.00 | $0.00 | $5.55 | $0.00 |
| 2024 | 14637 | LIB1 - LIBRARY DIST #1 | $13.16 | $13.16 | $0.00 | $0.00 | $26.32 | $0.00 |
| 2024 | 14637 | HD2 - HOSP DIST #2 | $2.47 | $2.46 | $0.00 | $0.00 | $4.93 | $0.00 |
| 2024 | 14637 | SD49 - SCHOOL DIST #49 | $44.11 | $44.11 | $0.00 | $0.00 | $88.22 | $0.00 |
| 2024 | 14637 | FD1 - FIRE DISTRICT #1 | $55.89 | $55.89 | $0.00 | $0.00 | $111.78 | $0.00 |
| 2024 | 14637 | EMS1 - FIRE DIST #1 EMS | $21.35 | $21.35 | $0.00 | $0.00 | $42.70 | $0.00 |
| 2024 | 14637 | JCCD - JC Conservation District | $2.57 | $2.57 | $0.00 | $0.00 | $5.14 | $0.00 |
| 2024 | 14637 | NWA - Noxious Weed Assessment | $2.30 | $2.30 | $0.00 | $0.00 | $4.60 | $0.00 |
| 2024 | 14637 | WAT - Clean Water District | $12.50 | $12.50 | $0.00 | $0.00 | $25.00 | $0.00 |
| 2024 | 14637 | TOTAL: | $350.93 | $350.88 | $0.00 | $0.00 | $701.81 | $0.00 |
|
| 2024 | 14637 | $350.93 | $350.88 | $0.00 | $0.00 | $701.81 | $0.00 |
Statement Details |
| 2023 | 14662 | STATE - STATE LEVY (SCHOOL) | $66.14 | $66.14 | $0.00 | $0.00 | $132.28 | $0.00 |
| 2023 | 14662 | COUNTY - COUNTY LEVIES (CE, DD, VET, MH) | $28.88 | $28.85 | $0.00 | $0.00 | $57.73 | $0.00 |
| 2023 | 14662 | CONSERVE - CONSERVATION FUTURES | $0.87 | $0.86 | $0.00 | $0.00 | $1.73 | $0.00 |
| 2023 | 14662 | COROADS - COUNTY ROADS (ROADS, DIV TO CE) | $23.36 | $23.34 | $0.00 | $0.00 | $46.70 | $0.00 |
| 2023 | 14662 | PORTPT - PORT DISTRICT | $12.17 | $12.15 | $0.00 | $0.00 | $24.32 | $0.00 |
| 2023 | 14662 | PUD1 - PUD #1 | $1.92 | $1.91 | $0.00 | $0.00 | $3.83 | $0.00 |
| 2023 | 14662 | LIB1 - LIBRARY DIST #1 | $9.04 | $9.03 | $0.00 | $0.00 | $18.07 | $0.00 |
| 2023 | 14662 | HD2 - HOSP DIST #2 | $1.69 | $1.68 | $0.00 | $0.00 | $3.37 | $0.00 |
| 2023 | 14662 | SD49 - SCHOOL DIST #49 | $30.92 | $30.91 | $0.00 | $0.00 | $61.83 | $0.00 |
| 2023 | 14662 | FD1 - FIRE DISTRICT #1 | $23.78 | $23.77 | $0.00 | $0.00 | $47.55 | $0.00 |
| 2023 | 14662 | EMS1 - FIRE DIST #1 EMS | $10.12 | $10.11 | $0.00 | $0.00 | $20.23 | $0.00 |
| 2023 | 14662 | JCCD - JC Conservation District | $2.57 | $2.57 | $0.00 | $0.00 | $5.14 | $0.00 |
| 2023 | 14662 | NWA - Noxious Weed Assessment | $2.30 | $2.30 | $0.00 | $0.00 | $4.60 | $0.00 |
| 2023 | 14662 | WAT - Clean Water District | $12.00 | $12.00 | $0.00 | $0.00 | $24.00 | $0.00 |
| 2023 | 14662 | TOTAL: | $225.76 | $225.62 | $0.00 | $0.00 | $451.38 | $0.00 |
|
| 2023 | 14662 | $225.76 | $225.62 | $0.00 | $0.00 | $451.38 | $0.00 |
Values
| (+) Improvement Homesite Value: | + | $0 | |
| (+) Improvement Non-Homesite Value: | + | $163,789 | |
| (+) Land Homesite Value: | + | $0 | |
| (+) Land Non-Homesite Value: | + | $184,644 | |
| (+) Curr Use (HS): | + | $0 | $0 |
| (+) Curr Use (NHS): | + | $0 | $0 |
| | | -------------------------- | |
| (=) Market Value: | = | $348,433 | |
| (–) Productivity Loss: | – | $0 | |
| | | -------------------------- | |
| (=) Subtotal: | = | $348,433 | |
| (+) Senior Appraised Value: | + | $0 | |
| (+) Non-Senior Appraised Value: | + | $348,433 | |
| | | -------------------------- | |
| (=) Total Appraised Value: | = | $348,433 | |
| (–) Senior Exemption Loss: | – | $0 | |
| (–) Exemption Loss: | – | $0 | |
| | | -------------------------- | |
| (=) Taxable Value: | = | $348,433 | |
Taxing Jurisdiction
| Owner: | ALANA L LINDEROTH | | |
| % Ownership: | 100.0000000000% | | |
| Total Value: | $348,433 | | |
| Tax Area: | 0211 - 1-49F1E1H2L1 |
| CE | COUNTY CURRENT EXPENSE | 0.9034619479 | $348,433 | $348,433 | $314.80 | | |
| CNTYDD | DEVELOPMENTAL DISABILITIES | 0.0052121823 | $348,433 | $348,433 | $1.82 | | |
| CNTYVET | VETERANS RELIEF | 0.0052777810 | $348,433 | $348,433 | $1.84 | | |
| MENTAL | MENTAL HEALTH | 0.0052121823 | $348,433 | $348,433 | $1.82 | | |
| ROADS | COUNTY ROADS | 0.7415066410 | $348,433 | $348,433 | $258.37 | | |
| ROADSCU | COUNTY ROADS TO CUR EXP | 0.0000000000 | $348,433 | $348,433 | $0.00 | | |
| HOSP2CASH | HOSP DIST #2 GENERAL | 0.0536075306 | $348,433 | $348,433 | $18.68 | | |
| SCH49CP | SCHOOL DIST #49 CAP PROJ | 0.6279093905 | $348,433 | $348,433 | $218.78 | | |
| SCH49MO | SCHOOL DIST #49 EP & O | 0.6376483602 | $348,433 | $348,433 | $222.18 | | |
| CONSERVE | CONSERVATION FUTURES | 0.0275621078 | $348,433 | $348,433 | $9.60 | | |
| EMS1 | FIRE DIST #1 EMS | 0.4679948282 | $348,433 | $348,433 | $163.06 | | |
| FD1 | FIRE DIST #1 GENERAL | 1.2171942929 | $348,433 | $348,433 | $424.11 | | |
| LIB1 | LIBRARY DIST #1 GENERAL | 0.2868827388 | $348,433 | $348,433 | $99.96 | | |
| PORTPT | PORT OF PT GENERAL | 0.1134941229 | $348,433 | $348,433 | $39.55 | | |
| PORTPTIDD | PORT OF PT IDD 2019 | 0.2577346692 | $348,433 | $348,433 | $89.80 | | |
| PUD1 | PUD #1 GENERAL | 0.0597888892 | $348,433 | $348,433 | $20.83 | | |
| STATE | STATE SCHOOL PART 1 | 1.4940692947 | $348,433 | $348,433 | $520.58 | | |
| STATE2 | STATE SCHOOL PART 2 | 0.8050170049 | $348,433 | $348,433 | $280.49 | | |
| | Total Tax Rate: | 7.7095739644 | | | | | |
| | | | | Taxes w/Current Exemptions: | $2,686.27 | | |
| | | | | Taxes w/o Exemptions: | $2,686.27 | | |
Improvement / Building
| Improvement #1: | Residential Bldg | State Code: | 11 | 2347.0 sqft | Value: | $163,789 |
| Bathrooms (#): | 2 (FULL) | Bathrooms (#): | 1 (HALF) | | Bedrooms (#): | 3 | Exterior Wall: | SI/ST | | Floor Construction: | FRAME | Foundation: | CONPR | | Heating/Cooling: | HPUMP | Interior Finish: | FIN | | Roof Cover: | COMP |   |   |
|
| | Type | Description | Class CD | Sub Class CD | Year Built | Area |
| | MA | Main Area | 4+ | 15SF | 2025 | 1642.0 |
| | MA2 | Second Floor Main Area | 4+ | 15SF | 2025 | 705.0 |
| | GATT | House Attached Garage | 4 | 15SF | 2025 | 528.0 |
Sketch
Property Image
Land
| 1 | 4240-1374S | | 1.0000 | 43560.00 | 0.00 | 0.00 | 1.00 | $181,125 | $0 |
| 2 | 1572A | | 0.1700 | 7405.20 | 0.00 | 0.00 | 0.00 | $3,519 | $0 |
Roll Value History
| 2026 | N/A | N/A | N/A | N/A | N/A |
| 2025 | $163,789 | $184,644 | $0 | $348,433 | $348,433 |
| 2024 | $0 | $121,338 | $0 | $121,338 | $121,338 |
| 2023 | $0 | $85,390 | $0 | $85,390 | $85,390 |
| 2022 | $0 | $56,190 | $0 | $56,190 | $56,190 |
Deed and Sales History
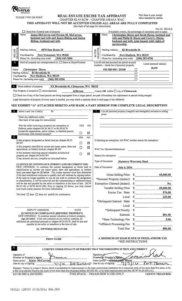
| 1 | 08/03/2023 | SWD | Statutory Warranty Deed | CHRISTOPHER & SARAH HAYES | ALANA L LINDEROTH | | | $125,000.00 | 141356 | |
| 2 | 07/06/2016 | SWD | Statutory Warranty Deed | JAMES & NORINE MC CARRON | CHRISTOPHER & SARAH HAYES | | | $45,000.00 | 125797 | |
| 3 | 06/13/2016 | QCD | Quit Claim Deed | | | | | $2,000.00 | 125632 | |
| 4 | 05/14/2003 | QCD | Quit Claim Deed | SEIL, ERICA L | SEIL, CHARLES C | 0 | 0 | $0.00 | 100221 | 0 |
Payout Agreement
| No payout information available.. |