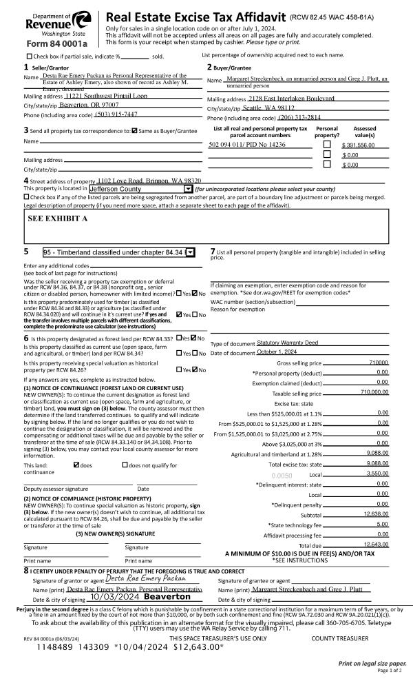
Property
Account |
| Property ID: | 25170 | Abbreviated Legal Description: | BROOKSIDE ESTATES LOT 4 (UNDIV 1/6 INT IN TRACT A) SUBJ/OPEN SPACE TRACT |
| Parcel # / Geo ID: | 936500004 | Agent Code: | |
| Type: | Real | | |
| Tax Area: | 0211 - 1-49F1E1H2L1 | Land Use Code | 11 |
| Open Space: | N | DFL | N |
| Historic Property: | N | Remodel Property: | N |
| Multi-Family Redevelopment: | N | | |
| Township: | 29N | Section: | 11 |
| Range: | 1W |
Location |
| Address: | 110 BROOKSIDE ST PORT HADLOCK, WA 98339 | Mapsco: | 011/004 |
| Neighborhood: | S11 T29N R1W; ELKINS; LOPEMAN, COLLINS, GOEHNER, SCHADE S.P. | Map ID: | |
| Neighborhood CD: | 4240 |
Owner |
| Name: | ANYA G CALLAHAN | Owner ID: | 111203 |
| Mailing Address: | PO BOX 1002 CHIMACUM, WA 98325-1002 | % Ownership: | 100.0000000000% |
| | | Exemptions: | |
Pay Tax Due
Select the appropriate checkbox next to the year to be paid. Multiple years may be selected.
*Convenience Fee not included
Taxes and Assessment Details
Property Tax Information as of
03/10/2026
Click on "Statement Details" to expand or collapse a tax statement.
* Please enter a valid date ** Please enter a valid date *
Statement Details |
| 2026 | 14558 | STATE - STATE LEVY (SCHOOL) | $623.56 | $623.54 | $0.00 | $0.00 | $0.00 | $1247.10 |
| 2026 | 14558 | COUNTY - COUNTY LEVIES (CE, DD, VET, MH) | $249.31 | $249.28 | $0.00 | $0.00 | $0.00 | $498.59 |
| 2026 | 14558 | CONSERVE - CONSERVATION FUTURES | $7.48 | $7.47 | $0.00 | $0.00 | $0.00 | $14.95 |
| 2026 | 14558 | COROADS - COUNTY ROADS (ROADS, DIV TO CE) | $201.11 | $201.11 | $0.00 | $0.00 | $0.00 | $402.22 |
| 2026 | 14558 | PORTPT - PORT DISTRICT | $100.68 | $100.68 | $0.00 | $0.00 | $0.00 | $201.36 |
| 2026 | 14558 | PUD1 - PUD #1 | $16.22 | $16.21 | $0.00 | $0.00 | $0.00 | $32.43 |
| 2026 | 14558 | LIB1 - LIBRARY DIST #1 | $77.81 | $77.80 | $0.00 | $0.00 | $0.00 | $155.61 |
| 2026 | 14558 | HD2 - HOSP DIST #2 | $14.54 | $14.54 | $0.00 | $0.00 | $0.00 | $29.08 |
| 2026 | 14558 | SD49 - SCHOOL DIST #49 | $343.24 | $343.24 | $0.00 | $0.00 | $0.00 | $686.48 |
| 2026 | 14558 | FD1 - FIRE DISTRICT #1 | $330.13 | $330.12 | $0.00 | $0.00 | $0.00 | $660.25 |
| 2026 | 14558 | EMS1 - FIRE DIST #1 EMS | $126.93 | $126.93 | $0.00 | $0.00 | $0.00 | $253.86 |
| 2026 | 14558 | FP - DNR Forest Fire Protection Assmt | $8.50 | $8.50 | $0.00 | $0.00 | $0.00 | $17.00 |
| 2026 | 14558 | FPLCA - DNR Landowner Contingency Assmt | $3.00 | $3.00 | $0.00 | $0.00 | $0.00 | $6.00 |
| 2026 | 14558 | JCCD - JC Conservation District | $2.60 | $2.60 | $0.00 | $0.00 | $0.00 | $5.20 |
| 2026 | 14558 | NWA - Noxious Weed Assessment | $3.20 | $3.20 | $0.00 | $0.00 | $0.00 | $6.40 |
| 2026 | 14558 | OSS - On Site Septic | $23.10 | $23.10 | $0.00 | $0.00 | $0.00 | $46.20 |
| 2026 | 14558 | WAT - Clean Water District | $13.00 | $13.00 | $0.00 | $0.00 | $0.00 | $26.00 |
| 2026 | 14558 | FP ADMIN - FP ADMIN | $0.50 | $0.00 | $0.00 | $0.00 | $0.00 | $0.50 |
| 2026 | 14558 | TOTAL: | $2144.91 | $2144.32 | $0.00 | $0.00 | $0.00 | $4289.23 |
|
| 2026 | 14558 | $2144.91 | $2144.32 | $0.00 | $0.00 | $0.00 | $4289.23 |
Statement Details |
| 2025 | 14608 | STATE - STATE LEVY (SCHOOL) | $528.94 | $528.93 | $0.00 | $0.00 | $1057.87 | $0.00 |
| 2025 | 14608 | COUNTY - COUNTY LEVIES (CE, DD, VET, MH) | $208.01 | $207.98 | $0.00 | $0.00 | $415.99 | $0.00 |
| 2025 | 14608 | CONSERVE - CONSERVATION FUTURES | $6.24 | $6.23 | $0.00 | $0.00 | $12.47 | $0.00 |
| 2025 | 14608 | COROADS - COUNTY ROADS (ROADS, DIV TO CE) | $166.65 | $166.63 | $0.00 | $0.00 | $333.28 | $0.00 |
| 2025 | 14608 | PORTPT - PORT DISTRICT | $84.89 | $84.87 | $0.00 | $0.00 | $169.76 | $0.00 |
| 2025 | 14608 | PUD1 - PUD #1 | $13.61 | $13.61 | $0.00 | $0.00 | $27.22 | $0.00 |
| 2025 | 14608 | LIB1 - LIBRARY DIST #1 | $64.47 | $64.47 | $0.00 | $0.00 | $128.94 | $0.00 |
| 2025 | 14608 | HD2 - HOSP DIST #2 | $12.14 | $12.13 | $0.00 | $0.00 | $24.27 | $0.00 |
| 2025 | 14608 | SD49 - SCHOOL DIST #49 | $283.48 | $283.47 | $0.00 | $0.00 | $566.95 | $0.00 |
| 2025 | 14608 | FD1 - FIRE DISTRICT #1 | $274.48 | $274.48 | $0.00 | $0.00 | $548.96 | $0.00 |
| 2025 | 14608 | EMS1 - FIRE DIST #1 EMS | $105.57 | $105.57 | $0.00 | $0.00 | $211.14 | $0.00 |
| 2025 | 14608 | FP - DNR Forest Fire Protection Assmt | $8.50 | $8.50 | $0.00 | $0.00 | $17.00 | $0.00 |
| 2025 | 14608 | FPLCA - DNR Landowner Contingency Assmt | $3.00 | $3.00 | $0.00 | $0.00 | $6.00 | $0.00 |
| 2025 | 14608 | JCCD - JC Conservation District | $2.60 | $2.60 | $0.00 | $0.00 | $5.20 | $0.00 |
| 2025 | 14608 | NWA - Noxious Weed Assessment | $2.30 | $2.30 | $0.00 | $0.00 | $4.60 | $0.00 |
| 2025 | 14608 | OSS - On Site Septic | $21.50 | $21.50 | $0.00 | $0.00 | $43.00 | $0.00 |
| 2025 | 14608 | WAT - Clean Water District | $13.00 | $13.00 | $0.00 | $0.00 | $26.00 | $0.00 |
| 2025 | 14608 | FP ADMIN - FP ADMIN | $0.50 | $0.00 | $0.00 | $0.00 | $0.50 | $0.00 |
| 2025 | 14608 | TOTAL: | $1799.88 | $1799.27 | $0.00 | $0.00 | $3599.15 | $0.00 |
|
| 2025 | 14608 | $1799.88 | $1799.27 | $0.00 | $0.00 | $3599.15 | $0.00 |
Statement Details |
| 2024 | 14639 | STATE - STATE LEVY (SCHOOL) | $378.62 | $378.61 | $0.00 | $0.00 | $757.23 | $0.00 |
| 2024 | 14639 | COUNTY - COUNTY LEVIES (CE, DD, VET, MH) | $162.03 | $161.99 | $0.00 | $0.00 | $324.02 | $0.00 |
| 2024 | 14639 | CONSERVE - CONSERVATION FUTURES | $4.86 | $4.86 | $0.00 | $0.00 | $9.72 | $0.00 |
| 2024 | 14639 | COROADS - COUNTY ROADS (ROADS, DIV TO CE) | $130.37 | $130.36 | $0.00 | $0.00 | $260.73 | $0.00 |
| 2024 | 14639 | PORTPT - PORT DISTRICT | $66.93 | $66.91 | $0.00 | $0.00 | $133.84 | $0.00 |
| 2024 | 14639 | PUD1 - PUD #1 | $10.64 | $10.64 | $0.00 | $0.00 | $21.28 | $0.00 |
| 2024 | 14639 | LIB1 - LIBRARY DIST #1 | $50.44 | $50.44 | $0.00 | $0.00 | $100.88 | $0.00 |
| 2024 | 14639 | HD2 - HOSP DIST #2 | $9.46 | $9.45 | $0.00 | $0.00 | $18.91 | $0.00 |
| 2024 | 14639 | SD49 - SCHOOL DIST #49 | $169.07 | $169.07 | $0.00 | $0.00 | $338.14 | $0.00 |
| 2024 | 14639 | FD1 - FIRE DISTRICT #1 | $214.22 | $214.22 | $0.00 | $0.00 | $428.44 | $0.00 |
| 2024 | 14639 | EMS1 - FIRE DIST #1 EMS | $81.83 | $81.82 | $0.00 | $0.00 | $163.65 | $0.00 |
| 2024 | 14639 | JCCD - JC Conservation District | $2.60 | $2.60 | $0.00 | $0.00 | $5.20 | $0.00 |
| 2024 | 14639 | NWA - Noxious Weed Assessment | $2.30 | $2.30 | $0.00 | $0.00 | $4.60 | $0.00 |
| 2024 | 14639 | OSS - On Site Septic | $21.00 | $21.00 | $0.00 | $0.00 | $42.00 | $0.00 |
| 2024 | 14639 | WAT - Clean Water District | $12.50 | $12.50 | $0.00 | $0.00 | $25.00 | $0.00 |
| 2024 | 14639 | TOTAL: | $1316.87 | $1316.77 | $0.00 | $0.00 | $2633.64 | $0.00 |
|
| 2024 | 14639 | $1316.87 | $1316.77 | $0.00 | $0.00 | $2633.64 | $0.00 |
Statement Details |
| 2023 | 14664 | STATE - STATE LEVY (SCHOOL) | $331.31 | $331.30 | $0.00 | $0.00 | $662.61 | $0.00 |
| 2023 | 14664 | COUNTY - COUNTY LEVIES (CE, DD, VET, MH) | $144.57 | $144.57 | $0.00 | $0.00 | $289.14 | $0.00 |
| 2023 | 14664 | CONSERVE - CONSERVATION FUTURES | $4.34 | $4.33 | $0.00 | $0.00 | $8.67 | $0.00 |
| 2023 | 14664 | COROADS - COUNTY ROADS (ROADS, DIV TO CE) | $116.97 | $116.96 | $0.00 | $0.00 | $233.93 | $0.00 |
| 2023 | 14664 | PORTPT - PORT DISTRICT | $60.90 | $60.90 | $0.00 | $0.00 | $121.80 | $0.00 |
| 2023 | 14664 | PUD1 - PUD #1 | $9.59 | $9.58 | $0.00 | $0.00 | $19.17 | $0.00 |
| 2023 | 14664 | LIB1 - LIBRARY DIST #1 | $45.26 | $45.25 | $0.00 | $0.00 | $90.51 | $0.00 |
| 2023 | 14664 | HD2 - HOSP DIST #2 | $8.44 | $8.43 | $0.00 | $0.00 | $16.87 | $0.00 |
| 2023 | 14664 | SD49 - SCHOOL DIST #49 | $154.88 | $154.86 | $0.00 | $0.00 | $309.74 | $0.00 |
| 2023 | 14664 | FD1 - FIRE DISTRICT #1 | $119.10 | $119.10 | $0.00 | $0.00 | $238.20 | $0.00 |
| 2023 | 14664 | EMS1 - FIRE DIST #1 EMS | $50.66 | $50.66 | $0.00 | $0.00 | $101.32 | $0.00 |
| 2023 | 14664 | JCCD - JC Conservation District | $2.60 | $2.60 | $0.00 | $0.00 | $5.20 | $0.00 |
| 2023 | 14664 | NWA - Noxious Weed Assessment | $2.30 | $2.30 | $0.00 | $0.00 | $4.60 | $0.00 |
| 2023 | 14664 | OSS - On Site Septic | $20.50 | $20.50 | $0.00 | $0.00 | $41.00 | $0.00 |
| 2023 | 14664 | WAT - Clean Water District | $12.00 | $12.00 | $0.00 | $0.00 | $24.00 | $0.00 |
| 2023 | 14664 | TOTAL: | $1083.42 | $1083.34 | $0.00 | $0.00 | $2166.76 | $0.00 |
|
| 2023 | 14664 | $1083.42 | $1083.34 | $0.00 | $0.00 | $2166.76 | $0.00 |
Values
| (+) Improvement Homesite Value: | + | $0 | |
| (+) Improvement Non-Homesite Value: | + | $379,732 | |
| (+) Land Homesite Value: | + | $0 | |
| (+) Land Non-Homesite Value: | + | $162,702 | |
| (+) Curr Use (HS): | + | $0 | $0 |
| (+) Curr Use (NHS): | + | $0 | $0 |
| | | -------------------------- | |
| (=) Market Value: | = | $542,434 | |
| (–) Productivity Loss: | – | $0 | |
| | | -------------------------- | |
| (=) Subtotal: | = | $542,434 | |
| (+) Senior Appraised Value: | + | $0 | |
| (+) Non-Senior Appraised Value: | + | $542,434 | |
| | | -------------------------- | |
| (=) Total Appraised Value: | = | $542,434 | |
| (–) Senior Exemption Loss: | – | $0 | |
| (–) Exemption Loss: | – | $0 | |
| | | -------------------------- | |
| (=) Taxable Value: | = | $542,434 | |
Taxing Jurisdiction
| Owner: | ANYA G CALLAHAN | | |
| % Ownership: | 100.0000000000% | | |
| Total Value: | $542,434 | | |
| Tax Area: | 0211 - 1-49F1E1H2L1 |
| CE | COUNTY CURRENT EXPENSE | 0.9034619479 | $542,434 | $542,434 | $490.07 | | |
| CNTYDD | DEVELOPMENTAL DISABILITIES | 0.0052121823 | $542,434 | $542,434 | $2.83 | | |
| CNTYVET | VETERANS RELIEF | 0.0052777810 | $542,434 | $542,434 | $2.86 | | |
| MENTAL | MENTAL HEALTH | 0.0052121823 | $542,434 | $542,434 | $2.83 | | |
| ROADS | COUNTY ROADS | 0.7415066410 | $542,434 | $542,434 | $402.22 | | |
| ROADSCU | COUNTY ROADS TO CUR EXP | 0.0000000000 | $542,434 | $542,434 | $0.00 | | |
| HOSP2CASH | HOSP DIST #2 GENERAL | 0.0536075306 | $542,434 | $542,434 | $29.08 | | |
| SCH49CP | SCHOOL DIST #49 CAP PROJ | 0.6279093905 | $542,434 | $542,434 | $340.60 | | |
| SCH49MO | SCHOOL DIST #49 EP & O | 0.6376483602 | $542,434 | $542,434 | $345.88 | | |
| CONSERVE | CONSERVATION FUTURES | 0.0275621078 | $542,434 | $542,434 | $14.95 | | |
| EMS1 | FIRE DIST #1 EMS | 0.4679948282 | $542,434 | $542,434 | $253.86 | | |
| FD1 | FIRE DIST #1 GENERAL | 1.2171942929 | $542,434 | $542,434 | $660.25 | | |
| LIB1 | LIBRARY DIST #1 GENERAL | 0.2868827388 | $542,434 | $542,434 | $155.61 | | |
| PORTPT | PORT OF PT GENERAL | 0.1134941229 | $542,434 | $542,434 | $61.56 | | |
| PORTPTIDD | PORT OF PT IDD 2019 | 0.2577346692 | $542,434 | $542,434 | $139.80 | | |
| PUD1 | PUD #1 GENERAL | 0.0597888892 | $542,434 | $542,434 | $32.43 | | |
| STATE | STATE SCHOOL PART 1 | 1.4940692947 | $542,434 | $542,434 | $810.43 | | |
| STATE2 | STATE SCHOOL PART 2 | 0.8050170049 | $542,434 | $542,434 | $436.67 | | |
| | Total Tax Rate: | 7.7095739644 | | | | | |
| | | | | Taxes w/Current Exemptions: | $4,181.93 | | |
| | | | | Taxes w/o Exemptions: | $4,181.93 | | |
Improvement / Building
| Improvement #1: | Residential Bldg | State Code: | 11 | 1105.0 sqft | Value: | $379,732 |
| Bathrooms (#): | 1 (FULL) | Bedrooms (#): | 3 | | Exterior Wall: | SI/ST | Floor Construction: | CONCR | | Foundation: | CONPR | Heating/Cooling: | HPUMP | | Inside Verify: | NO | Roof Cover: | COMP |
|
| | Type | Description | Class CD | Sub Class CD | Year Built | Area |
| | MA | Main Area | 5 | 1S | 2014 | 1105.0 |
| | HCPOR | House Concrete Porch | 5 | * | 2014 | 160.0 |
| | SHED | Shed (Table Not Dep) | 5 | * | 2014 | 32.0 |
| | SOLAR | Solar Panel | 5 | * | 2016 | 0.0 |
| | SHED | Shed (Table Not Dep) | 5 | * | 2016 | 96.0 |
| | HCPOR | House Concrete Porch | 5 | * | 2014 | 80.0 |
Sketch
Property Image
Land
| 1 | 1572A | | 0.3600 | 15681.60 | 0.00 | 0.00 | 0.00 | $7,452 | $0 |
| 2 | 4240-1373S | | 1.0000 | 43560.00 | 0.00 | 0.00 | 1.00 | $155,250 | $0 |
Roll Value History
| 2026 | N/A | N/A | N/A | N/A | N/A |
| 2025 | $379,732 | $162,702 | $0 | $542,434 | $542,434 |
| 2024 | $292,587 | $148,554 | $0 | $441,141 | $441,141 |
| 2023 | $244,594 | $82,700 | $0 | $327,294 | $327,294 |
| 2022 | $203,944 | $77,520 | $0 | $281,464 | $281,464 |
Deed and Sales History
| 1 | 07/24/2024 | SWD | Statutory Warranty Deed | KEIDREN J DEVAS | ANYA G CALLAHAN | | | $675,000.00 | 142990 | |
| 2 | 10/16/2014 | SWD | Statutory Warranty Deed | HABITAT FOR HUMANITY OF EAST | KEIDREN J DEVAS | | | $175,000.00 | 122098 | |
| 3 | 10/19/2011 | SWD | Statutory Warranty Deed | MC CARRON, JAMES P/NOREEN | HABITAT FOR HUMANITY OF E J | 0 | 0 | $0.00 | 116663 | 0 |
Payout Agreement
| No payout information available.. |