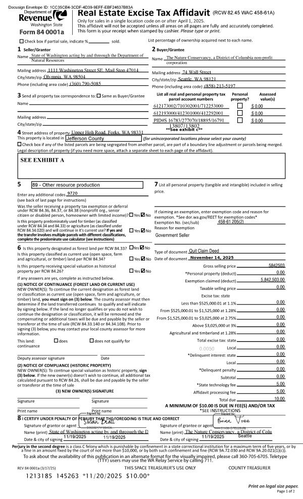
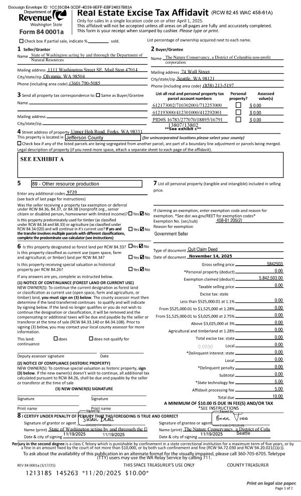
Property
Account |
| Property ID: | 25180 | Abbreviated Legal Description: | BROOKWOOD GLEN LOT 7 |
| Parcel # / Geo ID: | 936600007 | Agent Code: | |
| Type: | Real | | |
| Tax Area: | 0211 - 1-49F1E1H2L1 | Land Use Code | 11 |
| Open Space: | N | DFL | N |
| Historic Property: | N | Remodel Property: | N |
| Multi-Family Redevelopment: | N | | |
| Township: | 29N | Section: | 11 |
| Range: | 1W |
Location |
| Address: | 141 FERN WAY CHIMACUM, WA 98325 | Mapsco: | 011/018 |
| Neighborhood: | BROOKWOOD GLEN | Map ID: | |
| Neighborhood CD: | 4245 |
Owner |
| Name: | DOUGLAS L JOYCE TRUST | Owner ID: | 113388 |
| Mailing Address: | DOUGLAS L JOYCE TRUSTEE LEESAN D JOYCE-MARLATT TRUSTEE 990 CHIMACUM RD PORT HADLOCK, WA 98339-9715 | % Ownership: | 100.0000000000% |
| | | Exemptions: | |
Pay Tax Due
Select the appropriate checkbox next to the year to be paid. Multiple years may be selected.
*Convenience Fee not included
Taxes and Assessment Details
Property Tax Information as of
03/10/2026
Click on "Statement Details" to expand or collapse a tax statement.
* Please enter a valid date ** Please enter a valid date *
Statement Details |
| 2026 | 14568 | STATE - STATE LEVY (SCHOOL) | $145.51 | $145.51 | $0.00 | $0.00 | $0.00 | $291.02 |
| 2026 | 14568 | COUNTY - COUNTY LEVIES (CE, DD, VET, MH) | $58.18 | $58.17 | $0.00 | $0.00 | $0.00 | $116.35 |
| 2026 | 14568 | CONSERVE - CONSERVATION FUTURES | $1.75 | $1.74 | $0.00 | $0.00 | $0.00 | $3.49 |
| 2026 | 14568 | COROADS - COUNTY ROADS (ROADS, DIV TO CE) | $46.93 | $46.93 | $0.00 | $0.00 | $0.00 | $93.86 |
| 2026 | 14568 | PORTPT - PORT DISTRICT | $23.50 | $23.49 | $0.00 | $0.00 | $0.00 | $46.99 |
| 2026 | 14568 | PUD1 - PUD #1 | $3.79 | $3.78 | $0.00 | $0.00 | $0.00 | $7.57 |
| 2026 | 14568 | LIB1 - LIBRARY DIST #1 | $18.16 | $18.15 | $0.00 | $0.00 | $0.00 | $36.31 |
| 2026 | 14568 | HD2 - HOSP DIST #2 | $3.40 | $3.39 | $0.00 | $0.00 | $0.00 | $6.79 |
| 2026 | 14568 | SD49 - SCHOOL DIST #49 | $80.10 | $80.09 | $0.00 | $0.00 | $0.00 | $160.19 |
| 2026 | 14568 | FD1 - FIRE DISTRICT #1 | $77.04 | $77.03 | $0.00 | $0.00 | $0.00 | $154.07 |
| 2026 | 14568 | EMS1 - FIRE DIST #1 EMS | $29.62 | $29.62 | $0.00 | $0.00 | $0.00 | $59.24 |
| 2026 | 14568 | JCCD - JC Conservation District | $2.55 | $2.55 | $0.00 | $0.00 | $0.00 | $5.10 |
| 2026 | 14568 | NWA - Noxious Weed Assessment | $2.98 | $2.97 | $0.00 | $0.00 | $0.00 | $5.95 |
| 2026 | 14568 | OSS - On Site Septic | $23.10 | $23.10 | $0.00 | $0.00 | $0.00 | $46.20 |
| 2026 | 14568 | WAT - Clean Water District | $13.00 | $13.00 | $0.00 | $0.00 | $0.00 | $26.00 |
| 2026 | 14568 | TOTAL: | $529.61 | $529.52 | $0.00 | $0.00 | $0.00 | $1059.13 |
|
| 2026 | 14568 | $529.61 | $529.52 | $0.00 | $0.00 | $0.00 | $1059.13 |
Statement Details |
| 2025 | 14618 | STATE - STATE LEVY (SCHOOL) | $151.78 | $151.76 | $0.00 | $0.00 | $303.54 | $0.00 |
| 2025 | 14618 | COUNTY - COUNTY LEVIES (CE, DD, VET, MH) | $59.69 | $59.68 | $0.00 | $0.00 | $119.37 | $0.00 |
| 2025 | 14618 | CONSERVE - CONSERVATION FUTURES | $1.79 | $1.79 | $0.00 | $0.00 | $3.58 | $0.00 |
| 2025 | 14618 | COROADS - COUNTY ROADS (ROADS, DIV TO CE) | $47.82 | $47.81 | $0.00 | $0.00 | $95.63 | $0.00 |
| 2025 | 14618 | PORTPT - PORT DISTRICT | $24.36 | $24.35 | $0.00 | $0.00 | $48.71 | $0.00 |
| 2025 | 14618 | PUD1 - PUD #1 | $3.91 | $3.90 | $0.00 | $0.00 | $7.81 | $0.00 |
| 2025 | 14618 | LIB1 - LIBRARY DIST #1 | $18.50 | $18.50 | $0.00 | $0.00 | $37.00 | $0.00 |
| 2025 | 14618 | HD2 - HOSP DIST #2 | $3.48 | $3.48 | $0.00 | $0.00 | $6.96 | $0.00 |
| 2025 | 14618 | SD49 - SCHOOL DIST #49 | $81.34 | $81.33 | $0.00 | $0.00 | $162.67 | $0.00 |
| 2025 | 14618 | FD1 - FIRE DISTRICT #1 | $78.76 | $78.76 | $0.00 | $0.00 | $157.52 | $0.00 |
| 2025 | 14618 | EMS1 - FIRE DIST #1 EMS | $30.29 | $30.29 | $0.00 | $0.00 | $60.58 | $0.00 |
| 2025 | 14618 | JCCD - JC Conservation District | $2.55 | $2.55 | $0.00 | $0.00 | $5.10 | $0.00 |
| 2025 | 14618 | NWA - Noxious Weed Assessment | $2.15 | $2.15 | $0.00 | $0.00 | $4.30 | $0.00 |
| 2025 | 14618 | OSS - On Site Septic | $21.50 | $21.50 | $0.00 | $0.00 | $43.00 | $0.00 |
| 2025 | 14618 | WAT - Clean Water District | $13.00 | $13.00 | $0.00 | $0.00 | $26.00 | $0.00 |
| 2025 | 14618 | TOTAL: | $540.92 | $540.85 | $0.00 | $0.00 | $1081.77 | $0.00 |
|
| 2025 | 14618 | $540.92 | $540.85 | $0.00 | $0.00 | $1081.77 | $0.00 |
Statement Details |
| 2024 | 14649 | STATE - STATE LEVY (SCHOOL) | $133.67 | $133.67 | $0.00 | $0.00 | $267.34 | $0.00 |
| 2024 | 14649 | COUNTY - COUNTY LEVIES (CE, DD, VET, MH) | $57.22 | $57.18 | $0.00 | $0.00 | $114.40 | $0.00 |
| 2024 | 14649 | CONSERVE - CONSERVATION FUTURES | $1.72 | $1.71 | $0.00 | $0.00 | $3.43 | $0.00 |
| 2024 | 14649 | COROADS - COUNTY ROADS (ROADS, DIV TO CE) | $46.03 | $46.02 | $0.00 | $0.00 | $92.05 | $0.00 |
| 2024 | 14649 | PORTPT - PORT DISTRICT | $23.64 | $23.62 | $0.00 | $0.00 | $47.26 | $0.00 |
| 2024 | 14649 | PUD1 - PUD #1 | $3.76 | $3.75 | $0.00 | $0.00 | $7.51 | $0.00 |
| 2024 | 14649 | LIB1 - LIBRARY DIST #1 | $17.81 | $17.80 | $0.00 | $0.00 | $35.61 | $0.00 |
| 2024 | 14649 | HD2 - HOSP DIST #2 | $3.34 | $3.33 | $0.00 | $0.00 | $6.67 | $0.00 |
| 2024 | 14649 | SD49 - SCHOOL DIST #49 | $59.69 | $59.69 | $0.00 | $0.00 | $119.38 | $0.00 |
| 2024 | 14649 | FD1 - FIRE DISTRICT #1 | $75.63 | $75.63 | $0.00 | $0.00 | $151.26 | $0.00 |
| 2024 | 14649 | EMS1 - FIRE DIST #1 EMS | $28.89 | $28.89 | $0.00 | $0.00 | $57.78 | $0.00 |
| 2024 | 14649 | JCCD - JC Conservation District | $2.55 | $2.55 | $0.00 | $0.00 | $5.10 | $0.00 |
| 2024 | 14649 | NWA - Noxious Weed Assessment | $2.15 | $2.15 | $0.00 | $0.00 | $4.30 | $0.00 |
| 2024 | 14649 | OSS - On Site Septic | $21.00 | $21.00 | $0.00 | $0.00 | $42.00 | $0.00 |
| 2024 | 14649 | WAT - Clean Water District | $12.50 | $12.50 | $0.00 | $0.00 | $25.00 | $0.00 |
| 2024 | 14649 | TOTAL: | $489.60 | $489.49 | $0.00 | $0.00 | $979.09 | $0.00 |
|
| 2024 | 14649 | $489.60 | $489.49 | $0.00 | $0.00 | $979.09 | $0.00 |
Statement Details |
| 2023 | 14674 | STATE - STATE LEVY (SCHOOL) | $115.95 | $115.94 | $0.00 | $0.00 | $231.89 | $0.00 |
| 2023 | 14674 | COUNTY - COUNTY LEVIES (CE, DD, VET, MH) | $50.60 | $50.58 | $0.00 | $0.00 | $101.18 | $0.00 |
| 2023 | 14674 | CONSERVE - CONSERVATION FUTURES | $1.52 | $1.51 | $0.00 | $0.00 | $3.03 | $0.00 |
| 2023 | 14674 | COROADS - COUNTY ROADS (ROADS, DIV TO CE) | $40.94 | $40.93 | $0.00 | $0.00 | $81.87 | $0.00 |
| 2023 | 14674 | PORTPT - PORT DISTRICT | $21.32 | $21.30 | $0.00 | $0.00 | $42.62 | $0.00 |
| 2023 | 14674 | PUD1 - PUD #1 | $3.36 | $3.35 | $0.00 | $0.00 | $6.71 | $0.00 |
| 2023 | 14674 | LIB1 - LIBRARY DIST #1 | $15.84 | $15.83 | $0.00 | $0.00 | $31.67 | $0.00 |
| 2023 | 14674 | HD2 - HOSP DIST #2 | $2.96 | $2.94 | $0.00 | $0.00 | $5.90 | $0.00 |
| 2023 | 14674 | SD49 - SCHOOL DIST #49 | $54.20 | $54.20 | $0.00 | $0.00 | $108.40 | $0.00 |
| 2023 | 14674 | FD1 - FIRE DISTRICT #1 | $41.68 | $41.68 | $0.00 | $0.00 | $83.36 | $0.00 |
| 2023 | 14674 | EMS1 - FIRE DIST #1 EMS | $17.73 | $17.73 | $0.00 | $0.00 | $35.46 | $0.00 |
| 2023 | 14674 | JCCD - JC Conservation District | $2.55 | $2.55 | $0.00 | $0.00 | $5.10 | $0.00 |
| 2023 | 14674 | NWA - Noxious Weed Assessment | $2.15 | $2.15 | $0.00 | $0.00 | $4.30 | $0.00 |
| 2023 | 14674 | OSS - On Site Septic | $20.50 | $20.50 | $0.00 | $0.00 | $41.00 | $0.00 |
| 2023 | 14674 | WAT - Clean Water District | $12.00 | $12.00 | $0.00 | $0.00 | $24.00 | $0.00 |
| 2023 | 14674 | TOTAL: | $403.30 | $403.19 | $0.00 | $0.00 | $806.49 | $0.00 |
|
| 2023 | 14674 | $403.30 | $403.19 | $0.00 | $0.00 | $806.49 | $0.00 |
Values
| (+) Improvement Homesite Value: | + | $0 | |
| (+) Improvement Non-Homesite Value: | + | $48,879 | |
| (+) Land Homesite Value: | + | $0 | |
| (+) Land Non-Homesite Value: | + | $77,700 | |
| (+) Curr Use (HS): | + | $0 | $0 |
| (+) Curr Use (NHS): | + | $0 | $0 |
| | | -------------------------- | |
| (=) Market Value: | = | $126,579 | |
| (–) Productivity Loss: | – | $0 | |
| | | -------------------------- | |
| (=) Subtotal: | = | $126,579 | |
| (+) Senior Appraised Value: | + | $0 | |
| (+) Non-Senior Appraised Value: | + | $126,579 | |
| | | -------------------------- | |
| (=) Total Appraised Value: | = | $126,579 | |
| (–) Senior Exemption Loss: | – | $0 | |
| (–) Exemption Loss: | – | $0 | |
| | | -------------------------- | |
| (=) Taxable Value: | = | $126,579 | |
Taxing Jurisdiction
| Owner: | DOUGLAS L JOYCE TRUST | | |
| % Ownership: | 100.0000000000% | | |
| Total Value: | $126,579 | | |
| Tax Area: | 0211 - 1-49F1E1H2L1 |
| CE | COUNTY CURRENT EXPENSE | 0.9034619479 | $126,579 | $126,579 | $114.36 | | |
| CNTYDD | DEVELOPMENTAL DISABILITIES | 0.0052121823 | $126,579 | $126,579 | $0.66 | | |
| CNTYVET | VETERANS RELIEF | 0.0052777810 | $126,579 | $126,579 | $0.67 | | |
| MENTAL | MENTAL HEALTH | 0.0052121823 | $126,579 | $126,579 | $0.66 | | |
| ROADS | COUNTY ROADS | 0.7415066410 | $126,579 | $126,579 | $93.86 | | |
| ROADSCU | COUNTY ROADS TO CUR EXP | 0.0000000000 | $126,579 | $126,579 | $0.00 | | |
| HOSP2CASH | HOSP DIST #2 GENERAL | 0.0536075306 | $126,579 | $126,579 | $6.79 | | |
| SCH49CP | SCHOOL DIST #49 CAP PROJ | 0.6279093905 | $126,579 | $126,579 | $79.48 | | |
| SCH49MO | SCHOOL DIST #49 EP & O | 0.6376483602 | $126,579 | $126,579 | $80.71 | | |
| CONSERVE | CONSERVATION FUTURES | 0.0275621078 | $126,579 | $126,579 | $3.49 | | |
| EMS1 | FIRE DIST #1 EMS | 0.4679948282 | $126,579 | $126,579 | $59.24 | | |
| FD1 | FIRE DIST #1 GENERAL | 1.2171942929 | $126,579 | $126,579 | $154.07 | | |
| LIB1 | LIBRARY DIST #1 GENERAL | 0.2868827388 | $126,579 | $126,579 | $36.31 | | |
| PORTPT | PORT OF PT GENERAL | 0.1134941229 | $126,579 | $126,579 | $14.37 | | |
| PORTPTIDD | PORT OF PT IDD 2019 | 0.2577346692 | $126,579 | $126,579 | $32.62 | | |
| PUD1 | PUD #1 GENERAL | 0.0597888892 | $126,579 | $126,579 | $7.57 | | |
| STATE | STATE SCHOOL PART 1 | 1.4940692947 | $126,579 | $126,579 | $189.12 | | |
| STATE2 | STATE SCHOOL PART 2 | 0.8050170049 | $126,579 | $126,579 | $101.90 | | |
| | Total Tax Rate: | 7.7095739644 | | | | | |
| | | | | Taxes w/Current Exemptions: | $975.88 | | |
| | | | | Taxes w/o Exemptions: | $975.88 | | |
Improvement / Building
| Improvement #1: | Manufactured Home | State Code: | 11 | 1200.0 sqft | Value: | $48,879 |
| Bathrooms (#): | 1 (FULL) | Bathrooms (#): | 1 (HALF) | | Bedrooms (#): | 3 | Exterior Wall: | METAL | | Floor Construction: | FRAME | Foundation: | PO&BL | | Heating/Cooling: | F/A | Roof Cover: | METAL |
|
| | Type | Description | Class CD | Sub Class CD | Year Built | Area |
| | MA | Main Area | 3- | MDBL | 1971 | 1200.0 |
| | MWPOR | MH Wood Porch | 3 | * | 1971 | 240.0 |
| | MSKIRT_WD | MH Skirting - Wood | 3 | * | 1971 | 150.0 |
| | SHED | Shed (Table Not Dep) | 2 | * | 1971 | 50.0 |
Sketch
Property Image
Land
| 1 | 4245-1177L | | 0.0000 | 0.00 | 0.00 | 0.00 | 1.00 | $77,700 | $0 |
Roll Value History
| 2026 | N/A | N/A | N/A | N/A | N/A |
| 2025 | $48,879 | $77,700 | $0 | $126,579 | $126,579 |
| 2024 | $48,879 | $77,700 | $0 | $126,579 | $126,579 |
| 2023 | $46,551 | $69,000 | $0 | $115,551 | $115,551 |
| 2022 | $45,502 | $53,000 | $0 | $98,502 | $98,502 |
Deed and Sales History
| 1 | 12/22/2025 | SWD | Statutory Warranty Deed | DOUGLAS JOYCE & | DOUGLAS L JOYCE TRUST | | | | 145408 | |
| 2 | 11/21/2025 | QCD | Quit Claim Deed | LEESAN D JOYCE MARLATT | DOUGLAS L JOYCE TRUST | | | | 145286 | |
| 3 | 09/19/2024 | EASE | Assignment of Easement | LEESAN D JOYCE MARLATT | JEFFERSON COUNTY | | | $890.00 | 143324 | TEMP EASE |
| 4 | 08/30/2016 | QCD | Quit Claim Deed | SHAWNA D HIGBEE | LEESAN D JOYCE MARLATT | | | | 126171 | |
| 5 | 04/24/2011 | QCD | Quit Claim Deed | JOYCE, DOUGLAS | HIGBEE, SHAWNA D | | | $0.00 | 115892 | 0 |
| 6 | 07/23/2002 | SWD | Statutory Warranty Deed | ROBERT L HARY | DOUGLAS & MAUREEN JOYCE | 0 | 0 | $50,000.00 | 95177 | 0 |
| 7 | 12/30/1986 | MH | Mobile Home | BROWN, BG & GLORIA | HARY, ROBERT L & SARAH | 0 | 0 | $0.00 | 77960 | 0 |
Payout Agreement
| No payout information available.. |