Property
Account |
| Property ID: | 25190 | Abbreviated Legal Description: | BROOKWOOD GLEN LOT 17 |
| Parcel # / Geo ID: | 936600017 | Agent Code: | |
| Type: | Real | | |
| Tax Area: | 0211 - 1-49F1E1H2L1 | Land Use Code | 11 |
| Open Space: | N | DFL | N |
| Historic Property: | N | Remodel Property: | N |
| Multi-Family Redevelopment: | N | | |
| Township: | 29N | Section: | 11 |
| Range: | 1W |
Location |
| Address: | 110 FERN WAY CHIMACUM, WA 98325 | Mapsco: | 011/028 |
| Neighborhood: | BROOKWOOD GLEN | Map ID: | |
| Neighborhood CD: | 4245 |
Owner |
| Name: | THOMAS J BERES | Owner ID: | 104275 |
| Mailing Address: | 110 FERN WAY CHIMACUM, WA 98325-8744 | % Ownership: | 100.0000000000% |
| | | Exemptions: | |
Pay Tax Due
There is currently No Amount Due on this property.
Taxes and Assessment Details
Property Tax Information as of
03/10/2026
Click on "Statement Details" to expand or collapse a tax statement.
* Please enter a valid date ** Please enter a valid date *
Statement Details |
| | TOTAL: | $0.00 | $0.00 | $0.00 | $0.00 | $0.00 | $0.00 |
|
| | $0.00 | $0.00 | $0.00 | $0.00 | $0.00 | $0.00 |
Values
| (+) Improvement Homesite Value: | + | $0 | |
| (+) Improvement Non-Homesite Value: | + | $210,201 | |
| (+) Land Homesite Value: | + | $0 | |
| (+) Land Non-Homesite Value: | + | $94,500 | |
| (+) Curr Use (HS): | + | $0 | $0 |
| (+) Curr Use (NHS): | + | $0 | $0 |
| | | -------------------------- | |
| (=) Market Value: | = | $304,701 | |
| (–) Productivity Loss: | – | $0 | |
| | | -------------------------- | |
| (=) Subtotal: | = | $304,701 | |
| (+) Senior Appraised Value: | + | $0 | |
| (+) Non-Senior Appraised Value: | + | $304,701 | |
| | | -------------------------- | |
| (=) Total Appraised Value: | = | $304,701 | |
| (–) Senior Exemption Loss: | – | $0 | |
| (–) Exemption Loss: | – | $0 | |
| | | -------------------------- | |
| (=) Taxable Value: | = | $304,701 | |
Taxing Jurisdiction
| Owner: | THOMAS J BERES | | |
| % Ownership: | 100.0000000000% | | |
| Total Value: | $304,701 | | |
| Tax Area: | 0211 - 1-49F1E1H2L1 |
| CE | COUNTY CURRENT EXPENSE | 0.9034619479 | $304,701 | $304,701 | $275.29 | | |
| CNTYDD | DEVELOPMENTAL DISABILITIES | 0.0052121823 | $304,701 | $304,701 | $1.59 | | |
| CNTYVET | VETERANS RELIEF | 0.0052777810 | $304,701 | $304,701 | $1.61 | | |
| MENTAL | MENTAL HEALTH | 0.0052121823 | $304,701 | $304,701 | $1.59 | | |
| ROADS | COUNTY ROADS | 0.7415066410 | $304,701 | $304,701 | $225.94 | | |
| ROADSCU | COUNTY ROADS TO CUR EXP | 0.0000000000 | $304,701 | $304,701 | $0.00 | | |
| HOSP2CASH | HOSP DIST #2 GENERAL | 0.0536075306 | $304,701 | $304,701 | $16.33 | | |
| SCH49CP | SCHOOL DIST #49 CAP PROJ | 0.6279093905 | $304,701 | $304,701 | $191.32 | | |
| SCH49MO | SCHOOL DIST #49 EP & O | 0.6376483602 | $304,701 | $304,701 | $194.29 | | |
| CONSERVE | CONSERVATION FUTURES | 0.0275621078 | $304,701 | $304,701 | $8.40 | | |
| EMS1 | FIRE DIST #1 EMS | 0.4679948282 | $304,701 | $304,701 | $142.60 | | |
| FD1 | FIRE DIST #1 GENERAL | 1.2171942929 | $304,701 | $304,701 | $370.88 | | |
| LIB1 | LIBRARY DIST #1 GENERAL | 0.2868827388 | $304,701 | $304,701 | $87.41 | | |
| PORTPT | PORT OF PT GENERAL | 0.1134941229 | $304,701 | $304,701 | $34.58 | | |
| PORTPTIDD | PORT OF PT IDD 2019 | 0.2577346692 | $304,701 | $304,701 | $78.53 | | |
| PUD1 | PUD #1 GENERAL | 0.0597888892 | $304,701 | $304,701 | $18.22 | | |
| STATE | STATE SCHOOL PART 1 | 1.4940692947 | $304,701 | $304,701 | $455.24 | | |
| STATE2 | STATE SCHOOL PART 2 | 0.8050170049 | $304,701 | $304,701 | $245.29 | | |
| | Total Tax Rate: | 7.7095739644 | | | | | |
| | | | | Taxes w/Current Exemptions: | $2,349.11 | | |
| | | | | Taxes w/o Exemptions: | $2,349.11 | | |
Improvement / Building
| Improvement #1: | Residential Bldg | State Code: | 11 | 1200.0 sqft | Value: | $210,201 |
| Bathrooms (#): | 1 (FULL) | Bathrooms (#): | 1 (HALF) | | Bedrooms (#): | 2 | Exterior Wall: | PL/T1 | | Fireplace: | WD ST-GOOD | Floor Construction: | CONCR | | Foundation: | CONPR | Heating/Cooling: | ELBB | | Roof Cover: | COMP |   |   |
|
| | Type | Description | Class CD | Sub Class CD | Year Built | Area |
| | MA | Main Area | 3+ | 1S | 1987 | 1200.0 |
| | HCPOR | House Concrete Porch | 3 | * | 1987 | 288.0 |
| | CARPTF | Carport W/Floor | 3 | * | 1987 | 238.0 |
| | SHED | Shed (Table Not Dep) | 3 | * | 1987 | 96.0 |
| | PATIO | House Patio | 4 | * | 2016 | 100.0 |
Sketch
Property Image
Land
| 1 | 4245-1175L | Brookwood Glen Lots not adjacent Rhody Drive | 0.0000 | 0.00 | 0.00 | 0.00 | 1.00 | $94,500 | $0 |
Roll Value History
| 2026 | N/A | N/A | N/A | N/A | N/A |
| 2025 | $210,201 | $94,500 | $0 | $304,701 | $304,701 |
| 2024 | $210,201 | $94,500 | $0 | $304,701 | $304,701 |
| 2023 | $200,191 | $85,000 | $0 | $285,191 | $285,191 |
| 2022 | $179,794 | $68,000 | $0 | $247,794 | $247,794 |
Deed and Sales History
| 1 | 03/01/2021 | QCD | Quit Claim Deed | THOMAS J BERES | THOMAS J BERES | | | | 136238 | |
| 2 | 12/03/2018 | SWD | Statutory Warranty Deed | MIKE SHIRLEY | THOMAS J BERES | | | $250,000.00 | 131518 | |
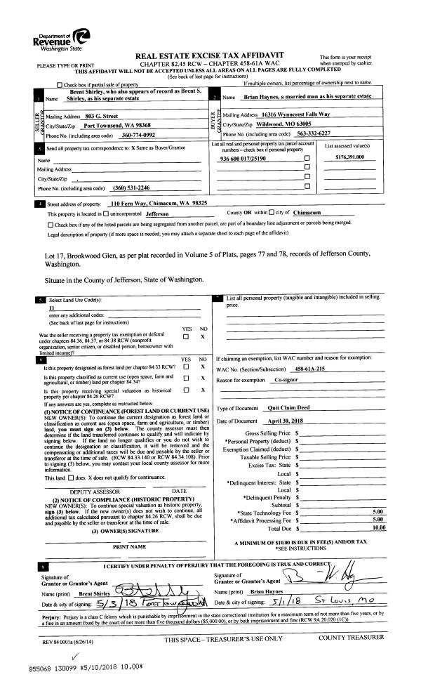
| 3 | 04/30/2018 | QCD | Quit Claim Deed | | | | | | 130098 | |
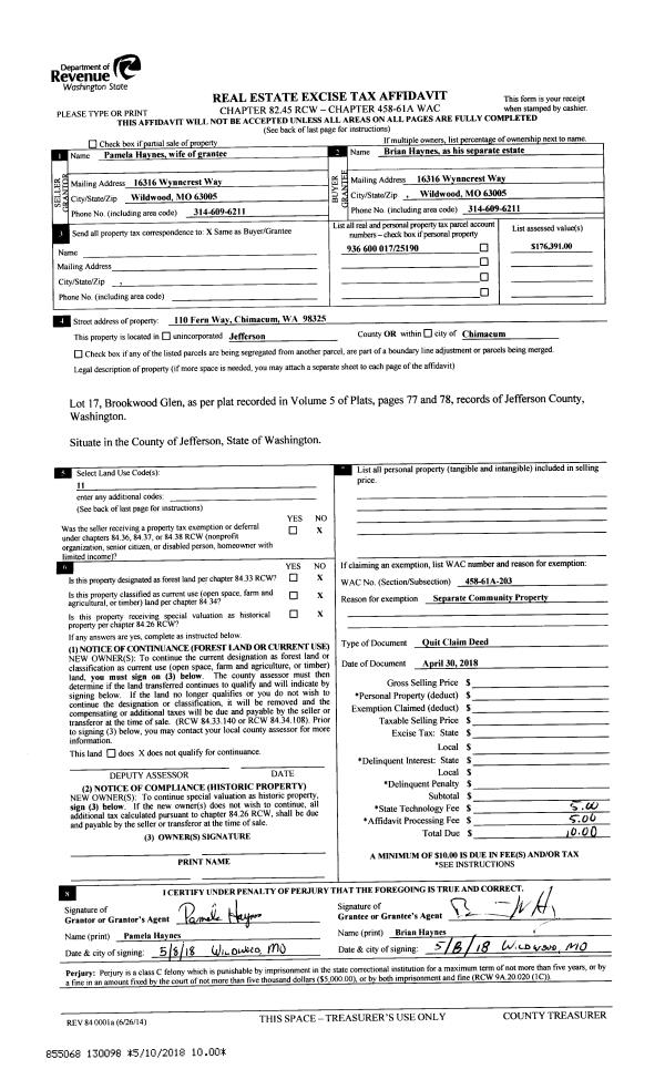
| 4 | 04/30/2018 | QCD | Quit Claim Deed | | | | | | 130099 | |
| 5 | 12/10/2008 | WD | Warranty Deed | DEUTSCHE BANK NATIONAL TR | SHIRLEY, MIKE | 0 | 0 | $165,000.00 | 112281 | 0 |
| 6 | 06/13/2008 | TRED | Trustee Deed | FIRST AMERICAN TITLE INSU | DEUTSCHE BANK NATIONAL TRUST C | | | $163,876.00 | 111446 | 0 |
| 7 | 09/12/2005 | SWD | Statutory Warranty Deed | CRUMPTON, JEFFREY T | TURISSINI, ANNE | 0 | 0 | $167,000.00 | 104774 | 0 |
| 8 | 03/17/2004 | QCD | Quit Claim Deed | CRUMPTON, PATRICIA A | CRUMPTON, JEFFREY T | 0 | 0 | $0.00 | 99790 | 0 |
| 9 | 10/28/2002 | SWD | Statutory Warranty Deed | LEROY-SMITH, SANDRA | CRUMPTON, JEFFREY | 0 | 0 | $105,000.00 | 95840 | 0 |
| 10 | 10/28/2002 | QCD | Quit Claim Deed | DIXON, GEORGE | CRUMPTON, PATRICIA | 0 | 0 | $0.00 | 95841 | 0 |
| 11 | 09/04/1996 | SWD | Statutory Warranty Deed | ROBINSON, ROY R/MARY E | LEROY, SANDRA | 0 | 0 | $82,500.00 | 80317 | 0 |
Payout Agreement
| No payout information available.. |