Property
Account |
| Property ID: | 25227 | Abbreviated Legal Description: | CALIFORNIA ADDITION BLK 7 LOTS 5 & 6 |
| Parcel # / Geo ID: | 936900705 | Agent Code: | |
| Type: | Real | | |
| Tax Area: | 0110 - C-50F1E1H2 | Land Use Code | 11 |
| Open Space: | N | DFL | N |
| Historic Property: | N | Remodel Property: | N |
| Multi-Family Redevelopment: | N | | |
| Township: | 31N | Section: | 34 |
| Range: | 1W |
Location |
| Address: | 736 50TH ST PORT TOWNSEND, WA 98368 | Mapsco: | 009/039 |
| Neighborhood: | CALIFORNIA ADDITION; DONOVAN/GREGORY SP & TAX 2 | Map ID: | |
| Neighborhood CD: | 6035 |
Owner |
| Name: | KATHLEEN CONKLIN TRUST | Owner ID: | 112280 |
| Mailing Address: | 736 50TH ST PORT TOWNSEND, WA 98368-2009 | % Ownership: | 100.0000000000% |
| | | Exemptions: | |
Pay Tax Due
Select the appropriate checkbox next to the year to be paid. Multiple years may be selected.
*Convenience Fee not included
Taxes and Assessment Details
Property Tax Information as of
03/11/2026
Click on "Statement Details" to expand or collapse a tax statement.
* Please enter a valid date ** Please enter a valid date *
Statement Details |
| 2026 | 14614 | STATE - STATE LEVY (SCHOOL) | $840.05 | $840.05 | $0.00 | $0.00 | $0.00 | $1680.10 |
| 2026 | 14614 | COUNTY - COUNTY LEVIES (CE, DD, VET, MH) | $335.86 | $335.84 | $0.00 | $0.00 | $0.00 | $671.70 |
| 2026 | 14614 | CONSERVE - CONSERVATION FUTURES | $10.07 | $10.07 | $0.00 | $0.00 | $0.00 | $20.14 |
| 2026 | 14614 | CITYPT - CITY OF PT | $476.72 | $476.70 | $0.00 | $0.00 | $0.00 | $953.42 |
| 2026 | 14614 | PORTPT - PORT DISTRICT | $135.64 | $135.64 | $0.00 | $0.00 | $0.00 | $271.28 |
| 2026 | 14614 | PUD1 - PUD #1 | $21.85 | $21.84 | $0.00 | $0.00 | $0.00 | $43.69 |
| 2026 | 14614 | HD2 - HOSP DIST #2 | $19.59 | $19.58 | $0.00 | $0.00 | $0.00 | $39.17 |
| 2026 | 14614 | SD50 - SCHOOL DIST #50 | $665.51 | $665.49 | $0.00 | $0.00 | $0.00 | $1331.00 |
| 2026 | 14614 | FD1 - FIRE DISTRICT #1 | $444.75 | $444.74 | $0.00 | $0.00 | $0.00 | $889.49 |
| 2026 | 14614 | EMS1 - FIRE DIST #1 EMS | $171.00 | $171.00 | $0.00 | $0.00 | $0.00 | $342.00 |
| 2026 | 14614 | JCCD - JC Conservation District | $2.55 | $2.55 | $0.00 | $0.00 | $0.00 | $5.10 |
| 2026 | 14614 | NWA - Noxious Weed Assessment | $2.98 | $2.97 | $0.00 | $0.00 | $0.00 | $5.95 |
| 2026 | 14614 | TOTAL: | $3126.57 | $3126.47 | $0.00 | $0.00 | $0.00 | $6253.04 |
|
| 2026 | 14614 | $3126.57 | $3126.47 | $0.00 | $0.00 | $0.00 | $6253.04 |
Statement Details |
| 2025 | 14664 | STATE - STATE LEVY (SCHOOL) | $735.48 | $735.48 | $0.00 | $0.00 | $1470.96 | $0.00 |
| 2025 | 14664 | COUNTY - COUNTY LEVIES (CE, DD, VET, MH) | $289.23 | $289.20 | $0.00 | $0.00 | $578.43 | $0.00 |
| 2025 | 14664 | CONSERVE - CONSERVATION FUTURES | $8.68 | $8.67 | $0.00 | $0.00 | $17.35 | $0.00 |
| 2025 | 14664 | CITYPT - CITY OF PT | $417.10 | $417.08 | $0.00 | $0.00 | $834.18 | $0.00 |
| 2025 | 14664 | PORTPT - PORT DISTRICT | $118.02 | $118.01 | $0.00 | $0.00 | $236.03 | $0.00 |
| 2025 | 14664 | PUD1 - PUD #1 | $18.93 | $18.92 | $0.00 | $0.00 | $37.85 | $0.00 |
| 2025 | 14664 | HD2 - HOSP DIST #2 | $16.88 | $16.87 | $0.00 | $0.00 | $33.75 | $0.00 |
| 2025 | 14664 | SD50 - SCHOOL DIST #50 | $537.52 | $537.50 | $0.00 | $0.00 | $1075.02 | $0.00 |
| 2025 | 14664 | FD1 - FIRE DISTRICT #1 | $381.66 | $381.66 | $0.00 | $0.00 | $763.32 | $0.00 |
| 2025 | 14664 | EMS1 - FIRE DIST #1 EMS | $146.80 | $146.79 | $0.00 | $0.00 | $293.59 | $0.00 |
| 2025 | 14664 | JCCD - JC Conservation District | $2.55 | $2.55 | $0.00 | $0.00 | $5.10 | $0.00 |
| 2025 | 14664 | NWA - Noxious Weed Assessment | $2.15 | $2.15 | $0.00 | $0.00 | $4.30 | $0.00 |
| 2025 | 14664 | TOTAL: | $2675.00 | $2674.88 | $0.00 | $0.00 | $5349.88 | $0.00 |
|
| 2025 | 14664 | $2675.00 | $2674.88 | $0.00 | $0.00 | $5349.88 | $0.00 |
Statement Details |
| 2024 | 14695 | STATE - STATE LEVY (SCHOOL) | $658.47 | $658.45 | $0.00 | $0.00 | $1316.92 | $0.00 |
| 2024 | 14695 | COUNTY - COUNTY LEVIES (CE, DD, VET, MH) | $281.76 | $281.76 | $0.00 | $0.00 | $563.52 | $0.00 |
| 2024 | 14695 | CONSERVE - CONSERVATION FUTURES | $8.45 | $8.45 | $0.00 | $0.00 | $16.90 | $0.00 |
| 2024 | 14695 | CITYPT - CITY OF PT | $402.61 | $402.59 | $0.00 | $0.00 | $805.20 | $0.00 |
| 2024 | 14695 | PORTPT - PORT DISTRICT | $116.38 | $116.38 | $0.00 | $0.00 | $232.76 | $0.00 |
| 2024 | 14695 | PUD1 - PUD #1 | $18.51 | $18.50 | $0.00 | $0.00 | $37.01 | $0.00 |
| 2024 | 14695 | HD2 - HOSP DIST #2 | $16.44 | $16.44 | $0.00 | $0.00 | $32.88 | $0.00 |
| 2024 | 14695 | SD50 - SCHOOL DIST #50 | $532.73 | $532.72 | $0.00 | $0.00 | $1065.45 | $0.00 |
| 2024 | 14695 | FD1 - FIRE DISTRICT #1 | $372.56 | $372.55 | $0.00 | $0.00 | $745.11 | $0.00 |
| 2024 | 14695 | EMS1 - FIRE DIST #1 EMS | $142.31 | $142.30 | $0.00 | $0.00 | $284.61 | $0.00 |
| 2024 | 14695 | JCCD - JC Conservation District | $2.55 | $2.55 | $0.00 | $0.00 | $5.10 | $0.00 |
| 2024 | 14695 | NWA - Noxious Weed Assessment | $2.15 | $2.15 | $0.00 | $0.00 | $4.30 | $0.00 |
| 2024 | 14695 | TOTAL: | $2554.92 | $2554.84 | $0.00 | $0.00 | $5109.76 | $0.00 |
|
| 2024 | 14695 | $2554.92 | $2554.84 | $0.00 | $0.00 | $5109.76 | $0.00 |
Statement Details |
| 2023 | 14720 | STATE - STATE LEVY (SCHOOL) | $664.13 | $664.11 | $0.00 | $0.00 | $1328.24 | $0.00 |
| 2023 | 14720 | COUNTY - COUNTY LEVIES (CE, DD, VET, MH) | $289.82 | $289.78 | $0.00 | $0.00 | $579.60 | $0.00 |
| 2023 | 14720 | CONSERVE - CONSERVATION FUTURES | $8.69 | $8.69 | $0.00 | $0.00 | $17.38 | $0.00 |
| 2023 | 14720 | CITYPT - CITY OF PT | $409.60 | $409.57 | $0.00 | $0.00 | $819.17 | $0.00 |
| 2023 | 14720 | PORTPT - PORT DISTRICT | $122.09 | $122.07 | $0.00 | $0.00 | $244.16 | $0.00 |
| 2023 | 14720 | PUD1 - PUD #1 | $19.21 | $19.21 | $0.00 | $0.00 | $38.42 | $0.00 |
| 2023 | 14720 | HD2 - HOSP DIST #2 | $16.92 | $16.90 | $0.00 | $0.00 | $33.82 | $0.00 |
| 2023 | 14720 | SD50 - SCHOOL DIST #50 | $527.00 | $526.98 | $0.00 | $0.00 | $1053.98 | $0.00 |
| 2023 | 14720 | FD1 - FIRE DISTRICT #1 | $238.74 | $238.74 | $0.00 | $0.00 | $477.48 | $0.00 |
| 2023 | 14720 | EMS1 - FIRE DIST #1 EMS | $101.56 | $101.55 | $0.00 | $0.00 | $203.11 | $0.00 |
| 2023 | 14720 | JCCD - JC Conservation District | $2.55 | $2.55 | $0.00 | $0.00 | $5.10 | $0.00 |
| 2023 | 14720 | NWA - Noxious Weed Assessment | $2.15 | $2.15 | $0.00 | $0.00 | $4.30 | $0.00 |
| 2023 | 14720 | TOTAL: | $2402.46 | $2402.30 | $0.00 | $0.00 | $4804.76 | $0.00 |
|
| 2023 | 14720 | $2402.46 | $2402.30 | $0.00 | $0.00 | $4804.76 | $0.00 |
Values
| (+) Improvement Homesite Value: | + | $0 | |
| (+) Improvement Non-Homesite Value: | + | $469,768 | |
| (+) Land Homesite Value: | + | $0 | |
| (+) Land Non-Homesite Value: | + | $261,000 | |
| (+) Curr Use (HS): | + | $0 | $0 |
| (+) Curr Use (NHS): | + | $0 | $0 |
| | | -------------------------- | |
| (=) Market Value: | = | $730,768 | |
| (–) Productivity Loss: | – | $0 | |
| | | -------------------------- | |
| (=) Subtotal: | = | $730,768 | |
| (+) Senior Appraised Value: | + | $0 | |
| (+) Non-Senior Appraised Value: | + | $730,768 | |
| | | -------------------------- | |
| (=) Total Appraised Value: | = | $730,768 | |
| (–) Senior Exemption Loss: | – | $0 | |
| (–) Exemption Loss: | – | $0 | |
| | | -------------------------- | |
| (=) Taxable Value: | = | $730,768 | |
Taxing Jurisdiction
| Owner: | KATHLEEN CONKLIN TRUST | | |
| % Ownership: | 100.0000000000% | | |
| Total Value: | $730,768 | | |
| Tax Area: | 0110 - C-50F1E1H2 |
| CE | COUNTY CURRENT EXPENSE | 0.9034619479 | $730,768 | $730,768 | $660.22 | | |
| CNTYDD | DEVELOPMENTAL DISABILITIES | 0.0052121823 | $730,768 | $730,768 | $3.81 | | |
| CNTYVET | VETERANS RELIEF | 0.0052777810 | $730,768 | $730,768 | $3.86 | | |
| MENTAL | MENTAL HEALTH | 0.0052121823 | $730,768 | $730,768 | $3.81 | | |
| PTGEN | CITY OF PT GENERAL | 0.8551967795 | $730,768 | $730,768 | $624.95 | | |
| PTLLL | CITY OF PT - LIBRARY LID LIFT | 0.4010114288 | $730,768 | $730,768 | $293.05 | | |
| PTMVBOND | CITY OF PT MV BOND | 0.0484717981 | $730,768 | $730,768 | $35.42 | | |
| HOSP2CASH | HOSP DIST #2 GENERAL | 0.0536075306 | $730,768 | $730,768 | $39.17 | | |
| SCH50BOND | SCHOOL DIST #50 BOND 2016 | 0.5377451389 | $730,768 | $730,768 | $392.97 | | |
| SCH50CP | SCHOOL DIST #50 CAP PROJ | 0.4573475088 | $730,768 | $730,768 | $334.21 | | |
| SCH50MO | SCHOOL DIST #50 EP & O | 0.8262822886 | $730,768 | $730,768 | $603.82 | | |
| CONSERVE | CONSERVATION FUTURES | 0.0275621078 | $730,768 | $730,768 | $20.14 | | |
| EMS1 | FIRE DIST #1 EMS | 0.4679948282 | $730,768 | $730,768 | $342.00 | | |
| FD1 | FIRE DIST #1 GENERAL | 1.2171942929 | $730,768 | $730,768 | $889.49 | | |
| PORTPT | PORT OF PT GENERAL | 0.1134941229 | $730,768 | $730,768 | $82.94 | | |
| PORTPTIDD | PORT OF PT IDD 2019 | 0.2577346692 | $730,768 | $730,768 | $188.34 | | |
| PUD1 | PUD #1 GENERAL | 0.0597888892 | $730,768 | $730,768 | $43.69 | | |
| STATE | STATE SCHOOL PART 1 | 1.4940692947 | $730,768 | $730,768 | $1,091.82 | | |
| STATE2 | STATE SCHOOL PART 2 | 0.8050170049 | $730,768 | $730,768 | $588.28 | | |
| | Total Tax Rate: | 8.5416817766 | | | | | |
| | | | | Taxes w/Current Exemptions: | $6,241.99 | | |
| | | | | Taxes w/o Exemptions: | $6,241.99 | | |
Improvement / Building
| Improvement #1: | Residential Bldg | State Code: | 11 | 1584.0 sqft | Value: | $469,768 |
| Bathrooms (#): | 2 (FULL) | Bedrooms (#): | 3 | | Exterior Wall: | SI/ST | Fireplace: | WD ST-GOOD | | Floor Construction: | FRAME | Foundation: | CONPR | | Heating/Cooling: | ELBB | Roof Cover: | COMP |
|
| | Type | Description | Class CD | Sub Class CD | Year Built | Area |
| | MA | Main Area | 5 | 15SF | 1910 | 944.0 |
| | MA2 | Second Floor Main Area | 5 | 15SF | 1910 | 640.0 |
| | HWPOR | House Wood Porch | 5 | * | 1910 | 120.0 |
| | HDECK | House Deck | 5 | * | 1910 | 304.0 |
| | GDET | Detached Garage | 4 | * | 1910 | 240.0 |
Sketch
Property Image
Land
| 1 | 6035-1165L | | 0.0000 | 0.00 | 0.00 | 0.00 | 1.00 | $184,000 | $0 |
| 2 | 6035-1165L | | 0.0000 | 0.00 | 0.00 | 0.00 | 1.00 | $77,000 | $0 |
Roll Value History
| 2026 | N/A | N/A | N/A | N/A | N/A |
| 2025 | $469,768 | $261,000 | $0 | $730,768 | $730,768 |
| 2024 | $349,402 | $264,000 | $0 | $613,402 | $613,402 |
| 2023 | $334,211 | $235,000 | $0 | $569,211 | $569,211 |
| 2022 | $334,211 | $230,000 | $0 | $564,211 | $564,211 |
Deed and Sales History
| 1 | 03/24/2025 | QCD | Quit Claim Deed | KATHLEEN F CONKLIN | KATHLEEN CONKLIN TRUST | | | | 144032 | |
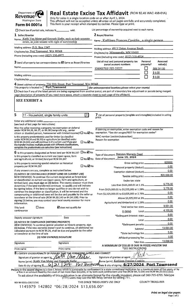
| 2 | 06/19/2024 | SWD | Statutory Warranty Deed | KEITH VAN METER JTWROS | KATHLEEN F CONKLIN | | | $820,000.00 | 142802 | |
| 3 | 03/12/2020 | QCD | Quit Claim Deed | | | | | | 134104 | |
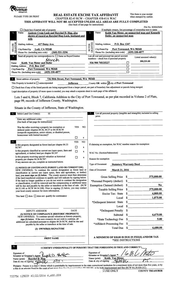
| 4 | 03/21/2016 | SWD | Statutory Warranty Deed | ANDREW C LUSK | KEITH VAN METER JTWROS | | | $375,000.00 | 125039 | |
| 5 | 10/16/2012 | SWD | Statutory Warranty Deed | SEELY, LOREN A/CHERYL A | LUSK, ANDREW/RAYCHEL HUG-LUSK | 0 | 0 | $301,000.00 | 118271 | 0 |
| 6 | 12/07/1998 | SWD | Statutory Warranty Deed | CORNEY, LOREN D/ANN BROOK | SEELY, LORNE A/GOERGER, CHERYL | 0 | 0 | $192,000.00 | 85866 | 0 |
| 7 | 10/28/1996 | QCD | Quit Claim Deed | CORNEY, LOREN D | CORNEY, LOREN D/ANN BROOKS | 0 | 0 | $0.00 | 80716 | 0 |
Payout Agreement
| No payout information available.. |