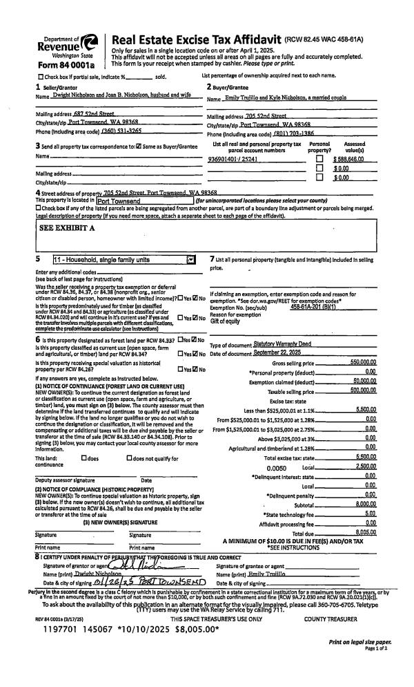
Property
Account |
| Property ID: | 25241 | Abbreviated Legal Description: | CALIFORNIA ADDITION BLK 14 LOTS 1 & 2 |
| Parcel # / Geo ID: | 936901401 | Agent Code: | |
| Type: | Real | | |
| Tax Area: | 0110 - C-50F1E1H2 | Land Use Code | 11 |
| Open Space: | N | DFL | N |
| Historic Property: | N | Remodel Property: | N |
| Multi-Family Redevelopment: | N | | |
| Township: | 31N | Section: | 34 |
| Range: | 1W |
Location |
| Address: | 705 52ND ST PORT TOWNSEND, WA 98368 | Mapsco: | 009/064 |
| Neighborhood: | CALIFORNIA ADDITION; DONOVAN/GREGORY SP & TAX 2 | Map ID: | |
| Neighborhood CD: | 6035 |
Owner |
| Name: | EMILY TRUJILLO & | Owner ID: | 113499 |
| Mailing Address: | KYLE NICHOLSON 705 52ND ST PORT TOWNSEND, WA 98368-1602 | % Ownership: | 100.0000000000% |
| | | Exemptions: | |
Pay Tax Due
Select the appropriate checkbox next to the year to be paid. Multiple years may be selected.
*Convenience Fee not included
Taxes and Assessment Details
Property Tax Information as of
03/12/2026
Click on "Statement Details" to expand or collapse a tax statement.
* Please enter a valid date ** Please enter a valid date *
Statement Details |
| 2026 | 14628 | STATE - STATE LEVY (SCHOOL) | $741.26 | $741.25 | $0.00 | $0.00 | $0.00 | $1482.51 |
| 2026 | 14628 | COUNTY - COUNTY LEVIES (CE, DD, VET, MH) | $296.35 | $296.34 | $0.00 | $0.00 | $0.00 | $592.69 |
| 2026 | 14628 | CONSERVE - CONSERVATION FUTURES | $8.89 | $8.88 | $0.00 | $0.00 | $0.00 | $17.77 |
| 2026 | 14628 | CITYPT - CITY OF PT | $420.65 | $420.64 | $0.00 | $0.00 | $0.00 | $841.29 |
| 2026 | 14628 | PORTPT - PORT DISTRICT | $119.69 | $119.68 | $0.00 | $0.00 | $0.00 | $239.37 |
| 2026 | 14628 | PUD1 - PUD #1 | $19.28 | $19.27 | $0.00 | $0.00 | $0.00 | $38.55 |
| 2026 | 14628 | HD2 - HOSP DIST #2 | $17.29 | $17.28 | $0.00 | $0.00 | $0.00 | $34.57 |
| 2026 | 14628 | SD50 - SCHOOL DIST #50 | $587.25 | $587.22 | $0.00 | $0.00 | $0.00 | $1174.47 |
| 2026 | 14628 | FD1 - FIRE DISTRICT #1 | $392.44 | $392.44 | $0.00 | $0.00 | $0.00 | $784.88 |
| 2026 | 14628 | EMS1 - FIRE DIST #1 EMS | $150.89 | $150.88 | $0.00 | $0.00 | $0.00 | $301.77 |
| 2026 | 14628 | JCCD - JC Conservation District | $2.55 | $2.55 | $0.00 | $0.00 | $0.00 | $5.10 |
| 2026 | 14628 | NWA - Noxious Weed Assessment | $2.98 | $2.97 | $0.00 | $0.00 | $0.00 | $5.95 |
| 2026 | 14628 | WAT - Clean Water District | $13.00 | $13.00 | $0.00 | $0.00 | $0.00 | $26.00 |
| 2026 | 14628 | TOTAL: | $2772.52 | $2772.40 | $0.00 | $0.00 | $0.00 | $5544.92 |
|
| 2026 | 14628 | $2772.52 | $2772.40 | $0.00 | $0.00 | $0.00 | $5544.92 |
Statement Details |
| 2025 | 14678 | STATE - STATE LEVY (SCHOOL) | $705.79 | $705.79 | $0.00 | $0.00 | $1411.58 | $0.00 |
| 2025 | 14678 | COUNTY - COUNTY LEVIES (CE, DD, VET, MH) | $277.55 | $277.55 | $0.00 | $0.00 | $555.10 | $0.00 |
| 2025 | 14678 | CONSERVE - CONSERVATION FUTURES | $8.33 | $8.32 | $0.00 | $0.00 | $16.65 | $0.00 |
| 2025 | 14678 | CITYPT - CITY OF PT | $400.27 | $400.24 | $0.00 | $0.00 | $800.51 | $0.00 |
| 2025 | 14678 | PORTPT - PORT DISTRICT | $113.26 | $113.25 | $0.00 | $0.00 | $226.51 | $0.00 |
| 2025 | 14678 | PUD1 - PUD #1 | $18.16 | $18.16 | $0.00 | $0.00 | $36.32 | $0.00 |
| 2025 | 14678 | HD2 - HOSP DIST #2 | $16.20 | $16.19 | $0.00 | $0.00 | $32.39 | $0.00 |
| 2025 | 14678 | SD50 - SCHOOL DIST #50 | $515.83 | $515.81 | $0.00 | $0.00 | $1031.64 | $0.00 |
| 2025 | 14678 | FD1 - FIRE DISTRICT #1 | $366.26 | $366.25 | $0.00 | $0.00 | $732.51 | $0.00 |
| 2025 | 14678 | EMS1 - FIRE DIST #1 EMS | $140.87 | $140.87 | $0.00 | $0.00 | $281.74 | $0.00 |
| 2025 | 14678 | JCCD - JC Conservation District | $2.55 | $2.55 | $0.00 | $0.00 | $5.10 | $0.00 |
| 2025 | 14678 | NWA - Noxious Weed Assessment | $2.15 | $2.15 | $0.00 | $0.00 | $4.30 | $0.00 |
| 2025 | 14678 | WAT - Clean Water District | $13.00 | $13.00 | $0.00 | $0.00 | $26.00 | $0.00 |
| 2025 | 14678 | TOTAL: | $2580.22 | $2580.13 | $0.00 | $0.00 | $5160.35 | $0.00 |
|
| 2025 | 14678 | $2580.22 | $2580.13 | $0.00 | $0.00 | $5160.35 | $0.00 |
Statement Details |
| 2024 | 14709 | STATE - STATE LEVY (SCHOOL) | $364.75 | $364.73 | $0.00 | $0.00 | $729.48 | $0.00 |
| 2024 | 14709 | COUNTY - COUNTY LEVIES (CE, DD, VET, MH) | $156.07 | $156.07 | $0.00 | $0.00 | $312.14 | $0.00 |
| 2024 | 14709 | CONSERVE - CONSERVATION FUTURES | $4.68 | $4.68 | $0.00 | $0.00 | $9.36 | $0.00 |
| 2024 | 14709 | CITYPT - CITY OF PT | $223.02 | $223.00 | $0.00 | $0.00 | $446.02 | $0.00 |
| 2024 | 14709 | PORTPT - PORT DISTRICT | $64.47 | $64.46 | $0.00 | $0.00 | $128.93 | $0.00 |
| 2024 | 14709 | PUD1 - PUD #1 | $10.25 | $10.25 | $0.00 | $0.00 | $20.50 | $0.00 |
| 2024 | 14709 | HD2 - HOSP DIST #2 | $9.11 | $9.10 | $0.00 | $0.00 | $18.21 | $0.00 |
| 2024 | 14709 | SD50 - SCHOOL DIST #50 | $295.10 | $295.08 | $0.00 | $0.00 | $590.18 | $0.00 |
| 2024 | 14709 | FD1 - FIRE DISTRICT #1 | $206.37 | $206.37 | $0.00 | $0.00 | $412.74 | $0.00 |
| 2024 | 14709 | EMS1 - FIRE DIST #1 EMS | $78.83 | $78.82 | $0.00 | $0.00 | $157.65 | $0.00 |
| 2024 | 14709 | JCCD - JC Conservation District | $2.55 | $2.55 | $0.00 | $0.00 | $5.10 | $0.00 |
| 2024 | 14709 | NWA - Noxious Weed Assessment | $2.15 | $2.15 | $0.00 | $0.00 | $4.30 | $0.00 |
| 2024 | 14709 | WAT - Clean Water District | $12.50 | $12.50 | $0.00 | $0.00 | $25.00 | $0.00 |
| 2024 | 14709 | TOTAL: | $1429.85 | $1429.76 | $0.00 | $0.00 | $2859.61 | $0.00 |
|
| 2024 | 14709 | $1429.85 | $1429.76 | $0.00 | $0.00 | $2859.61 | $0.00 |
Statement Details |
| 2023 | 14734 | STATE - STATE LEVY (SCHOOL) | $164.80 | $164.78 | $0.00 | $0.00 | $329.58 | $0.00 |
| 2023 | 14734 | COUNTY - COUNTY LEVIES (CE, DD, VET, MH) | $71.92 | $71.91 | $0.00 | $0.00 | $143.83 | $0.00 |
| 2023 | 14734 | CONSERVE - CONSERVATION FUTURES | $2.16 | $2.15 | $0.00 | $0.00 | $4.31 | $0.00 |
| 2023 | 14734 | CITYPT - CITY OF PT | $101.63 | $101.63 | $0.00 | $0.00 | $203.26 | $0.00 |
| 2023 | 14734 | PORTPT - PORT DISTRICT | $30.30 | $30.29 | $0.00 | $0.00 | $60.59 | $0.00 |
| 2023 | 14734 | PUD1 - PUD #1 | $4.77 | $4.76 | $0.00 | $0.00 | $9.53 | $0.00 |
| 2023 | 14734 | HD2 - HOSP DIST #2 | $4.21 | $4.19 | $0.00 | $0.00 | $8.40 | $0.00 |
| 2023 | 14734 | SD50 - SCHOOL DIST #50 | $130.77 | $130.75 | $0.00 | $0.00 | $261.52 | $0.00 |
| 2023 | 14734 | FD1 - FIRE DISTRICT #1 | $59.24 | $59.24 | $0.00 | $0.00 | $118.48 | $0.00 |
| 2023 | 14734 | EMS1 - FIRE DIST #1 EMS | $25.20 | $25.20 | $0.00 | $0.00 | $50.40 | $0.00 |
| 2023 | 14734 | JCCD - JC Conservation District | $2.53 | $2.53 | $0.00 | $0.00 | $5.06 | $0.00 |
| 2023 | 14734 | NWA - Noxious Weed Assessment | $2.15 | $2.15 | $0.00 | $0.00 | $4.30 | $0.00 |
| 2023 | 14734 | WAT - Clean Water District | $12.00 | $12.00 | $0.00 | $0.00 | $24.00 | $0.00 |
| 2023 | 14734 | TOTAL: | $611.68 | $611.58 | $0.00 | $0.00 | $1223.26 | $0.00 |
|
| 2023 | 14734 | $611.68 | $611.58 | $0.00 | $0.00 | $1223.26 | $0.00 |
Values
| (+) Improvement Homesite Value: | + | $0 | |
| (+) Improvement Non-Homesite Value: | + | $389,582 | |
| (+) Land Homesite Value: | + | $0 | |
| (+) Land Non-Homesite Value: | + | $185,000 | |
| (+) Curr Use (HS): | + | $0 | $0 |
| (+) Curr Use (NHS): | + | $0 | $0 |
| | | -------------------------- | |
| (=) Market Value: | = | $574,582 | |
| (–) Productivity Loss: | – | $0 | |
| | | -------------------------- | |
| (=) Subtotal: | = | $574,582 | |
| (+) Senior Appraised Value: | + | $0 | |
| (+) Non-Senior Appraised Value: | + | $574,582 | |
| | | -------------------------- | |
| (=) Total Appraised Value: | = | $574,582 | |
| (–) Senior Exemption Loss: | – | $0 | |
| (–) Exemption Loss: | – | $0 | |
| | | -------------------------- | |
| (=) Taxable Value: | = | $574,582 | |
Taxing Jurisdiction
| Owner: | EMILY TRUJILLO & | | |
| % Ownership: | 100.0000000000% | | |
| Total Value: | N/A | | |
| Tax Area: | 0110 - C-50F1E1H2 |
| CE | COUNTY CURRENT EXPENSE | N/A | N/A | N/A | N/A | | |
| CNTYDD | DEVELOPMENTAL DISABILITIES | N/A | N/A | N/A | N/A | | |
| CNTYVET | VETERANS RELIEF | N/A | N/A | N/A | N/A | | |
| MENTAL | MENTAL HEALTH | N/A | N/A | N/A | N/A | | |
| PTGEN | CITY OF PT GENERAL | N/A | N/A | N/A | N/A | | |
| PTLLL | CITY OF PT - LIBRARY LID LIFT | N/A | N/A | N/A | N/A | | |
| PTMVBOND | CITY OF PT MV BOND | N/A | N/A | N/A | N/A | | |
| HOSP2CASH | HOSP DIST #2 GENERAL | N/A | N/A | N/A | N/A | | |
| SCH50BOND | SCHOOL DIST #50 BOND 2016 | N/A | N/A | N/A | N/A | | |
| SCH50CP | SCHOOL DIST #50 CAP PROJ | N/A | N/A | N/A | N/A | | |
| SCH50MO | SCHOOL DIST #50 EP & O | N/A | N/A | N/A | N/A | | |
| CONSERVE | CONSERVATION FUTURES | N/A | N/A | N/A | N/A | | |
| EMS1 | FIRE DIST #1 EMS | N/A | N/A | N/A | N/A | | |
| FD1 | FIRE DIST #1 GENERAL | N/A | N/A | N/A | N/A | | |
| PORTPT | PORT OF PT GENERAL | N/A | N/A | N/A | N/A | | |
| PORTPTIDD | PORT OF PT IDD 2019 | N/A | N/A | N/A | N/A | | |
| PUD1 | PUD #1 GENERAL | N/A | N/A | N/A | N/A | | |
| STATE | STATE SCHOOL PART 1 | N/A | N/A | N/A | N/A | | |
| STATE2 | STATE SCHOOL PART 2 | N/A | N/A | N/A | N/A | | |
| | Total Tax Rate: | N/A | | | | | |
| | | | | Taxes w/Current Exemptions: | N/A | | |
| | | | | Taxes w/o Exemptions: | N/A | | |
Improvement / Building
| Improvement #1: | Residential Bldg | State Code: | 11 | 1613.2 sqft | Value: | $389,582 |
| Bathrooms (#): | 2 (FULL) | Bedrooms (#): | 2 | | Exterior Wall: | SI/ST | Floor Construction: | FRAME | | Foundation: | CONPR | Heating/Cooling: | HPUMP | | Interior Finish: | FIN | Roof Cover: | COMP |
|
| | Type | Description | Class CD | Sub Class CD | Year Built | Area |
| | MA | Main Area | 4 | 1S | 2023 | 1613.2 |
| | HDECK | House Deck | 4 | 1S | 2023 | 336.0 |
| | HCPOR | House Concrete Porch | 4 | 1S | 2023 | 36.0 |
Sketch
Property Image
Land
| 1 | 6035-1185L | | 0.0000 | 0.00 | 0.00 | 0.00 | 1.00 | $55,000 | $0 |
| 2 | 6035-1175L | | 0.0000 | 0.00 | 0.00 | 0.00 | 1.00 | $130,000 | $0 |
Roll Value History
| 2026 | N/A | N/A | N/A | N/A | N/A |
| 2025 | $405,825 | $239,000 | $0 | $644,825 | $644,825 |
| 2024 | $401,646 | $187,000 | $0 | $588,646 | $588,646 |
| 2023 | $150,303 | $165,000 | $0 | $315,303 | $315,303 |
| 2022 | $0 | $140,000 | $0 | $140,000 | $140,000 |
Deed and Sales History
| 1 | 09/22/2025 | SWD | Statutory Warranty Deed | DWIGHT NICHOLSON | EMILY TRUJILLO & | | | $550,000.00 | 145067 | |
| 2 | 03/17/2000 | SWD | Statutory Warranty Deed | KNOWLES, GREGG C | NICHOLSON, DWIGHT/JOAN B | 0 | 0 | $40,000.00 | 89206 | 0 |
|   | |
Payout Agreement
| No payout information available.. |