Property
Account |
| Property ID: | 25250 | Abbreviated Legal Description: | CALIFORNIA ADDITION BLK 15 LOTS 8 & 9(LS TAX 27) |
| Parcel # / Geo ID: | 936901508 | Agent Code: | |
| Type: | Real | | |
| Tax Area: | 0110 - C-50F1E1H2 | Land Use Code | 11 |
| Open Space: | N | DFL | N |
| Historic Property: | N | Remodel Property: | N |
| Multi-Family Redevelopment: | N | | |
| Township: | 31N | Section: | 34 |
| Range: | 1W |
Location |
| Address: | 848 51ST ST PORT TOWNSEND, WA 98368 | Mapsco: | 009/073 |
| Neighborhood: | CALIFORNIA ADDITION; DONOVAN/GREGORY SP & TAX 2 | Map ID: | |
| Neighborhood CD: | 6035 |
Owner |
| Name: | JOHN & JULIE BRADSHAW | Owner ID: | 97513 |
| Mailing Address: | 848 51ST ST PORT TOWNSEND, WA 98368-1502 | % Ownership: | 100.0000000000% |
| | | Exemptions: | |
Pay Tax Due
Select the appropriate checkbox next to the year to be paid. Multiple years may be selected.
*Convenience Fee not included
Taxes and Assessment Details
Property Tax Information as of
03/13/2026
Click on "Statement Details" to expand or collapse a tax statement.
* Please enter a valid date ** Please enter a valid date *
Statement Details |
| 2026 | 14636 | STATE - STATE LEVY (SCHOOL) | $648.12 | $648.11 | $0.00 | $0.00 | $0.00 | $1296.23 |
| 2026 | 14636 | COUNTY - COUNTY LEVIES (CE, DD, VET, MH) | $259.12 | $259.11 | $0.00 | $0.00 | $0.00 | $518.23 |
| 2026 | 14636 | CONSERVE - CONSERVATION FUTURES | $7.77 | $7.77 | $0.00 | $0.00 | $0.00 | $15.54 |
| 2026 | 14636 | CITYPT - CITY OF PT | $367.80 | $367.78 | $0.00 | $0.00 | $0.00 | $735.58 |
| 2026 | 14636 | PORTPT - PORT DISTRICT | $104.66 | $104.64 | $0.00 | $0.00 | $0.00 | $209.30 |
| 2026 | 14636 | PUD1 - PUD #1 | $16.86 | $16.85 | $0.00 | $0.00 | $0.00 | $33.71 |
| 2026 | 14636 | HD2 - HOSP DIST #2 | $15.11 | $15.11 | $0.00 | $0.00 | $0.00 | $30.22 |
| 2026 | 14636 | SD50 - SCHOOL DIST #50 | $513.45 | $513.44 | $0.00 | $0.00 | $0.00 | $1026.89 |
| 2026 | 14636 | FD1 - FIRE DISTRICT #1 | $343.13 | $343.13 | $0.00 | $0.00 | $0.00 | $686.26 |
| 2026 | 14636 | EMS1 - FIRE DIST #1 EMS | $131.93 | $131.93 | $0.00 | $0.00 | $0.00 | $263.86 |
| 2026 | 14636 | JCCD - JC Conservation District | $2.55 | $2.55 | $0.00 | $0.00 | $0.00 | $5.10 |
| 2026 | 14636 | NWA - Noxious Weed Assessment | $2.98 | $2.97 | $0.00 | $0.00 | $0.00 | $5.95 |
| 2026 | 14636 | TOTAL: | $2413.48 | $2413.39 | $0.00 | $0.00 | $0.00 | $4826.87 |
|
| 2026 | 14636 | $2413.48 | $2413.39 | $0.00 | $0.00 | $0.00 | $4826.87 |
Statement Details |
| 2025 | 14686 | STATE - STATE LEVY (SCHOOL) | $654.98 | $654.97 | $0.00 | $0.00 | $1309.95 | $0.00 |
| 2025 | 14686 | COUNTY - COUNTY LEVIES (CE, DD, VET, MH) | $257.58 | $257.54 | $0.00 | $0.00 | $515.12 | $0.00 |
| 2025 | 14686 | CONSERVE - CONSERVATION FUTURES | $7.73 | $7.72 | $0.00 | $0.00 | $15.45 | $0.00 |
| 2025 | 14686 | CITYPT - CITY OF PT | $371.44 | $371.43 | $0.00 | $0.00 | $742.87 | $0.00 |
| 2025 | 14686 | PORTPT - PORT DISTRICT | $105.11 | $105.10 | $0.00 | $0.00 | $210.21 | $0.00 |
| 2025 | 14686 | PUD1 - PUD #1 | $16.86 | $16.85 | $0.00 | $0.00 | $33.71 | $0.00 |
| 2025 | 14686 | HD2 - HOSP DIST #2 | $15.03 | $15.02 | $0.00 | $0.00 | $30.05 | $0.00 |
| 2025 | 14686 | SD50 - SCHOOL DIST #50 | $478.68 | $478.67 | $0.00 | $0.00 | $957.35 | $0.00 |
| 2025 | 14686 | FD1 - FIRE DISTRICT #1 | $339.89 | $339.88 | $0.00 | $0.00 | $679.77 | $0.00 |
| 2025 | 14686 | EMS1 - FIRE DIST #1 EMS | $130.73 | $130.73 | $0.00 | $0.00 | $261.46 | $0.00 |
| 2025 | 14686 | JCCD - JC Conservation District | $2.55 | $2.55 | $0.00 | $0.00 | $5.10 | $0.00 |
| 2025 | 14686 | NWA - Noxious Weed Assessment | $2.15 | $2.15 | $0.00 | $0.00 | $4.30 | $0.00 |
| 2025 | 14686 | TOTAL: | $2382.73 | $2382.61 | $0.00 | $0.00 | $4765.34 | $0.00 |
|
| 2025 | 14686 | $2382.73 | $2382.61 | $0.00 | $0.00 | $4765.34 | $0.00 |
Statement Details |
| 2024 | 14717 | STATE - STATE LEVY (SCHOOL) | $589.24 | $589.23 | $0.00 | $0.00 | $1178.47 | $0.00 |
| 2024 | 14717 | COUNTY - COUNTY LEVIES (CE, DD, VET, MH) | $252.16 | $252.13 | $0.00 | $0.00 | $504.29 | $0.00 |
| 2024 | 14717 | CONSERVE - CONSERVATION FUTURES | $7.56 | $7.56 | $0.00 | $0.00 | $15.12 | $0.00 |
| 2024 | 14717 | CITYPT - CITY OF PT | $360.28 | $360.27 | $0.00 | $0.00 | $720.55 | $0.00 |
| 2024 | 14717 | PORTPT - PORT DISTRICT | $104.15 | $104.14 | $0.00 | $0.00 | $208.29 | $0.00 |
| 2024 | 14717 | PUD1 - PUD #1 | $16.56 | $16.56 | $0.00 | $0.00 | $33.12 | $0.00 |
| 2024 | 14717 | HD2 - HOSP DIST #2 | $14.71 | $14.71 | $0.00 | $0.00 | $29.42 | $0.00 |
| 2024 | 14717 | SD50 - SCHOOL DIST #50 | $476.73 | $476.72 | $0.00 | $0.00 | $953.45 | $0.00 |
| 2024 | 14717 | FD1 - FIRE DISTRICT #1 | $333.39 | $333.39 | $0.00 | $0.00 | $666.78 | $0.00 |
| 2024 | 14717 | EMS1 - FIRE DIST #1 EMS | $127.35 | $127.34 | $0.00 | $0.00 | $254.69 | $0.00 |
| 2024 | 14717 | JCCD - JC Conservation District | $2.55 | $2.55 | $0.00 | $0.00 | $5.10 | $0.00 |
| 2024 | 14717 | NWA - Noxious Weed Assessment | $2.15 | $2.15 | $0.00 | $0.00 | $4.30 | $0.00 |
| 2024 | 14717 | TOTAL: | $2286.83 | $2286.75 | $0.00 | $0.00 | $4573.58 | $0.00 |
|
| 2024 | 14717 | $2286.83 | $2286.75 | $0.00 | $0.00 | $4573.58 | $0.00 |
Statement Details |
| 2023 | 14742 | STATE - STATE LEVY (SCHOOL) | $593.69 | $593.68 | $0.00 | $0.00 | $1187.37 | $0.00 |
| 2023 | 14742 | COUNTY - COUNTY LEVIES (CE, DD, VET, MH) | $259.07 | $259.06 | $0.00 | $0.00 | $518.13 | $0.00 |
| 2023 | 14742 | CONSERVE - CONSERVATION FUTURES | $7.77 | $7.77 | $0.00 | $0.00 | $15.54 | $0.00 |
| 2023 | 14742 | CITYPT - CITY OF PT | $366.16 | $366.14 | $0.00 | $0.00 | $732.30 | $0.00 |
| 2023 | 14742 | PORTPT - PORT DISTRICT | $109.14 | $109.13 | $0.00 | $0.00 | $218.27 | $0.00 |
| 2023 | 14742 | PUD1 - PUD #1 | $17.18 | $17.17 | $0.00 | $0.00 | $34.35 | $0.00 |
| 2023 | 14742 | HD2 - HOSP DIST #2 | $15.12 | $15.11 | $0.00 | $0.00 | $30.23 | $0.00 |
| 2023 | 14742 | SD50 - SCHOOL DIST #50 | $471.10 | $471.10 | $0.00 | $0.00 | $942.20 | $0.00 |
| 2023 | 14742 | FD1 - FIRE DISTRICT #1 | $213.42 | $213.42 | $0.00 | $0.00 | $426.84 | $0.00 |
| 2023 | 14742 | EMS1 - FIRE DIST #1 EMS | $90.79 | $90.78 | $0.00 | $0.00 | $181.57 | $0.00 |
| 2023 | 14742 | JCCD - JC Conservation District | $2.55 | $2.55 | $0.00 | $0.00 | $5.10 | $0.00 |
| 2023 | 14742 | NWA - Noxious Weed Assessment | $2.15 | $2.15 | $0.00 | $0.00 | $4.30 | $0.00 |
| 2023 | 14742 | TOTAL: | $2148.14 | $2148.06 | $0.00 | $0.00 | $4296.20 | $0.00 |
|
| 2023 | 14742 | $2148.14 | $2148.06 | $0.00 | $0.00 | $4296.20 | $0.00 |
Values
| (+) Improvement Homesite Value: | + | $0 | |
| (+) Improvement Non-Homesite Value: | + | $394,202 | |
| (+) Land Homesite Value: | + | $0 | |
| (+) Land Non-Homesite Value: | + | $169,600 | |
| (+) Curr Use (HS): | + | $0 | $0 |
| (+) Curr Use (NHS): | + | $0 | $0 |
| | | -------------------------- | |
| (=) Market Value: | = | $563,802 | |
| (–) Productivity Loss: | – | $0 | |
| | | -------------------------- | |
| (=) Subtotal: | = | $563,802 | |
| (+) Senior Appraised Value: | + | $0 | |
| (+) Non-Senior Appraised Value: | + | $563,802 | |
| | | -------------------------- | |
| (=) Total Appraised Value: | = | $563,802 | |
| (–) Senior Exemption Loss: | – | $0 | |
| (–) Exemption Loss: | – | $0 | |
| | | -------------------------- | |
| (=) Taxable Value: | = | $563,802 | |
Taxing Jurisdiction
| Owner: | JOHN & JULIE BRADSHAW | | |
| % Ownership: | 100.0000000000% | | |
| Total Value: | $563,802 | | |
| Tax Area: | 0110 - C-50F1E1H2 |
| CE | COUNTY CURRENT EXPENSE | 0.9034619479 | $563,802 | $563,802 | $509.37 | | |
| CNTYDD | DEVELOPMENTAL DISABILITIES | 0.0052121823 | $563,802 | $563,802 | $2.94 | | |
| CNTYVET | VETERANS RELIEF | 0.0052777810 | $563,802 | $563,802 | $2.98 | | |
| MENTAL | MENTAL HEALTH | 0.0052121823 | $563,802 | $563,802 | $2.94 | | |
| PTGEN | CITY OF PT GENERAL | 0.8551967795 | $563,802 | $563,802 | $482.16 | | |
| PTLLL | CITY OF PT - LIBRARY LID LIFT | 0.4010114288 | $563,802 | $563,802 | $226.09 | | |
| PTMVBOND | CITY OF PT MV BOND | 0.0484717981 | $563,802 | $563,802 | $27.33 | | |
| HOSP2CASH | HOSP DIST #2 GENERAL | 0.0536075306 | $563,802 | $563,802 | $30.22 | | |
| SCH50BOND | SCHOOL DIST #50 BOND 2016 | 0.5377451389 | $563,802 | $563,802 | $303.18 | | |
| SCH50CP | SCHOOL DIST #50 CAP PROJ | 0.4573475088 | $563,802 | $563,802 | $257.85 | | |
| SCH50MO | SCHOOL DIST #50 EP & O | 0.8262822886 | $563,802 | $563,802 | $465.86 | | |
| CONSERVE | CONSERVATION FUTURES | 0.0275621078 | $563,802 | $563,802 | $15.54 | | |
| EMS1 | FIRE DIST #1 EMS | 0.4679948282 | $563,802 | $563,802 | $263.86 | | |
| FD1 | FIRE DIST #1 GENERAL | 1.2171942929 | $563,802 | $563,802 | $686.26 | | |
| PORTPT | PORT OF PT GENERAL | 0.1134941229 | $563,802 | $563,802 | $63.99 | | |
| PORTPTIDD | PORT OF PT IDD 2019 | 0.2577346692 | $563,802 | $563,802 | $145.31 | | |
| PUD1 | PUD #1 GENERAL | 0.0597888892 | $563,802 | $563,802 | $33.71 | | |
| STATE | STATE SCHOOL PART 1 | 1.4940692947 | $563,802 | $563,802 | $842.36 | | |
| STATE2 | STATE SCHOOL PART 2 | 0.8050170049 | $563,802 | $563,802 | $453.87 | | |
| | Total Tax Rate: | 8.5416817766 | | | | | |
| | | | | Taxes w/Current Exemptions: | $4,815.82 | | |
| | | | | Taxes w/o Exemptions: | $4,815.82 | | |
Improvement / Building
| Improvement #1: | Residential Bldg | State Code: | 11 | 1119.0 sqft | Value: | $394,202 |
| Bathrooms (#): | 2 (FULL) | Bedrooms (#): | 2 | | Exterior Wall: | SI/ST | Floor Construction: | FRAME | | Foundation: | CONPR | Heating/Cooling: | HPUMP | | Roof Cover: | COMP |   |   |
|
| | Type | Description | Class CD | Sub Class CD | Year Built | Area |
| | MA | Main Area | 5- | 1S | 1925 | 1119.0 |
| | HWPOR | House Wood Porch | 5 | * | 2017 | 108.0 |
| | GDET | Detached Garage | 4 | * | 1925 | 192.0 |
| | HWPOR | House Wood Porch | 5 | * | 2017 | 90.0 |
| | SHED | Shed (Table Not Dep) | 4 | * | 1925 | 96.0 |
| | HDECK | House Deck | 5 | * | 2017 | 431.0 |
Sketch
Property Image
Land
| 1 | 6035-1185L | | 0.0000 | 0.00 | 0.00 | 0.00 | 1.00 | $39,600 | $0 |
| 2 | 6035-1175L | | 0.0000 | 0.00 | 0.00 | 0.00 | 1.00 | $130,000 | $0 |
Roll Value History
| 2026 | N/A | N/A | N/A | N/A | N/A |
| 2025 | $394,202 | $169,600 | $0 | $563,802 | $563,802 |
| 2024 | $374,661 | $171,600 | $0 | $546,261 | $546,261 |
| 2023 | $358,371 | $151,000 | $0 | $509,371 | $509,371 |
| 2022 | $358,371 | $146,000 | $0 | $504,371 | $504,371 |
Deed and Sales History
| 1 | 06/26/2017 | SWD | Statutory Warranty Deed | ALLAN R & MARY L MERRALLS | JOHN & JULIE BRADSHAW | | | | 128001 | |
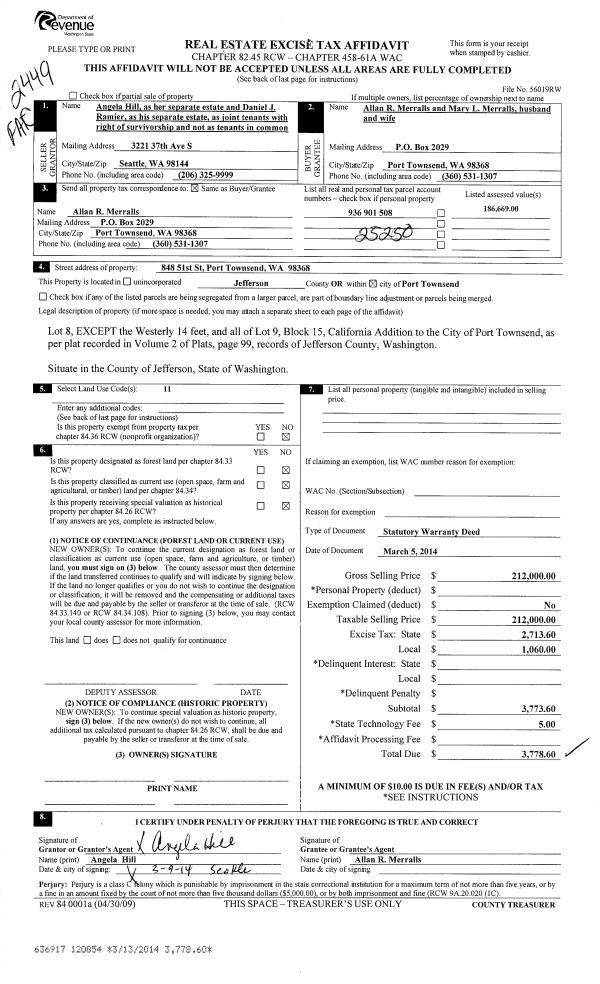
| 2 | 03/05/2014 | SWD | Statutory Warranty Deed | ANGELA HILL | ALLAN R & MARY L MERRALLS | | | $212,000.00 | 120854 | |
| 3 | 09/11/2003 | SWD | Statutory Warranty Deed | MICHEL, WILLIAM/DEBORAH | HILL, ANGELA/RAMIER, DANIEL | 0 | 0 | $170,000.00 | 98297 | 0 |
| 4 | 07/24/2001 | QCD | Quit Claim Deed | MICHEL, WILLIAM C | MICHEL, WILLIAM C/DEBORAH D | 0 | 0 | $0.00 | 92693 | 0 |
| 5 | 12/21/1995 | QCD | Quit Claim Deed | MICHEL, WILLIAM | CHILDS, YVONNE | 0 | 0 | $1,000.00 | 78477 | 0 |
| 6 | 12/01/1995 | BLA | Boundary Line Adjustment | MICHEL, WILLIAM | CHILDS, YVONNE | 0 | 0 | $0.00 | 78338 | 0 |
| 7 | 06/23/1993 | REC | Real Estate Contract | GAGE, MARVEL A | MICHEL, WILLIAM | 0 | 0 | $9,500.00 | 71477 | 0 |
Payout Agreement
| No payout information available.. |