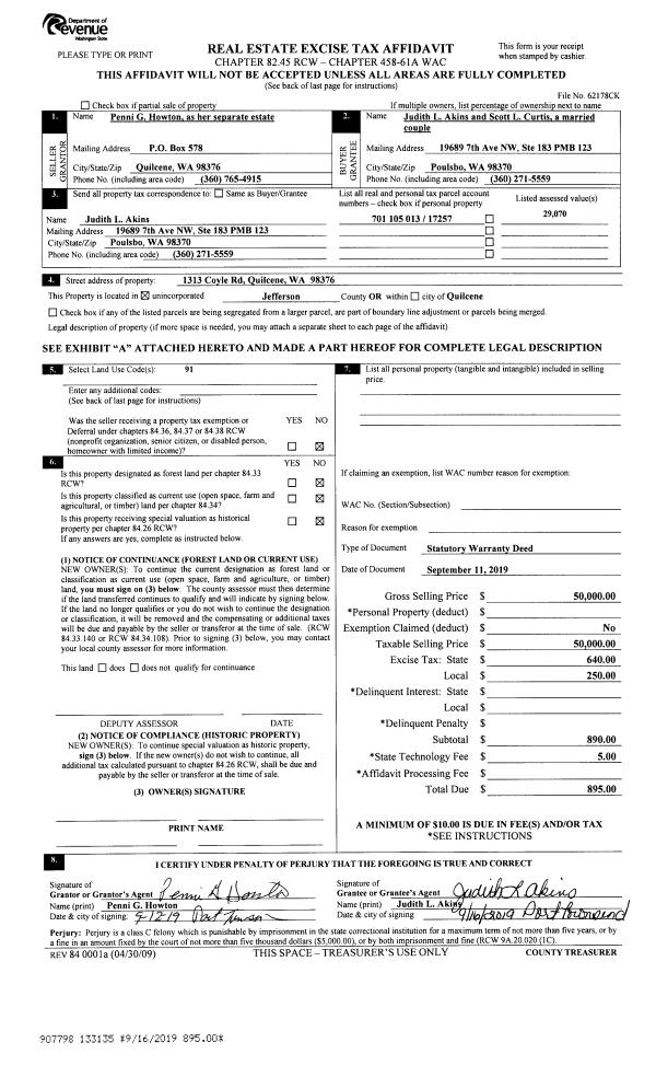
Property
Account |
| Property ID: | 25294 | Abbreviated Legal Description: | CALIFORNIA ADDITION BLK 28 LOTS 1 THRU 6 BND TGTH THRU LUP25-009 |
| Parcel # / Geo ID: | 936902801 | Agent Code: | |
| Type: | Real | | |
| Tax Area: | 0110 - C-50F1E1H2 | Land Use Code | 11 |
| Open Space: | N | DFL | N |
| Historic Property: | N | Remodel Property: | N |
| Multi-Family Redevelopment: | N | | |
| Township: | 31N | Section: | 34 |
| Range: | 1W |
Location |
| Address: | 625 55TH ST PORT TOWNSEND, WA 98368 | Mapsco: | 010/039 |
| Neighborhood: | CALIFORNIA ADDITION; DONOVAN/GREGORY SP & TAX 2 | Map ID: | |
| Neighborhood CD: | 6035 |
Owner |
| Name: | DOUGLAS C WARREN | Owner ID: | 29930 |
| Mailing Address: | ALISON L HEDLUND 625 55TH ST PORT TOWNSEND, WA 98368-1307 | % Ownership: | 100.0000000000% |
| | | Exemptions: | |
Pay Tax Due
Select the appropriate checkbox next to the year to be paid. Multiple years may be selected.
*Convenience Fee not included
Taxes and Assessment Details
Property Tax Information as of
03/11/2026
Click on "Statement Details" to expand or collapse a tax statement.
* Please enter a valid date ** Please enter a valid date *
Statement Details |
| 2026 | 14680 | STATE - STATE LEVY (SCHOOL) | $1003.46 | $1003.45 | $0.00 | $0.00 | $0.00 | $2006.91 |
| 2026 | 14680 | COUNTY - COUNTY LEVIES (CE, DD, VET, MH) | $401.20 | $401.16 | $0.00 | $0.00 | $0.00 | $802.36 |
| 2026 | 14680 | CONSERVE - CONSERVATION FUTURES | $12.03 | $12.03 | $0.00 | $0.00 | $0.00 | $24.06 |
| 2026 | 14680 | CITYPT - CITY OF PT | $569.45 | $569.42 | $0.00 | $0.00 | $0.00 | $1138.87 |
| 2026 | 14680 | PORTPT - PORT DISTRICT | $162.03 | $162.02 | $0.00 | $0.00 | $0.00 | $324.05 |
| 2026 | 14680 | PUD1 - PUD #1 | $26.10 | $26.09 | $0.00 | $0.00 | $0.00 | $52.19 |
| 2026 | 14680 | HD2 - HOSP DIST #2 | $23.40 | $23.39 | $0.00 | $0.00 | $0.00 | $46.79 |
| 2026 | 14680 | SD50 - SCHOOL DIST #50 | $794.97 | $794.94 | $0.00 | $0.00 | $0.00 | $1589.91 |
| 2026 | 14680 | FD1 - FIRE DISTRICT #1 | $531.26 | $531.25 | $0.00 | $0.00 | $0.00 | $1062.51 |
| 2026 | 14680 | EMS1 - FIRE DIST #1 EMS | $204.26 | $204.26 | $0.00 | $0.00 | $0.00 | $408.52 |
| 2026 | 14680 | FP - DNR Forest Fire Protection Assmt | $8.50 | $8.50 | $0.00 | $0.00 | $0.00 | $17.00 |
| 2026 | 14680 | FPLCA - DNR Landowner Contingency Assmt | $3.00 | $3.00 | $0.00 | $0.00 | $0.00 | $6.00 |
| 2026 | 14680 | JCCD - JC Conservation District | $2.55 | $2.55 | $0.00 | $0.00 | $0.00 | $5.10 |
| 2026 | 14680 | NWA - Noxious Weed Assessment | $2.98 | $2.97 | $0.00 | $0.00 | $0.00 | $5.95 |
| 2026 | 14680 | FP ADMIN - FP ADMIN | $0.50 | $0.00 | $0.00 | $0.00 | $0.00 | $0.50 |
| 2026 | 14680 | TOTAL: | $3745.69 | $3745.03 | $0.00 | $0.00 | $0.00 | $7490.72 |
|
| 2026 | 14680 | $3745.69 | $3745.03 | $0.00 | $0.00 | $0.00 | $7490.72 |
Statement Details |
| 2025 | 14730 | STATE - STATE LEVY (SCHOOL) | $1029.62 | $1029.61 | $0.00 | $0.00 | $2059.23 | $0.00 |
| 2025 | 14730 | COUNTY - COUNTY LEVIES (CE, DD, VET, MH) | $404.89 | $404.89 | $0.00 | $0.00 | $809.78 | $0.00 |
| 2025 | 14730 | CONSERVE - CONSERVATION FUTURES | $12.14 | $12.14 | $0.00 | $0.00 | $24.28 | $0.00 |
| 2025 | 14730 | CITYPT - CITY OF PT | $583.90 | $583.89 | $0.00 | $0.00 | $1167.79 | $0.00 |
| 2025 | 14730 | PORTPT - PORT DISTRICT | $165.23 | $165.21 | $0.00 | $0.00 | $330.44 | $0.00 |
| 2025 | 14730 | PUD1 - PUD #1 | $26.50 | $26.49 | $0.00 | $0.00 | $52.99 | $0.00 |
| 2025 | 14730 | HD2 - HOSP DIST #2 | $23.62 | $23.62 | $0.00 | $0.00 | $47.24 | $0.00 |
| 2025 | 14730 | SD50 - SCHOOL DIST #50 | $752.48 | $752.47 | $0.00 | $0.00 | $1504.95 | $0.00 |
| 2025 | 14730 | FD1 - FIRE DISTRICT #1 | $534.30 | $534.29 | $0.00 | $0.00 | $1068.59 | $0.00 |
| 2025 | 14730 | EMS1 - FIRE DIST #1 EMS | $205.51 | $205.50 | $0.00 | $0.00 | $411.01 | $0.00 |
| 2025 | 14730 | FP - DNR Forest Fire Protection Assmt | $8.50 | $8.50 | $0.00 | $0.00 | $17.00 | $0.00 |
| 2025 | 14730 | FPLCA - DNR Landowner Contingency Assmt | $3.00 | $3.00 | $0.00 | $0.00 | $6.00 | $0.00 |
| 2025 | 14730 | JCCD - JC Conservation District | $2.55 | $2.55 | $0.00 | $0.00 | $5.10 | $0.00 |
| 2025 | 14730 | NWA - Noxious Weed Assessment | $2.15 | $2.15 | $0.00 | $0.00 | $4.30 | $0.00 |
| 2025 | 14730 | FP ADMIN - FP ADMIN | $0.50 | $0.00 | $0.00 | $0.00 | $0.50 | $0.00 |
| 2025 | 14730 | TOTAL: | $3754.89 | $3754.31 | $0.00 | $0.00 | $7509.20 | $0.00 |
|
| 2025 | 14730 | $3754.89 | $3754.31 | $0.00 | $0.00 | $7509.20 | $0.00 |
Statement Details |
| 2024 | 14761 | STATE - STATE LEVY (SCHOOL) | $931.12 | $931.11 | $0.00 | $0.00 | $1862.23 | $0.00 |
| 2024 | 14761 | COUNTY - COUNTY LEVIES (CE, DD, VET, MH) | $398.44 | $398.43 | $0.00 | $0.00 | $796.87 | $0.00 |
| 2024 | 14761 | CONSERVE - CONSERVATION FUTURES | $11.95 | $11.94 | $0.00 | $0.00 | $23.89 | $0.00 |
| 2024 | 14761 | CITYPT - CITY OF PT | $569.30 | $569.30 | $0.00 | $0.00 | $1138.60 | $0.00 |
| 2024 | 14761 | PORTPT - PORT DISTRICT | $164.57 | $164.56 | $0.00 | $0.00 | $329.13 | $0.00 |
| 2024 | 14761 | PUD1 - PUD #1 | $26.17 | $26.17 | $0.00 | $0.00 | $52.34 | $0.00 |
| 2024 | 14761 | HD2 - HOSP DIST #2 | $23.25 | $23.24 | $0.00 | $0.00 | $46.49 | $0.00 |
| 2024 | 14761 | SD50 - SCHOOL DIST #50 | $753.32 | $753.30 | $0.00 | $0.00 | $1506.62 | $0.00 |
| 2024 | 14761 | FD1 - FIRE DISTRICT #1 | $526.82 | $526.82 | $0.00 | $0.00 | $1053.64 | $0.00 |
| 2024 | 14761 | EMS1 - FIRE DIST #1 EMS | $201.23 | $201.22 | $0.00 | $0.00 | $402.45 | $0.00 |
| 2024 | 14761 | JCCD - JC Conservation District | $2.55 | $2.55 | $0.00 | $0.00 | $5.10 | $0.00 |
| 2024 | 14761 | NWA - Noxious Weed Assessment | $2.15 | $2.15 | $0.00 | $0.00 | $4.30 | $0.00 |
| 2024 | 14761 | TOTAL: | $3610.87 | $3610.79 | $0.00 | $0.00 | $7221.66 | $0.00 |
|
| 2024 | 14761 | $3610.87 | $3610.79 | $0.00 | $0.00 | $7221.66 | $0.00 |
Statement Details |
| 2023 | 14786 | STATE - STATE LEVY (SCHOOL) | $941.56 | $941.54 | $0.00 | $0.00 | $1883.10 | $0.00 |
| 2023 | 14786 | COUNTY - COUNTY LEVIES (CE, DD, VET, MH) | $410.86 | $410.85 | $0.00 | $0.00 | $821.71 | $0.00 |
| 2023 | 14786 | CONSERVE - CONSERVATION FUTURES | $12.32 | $12.32 | $0.00 | $0.00 | $24.64 | $0.00 |
| 2023 | 14786 | CITYPT - CITY OF PT | $580.70 | $580.68 | $0.00 | $0.00 | $1161.38 | $0.00 |
| 2023 | 14786 | PORTPT - PORT DISTRICT | $173.08 | $173.07 | $0.00 | $0.00 | $346.15 | $0.00 |
| 2023 | 14786 | PUD1 - PUD #1 | $27.24 | $27.23 | $0.00 | $0.00 | $54.47 | $0.00 |
| 2023 | 14786 | HD2 - HOSP DIST #2 | $23.98 | $23.97 | $0.00 | $0.00 | $47.95 | $0.00 |
| 2023 | 14786 | SD50 - SCHOOL DIST #50 | $747.15 | $747.13 | $0.00 | $0.00 | $1494.28 | $0.00 |
| 2023 | 14786 | FD1 - FIRE DISTRICT #1 | $338.47 | $338.47 | $0.00 | $0.00 | $676.94 | $0.00 |
| 2023 | 14786 | EMS1 - FIRE DIST #1 EMS | $143.98 | $143.98 | $0.00 | $0.00 | $287.96 | $0.00 |
| 2023 | 14786 | JCCD - JC Conservation District | $2.55 | $2.55 | $0.00 | $0.00 | $5.10 | $0.00 |
| 2023 | 14786 | NWA - Noxious Weed Assessment | $2.15 | $2.15 | $0.00 | $0.00 | $4.30 | $0.00 |
| 2023 | 14786 | TOTAL: | $3404.04 | $3403.94 | $0.00 | $0.00 | $6807.98 | $0.00 |
|
| 2023 | 14786 | $3404.04 | $3403.94 | $0.00 | $0.00 | $6807.98 | $0.00 |
Values
| (+) Improvement Homesite Value: | + | $0 | |
| (+) Improvement Non-Homesite Value: | + | $577,915 | |
| (+) Land Homesite Value: | + | $0 | |
| (+) Land Non-Homesite Value: | + | $295,000 | |
| (+) Curr Use (HS): | + | $0 | $0 |
| (+) Curr Use (NHS): | + | $0 | $0 |
| | | -------------------------- | |
| (=) Market Value: | = | $872,915 | |
| (–) Productivity Loss: | – | $0 | |
| | | -------------------------- | |
| (=) Subtotal: | = | $872,915 | |
| (+) Senior Appraised Value: | + | $0 | |
| (+) Non-Senior Appraised Value: | + | $872,915 | |
| | | -------------------------- | |
| (=) Total Appraised Value: | = | $872,915 | |
| (–) Senior Exemption Loss: | – | $0 | |
| (–) Exemption Loss: | – | $0 | |
| | | -------------------------- | |
| (=) Taxable Value: | = | $872,915 | |
Taxing Jurisdiction
| Owner: | DOUGLAS C WARREN | | |
| % Ownership: | 100.0000000000% | | |
| Total Value: | $872,915 | | |
| Tax Area: | 0110 - C-50F1E1H2 |
| CE | COUNTY CURRENT EXPENSE | 0.9034619479 | $872,915 | $872,915 | $788.65 | | |
| CNTYDD | DEVELOPMENTAL DISABILITIES | 0.0052121823 | $872,915 | $872,915 | $4.55 | | |
| CNTYVET | VETERANS RELIEF | 0.0052777810 | $872,915 | $872,915 | $4.61 | | |
| MENTAL | MENTAL HEALTH | 0.0052121823 | $872,915 | $872,915 | $4.55 | | |
| PTGEN | CITY OF PT GENERAL | 0.8551967795 | $872,915 | $872,915 | $746.51 | | |
| PTLLL | CITY OF PT - LIBRARY LID LIFT | 0.4010114288 | $872,915 | $872,915 | $350.05 | | |
| PTMVBOND | CITY OF PT MV BOND | 0.0484717981 | $872,915 | $872,915 | $42.31 | | |
| HOSP2CASH | HOSP DIST #2 GENERAL | 0.0536075306 | $872,915 | $872,915 | $46.79 | | |
| SCH50BOND | SCHOOL DIST #50 BOND 2016 | 0.5377451389 | $872,915 | $872,915 | $469.41 | | |
| SCH50CP | SCHOOL DIST #50 CAP PROJ | 0.4573475088 | $872,915 | $872,915 | $399.23 | | |
| SCH50MO | SCHOOL DIST #50 EP & O | 0.8262822886 | $872,915 | $872,915 | $721.27 | | |
| CONSERVE | CONSERVATION FUTURES | 0.0275621078 | $872,915 | $872,915 | $24.06 | | |
| EMS1 | FIRE DIST #1 EMS | 0.4679948282 | $872,915 | $872,915 | $408.52 | | |
| FD1 | FIRE DIST #1 GENERAL | 1.2171942929 | $872,915 | $872,915 | $1,062.51 | | |
| PORTPT | PORT OF PT GENERAL | 0.1134941229 | $872,915 | $872,915 | $99.07 | | |
| PORTPTIDD | PORT OF PT IDD 2019 | 0.2577346692 | $872,915 | $872,915 | $224.98 | | |
| PUD1 | PUD #1 GENERAL | 0.0597888892 | $872,915 | $872,915 | $52.19 | | |
| STATE | STATE SCHOOL PART 1 | 1.4940692947 | $872,915 | $872,915 | $1,304.20 | | |
| STATE2 | STATE SCHOOL PART 2 | 0.8050170049 | $872,915 | $872,915 | $702.71 | | |
| | Total Tax Rate: | 8.5416817766 | | | | | |
| | | | | Taxes w/Current Exemptions: | $7,456.17 | | |
| | | | | Taxes w/o Exemptions: | $7,456.17 | | |
Improvement / Building
| Improvement #1: | Residential Bldg | State Code: | 11 | 2482.0 sqft | Value: | $577,915 |
| Bathrooms (#): | 1 (FULL) | Bathrooms (#): | 1 (HALF) | | Bedrooms (#): | 3 | Exterior Wall: | SI/ST | | Fireplace: | WD ST-GOOD | Floor Construction: | FRAME | | Foundation: | CONPR | Heating/Cooling: | ELBB | | Roof Cover: | COMP |   |   |
|
| | Type | Description | Class CD | Sub Class CD | Year Built | Area |
| | MA | Main Area | 4+ | 15SF | 1990 | 1362.0 |
| | MA2 | Second Floor Main Area | 4+ | 15SF | 1990 | 1120.0 |
| | HWPOR | House Wood Porch | 4 | * | 1990 | 72.0 |
| | HDECK | House Deck | 4 | * | 1990 | 240.0 |
| | GDET | Detached Garage | 4 | 15SF | 1990 | 800.0 |
| | SHED | Shed (Table Not Dep) | 4 | * | 1990 | 192.0 |
| | SHED | Shed (Table Not Dep) | 4 | * | 1990 | 160.0 |
| | SHED | Shed (Table Not Dep) | 3 | * | 1990 | 64.0 |
Sketch
Property Image
Land
| 1 | 6035-1179L | | 0.0000 | 0.00 | 0.00 | 0.00 | 4.00 | $110,000 | $0 |
| 2 | 6035-1175L | | 0.0000 | 0.00 | 0.00 | 0.00 | 1.00 | $130,000 | $0 |
| 3 | 6035-1185L | | 0.0000 | 0.00 | 0.00 | 0.00 | 1.00 | $55,000 | $0 |
Roll Value History
| 2026 | N/A | N/A | N/A | N/A | N/A |
| 2025 | $577,915 | $295,000 | $0 | $872,915 | $872,915 |
| 2024 | $616,717 | $242,000 | $0 | $858,717 | $858,717 |
| 2023 | $589,904 | $215,000 | $0 | $804,904 | $804,904 |
| 2022 | $589,904 | $210,000 | $0 | $799,904 | $799,904 |
Deed and Sales History
Payout Agreement
| No payout information available.. |