Property
Account |
| Property ID: | 25313 | Abbreviated Legal Description: | CALIFORNIA ADDITION BLK 34 LOTS 5 & 6 |
| Parcel # / Geo ID: | 936903402 | Agent Code: | |
| Type: | Real | | |
| Tax Area: | 0110 - C-50F1E1H2 | Land Use Code | 11 |
| Open Space: | N | DFL | N |
| Historic Property: | N | Remodel Property: | N |
| Multi-Family Redevelopment: | N | | |
| Township: | 31N | Section: | 34 |
| Range: | 1W |
Location |
| Address: | 5510 JACKMAN ST PORT TOWNSEND, WA 98368 | Mapsco: | 011/015 |
| Neighborhood: | CALIFORNIA ADDITION; DONOVAN/GREGORY SP & TAX 2 | Map ID: | |
| Neighborhood CD: | 6035 |
Owner |
| Name: | ALETA C BAKER | Owner ID: | 97038 |
| Mailing Address: | 5510 JACKMAN ST PORT TOWNSEND, WA 98368-1210 | % Ownership: | 100.0000000000% |
| | | Exemptions: | |
Pay Tax Due
Select the appropriate checkbox next to the year to be paid. Multiple years may be selected.
*Convenience Fee not included
Taxes and Assessment Details
Property Tax Information as of
03/10/2026
Click on "Statement Details" to expand or collapse a tax statement.
* Please enter a valid date ** Please enter a valid date *
Statement Details |
| 2026 | 14698 | STATE - STATE LEVY (SCHOOL) | $591.09 | $591.08 | $0.00 | $0.00 | $0.00 | $1182.17 |
| 2026 | 14698 | COUNTY - COUNTY LEVIES (CE, DD, VET, MH) | $236.32 | $236.30 | $0.00 | $0.00 | $0.00 | $472.62 |
| 2026 | 14698 | CONSERVE - CONSERVATION FUTURES | $7.09 | $7.08 | $0.00 | $0.00 | $0.00 | $14.17 |
| 2026 | 14698 | CITYPT - CITY OF PT | $335.43 | $335.43 | $0.00 | $0.00 | $0.00 | $670.86 |
| 2026 | 14698 | PORTPT - PORT DISTRICT | $95.45 | $95.44 | $0.00 | $0.00 | $0.00 | $190.89 |
| 2026 | 14698 | PUD1 - PUD #1 | $15.37 | $15.37 | $0.00 | $0.00 | $0.00 | $30.74 |
| 2026 | 14698 | HD2 - HOSP DIST #2 | $13.78 | $13.78 | $0.00 | $0.00 | $0.00 | $27.56 |
| 2026 | 14698 | SD50 - SCHOOL DIST #50 | $468.29 | $468.26 | $0.00 | $0.00 | $0.00 | $936.55 |
| 2026 | 14698 | FD1 - FIRE DISTRICT #1 | $312.94 | $312.93 | $0.00 | $0.00 | $0.00 | $625.87 |
| 2026 | 14698 | EMS1 - FIRE DIST #1 EMS | $120.32 | $120.32 | $0.00 | $0.00 | $0.00 | $240.64 |
| 2026 | 14698 | JCCD - JC Conservation District | $2.55 | $2.55 | $0.00 | $0.00 | $0.00 | $5.10 |
| 2026 | 14698 | NWA - Noxious Weed Assessment | $2.98 | $2.97 | $0.00 | $0.00 | $0.00 | $5.95 |
| 2026 | 14698 | TOTAL: | $2201.61 | $2201.51 | $0.00 | $0.00 | $0.00 | $4403.12 |
|
| 2026 | 14698 | $2201.61 | $2201.51 | $0.00 | $0.00 | $0.00 | $4403.12 |
Statement Details |
| 2025 | 14749 | STATE - STATE LEVY (SCHOOL) | $548.88 | $548.86 | $0.00 | $0.00 | $1097.74 | $0.00 |
| 2025 | 14749 | COUNTY - COUNTY LEVIES (CE, DD, VET, MH) | $215.84 | $215.83 | $0.00 | $0.00 | $431.67 | $0.00 |
| 2025 | 14749 | CONSERVE - CONSERVATION FUTURES | $6.47 | $6.47 | $0.00 | $0.00 | $12.94 | $0.00 |
| 2025 | 14749 | CITYPT - CITY OF PT | $311.28 | $311.25 | $0.00 | $0.00 | $622.53 | $0.00 |
| 2025 | 14749 | PORTPT - PORT DISTRICT | $88.08 | $88.07 | $0.00 | $0.00 | $176.15 | $0.00 |
| 2025 | 14749 | PUD1 - PUD #1 | $14.13 | $14.12 | $0.00 | $0.00 | $28.25 | $0.00 |
| 2025 | 14749 | HD2 - HOSP DIST #2 | $12.60 | $12.59 | $0.00 | $0.00 | $25.19 | $0.00 |
| 2025 | 14749 | SD50 - SCHOOL DIST #50 | $401.15 | $401.12 | $0.00 | $0.00 | $802.27 | $0.00 |
| 2025 | 14749 | FD1 - FIRE DISTRICT #1 | $284.83 | $284.82 | $0.00 | $0.00 | $569.65 | $0.00 |
| 2025 | 14749 | EMS1 - FIRE DIST #1 EMS | $109.55 | $109.55 | $0.00 | $0.00 | $219.10 | $0.00 |
| 2025 | 14749 | JCCD - JC Conservation District | $2.55 | $2.55 | $0.00 | $0.00 | $5.10 | $0.00 |
| 2025 | 14749 | NWA - Noxious Weed Assessment | $2.15 | $2.15 | $0.00 | $0.00 | $4.30 | $0.00 |
| 2025 | 14749 | TOTAL: | $1997.51 | $1997.38 | $0.00 | $0.00 | $3994.89 | $0.00 |
|
| 2025 | 14749 | $1997.51 | $1997.38 | $0.00 | $0.00 | $3994.89 | $0.00 |
Statement Details |
| 2024 | 14780 | STATE - STATE LEVY (SCHOOL) | $487.53 | $487.51 | $0.00 | $0.00 | $975.04 | $0.00 |
| 2024 | 14780 | COUNTY - COUNTY LEVIES (CE, DD, VET, MH) | $208.63 | $208.61 | $0.00 | $0.00 | $417.24 | $0.00 |
| 2024 | 14780 | CONSERVE - CONSERVATION FUTURES | $6.26 | $6.25 | $0.00 | $0.00 | $12.51 | $0.00 |
| 2024 | 14780 | CITYPT - CITY OF PT | $298.08 | $298.07 | $0.00 | $0.00 | $596.15 | $0.00 |
| 2024 | 14780 | PORTPT - PORT DISTRICT | $86.17 | $86.17 | $0.00 | $0.00 | $172.34 | $0.00 |
| 2024 | 14780 | PUD1 - PUD #1 | $13.71 | $13.70 | $0.00 | $0.00 | $27.41 | $0.00 |
| 2024 | 14780 | HD2 - HOSP DIST #2 | $12.17 | $12.17 | $0.00 | $0.00 | $24.34 | $0.00 |
| 2024 | 14780 | SD50 - SCHOOL DIST #50 | $394.43 | $394.42 | $0.00 | $0.00 | $788.85 | $0.00 |
| 2024 | 14780 | FD1 - FIRE DISTRICT #1 | $275.84 | $275.83 | $0.00 | $0.00 | $551.67 | $0.00 |
| 2024 | 14780 | EMS1 - FIRE DIST #1 EMS | $105.36 | $105.36 | $0.00 | $0.00 | $210.72 | $0.00 |
| 2024 | 14780 | JCCD - JC Conservation District | $2.55 | $2.55 | $0.00 | $0.00 | $5.10 | $0.00 |
| 2024 | 14780 | NWA - Noxious Weed Assessment | $2.15 | $2.15 | $0.00 | $0.00 | $4.30 | $0.00 |
| 2024 | 14780 | TOTAL: | $1892.88 | $1892.79 | $0.00 | $0.00 | $3785.67 | $0.00 |
|
| 2024 | 14780 | $1892.88 | $1892.79 | $0.00 | $0.00 | $3785.67 | $0.00 |
Statement Details |
| 2023 | 14805 | STATE - STATE LEVY (SCHOOL) | $490.18 | $490.18 | $0.00 | $0.00 | $980.36 | $0.00 |
| 2023 | 14805 | COUNTY - COUNTY LEVIES (CE, DD, VET, MH) | $213.91 | $213.89 | $0.00 | $0.00 | $427.80 | $0.00 |
| 2023 | 14805 | CONSERVE - CONSERVATION FUTURES | $6.42 | $6.41 | $0.00 | $0.00 | $12.83 | $0.00 |
| 2023 | 14805 | CITYPT - CITY OF PT | $302.33 | $302.30 | $0.00 | $0.00 | $604.63 | $0.00 |
| 2023 | 14805 | PORTPT - PORT DISTRICT | $90.11 | $90.10 | $0.00 | $0.00 | $180.21 | $0.00 |
| 2023 | 14805 | PUD1 - PUD #1 | $14.18 | $14.18 | $0.00 | $0.00 | $28.36 | $0.00 |
| 2023 | 14805 | HD2 - HOSP DIST #2 | $12.49 | $12.48 | $0.00 | $0.00 | $24.97 | $0.00 |
| 2023 | 14805 | SD50 - SCHOOL DIST #50 | $388.98 | $388.95 | $0.00 | $0.00 | $777.93 | $0.00 |
| 2023 | 14805 | FD1 - FIRE DISTRICT #1 | $176.21 | $176.21 | $0.00 | $0.00 | $352.42 | $0.00 |
| 2023 | 14805 | EMS1 - FIRE DIST #1 EMS | $74.96 | $74.95 | $0.00 | $0.00 | $149.91 | $0.00 |
| 2023 | 14805 | JCCD - JC Conservation District | $2.55 | $2.55 | $0.00 | $0.00 | $5.10 | $0.00 |
| 2023 | 14805 | NWA - Noxious Weed Assessment | $2.15 | $2.15 | $0.00 | $0.00 | $4.30 | $0.00 |
| 2023 | 14805 | TOTAL: | $1774.47 | $1774.35 | $0.00 | $0.00 | $3548.82 | $0.00 |
|
| 2023 | 14805 | $1774.47 | $1774.35 | $0.00 | $0.00 | $3548.82 | $0.00 |
Values
| (+) Improvement Homesite Value: | + | $0 | |
| (+) Improvement Non-Homesite Value: | + | $276,294 | |
| (+) Land Homesite Value: | + | $0 | |
| (+) Land Non-Homesite Value: | + | $237,900 | |
| (+) Curr Use (HS): | + | $0 | $0 |
| (+) Curr Use (NHS): | + | $0 | $0 |
| | | -------------------------- | |
| (=) Market Value: | = | $514,194 | |
| (–) Productivity Loss: | – | $0 | |
| | | -------------------------- | |
| (=) Subtotal: | = | $514,194 | |
| (+) Senior Appraised Value: | + | $0 | |
| (+) Non-Senior Appraised Value: | + | $514,194 | |
| | | -------------------------- | |
| (=) Total Appraised Value: | = | $514,194 | |
| (–) Senior Exemption Loss: | – | $0 | |
| (–) Exemption Loss: | – | $0 | |
| | | -------------------------- | |
| (=) Taxable Value: | = | $514,194 | |
Taxing Jurisdiction
| Owner: | ALETA C BAKER | | |
| % Ownership: | 100.0000000000% | | |
| Total Value: | $514,194 | | |
| Tax Area: | 0110 - C-50F1E1H2 |
| CE | COUNTY CURRENT EXPENSE | 0.9034619479 | $514,194 | $514,194 | $464.55 | | |
| CNTYDD | DEVELOPMENTAL DISABILITIES | 0.0052121823 | $514,194 | $514,194 | $2.68 | | |
| CNTYVET | VETERANS RELIEF | 0.0052777810 | $514,194 | $514,194 | $2.71 | | |
| MENTAL | MENTAL HEALTH | 0.0052121823 | $514,194 | $514,194 | $2.68 | | |
| PTGEN | CITY OF PT GENERAL | 0.8551967795 | $514,194 | $514,194 | $439.74 | | |
| PTLLL | CITY OF PT - LIBRARY LID LIFT | 0.4010114288 | $514,194 | $514,194 | $206.20 | | |
| PTMVBOND | CITY OF PT MV BOND | 0.0484717981 | $514,194 | $514,194 | $24.92 | | |
| HOSP2CASH | HOSP DIST #2 GENERAL | 0.0536075306 | $514,194 | $514,194 | $27.56 | | |
| SCH50BOND | SCHOOL DIST #50 BOND 2016 | 0.5377451389 | $514,194 | $514,194 | $276.51 | | |
| SCH50CP | SCHOOL DIST #50 CAP PROJ | 0.4573475088 | $514,194 | $514,194 | $235.17 | | |
| SCH50MO | SCHOOL DIST #50 EP & O | 0.8262822886 | $514,194 | $514,194 | $424.87 | | |
| CONSERVE | CONSERVATION FUTURES | 0.0275621078 | $514,194 | $514,194 | $14.17 | | |
| EMS1 | FIRE DIST #1 EMS | 0.4679948282 | $514,194 | $514,194 | $240.64 | | |
| FD1 | FIRE DIST #1 GENERAL | 1.2171942929 | $514,194 | $514,194 | $625.87 | | |
| PORTPT | PORT OF PT GENERAL | 0.1134941229 | $514,194 | $514,194 | $58.36 | | |
| PORTPTIDD | PORT OF PT IDD 2019 | 0.2577346692 | $514,194 | $514,194 | $132.53 | | |
| PUD1 | PUD #1 GENERAL | 0.0597888892 | $514,194 | $514,194 | $30.74 | | |
| STATE | STATE SCHOOL PART 1 | 1.4940692947 | $514,194 | $514,194 | $768.24 | | |
| STATE2 | STATE SCHOOL PART 2 | 0.8050170049 | $514,194 | $514,194 | $413.93 | | |
| | Total Tax Rate: | 8.5416817766 | | | | | |
| | | | | Taxes w/Current Exemptions: | $4,392.07 | | |
| | | | | Taxes w/o Exemptions: | $4,392.07 | | |
Improvement / Building
| Improvement #1: | Residential Bldg | State Code: | 11 | 1556.0 sqft | Value: | $276,294 |
| Bathrooms (#): | 2 (FULL) | Bedrooms (#): | 3 | | Exterior Wall: | SI/ST | Fireplace: | PROPS-GOOD | | Floor Construction: | FRAME | Foundation: | CONPR | | Heating/Cooling: | ELBB | Roof Cover: | COMP |
|
| | Type | Description | Class CD | Sub Class CD | Year Built | Area |
| | MA | Main Area | 3+ | 15SF | 1991 | 630.0 |
| | MA2 | Second Floor Main Area | 3 | 15SF | 1991 | 926.0 |
| | HBAL | House Balcony | 3 | * | 1991 | 490.0 |
| | HCPOR | House Concrete Porch | 3 | * | 1991 | 42.0 |
| | GBLTIN | Builtin Garage | 3 | * | 1991 | 516.0 |
| | SHED | Shed (Table Not Dep) | 4 | * | 1991 | 96.0 |
Sketch
Property Image
Land
| 1 | 6035-1165L | | 0.0000 | 0.00 | 0.00 | 0.00 | 1.00 | $168,600 | $0 |
| 2 | 6035-1165L | | 0.0000 | 0.00 | 0.00 | 0.00 | 1.00 | $69,300 | $0 |
Roll Value History
| 2026 | N/A | N/A | N/A | N/A | N/A |
| 2025 | $276,294 | $237,900 | $0 | $514,194 | $514,194 |
| 2024 | $216,867 | $240,900 | $0 | $457,767 | $457,767 |
| 2023 | $207,438 | $214,000 | $0 | $421,438 | $421,438 |
| 2022 | $207,438 | $209,000 | $0 | $416,438 | $416,438 |
Deed and Sales History
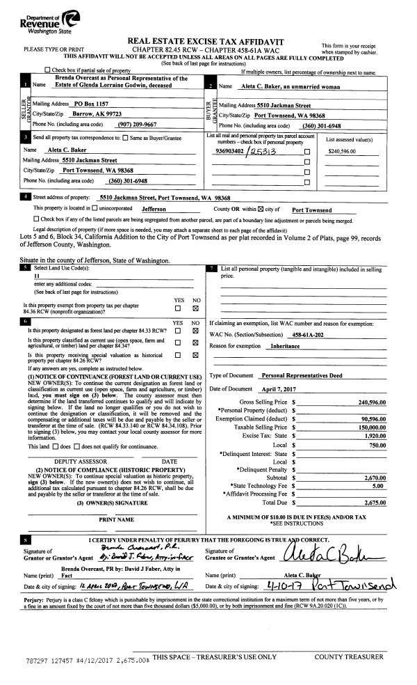
| 1 | 04/07/2017 | PRD | Personal Representatives Deed | GLENDA L GODWIN | ALETA C BAKER | | | $150,000.00 | 127457 | |
| 2 | 04/23/2013 | SWD | Statutory Warranty Deed | CAROL J VANDEGRIFT | GLENDA L GODWIN | | | $225,000.00 | 119152 | |
| 3 | 01/30/2006 | SWD | Statutory Warranty Deed | VANDEGRIFT, ELMER R/MARGA | VANDEGRIFT, CAROL | 0 | 0 | $270,000.00 | 105940 | 0 |
| 4 | 07/09/2003 | QCD | Quit Claim Deed | VADEGRIFT, ELMER R & MARG | VANDEGRIFT REVOCABLE TRUST | 0 | 0 | $0.00 | 97839 | 0 |
| 5 | 06/30/2003 | QCD | Quit Claim Deed | VANDEGRIFT, CAROL JO | VANDEGRIFT, ELMER/MARGARET | 0 | 0 | $0.00 | 97835 | 0 |
| 6 | 11/28/2001 | QCD | Quit Claim Deed | VANDEGRIFT, ELMER R/MARGA | VANDEGRIFT, ELMER/MARGARET/CAR | 0 | 0 | $0.00 | 93647 | 0 |
Payout Agreement
| No payout information available.. |