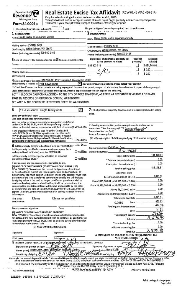
Property
Account |
| Property ID: | 25334 | Abbreviated Legal Description: | CALIFORNIA ADDITION BLK 36 LOT 11 |
| Parcel # / Geo ID: | 936903611 | Agent Code: | |
| Type: | Real | | |
| Tax Area: | 0110 - C-50F1E1H2 | Land Use Code | 11 |
| Open Space: | N | DFL | N |
| Historic Property: | N | Remodel Property: | N |
| Multi-Family Redevelopment: | N | | |
| Township: | 31N | Section: | 34 |
| Range: | 1W |
Location |
| Address: | 810 56TH ST PORT TOWNSEND, WA 98368 | Mapsco: | 011/034 |
| Neighborhood: | CALIFORNIA ADDITION; DONOVAN/GREGORY SP & TAX 2 | Map ID: | |
| Neighborhood CD: | 6035 |
Owner |
| Name: | BENGT COFFIN | Owner ID: | 113593 |
| Mailing Address: | PO BOX 1303 WHITE SALMON, WA 98672-1303 | % Ownership: | 100.0000000000% |
| | | Exemptions: | |
Pay Tax Due
There is currently No Amount Due on this property.
Taxes and Assessment Details
Property Tax Information as of
03/10/2026
Click on "Statement Details" to expand or collapse a tax statement.
* Please enter a valid date ** Please enter a valid date *
Statement Details |
| | TOTAL: | $0.00 | $0.00 | $0.00 | $0.00 | $0.00 | $0.00 |
|
| | $0.00 | $0.00 | $0.00 | $0.00 | $0.00 | $0.00 |
Values
| (+) Improvement Homesite Value: | + | $276,055 | |
| (+) Improvement Non-Homesite Value: | + | $0 | |
| (+) Land Homesite Value: | + | $184,000 | |
| (+) Land Non-Homesite Value: | + | $0 | |
| (+) Curr Use (HS): | + | $0 | $0 |
| (+) Curr Use (NHS): | + | $0 | $0 |
| | | -------------------------- | |
| (=) Market Value: | = | $460,055 | |
| (–) Productivity Loss: | – | $0 | |
| | | -------------------------- | |
| (=) Subtotal: | = | $460,055 | |
| (+) Senior Appraised Value: | + | $0 | |
| (+) Non-Senior Appraised Value: | + | $460,055 | |
| | | -------------------------- | |
| (=) Total Appraised Value: | = | $460,055 | |
| (–) Senior Exemption Loss: | – | $0 | |
| (–) Exemption Loss: | – | $0 | |
| | | -------------------------- | |
| (=) Taxable Value: | = | $460,055 | |
Taxing Jurisdiction
| Owner: | BENGT COFFIN | | |
| % Ownership: | 100.0000000000% | | |
| Total Value: | $460,055 | | |
| Tax Area: | 0110 - C-50F1E1H2 |
| CE | COUNTY CURRENT EXPENSE | 0.9034619479 | $460,055 | $460,055 | $415.64 | | |
| CNTYDD | DEVELOPMENTAL DISABILITIES | 0.0052121823 | $460,055 | $460,055 | $2.40 | | |
| CNTYVET | VETERANS RELIEF | 0.0052777810 | $460,055 | $460,055 | $2.43 | | |
| MENTAL | MENTAL HEALTH | 0.0052121823 | $460,055 | $460,055 | $2.40 | | |
| PTGEN | CITY OF PT GENERAL | 0.8551967795 | $460,055 | $460,055 | $393.44 | | |
| PTLLL | CITY OF PT - LIBRARY LID LIFT | 0.4010114288 | $460,055 | $460,055 | $184.49 | | |
| PTMVBOND | CITY OF PT MV BOND | 0.0484717981 | $460,055 | $460,055 | $22.30 | | |
| HOSP2CASH | HOSP DIST #2 GENERAL | 0.0536075306 | $460,055 | $460,055 | $24.66 | | |
| SCH50BOND | SCHOOL DIST #50 BOND 2016 | 0.5377451389 | $460,055 | $460,055 | $247.39 | | |
| SCH50CP | SCHOOL DIST #50 CAP PROJ | 0.4573475088 | $460,055 | $460,055 | $210.41 | | |
| SCH50MO | SCHOOL DIST #50 EP & O | 0.8262822886 | $460,055 | $460,055 | $380.14 | | |
| CONSERVE | CONSERVATION FUTURES | 0.0275621078 | $460,055 | $460,055 | $12.68 | | |
| EMS1 | FIRE DIST #1 EMS | 0.4679948282 | $460,055 | $460,055 | $215.30 | | |
| FD1 | FIRE DIST #1 GENERAL | 1.2171942929 | $460,055 | $460,055 | $559.98 | | |
| PORTPT | PORT OF PT GENERAL | 0.1134941229 | $460,055 | $460,055 | $52.21 | | |
| PORTPTIDD | PORT OF PT IDD 2019 | 0.2577346692 | $460,055 | $460,055 | $118.57 | | |
| PUD1 | PUD #1 GENERAL | 0.0597888892 | $460,055 | $460,055 | $27.51 | | |
| STATE | STATE SCHOOL PART 1 | 1.4940692947 | $460,055 | $460,055 | $687.35 | | |
| STATE2 | STATE SCHOOL PART 2 | 0.8050170049 | $460,055 | $460,055 | $370.35 | | |
| | Total Tax Rate: | 8.5416817766 | | | | | |
| | | | | Taxes w/Current Exemptions: | $3,929.65 | | |
| | | | | Taxes w/o Exemptions: | $3,929.65 | | |
Improvement / Building
| Improvement #1: | Residential Bldg | State Code: | 11 | 1051.5 sqft | Value: | $276,055 |
| Bathrooms (#): | 1 (FULL) | Bathrooms (#): | 1 (HALF) | | Bedrooms (#): | 1 | Exterior Wall: | PL/T1 | | Floor Construction: | FRAME | Foundation: | CONPR | | Heating/Cooling: | ELBB | Roof Cover: | COMP |
|
| | Type | Description | Class CD | Sub Class CD | Year Built | Area |
| | MA | Main Area | 4+ | 1S | 1996 | 1051.5 |
| | PATIO | House Patio | 4 | * | 1996 | 116.0 |
| | HCPOR | House Concrete Porch | 4 | * | 1996 | 144.0 |
| | SHED | Shed (Table Not Dep) | 4 | * | 1996 | 90.0 |
| | HDECK | House Deck | 4 | * | 1996 | 142.0 |
Sketch
Property Image
Land
| 1 | 6035-1165L | Filtered Wtr/Terr/No View Lots w/Access/Util | 0.0000 | 0.00 | 0.00 | 0.00 | 1.00 | $184,000 | $0 |
Roll Value History
| 2026 | N/A | N/A | N/A | N/A | N/A |
| 2025 | $276,055 | $184,000 | $0 | $460,055 | $460,055 |
| 2024 | $267,740 | $187,000 | $0 | $454,740 | $35,800 |
| 2023 | $256,099 | $165,000 | $0 | $421,099 | $35,800 |
| 2022 | $256,099 | $160,000 | $0 | $416,099 | $35,800 |
Deed and Sales History
| 1 | 08/11/2025 | QCD | Quit Claim Deed | EVA B COFFIN | BENGT COFFIN | | | $184,147.00 | 145186 | |
| 2 | 01/24/2001 | SWD | Statutory Warranty Deed | LANDIS, THOMAS SCOTT, MIT | COFFIN, EVA B | 0 | 0 | $146,000.00 | 91495 | 0 |
| 3 | 03/17/1998 | SWD | Statutory Warranty Deed | STRANGE, PATRICIA/HARVEY | LANDIS, T S/MITHCELL, K | 0 | 0 | $135,000.00 | 84054 | 0 |
| 4 | 03/17/1995 | SWD | Statutory Warranty Deed | GOINS, JACK C/LOIS M | STRANGE, PATRICIA/HARVEY A | 0 | 0 | $18,500.00 | 76468 | 0 |
Payout Agreement
| No payout information available.. |