Property
Account |
| Property ID: | 25369 | Abbreviated Legal Description: | CALIFORNIA ADDITION BLK 43 LOT 8 W/PTN W1/2 VAC LANDES ADJ |
| Parcel # / Geo ID: | 936904307 | Agent Code: | |
| Type: | Real | | |
| Tax Area: | 0110 - C-50F1E1H2 | Land Use Code | 11 |
| Open Space: | N | DFL | N |
| Historic Property: | N | Remodel Property: | Y |
| Multi-Family Redevelopment: | N | | |
| Township: | 31N | Section: | 34 |
| Range: | 1W |
Location |
| Address: | 600 57TH ST PORT TOWNSEND, WA 98368 | Mapsco: | 012/027 |
| Neighborhood: | CALIFORNIA ADDITION; DONOVAN/GREGORY SP & TAX 2 | Map ID: | |
| Neighborhood CD: | 6035 |
Owner |
| Name: | PEARL FAMILY LIVING TRUST | Owner ID: | 114001 |
| Mailing Address: | JAMES M PEARL TRUSTEE ANN M REYNOLDS-PEARL TRUSTEE 600 57TH ST PORT TOWNSEND, WA 98368-1327 | % Ownership: | 100.0000000000% |
| | | Exemptions: | |
Pay Tax Due
Select the appropriate checkbox next to the year to be paid. Multiple years may be selected.
*Convenience Fee not included
Taxes and Assessment Details
Property Tax Information as of
03/11/2026
Click on "Statement Details" to expand or collapse a tax statement.
* Please enter a valid date ** Please enter a valid date *
Statement Details |
| 2026 | 14754 | STATE - STATE LEVY (SCHOOL) | $910.53 | $910.52 | $0.00 | $0.00 | $0.00 | $1821.05 |
| 2026 | 14754 | COUNTY - COUNTY LEVIES (CE, DD, VET, MH) | $364.04 | $364.01 | $0.00 | $0.00 | $0.00 | $728.05 |
| 2026 | 14754 | CONSERVE - CONSERVATION FUTURES | $10.92 | $10.91 | $0.00 | $0.00 | $0.00 | $21.83 |
| 2026 | 14754 | CITYPT - CITY OF PT | $516.71 | $516.69 | $0.00 | $0.00 | $0.00 | $1033.40 |
| 2026 | 14754 | PORTPT - PORT DISTRICT | $147.03 | $147.02 | $0.00 | $0.00 | $0.00 | $294.05 |
| 2026 | 14754 | PUD1 - PUD #1 | $23.68 | $23.68 | $0.00 | $0.00 | $0.00 | $47.36 |
| 2026 | 14754 | HD2 - HOSP DIST #2 | $21.23 | $21.23 | $0.00 | $0.00 | $0.00 | $42.46 |
| 2026 | 14754 | SD50 - SCHOOL DIST #50 | $721.34 | $721.33 | $0.00 | $0.00 | $0.00 | $1442.67 |
| 2026 | 14754 | FD1 - FIRE DISTRICT #1 | $482.06 | $482.05 | $0.00 | $0.00 | $0.00 | $964.11 |
| 2026 | 14754 | EMS1 - FIRE DIST #1 EMS | $185.35 | $185.34 | $0.00 | $0.00 | $0.00 | $370.69 |
| 2026 | 14754 | JCCD - JC Conservation District | $2.55 | $2.55 | $0.00 | $0.00 | $0.00 | $5.10 |
| 2026 | 14754 | NWA - Noxious Weed Assessment | $2.98 | $2.97 | $0.00 | $0.00 | $0.00 | $5.95 |
| 2026 | 14754 | TOTAL: | $3388.42 | $3388.30 | $0.00 | $0.00 | $0.00 | $6776.72 |
|
| 2026 | 14754 | $3388.42 | $3388.30 | $0.00 | $0.00 | $0.00 | $6776.72 |
Statement Details |
| 2025 | 14805 | STATE - STATE LEVY (SCHOOL) | $922.88 | $922.87 | $0.00 | $0.00 | $1845.75 | $0.00 |
| 2025 | 14805 | COUNTY - COUNTY LEVIES (CE, DD, VET, MH) | $362.93 | $362.91 | $0.00 | $0.00 | $725.84 | $0.00 |
| 2025 | 14805 | CONSERVE - CONSERVATION FUTURES | $10.88 | $10.88 | $0.00 | $0.00 | $21.76 | $0.00 |
| 2025 | 14805 | CITYPT - CITY OF PT | $523.38 | $523.36 | $0.00 | $0.00 | $1046.74 | $0.00 |
| 2025 | 14805 | PORTPT - PORT DISTRICT | $148.09 | $148.09 | $0.00 | $0.00 | $296.18 | $0.00 |
| 2025 | 14805 | PUD1 - PUD #1 | $23.75 | $23.74 | $0.00 | $0.00 | $47.49 | $0.00 |
| 2025 | 14805 | HD2 - HOSP DIST #2 | $21.18 | $21.17 | $0.00 | $0.00 | $42.35 | $0.00 |
| 2025 | 14805 | SD50 - SCHOOL DIST #50 | $674.48 | $674.46 | $0.00 | $0.00 | $1348.94 | $0.00 |
| 2025 | 14805 | FD1 - FIRE DISTRICT #1 | $478.91 | $478.91 | $0.00 | $0.00 | $957.82 | $0.00 |
| 2025 | 14805 | EMS1 - FIRE DIST #1 EMS | $184.20 | $184.20 | $0.00 | $0.00 | $368.40 | $0.00 |
| 2025 | 14805 | JCCD - JC Conservation District | $2.55 | $2.55 | $0.00 | $0.00 | $5.10 | $0.00 |
| 2025 | 14805 | NWA - Noxious Weed Assessment | $2.15 | $2.15 | $0.00 | $0.00 | $4.30 | $0.00 |
| 2025 | 14805 | TOTAL: | $3355.38 | $3355.29 | $0.00 | $0.00 | $6710.67 | $0.00 |
|
| 2025 | 14805 | $3355.38 | $3355.29 | $0.00 | $0.00 | $6710.67 | $0.00 |
Statement Details |
| 2024 | 14836 | STATE - STATE LEVY (SCHOOL) | $830.09 | $830.07 | $0.00 | $0.00 | $1660.16 | $0.00 |
| 2024 | 14836 | COUNTY - COUNTY LEVIES (CE, DD, VET, MH) | $355.21 | $355.18 | $0.00 | $0.00 | $710.39 | $0.00 |
| 2024 | 14836 | CONSERVE - CONSERVATION FUTURES | $10.65 | $10.65 | $0.00 | $0.00 | $21.30 | $0.00 |
| 2024 | 14836 | CITYPT - CITY OF PT | $507.53 | $507.52 | $0.00 | $0.00 | $1015.05 | $0.00 |
| 2024 | 14836 | PORTPT - PORT DISTRICT | $146.72 | $146.71 | $0.00 | $0.00 | $293.43 | $0.00 |
| 2024 | 14836 | PUD1 - PUD #1 | $23.33 | $23.33 | $0.00 | $0.00 | $46.66 | $0.00 |
| 2024 | 14836 | HD2 - HOSP DIST #2 | $20.73 | $20.72 | $0.00 | $0.00 | $41.45 | $0.00 |
| 2024 | 14836 | SD50 - SCHOOL DIST #50 | $671.58 | $671.56 | $0.00 | $0.00 | $1343.14 | $0.00 |
| 2024 | 14836 | FD1 - FIRE DISTRICT #1 | $469.66 | $469.65 | $0.00 | $0.00 | $939.31 | $0.00 |
| 2024 | 14836 | EMS1 - FIRE DIST #1 EMS | $179.39 | $179.39 | $0.00 | $0.00 | $358.78 | $0.00 |
| 2024 | 14836 | JCCD - JC Conservation District | $2.55 | $2.55 | $0.00 | $0.00 | $5.10 | $0.00 |
| 2024 | 14836 | NWA - Noxious Weed Assessment | $2.15 | $2.15 | $0.00 | $0.00 | $4.30 | $0.00 |
| 2024 | 14836 | TOTAL: | $3219.59 | $3219.48 | $0.00 | $0.00 | $6439.07 | $0.00 |
|
| 2024 | 14836 | $3219.59 | $3219.48 | $0.00 | $0.00 | $6439.07 | $0.00 |
Statement Details |
| 2023 | 14861 | STATE - STATE LEVY (SCHOOL) | $680.81 | $680.80 | $0.00 | $0.00 | $1361.61 | $0.00 |
| 2023 | 14861 | COUNTY - COUNTY LEVIES (CE, DD, VET, MH) | $297.09 | $297.07 | $0.00 | $0.00 | $594.16 | $0.00 |
| 2023 | 14861 | CONSERVE - CONSERVATION FUTURES | $8.91 | $8.91 | $0.00 | $0.00 | $17.82 | $0.00 |
| 2023 | 14861 | CITYPT - CITY OF PT | $419.89 | $419.87 | $0.00 | $0.00 | $839.76 | $0.00 |
| 2023 | 14861 | PORTPT - PORT DISTRICT | $125.15 | $125.14 | $0.00 | $0.00 | $250.29 | $0.00 |
| 2023 | 14861 | PUD1 - PUD #1 | $19.70 | $19.69 | $0.00 | $0.00 | $39.39 | $0.00 |
| 2023 | 14861 | HD2 - HOSP DIST #2 | $17.34 | $17.33 | $0.00 | $0.00 | $34.67 | $0.00 |
| 2023 | 14861 | SD50 - SCHOOL DIST #50 | $540.24 | $540.23 | $0.00 | $0.00 | $1080.47 | $0.00 |
| 2023 | 14861 | FD1 - FIRE DISTRICT #1 | $244.74 | $244.73 | $0.00 | $0.00 | $489.47 | $0.00 |
| 2023 | 14861 | EMS1 - FIRE DIST #1 EMS | $104.11 | $104.10 | $0.00 | $0.00 | $208.21 | $0.00 |
| 2023 | 14861 | JCCD - JC Conservation District | $2.55 | $2.55 | $0.00 | $0.00 | $5.10 | $0.00 |
| 2023 | 14861 | NWA - Noxious Weed Assessment | $2.15 | $2.15 | $0.00 | $0.00 | $4.30 | $0.00 |
| 2023 | 14861 | TOTAL: | $2462.68 | $2462.57 | $0.00 | $0.00 | $4925.25 | $0.00 |
|
| 2023 | 14861 | $2462.68 | $2462.57 | $0.00 | $0.00 | $4925.25 | $0.00 |
Values
| (+) Improvement Homesite Value: | + | $0 | |
| (+) Improvement Non-Homesite Value: | + | $506,876 | |
| (+) Land Homesite Value: | + | $0 | |
| (+) Land Non-Homesite Value: | + | $285,200 | |
| (+) Curr Use (HS): | + | $0 | $0 |
| (+) Curr Use (NHS): | + | $0 | $0 |
| | | -------------------------- | |
| (=) Market Value: | = | $792,076 | |
| (–) Productivity Loss: | – | $0 | |
| | | -------------------------- | |
| (=) Subtotal: | = | $792,076 | |
| (+) Senior Appraised Value: | + | $0 | |
| (+) Non-Senior Appraised Value: | + | $792,076 | |
| | | -------------------------- | |
| (=) Total Appraised Value: | = | $792,076 | |
| (–) Senior Exemption Loss: | – | $0 | |
| (–) Exemption Loss: | – | $0 | |
| | | -------------------------- | |
| (=) Taxable Value: | = | $792,076 | |
Taxing Jurisdiction
| Owner: | PEARL FAMILY LIVING TRUST | | |
| % Ownership: | 100.0000000000% | | |
| Total Value: | $792,076 | | |
| Tax Area: | 0110 - C-50F1E1H2 |
| CE | COUNTY CURRENT EXPENSE | 0.9034619479 | $792,076 | $792,076 | $715.61 | | |
| CNTYDD | DEVELOPMENTAL DISABILITIES | 0.0052121823 | $792,076 | $792,076 | $4.13 | | |
| CNTYVET | VETERANS RELIEF | 0.0052777810 | $792,076 | $792,076 | $4.18 | | |
| MENTAL | MENTAL HEALTH | 0.0052121823 | $792,076 | $792,076 | $4.13 | | |
| PTGEN | CITY OF PT GENERAL | 0.8551967795 | $792,076 | $792,076 | $677.38 | | |
| PTLLL | CITY OF PT - LIBRARY LID LIFT | 0.4010114288 | $792,076 | $792,076 | $317.63 | | |
| PTMVBOND | CITY OF PT MV BOND | 0.0484717981 | $792,076 | $792,076 | $38.39 | | |
| HOSP2CASH | HOSP DIST #2 GENERAL | 0.0536075306 | $792,076 | $792,076 | $42.46 | | |
| SCH50BOND | SCHOOL DIST #50 BOND 2016 | 0.5377451389 | $792,076 | $792,076 | $425.94 | | |
| SCH50CP | SCHOOL DIST #50 CAP PROJ | 0.4573475088 | $792,076 | $792,076 | $362.25 | | |
| SCH50MO | SCHOOL DIST #50 EP & O | 0.8262822886 | $792,076 | $792,076 | $654.48 | | |
| CONSERVE | CONSERVATION FUTURES | 0.0275621078 | $792,076 | $792,076 | $21.83 | | |
| EMS1 | FIRE DIST #1 EMS | 0.4679948282 | $792,076 | $792,076 | $370.69 | | |
| FD1 | FIRE DIST #1 GENERAL | 1.2171942929 | $792,076 | $792,076 | $964.11 | | |
| PORTPT | PORT OF PT GENERAL | 0.1134941229 | $792,076 | $792,076 | $89.90 | | |
| PORTPTIDD | PORT OF PT IDD 2019 | 0.2577346692 | $792,076 | $792,076 | $204.15 | | |
| PUD1 | PUD #1 GENERAL | 0.0597888892 | $792,076 | $792,076 | $47.36 | | |
| STATE | STATE SCHOOL PART 1 | 1.4940692947 | $792,076 | $792,076 | $1,183.42 | | |
| STATE2 | STATE SCHOOL PART 2 | 0.8050170049 | $792,076 | $792,076 | $637.63 | | |
| | Total Tax Rate: | 8.5416817766 | | | | | |
| | | | | Taxes w/Current Exemptions: | $6,765.67 | | |
| | | | | Taxes w/o Exemptions: | $6,765.67 | | |
Improvement / Building
| Improvement #1: | Residential Bldg | State Code: | 11 | 1061.5 sqft | Value: | $288,714 |
| Bathrooms (#): | 2 (FULL) | Bedrooms (#): | 1 | | Exterior Wall: | SI/ST | Floor Construction: | FRAME | | Foundation: | CONPR | Heating/Cooling: | HPUMP | | Roof Cover: | METAL |   |   |
|
| | Type | Description | Class CD | Sub Class CD | Year Built | Area |
| | MA | Main Area | 5+ | 15SF | 2018 | 767.5 |
| | MA2 | Second Floor Main Area | 5+ | 15SF | 2018 | 294.0 |
| | HWPOR | House Wood Porch | 5 | * | 2018 | 47.5 |
| | HDECK | House Deck | 5 | * | 2018 | 131.5 |
| | HCPOR | House Concrete Porch | 5 | * | 2018 | 15.0 |
| | ASPHD | Asphalt Drive | 5 | * | 2018 | 800.0 |
| | SHED | Shed (Table Not Dep) | 5 | * | 2018 | 96.0 |
| | PATIO | House Patio | 5 | * | 2018 | 25.0 |
| | PATIO | House Patio | 4 | * | 2018 | 160.0 |
| Improvement #2: | Residential Bldg | State Code: | 11 | 888.0 sqft | Value: | $218,162 |
| Inside Verify: | NO |   |   |
|
| | Type | Description | Class CD | Sub Class CD | Year Built | Area |
| | MA | Main Area | 4+ | 2S | 2022 | 444.0 |
| | MA2 | Second Floor Main Area | 4 | 2S | 2022 | 444.0 |
Sketch
Property Image
Land
| 1 | 6035-1155L | | 0.0000 | 0.00 | 0.00 | 0.00 | 1.00 | $206,000 | $0 |
| 2 | 6035-1155L | | 0.0000 | 0.00 | 0.00 | 0.00 | 1.00 | $79,200 | $0 |
Roll Value History
| 2026 | N/A | N/A | N/A | N/A | N/A |
| 2025 | $506,876 | $285,200 | $0 | $792,076 | $792,076 |
| 2024 | $481,499 | $288,200 | $0 | $769,699 | $769,699 |
| 2023 | $460,563 | $257,000 | $0 | $717,563 | $717,563 |
| 2022 | $326,386 | $252,000 | $0 | $578,386 | $578,386 |
Deed and Sales History
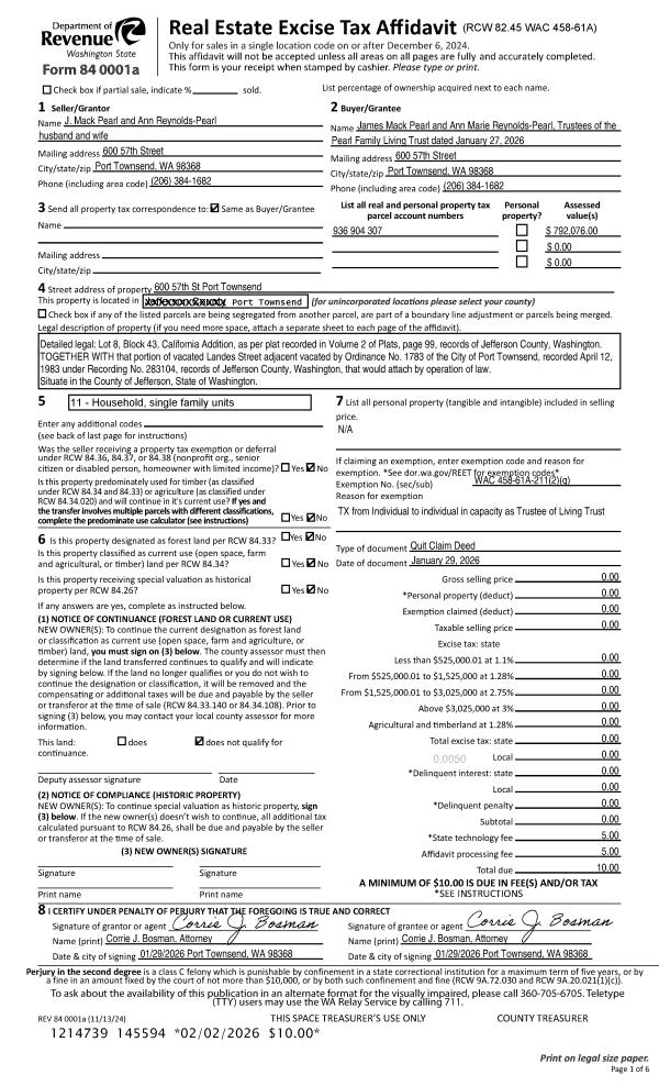
| 1 | 01/29/2026 | QCD | Quit Claim Deed | J MACK & ANN R PEARL | PEARL FAMILY LIVING TRUST | | | | 145594 | |
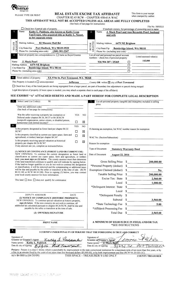
| 2 | 08/22/2016 | SWD | Statutory Warranty Deed | KATHY L PADDOCK | J MACK & ANN R PEARL | | | $200,000.00 | 126143 | |
Payout Agreement
| No payout information available.. |