Property
Account |
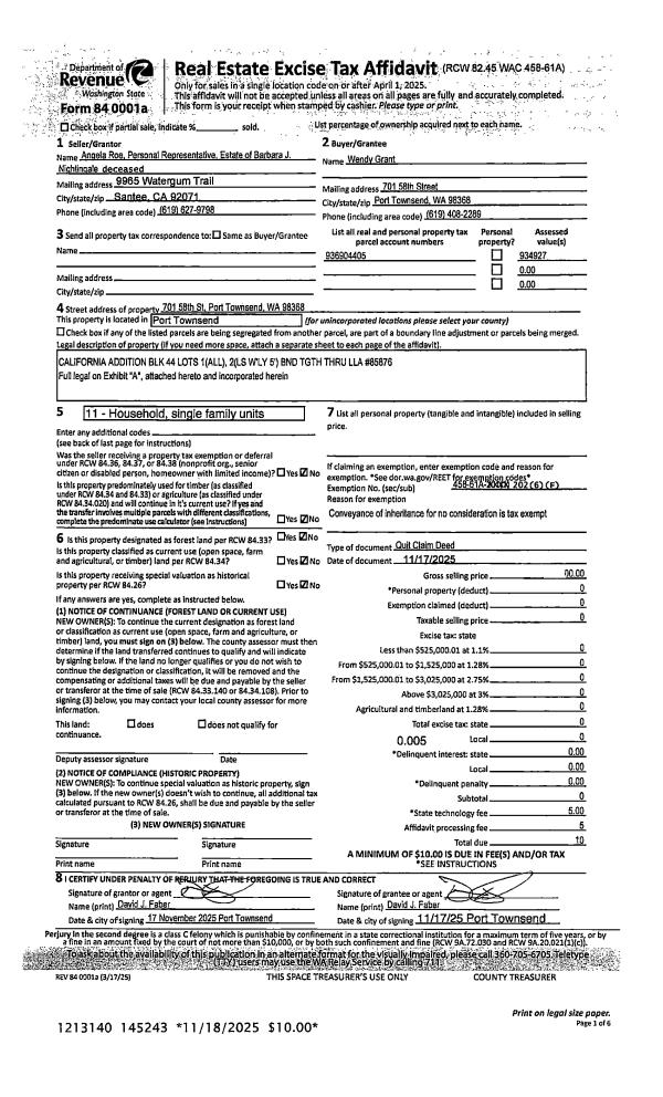
| Property ID: | 25373 | Abbreviated Legal Description: | CALIFORNIA ADDITION BLK 44 LOTS 1(ALL), 2(LS W'LY 5') BND TGTH THRU LLA #85876 |
| Parcel # / Geo ID: | 936904405 | Agent Code: | |
| Type: | Real | | |
| Tax Area: | 0110 - C-50F1E1H2 | Land Use Code | 11 |
| Open Space: | N | DFL | N |
| Historic Property: | N | Remodel Property: | N |
| Multi-Family Redevelopment: | N | | |
| Township: | 31N | Section: | 34 |
| Range: | 1W |
Location |
| Address: | 701 58TH ST PORT TOWNSEND, WA 98368 | Mapsco: | 012/028 |
| Neighborhood: | CALIFORNIA ADDITION; DONOVAN/GREGORY SP & TAX 2 | Map ID: | |
| Neighborhood CD: | 6035 |
Owner |
| Name: | WENDY GRANT | Owner ID: | 113667 |
| Mailing Address: | 701 58TH ST PORT TOWNSEND, WA 98368-1313 | % Ownership: | 100.0000000000% |
| | | Exemptions: | |
Pay Tax Due
There is currently No Amount Due on this property.
Taxes and Assessment Details
Property Tax Information as of
03/10/2026
Click on "Statement Details" to expand or collapse a tax statement.
* Please enter a valid date ** Please enter a valid date *
Statement Details |
| 2026 | 14758 | STATE - STATE LEVY (SCHOOL) | $1084.35 | $1084.35 | $0.00 | $0.00 | $2168.70 | $0.00 |
| 2026 | 14758 | COUNTY - COUNTY LEVIES (CE, DD, VET, MH) | $433.53 | $433.52 | $0.00 | $0.00 | $867.05 | $0.00 |
| 2026 | 14758 | CONSERVE - CONSERVATION FUTURES | $13.00 | $13.00 | $0.00 | $0.00 | $26.00 | $0.00 |
| 2026 | 14758 | CITYPT - CITY OF PT | $615.35 | $615.34 | $0.00 | $0.00 | $1230.69 | $0.00 |
| 2026 | 14758 | PORTPT - PORT DISTRICT | $175.09 | $175.09 | $0.00 | $0.00 | $350.18 | $0.00 |
| 2026 | 14758 | PUD1 - PUD #1 | $28.20 | $28.20 | $0.00 | $0.00 | $56.40 | $0.00 |
| 2026 | 14758 | HD2 - HOSP DIST #2 | $25.29 | $25.28 | $0.00 | $0.00 | $50.57 | $0.00 |
| 2026 | 14758 | SD50 - SCHOOL DIST #50 | $859.05 | $859.03 | $0.00 | $0.00 | $1718.08 | $0.00 |
| 2026 | 14758 | FD1 - FIRE DISTRICT #1 | $574.09 | $574.08 | $0.00 | $0.00 | $1148.17 | $0.00 |
| 2026 | 14758 | EMS1 - FIRE DIST #1 EMS | $220.73 | $220.72 | $0.00 | $0.00 | $441.45 | $0.00 |
| 2026 | 14758 | JCCD - JC Conservation District | $2.55 | $2.55 | $0.00 | $0.00 | $5.10 | $0.00 |
| 2026 | 14758 | NWA - Noxious Weed Assessment | $2.98 | $2.97 | $0.00 | $0.00 | $5.95 | $0.00 |
| 2026 | 14758 | TOTAL: | $4034.21 | $4034.13 | $0.00 | $0.00 | $8068.34 | $0.00 |
|
| 2026 | 14758 | $4034.21 | $4034.13 | $0.00 | $0.00 | $8068.34 | $0.00 |
Statement Details |
| 2025 | 14809 | STATE - STATE LEVY (SCHOOL) | $1120.99 | $1120.98 | $0.00 | $0.00 | $2241.97 | $0.00 |
| 2025 | 14809 | COUNTY - COUNTY LEVIES (CE, DD, VET, MH) | $440.84 | $440.81 | $0.00 | $0.00 | $881.65 | $0.00 |
| 2025 | 14809 | CONSERVE - CONSERVATION FUTURES | $13.22 | $13.22 | $0.00 | $0.00 | $26.44 | $0.00 |
| 2025 | 14809 | CITYPT - CITY OF PT | $635.72 | $635.71 | $0.00 | $0.00 | $1271.43 | $0.00 |
| 2025 | 14809 | PORTPT - PORT DISTRICT | $179.88 | $179.88 | $0.00 | $0.00 | $359.76 | $0.00 |
| 2025 | 14809 | PUD1 - PUD #1 | $28.85 | $28.84 | $0.00 | $0.00 | $57.69 | $0.00 |
| 2025 | 14809 | HD2 - HOSP DIST #2 | $25.72 | $25.72 | $0.00 | $0.00 | $51.44 | $0.00 |
| 2025 | 14809 | SD50 - SCHOOL DIST #50 | $819.27 | $819.25 | $0.00 | $0.00 | $1638.52 | $0.00 |
| 2025 | 14809 | FD1 - FIRE DISTRICT #1 | $581.72 | $581.71 | $0.00 | $0.00 | $1163.43 | $0.00 |
| 2025 | 14809 | EMS1 - FIRE DIST #1 EMS | $223.75 | $223.74 | $0.00 | $0.00 | $447.49 | $0.00 |
| 2025 | 14809 | JCCD - JC Conservation District | $2.55 | $2.55 | $0.00 | $0.00 | $5.10 | $0.00 |
| 2025 | 14809 | NWA - Noxious Weed Assessment | $2.15 | $2.15 | $0.00 | $0.00 | $4.30 | $0.00 |
| 2025 | 14809 | TOTAL: | $4074.66 | $4074.56 | $0.00 | $0.00 | $8149.22 | $0.00 |
|
| 2025 | 14809 | $4074.66 | $4074.56 | $0.00 | $0.00 | $8149.22 | $0.00 |
Statement Details |
| 2024 | 14840 | STATE - STATE LEVY (SCHOOL) | $1003.98 | $1003.96 | $0.00 | $0.00 | $2007.94 | $0.00 |
| 2024 | 14840 | COUNTY - COUNTY LEVIES (CE, DD, VET, MH) | $429.62 | $429.59 | $0.00 | $0.00 | $859.21 | $0.00 |
| 2024 | 14840 | CONSERVE - CONSERVATION FUTURES | $12.88 | $12.88 | $0.00 | $0.00 | $25.76 | $0.00 |
| 2024 | 14840 | CITYPT - CITY OF PT | $613.85 | $613.84 | $0.00 | $0.00 | $1227.69 | $0.00 |
| 2024 | 14840 | PORTPT - PORT DISTRICT | $177.45 | $177.44 | $0.00 | $0.00 | $354.89 | $0.00 |
| 2024 | 14840 | PUD1 - PUD #1 | $28.22 | $28.22 | $0.00 | $0.00 | $56.44 | $0.00 |
| 2024 | 14840 | HD2 - HOSP DIST #2 | $25.07 | $25.06 | $0.00 | $0.00 | $50.13 | $0.00 |
| 2024 | 14840 | SD50 - SCHOOL DIST #50 | $812.26 | $812.26 | $0.00 | $0.00 | $1624.52 | $0.00 |
| 2024 | 14840 | FD1 - FIRE DISTRICT #1 | $568.05 | $568.04 | $0.00 | $0.00 | $1136.09 | $0.00 |
| 2024 | 14840 | EMS1 - FIRE DIST #1 EMS | $216.97 | $216.97 | $0.00 | $0.00 | $433.94 | $0.00 |
| 2024 | 14840 | JCCD - JC Conservation District | $2.55 | $2.55 | $0.00 | $0.00 | $5.10 | $0.00 |
| 2024 | 14840 | NWA - Noxious Weed Assessment | $2.15 | $2.15 | $0.00 | $0.00 | $4.30 | $0.00 |
| 2024 | 14840 | NSF - RETURNED CHECK | $30.00 | $0.00 | $0.00 | $0.00 | $30.00 | $0.00 |
| 2024 | 14840 | TOTAL: | $3923.05 | $3892.96 | $0.00 | $0.00 | $7816.01 | $0.00 |
|
| 2024 | 14840 | $3923.05 | $3892.96 | $0.00 | $0.00 | $7816.01 | $0.00 |
Statement Details |
| 2023 | 14865 | STATE - STATE LEVY (SCHOOL) | $1015.69 | $1015.68 | $0.00 | $0.00 | $2031.37 | $0.00 |
| 2023 | 14865 | COUNTY - COUNTY LEVIES (CE, DD, VET, MH) | $443.23 | $443.20 | $0.00 | $0.00 | $886.43 | $0.00 |
| 2023 | 14865 | CONSERVE - CONSERVATION FUTURES | $13.29 | $13.29 | $0.00 | $0.00 | $26.58 | $0.00 |
| 2023 | 14865 | CITYPT - CITY OF PT | $626.42 | $626.40 | $0.00 | $0.00 | $1252.82 | $0.00 |
| 2023 | 14865 | PORTPT - PORT DISTRICT | $186.71 | $186.70 | $0.00 | $0.00 | $373.41 | $0.00 |
| 2023 | 14865 | PUD1 - PUD #1 | $29.38 | $29.38 | $0.00 | $0.00 | $58.76 | $0.00 |
| 2023 | 14865 | HD2 - HOSP DIST #2 | $25.87 | $25.86 | $0.00 | $0.00 | $51.73 | $0.00 |
| 2023 | 14865 | SD50 - SCHOOL DIST #50 | $805.97 | $805.96 | $0.00 | $0.00 | $1611.93 | $0.00 |
| 2023 | 14865 | FD1 - FIRE DISTRICT #1 | $365.12 | $365.12 | $0.00 | $0.00 | $730.24 | $0.00 |
| 2023 | 14865 | EMS1 - FIRE DIST #1 EMS | $155.32 | $155.31 | $0.00 | $0.00 | $310.63 | $0.00 |
| 2023 | 14865 | JCCD - JC Conservation District | $2.55 | $2.55 | $0.00 | $0.00 | $5.10 | $0.00 |
| 2023 | 14865 | NWA - Noxious Weed Assessment | $2.15 | $2.15 | $0.00 | $0.00 | $4.30 | $0.00 |
| 2023 | 14865 | TOTAL: | $3671.70 | $3671.60 | $0.00 | $0.00 | $7343.30 | $0.00 |
|
| 2023 | 14865 | $3671.70 | $3671.60 | $0.00 | $0.00 | $7343.30 | $0.00 |
Values
| (+) Improvement Homesite Value: | + | $0 | |
| (+) Improvement Non-Homesite Value: | + | $495,289 | |
| (+) Land Homesite Value: | + | $0 | |
| (+) Land Non-Homesite Value: | + | $448,000 | |
| (+) Curr Use (HS): | + | $0 | $0 |
| (+) Curr Use (NHS): | + | $0 | $0 |
| | | -------------------------- | |
| (=) Market Value: | = | $943,289 | |
| (–) Productivity Loss: | – | $0 | |
| | | -------------------------- | |
| (=) Subtotal: | = | $943,289 | |
| (+) Senior Appraised Value: | + | $0 | |
| (+) Non-Senior Appraised Value: | + | $943,289 | |
| | | -------------------------- | |
| (=) Total Appraised Value: | = | $943,289 | |
| (–) Senior Exemption Loss: | – | $0 | |
| (–) Exemption Loss: | – | $0 | |
| | | -------------------------- | |
| (=) Taxable Value: | = | $943,289 | |
Taxing Jurisdiction
| Owner: | WENDY GRANT | | |
| % Ownership: | 100.0000000000% | | |
| Total Value: | $943,289 | | |
| Tax Area: | 0110 - C-50F1E1H2 |
| CE | COUNTY CURRENT EXPENSE | 0.9034619479 | $943,289 | $943,289 | $852.23 | | |
| CNTYDD | DEVELOPMENTAL DISABILITIES | 0.0052121823 | $943,289 | $943,289 | $4.92 | | |
| CNTYVET | VETERANS RELIEF | 0.0052777810 | $943,289 | $943,289 | $4.98 | | |
| MENTAL | MENTAL HEALTH | 0.0052121823 | $943,289 | $943,289 | $4.92 | | |
| PTGEN | CITY OF PT GENERAL | 0.8551967795 | $943,289 | $943,289 | $806.70 | | |
| PTLLL | CITY OF PT - LIBRARY LID LIFT | 0.4010114288 | $943,289 | $943,289 | $378.27 | | |
| PTMVBOND | CITY OF PT MV BOND | 0.0484717981 | $943,289 | $943,289 | $45.72 | | |
| HOSP2CASH | HOSP DIST #2 GENERAL | 0.0536075306 | $943,289 | $943,289 | $50.57 | | |
| SCH50BOND | SCHOOL DIST #50 BOND 2016 | 0.5377451389 | $943,289 | $943,289 | $507.25 | | |
| SCH50CP | SCHOOL DIST #50 CAP PROJ | 0.4573475088 | $943,289 | $943,289 | $431.41 | | |
| SCH50MO | SCHOOL DIST #50 EP & O | 0.8262822886 | $943,289 | $943,289 | $779.42 | | |
| CONSERVE | CONSERVATION FUTURES | 0.0275621078 | $943,289 | $943,289 | $26.00 | | |
| EMS1 | FIRE DIST #1 EMS | 0.4679948282 | $943,289 | $943,289 | $441.45 | | |
| FD1 | FIRE DIST #1 GENERAL | 1.2171942929 | $943,289 | $943,289 | $1,148.17 | | |
| PORTPT | PORT OF PT GENERAL | 0.1134941229 | $943,289 | $943,289 | $107.06 | | |
| PORTPTIDD | PORT OF PT IDD 2019 | 0.2577346692 | $943,289 | $943,289 | $243.12 | | |
| PUD1 | PUD #1 GENERAL | 0.0597888892 | $943,289 | $943,289 | $56.40 | | |
| STATE | STATE SCHOOL PART 1 | 1.4940692947 | $943,289 | $943,289 | $1,409.34 | | |
| STATE2 | STATE SCHOOL PART 2 | 0.8050170049 | $943,289 | $943,289 | $759.36 | | |
| | Total Tax Rate: | 8.5416817766 | | | | | |
| | | | | Taxes w/Current Exemptions: | $8,057.29 | | |
| | | | | Taxes w/o Exemptions: | $8,057.29 | | |
Improvement / Building
| Improvement #1: | Residential Bldg | State Code: | 11 | 2662.0 sqft | Value: | $495,289 |
| Bathrooms (#): | 3 (FULL) | Bedrooms (#): | 3 | | Exterior Wall: | SI/ST | Fireplace: | SIN 1-GOOD | | Floor Construction: | CONCR | Foundation: | CONPR | | Heating/Cooling: | HPUMP | Roof Cover: | COMP |
|
| | Type | Description | Class CD | Sub Class CD | Year Built | Area |
| | MA | Main Area | 4- | 2S | 2001 | 1129.0 |
| | MA2 | Second Floor Main Area | 4- | 2S | 2001 | 1533.0 |
| | HBAL | House Balcony | 4 | * | 2001 | 172.0 |
| | HCPOR | House Concrete Porch | 4 | * | 2001 | 66.5 |
| | GBLTIN | Builtin Garage | 4 | 2S | 2001 | 417.0 |
| | HBAL | House Balcony | 4 | * | 2001 | 52.5 |
| | HCPOR | House Concrete Porch | 4 | * | 2001 | 52.5 |
Sketch
Property Image
Land
| 1 | 6035-1145L | | 0.0000 | 0.00 | 0.00 | 0.00 | 1.00 | $250,000 | $0 |
| 2 | 6035-1145L | | 0.0000 | 0.00 | 0.00 | 0.00 | 1.00 | $198,000 | $0 |
Roll Value History
| 2026 | N/A | N/A | N/A | N/A | N/A |
| 2025 | $495,289 | $448,000 | $0 | $943,289 | $943,289 |
| 2024 | $483,927 | $451,000 | $0 | $934,927 | $934,927 |
| 2023 | $462,887 | $405,000 | $0 | $867,887 | $867,887 |
| 2022 | $462,887 | $400,000 | $0 | $862,887 | $862,887 |
Deed and Sales History
| 1 | 11/13/2025 | PRD | Personal Representatives Deed | WILLIAM R NIGHTINGALE | WENDY GRANT | | | | 145243 | |
| 2 | 10/13/1999 | SWD | Statutory Warranty Deed | GOWING, CLOVER BRODHEAD | NIGHTINGALE, WILLIAM/BARBARA | 0 | 0 | $68,100.00 | 88130 | 0 |
| 3 | 09/27/1999 | QCD | Quit Claim Deed | FEDERAL HOME LOAN MORTGAG | GOWING, GLOVER B | 0 | 0 | $0.00 | 88010 | 0 |
| 4 | 12/03/1998 | BLA | Boundary Line Adjustment | GOWING, CLOVER B | GOWING, CLOVER B | 0 | 0 | $0.00 | 85876 | 0 |
Payout Agreement
| No payout information available.. |