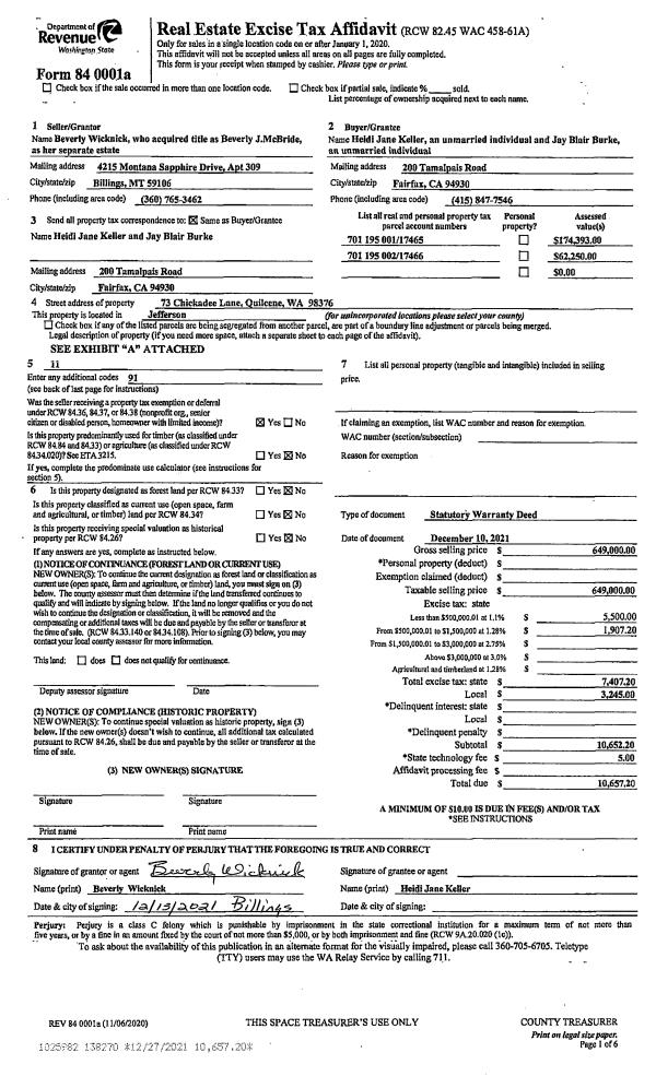
Property
Account |
| Property ID: | 25400 | Abbreviated Legal Description: | CAMPBELL'S H.W. ADDITION BLK 4 LOT 10 |
| Parcel # / Geo ID: | 937200410 | Agent Code: | |
| Type: | Real | | |
| Tax Area: | 0320 - 1-48F2E2H2C2L1Z2 | Land Use Code | 11 |
| Open Space: | N | DFL | N |
| Historic Property: | N | Remodel Property: | N |
| Multi-Family Redevelopment: | N | | |
| Township: | 27N | Section: | 24 |
| Range: | 2W |
Location |
| Address: | 83 MCARDLE AVE QUILCENE, WA 98376 | Mapsco: | 102/008 |
| Neighborhood: | JOSEPHINE CAMBELLS, HW CAMBELLS AND WORTHINGTONS LONG PLATS | Map ID: | |
| Neighborhood CD: | 2555 |
Owner |
| Name: | DAVID E WARD TRUST | Owner ID: | 108656 |
| Mailing Address: | DAVID E WARD TRUSTEE 83 MCARDLE AVE QUILCENE, WA 98376-8013 | % Ownership: | 100.0000000000% |
| | | Exemptions: | |
Pay Tax Due
Select the appropriate checkbox next to the year to be paid. Multiple years may be selected.
*Convenience Fee not included
Taxes and Assessment Details
Property Tax Information as of
03/12/2026
Click on "Statement Details" to expand or collapse a tax statement.
* Please enter a valid date ** Please enter a valid date *
Statement Details |
| 2026 | 14783 | STATE - STATE LEVY (SCHOOL) | $233.12 | $233.11 | $0.00 | $0.00 | $0.00 | $466.23 |
| 2026 | 14783 | COUNTY - COUNTY LEVIES (CE, DD, VET, MH) | $93.21 | $93.19 | $0.00 | $0.00 | $0.00 | $186.40 |
| 2026 | 14783 | CONSERVE - CONSERVATION FUTURES | $2.80 | $2.79 | $0.00 | $0.00 | $0.00 | $5.59 |
| 2026 | 14783 | COROADS - COUNTY ROADS (ROADS, DIV TO CE) | $75.19 | $75.18 | $0.00 | $0.00 | $0.00 | $150.37 |
| 2026 | 14783 | PORTPT - PORT DISTRICT | $37.65 | $37.64 | $0.00 | $0.00 | $0.00 | $75.29 |
| 2026 | 14783 | PUD1 - PUD #1 | $6.06 | $6.06 | $0.00 | $0.00 | $0.00 | $12.12 |
| 2026 | 14783 | LIB1 - LIBRARY DIST #1 | $29.09 | $29.09 | $0.00 | $0.00 | $0.00 | $58.18 |
| 2026 | 14783 | HD2 - HOSP DIST #2 | $5.44 | $5.43 | $0.00 | $0.00 | $0.00 | $10.87 |
| 2026 | 14783 | SD48 - SCHOOL DIST #48 | $143.18 | $143.17 | $0.00 | $0.00 | $0.00 | $286.35 |
| 2026 | 14783 | FD2 - FIRE DISTRICT #2 | $76.56 | $76.55 | $0.00 | $0.00 | $0.00 | $153.11 |
| 2026 | 14783 | EMS2 - FIRE DIST #2 EMS | $43.11 | $43.11 | $0.00 | $0.00 | $0.00 | $86.22 |
| 2026 | 14783 | CEM2 - CEMETERY DIST #2 | $2.45 | $2.44 | $0.00 | $0.00 | $0.00 | $4.89 |
| 2026 | 14783 | FPLCA - DNR Landowner Contingency Assmt | $3.00 | $3.00 | $0.00 | $0.00 | $0.00 | $6.00 |
| 2026 | 14783 | JCCD - JC Conservation District | $2.55 | $2.55 | $0.00 | $0.00 | $0.00 | $5.10 |
| 2026 | 14783 | NWA - Noxious Weed Assessment | $2.98 | $2.97 | $0.00 | $0.00 | $0.00 | $5.95 |
| 2026 | 14783 | OSS - On Site Septic | $23.10 | $23.10 | $0.00 | $0.00 | $0.00 | $46.20 |
| 2026 | 14783 | WAT - Clean Water District | $13.00 | $13.00 | $0.00 | $0.00 | $0.00 | $26.00 |
| 2026 | 14783 | TOTAL: | $792.49 | $792.38 | $0.00 | $0.00 | $0.00 | $1584.87 |
|
| 2026 | 14783 | $792.49 | $792.38 | $0.00 | $0.00 | $0.00 | $1584.87 |
Statement Details |
| 2025 | 14834 | STATE - STATE LEVY (SCHOOL) | $232.85 | $232.84 | $0.00 | $0.00 | $465.69 | $0.00 |
| 2025 | 14834 | COUNTY - COUNTY LEVIES (CE, DD, VET, MH) | $91.58 | $91.56 | $0.00 | $0.00 | $183.14 | $0.00 |
| 2025 | 14834 | CONSERVE - CONSERVATION FUTURES | $2.75 | $2.74 | $0.00 | $0.00 | $5.49 | $0.00 |
| 2025 | 14834 | COROADS - COUNTY ROADS (ROADS, DIV TO CE) | $73.36 | $73.35 | $0.00 | $0.00 | $146.71 | $0.00 |
| 2025 | 14834 | PORTPT - PORT DISTRICT | $37.37 | $37.35 | $0.00 | $0.00 | $74.72 | $0.00 |
| 2025 | 14834 | PUD1 - PUD #1 | $5.99 | $5.99 | $0.00 | $0.00 | $11.98 | $0.00 |
| 2025 | 14834 | LIB1 - LIBRARY DIST #1 | $28.38 | $28.38 | $0.00 | $0.00 | $56.76 | $0.00 |
| 2025 | 14834 | HD2 - HOSP DIST #2 | $5.34 | $5.34 | $0.00 | $0.00 | $10.68 | $0.00 |
| 2025 | 14834 | SD48 - SCHOOL DIST #48 | $137.12 | $137.11 | $0.00 | $0.00 | $274.23 | $0.00 |
| 2025 | 14834 | FD2 - FIRE DISTRICT #2 | $75.71 | $75.70 | $0.00 | $0.00 | $151.41 | $0.00 |
| 2025 | 14834 | EMS2 - FIRE DIST #2 EMS | $42.63 | $42.62 | $0.00 | $0.00 | $85.25 | $0.00 |
| 2025 | 14834 | CEM2 - CEMETERY DIST #2 | $2.42 | $2.41 | $0.00 | $0.00 | $4.83 | $0.00 |
| 2025 | 14834 | FPLCA - DNR Landowner Contingency Assmt | $3.00 | $3.00 | $0.00 | $0.00 | $6.00 | $0.00 |
| 2025 | 14834 | JCCD - JC Conservation District | $2.55 | $2.55 | $0.00 | $0.00 | $5.10 | $0.00 |
| 2025 | 14834 | NWA - Noxious Weed Assessment | $2.15 | $2.15 | $0.00 | $0.00 | $4.30 | $0.00 |
| 2025 | 14834 | OSS - On Site Septic | $21.50 | $21.50 | $0.00 | $0.00 | $43.00 | $0.00 |
| 2025 | 14834 | WAT - Clean Water District | $13.00 | $13.00 | $0.00 | $0.00 | $26.00 | $0.00 |
| 2025 | 14834 | TOTAL: | $777.70 | $777.59 | $0.00 | $0.00 | $1555.29 | $0.00 |
|
| 2025 | 14834 | $777.70 | $777.59 | $0.00 | $0.00 | $1555.29 | $0.00 |
Statement Details |
| 2024 | 14865 | STATE - STATE LEVY (SCHOOL) | $208.63 | $208.62 | $0.00 | $0.00 | $417.25 | $0.00 |
| 2024 | 14865 | COUNTY - COUNTY LEVIES (CE, DD, VET, MH) | $89.29 | $89.26 | $0.00 | $0.00 | $178.55 | $0.00 |
| 2024 | 14865 | CONSERVE - CONSERVATION FUTURES | $2.68 | $2.67 | $0.00 | $0.00 | $5.35 | $0.00 |
| 2024 | 14865 | COROADS - COUNTY ROADS (ROADS, DIV TO CE) | $71.84 | $71.83 | $0.00 | $0.00 | $143.67 | $0.00 |
| 2024 | 14865 | PORTPT - PORT DISTRICT | $36.88 | $36.87 | $0.00 | $0.00 | $73.75 | $0.00 |
| 2024 | 14865 | PUD1 - PUD #1 | $5.87 | $5.86 | $0.00 | $0.00 | $11.73 | $0.00 |
| 2024 | 14865 | LIB1 - LIBRARY DIST #1 | $27.80 | $27.79 | $0.00 | $0.00 | $55.59 | $0.00 |
| 2024 | 14865 | HD2 - HOSP DIST #2 | $5.21 | $5.21 | $0.00 | $0.00 | $10.42 | $0.00 |
| 2024 | 14865 | SD48 - SCHOOL DIST #48 | $93.44 | $93.44 | $0.00 | $0.00 | $186.88 | $0.00 |
| 2024 | 14865 | FD2 - FIRE DISTRICT #2 | $74.22 | $74.21 | $0.00 | $0.00 | $148.43 | $0.00 |
| 2024 | 14865 | EMS2 - FIRE DIST #2 EMS | $41.78 | $41.78 | $0.00 | $0.00 | $83.56 | $0.00 |
| 2024 | 14865 | CEM2 - CEMETERY DIST #2 | $2.38 | $2.37 | $0.00 | $0.00 | $4.75 | $0.00 |
| 2024 | 14865 | JCCD - JC Conservation District | $2.55 | $2.55 | $0.00 | $0.00 | $5.10 | $0.00 |
| 2024 | 14865 | NWA - Noxious Weed Assessment | $2.15 | $2.15 | $0.00 | $0.00 | $4.30 | $0.00 |
| 2024 | 14865 | OSS - On Site Septic | $21.00 | $21.00 | $0.00 | $0.00 | $42.00 | $0.00 |
| 2024 | 14865 | WAT - Clean Water District | $12.50 | $12.50 | $0.00 | $0.00 | $25.00 | $0.00 |
| 2024 | 14865 | TOTAL: | $698.22 | $698.11 | $0.00 | $0.00 | $1396.33 | $0.00 |
|
| 2024 | 14865 | $698.22 | $698.11 | $0.00 | $0.00 | $1396.33 | $0.00 |
Statement Details |
| 2023 | 14889 | STATE - STATE LEVY (SCHOOL) | $184.70 | $184.69 | $0.00 | $0.00 | $369.39 | $0.00 |
| 2023 | 14889 | COUNTY - COUNTY LEVIES (CE, DD, VET, MH) | $80.61 | $80.59 | $0.00 | $0.00 | $161.20 | $0.00 |
| 2023 | 14889 | CONSERVE - CONSERVATION FUTURES | $2.42 | $2.41 | $0.00 | $0.00 | $4.83 | $0.00 |
| 2023 | 14889 | COROADS - COUNTY ROADS (ROADS, DIV TO CE) | $65.21 | $65.21 | $0.00 | $0.00 | $130.42 | $0.00 |
| 2023 | 14889 | PORTPT - PORT DISTRICT | $33.95 | $33.95 | $0.00 | $0.00 | $67.90 | $0.00 |
| 2023 | 14889 | PUD1 - PUD #1 | $5.34 | $5.34 | $0.00 | $0.00 | $10.68 | $0.00 |
| 2023 | 14889 | LIB1 - LIBRARY DIST #1 | $25.23 | $25.23 | $0.00 | $0.00 | $50.46 | $0.00 |
| 2023 | 14889 | HD2 - HOSP DIST #2 | $4.70 | $4.70 | $0.00 | $0.00 | $9.40 | $0.00 |
| 2023 | 14889 | SD48 - SCHOOL DIST #48 | $89.19 | $89.19 | $0.00 | $0.00 | $178.38 | $0.00 |
| 2023 | 14889 | FD2 - FIRE DISTRICT #2 | $69.96 | $69.96 | $0.00 | $0.00 | $139.92 | $0.00 |
| 2023 | 14889 | EMS2 - FIRE DIST #2 EMS | $39.23 | $39.22 | $0.00 | $0.00 | $78.45 | $0.00 |
| 2023 | 14889 | CEM2 - CEMETERY DIST #2 | $2.23 | $2.22 | $0.00 | $0.00 | $4.45 | $0.00 |
| 2023 | 14889 | JCCD - JC Conservation District | $2.55 | $2.55 | $0.00 | $0.00 | $5.10 | $0.00 |
| 2023 | 14889 | NWA - Noxious Weed Assessment | $2.15 | $2.15 | $0.00 | $0.00 | $4.30 | $0.00 |
| 2023 | 14889 | OSS - On Site Septic | $20.50 | $20.50 | $0.00 | $0.00 | $41.00 | $0.00 |
| 2023 | 14889 | WAT - Clean Water District | $12.00 | $12.00 | $0.00 | $0.00 | $24.00 | $0.00 |
| 2023 | 14889 | TOTAL: | $639.97 | $639.91 | $0.00 | $0.00 | $1279.88 | $0.00 |
|
| 2023 | 14889 | $639.97 | $639.91 | $0.00 | $0.00 | $1279.88 | $0.00 |
Values
| (+) Improvement Homesite Value: | + | $0 | |
| (+) Improvement Non-Homesite Value: | + | $122,290 | |
| (+) Land Homesite Value: | + | $0 | |
| (+) Land Non-Homesite Value: | + | $80,500 | |
| (+) Curr Use (HS): | + | $0 | $0 |
| (+) Curr Use (NHS): | + | $0 | $0 |
| | | -------------------------- | |
| (=) Market Value: | = | $202,790 | |
| (–) Productivity Loss: | – | $0 | |
| | | -------------------------- | |
| (=) Subtotal: | = | $202,790 | |
| (+) Senior Appraised Value: | + | $0 | |
| (+) Non-Senior Appraised Value: | + | $202,790 | |
| | | -------------------------- | |
| (=) Total Appraised Value: | = | $202,790 | |
| (–) Senior Exemption Loss: | – | $0 | |
| (–) Exemption Loss: | – | $0 | |
| | | -------------------------- | |
| (=) Taxable Value: | = | $202,790 | |
Taxing Jurisdiction
| Owner: | DAVID E WARD TRUST | | |
| % Ownership: | 100.0000000000% | | |
| Total Value: | $202,790 | | |
| Tax Area: | 0320 - 1-48F2E2H2C2L1Z2 |
| CE | COUNTY CURRENT EXPENSE | 0.9034619479 | $202,790 | $202,790 | $183.21 | | |
| CNTYDD | DEVELOPMENTAL DISABILITIES | 0.0052121823 | $202,790 | $202,790 | $1.06 | | |
| CNTYVET | VETERANS RELIEF | 0.0052777810 | $202,790 | $202,790 | $1.07 | | |
| MENTAL | MENTAL HEALTH | 0.0052121823 | $202,790 | $202,790 | $1.06 | | |
| ROADS | COUNTY ROADS | 0.7415066410 | $202,790 | $202,790 | $150.37 | | |
| ROADSCU | COUNTY ROADS TO CUR EXP | 0.0000000000 | $202,790 | $202,790 | $0.00 | | |
| HOSP2CASH | HOSP DIST #2 GENERAL | 0.0536075306 | $202,790 | $202,790 | $10.87 | | |
| SCH48MO | SCHOOL DIST #48 EP & O | 1.4120478917 | $202,790 | $202,790 | $286.35 | | |
| CEM2 | CEMETERY DIST #2 GENERAL | 0.0241266154 | $202,790 | $202,790 | $4.89 | | |
| CONSERVE | CONSERVATION FUTURES | 0.0275621078 | $202,790 | $202,790 | $5.59 | | |
| FD2 | FIRE DIST #2 GENERAL | 0.7549976873 | $202,790 | $202,790 | $153.11 | | |
| LIB1 | LIBRARY DIST #1 GENERAL | 0.2868827388 | $202,790 | $202,790 | $58.18 | | |
| PORTPT | PORT OF PT GENERAL | 0.1134941229 | $202,790 | $202,790 | $23.02 | | |
| PORTPTIDD | PORT OF PT IDD 2019 | 0.2577346692 | $202,790 | $202,790 | $52.27 | | |
| PUD1 | PUD #1 GENERAL | 0.0597888892 | $202,790 | $202,790 | $12.12 | | |
| STATE | STATE SCHOOL PART 1 | 1.4940692947 | $202,790 | $202,790 | $302.98 | | |
| STATE2 | STATE SCHOOL PART 2 | 0.8050170049 | $202,790 | $202,790 | $163.25 | | |
| EMS2 | FIRE DIST #2 EMS | 0.4251727858 | $202,790 | $202,790 | $86.22 | | |
| | Total Tax Rate: | 7.3751720728 | | | | | |
| | | | | Taxes w/Current Exemptions: | $1,495.62 | | |
| | | | | Taxes w/o Exemptions: | $1,495.62 | | |
Improvement / Building
| Improvement #1: | Manufactured Home | State Code: | 11 | 1560.0 sqft | Value: | $122,290 |
| Bathrooms (#): | 2 (FULL) | Bedrooms (#): | 3 | | Exterior Wall: | PL/T1 | Floor Construction: | FRAME | | Foundation: | PO&BL | Heating/Cooling: | F/A | | Inside Verify: | NO | Roof Cover: | COMP |
|
| | Type | Description | Class CD | Sub Class CD | Year Built | Area |
| | MA | Main Area | 3+ | MDBL | 1991 | 1560.0 |
| | MDECK | MH Deck | 3 | * | 1991 | 600.0 |
| | MDECK | MH Deck | 3 | * | 1991 | 510.0 |
| | SHED | Shed (Table Not Dep) | 4 | * | 1991 | 320.0 |
Sketch
Property Image
Land
| 1 | 2555-1375S | | 1.0000 | 43560.00 | 0.00 | 0.00 | 1.00 | $80,500 | $0 |
Roll Value History
| 2026 | N/A | N/A | N/A | N/A | N/A |
| 2025 | $122,290 | $80,500 | $0 | $202,790 | $202,790 |
| 2024 | $117,194 | $77,000 | $0 | $194,194 | $194,194 |
| 2023 | $112,099 | $68,250 | $0 | $180,349 | $180,349 |
| 2022 | $101,908 | $55,000 | $0 | $156,908 | $156,908 |
Deed and Sales History
| 1 | 05/25/2023 | QCD | Quit Claim Deed | DAVID E WARD | DAVID E WARD TRUST | | | | 141091 | |
| 2 | 10/02/2001 | QCD | Quit Claim Deed | WARD, DONALD/LORNA | WARD, DAVID E | 0 | 0 | $0.00 | 93247 | 0 |
Payout Agreement
| No payout information available.. |