Property
Account |
| Property ID: | 25419 | Abbreviated Legal Description: | CAMPBELL'S H.W. ADDITION BLK 8, TAX 47(N100'LESS PTN TAX 48) |
| Parcel # / Geo ID: | 937200851 | Agent Code: | |
| Type: | Real | | |
| Tax Area: | 0320 - 1-48F2E2H2C2L1Z2 | Land Use Code | 58 |
| Open Space: | N | DFL | N |
| Historic Property: | N | Remodel Property: | N |
| Multi-Family Redevelopment: | N | | |
| Township: | 27N | Section: | 24 |
| Range: | 2W |
Location |
| Address: | 294793 HIGHWAY 101 QUILCENE, WA 98376 | Mapsco: | 102/030 |
| Neighborhood: | QUILCENE COMMERCIAL DISTRICT CENTRAL/SOUTH | Map ID: | |
| Neighborhood CD: | 2555C |
Owner |
| Name: | JAY & MICHAELA KOTHMAN | Owner ID: | 106043 |
| Mailing Address: | 82 BROOKSIDE ST PORT HADLOCK, WA 98339-8730 | % Ownership: | 100.0000000000% |
| | | Exemptions: | |
Pay Tax Due
Select the appropriate checkbox next to the year to be paid. Multiple years may be selected.
*Convenience Fee not included
Taxes and Assessment Details
Property Tax Information as of
03/10/2026
Click on "Statement Details" to expand or collapse a tax statement.
* Please enter a valid date ** Please enter a valid date *
Statement Details |
| 2026 | 14801 | STATE - STATE LEVY (SCHOOL) | $566.59 | $566.58 | $0.00 | $0.00 | $0.00 | $1133.17 |
| 2026 | 14801 | COUNTY - COUNTY LEVIES (CE, DD, VET, MH) | $226.53 | $226.51 | $0.00 | $0.00 | $0.00 | $453.04 |
| 2026 | 14801 | CONSERVE - CONSERVATION FUTURES | $6.79 | $6.79 | $0.00 | $0.00 | $0.00 | $13.58 |
| 2026 | 14801 | COROADS - COUNTY ROADS (ROADS, DIV TO CE) | $182.74 | $182.73 | $0.00 | $0.00 | $0.00 | $365.47 |
| 2026 | 14801 | PORTPT - PORT DISTRICT | $91.49 | $91.48 | $0.00 | $0.00 | $0.00 | $182.97 |
| 2026 | 14801 | PUD1 - PUD #1 | $14.74 | $14.73 | $0.00 | $0.00 | $0.00 | $29.47 |
| 2026 | 14801 | LIB1 - LIBRARY DIST #1 | $70.70 | $70.70 | $0.00 | $0.00 | $0.00 | $141.40 |
| 2026 | 14801 | HD2 - HOSP DIST #2 | $13.21 | $13.21 | $0.00 | $0.00 | $0.00 | $26.42 |
| 2026 | 14801 | SD48 - SCHOOL DIST #48 | $347.99 | $347.98 | $0.00 | $0.00 | $0.00 | $695.97 |
| 2026 | 14801 | FD2 - FIRE DISTRICT #2 | $186.06 | $186.06 | $0.00 | $0.00 | $0.00 | $372.12 |
| 2026 | 14801 | EMS2 - FIRE DIST #2 EMS | $104.78 | $104.78 | $0.00 | $0.00 | $0.00 | $209.56 |
| 2026 | 14801 | CEM2 - CEMETERY DIST #2 | $5.95 | $5.94 | $0.00 | $0.00 | $0.00 | $11.89 |
| 2026 | 14801 | JCCD - JC Conservation District | $2.53 | $2.53 | $0.00 | $0.00 | $0.00 | $5.06 |
| 2026 | 14801 | NWA - Noxious Weed Assessment | $2.98 | $2.97 | $0.00 | $0.00 | $0.00 | $5.95 |
| 2026 | 14801 | OSS - On Site Septic | $23.10 | $23.10 | $0.00 | $0.00 | $0.00 | $46.20 |
| 2026 | 14801 | WAT - Clean Water District | $13.00 | $13.00 | $0.00 | $0.00 | $0.00 | $26.00 |
| 2026 | 14801 | TOTAL: | $1859.18 | $1859.09 | $0.00 | $0.00 | $0.00 | $3718.27 |
|
| 2026 | 14801 | $1859.18 | $1859.09 | $0.00 | $0.00 | $0.00 | $3718.27 |
Statement Details |
| 2025 | 14852 | STATE - STATE LEVY (SCHOOL) | $590.98 | $590.96 | $0.00 | $0.00 | $1181.94 | $0.00 |
| 2025 | 14852 | COUNTY - COUNTY LEVIES (CE, DD, VET, MH) | $232.41 | $232.38 | $0.00 | $0.00 | $464.79 | $0.00 |
| 2025 | 14852 | CONSERVE - CONSERVATION FUTURES | $6.97 | $6.97 | $0.00 | $0.00 | $13.94 | $0.00 |
| 2025 | 14852 | COROADS - COUNTY ROADS (ROADS, DIV TO CE) | $186.19 | $186.18 | $0.00 | $0.00 | $372.37 | $0.00 |
| 2025 | 14852 | PORTPT - PORT DISTRICT | $94.84 | $94.82 | $0.00 | $0.00 | $189.66 | $0.00 |
| 2025 | 14852 | PUD1 - PUD #1 | $15.21 | $15.20 | $0.00 | $0.00 | $30.41 | $0.00 |
| 2025 | 14852 | LIB1 - LIBRARY DIST #1 | $72.04 | $72.03 | $0.00 | $0.00 | $144.07 | $0.00 |
| 2025 | 14852 | HD2 - HOSP DIST #2 | $13.56 | $13.56 | $0.00 | $0.00 | $27.12 | $0.00 |
| 2025 | 14852 | SD48 - SCHOOL DIST #48 | $348.01 | $348.00 | $0.00 | $0.00 | $696.01 | $0.00 |
| 2025 | 14852 | FD2 - FIRE DISTRICT #2 | $192.14 | $192.14 | $0.00 | $0.00 | $384.28 | $0.00 |
| 2025 | 14852 | EMS2 - FIRE DIST #2 EMS | $108.19 | $108.19 | $0.00 | $0.00 | $216.38 | $0.00 |
| 2025 | 14852 | CEM2 - CEMETERY DIST #2 | $6.13 | $6.13 | $0.00 | $0.00 | $12.26 | $0.00 |
| 2025 | 14852 | JCCD - JC Conservation District | $2.53 | $2.53 | $0.00 | $0.00 | $5.06 | $0.00 |
| 2025 | 14852 | NWA - Noxious Weed Assessment | $2.15 | $2.15 | $0.00 | $0.00 | $4.30 | $0.00 |
| 2025 | 14852 | OSS - On Site Septic | $21.50 | $21.50 | $0.00 | $0.00 | $43.00 | $0.00 |
| 2025 | 14852 | WAT - Clean Water District | $13.00 | $13.00 | $0.00 | $0.00 | $26.00 | $0.00 |
| 2025 | 14852 | TOTAL: | $1905.85 | $1905.74 | $0.00 | $0.00 | $3811.59 | $0.00 |
|
| 2025 | 14852 | $1905.85 | $1905.74 | $0.00 | $0.00 | $3811.59 | $0.00 |
Statement Details |
| 2024 | 14883 | STATE - STATE LEVY (SCHOOL) | $564.38 | $564.37 | $0.00 | $0.00 | $1128.75 | $0.00 |
| 2024 | 14883 | COUNTY - COUNTY LEVIES (CE, DD, VET, MH) | $241.52 | $241.49 | $0.00 | $0.00 | $483.01 | $0.00 |
| 2024 | 14883 | CONSERVE - CONSERVATION FUTURES | $7.24 | $7.24 | $0.00 | $0.00 | $14.48 | $0.00 |
| 2024 | 14883 | COROADS - COUNTY ROADS (ROADS, DIV TO CE) | $194.33 | $194.32 | $0.00 | $0.00 | $388.65 | $0.00 |
| 2024 | 14883 | PORTPT - PORT DISTRICT | $99.75 | $99.75 | $0.00 | $0.00 | $199.50 | $0.00 |
| 2024 | 14883 | PUD1 - PUD #1 | $15.87 | $15.86 | $0.00 | $0.00 | $31.73 | $0.00 |
| 2024 | 14883 | LIB1 - LIBRARY DIST #1 | $75.19 | $75.18 | $0.00 | $0.00 | $150.37 | $0.00 |
| 2024 | 14883 | HD2 - HOSP DIST #2 | $14.09 | $14.09 | $0.00 | $0.00 | $28.18 | $0.00 |
| 2024 | 14883 | SD48 - SCHOOL DIST #48 | $252.78 | $252.77 | $0.00 | $0.00 | $505.55 | $0.00 |
| 2024 | 14883 | FD2 - FIRE DISTRICT #2 | $200.77 | $200.77 | $0.00 | $0.00 | $401.54 | $0.00 |
| 2024 | 14883 | EMS2 - FIRE DIST #2 EMS | $113.02 | $113.02 | $0.00 | $0.00 | $226.04 | $0.00 |
| 2024 | 14883 | CEM2 - CEMETERY DIST #2 | $6.43 | $6.42 | $0.00 | $0.00 | $12.85 | $0.00 |
| 2024 | 14883 | JCCD - JC Conservation District | $2.53 | $2.53 | $0.00 | $0.00 | $5.06 | $0.00 |
| 2024 | 14883 | NWA - Noxious Weed Assessment | $2.15 | $2.15 | $0.00 | $0.00 | $4.30 | $0.00 |
| 2024 | 14883 | OSS - On Site Septic | $21.00 | $21.00 | $0.00 | $0.00 | $42.00 | $0.00 |
| 2024 | 14883 | WAT - Clean Water District | $12.50 | $12.50 | $0.00 | $0.00 | $25.00 | $0.00 |
| 2024 | 14883 | TOTAL: | $1823.55 | $1823.46 | $0.00 | $0.00 | $3647.01 | $0.00 |
|
| 2024 | 14883 | $1823.55 | $1823.46 | $0.00 | $0.00 | $3647.01 | $0.00 |
Statement Details |
| 2023 | 14907 | STATE - STATE LEVY (SCHOOL) | $553.86 | $553.85 | $0.00 | $0.00 | $1107.71 | $0.00 |
| 2023 | 14907 | COUNTY - COUNTY LEVIES (CE, DD, VET, MH) | $241.68 | $241.68 | $0.00 | $0.00 | $483.36 | $0.00 |
| 2023 | 14907 | CONSERVE - CONSERVATION FUTURES | $7.25 | $7.24 | $0.00 | $0.00 | $14.49 | $0.00 |
| 2023 | 14907 | COROADS - COUNTY ROADS (ROADS, DIV TO CE) | $195.55 | $195.53 | $0.00 | $0.00 | $391.08 | $0.00 |
| 2023 | 14907 | PORTPT - PORT DISTRICT | $101.81 | $101.81 | $0.00 | $0.00 | $203.62 | $0.00 |
| 2023 | 14907 | PUD1 - PUD #1 | $16.02 | $16.02 | $0.00 | $0.00 | $32.04 | $0.00 |
| 2023 | 14907 | LIB1 - LIBRARY DIST #1 | $75.66 | $75.65 | $0.00 | $0.00 | $151.31 | $0.00 |
| 2023 | 14907 | HD2 - HOSP DIST #2 | $14.11 | $14.10 | $0.00 | $0.00 | $28.21 | $0.00 |
| 2023 | 14907 | SD48 - SCHOOL DIST #48 | $267.46 | $267.46 | $0.00 | $0.00 | $534.92 | $0.00 |
| 2023 | 14907 | FD2 - FIRE DISTRICT #2 | $209.79 | $209.78 | $0.00 | $0.00 | $419.57 | $0.00 |
| 2023 | 14907 | EMS2 - FIRE DIST #2 EMS | $117.64 | $117.63 | $0.00 | $0.00 | $235.27 | $0.00 |
| 2023 | 14907 | CEM2 - CEMETERY DIST #2 | $6.68 | $6.68 | $0.00 | $0.00 | $13.36 | $0.00 |
| 2023 | 14907 | JCCD - JC Conservation District | $2.53 | $2.53 | $0.00 | $0.00 | $5.06 | $0.00 |
| 2023 | 14907 | NWA - Noxious Weed Assessment | $2.15 | $2.15 | $0.00 | $0.00 | $4.30 | $0.00 |
| 2023 | 14907 | OSS - On Site Septic | $20.50 | $20.50 | $0.00 | $0.00 | $41.00 | $0.00 |
| 2023 | 14907 | WAT - Clean Water District | $12.00 | $12.00 | $0.00 | $0.00 | $24.00 | $0.00 |
| 2023 | 14907 | TOTAL: | $1844.69 | $1844.61 | $0.00 | $0.00 | $3689.30 | $0.00 |
|
| 2023 | 14907 | $1844.69 | $1844.61 | $0.00 | $0.00 | $3689.30 | $0.00 |
Values
| (+) Improvement Homesite Value: | + | $0 | |
| (+) Improvement Non-Homesite Value: | + | $422,928 | |
| (+) Land Homesite Value: | + | $0 | |
| (+) Land Non-Homesite Value: | + | $69,950 | |
| (+) Curr Use (HS): | + | $0 | $0 |
| (+) Curr Use (NHS): | + | $0 | $0 |
| | | -------------------------- | |
| (=) Market Value: | = | $492,878 | |
| (–) Productivity Loss: | – | $0 | |
| | | -------------------------- | |
| (=) Subtotal: | = | $492,878 | |
| (+) Senior Appraised Value: | + | $0 | |
| (+) Non-Senior Appraised Value: | + | $492,878 | |
| | | -------------------------- | |
| (=) Total Appraised Value: | = | $492,878 | |
| (–) Senior Exemption Loss: | – | $0 | |
| (–) Exemption Loss: | – | $0 | |
| | | -------------------------- | |
| (=) Taxable Value: | = | $492,878 | |
Taxing Jurisdiction
| Owner: | JAY & MICHAELA KOTHMAN | | |
| % Ownership: | 100.0000000000% | | |
| Total Value: | $492,878 | | |
| Tax Area: | 0320 - 1-48F2E2H2C2L1Z2 |
| CE | COUNTY CURRENT EXPENSE | 0.9034619479 | $492,878 | $492,878 | $445.30 | | |
| CNTYDD | DEVELOPMENTAL DISABILITIES | 0.0052121823 | $492,878 | $492,878 | $2.57 | | |
| CNTYVET | VETERANS RELIEF | 0.0052777810 | $492,878 | $492,878 | $2.60 | | |
| MENTAL | MENTAL HEALTH | 0.0052121823 | $492,878 | $492,878 | $2.57 | | |
| ROADS | COUNTY ROADS | 0.7415066410 | $492,878 | $492,878 | $365.47 | | |
| ROADSCU | COUNTY ROADS TO CUR EXP | 0.0000000000 | $492,878 | $492,878 | $0.00 | | |
| HOSP2CASH | HOSP DIST #2 GENERAL | 0.0536075306 | $492,878 | $492,878 | $26.42 | | |
| SCH48MO | SCHOOL DIST #48 EP & O | 1.4120478917 | $492,878 | $492,878 | $695.97 | | |
| CEM2 | CEMETERY DIST #2 GENERAL | 0.0241266154 | $492,878 | $492,878 | $11.89 | | |
| CONSERVE | CONSERVATION FUTURES | 0.0275621078 | $492,878 | $492,878 | $13.58 | | |
| FD2 | FIRE DIST #2 GENERAL | 0.7549976873 | $492,878 | $492,878 | $372.12 | | |
| LIB1 | LIBRARY DIST #1 GENERAL | 0.2868827388 | $492,878 | $492,878 | $141.40 | | |
| PORTPT | PORT OF PT GENERAL | 0.1134941229 | $492,878 | $492,878 | $55.94 | | |
| PORTPTIDD | PORT OF PT IDD 2019 | 0.2577346692 | $492,878 | $492,878 | $127.03 | | |
| PUD1 | PUD #1 GENERAL | 0.0597888892 | $492,878 | $492,878 | $29.47 | | |
| STATE | STATE SCHOOL PART 1 | 1.4940692947 | $492,878 | $492,878 | $736.39 | | |
| STATE2 | STATE SCHOOL PART 2 | 0.8050170049 | $492,878 | $492,878 | $396.78 | | |
| EMS2 | FIRE DIST #2 EMS | 0.4251727858 | $492,878 | $492,878 | $209.56 | | |
| | Total Tax Rate: | 7.3751720728 | | | | | |
| | | | | Taxes w/Current Exemptions: | $3,635.06 | | |
| | | | | Taxes w/o Exemptions: | $3,635.06 | | |
Improvement / Building
| Improvement #1: | Commercial/Industrial/Government Bldg | State Code: | 58 | 2740.0 sqft | Value: | $259,302 |
| Exterior Wall: | SI/ST | Floor Construction: | FRAME | | Foundation: | CONPR | Interior Finish: | FIN | | Roof Cover: | METAL |   |   |
|
| Improvement #2: | Residential Bldg | State Code: | 11 | 2151.0 sqft | Value: | $163,626 |
| Bathrooms (#): | 1 (FULL) | Bedrooms (#): | 4 | | Exterior Wall: | SI/ST | Fireplace: | PROPS-GOOD | | Floor Construction: | FRAME | Foundation: | CONPR | | Heating/Cooling: | HPUMP | Inside Verify: | NO | | Roof Cover: | METAL |   |   |
|
| | Type | Description | Class CD | Sub Class CD | Year Built | Area |
| | MA | Main Area | 3 | 15SF | 1950 | 951.0 |
| | MA2 | Second Floor Main Area | 3 | 15SF | 1950 | 1200.0 |
Sketch
Property Image
Land
| 1 | 2555-6585Q | | 0.2750 | 11980.00 | 0.00 | 0.00 | 0.00 | $69,950 | $0 |
Roll Value History
| 2026 | N/A | N/A | N/A | N/A | N/A |
| 2025 | $422,928 | $69,950 | $0 | $492,878 | $492,878 |
| 2024 | $422,928 | $69,950 | $0 | $492,878 | $492,878 |
| 2023 | $422,928 | $64,950 | $0 | $487,878 | $487,878 |
| 2022 | $410,580 | $59,950 | $0 | $470,530 | $470,530 |
Deed and Sales History
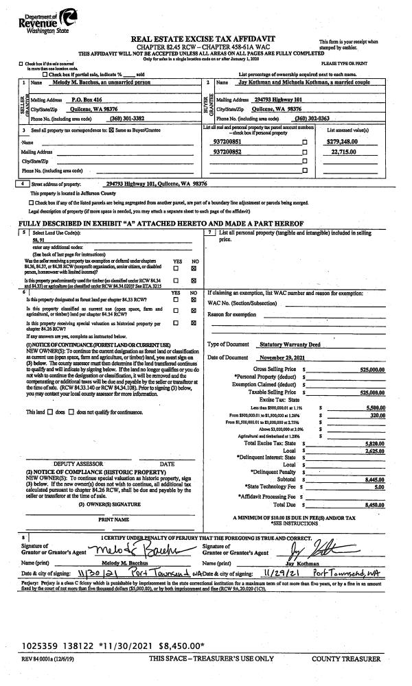
| 1 | 11/29/2021 | SWD | Statutory Warranty Deed | MELODY M BACCHUS | JAY & MICHAELA KOTHMAN | | | $525,000.00 | 138122 | |
|   | |
| 2 | 01/24/2005 | QCD | Quit Claim Deed | BACCHUS, WILLIAM | BACCHUS, MELODY | 0 | 0 | $0.00 | 102691 | 0 |
| 3 | 07/26/1995 | SWD | Statutory Warranty Deed | GIMBALDT, ELINOR | BACCHUS, WILLIAM L/MELODY M | 0 | 0 | $40,000.00 | 77444 | 0 |
Payout Agreement
| No payout information available.. |