Property
Account |
| Property ID: | 25420 | Abbreviated Legal Description: | CAMPBELL'S H.W. ADDITION BLK 8 TAX 47(LS N100') W/PTN VAC MASONIC TEMP RD |
| Parcel # / Geo ID: | 937200852 | Agent Code: | |
| Type: | Real | | |
| Tax Area: | 0320 - 1-48F2E2H2C2L1Z2 | Land Use Code | 18 |
| Open Space: | N | DFL | N |
| Historic Property: | N | Remodel Property: | N |
| Multi-Family Redevelopment: | N | | |
| Township: | 27N | Section: | 24 |
| Range: | 2W |
Location |
| Address: | 26 RODGERS ST QUILCENE, WA 98376 | Mapsco: | 102/031 |
| Neighborhood: | QUILCENE COMMERCIAL DISTRICT CENTRAL/SOUTH | Map ID: | |
| Neighborhood CD: | 2555C |
Owner |
| Name: | JAY & MICHAELA KOTHMAN | Owner ID: | 106043 |
| Mailing Address: | 82 BROOKSIDE ST PORT HADLOCK, WA 98339-8730 | % Ownership: | 100.0000000000% |
| | | Exemptions: | |
Pay Tax Due
Select the appropriate checkbox next to the year to be paid. Multiple years may be selected.
*Convenience Fee not included
Taxes and Assessment Details
Property Tax Information as of
03/10/2026
Click on "Statement Details" to expand or collapse a tax statement.
* Please enter a valid date ** Please enter a valid date *
Statement Details |
| 2026 | 14802 | STATE - STATE LEVY (SCHOOL) | $29.82 | $29.81 | $0.00 | $0.00 | $0.00 | $59.63 |
| 2026 | 14802 | COUNTY - COUNTY LEVIES (CE, DD, VET, MH) | $11.93 | $11.92 | $0.00 | $0.00 | $0.00 | $23.85 |
| 2026 | 14802 | CONSERVE - CONSERVATION FUTURES | $0.36 | $0.35 | $0.00 | $0.00 | $0.00 | $0.71 |
| 2026 | 14802 | COROADS - COUNTY ROADS (ROADS, DIV TO CE) | $9.62 | $9.61 | $0.00 | $0.00 | $0.00 | $19.23 |
| 2026 | 14802 | PORTPT - PORT DISTRICT | $4.82 | $4.81 | $0.00 | $0.00 | $0.00 | $9.63 |
| 2026 | 14802 | PUD1 - PUD #1 | $0.78 | $0.77 | $0.00 | $0.00 | $0.00 | $1.55 |
| 2026 | 14802 | LIB1 - LIBRARY DIST #1 | $3.72 | $3.72 | $0.00 | $0.00 | $0.00 | $7.44 |
| 2026 | 14802 | HD2 - HOSP DIST #2 | $0.70 | $0.69 | $0.00 | $0.00 | $0.00 | $1.39 |
| 2026 | 14802 | SD48 - SCHOOL DIST #48 | $18.32 | $18.31 | $0.00 | $0.00 | $0.00 | $36.63 |
| 2026 | 14802 | FD2 - FIRE DISTRICT #2 | $9.79 | $9.79 | $0.00 | $0.00 | $0.00 | $19.58 |
| 2026 | 14802 | EMS2 - FIRE DIST #2 EMS | $5.52 | $5.51 | $0.00 | $0.00 | $0.00 | $11.03 |
| 2026 | 14802 | CEM2 - CEMETERY DIST #2 | $0.32 | $0.31 | $0.00 | $0.00 | $0.00 | $0.63 |
| 2026 | 14802 | JCCD - JC Conservation District | $2.55 | $2.55 | $0.00 | $0.00 | $0.00 | $5.10 |
| 2026 | 14802 | NWA - Noxious Weed Assessment | $2.98 | $2.97 | $0.00 | $0.00 | $0.00 | $5.95 |
| 2026 | 14802 | OSS - On Site Septic | $23.10 | $23.10 | $0.00 | $0.00 | $0.00 | $46.20 |
| 2026 | 14802 | WAT - Clean Water District | $13.00 | $13.00 | $0.00 | $0.00 | $0.00 | $26.00 |
| 2026 | 14802 | TOTAL: | $137.33 | $137.22 | $0.00 | $0.00 | $0.00 | $274.55 |
|
| 2026 | 14802 | $137.33 | $137.22 | $0.00 | $0.00 | $0.00 | $274.55 |
Statement Details |
| 2025 | 14853 | STATE - STATE LEVY (SCHOOL) | $31.11 | $31.10 | $0.00 | $0.00 | $62.21 | $0.00 |
| 2025 | 14853 | COUNTY - COUNTY LEVIES (CE, DD, VET, MH) | $12.23 | $12.23 | $0.00 | $0.00 | $24.46 | $0.00 |
| 2025 | 14853 | CONSERVE - CONSERVATION FUTURES | $0.37 | $0.36 | $0.00 | $0.00 | $0.73 | $0.00 |
| 2025 | 14853 | COROADS - COUNTY ROADS (ROADS, DIV TO CE) | $9.80 | $9.80 | $0.00 | $0.00 | $19.60 | $0.00 |
| 2025 | 14853 | PORTPT - PORT DISTRICT | $4.99 | $4.99 | $0.00 | $0.00 | $9.98 | $0.00 |
| 2025 | 14853 | PUD1 - PUD #1 | $0.80 | $0.80 | $0.00 | $0.00 | $1.60 | $0.00 |
| 2025 | 14853 | LIB1 - LIBRARY DIST #1 | $3.79 | $3.79 | $0.00 | $0.00 | $7.58 | $0.00 |
| 2025 | 14853 | HD2 - HOSP DIST #2 | $0.72 | $0.71 | $0.00 | $0.00 | $1.43 | $0.00 |
| 2025 | 14853 | SD48 - SCHOOL DIST #48 | $18.32 | $18.31 | $0.00 | $0.00 | $36.63 | $0.00 |
| 2025 | 14853 | FD2 - FIRE DISTRICT #2 | $10.11 | $10.11 | $0.00 | $0.00 | $20.22 | $0.00 |
| 2025 | 14853 | EMS2 - FIRE DIST #2 EMS | $5.70 | $5.69 | $0.00 | $0.00 | $11.39 | $0.00 |
| 2025 | 14853 | CEM2 - CEMETERY DIST #2 | $0.33 | $0.32 | $0.00 | $0.00 | $0.65 | $0.00 |
| 2025 | 14853 | JCCD - JC Conservation District | $2.55 | $2.55 | $0.00 | $0.00 | $5.10 | $0.00 |
| 2025 | 14853 | NWA - Noxious Weed Assessment | $2.15 | $2.15 | $0.00 | $0.00 | $4.30 | $0.00 |
| 2025 | 14853 | WAT - Clean Water District | $13.00 | $13.00 | $0.00 | $0.00 | $26.00 | $0.00 |
| 2025 | 14853 | TOTAL: | $115.97 | $115.91 | $0.00 | $0.00 | $231.88 | $0.00 |
|
| 2025 | 14853 | $115.97 | $115.91 | $0.00 | $0.00 | $231.88 | $0.00 |
Statement Details |
| 2024 | 14884 | STATE - STATE LEVY (SCHOOL) | $30.01 | $30.00 | $0.00 | $0.00 | $60.01 | $0.00 |
| 2024 | 14884 | COUNTY - COUNTY LEVIES (CE, DD, VET, MH) | $12.84 | $12.83 | $0.00 | $0.00 | $25.67 | $0.00 |
| 2024 | 14884 | CONSERVE - CONSERVATION FUTURES | $0.39 | $0.38 | $0.00 | $0.00 | $0.77 | $0.00 |
| 2024 | 14884 | COROADS - COUNTY ROADS (ROADS, DIV TO CE) | $10.33 | $10.33 | $0.00 | $0.00 | $20.66 | $0.00 |
| 2024 | 14884 | PORTPT - PORT DISTRICT | $5.31 | $5.30 | $0.00 | $0.00 | $10.61 | $0.00 |
| 2024 | 14884 | PUD1 - PUD #1 | $0.85 | $0.84 | $0.00 | $0.00 | $1.69 | $0.00 |
| 2024 | 14884 | LIB1 - LIBRARY DIST #1 | $4.00 | $3.99 | $0.00 | $0.00 | $7.99 | $0.00 |
| 2024 | 14884 | HD2 - HOSP DIST #2 | $0.75 | $0.75 | $0.00 | $0.00 | $1.50 | $0.00 |
| 2024 | 14884 | SD48 - SCHOOL DIST #48 | $13.44 | $13.44 | $0.00 | $0.00 | $26.88 | $0.00 |
| 2024 | 14884 | FD2 - FIRE DISTRICT #2 | $10.68 | $10.67 | $0.00 | $0.00 | $21.35 | $0.00 |
| 2024 | 14884 | EMS2 - FIRE DIST #2 EMS | $6.01 | $6.01 | $0.00 | $0.00 | $12.02 | $0.00 |
| 2024 | 14884 | CEM2 - CEMETERY DIST #2 | $0.34 | $0.34 | $0.00 | $0.00 | $0.68 | $0.00 |
| 2024 | 14884 | JCCD - JC Conservation District | $2.55 | $2.55 | $0.00 | $0.00 | $5.10 | $0.00 |
| 2024 | 14884 | NWA - Noxious Weed Assessment | $2.15 | $2.15 | $0.00 | $0.00 | $4.30 | $0.00 |
| 2024 | 14884 | WAT - Clean Water District | $12.50 | $12.50 | $0.00 | $0.00 | $25.00 | $0.00 |
| 2024 | 14884 | TOTAL: | $112.15 | $112.08 | $0.00 | $0.00 | $224.23 | $0.00 |
|
| 2024 | 14884 | $112.15 | $112.08 | $0.00 | $0.00 | $224.23 | $0.00 |
Statement Details |
| 2023 | 14908 | STATE - STATE LEVY (SCHOOL) | $30.53 | $30.53 | $0.00 | $0.00 | $61.06 | $0.00 |
| 2023 | 14908 | COUNTY - COUNTY LEVIES (CE, DD, VET, MH) | $13.34 | $13.30 | $0.00 | $0.00 | $26.64 | $0.00 |
| 2023 | 14908 | CONSERVE - CONSERVATION FUTURES | $0.40 | $0.40 | $0.00 | $0.00 | $0.80 | $0.00 |
| 2023 | 14908 | COROADS - COUNTY ROADS (ROADS, DIV TO CE) | $10.78 | $10.78 | $0.00 | $0.00 | $21.56 | $0.00 |
| 2023 | 14908 | PORTPT - PORT DISTRICT | $5.62 | $5.60 | $0.00 | $0.00 | $11.22 | $0.00 |
| 2023 | 14908 | PUD1 - PUD #1 | $0.89 | $0.88 | $0.00 | $0.00 | $1.77 | $0.00 |
| 2023 | 14908 | LIB1 - LIBRARY DIST #1 | $4.17 | $4.17 | $0.00 | $0.00 | $8.34 | $0.00 |
| 2023 | 14908 | HD2 - HOSP DIST #2 | $0.78 | $0.77 | $0.00 | $0.00 | $1.55 | $0.00 |
| 2023 | 14908 | SD48 - SCHOOL DIST #48 | $14.75 | $14.74 | $0.00 | $0.00 | $29.49 | $0.00 |
| 2023 | 14908 | FD2 - FIRE DISTRICT #2 | $11.57 | $11.56 | $0.00 | $0.00 | $23.13 | $0.00 |
| 2023 | 14908 | EMS2 - FIRE DIST #2 EMS | $6.49 | $6.48 | $0.00 | $0.00 | $12.97 | $0.00 |
| 2023 | 14908 | CEM2 - CEMETERY DIST #2 | $0.37 | $0.37 | $0.00 | $0.00 | $0.74 | $0.00 |
| 2023 | 14908 | JCCD - JC Conservation District | $2.53 | $2.53 | $0.00 | $0.00 | $5.06 | $0.00 |
| 2023 | 14908 | NWA - Noxious Weed Assessment | $2.15 | $2.15 | $0.00 | $0.00 | $4.30 | $0.00 |
| 2023 | 14908 | WAT - Clean Water District | $12.00 | $12.00 | $0.00 | $0.00 | $24.00 | $0.00 |
| 2023 | 14908 | TOTAL: | $116.37 | $116.26 | $0.00 | $0.00 | $232.63 | $0.00 |
|
| 2023 | 14908 | $116.37 | $116.26 | $0.00 | $0.00 | $232.63 | $0.00 |
Values
| (+) Improvement Homesite Value: | + | $0 | |
| (+) Improvement Non-Homesite Value: | + | $0 | |
| (+) Land Homesite Value: | + | $0 | |
| (+) Land Non-Homesite Value: | + | $25,939 | |
| (+) Curr Use (HS): | + | $0 | $0 |
| (+) Curr Use (NHS): | + | $0 | $0 |
| | | -------------------------- | |
| (=) Market Value: | = | $25,939 | |
| (–) Productivity Loss: | – | $0 | |
| | | -------------------------- | |
| (=) Subtotal: | = | $25,939 | |
| (+) Senior Appraised Value: | + | $0 | |
| (+) Non-Senior Appraised Value: | + | $25,939 | |
| | | -------------------------- | |
| (=) Total Appraised Value: | = | $25,939 | |
| (–) Senior Exemption Loss: | – | $0 | |
| (–) Exemption Loss: | – | $0 | |
| | | -------------------------- | |
| (=) Taxable Value: | = | $25,939 | |
Taxing Jurisdiction
| Owner: | JAY & MICHAELA KOTHMAN | | |
| % Ownership: | 100.0000000000% | | |
| Total Value: | N/A | | |
| Tax Area: | 0320 - 1-48F2E2H2C2L1Z2 |
| CE | COUNTY CURRENT EXPENSE | N/A | N/A | N/A | N/A | | |
| CNTYDD | DEVELOPMENTAL DISABILITIES | N/A | N/A | N/A | N/A | | |
| CNTYVET | VETERANS RELIEF | N/A | N/A | N/A | N/A | | |
| MENTAL | MENTAL HEALTH | N/A | N/A | N/A | N/A | | |
| ROADS | COUNTY ROADS | N/A | N/A | N/A | N/A | | |
| HOSP2CASH | HOSP DIST #2 GENERAL | N/A | N/A | N/A | N/A | | |
| SCH48MO | SCHOOL DIST #48 EP & O | N/A | N/A | N/A | N/A | | |
| CEM2 | CEMETERY DIST #2 GENERAL | N/A | N/A | N/A | N/A | | |
| CONSERVE | CONSERVATION FUTURES | N/A | N/A | N/A | N/A | | |
| FD2 | FIRE DIST #2 GENERAL | N/A | N/A | N/A | N/A | | |
| LIB1 | LIBRARY DIST #1 GENERAL | N/A | N/A | N/A | N/A | | |
| PORTPT | PORT OF PT GENERAL | N/A | N/A | N/A | N/A | | |
| PORTPTIDD | PORT OF PT IDD 2019 | N/A | N/A | N/A | N/A | | |
| PUD1 | PUD #1 GENERAL | N/A | N/A | N/A | N/A | | |
| STATE | STATE SCHOOL PART 1 | N/A | N/A | N/A | N/A | | |
| STATE2 | STATE SCHOOL PART 2 | N/A | N/A | N/A | N/A | | |
| EMS2 | FIRE DIST #2 EMS | N/A | N/A | N/A | N/A | | |
| | Total Tax Rate: | N/A | | | | | |
| | | | | Taxes w/Current Exemptions: | N/A | | |
| | | | | Taxes w/o Exemptions: | N/A | | |
Improvement / Building
Sketch
| No sketches available for this property. |
Property Image
Land
| 1 | 2555-6587Q | | 0.5413 | 23581.00 | 0.00 | 0.00 | 0.00 | $25,939 | $0 |
Roll Value History
| 2026 | N/A | N/A | N/A | N/A | N/A |
| 2025 | $0 | $25,939 | $0 | $25,939 | $25,939 |
| 2024 | $0 | $25,939 | $0 | $25,939 | $25,939 |
| 2023 | $0 | $25,939 | $0 | $25,939 | $25,939 |
| 2022 | $0 | $25,939 | $0 | $25,939 | $25,939 |
Deed and Sales History
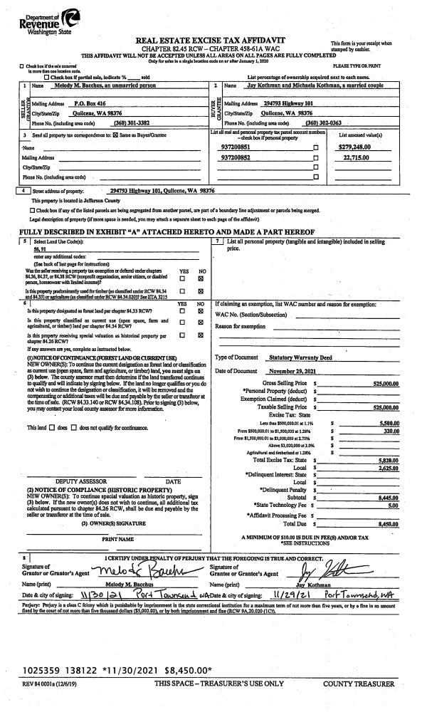
| 1 | 11/29/2021 | SWD | Statutory Warranty Deed | MELODY M BACCHUS | JAY & MICHAELA KOTHMAN | | | $525,000.00 | 138122 | |
|   | |
| 2 | 07/26/1996 | SWD | Statutory Warranty Deed | OLSON, JAMES R/JEAN E | BACCHUS, WILLIAM L/MELODY M | 0 | 0 | $40,000.00 | 80109 | 0 |
| 3 | 07/26/1996 | SWD | Statutory Warranty Deed | OLSON, JAMES R/JEAN E | BACCHUS, WILLIAM L/MELODY M | 0 | 0 | $0.00 | 80974 | 0 |
Payout Agreement
| No payout information available.. |