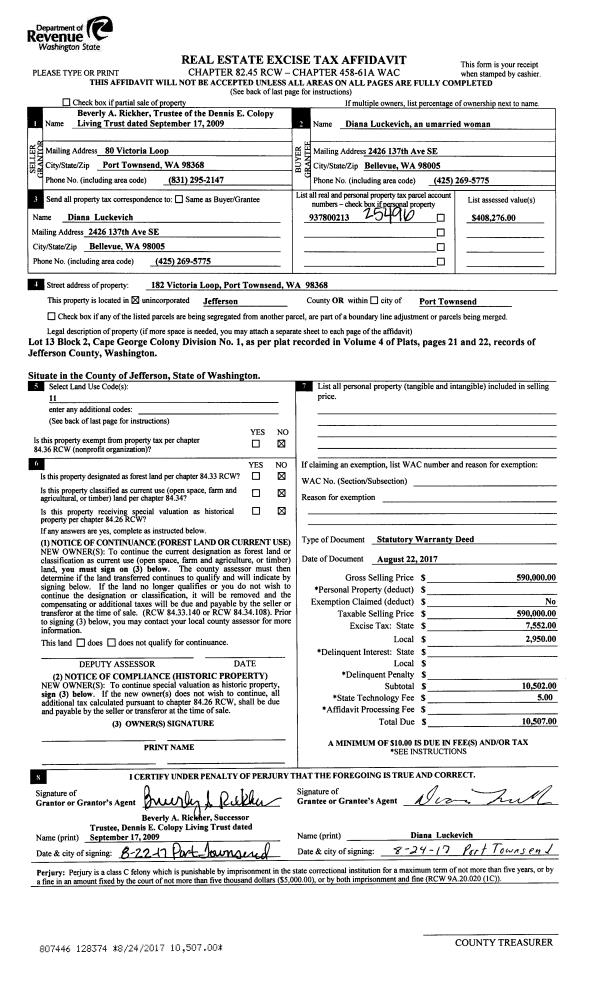
Property
Account |
| Property ID: | 25496 | Abbreviated Legal Description: | CAPE GEORGE COLONY DIV 1 BLK 2 LOT 13 |
| Parcel # / Geo ID: | 937800213 | Agent Code: | |
| Type: | Real | | |
| Tax Area: | 0111 - 1-50F1E1H2L1 | Land Use Code | 11 |
| Open Space: | N | DFL | N |
| Historic Property: | N | Remodel Property: | N |
| Multi-Family Redevelopment: | N | | |
| Township: | 30N | Section: | 12 |
| Range: | 2W |
Location |
| Address: | 182 VICTORIA LOOP PORT TOWNSEND, WA 98368 | Mapsco: | 006/040 |
| Neighborhood: | CAPE GEORGE COLONY (ALL), CRESTHAVEN & DIV 6 | Map ID: | |
| Neighborhood CD: | 5520 |
Owner |
| Name: | DIANA LUCKEVICH | Owner ID: | 97794 |
| Mailing Address: | 182 VICTORIA LOOP PORT TOWNSEND, WA 98368 | % Ownership: | 100.0000000000% |
| | | Exemptions: | SNR/DSBL |
Pay Tax Due
Select the appropriate checkbox next to the year to be paid. Multiple years may be selected.
*Convenience Fee not included
Taxes and Assessment Details
Property Tax Information as of
03/11/2026
Click on "Statement Details" to expand or collapse a tax statement.
* Please enter a valid date ** Please enter a valid date *
Statement Details |
| 2026 | 14876 | STATE - STATE LEVY (SCHOOL) | $228.94 | $228.94 | $0.00 | $0.00 | $0.00 | $457.88 |
| 2026 | 14876 | COUNTY - COUNTY LEVIES (CE, DD, VET, MH) | $140.85 | $140.85 | $0.00 | $0.00 | $0.00 | $281.70 |
| 2026 | 14876 | CONSERVE - CONSERVATION FUTURES | $4.23 | $4.22 | $0.00 | $0.00 | $0.00 | $8.45 |
| 2026 | 14876 | COROADS - COUNTY ROADS (ROADS, DIV TO CE) | $113.63 | $113.62 | $0.00 | $0.00 | $0.00 | $227.25 |
| 2026 | 14876 | PORTPT - PORT DISTRICT | $56.89 | $56.88 | $0.00 | $0.00 | $0.00 | $113.77 |
| 2026 | 14876 | PUD1 - PUD #1 | $9.16 | $9.16 | $0.00 | $0.00 | $0.00 | $18.32 |
| 2026 | 14876 | LIB1 - LIBRARY DIST #1 | $43.96 | $43.96 | $0.00 | $0.00 | $0.00 | $87.92 |
| 2026 | 14876 | HD2 - HOSP DIST #2 | $8.22 | $8.21 | $0.00 | $0.00 | $0.00 | $16.43 |
| 2026 | 14876 | SD50 - SCHOOL DIST #50 | $0.00 | $0.00 | $0.00 | $0.00 | $0.00 | $0.00 |
| 2026 | 14876 | FD1 - FIRE DISTRICT #1 | $186.52 | $186.51 | $0.00 | $0.00 | $0.00 | $373.03 |
| 2026 | 14876 | EMS1 - FIRE DIST #1 EMS | $71.72 | $71.71 | $0.00 | $0.00 | $0.00 | $143.43 |
| 2026 | 14876 | OSS - On Site Septic | $23.10 | $23.10 | $0.00 | $0.00 | $0.00 | $46.20 |
| 2026 | 14876 | TOTAL: | $887.22 | $887.16 | $0.00 | $0.00 | $0.00 | $1774.38 |
|
| 2026 | 14876 | $887.22 | $887.16 | $0.00 | $0.00 | $0.00 | $1774.38 |
Statement Details |
| 2025 | 14927 | STATE - STATE LEVY (SCHOOL) | $238.89 | $238.88 | $0.00 | $0.00 | $477.77 | $0.00 |
| 2025 | 14927 | COUNTY - COUNTY LEVIES (CE, DD, VET, MH) | $144.51 | $144.51 | $0.00 | $0.00 | $289.02 | $0.00 |
| 2025 | 14927 | CONSERVE - CONSERVATION FUTURES | $4.34 | $4.33 | $0.00 | $0.00 | $8.67 | $0.00 |
| 2025 | 14927 | COROADS - COUNTY ROADS (ROADS, DIV TO CE) | $115.78 | $115.76 | $0.00 | $0.00 | $231.54 | $0.00 |
| 2025 | 14927 | PORTPT - PORT DISTRICT | $58.96 | $58.96 | $0.00 | $0.00 | $117.92 | $0.00 |
| 2025 | 14927 | PUD1 - PUD #1 | $9.46 | $9.45 | $0.00 | $0.00 | $18.91 | $0.00 |
| 2025 | 14927 | LIB1 - LIBRARY DIST #1 | $44.79 | $44.79 | $0.00 | $0.00 | $89.58 | $0.00 |
| 2025 | 14927 | HD2 - HOSP DIST #2 | $8.43 | $8.43 | $0.00 | $0.00 | $16.86 | $0.00 |
| 2025 | 14927 | SD50 - SCHOOL DIST #50 | $0.00 | $0.00 | $0.00 | $0.00 | $0.00 | $0.00 |
| 2025 | 14927 | FD1 - FIRE DISTRICT #1 | $190.69 | $190.68 | $0.00 | $0.00 | $381.37 | $0.00 |
| 2025 | 14927 | EMS1 - FIRE DIST #1 EMS | $73.35 | $73.34 | $0.00 | $0.00 | $146.69 | $0.00 |
| 2025 | 14927 | OSS - On Site Septic | $21.50 | $21.50 | $0.00 | $0.00 | $43.00 | $0.00 |
| 2025 | 14927 | TOTAL: | $910.70 | $910.63 | $0.00 | $0.00 | $1821.33 | $0.00 |
|
| 2025 | 14927 | $910.70 | $910.63 | $0.00 | $0.00 | $1821.33 | $0.00 |
Statement Details |
| 2024 | 14958 | STATE - STATE LEVY (SCHOOL) | $230.75 | $230.74 | $0.00 | $0.00 | $461.49 | $0.00 |
| 2024 | 14958 | COUNTY - COUNTY LEVIES (CE, DD, VET, MH) | $151.72 | $151.68 | $0.00 | $0.00 | $303.40 | $0.00 |
| 2024 | 14958 | CONSERVE - CONSERVATION FUTURES | $4.55 | $4.55 | $0.00 | $0.00 | $9.10 | $0.00 |
| 2024 | 14958 | COROADS - COUNTY ROADS (ROADS, DIV TO CE) | $122.08 | $122.06 | $0.00 | $0.00 | $244.14 | $0.00 |
| 2024 | 14958 | PORTPT - PORT DISTRICT | $62.66 | $62.66 | $0.00 | $0.00 | $125.32 | $0.00 |
| 2024 | 14958 | PUD1 - PUD #1 | $9.97 | $9.96 | $0.00 | $0.00 | $19.93 | $0.00 |
| 2024 | 14958 | LIB1 - LIBRARY DIST #1 | $47.23 | $47.23 | $0.00 | $0.00 | $94.46 | $0.00 |
| 2024 | 14958 | HD2 - HOSP DIST #2 | $8.85 | $8.85 | $0.00 | $0.00 | $17.70 | $0.00 |
| 2024 | 14958 | SD50 - SCHOOL DIST #50 | $0.00 | $0.00 | $0.00 | $0.00 | $0.00 | $0.00 |
| 2024 | 14958 | FD1 - FIRE DISTRICT #1 | $200.59 | $200.59 | $0.00 | $0.00 | $401.18 | $0.00 |
| 2024 | 14958 | EMS1 - FIRE DIST #1 EMS | $76.62 | $76.61 | $0.00 | $0.00 | $153.23 | $0.00 |
| 2024 | 14958 | OSS - On Site Septic | $21.00 | $21.00 | $0.00 | $0.00 | $42.00 | $0.00 |
| 2024 | 14958 | TOTAL: | $936.02 | $935.93 | $0.00 | $0.00 | $1871.95 | $0.00 |
|
| 2024 | 14958 | $936.02 | $935.93 | $0.00 | $0.00 | $1871.95 | $0.00 |
Statement Details |
| 2023 | 14982 | STATE - STATE LEVY (SCHOOL) | $470.05 | $0.00 | $0.00 | $0.00 | $470.05 | $0.00 |
| 2023 | 14982 | COUNTY - COUNTY LEVIES (CE, DD, VET, MH) | $314.83 | $0.00 | $0.00 | $0.00 | $314.83 | $0.00 |
| 2023 | 14982 | CONSERVE - CONSERVATION FUTURES | $9.44 | $0.00 | $0.00 | $0.00 | $9.44 | $0.00 |
| 2023 | 14982 | COROADS - COUNTY ROADS (ROADS, DIV TO CE) | $254.72 | $0.00 | $0.00 | $0.00 | $254.72 | $0.00 |
| 2023 | 14982 | PORTPT - PORT DISTRICT | $132.62 | $0.00 | $0.00 | $0.00 | $132.62 | $0.00 |
| 2023 | 14982 | PUD1 - PUD #1 | $20.87 | $0.00 | $0.00 | $0.00 | $20.87 | $0.00 |
| 2023 | 14982 | LIB1 - LIBRARY DIST #1 | $98.55 | $0.00 | $0.00 | $0.00 | $98.55 | $0.00 |
| 2023 | 14982 | HD2 - HOSP DIST #2 | $18.37 | $0.00 | $0.00 | $0.00 | $18.37 | $0.00 |
| 2023 | 14982 | SD50 - SCHOOL DIST #50 | $0.00 | $0.00 | $0.00 | $0.00 | $0.00 | $0.00 |
| 2023 | 14982 | FD1 - FIRE DISTRICT #1 | $259.36 | $0.00 | $0.00 | $0.00 | $259.36 | $0.00 |
| 2023 | 14982 | EMS1 - FIRE DIST #1 EMS | $110.33 | $0.00 | $0.00 | $0.00 | $110.33 | $0.00 |
| 2023 | 14982 | JCCD - JC Conservation District | $5.10 | $0.00 | $0.00 | $0.00 | $5.10 | $0.00 |
| 2023 | 14982 | NWA - Noxious Weed Assessment | $4.30 | $0.00 | $0.00 | $0.00 | $4.30 | $0.00 |
| 2023 | 14982 | OSS - On Site Septic | $41.00 | $0.00 | $0.00 | $0.00 | $41.00 | $0.00 |
| 2023 | 14982 | WAT - Clean Water District | $24.00 | $0.00 | $0.00 | $0.00 | $24.00 | $0.00 |
| 2023 | 14982 | TOTAL: | $1763.54 | $0.00 | $0.00 | $0.00 | $1763.54 | $0.00 |
|
| 2023 | 14982 | $1763.54 | $0.00 | $0.00 | $0.00 | $1763.54 | $0.00 |
Values
| (+) Improvement Homesite Value: | + | $630,766 | |
| (+) Improvement Non-Homesite Value: | + | $0 | |
| (+) Land Homesite Value: | + | $231,000 | |
| (+) Land Non-Homesite Value: | + | $0 | |
| (+) Curr Use (HS): | + | $0 | $0 |
| (+) Curr Use (NHS): | + | $0 | $0 |
| | | -------------------------- | |
| (=) Market Value: | = | $861,766 | |
| (–) Productivity Loss: | – | $0 | |
| | | -------------------------- | |
| (=) Subtotal: | = | $861,766 | |
| (+) Senior Appraised Value: | + | $766,170 | |
| (+) Non-Senior Appraised Value: | + | $0 | |
| | | -------------------------- | |
| (=) Total Appraised Value: | = | $766,170 | |
| (–) Senior Exemption Loss: | – | $459,702 | |
| (–) Exemption Loss: | – | $0 | |
| | | -------------------------- | |
| (=) Taxable Value: | = | $306,468 | |
Taxing Jurisdiction
| Owner: | DIANA LUCKEVICH | | |
| % Ownership: | 100.0000000000% | | |
| Total Value: | $861,766 | | |
| Tax Area: | 0111 - 1-50F1E1H2L1 |
| CE | COUNTY CURRENT EXPENSE | 0.9034619479 | $861,766 | $306,468 | $276.88 | | |
| CNTYDD | DEVELOPMENTAL DISABILITIES | 0.0052121823 | $861,766 | $306,468 | $1.60 | | |
| CNTYVET | VETERANS RELIEF | 0.0052777810 | $861,766 | $306,468 | $1.62 | | |
| MENTAL | MENTAL HEALTH | 0.0052121823 | $861,766 | $306,468 | $1.60 | | |
| ROADS | COUNTY ROADS | 0.7415066410 | $861,766 | $306,468 | $227.25 | | |
| ROADSCU | COUNTY ROADS TO CUR EXP | 0.0000000000 | $861,766 | $306,468 | $0.00 | | |
| HOSP2CASH | HOSP DIST #2 GENERAL | 0.0536075306 | $861,766 | $306,468 | $16.43 | | |
| SCH50BOND | SCHOOL DIST #50 BOND 2016 | 0.0000000000 | $861,766 | $0 | $0.00 | | |
| SCH50CP | SCHOOL DIST #50 CAP PROJ | 0.0000000000 | $861,766 | $0 | $0.00 | | |
| SCH50MO | SCHOOL DIST #50 EP & O | 0.0000000000 | $861,766 | $0 | $0.00 | | |
| CONSERVE | CONSERVATION FUTURES | 0.0275621078 | $861,766 | $306,468 | $8.45 | | |
| EMS1 | FIRE DIST #1 EMS | 0.4679948282 | $861,766 | $306,468 | $143.43 | | |
| FD1 | FIRE DIST #1 GENERAL | 1.2171942929 | $861,766 | $306,468 | $373.03 | | |
| LIB1 | LIBRARY DIST #1 GENERAL | 0.2868827388 | $861,766 | $306,468 | $87.92 | | |
| PORTPT | PORT OF PT GENERAL | 0.1134941229 | $861,766 | $306,468 | $34.78 | | |
| PORTPTIDD | PORT OF PT IDD 2019 | 0.2577346692 | $861,766 | $306,468 | $78.99 | | |
| PUD1 | PUD #1 GENERAL | 0.0597888892 | $861,766 | $306,468 | $18.32 | | |
| STATE | STATE SCHOOL PART 1 | 1.4940692947 | $861,766 | $306,468 | $457.88 | | |
| STATE2 | STATE SCHOOL PART 2 | 0.0000000000 | $861,766 | $0 | $0.00 | | |
| | Total Tax Rate: | 5.6389992088 | | | | | |
| | | | | Taxes w/Current Exemptions: | $1,728.18 | | |
| | | | | Taxes w/o Exemptions: | $7,122.85 | | |
Improvement / Building
| Improvement #1: | Residential Bldg | State Code: | 11 | 2152.0 sqft | Value: | $630,766 |
| Bathrooms (#): | 2 (FULL) | Bedrooms (#): | 2 | | Exterior Wall: | SI/ST | Fireplace: | SIN 1-GOOD | | Floor Construction: | FRAME | Foundation: | CONPR | | Heating/Cooling: | F/A | Roof Cover: | COMP |
|
| | Type | Description | Class CD | Sub Class CD | Year Built | Area |
| | MA | Main Area | 5 | 1S | 2001 | 2152.0 |
| | HWPOR | House Wood Porch | 5 | * | 2001 | 114.0 |
| | HCPOR | House Concrete Porch | 5 | * | 2001 | 108.0 |
| | HDECK | House Deck | 5 | * | 2001 | 20.0 |
| | GATT | House Attached Garage | 5 | 1S | 2001 | 527.0 |
| | CONCD | Concrete Drive | 5 | * | 2001 | 1500.0 |
Sketch
Property Image
Land
| 1 | 5520-1145L | | 0.0000 | 0.00 | 0.00 | 0.00 | 1.00 | $231,000 | $0 |
Roll Value History
| 2026 | N/A | N/A | N/A | N/A | N/A |
| 2025 | $630,766 | $231,000 | $0 | $861,766 | $306,468 |
| 2024 | $630,766 | $231,000 | $0 | $861,766 | $306,468 |
| 2023 | $593,131 | $215,250 | $0 | $808,381 | $306,468 |
| 2022 | $566,170 | $200,000 | $0 | $766,170 | $306,468 |
Deed and Sales History
| 1 | 08/22/2017 | SWD | Statutory Warranty Deed | DENNIS COLOPY LIVING TRUST | DIANA LUCKEVICH | | | $590,000.00 | 128374 | |
| 2 | 02/08/2017 | SWD | Statutory Warranty Deed | DENNIS E COLOPY | DENNIS COLOPY LIVING TRUST | | | | 128204 | |
| 3 | 07/06/2015 | SWD | Statutory Warranty Deed | PATRICIA D HUDSON | DENNIS E COLOPY | | | $428,000.00 | 123507 | |
| 4 | 08/24/2001 | SWD | Statutory Warranty Deed | MILLENIUM ONE HOMES, INC | HUDSON, PATRICIA D | 0 | 0 | $359,000.00 | 92975 | 0 |
| 5 | 10/27/2000 | SWD | Statutory Warranty Deed | SANDERS, LINDA | MILLENNIUM ONE HOMES INC | 0 | 0 | $90,000.00 | 90913 | 0 |
| 6 | 01/23/1996 | SWD | Statutory Warranty Deed | AMBLER FAMILY TRUST | SANDERS, RUSSELL/LINDA | 0 | 0 | $85,000.00 | 78778 | 0 |
| 7 | 09/07/1994 | QCD | Quit Claim Deed | AMBLER, HERBERT F/THELMA | AMBLER FAMILY TRUST | 0 | 0 | $0.00 | 75155 | 0 |
Payout Agreement
| No payout information available.. |