Property
Account |
| Property ID: | 25525 | Abbreviated Legal Description: | CAPE GEORGE COLONY DIV 2 BLK 3 LOT 9 |
| Parcel # / Geo ID: | 938100324 | Agent Code: | |
| Type: | Real | | |
| Tax Area: | 0111 - 1-50F1E1H2L1 | Land Use Code | 11 |
| Open Space: | N | DFL | N |
| Historic Property: | N | Remodel Property: | N |
| Multi-Family Redevelopment: | N | | |
| Township: | 30N | Section: | 12 |
| Range: | 2W |
Location |
| Address: | 270 SUNSET BLVD PORT TOWNSEND, WA 98368 | Mapsco: | 007/009 |
| Neighborhood: | CAPE GEORGE COLONY (ALL), CRESTHAVEN & DIV 6 | Map ID: | |
| Neighborhood CD: | 5520 |
Owner |
| Name: | DANIEL J & ALEXANDRA M ROSANOVA | Owner ID: | 111314 |
| Mailing Address: | 270 SUNSET BLVD PORT TOWNSEND, WA 98368-8912 | % Ownership: | 100.0000000000% |
| | | Exemptions: | |
Pay Tax Due
Select the appropriate checkbox next to the year to be paid. Multiple years may be selected.
*Convenience Fee not included
Taxes and Assessment Details
Property Tax Information as of
03/10/2026
Click on "Statement Details" to expand or collapse a tax statement.
* Please enter a valid date ** Please enter a valid date *
Statement Details |
| 2026 | 14905 | STATE - STATE LEVY (SCHOOL) | $1668.19 | $1668.18 | $0.00 | $0.00 | $0.00 | $3336.37 |
| 2026 | 14905 | COUNTY - COUNTY LEVIES (CE, DD, VET, MH) | $666.93 | $666.93 | $0.00 | $0.00 | $0.00 | $1333.86 |
| 2026 | 14905 | CONSERVE - CONSERVATION FUTURES | $20.00 | $20.00 | $0.00 | $0.00 | $0.00 | $40.00 |
| 2026 | 14905 | COROADS - COUNTY ROADS (ROADS, DIV TO CE) | $538.03 | $538.02 | $0.00 | $0.00 | $0.00 | $1076.05 |
| 2026 | 14905 | PORTPT - PORT DISTRICT | $269.36 | $269.36 | $0.00 | $0.00 | $0.00 | $538.72 |
| 2026 | 14905 | PUD1 - PUD #1 | $43.38 | $43.38 | $0.00 | $0.00 | $0.00 | $86.76 |
| 2026 | 14905 | LIB1 - LIBRARY DIST #1 | $208.16 | $208.16 | $0.00 | $0.00 | $0.00 | $416.32 |
| 2026 | 14905 | HD2 - HOSP DIST #2 | $38.90 | $38.89 | $0.00 | $0.00 | $0.00 | $77.79 |
| 2026 | 14905 | SD50 - SCHOOL DIST #50 | $1321.57 | $1321.56 | $0.00 | $0.00 | $0.00 | $2643.13 |
| 2026 | 14905 | FD1 - FIRE DISTRICT #1 | $883.18 | $883.18 | $0.00 | $0.00 | $0.00 | $1766.36 |
| 2026 | 14905 | EMS1 - FIRE DIST #1 EMS | $339.57 | $339.57 | $0.00 | $0.00 | $0.00 | $679.14 |
| 2026 | 14905 | JCCD - JC Conservation District | $2.55 | $2.55 | $0.00 | $0.00 | $0.00 | $5.10 |
| 2026 | 14905 | NWA - Noxious Weed Assessment | $2.98 | $2.97 | $0.00 | $0.00 | $0.00 | $5.95 |
| 2026 | 14905 | OSS - On Site Septic | $23.10 | $23.10 | $0.00 | $0.00 | $0.00 | $46.20 |
| 2026 | 14905 | WAT - Clean Water District | $13.00 | $13.00 | $0.00 | $0.00 | $0.00 | $26.00 |
| 2026 | 14905 | TOTAL: | $6038.90 | $6038.85 | $0.00 | $0.00 | $0.00 | $12077.75 |
|
| 2026 | 14905 | $6038.90 | $6038.85 | $0.00 | $0.00 | $0.00 | $12077.75 |
Statement Details |
| 2025 | 14956 | STATE - STATE LEVY (SCHOOL) | $1739.98 | $1739.97 | $0.00 | $0.00 | $3479.95 | $0.00 |
| 2025 | 14956 | COUNTY - COUNTY LEVIES (CE, DD, VET, MH) | $684.23 | $684.23 | $0.00 | $0.00 | $1368.46 | $0.00 |
| 2025 | 14956 | CONSERVE - CONSERVATION FUTURES | $20.52 | $20.51 | $0.00 | $0.00 | $41.03 | $0.00 |
| 2025 | 14956 | COROADS - COUNTY ROADS (ROADS, DIV TO CE) | $548.18 | $548.18 | $0.00 | $0.00 | $1096.36 | $0.00 |
| 2025 | 14956 | PORTPT - PORT DISTRICT | $279.21 | $279.20 | $0.00 | $0.00 | $558.41 | $0.00 |
| 2025 | 14956 | PUD1 - PUD #1 | $44.77 | $44.77 | $0.00 | $0.00 | $89.54 | $0.00 |
| 2025 | 14956 | LIB1 - LIBRARY DIST #1 | $212.09 | $212.08 | $0.00 | $0.00 | $424.17 | $0.00 |
| 2025 | 14956 | HD2 - HOSP DIST #2 | $39.92 | $39.92 | $0.00 | $0.00 | $79.84 | $0.00 |
| 2025 | 14956 | SD50 - SCHOOL DIST #50 | $1271.64 | $1271.62 | $0.00 | $0.00 | $2543.26 | $0.00 |
| 2025 | 14956 | FD1 - FIRE DISTRICT #1 | $902.92 | $902.92 | $0.00 | $0.00 | $1805.84 | $0.00 |
| 2025 | 14956 | EMS1 - FIRE DIST #1 EMS | $347.29 | $347.29 | $0.00 | $0.00 | $694.58 | $0.00 |
| 2025 | 14956 | JCCD - JC Conservation District | $2.55 | $2.55 | $0.00 | $0.00 | $5.10 | $0.00 |
| 2025 | 14956 | NWA - Noxious Weed Assessment | $2.15 | $2.15 | $0.00 | $0.00 | $4.30 | $0.00 |
| 2025 | 14956 | OSS - On Site Septic | $21.50 | $21.50 | $0.00 | $0.00 | $43.00 | $0.00 |
| 2025 | 14956 | WAT - Clean Water District | $13.00 | $13.00 | $0.00 | $0.00 | $26.00 | $0.00 |
| 2025 | 14956 | TOTAL: | $6129.95 | $6129.89 | $0.00 | $0.00 | $12259.84 | $0.00 |
|
| 2025 | 14956 | $6129.95 | $6129.89 | $0.00 | $0.00 | $12259.84 | $0.00 |
Statement Details |
| 2024 | 14987 | STATE - STATE LEVY (SCHOOL) | $1130.55 | $1130.53 | $0.00 | $0.00 | $2261.08 | $0.00 |
| 2024 | 14987 | COUNTY - COUNTY LEVIES (CE, DD, VET, MH) | $483.77 | $483.76 | $0.00 | $0.00 | $967.53 | $0.00 |
| 2024 | 14987 | CONSERVE - CONSERVATION FUTURES | $14.51 | $14.50 | $0.00 | $0.00 | $29.01 | $0.00 |
| 2024 | 14987 | COROADS - COUNTY ROADS (ROADS, DIV TO CE) | $389.28 | $389.27 | $0.00 | $0.00 | $778.55 | $0.00 |
| 2024 | 14987 | PORTPT - PORT DISTRICT | $199.83 | $199.81 | $0.00 | $0.00 | $399.64 | $0.00 |
| 2024 | 14987 | PUD1 - PUD #1 | $31.78 | $31.77 | $0.00 | $0.00 | $63.55 | $0.00 |
| 2024 | 14987 | LIB1 - LIBRARY DIST #1 | $150.61 | $150.60 | $0.00 | $0.00 | $301.21 | $0.00 |
| 2024 | 14987 | HD2 - HOSP DIST #2 | $28.23 | $28.22 | $0.00 | $0.00 | $56.45 | $0.00 |
| 2024 | 14987 | SD50 - SCHOOL DIST #50 | $914.67 | $914.65 | $0.00 | $0.00 | $1829.32 | $0.00 |
| 2024 | 14987 | FD1 - FIRE DISTRICT #1 | $639.66 | $639.65 | $0.00 | $0.00 | $1279.31 | $0.00 |
| 2024 | 14987 | EMS1 - FIRE DIST #1 EMS | $244.33 | $244.32 | $0.00 | $0.00 | $488.65 | $0.00 |
| 2024 | 14987 | JCCD - JC Conservation District | $2.55 | $2.55 | $0.00 | $0.00 | $5.10 | $0.00 |
| 2024 | 14987 | NWA - Noxious Weed Assessment | $2.15 | $2.15 | $0.00 | $0.00 | $4.30 | $0.00 |
| 2024 | 14987 | OSS - On Site Septic | $21.00 | $21.00 | $0.00 | $0.00 | $42.00 | $0.00 |
| 2024 | 14987 | WAT - Clean Water District | $12.50 | $12.50 | $0.00 | $0.00 | $25.00 | $0.00 |
| 2024 | 14987 | TOTAL: | $4265.42 | $4265.28 | $0.00 | $0.00 | $8530.70 | $0.00 |
|
| 2024 | 14987 | $4265.42 | $4265.28 | $0.00 | $0.00 | $8530.70 | $0.00 |
Statement Details |
| 2023 | 15011 | STATE - STATE LEVY (SCHOOL) | $1091.46 | $1091.45 | $0.00 | $0.00 | $2182.91 | $0.00 |
| 2023 | 15011 | COUNTY - COUNTY LEVIES (CE, DD, VET, MH) | $476.29 | $476.27 | $0.00 | $0.00 | $952.56 | $0.00 |
| 2023 | 15011 | CONSERVE - CONSERVATION FUTURES | $14.28 | $14.28 | $0.00 | $0.00 | $28.56 | $0.00 |
| 2023 | 15011 | COROADS - COUNTY ROADS (ROADS, DIV TO CE) | $385.34 | $385.34 | $0.00 | $0.00 | $770.68 | $0.00 |
| 2023 | 15011 | PORTPT - PORT DISTRICT | $200.64 | $200.63 | $0.00 | $0.00 | $401.27 | $0.00 |
| 2023 | 15011 | PUD1 - PUD #1 | $31.57 | $31.57 | $0.00 | $0.00 | $63.14 | $0.00 |
| 2023 | 15011 | LIB1 - LIBRARY DIST #1 | $149.09 | $149.08 | $0.00 | $0.00 | $298.17 | $0.00 |
| 2023 | 15011 | HD2 - HOSP DIST #2 | $27.80 | $27.79 | $0.00 | $0.00 | $55.59 | $0.00 |
| 2023 | 15011 | SD50 - SCHOOL DIST #50 | $866.09 | $866.08 | $0.00 | $0.00 | $1732.17 | $0.00 |
| 2023 | 15011 | FD1 - FIRE DISTRICT #1 | $392.36 | $392.35 | $0.00 | $0.00 | $784.71 | $0.00 |
| 2023 | 15011 | EMS1 - FIRE DIST #1 EMS | $166.90 | $166.90 | $0.00 | $0.00 | $333.80 | $0.00 |
| 2023 | 15011 | JCCD - JC Conservation District | $2.55 | $2.55 | $0.00 | $0.00 | $5.10 | $0.00 |
| 2023 | 15011 | NWA - Noxious Weed Assessment | $2.15 | $2.15 | $0.00 | $0.00 | $4.30 | $0.00 |
| 2023 | 15011 | OSS - On Site Septic | $20.50 | $20.50 | $0.00 | $0.00 | $41.00 | $0.00 |
| 2023 | 15011 | WAT - Clean Water District | $12.00 | $12.00 | $0.00 | $0.00 | $24.00 | $0.00 |
| 2023 | 15011 | TOTAL: | $3839.02 | $3838.94 | $0.00 | $0.00 | $7677.96 | $0.00 |
|
| 2023 | 15011 | $3839.02 | $3838.94 | $0.00 | $0.00 | $7677.96 | $0.00 |
Values
| (+) Improvement Homesite Value: | + | $0 | |
| (+) Improvement Non-Homesite Value: | + | $1,143,171 | |
| (+) Land Homesite Value: | + | $0 | |
| (+) Land Non-Homesite Value: | + | $308,000 | |
| (+) Curr Use (HS): | + | $0 | $0 |
| (+) Curr Use (NHS): | + | $0 | $0 |
| | | -------------------------- | |
| (=) Market Value: | = | $1,451,171 | |
| (–) Productivity Loss: | – | $0 | |
| | | -------------------------- | |
| (=) Subtotal: | = | $1,451,171 | |
| (+) Senior Appraised Value: | + | $0 | |
| (+) Non-Senior Appraised Value: | + | $1,451,171 | |
| | | -------------------------- | |
| (=) Total Appraised Value: | = | $1,451,171 | |
| (–) Senior Exemption Loss: | – | $0 | |
| (–) Exemption Loss: | – | $0 | |
| | | -------------------------- | |
| (=) Taxable Value: | = | $1,451,171 | |
Taxing Jurisdiction
| Owner: | DANIEL J & ALEXANDRA M ROSANOVA | | |
| % Ownership: | 100.0000000000% | | |
| Total Value: | $1,451,171 | | |
| Tax Area: | 0111 - 1-50F1E1H2L1 |
| CE | COUNTY CURRENT EXPENSE | 0.9034619479 | $1,451,171 | $1,451,171 | $1,311.08 | | |
| CNTYDD | DEVELOPMENTAL DISABILITIES | 0.0052121823 | $1,451,171 | $1,451,171 | $7.56 | | |
| CNTYVET | VETERANS RELIEF | 0.0052777810 | $1,451,171 | $1,451,171 | $7.66 | | |
| MENTAL | MENTAL HEALTH | 0.0052121823 | $1,451,171 | $1,451,171 | $7.56 | | |
| ROADS | COUNTY ROADS | 0.7415066410 | $1,451,171 | $1,451,171 | $1,076.05 | | |
| ROADSCU | COUNTY ROADS TO CUR EXP | 0.0000000000 | $1,451,171 | $1,451,171 | $0.00 | | |
| HOSP2CASH | HOSP DIST #2 GENERAL | 0.0536075306 | $1,451,171 | $1,451,171 | $77.79 | | |
| SCH50BOND | SCHOOL DIST #50 BOND 2016 | 0.5377451389 | $1,451,171 | $1,451,171 | $780.36 | | |
| SCH50CP | SCHOOL DIST #50 CAP PROJ | 0.4573475088 | $1,451,171 | $1,451,171 | $663.69 | | |
| SCH50MO | SCHOOL DIST #50 EP & O | 0.8262822886 | $1,451,171 | $1,451,171 | $1,199.08 | | |
| CONSERVE | CONSERVATION FUTURES | 0.0275621078 | $1,451,171 | $1,451,171 | $40.00 | | |
| EMS1 | FIRE DIST #1 EMS | 0.4679948282 | $1,451,171 | $1,451,171 | $679.14 | | |
| FD1 | FIRE DIST #1 GENERAL | 1.2171942929 | $1,451,171 | $1,451,171 | $1,766.36 | | |
| LIB1 | LIBRARY DIST #1 GENERAL | 0.2868827388 | $1,451,171 | $1,451,171 | $416.32 | | |
| PORTPT | PORT OF PT GENERAL | 0.1134941229 | $1,451,171 | $1,451,171 | $164.70 | | |
| PORTPTIDD | PORT OF PT IDD 2019 | 0.2577346692 | $1,451,171 | $1,451,171 | $374.02 | | |
| PUD1 | PUD #1 GENERAL | 0.0597888892 | $1,451,171 | $1,451,171 | $86.76 | | |
| STATE | STATE SCHOOL PART 1 | 1.4940692947 | $1,451,171 | $1,451,171 | $2,168.15 | | |
| STATE2 | STATE SCHOOL PART 2 | 0.8050170049 | $1,451,171 | $1,451,171 | $1,168.22 | | |
| | Total Tax Rate: | 8.2653911500 | | | | | |
| | | | | Taxes w/Current Exemptions: | $11,994.50 | | |
| | | | | Taxes w/o Exemptions: | $11,994.50 | | |
Improvement / Building
| Improvement #1: | Residential Bldg | State Code: | 11 | 1874.0 sqft | Value: | $1,143,171 |
| Bathrooms (#): | 2 (FULL) | Bathrooms (#): | 1 (HALF) | | Bedrooms (#): | 3 | Exterior Wall: | SI/ST | | Fireplace: | SIN 1-GOOD | Floor Construction: | FRAME | | Foundation: | CONPR | Heating/Cooling: | F/A | | Roof Cover: | METAL |   |   |
|
| | Type | Description | Class CD | Sub Class CD | Year Built | Area |
| | MA | Main Area | 6 | 1S | 2005 | 1874.0 |
| | PATIO | House Patio | 6 | * | 2005 | 248.0 |
| | HCPOR | House Concrete Porch | 6 | * | 2005 | 48.0 |
| | HDECK | House Deck | 6 | * | 2005 | 576.0 |
| | HENCL | House Enclosure | 6 | * | 2005 | 84.0 |
| | GATT | House Attached Garage | 6 | 1S | 2005 | 576.0 |
| | BSMTF | House basement finished | 6 | * | 2005 | 1792.0 |
| | ASPHD | Asphalt Drive | 6 | * | 2005 | 800.0 |
| | CONCD | Concrete Drive | 6 | * | 2005 | 2000.0 |
| | HRPO | House Roof Patio | 6 | * | 2005 | 548.0 |
Sketch
Property Image
Land
| 1 | 5520-1135L | | 0.0000 | 0.00 | 0.00 | 0.00 | 1.00 | $308,000 | $0 |
Roll Value History
| 2026 | N/A | N/A | N/A | N/A | N/A |
| 2025 | $1,143,171 | $308,000 | $0 | $1,451,171 | $1,451,171 |
| 2024 | $1,143,171 | $308,000 | $0 | $1,451,171 | $1,451,171 |
| 2023 | $688,551 | $288,750 | $0 | $977,301 | $977,301 |
| 2022 | $657,253 | $270,000 | $0 | $927,253 | $927,253 |
Deed and Sales History
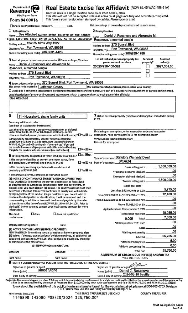
| 1 | 08/14/2024 | SWD | Statutory Warranty Deed | JANICE STONE TRUSTEE | DANIEL J & ALEXANDRA M ROSANOVA | | | $1,500,000.00 | 143080 | |
| 2 | 12/03/2002 | SWD | Statutory Warranty Deed | GREEN, B W | STONE, JANICE TRUSTEE OF JANIC | 0 | 0 | $168,000.00 | 96116 | 0 |
| 3 | 12/14/1995 | REC | Real Estate Contract | MOSER, MORENO | GREEN, B W/JOANN | 0 | 0 | $100,000.00 | 78611 | 0 |
Payout Agreement
| No payout information available.. |