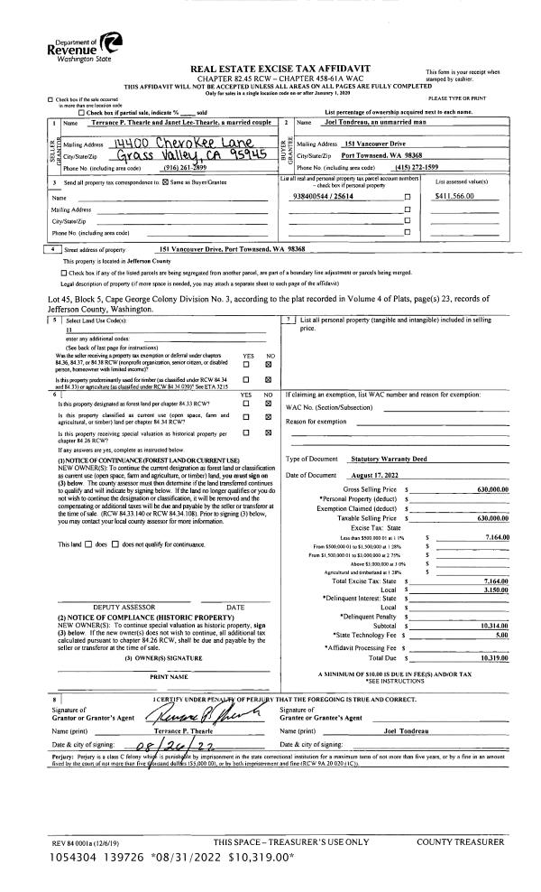
Property
Account |
| Property ID: | 25614 | Abbreviated Legal Description: | CAPE GEORGE COLONY DIV 3 BLK 5 LOT 45 |
| Parcel # / Geo ID: | 938400544 | Agent Code: | |
| Type: | Real | | |
| Tax Area: | 0111 - 1-50F1E1H2L1 | Land Use Code | 11 |
| Open Space: | N | DFL | N |
| Historic Property: | N | Remodel Property: | N |
| Multi-Family Redevelopment: | N | | |
| Township: | 30N | Section: | 12 |
| Range: | 2W |
Location |
| Address: | 151 VANCOUVER DR PORT TOWNSEND, WA 98368 | Mapsco: | 009/045 |
| Neighborhood: | CAPE GEORGE COLONY (ALL), CRESTHAVEN & DIV 6 | Map ID: | |
| Neighborhood CD: | 5520 |
Owner |
| Name: | JOEL TONDREAU | Owner ID: | 107577 |
| Mailing Address: | 151 VANCOUVER DR PORT TOWNSEND, WA 98368-9444 | % Ownership: | 100.0000000000% |
| | | Exemptions: | |
Pay Tax Due
Select the appropriate checkbox next to the year to be paid. Multiple years may be selected.
*Convenience Fee not included
Taxes and Assessment Details
Property Tax Information as of
03/11/2026
Click on "Statement Details" to expand or collapse a tax statement.
* Please enter a valid date ** Please enter a valid date *
Statement Details |
| 2026 | 14994 | STATE - STATE LEVY (SCHOOL) | $714.21 | $714.20 | $0.00 | $0.00 | $0.00 | $1428.41 |
| 2026 | 14994 | COUNTY - COUNTY LEVIES (CE, DD, VET, MH) | $285.54 | $285.54 | $0.00 | $0.00 | $0.00 | $571.08 |
| 2026 | 14994 | CONSERVE - CONSERVATION FUTURES | $8.56 | $8.56 | $0.00 | $0.00 | $0.00 | $17.12 |
| 2026 | 14994 | COROADS - COUNTY ROADS (ROADS, DIV TO CE) | $230.35 | $230.34 | $0.00 | $0.00 | $0.00 | $460.69 |
| 2026 | 14994 | PORTPT - PORT DISTRICT | $115.33 | $115.31 | $0.00 | $0.00 | $0.00 | $230.64 |
| 2026 | 14994 | PUD1 - PUD #1 | $18.58 | $18.57 | $0.00 | $0.00 | $0.00 | $37.15 |
| 2026 | 14994 | LIB1 - LIBRARY DIST #1 | $89.12 | $89.12 | $0.00 | $0.00 | $0.00 | $178.24 |
| 2026 | 14994 | HD2 - HOSP DIST #2 | $16.66 | $16.65 | $0.00 | $0.00 | $0.00 | $33.31 |
| 2026 | 14994 | SD50 - SCHOOL DIST #50 | $565.81 | $565.80 | $0.00 | $0.00 | $0.00 | $1131.61 |
| 2026 | 14994 | FD1 - FIRE DISTRICT #1 | $378.12 | $378.12 | $0.00 | $0.00 | $0.00 | $756.24 |
| 2026 | 14994 | EMS1 - FIRE DIST #1 EMS | $145.38 | $145.38 | $0.00 | $0.00 | $0.00 | $290.76 |
| 2026 | 14994 | JCCD - JC Conservation District | $2.55 | $2.55 | $0.00 | $0.00 | $0.00 | $5.10 |
| 2026 | 14994 | NWA - Noxious Weed Assessment | $2.98 | $2.97 | $0.00 | $0.00 | $0.00 | $5.95 |
| 2026 | 14994 | OSS - On Site Septic | $23.10 | $23.10 | $0.00 | $0.00 | $0.00 | $46.20 |
| 2026 | 14994 | WAT - Clean Water District | $13.00 | $13.00 | $0.00 | $0.00 | $0.00 | $26.00 |
| 2026 | 14994 | TOTAL: | $2609.29 | $2609.21 | $0.00 | $0.00 | $0.00 | $5218.50 |
|
| 2026 | 14994 | $2609.29 | $2609.21 | $0.00 | $0.00 | $0.00 | $5218.50 |
Statement Details |
| 2025 | 15045 | STATE - STATE LEVY (SCHOOL) | $744.94 | $744.94 | $0.00 | $27.93 | $744.94 | $772.87 |
| 2025 | 15045 | COUNTY - COUNTY LEVIES (CE, DD, VET, MH) | $292.95 | $292.93 | $0.00 | $10.98 | $292.95 | $303.91 |
| 2025 | 15045 | CONSERVE - CONSERVATION FUTURES | $8.79 | $8.78 | $0.00 | $0.33 | $8.79 | $9.11 |
| 2025 | 15045 | COROADS - COUNTY ROADS (ROADS, DIV TO CE) | $234.70 | $234.68 | $0.00 | $8.80 | $234.70 | $243.48 |
| 2025 | 15045 | PORTPT - PORT DISTRICT | $119.54 | $119.53 | $0.00 | $4.49 | $119.54 | $124.02 |
| 2025 | 15045 | PUD1 - PUD #1 | $19.17 | $19.17 | $0.00 | $0.72 | $19.17 | $19.89 |
| 2025 | 15045 | LIB1 - LIBRARY DIST #1 | $90.80 | $90.80 | $0.00 | $3.40 | $90.80 | $94.20 |
| 2025 | 15045 | HD2 - HOSP DIST #2 | $17.09 | $17.09 | $0.00 | $0.64 | $17.09 | $17.73 |
| 2025 | 15045 | SD50 - SCHOOL DIST #50 | $544.43 | $544.42 | $0.00 | $20.42 | $544.43 | $564.84 |
| 2025 | 15045 | FD1 - FIRE DISTRICT #1 | $386.57 | $386.57 | $0.00 | $14.50 | $386.57 | $401.07 |
| 2025 | 15045 | EMS1 - FIRE DIST #1 EMS | $148.69 | $148.68 | $0.00 | $5.58 | $148.69 | $154.26 |
| 2025 | 15045 | JCCD - JC Conservation District | $2.55 | $2.55 | $0.00 | $0.10 | $2.55 | $2.65 |
| 2025 | 15045 | NWA - Noxious Weed Assessment | $2.15 | $2.15 | $0.00 | $0.08 | $2.15 | $2.23 |
| 2025 | 15045 | OSS - On Site Septic | $21.50 | $21.50 | $0.00 | $0.81 | $21.50 | $22.31 |
| 2025 | 15045 | WAT - Clean Water District | $13.00 | $13.00 | $0.00 | $0.49 | $13.00 | $13.49 |
| 2025 | 15045 | TOTAL: | $2646.87 | $2646.79 | $0.00 | $99.27 | $2646.87 | $2746.06 |
|
| 2025 | 15045 | $2646.87 | $2646.79 | $0.00 | $99.27 | $2646.87 | $2746.06 |
Statement Details |
| 2024 | 15076 | STATE - STATE LEVY (SCHOOL) | $693.24 | $693.24 | $0.00 | $0.00 | $1386.48 | $0.00 |
| 2024 | 15076 | COUNTY - COUNTY LEVIES (CE, DD, VET, MH) | $296.66 | $296.63 | $0.00 | $0.00 | $593.29 | $0.00 |
| 2024 | 15076 | CONSERVE - CONSERVATION FUTURES | $8.90 | $8.89 | $0.00 | $0.00 | $17.79 | $0.00 |
| 2024 | 15076 | COROADS - COUNTY ROADS (ROADS, DIV TO CE) | $238.71 | $238.69 | $0.00 | $0.00 | $477.40 | $0.00 |
| 2024 | 15076 | PORTPT - PORT DISTRICT | $122.53 | $122.53 | $0.00 | $0.00 | $245.06 | $0.00 |
| 2024 | 15076 | PUD1 - PUD #1 | $19.49 | $19.48 | $0.00 | $0.00 | $38.97 | $0.00 |
| 2024 | 15076 | LIB1 - LIBRARY DIST #1 | $92.35 | $92.35 | $0.00 | $0.00 | $184.70 | $0.00 |
| 2024 | 15076 | HD2 - HOSP DIST #2 | $17.31 | $17.31 | $0.00 | $0.00 | $34.62 | $0.00 |
| 2024 | 15076 | SD50 - SCHOOL DIST #50 | $560.87 | $560.86 | $0.00 | $0.00 | $1121.73 | $0.00 |
| 2024 | 15076 | FD1 - FIRE DISTRICT #1 | $392.24 | $392.23 | $0.00 | $0.00 | $784.47 | $0.00 |
| 2024 | 15076 | EMS1 - FIRE DIST #1 EMS | $149.82 | $149.82 | $0.00 | $0.00 | $299.64 | $0.00 |
| 2024 | 15076 | JCCD - JC Conservation District | $2.55 | $2.55 | $0.00 | $0.00 | $5.10 | $0.00 |
| 2024 | 15076 | NWA - Noxious Weed Assessment | $2.15 | $2.15 | $0.00 | $0.00 | $4.30 | $0.00 |
| 2024 | 15076 | OSS - On Site Septic | $21.00 | $21.00 | $0.00 | $0.00 | $42.00 | $0.00 |
| 2024 | 15076 | WAT - Clean Water District | $12.50 | $12.50 | $0.00 | $0.00 | $25.00 | $0.00 |
| 2024 | 15076 | TOTAL: | $2630.32 | $2630.23 | $0.00 | $0.00 | $5260.55 | $0.00 |
|
| 2024 | 15076 | $2630.32 | $2630.23 | $0.00 | $0.00 | $5260.55 | $0.00 |
Statement Details |
| 2023 | 15100 | STATE - STATE LEVY (SCHOOL) | $667.23 | $667.21 | $0.00 | $0.00 | $1334.44 | $0.00 |
| 2023 | 15100 | COUNTY - COUNTY LEVIES (CE, DD, VET, MH) | $291.18 | $291.14 | $0.00 | $0.00 | $582.32 | $0.00 |
| 2023 | 15100 | CONSERVE - CONSERVATION FUTURES | $8.73 | $8.73 | $0.00 | $0.00 | $17.46 | $0.00 |
| 2023 | 15100 | COROADS - COUNTY ROADS (ROADS, DIV TO CE) | $235.57 | $235.56 | $0.00 | $0.00 | $471.13 | $0.00 |
| 2023 | 15100 | PORTPT - PORT DISTRICT | $122.65 | $122.65 | $0.00 | $0.00 | $245.30 | $0.00 |
| 2023 | 15100 | PUD1 - PUD #1 | $19.30 | $19.30 | $0.00 | $0.00 | $38.60 | $0.00 |
| 2023 | 15100 | LIB1 - LIBRARY DIST #1 | $91.14 | $91.14 | $0.00 | $0.00 | $182.28 | $0.00 |
| 2023 | 15100 | HD2 - HOSP DIST #2 | $16.99 | $16.99 | $0.00 | $0.00 | $33.98 | $0.00 |
| 2023 | 15100 | SD50 - SCHOOL DIST #50 | $529.46 | $529.44 | $0.00 | $0.00 | $1058.90 | $0.00 |
| 2023 | 15100 | FD1 - FIRE DISTRICT #1 | $239.85 | $239.85 | $0.00 | $0.00 | $479.70 | $0.00 |
| 2023 | 15100 | EMS1 - FIRE DIST #1 EMS | $102.03 | $102.03 | $0.00 | $0.00 | $204.06 | $0.00 |
| 2023 | 15100 | JCCD - JC Conservation District | $2.55 | $2.55 | $0.00 | $0.00 | $5.10 | $0.00 |
| 2023 | 15100 | NWA - Noxious Weed Assessment | $2.15 | $2.15 | $0.00 | $0.00 | $4.30 | $0.00 |
| 2023 | 15100 | OSS - On Site Septic | $20.50 | $20.50 | $0.00 | $0.00 | $41.00 | $0.00 |
| 2023 | 15100 | WAT - Clean Water District | $12.00 | $12.00 | $0.00 | $0.00 | $24.00 | $0.00 |
| 2023 | 15100 | TOTAL: | $2361.33 | $2361.24 | $0.00 | $0.00 | $4722.57 | $0.00 |
|
| 2023 | 15100 | $2361.33 | $2361.24 | $0.00 | $0.00 | $4722.57 | $0.00 |
Values
| (+) Improvement Homesite Value: | + | $0 | |
| (+) Improvement Non-Homesite Value: | + | $522,294 | |
| (+) Land Homesite Value: | + | $0 | |
| (+) Land Non-Homesite Value: | + | $99,000 | |
| (+) Curr Use (HS): | + | $0 | $0 |
| (+) Curr Use (NHS): | + | $0 | $0 |
| | | -------------------------- | |
| (=) Market Value: | = | $621,294 | |
| (–) Productivity Loss: | – | $0 | |
| | | -------------------------- | |
| (=) Subtotal: | = | $621,294 | |
| (+) Senior Appraised Value: | + | $0 | |
| (+) Non-Senior Appraised Value: | + | $621,294 | |
| | | -------------------------- | |
| (=) Total Appraised Value: | = | $621,294 | |
| (–) Senior Exemption Loss: | – | $0 | |
| (–) Exemption Loss: | – | $0 | |
| | | -------------------------- | |
| (=) Taxable Value: | = | $621,294 | |
Taxing Jurisdiction
| Owner: | JOEL TONDREAU | | |
| % Ownership: | 100.0000000000% | | |
| Total Value: | $621,294 | | |
| Tax Area: | 0111 - 1-50F1E1H2L1 |
| CE | COUNTY CURRENT EXPENSE | 0.9034619479 | $621,294 | $621,294 | $561.32 | | |
| CNTYDD | DEVELOPMENTAL DISABILITIES | 0.0052121823 | $621,294 | $621,294 | $3.24 | | |
| CNTYVET | VETERANS RELIEF | 0.0052777810 | $621,294 | $621,294 | $3.28 | | |
| MENTAL | MENTAL HEALTH | 0.0052121823 | $621,294 | $621,294 | $3.24 | | |
| ROADS | COUNTY ROADS | 0.7415066410 | $621,294 | $621,294 | $460.69 | | |
| ROADSCU | COUNTY ROADS TO CUR EXP | 0.0000000000 | $621,294 | $621,294 | $0.00 | | |
| HOSP2CASH | HOSP DIST #2 GENERAL | 0.0536075306 | $621,294 | $621,294 | $33.31 | | |
| SCH50BOND | SCHOOL DIST #50 BOND 2016 | 0.5377451389 | $621,294 | $621,294 | $334.10 | | |
| SCH50CP | SCHOOL DIST #50 CAP PROJ | 0.4573475088 | $621,294 | $621,294 | $284.15 | | |
| SCH50MO | SCHOOL DIST #50 EP & O | 0.8262822886 | $621,294 | $621,294 | $513.36 | | |
| CONSERVE | CONSERVATION FUTURES | 0.0275621078 | $621,294 | $621,294 | $17.12 | | |
| EMS1 | FIRE DIST #1 EMS | 0.4679948282 | $621,294 | $621,294 | $290.76 | | |
| FD1 | FIRE DIST #1 GENERAL | 1.2171942929 | $621,294 | $621,294 | $756.24 | | |
| LIB1 | LIBRARY DIST #1 GENERAL | 0.2868827388 | $621,294 | $621,294 | $178.24 | | |
| PORTPT | PORT OF PT GENERAL | 0.1134941229 | $621,294 | $621,294 | $70.51 | | |
| PORTPTIDD | PORT OF PT IDD 2019 | 0.2577346692 | $621,294 | $621,294 | $160.13 | | |
| PUD1 | PUD #1 GENERAL | 0.0597888892 | $621,294 | $621,294 | $37.15 | | |
| STATE | STATE SCHOOL PART 1 | 1.4940692947 | $621,294 | $621,294 | $928.26 | | |
| STATE2 | STATE SCHOOL PART 2 | 0.8050170049 | $621,294 | $621,294 | $500.15 | | |
| | Total Tax Rate: | 8.2653911500 | | | | | |
| | | | | Taxes w/Current Exemptions: | $5,135.25 | | |
| | | | | Taxes w/o Exemptions: | $5,135.25 | | |
Improvement / Building
| Improvement #1: | Residential Bldg | State Code: | 11 | 1536.0 sqft | Value: | $522,294 |
| Bathrooms (#): | 2 (FULL) | Bedrooms (#): | 2 | | Exterior Wall: | SI/ST | Fireplace: | SIN 1-GOOD | | Fireplace: | WD ST-GOOD | Floor Construction: | FRAME | | Foundation: | CONPR | Heating/Cooling: | F/A | | Inside Verify: | NO | Roof Cover: | COMP |
|
| | Type | Description | Class CD | Sub Class CD | Year Built | Area |
| | MA | Main Area | 4 | 1S | 1990 | 1536.0 |
| | HWPOR | House Wood Porch | 4 | * | 1990 | 360.0 |
| | HDECK | House Deck | 4 | * | 1990 | 380.0 |
| | GBSMT | Basement Garage | 4 | * | 1990 | 720.0 |
| | SHED | Shed (Table Not Dep) | 4 | * | 1990 | 119.0 |
| | BSMTF | House basement finished | 4 | * | 1990 | 780.0 |
Sketch
Property Image
Land
| 1 | 5520-1175L | | 0.0000 | 0.00 | 0.00 | 0.00 | 1.00 | $99,000 | $0 |
Roll Value History
| 2026 | N/A | N/A | N/A | N/A | N/A |
| 2025 | $522,294 | $99,000 | $0 | $621,294 | $621,294 |
| 2024 | $522,294 | $99,000 | $0 | $621,294 | $621,294 |
| 2023 | $510,024 | $89,250 | $0 | $599,274 | $599,274 |
| 2022 | $486,841 | $80,000 | $0 | $566,841 | $566,841 |
Deed and Sales History
| 1 | 08/17/2022 | SWD | Statutory Warranty Deed | TERRANCE P & JANET THEARLE | JOEL TONDREAU | | | $630,000.00 | 139726 | |
| 2 | 11/13/2017 | SWD | Statutory Warranty Deed | WILLIAM A BROWN | TERRANCE P & JANET THEARLE | | | $318,000.00 | 129077 | |
| 3 | 10/27/2016 | QCD | Quit Claim Deed | | | | | | 126565 | |
| 4 | 07/05/2012 | SWD | Statutory Warranty Deed | NELSON, RONALD/PATRICIA | BROWN, WILLIAM/STARLA | 0 | 0 | $250,000.00 | 117772 | 0 |
| 5 | 04/02/2004 | SWD | Statutory Warranty Deed | MADDEN, ROBERT M/DAWN A | NELSON, RONALD N/PATRICIA G | 0 | 0 | $197,500.00 | 99931 | 0 |
| 6 | 02/23/2001 | SWD | Statutory Warranty Deed | HALL, KENNETH E/ARCELLA K | MADDEN, ROBERT M/DAWN A | 0 | 0 | $162,000.00 | 91663 | 0 |
| 7 | 08/10/1993 | SWD | Statutory Warranty Deed | ANTHONY, JOHN S | HALL, KENNETH E/ARCELLA KAY | 0 | 0 | $123,000.00 | 71903 | 0 |
Payout Agreement
| No payout information available.. |