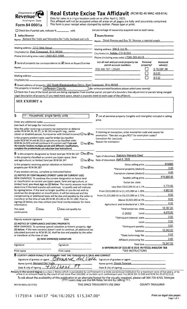
Property
Account |
| Property ID: | 25649 | Abbreviated Legal Description: | CAPE GEORGE COLONY DIV 3 BLK 7 LOT 7 |
| Parcel # / Geo ID: | 938400707 | Agent Code: | |
| Type: | Real | | |
| Tax Area: | 0111 - 1-50F1E1H2L1 | Land Use Code | 11 |
| Open Space: | N | DFL | N |
| Historic Property: | N | Remodel Property: | N |
| Multi-Family Redevelopment: | N | | |
| Township: | 30N | Section: | 12 |
| Range: | 2W |
Location |
| Address: | 102 N RHODODENDRON DR PORT TOWNSEND, WA 98368 | Mapsco: | 010/022 |
| Neighborhood: | CAPE GEORGE COLONY (ALL), CRESTHAVEN & DIV 6 | Map ID: | |
| Neighborhood CD: | 5520 |
Owner |
| Name: | DINAH & ROY W NEWTON | Owner ID: | 112434 |
| Mailing Address: | 506 E 3RD ST SALIDA, CO 81201-2818 | % Ownership: | 100.0000000000% |
| | | Exemptions: | |
Pay Tax Due
Select the appropriate checkbox next to the year to be paid. Multiple years may be selected.
*Convenience Fee not included
Taxes and Assessment Details
Property Tax Information as of
03/10/2026
Click on "Statement Details" to expand or collapse a tax statement.
* Please enter a valid date ** Please enter a valid date *
Statement Details |
| 2026 | 15029 | STATE - STATE LEVY (SCHOOL) | $866.64 | $866.63 | $0.00 | $0.00 | $0.00 | $1733.27 |
| 2026 | 15029 | COUNTY - COUNTY LEVIES (CE, DD, VET, MH) | $346.49 | $346.46 | $0.00 | $0.00 | $0.00 | $692.95 |
| 2026 | 15029 | CONSERVE - CONSERVATION FUTURES | $10.39 | $10.39 | $0.00 | $0.00 | $0.00 | $20.78 |
| 2026 | 15029 | COROADS - COUNTY ROADS (ROADS, DIV TO CE) | $279.51 | $279.51 | $0.00 | $0.00 | $0.00 | $559.02 |
| 2026 | 15029 | PORTPT - PORT DISTRICT | $139.93 | $139.93 | $0.00 | $0.00 | $0.00 | $279.86 |
| 2026 | 15029 | PUD1 - PUD #1 | $22.54 | $22.53 | $0.00 | $0.00 | $0.00 | $45.07 |
| 2026 | 15029 | LIB1 - LIBRARY DIST #1 | $108.14 | $108.14 | $0.00 | $0.00 | $0.00 | $216.28 |
| 2026 | 15029 | HD2 - HOSP DIST #2 | $20.21 | $20.20 | $0.00 | $0.00 | $0.00 | $40.41 |
| 2026 | 15029 | SD50 - SCHOOL DIST #50 | $686.57 | $686.55 | $0.00 | $0.00 | $0.00 | $1373.12 |
| 2026 | 15029 | FD1 - FIRE DISTRICT #1 | $458.82 | $458.81 | $0.00 | $0.00 | $0.00 | $917.63 |
| 2026 | 15029 | EMS1 - FIRE DIST #1 EMS | $176.41 | $176.41 | $0.00 | $0.00 | $0.00 | $352.82 |
| 2026 | 15029 | JCCD - JC Conservation District | $2.55 | $2.55 | $0.00 | $0.00 | $0.00 | $5.10 |
| 2026 | 15029 | NWA - Noxious Weed Assessment | $2.98 | $2.97 | $0.00 | $0.00 | $0.00 | $5.95 |
| 2026 | 15029 | OSS - On Site Septic | $23.10 | $23.10 | $0.00 | $0.00 | $0.00 | $46.20 |
| 2026 | 15029 | WAT - Clean Water District | $13.00 | $13.00 | $0.00 | $0.00 | $0.00 | $26.00 |
| 2026 | 15029 | TOTAL: | $3157.28 | $3157.18 | $0.00 | $0.00 | $0.00 | $6314.46 |
|
| 2026 | 15029 | $3157.28 | $3157.18 | $0.00 | $0.00 | $0.00 | $6314.46 |
Statement Details |
| 2025 | 15080 | STATE - STATE LEVY (SCHOOL) | $903.93 | $903.92 | $0.00 | $0.00 | $1807.85 | $0.00 |
| 2025 | 15080 | COUNTY - COUNTY LEVIES (CE, DD, VET, MH) | $355.47 | $355.45 | $0.00 | $0.00 | $710.92 | $0.00 |
| 2025 | 15080 | CONSERVE - CONSERVATION FUTURES | $10.66 | $10.66 | $0.00 | $0.00 | $21.32 | $0.00 |
| 2025 | 15080 | COROADS - COUNTY ROADS (ROADS, DIV TO CE) | $284.79 | $284.78 | $0.00 | $0.00 | $569.57 | $0.00 |
| 2025 | 15080 | PORTPT - PORT DISTRICT | $145.05 | $145.05 | $0.00 | $0.00 | $290.10 | $0.00 |
| 2025 | 15080 | PUD1 - PUD #1 | $23.26 | $23.26 | $0.00 | $0.00 | $46.52 | $0.00 |
| 2025 | 15080 | LIB1 - LIBRARY DIST #1 | $110.18 | $110.18 | $0.00 | $0.00 | $220.36 | $0.00 |
| 2025 | 15080 | HD2 - HOSP DIST #2 | $20.74 | $20.74 | $0.00 | $0.00 | $41.48 | $0.00 |
| 2025 | 15080 | SD50 - SCHOOL DIST #50 | $660.63 | $660.60 | $0.00 | $0.00 | $1321.23 | $0.00 |
| 2025 | 15080 | FD1 - FIRE DISTRICT #1 | $469.07 | $469.07 | $0.00 | $0.00 | $938.14 | $0.00 |
| 2025 | 15080 | EMS1 - FIRE DIST #1 EMS | $180.42 | $180.42 | $0.00 | $0.00 | $360.84 | $0.00 |
| 2025 | 15080 | JCCD - JC Conservation District | $2.55 | $2.55 | $0.00 | $0.00 | $5.10 | $0.00 |
| 2025 | 15080 | NWA - Noxious Weed Assessment | $2.15 | $2.15 | $0.00 | $0.00 | $4.30 | $0.00 |
| 2025 | 15080 | OSS - On Site Septic | $21.50 | $21.50 | $0.00 | $0.00 | $43.00 | $0.00 |
| 2025 | 15080 | WAT - Clean Water District | $13.00 | $13.00 | $0.00 | $0.00 | $26.00 | $0.00 |
| 2025 | 15080 | TOTAL: | $3203.40 | $3203.33 | $0.00 | $0.00 | $6406.73 | $0.00 |
|
| 2025 | 15080 | $3203.40 | $3203.33 | $0.00 | $0.00 | $6406.73 | $0.00 |
Statement Details |
| 2024 | 15111 | STATE - STATE LEVY (SCHOOL) | $870.17 | $870.16 | $0.00 | $0.00 | $1740.33 | $0.00 |
| 2024 | 15111 | COUNTY - COUNTY LEVIES (CE, DD, VET, MH) | $372.35 | $372.35 | $0.00 | $0.00 | $744.70 | $0.00 |
| 2024 | 15111 | CONSERVE - CONSERVATION FUTURES | $11.17 | $11.16 | $0.00 | $0.00 | $22.33 | $0.00 |
| 2024 | 15111 | COROADS - COUNTY ROADS (ROADS, DIV TO CE) | $299.63 | $299.61 | $0.00 | $0.00 | $599.24 | $0.00 |
| 2024 | 15111 | PORTPT - PORT DISTRICT | $153.80 | $153.79 | $0.00 | $0.00 | $307.59 | $0.00 |
| 2024 | 15111 | PUD1 - PUD #1 | $24.46 | $24.45 | $0.00 | $0.00 | $48.91 | $0.00 |
| 2024 | 15111 | LIB1 - LIBRARY DIST #1 | $115.92 | $115.92 | $0.00 | $0.00 | $231.84 | $0.00 |
| 2024 | 15111 | HD2 - HOSP DIST #2 | $21.73 | $21.72 | $0.00 | $0.00 | $43.45 | $0.00 |
| 2024 | 15111 | SD50 - SCHOOL DIST #50 | $704.01 | $703.99 | $0.00 | $0.00 | $1408.00 | $0.00 |
| 2024 | 15111 | FD1 - FIRE DISTRICT #1 | $492.34 | $492.33 | $0.00 | $0.00 | $984.67 | $0.00 |
| 2024 | 15111 | EMS1 - FIRE DIST #1 EMS | $188.06 | $188.05 | $0.00 | $0.00 | $376.11 | $0.00 |
| 2024 | 15111 | JCCD - JC Conservation District | $2.55 | $2.55 | $0.00 | $0.00 | $5.10 | $0.00 |
| 2024 | 15111 | NWA - Noxious Weed Assessment | $2.15 | $2.15 | $0.00 | $0.00 | $4.30 | $0.00 |
| 2024 | 15111 | OSS - On Site Septic | $21.00 | $21.00 | $0.00 | $0.00 | $42.00 | $0.00 |
| 2024 | 15111 | WAT - Clean Water District | $12.50 | $12.50 | $0.00 | $0.00 | $25.00 | $0.00 |
| 2024 | 15111 | TOTAL: | $3291.84 | $3291.73 | $0.00 | $0.00 | $6583.57 | $0.00 |
|
| 2024 | 15111 | $3291.84 | $3291.73 | $0.00 | $0.00 | $6583.57 | $0.00 |
Statement Details |
| 2023 | 15135 | STATE - STATE LEVY (SCHOOL) | $838.74 | $838.73 | $0.00 | $0.00 | $1677.47 | $0.00 |
| 2023 | 15135 | COUNTY - COUNTY LEVIES (CE, DD, VET, MH) | $366.01 | $366.00 | $0.00 | $0.00 | $732.01 | $0.00 |
| 2023 | 15135 | CONSERVE - CONSERVATION FUTURES | $10.98 | $10.97 | $0.00 | $0.00 | $21.95 | $0.00 |
| 2023 | 15135 | COROADS - COUNTY ROADS (ROADS, DIV TO CE) | $296.13 | $296.11 | $0.00 | $0.00 | $592.24 | $0.00 |
| 2023 | 15135 | PORTPT - PORT DISTRICT | $154.18 | $154.17 | $0.00 | $0.00 | $308.35 | $0.00 |
| 2023 | 15135 | PUD1 - PUD #1 | $24.26 | $24.26 | $0.00 | $0.00 | $48.52 | $0.00 |
| 2023 | 15135 | LIB1 - LIBRARY DIST #1 | $114.57 | $114.56 | $0.00 | $0.00 | $229.13 | $0.00 |
| 2023 | 15135 | HD2 - HOSP DIST #2 | $21.36 | $21.36 | $0.00 | $0.00 | $42.72 | $0.00 |
| 2023 | 15135 | SD50 - SCHOOL DIST #50 | $665.56 | $665.55 | $0.00 | $0.00 | $1331.11 | $0.00 |
| 2023 | 15135 | FD1 - FIRE DISTRICT #1 | $301.51 | $301.51 | $0.00 | $0.00 | $603.02 | $0.00 |
| 2023 | 15135 | EMS1 - FIRE DIST #1 EMS | $128.26 | $128.25 | $0.00 | $0.00 | $256.51 | $0.00 |
| 2023 | 15135 | JCCD - JC Conservation District | $2.55 | $2.55 | $0.00 | $0.00 | $5.10 | $0.00 |
| 2023 | 15135 | NWA - Noxious Weed Assessment | $2.15 | $2.15 | $0.00 | $0.00 | $4.30 | $0.00 |
| 2023 | 15135 | OSS - On Site Septic | $20.50 | $20.50 | $0.00 | $0.00 | $41.00 | $0.00 |
| 2023 | 15135 | WAT - Clean Water District | $12.00 | $12.00 | $0.00 | $0.00 | $24.00 | $0.00 |
| 2023 | 15135 | TOTAL: | $2958.76 | $2958.67 | $0.00 | $0.00 | $5917.43 | $0.00 |
|
| 2023 | 15135 | $2958.76 | $2958.67 | $0.00 | $0.00 | $5917.43 | $0.00 |
Values
| (+) Improvement Homesite Value: | + | $0 | |
| (+) Improvement Non-Homesite Value: | + | $522,891 | |
| (+) Land Homesite Value: | + | $0 | |
| (+) Land Non-Homesite Value: | + | $231,000 | |
| (+) Curr Use (HS): | + | $0 | $0 |
| (+) Curr Use (NHS): | + | $0 | $0 |
| | | -------------------------- | |
| (=) Market Value: | = | $753,891 | |
| (–) Productivity Loss: | – | $0 | |
| | | -------------------------- | |
| (=) Subtotal: | = | $753,891 | |
| (+) Senior Appraised Value: | + | $0 | |
| (+) Non-Senior Appraised Value: | + | $753,891 | |
| | | -------------------------- | |
| (=) Total Appraised Value: | = | $753,891 | |
| (–) Senior Exemption Loss: | – | $0 | |
| (–) Exemption Loss: | – | $0 | |
| | | -------------------------- | |
| (=) Taxable Value: | = | $753,891 | |
Taxing Jurisdiction
| Owner: | DINAH & ROY W NEWTON | | |
| % Ownership: | 100.0000000000% | | |
| Total Value: | $753,891 | | |
| Tax Area: | 0111 - 1-50F1E1H2L1 |
| CE | COUNTY CURRENT EXPENSE | 0.9034619479 | $753,891 | $753,891 | $681.11 | | |
| CNTYDD | DEVELOPMENTAL DISABILITIES | 0.0052121823 | $753,891 | $753,891 | $3.93 | | |
| CNTYVET | VETERANS RELIEF | 0.0052777810 | $753,891 | $753,891 | $3.98 | | |
| MENTAL | MENTAL HEALTH | 0.0052121823 | $753,891 | $753,891 | $3.93 | | |
| ROADS | COUNTY ROADS | 0.7415066410 | $753,891 | $753,891 | $559.02 | | |
| ROADSCU | COUNTY ROADS TO CUR EXP | 0.0000000000 | $753,891 | $753,891 | $0.00 | | |
| HOSP2CASH | HOSP DIST #2 GENERAL | 0.0536075306 | $753,891 | $753,891 | $40.41 | | |
| SCH50BOND | SCHOOL DIST #50 BOND 2016 | 0.5377451389 | $753,891 | $753,891 | $405.40 | | |
| SCH50CP | SCHOOL DIST #50 CAP PROJ | 0.4573475088 | $753,891 | $753,891 | $344.79 | | |
| SCH50MO | SCHOOL DIST #50 EP & O | 0.8262822886 | $753,891 | $753,891 | $622.93 | | |
| CONSERVE | CONSERVATION FUTURES | 0.0275621078 | $753,891 | $753,891 | $20.78 | | |
| EMS1 | FIRE DIST #1 EMS | 0.4679948282 | $753,891 | $753,891 | $352.82 | | |
| FD1 | FIRE DIST #1 GENERAL | 1.2171942929 | $753,891 | $753,891 | $917.63 | | |
| LIB1 | LIBRARY DIST #1 GENERAL | 0.2868827388 | $753,891 | $753,891 | $216.28 | | |
| PORTPT | PORT OF PT GENERAL | 0.1134941229 | $753,891 | $753,891 | $85.56 | | |
| PORTPTIDD | PORT OF PT IDD 2019 | 0.2577346692 | $753,891 | $753,891 | $194.30 | | |
| PUD1 | PUD #1 GENERAL | 0.0597888892 | $753,891 | $753,891 | $45.07 | | |
| STATE | STATE SCHOOL PART 1 | 1.4940692947 | $753,891 | $753,891 | $1,126.37 | | |
| STATE2 | STATE SCHOOL PART 2 | 0.8050170049 | $753,891 | $753,891 | $606.90 | | |
| | Total Tax Rate: | 8.2653911500 | | | | | |
| | | | | Taxes w/Current Exemptions: | $6,231.21 | | |
| | | | | Taxes w/o Exemptions: | $6,231.21 | | |
Improvement / Building
| Improvement #1: | Residential Bldg | State Code: | 11 | 2088.0 sqft | Value: | $522,891 |
| Bathrooms (#): | 2 (FULL) | Bedrooms (#): | 2 | | Exterior Wall: | SI/ST | Floor Construction: | FRAME | | Foundation: | CONPR | Heating/Cooling: | ELBB | | Roof Cover: | COMP |   |   |
|
| | Type | Description | Class CD | Sub Class CD | Year Built | Area |
| | MA | Main Area | 4+ | 1S | 2000 | 2088.0 |
| | HWPOR | House Wood Porch | 4 | * | 2000 | 66.0 |
| | HCPOR | House Concrete Porch | 4 | * | 2000 | 96.0 |
| | HDECK | House Deck | 4 | * | 2000 | 160.0 |
| | GATT | House Attached Garage | 4 | 1S | 2000 | 516.0 |
| | CONCD | Concrete Drive | 4 | * | 2000 | 1000.0 |
Sketch
Property Image
Land
| 1 | 5520-1145L | | 0.0000 | 0.00 | 0.00 | 0.00 | 1.00 | $231,000 | $0 |
Roll Value History
| 2026 | N/A | N/A | N/A | N/A | N/A |
| 2025 | $522,891 | $231,000 | $0 | $753,891 | $753,891 |
| 2024 | $522,891 | $231,000 | $0 | $753,891 | $753,891 |
| 2023 | $536,966 | $215,250 | $0 | $752,216 | $752,216 |
| 2022 | $512,559 | $200,000 | $0 | $712,559 | $712,559 |
Deed and Sales History
| 1 | 04/08/2025 | SWD | Statutory Warranty Deed | BERNARD DEL VALLE | DINAH & ROY W NEWTON | | | $915,000.00 | 144137 | |
| 2 | 08/25/2003 | SWD | Statutory Warranty Deed | FRIEDMAN, MARGARET H | DEL VALLE, BERNARD/MERCEDITA | 0 | 0 | $330,000.00 | 98158 | 0 |
| 3 | 01/16/2001 | SWD | Statutory Warranty Deed | MILLENNIUM ONE HOMES, INC | FRIEDMAN, MARGARET H | 0 | 0 | $308,000.00 | 91447 | 0 |
| 4 | 05/23/2000 | SWD | Statutory Warranty Deed | ABERCROMBIE, JERRY T | MILLENNIUM ONE HOMES INC | 0 | 0 | $69,500.00 | 89670 | 0 |
| 5 | 04/10/1995 | SWD | Statutory Warranty Deed | VORVICK, PHILIP T/BONNIE | ABERCROMBIE, JERRY T/BETHEL S | 0 | 0 | $43,000.00 | 76716 | 0 |
Payout Agreement
| No payout information available.. |