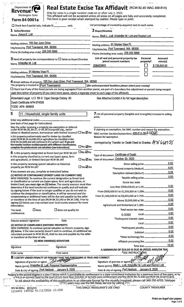
Property
Account |
| Property ID: | 25659 | Abbreviated Legal Description: | CAPE GEORGE COLONY DIV 3 BLK 8 LOT 3 |
| Parcel # / Geo ID: | 938400803 | Agent Code: | |
| Type: | Real | | |
| Tax Area: | 0111 - 1-50F1E1H2L1 | Land Use Code | 11 |
| Open Space: | N | DFL | N |
| Historic Property: | N | Remodel Property: | N |
| Multi-Family Redevelopment: | N | | |
| Township: | 30N | Section: | 12 |
| Range: | 2W |
Location |
| Address: | 195 SAN JUAN DR PORT TOWNSEND, WA 98368 | Mapsco: | 010/032 |
| Neighborhood: | CAPE GEORGE COLONY (ALL), CRESTHAVEN & DIV 6 | Map ID: | |
| Neighborhood CD: | 5520 |
Owner |
| Name: | KRISTOFFER M & RACHEL LOTT | Owner ID: | 113923 |
| Mailing Address: | MARK L LOTT 91 MARINE VIEW PL PORT TOWNSEND, WA 98368-9424 | % Ownership: | 100.0000000000% |
| | | Exemptions: | |
Pay Tax Due
Select the appropriate checkbox next to the year to be paid. Multiple years may be selected.
*Convenience Fee not included
Taxes and Assessment Details
Property Tax Information as of
03/11/2026
Click on "Statement Details" to expand or collapse a tax statement.
* Please enter a valid date ** Please enter a valid date *
Statement Details |
| 2026 | 15039 | STATE - STATE LEVY (SCHOOL) | $835.37 | $835.36 | $0.00 | $0.00 | $0.00 | $1670.73 |
| 2026 | 15039 | COUNTY - COUNTY LEVIES (CE, DD, VET, MH) | $333.99 | $333.97 | $0.00 | $0.00 | $0.00 | $667.96 |
| 2026 | 15039 | CONSERVE - CONSERVATION FUTURES | $10.02 | $10.01 | $0.00 | $0.00 | $0.00 | $20.03 |
| 2026 | 15039 | COROADS - COUNTY ROADS (ROADS, DIV TO CE) | $269.43 | $269.42 | $0.00 | $0.00 | $0.00 | $538.85 |
| 2026 | 15039 | PORTPT - PORT DISTRICT | $134.89 | $134.88 | $0.00 | $0.00 | $0.00 | $269.77 |
| 2026 | 15039 | PUD1 - PUD #1 | $21.73 | $21.72 | $0.00 | $0.00 | $0.00 | $43.45 |
| 2026 | 15039 | LIB1 - LIBRARY DIST #1 | $104.24 | $104.24 | $0.00 | $0.00 | $0.00 | $208.48 |
| 2026 | 15039 | HD2 - HOSP DIST #2 | $19.48 | $19.48 | $0.00 | $0.00 | $0.00 | $38.96 |
| 2026 | 15039 | SD50 - SCHOOL DIST #50 | $661.80 | $661.78 | $0.00 | $0.00 | $0.00 | $1323.58 |
| 2026 | 15039 | FD1 - FIRE DISTRICT #1 | $442.27 | $442.26 | $0.00 | $0.00 | $0.00 | $884.53 |
| 2026 | 15039 | EMS1 - FIRE DIST #1 EMS | $170.05 | $170.04 | $0.00 | $0.00 | $0.00 | $340.09 |
| 2026 | 15039 | JCCD - JC Conservation District | $2.55 | $2.55 | $0.00 | $0.00 | $0.00 | $5.10 |
| 2026 | 15039 | NWA - Noxious Weed Assessment | $2.98 | $2.97 | $0.00 | $0.00 | $0.00 | $5.95 |
| 2026 | 15039 | OSS - On Site Septic | $23.10 | $23.10 | $0.00 | $0.00 | $0.00 | $46.20 |
| 2026 | 15039 | WAT - Clean Water District | $13.00 | $13.00 | $0.00 | $0.00 | $0.00 | $26.00 |
| 2026 | 15039 | TOTAL: | $3044.90 | $3044.78 | $0.00 | $0.00 | $0.00 | $6089.68 |
|
| 2026 | 15039 | $3044.90 | $3044.78 | $0.00 | $0.00 | $0.00 | $6089.68 |
Statement Details |
| 2025 | 15090 | STATE - STATE LEVY (SCHOOL) | $871.32 | $871.31 | $0.00 | $0.00 | $1742.63 | $0.00 |
| 2025 | 15090 | COUNTY - COUNTY LEVIES (CE, DD, VET, MH) | $342.65 | $342.64 | $0.00 | $0.00 | $685.29 | $0.00 |
| 2025 | 15090 | CONSERVE - CONSERVATION FUTURES | $10.28 | $10.27 | $0.00 | $0.00 | $20.55 | $0.00 |
| 2025 | 15090 | COROADS - COUNTY ROADS (ROADS, DIV TO CE) | $274.51 | $274.50 | $0.00 | $0.00 | $549.01 | $0.00 |
| 2025 | 15090 | PORTPT - PORT DISTRICT | $139.82 | $139.81 | $0.00 | $0.00 | $279.63 | $0.00 |
| 2025 | 15090 | PUD1 - PUD #1 | $22.42 | $22.42 | $0.00 | $0.00 | $44.84 | $0.00 |
| 2025 | 15090 | LIB1 - LIBRARY DIST #1 | $106.21 | $106.20 | $0.00 | $0.00 | $212.41 | $0.00 |
| 2025 | 15090 | HD2 - HOSP DIST #2 | $19.99 | $19.99 | $0.00 | $0.00 | $39.98 | $0.00 |
| 2025 | 15090 | SD50 - SCHOOL DIST #50 | $636.80 | $636.77 | $0.00 | $0.00 | $1273.57 | $0.00 |
| 2025 | 15090 | FD1 - FIRE DISTRICT #1 | $452.15 | $452.15 | $0.00 | $0.00 | $904.30 | $0.00 |
| 2025 | 15090 | EMS1 - FIRE DIST #1 EMS | $173.91 | $173.91 | $0.00 | $0.00 | $347.82 | $0.00 |
| 2025 | 15090 | JCCD - JC Conservation District | $2.55 | $2.55 | $0.00 | $0.00 | $5.10 | $0.00 |
| 2025 | 15090 | NWA - Noxious Weed Assessment | $2.15 | $2.15 | $0.00 | $0.00 | $4.30 | $0.00 |
| 2025 | 15090 | OSS - On Site Septic | $21.50 | $21.50 | $0.00 | $0.00 | $43.00 | $0.00 |
| 2025 | 15090 | WAT - Clean Water District | $13.00 | $13.00 | $0.00 | $0.00 | $26.00 | $0.00 |
| 2025 | 15090 | TOTAL: | $3089.26 | $3089.17 | $0.00 | $0.00 | $6178.43 | $0.00 |
|
| 2025 | 15090 | $3089.26 | $3089.17 | $0.00 | $0.00 | $6178.43 | $0.00 |
Statement Details |
| 2024 | 15121 | STATE - STATE LEVY (SCHOOL) | $786.61 | $786.59 | $0.00 | $0.00 | $1573.20 | $0.00 |
| 2024 | 15121 | COUNTY - COUNTY LEVIES (CE, DD, VET, MH) | $336.60 | $336.59 | $0.00 | $0.00 | $673.19 | $0.00 |
| 2024 | 15121 | CONSERVE - CONSERVATION FUTURES | $10.10 | $10.09 | $0.00 | $0.00 | $20.19 | $0.00 |
| 2024 | 15121 | COROADS - COUNTY ROADS (ROADS, DIV TO CE) | $270.85 | $270.84 | $0.00 | $0.00 | $541.69 | $0.00 |
| 2024 | 15121 | PORTPT - PORT DISTRICT | $139.03 | $139.02 | $0.00 | $0.00 | $278.05 | $0.00 |
| 2024 | 15121 | PUD1 - PUD #1 | $22.11 | $22.11 | $0.00 | $0.00 | $44.22 | $0.00 |
| 2024 | 15121 | LIB1 - LIBRARY DIST #1 | $104.79 | $104.79 | $0.00 | $0.00 | $209.58 | $0.00 |
| 2024 | 15121 | HD2 - HOSP DIST #2 | $19.64 | $19.64 | $0.00 | $0.00 | $39.28 | $0.00 |
| 2024 | 15121 | SD50 - SCHOOL DIST #50 | $636.40 | $636.39 | $0.00 | $0.00 | $1272.79 | $0.00 |
| 2024 | 15121 | FD1 - FIRE DISTRICT #1 | $445.06 | $445.05 | $0.00 | $0.00 | $890.11 | $0.00 |
| 2024 | 15121 | EMS1 - FIRE DIST #1 EMS | $170.00 | $169.99 | $0.00 | $0.00 | $339.99 | $0.00 |
| 2024 | 15121 | JCCD - JC Conservation District | $2.55 | $2.55 | $0.00 | $0.00 | $5.10 | $0.00 |
| 2024 | 15121 | NWA - Noxious Weed Assessment | $2.15 | $2.15 | $0.00 | $0.00 | $4.30 | $0.00 |
| 2024 | 15121 | OSS - On Site Septic | $21.00 | $21.00 | $0.00 | $0.00 | $42.00 | $0.00 |
| 2024 | 15121 | WAT - Clean Water District | $12.50 | $12.50 | $0.00 | $0.00 | $25.00 | $0.00 |
| 2024 | 15121 | TOTAL: | $2979.39 | $2979.30 | $0.00 | $0.00 | $5958.69 | $0.00 |
|
| 2024 | 15121 | $2979.39 | $2979.30 | $0.00 | $0.00 | $5958.69 | $0.00 |
Statement Details |
| 2023 | 15145 | STATE - STATE LEVY (SCHOOL) | $672.48 | $672.46 | $0.00 | $0.00 | $1344.94 | $0.00 |
| 2023 | 15145 | COUNTY - COUNTY LEVIES (CE, DD, VET, MH) | $293.46 | $293.42 | $0.00 | $0.00 | $586.88 | $0.00 |
| 2023 | 15145 | CONSERVE - CONSERVATION FUTURES | $8.80 | $8.80 | $0.00 | $0.00 | $17.60 | $0.00 |
| 2023 | 15145 | COROADS - COUNTY ROADS (ROADS, DIV TO CE) | $237.42 | $237.42 | $0.00 | $0.00 | $474.84 | $0.00 |
| 2023 | 15145 | PORTPT - PORT DISTRICT | $123.62 | $123.61 | $0.00 | $0.00 | $247.23 | $0.00 |
| 2023 | 15145 | PUD1 - PUD #1 | $19.45 | $19.45 | $0.00 | $0.00 | $38.90 | $0.00 |
| 2023 | 15145 | LIB1 - LIBRARY DIST #1 | $91.86 | $91.85 | $0.00 | $0.00 | $183.71 | $0.00 |
| 2023 | 15145 | HD2 - HOSP DIST #2 | $17.13 | $17.12 | $0.00 | $0.00 | $34.25 | $0.00 |
| 2023 | 15145 | SD50 - SCHOOL DIST #50 | $533.63 | $533.61 | $0.00 | $0.00 | $1067.24 | $0.00 |
| 2023 | 15145 | FD1 - FIRE DISTRICT #1 | $241.74 | $241.74 | $0.00 | $0.00 | $483.48 | $0.00 |
| 2023 | 15145 | EMS1 - FIRE DIST #1 EMS | $102.83 | $102.83 | $0.00 | $0.00 | $205.66 | $0.00 |
| 2023 | 15145 | JCCD - JC Conservation District | $2.55 | $2.55 | $0.00 | $0.00 | $5.10 | $0.00 |
| 2023 | 15145 | NWA - Noxious Weed Assessment | $2.15 | $2.15 | $0.00 | $0.00 | $4.30 | $0.00 |
| 2023 | 15145 | OSS - On Site Septic | $20.50 | $20.50 | $0.00 | $0.00 | $41.00 | $0.00 |
| 2023 | 15145 | WAT - Clean Water District | $12.00 | $12.00 | $0.00 | $0.00 | $24.00 | $0.00 |
| 2023 | 15145 | TOTAL: | $2379.62 | $2379.51 | $0.00 | $0.00 | $4759.13 | $0.00 |
|
| 2023 | 15145 | $2379.62 | $2379.51 | $0.00 | $0.00 | $4759.13 | $0.00 |
Values
| (+) Improvement Homesite Value: | + | $0 | |
| (+) Improvement Non-Homesite Value: | + | $539,693 | |
| (+) Land Homesite Value: | + | $0 | |
| (+) Land Non-Homesite Value: | + | $187,000 | |
| (+) Curr Use (HS): | + | $0 | $0 |
| (+) Curr Use (NHS): | + | $0 | $0 |
| | | -------------------------- | |
| (=) Market Value: | = | $726,693 | |
| (–) Productivity Loss: | – | $0 | |
| | | -------------------------- | |
| (=) Subtotal: | = | $726,693 | |
| (+) Senior Appraised Value: | + | $0 | |
| (+) Non-Senior Appraised Value: | + | $726,693 | |
| | | -------------------------- | |
| (=) Total Appraised Value: | = | $726,693 | |
| (–) Senior Exemption Loss: | – | $0 | |
| (–) Exemption Loss: | – | $0 | |
| | | -------------------------- | |
| (=) Taxable Value: | = | $726,693 | |
Taxing Jurisdiction
| Owner: | KRISTOFFER M & RACHEL LOTT | | |
| % Ownership: | 100.0000000000% | | |
| Total Value: | $726,693 | | |
| Tax Area: | 0111 - 1-50F1E1H2L1 |
| CE | COUNTY CURRENT EXPENSE | 0.9034619479 | $726,693 | $726,693 | $656.54 | | |
| CNTYDD | DEVELOPMENTAL DISABILITIES | 0.0052121823 | $726,693 | $726,693 | $3.79 | | |
| CNTYVET | VETERANS RELIEF | 0.0052777810 | $726,693 | $726,693 | $3.84 | | |
| MENTAL | MENTAL HEALTH | 0.0052121823 | $726,693 | $726,693 | $3.79 | | |
| ROADS | COUNTY ROADS | 0.7415066410 | $726,693 | $726,693 | $538.85 | | |
| ROADSCU | COUNTY ROADS TO CUR EXP | 0.0000000000 | $726,693 | $726,693 | $0.00 | | |
| HOSP2CASH | HOSP DIST #2 GENERAL | 0.0536075306 | $726,693 | $726,693 | $38.96 | | |
| SCH50BOND | SCHOOL DIST #50 BOND 2016 | 0.5377451389 | $726,693 | $726,693 | $390.78 | | |
| SCH50CP | SCHOOL DIST #50 CAP PROJ | 0.4573475088 | $726,693 | $726,693 | $332.35 | | |
| SCH50MO | SCHOOL DIST #50 EP & O | 0.8262822886 | $726,693 | $726,693 | $600.45 | | |
| CONSERVE | CONSERVATION FUTURES | 0.0275621078 | $726,693 | $726,693 | $20.03 | | |
| EMS1 | FIRE DIST #1 EMS | 0.4679948282 | $726,693 | $726,693 | $340.09 | | |
| FD1 | FIRE DIST #1 GENERAL | 1.2171942929 | $726,693 | $726,693 | $884.53 | | |
| LIB1 | LIBRARY DIST #1 GENERAL | 0.2868827388 | $726,693 | $726,693 | $208.48 | | |
| PORTPT | PORT OF PT GENERAL | 0.1134941229 | $726,693 | $726,693 | $82.48 | | |
| PORTPTIDD | PORT OF PT IDD 2019 | 0.2577346692 | $726,693 | $726,693 | $187.29 | | |
| PUD1 | PUD #1 GENERAL | 0.0597888892 | $726,693 | $726,693 | $43.45 | | |
| STATE | STATE SCHOOL PART 1 | 1.4940692947 | $726,693 | $726,693 | $1,085.73 | | |
| STATE2 | STATE SCHOOL PART 2 | 0.8050170049 | $726,693 | $726,693 | $585.00 | | |
| | Total Tax Rate: | 8.2653911500 | | | | | |
| | | | | Taxes w/Current Exemptions: | $6,006.43 | | |
| | | | | Taxes w/o Exemptions: | $6,006.43 | | |
Improvement / Building
| Improvement #1: | Residential Bldg | State Code: | 11 | 2176.0 sqft | Value: | $539,693 |
| Bathrooms (#): | 2 (FULL) | Bedrooms (#): | 2 | | Exterior Wall: | SI/ST | Fireplace: | SIN 1-GOOD | | Floor Construction: | FRAME | Foundation: | CONPR | | Heating/Cooling: | ELBB | Roof Cover: | COMP |
|
| | Type | Description | Class CD | Sub Class CD | Year Built | Area |
| | MA | Main Area | 4+ | 1S | 1999 | 2176.0 |
| | HWPOR | House Wood Porch | 4 | * | 1999 | 80.0 |
| | HDECK | House Deck | 4 | * | 1999 | 285.0 |
| | GATT | House Attached Garage | 4 | 1S | 1999 | 516.0 |
| | ASPHD | Asphalt Drive | 4 | * | 1999 | 600.0 |
Sketch
Property Image
Land
| 1 | 5520-1155L | | 0.0000 | 0.00 | 0.00 | 0.00 | 1.00 | $187,000 | $0 |
Roll Value History
| 2026 | N/A | N/A | N/A | N/A | N/A |
| 2025 | $539,693 | $187,000 | $0 | $726,693 | $726,693 |
| 2024 | $539,693 | $187,000 | $0 | $726,693 | $726,693 |
| 2023 | $506,729 | $173,250 | $0 | $679,979 | $679,979 |
| 2022 | $451,306 | $120,000 | $0 | $571,306 | $571,306 |
Deed and Sales History
| 1 | 10/30/2025 | DTH CERT | Death Certificate | JOENE E LOTT | KRISTOFFER M & RACHEL LOTT | | | | 145502 | TODD#668955 |
| 2 | 06/08/2022 | SWD | Statutory Warranty Deed | JEAN HAWKINS | JOENE E LOTT | | | $729,000.00 | 139310 | |
| 3 | 03/23/2009 | SWD | Statutory Warranty Deed | MADARA, PATRICIA L AKA MA | HAWKINS, JEAN | 0 | 0 | $320,000.00 | 112691 | 0 |
| 4 | 02/24/1998 | SWD | Statutory Warranty Deed | BESEL, MARYANN | MADARA, PATRICIA L | 0 | 0 | $23,000.00 | 83863 | 0 |
| 5 | 06/21/1995 | SWD | Statutory Warranty Deed | THOMPSON, JOE/FRANCES | BESEL, MARY ANN | 0 | 0 | $29,500.00 | 77269 | 0 |
Payout Agreement
| No payout information available.. |