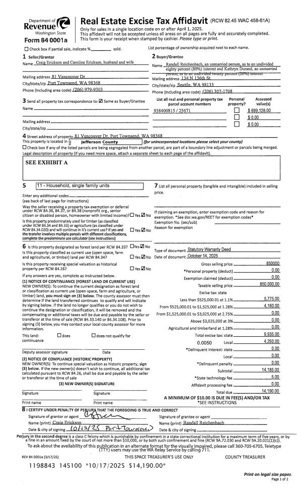
Property
Account |
| Property ID: | 25671 | Abbreviated Legal Description: | CAPE GEORGE COLONY DIV 3 BLK 8 LOT 15 |
| Parcel # / Geo ID: | 938400815 | Agent Code: | |
| Type: | Real | | |
| Tax Area: | 0111 - 1-50F1E1H2L1 | Land Use Code | 11 |
| Open Space: | N | DFL | N |
| Historic Property: | N | Remodel Property: | N |
| Multi-Family Redevelopment: | N | | |
| Township: | 30N | Section: | 12 |
| Range: | 2W |
Location |
| Address: | 81 VANCOUVER DR PORT TOWNSEND, WA 98368 | Mapsco: | 010/044 |
| Neighborhood: | CAPE GEORGE COLONY (ALL), CRESTHAVEN & DIV 6 | Map ID: | |
| Neighborhood CD: | 5520 |
Owner |
| Name: | RANDALL REICHENBACH | Owner ID: | 113534 |
| Mailing Address: | KATHRYN DURAND 134 N 136TH ST SEATTLE, WA 98133-7304 | % Ownership: | 100.0000000000% |
| | | Exemptions: | |
Pay Tax Due
Select the appropriate checkbox next to the year to be paid. Multiple years may be selected.
*Convenience Fee not included
Taxes and Assessment Details
Property Tax Information as of
03/11/2026
Click on "Statement Details" to expand or collapse a tax statement.
* Please enter a valid date ** Please enter a valid date *
Statement Details |
| 2026 | 15051 | STATE - STATE LEVY (SCHOOL) | $803.69 | $803.67 | $0.00 | $0.00 | $0.00 | $1607.36 |
| 2026 | 15051 | COUNTY - COUNTY LEVIES (CE, DD, VET, MH) | $321.31 | $321.30 | $0.00 | $0.00 | $0.00 | $642.61 |
| 2026 | 15051 | CONSERVE - CONSERVATION FUTURES | $9.64 | $9.63 | $0.00 | $0.00 | $0.00 | $19.27 |
| 2026 | 15051 | COROADS - COUNTY ROADS (ROADS, DIV TO CE) | $259.21 | $259.20 | $0.00 | $0.00 | $0.00 | $518.41 |
| 2026 | 15051 | PORTPT - PORT DISTRICT | $129.78 | $129.76 | $0.00 | $0.00 | $0.00 | $259.54 |
| 2026 | 15051 | PUD1 - PUD #1 | $20.90 | $20.90 | $0.00 | $0.00 | $0.00 | $41.80 |
| 2026 | 15051 | LIB1 - LIBRARY DIST #1 | $100.29 | $100.28 | $0.00 | $0.00 | $0.00 | $200.57 |
| 2026 | 15051 | HD2 - HOSP DIST #2 | $18.74 | $18.74 | $0.00 | $0.00 | $0.00 | $37.48 |
| 2026 | 15051 | SD50 - SCHOOL DIST #50 | $636.69 | $636.68 | $0.00 | $0.00 | $0.00 | $1273.37 |
| 2026 | 15051 | FD1 - FIRE DISTRICT #1 | $425.49 | $425.48 | $0.00 | $0.00 | $0.00 | $850.97 |
| 2026 | 15051 | EMS1 - FIRE DIST #1 EMS | $163.60 | $163.59 | $0.00 | $0.00 | $0.00 | $327.19 |
| 2026 | 15051 | JCCD - JC Conservation District | $2.55 | $2.55 | $0.00 | $0.00 | $0.00 | $5.10 |
| 2026 | 15051 | NWA - Noxious Weed Assessment | $2.98 | $2.97 | $0.00 | $0.00 | $0.00 | $5.95 |
| 2026 | 15051 | OSS - On Site Septic | $23.10 | $23.10 | $0.00 | $0.00 | $0.00 | $46.20 |
| 2026 | 15051 | WAT - Clean Water District | $13.00 | $13.00 | $0.00 | $0.00 | $0.00 | $26.00 |
| 2026 | 15051 | TOTAL: | $2930.97 | $2930.85 | $0.00 | $0.00 | $0.00 | $5861.82 |
|
| 2026 | 15051 | $2930.97 | $2930.85 | $0.00 | $0.00 | $0.00 | $5861.82 |
Statement Details |
| 2025 | 15102 | STATE - STATE LEVY (SCHOOL) | $838.27 | $838.26 | $0.00 | $0.00 | $1676.53 | $0.00 |
| 2025 | 15102 | COUNTY - COUNTY LEVIES (CE, DD, VET, MH) | $329.66 | $329.63 | $0.00 | $0.00 | $659.29 | $0.00 |
| 2025 | 15102 | CONSERVE - CONSERVATION FUTURES | $9.89 | $9.88 | $0.00 | $0.00 | $19.77 | $0.00 |
| 2025 | 15102 | COROADS - COUNTY ROADS (ROADS, DIV TO CE) | $264.10 | $264.09 | $0.00 | $0.00 | $528.19 | $0.00 |
| 2025 | 15102 | PORTPT - PORT DISTRICT | $134.52 | $134.51 | $0.00 | $0.00 | $269.03 | $0.00 |
| 2025 | 15102 | PUD1 - PUD #1 | $21.57 | $21.57 | $0.00 | $0.00 | $43.14 | $0.00 |
| 2025 | 15102 | LIB1 - LIBRARY DIST #1 | $102.18 | $102.17 | $0.00 | $0.00 | $204.35 | $0.00 |
| 2025 | 15102 | HD2 - HOSP DIST #2 | $19.23 | $19.23 | $0.00 | $0.00 | $38.46 | $0.00 |
| 2025 | 15102 | SD50 - SCHOOL DIST #50 | $612.64 | $612.62 | $0.00 | $0.00 | $1225.26 | $0.00 |
| 2025 | 15102 | FD1 - FIRE DISTRICT #1 | $435.00 | $435.00 | $0.00 | $0.00 | $870.00 | $0.00 |
| 2025 | 15102 | EMS1 - FIRE DIST #1 EMS | $167.31 | $167.31 | $0.00 | $0.00 | $334.62 | $0.00 |
| 2025 | 15102 | JCCD - JC Conservation District | $2.55 | $2.55 | $0.00 | $0.00 | $5.10 | $0.00 |
| 2025 | 15102 | NWA - Noxious Weed Assessment | $2.15 | $2.15 | $0.00 | $0.00 | $4.30 | $0.00 |
| 2025 | 15102 | OSS - On Site Septic | $21.50 | $21.50 | $0.00 | $0.00 | $43.00 | $0.00 |
| 2025 | 15102 | WAT - Clean Water District | $13.00 | $13.00 | $0.00 | $0.00 | $26.00 | $0.00 |
| 2025 | 15102 | TOTAL: | $2973.57 | $2973.47 | $0.00 | $0.00 | $5947.04 | $0.00 |
|
| 2025 | 15102 | $2973.57 | $2973.47 | $0.00 | $0.00 | $5947.04 | $0.00 |
Statement Details |
| 2024 | 15133 | STATE - STATE LEVY (SCHOOL) | $754.67 | $754.66 | $0.00 | $0.00 | $1509.33 | $0.00 |
| 2024 | 15133 | COUNTY - COUNTY LEVIES (CE, DD, VET, MH) | $322.95 | $322.91 | $0.00 | $0.00 | $645.86 | $0.00 |
| 2024 | 15133 | CONSERVE - CONSERVATION FUTURES | $9.69 | $9.68 | $0.00 | $0.00 | $19.37 | $0.00 |
| 2024 | 15133 | COROADS - COUNTY ROADS (ROADS, DIV TO CE) | $259.86 | $259.84 | $0.00 | $0.00 | $519.70 | $0.00 |
| 2024 | 15133 | PORTPT - PORT DISTRICT | $133.39 | $133.38 | $0.00 | $0.00 | $266.77 | $0.00 |
| 2024 | 15133 | PUD1 - PUD #1 | $21.21 | $21.21 | $0.00 | $0.00 | $42.42 | $0.00 |
| 2024 | 15133 | LIB1 - LIBRARY DIST #1 | $100.54 | $100.53 | $0.00 | $0.00 | $201.07 | $0.00 |
| 2024 | 15133 | HD2 - HOSP DIST #2 | $18.84 | $18.84 | $0.00 | $0.00 | $37.68 | $0.00 |
| 2024 | 15133 | SD50 - SCHOOL DIST #50 | $610.56 | $610.55 | $0.00 | $0.00 | $1221.11 | $0.00 |
| 2024 | 15133 | FD1 - FIRE DISTRICT #1 | $426.99 | $426.98 | $0.00 | $0.00 | $853.97 | $0.00 |
| 2024 | 15133 | EMS1 - FIRE DIST #1 EMS | $163.10 | $163.09 | $0.00 | $0.00 | $326.19 | $0.00 |
| 2024 | 15133 | JCCD - JC Conservation District | $2.55 | $2.55 | $0.00 | $0.00 | $5.10 | $0.00 |
| 2024 | 15133 | NWA - Noxious Weed Assessment | $2.15 | $2.15 | $0.00 | $0.00 | $4.30 | $0.00 |
| 2024 | 15133 | OSS - On Site Septic | $21.00 | $21.00 | $0.00 | $0.00 | $42.00 | $0.00 |
| 2024 | 15133 | WAT - Clean Water District | $12.50 | $12.50 | $0.00 | $0.00 | $25.00 | $0.00 |
| 2024 | 15133 | TOTAL: | $2860.00 | $2859.87 | $0.00 | $0.00 | $5719.87 | $0.00 |
|
| 2024 | 15133 | $2860.00 | $2859.87 | $0.00 | $0.00 | $5719.87 | $0.00 |
Statement Details |
| 2023 | 15157 | STATE - STATE LEVY (SCHOOL) | $726.86 | $726.86 | $0.00 | $0.00 | $1453.72 | $0.00 |
| 2023 | 15157 | COUNTY - COUNTY LEVIES (CE, DD, VET, MH) | $317.19 | $317.17 | $0.00 | $0.00 | $634.36 | $0.00 |
| 2023 | 15157 | CONSERVE - CONSERVATION FUTURES | $9.51 | $9.51 | $0.00 | $0.00 | $19.02 | $0.00 |
| 2023 | 15157 | COROADS - COUNTY ROADS (ROADS, DIV TO CE) | $256.63 | $256.61 | $0.00 | $0.00 | $513.24 | $0.00 |
| 2023 | 15157 | PORTPT - PORT DISTRICT | $133.62 | $133.61 | $0.00 | $0.00 | $267.23 | $0.00 |
| 2023 | 15157 | PUD1 - PUD #1 | $21.03 | $21.02 | $0.00 | $0.00 | $42.05 | $0.00 |
| 2023 | 15157 | LIB1 - LIBRARY DIST #1 | $99.29 | $99.28 | $0.00 | $0.00 | $198.57 | $0.00 |
| 2023 | 15157 | HD2 - HOSP DIST #2 | $18.51 | $18.50 | $0.00 | $0.00 | $37.01 | $0.00 |
| 2023 | 15157 | SD50 - SCHOOL DIST #50 | $576.79 | $576.76 | $0.00 | $0.00 | $1153.55 | $0.00 |
| 2023 | 15157 | FD1 - FIRE DISTRICT #1 | $261.29 | $261.29 | $0.00 | $0.00 | $522.58 | $0.00 |
| 2023 | 15157 | EMS1 - FIRE DIST #1 EMS | $111.15 | $111.15 | $0.00 | $0.00 | $222.30 | $0.00 |
| 2023 | 15157 | JCCD - JC Conservation District | $2.55 | $2.55 | $0.00 | $0.00 | $5.10 | $0.00 |
| 2023 | 15157 | NWA - Noxious Weed Assessment | $2.15 | $2.15 | $0.00 | $0.00 | $4.30 | $0.00 |
| 2023 | 15157 | OSS - On Site Septic | $20.50 | $20.50 | $0.00 | $0.00 | $41.00 | $0.00 |
| 2023 | 15157 | WAT - Clean Water District | $12.00 | $12.00 | $0.00 | $0.00 | $24.00 | $0.00 |
| 2023 | 15157 | TOTAL: | $2569.07 | $2568.96 | $0.00 | $0.00 | $5138.03 | $0.00 |
|
| 2023 | 15157 | $2569.07 | $2568.96 | $0.00 | $0.00 | $5138.03 | $0.00 |
Values
| (+) Improvement Homesite Value: | + | $0 | |
| (+) Improvement Non-Homesite Value: | + | $593,528 | |
| (+) Land Homesite Value: | + | $0 | |
| (+) Land Non-Homesite Value: | + | $105,600 | |
| (+) Curr Use (HS): | + | $0 | $0 |
| (+) Curr Use (NHS): | + | $0 | $0 |
| | | -------------------------- | |
| (=) Market Value: | = | $699,128 | |
| (–) Productivity Loss: | – | $0 | |
| | | -------------------------- | |
| (=) Subtotal: | = | $699,128 | |
| (+) Senior Appraised Value: | + | $0 | |
| (+) Non-Senior Appraised Value: | + | $699,128 | |
| | | -------------------------- | |
| (=) Total Appraised Value: | = | $699,128 | |
| (–) Senior Exemption Loss: | – | $0 | |
| (–) Exemption Loss: | – | $0 | |
| | | -------------------------- | |
| (=) Taxable Value: | = | $699,128 | |
Taxing Jurisdiction
| Owner: | RANDALL REICHENBACH | | |
| % Ownership: | 100.0000000000% | | |
| Total Value: | N/A | | |
| Tax Area: | 0111 - 1-50F1E1H2L1 |
| CE | COUNTY CURRENT EXPENSE | N/A | N/A | N/A | N/A | | |
| CNTYDD | DEVELOPMENTAL DISABILITIES | N/A | N/A | N/A | N/A | | |
| CNTYVET | VETERANS RELIEF | N/A | N/A | N/A | N/A | | |
| MENTAL | MENTAL HEALTH | N/A | N/A | N/A | N/A | | |
| ROADS | COUNTY ROADS | N/A | N/A | N/A | N/A | | |
| HOSP2CASH | HOSP DIST #2 GENERAL | N/A | N/A | N/A | N/A | | |
| SCH50BOND | SCHOOL DIST #50 BOND 2016 | N/A | N/A | N/A | N/A | | |
| SCH50CP | SCHOOL DIST #50 CAP PROJ | N/A | N/A | N/A | N/A | | |
| SCH50MO | SCHOOL DIST #50 EP & O | N/A | N/A | N/A | N/A | | |
| CONSERVE | CONSERVATION FUTURES | N/A | N/A | N/A | N/A | | |
| EMS1 | FIRE DIST #1 EMS | N/A | N/A | N/A | N/A | | |
| FD1 | FIRE DIST #1 GENERAL | N/A | N/A | N/A | N/A | | |
| LIB1 | LIBRARY DIST #1 GENERAL | N/A | N/A | N/A | N/A | | |
| PORTPT | PORT OF PT GENERAL | N/A | N/A | N/A | N/A | | |
| PORTPTIDD | PORT OF PT IDD 2019 | N/A | N/A | N/A | N/A | | |
| PUD1 | PUD #1 GENERAL | N/A | N/A | N/A | N/A | | |
| STATE | STATE SCHOOL PART 1 | N/A | N/A | N/A | N/A | | |
| STATE2 | STATE SCHOOL PART 2 | N/A | N/A | N/A | N/A | | |
| | Total Tax Rate: | N/A | | | | | |
| | | | | Taxes w/Current Exemptions: | N/A | | |
| | | | | Taxes w/o Exemptions: | N/A | | |
Improvement / Building
| Improvement #1: | Residential Bldg | State Code: | 11 | 1079.0 sqft | Value: | $593,528 |
| Bathrooms (#): | 2 (FULL) | Bedrooms (#): | 2 | | Exterior Wall: | SI/ST | Fireplace: | PROPS-GOOD | | Floor Construction: | FRAME | Foundation: | CONPR | | Heating/Cooling: | F/A | Roof Cover: | COMP |
|
| | Type | Description | Class CD | Sub Class CD | Year Built | Area |
| | MA | Main Area | 5+ | 1S | 2006 | 1079.0 |
| | HDECK | House Deck | 5 | * | 2006 | 630.0 |
| | GBSMT | Basement Garage | 5 | 1S | 2006 | 440.0 |
| | HLOFT | House Loft | 5 | * | 2006 | 241.0 |
| | BSMTF | House basement finished | 5 | * | 2006 | 320.0 |
| | HWPOR | House Wood Porch | 5 | * | 2006 | 160.0 |
| | CONCD | Concrete Drive | 5 | * | 2006 | 500.0 |
| | BSMTU | House basement unfinished | 5 | * | 2006 | 280.0 |
| | SHED | Shed (Table Not Dep) | 6 | * | 2006 | 100.0 |
Sketch
Property Image
Land
| 1 | 5520-1175L | | 0.0000 | 0.00 | 0.00 | 0.00 | 1.00 | $105,600 | $0 |
Roll Value History
| 2026 | N/A | N/A | N/A | N/A | N/A |
| 2025 | $593,528 | $105,600 | $0 | $699,128 | $699,128 |
| 2024 | $593,528 | $105,600 | $0 | $699,128 | $699,128 |
| 2023 | $556,821 | $95,550 | $0 | $652,371 | $652,371 |
| 2022 | $531,511 | $86,000 | $0 | $617,511 | $617,511 |
Deed and Sales History
| 1 | 10/14/2025 | SWD | Statutory Warranty Deed | CRAIG ERICKSON | RANDALL REICHENBACH | | | $850,000.00 | 145100 | |
| 2 | 01/24/2007 | SWD | Statutory Warranty Deed | SCHWERSINSKE, CARL H | ERICKSON, CRAIG & CAROLINE | 0 | 0 | $350,000.00 | 108677 | 0 |
| 3 | 10/28/2003 | SWD | Statutory Warranty Deed | RYAN, PATRICIA R | TEMPLE, JUDITH/SCHWERSINSKE, | 0 | 0 | $25,000.00 | 98706 | 0 |
| 4 | 10/07/1998 | SWD | Statutory Warranty Deed | WYLL, ZANE W/JR & KELLI A | RYAN, PATRICIA R | 0 | 0 | $17,500.00 | 85508 | 0 |
|   | |
| 5 | 06/30/1994 | SWD | Statutory Warranty Deed | FOSS, MILTON K/LILI J | WYLL, ZANE W/JR & KELLI A | 0 | 0 | $21,500.00 | 74584 | 0 |
|   | |
Payout Agreement
| No payout information available.. |