Property
Account |
| Property ID: | 25673 | Abbreviated Legal Description: | CAPE GEORGE COLONY DIV 3 BLK 8 LOT 18 |
| Parcel # / Geo ID: | 938400817 | Agent Code: | |
| Type: | Real | | |
| Tax Area: | 0111 - 1-50F1E1H2L1 | Land Use Code | 11 |
| Open Space: | N | DFL | N |
| Historic Property: | N | Remodel Property: | N |
| Multi-Family Redevelopment: | N | | |
| Township: | 30N | Section: | 12 |
| Range: | 2W |
Location |
| Address: | 23 VANCOUVER DR PORT TOWNSEND, WA 98368 | Mapsco: | 010/047 |
| Neighborhood: | CAPE GEORGE COLONY (ALL), CRESTHAVEN & DIV 6 | Map ID: | |
| Neighborhood CD: | 5520 |
Owner |
| Name: | SONJA ERICSON | Owner ID: | 95953 |
| Mailing Address: | 23 VANCOUVER DR PORT TOWNSEND, WA 98368-8915 | % Ownership: | 100.0000000000% |
| | | Exemptions: | |
Pay Tax Due
There is currently No Amount Due on this property.
Taxes and Assessment Details
Property Tax Information as of
03/12/2026
Click on "Statement Details" to expand or collapse a tax statement.
* Please enter a valid date ** Please enter a valid date *
Statement Details |
| | TOTAL: | $0.00 | $0.00 | $0.00 | $0.00 | $0.00 | $0.00 |
|
| | $0.00 | $0.00 | $0.00 | $0.00 | $0.00 | $0.00 |
Values
| (+) Improvement Homesite Value: | + | $0 | |
| (+) Improvement Non-Homesite Value: | + | $396,890 | |
| (+) Land Homesite Value: | + | $0 | |
| (+) Land Non-Homesite Value: | + | $143,000 | |
| (+) Curr Use (HS): | + | $0 | $0 |
| (+) Curr Use (NHS): | + | $0 | $0 |
| | | -------------------------- | |
| (=) Market Value: | = | $539,890 | |
| (–) Productivity Loss: | – | $0 | |
| | | -------------------------- | |
| (=) Subtotal: | = | $539,890 | |
| (+) Senior Appraised Value: | + | $0 | |
| (+) Non-Senior Appraised Value: | + | $539,890 | |
| | | -------------------------- | |
| (=) Total Appraised Value: | = | $539,890 | |
| (–) Senior Exemption Loss: | – | $0 | |
| (–) Exemption Loss: | – | $0 | |
| | | -------------------------- | |
| (=) Taxable Value: | = | $539,890 | |
Taxing Jurisdiction
| Owner: | SONJA ERICSON | | |
| % Ownership: | 100.0000000000% | | |
| Total Value: | $539,890 | | |
| Tax Area: | 0111 - 1-50F1E1H2L1 |
| CE | COUNTY CURRENT EXPENSE | 0.9034619479 | $539,890 | $539,890 | $487.77 | | |
| CNTYDD | DEVELOPMENTAL DISABILITIES | 0.0052121823 | $539,890 | $539,890 | $2.81 | | |
| CNTYVET | VETERANS RELIEF | 0.0052777810 | $539,890 | $539,890 | $2.85 | | |
| MENTAL | MENTAL HEALTH | 0.0052121823 | $539,890 | $539,890 | $2.81 | | |
| ROADS | COUNTY ROADS | 0.7415066410 | $539,890 | $539,890 | $400.33 | | |
| ROADSCU | COUNTY ROADS TO CUR EXP | 0.0000000000 | $539,890 | $539,890 | $0.00 | | |
| HOSP2CASH | HOSP DIST #2 GENERAL | 0.0536075306 | $539,890 | $539,890 | $28.94 | | |
| SCH50BOND | SCHOOL DIST #50 BOND 2016 | 0.5377451389 | $539,890 | $539,890 | $290.32 | | |
| SCH50CP | SCHOOL DIST #50 CAP PROJ | 0.4573475088 | $539,890 | $539,890 | $246.92 | | |
| SCH50MO | SCHOOL DIST #50 EP & O | 0.8262822886 | $539,890 | $539,890 | $446.10 | | |
| CONSERVE | CONSERVATION FUTURES | 0.0275621078 | $539,890 | $539,890 | $14.88 | | |
| EMS1 | FIRE DIST #1 EMS | 0.4679948282 | $539,890 | $539,890 | $252.67 | | |
| FD1 | FIRE DIST #1 GENERAL | 1.2171942929 | $539,890 | $539,890 | $657.15 | | |
| LIB1 | LIBRARY DIST #1 GENERAL | 0.2868827388 | $539,890 | $539,890 | $154.89 | | |
| PORTPT | PORT OF PT GENERAL | 0.1134941229 | $539,890 | $539,890 | $61.27 | | |
| PORTPTIDD | PORT OF PT IDD 2019 | 0.2577346692 | $539,890 | $539,890 | $139.15 | | |
| PUD1 | PUD #1 GENERAL | 0.0597888892 | $539,890 | $539,890 | $32.28 | | |
| STATE | STATE SCHOOL PART 1 | 1.4940692947 | $539,890 | $539,890 | $806.63 | | |
| STATE2 | STATE SCHOOL PART 2 | 0.8050170049 | $539,890 | $539,890 | $434.62 | | |
| | Total Tax Rate: | 8.2653911500 | | | | | |
| | | | | Taxes w/Current Exemptions: | $4,462.39 | | |
| | | | | Taxes w/o Exemptions: | $4,462.39 | | |
Improvement / Building
| Improvement #1: | Residential Bldg | State Code: | 11 | 1227.0 sqft | Value: | $396,890 |
| Bathrooms (#): | 3 (FULL) | Bedrooms (#): | 3 | | Exterior Wall: | SI/ST | Floor Construction: | FRAME | | Foundation: | CONPR | Heating/Cooling: | HPUMP | | Roof Cover: | COMP |   |   |
|
| | Type | Description | Class CD | Sub Class CD | Year Built | Area |
| | MA | Main Area | 4 | 1S | 1996 | 1227.0 |
| | HDECK | House Deck | 4 | * | 1996 | 484.0 |
| | GBSMT | Basement Garage | 4 | 1S | 1996 | 740.0 |
| | CARPTN | Carport W/O Floor | 3 | * | 1996 | 336.0 |
| | BSMTF | House basement finished | 3 | * | 1996 | 115.5 |
| | BSMTU | House basement unfinished | 3 | * | 1996 | 346.5 |
Sketch
Property Image
Land
| 1 | 5520-1165L | Colony Area of Fair Water/Mtn View Lots | 0.0000 | 0.00 | 0.00 | 0.00 | 1.00 | $143,000 | $0 |
Roll Value History
| 2026 | N/A | N/A | N/A | N/A | N/A |
| 2025 | $396,890 | $143,000 | $0 | $539,890 | $539,890 |
| 2024 | $396,890 | $143,000 | $0 | $539,890 | $539,890 |
| 2023 | $379,634 | $131,250 | $0 | $510,884 | $510,884 |
| 2022 | $362,378 | $120,000 | $0 | $482,378 | $482,378 |
Deed and Sales History
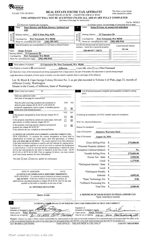
| 1 | 08/16/2016 | SWD | Statutory Warranty Deed | PETER DOWNEY | SONJA ERICSON | | | $275,000.00 | 126069 | |
| 2 | 10/31/2003 | SWD | Statutory Warranty Deed | NOEL, IRMA D | DOWNEY, PETER/ROBIN | 0 | 0 | $199,100.00 | 98760 | 0 |
| 3 | 02/03/2003 | QCD | Quit Claim Deed | NOEL, ROBERT B/IRMA D | NOEL, IRMA D | 0 | 0 | $0.00 | 96528 | 0 |
| 4 | 05/30/1996 | QCD | Quit Claim Deed | NOEL, IRMA D | NOEL, ROBERT B/IRMA D | 0 | 0 | $0.00 | 79586 | 0 |
| 5 | 04/04/1995 | QCD | Quit Claim Deed | NOEL, ROBERT B/IRMA D | NOEL, IRMA D | 0 | 0 | $0.00 | 76596 | 0 |
| 6 | 03/09/1992 | SWD | Statutory Warranty Deed | SCHMITT, WJ/JEAN/WILLIAM | NOEL, ROBERT B/IRMA D | 0 | 0 | $14,000.00 | 67901 | 0 |
Payout Agreement
| No payout information available.. |