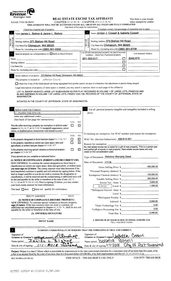
Property
Account |
| Property ID: | 25676 | Abbreviated Legal Description: | CAPE GEORGE COLONY DIV 3 BLK 8 LOT 21 |
| Parcel # / Geo ID: | 938400820 | Agent Code: | |
| Type: | Real | | |
| Tax Area: | 0111 - 1-50F1E1H2L1 | Land Use Code | 11 |
| Open Space: | N | DFL | N |
| Historic Property: | N | Remodel Property: | N |
| Multi-Family Redevelopment: | N | | |
| Township: | 30N | Section: | 12 |
| Range: | 2W |
Location |
| Address: | 150 N PALMER DR PORT TOWNSEND, WA 98368 | Mapsco: | 010/050 |
| Neighborhood: | CAPE GEORGE COLONY (ALL), CRESTHAVEN & DIV 6 | Map ID: | |
| Neighborhood CD: | 5520 |
Owner |
| Name: | COLBY A FOX | Owner ID: | 15941 |
| Mailing Address: | PO BOX 2096 PORT TOWNSEND, WA 98368-0260 | % Ownership: | 100.0000000000% |
| | | Exemptions: | |
Pay Tax Due
Select the appropriate checkbox next to the year to be paid. Multiple years may be selected.
*Convenience Fee not included
Taxes and Assessment Details
Property Tax Information as of
03/11/2026
Click on "Statement Details" to expand or collapse a tax statement.
* Please enter a valid date ** Please enter a valid date *
Statement Details |
| 2026 | 15056 | STATE - STATE LEVY (SCHOOL) | $825.43 | $825.42 | $0.00 | $0.00 | $0.00 | $1650.85 |
| 2026 | 15056 | COUNTY - COUNTY LEVIES (CE, DD, VET, MH) | $330.01 | $329.99 | $0.00 | $0.00 | $0.00 | $660.00 |
| 2026 | 15056 | CONSERVE - CONSERVATION FUTURES | $9.90 | $9.89 | $0.00 | $0.00 | $0.00 | $19.79 |
| 2026 | 15056 | COROADS - COUNTY ROADS (ROADS, DIV TO CE) | $266.22 | $266.22 | $0.00 | $0.00 | $0.00 | $532.44 |
| 2026 | 15056 | PORTPT - PORT DISTRICT | $133.29 | $133.27 | $0.00 | $0.00 | $0.00 | $266.56 |
| 2026 | 15056 | PUD1 - PUD #1 | $21.47 | $21.46 | $0.00 | $0.00 | $0.00 | $42.93 |
| 2026 | 15056 | LIB1 - LIBRARY DIST #1 | $103.00 | $102.99 | $0.00 | $0.00 | $0.00 | $205.99 |
| 2026 | 15056 | HD2 - HOSP DIST #2 | $19.25 | $19.24 | $0.00 | $0.00 | $0.00 | $38.49 |
| 2026 | 15056 | SD50 - SCHOOL DIST #50 | $653.93 | $653.91 | $0.00 | $0.00 | $0.00 | $1307.84 |
| 2026 | 15056 | FD1 - FIRE DISTRICT #1 | $437.00 | $437.00 | $0.00 | $0.00 | $0.00 | $874.00 |
| 2026 | 15056 | EMS1 - FIRE DIST #1 EMS | $168.02 | $168.02 | $0.00 | $0.00 | $0.00 | $336.04 |
| 2026 | 15056 | JCCD - JC Conservation District | $2.55 | $2.55 | $0.00 | $0.00 | $0.00 | $5.10 |
| 2026 | 15056 | NWA - Noxious Weed Assessment | $2.98 | $2.97 | $0.00 | $0.00 | $0.00 | $5.95 |
| 2026 | 15056 | OSS - On Site Septic | $23.10 | $23.10 | $0.00 | $0.00 | $0.00 | $46.20 |
| 2026 | 15056 | WAT - Clean Water District | $13.00 | $13.00 | $0.00 | $0.00 | $0.00 | $26.00 |
| 2026 | 15056 | TOTAL: | $3009.15 | $3009.03 | $0.00 | $0.00 | $0.00 | $6018.18 |
|
| 2026 | 15056 | $3009.15 | $3009.03 | $0.00 | $0.00 | $0.00 | $6018.18 |
Statement Details |
| 2025 | 15107 | STATE - STATE LEVY (SCHOOL) | $860.95 | $860.94 | $0.00 | $0.00 | $1721.89 | $0.00 |
| 2025 | 15107 | COUNTY - COUNTY LEVIES (CE, DD, VET, MH) | $338.57 | $338.55 | $0.00 | $0.00 | $677.12 | $0.00 |
| 2025 | 15107 | CONSERVE - CONSERVATION FUTURES | $10.15 | $10.15 | $0.00 | $0.00 | $20.30 | $0.00 |
| 2025 | 15107 | COROADS - COUNTY ROADS (ROADS, DIV TO CE) | $271.25 | $271.24 | $0.00 | $0.00 | $542.49 | $0.00 |
| 2025 | 15107 | PORTPT - PORT DISTRICT | $138.16 | $138.15 | $0.00 | $0.00 | $276.31 | $0.00 |
| 2025 | 15107 | PUD1 - PUD #1 | $22.16 | $22.15 | $0.00 | $0.00 | $44.31 | $0.00 |
| 2025 | 15107 | LIB1 - LIBRARY DIST #1 | $104.94 | $104.94 | $0.00 | $0.00 | $209.88 | $0.00 |
| 2025 | 15107 | HD2 - HOSP DIST #2 | $19.75 | $19.75 | $0.00 | $0.00 | $39.50 | $0.00 |
| 2025 | 15107 | SD50 - SCHOOL DIST #50 | $629.22 | $629.20 | $0.00 | $0.00 | $1258.42 | $0.00 |
| 2025 | 15107 | FD1 - FIRE DISTRICT #1 | $446.77 | $446.77 | $0.00 | $0.00 | $893.54 | $0.00 |
| 2025 | 15107 | EMS1 - FIRE DIST #1 EMS | $171.84 | $171.84 | $0.00 | $0.00 | $343.68 | $0.00 |
| 2025 | 15107 | JCCD - JC Conservation District | $2.55 | $2.55 | $0.00 | $0.00 | $5.10 | $0.00 |
| 2025 | 15107 | NWA - Noxious Weed Assessment | $2.15 | $2.15 | $0.00 | $0.00 | $4.30 | $0.00 |
| 2025 | 15107 | OSS - On Site Septic | $21.50 | $21.50 | $0.00 | $0.00 | $43.00 | $0.00 |
| 2025 | 15107 | WAT - Clean Water District | $13.00 | $13.00 | $0.00 | $0.00 | $26.00 | $0.00 |
| 2025 | 15107 | TOTAL: | $3052.96 | $3052.88 | $0.00 | $0.00 | $6105.84 | $0.00 |
|
| 2025 | 15107 | $3052.96 | $3052.88 | $0.00 | $0.00 | $6105.84 | $0.00 |
Statement Details |
| 2024 | 15138 | STATE - STATE LEVY (SCHOOL) | $751.29 | $751.28 | $0.00 | $0.00 | $1502.57 | $0.00 |
| 2024 | 15138 | COUNTY - COUNTY LEVIES (CE, DD, VET, MH) | $321.50 | $321.47 | $0.00 | $0.00 | $642.97 | $0.00 |
| 2024 | 15138 | CONSERVE - CONSERVATION FUTURES | $9.64 | $9.64 | $0.00 | $0.00 | $19.28 | $0.00 |
| 2024 | 15138 | COROADS - COUNTY ROADS (ROADS, DIV TO CE) | $258.69 | $258.68 | $0.00 | $0.00 | $517.37 | $0.00 |
| 2024 | 15138 | PORTPT - PORT DISTRICT | $132.79 | $132.78 | $0.00 | $0.00 | $265.57 | $0.00 |
| 2024 | 15138 | PUD1 - PUD #1 | $21.12 | $21.11 | $0.00 | $0.00 | $42.23 | $0.00 |
| 2024 | 15138 | LIB1 - LIBRARY DIST #1 | $100.09 | $100.08 | $0.00 | $0.00 | $200.17 | $0.00 |
| 2024 | 15138 | HD2 - HOSP DIST #2 | $18.76 | $18.76 | $0.00 | $0.00 | $37.52 | $0.00 |
| 2024 | 15138 | SD50 - SCHOOL DIST #50 | $607.83 | $607.81 | $0.00 | $0.00 | $1215.64 | $0.00 |
| 2024 | 15138 | FD1 - FIRE DISTRICT #1 | $425.08 | $425.07 | $0.00 | $0.00 | $850.15 | $0.00 |
| 2024 | 15138 | EMS1 - FIRE DIST #1 EMS | $162.37 | $162.36 | $0.00 | $0.00 | $324.73 | $0.00 |
| 2024 | 15138 | JCCD - JC Conservation District | $2.55 | $2.55 | $0.00 | $0.00 | $5.10 | $0.00 |
| 2024 | 15138 | NWA - Noxious Weed Assessment | $2.15 | $2.15 | $0.00 | $0.00 | $4.30 | $0.00 |
| 2024 | 15138 | OSS - On Site Septic | $21.00 | $21.00 | $0.00 | $0.00 | $42.00 | $0.00 |
| 2024 | 15138 | WAT - Clean Water District | $12.50 | $12.50 | $0.00 | $0.00 | $25.00 | $0.00 |
| 2024 | 15138 | TOTAL: | $2847.36 | $2847.24 | $0.00 | $0.00 | $5694.60 | $0.00 |
|
| 2024 | 15138 | $2847.36 | $2847.24 | $0.00 | $0.00 | $5694.60 | $0.00 |
Statement Details |
| 2023 | 15162 | STATE - STATE LEVY (SCHOOL) | $723.39 | $723.37 | $0.00 | $0.00 | $1446.76 | $0.00 |
| 2023 | 15162 | COUNTY - COUNTY LEVIES (CE, DD, VET, MH) | $315.66 | $315.65 | $0.00 | $0.00 | $631.31 | $0.00 |
| 2023 | 15162 | CONSERVE - CONSERVATION FUTURES | $9.47 | $9.46 | $0.00 | $0.00 | $18.93 | $0.00 |
| 2023 | 15162 | COROADS - COUNTY ROADS (ROADS, DIV TO CE) | $255.39 | $255.39 | $0.00 | $0.00 | $510.78 | $0.00 |
| 2023 | 15162 | PORTPT - PORT DISTRICT | $132.98 | $132.96 | $0.00 | $0.00 | $265.94 | $0.00 |
| 2023 | 15162 | PUD1 - PUD #1 | $20.93 | $20.92 | $0.00 | $0.00 | $41.85 | $0.00 |
| 2023 | 15162 | LIB1 - LIBRARY DIST #1 | $98.81 | $98.81 | $0.00 | $0.00 | $197.62 | $0.00 |
| 2023 | 15162 | HD2 - HOSP DIST #2 | $18.42 | $18.42 | $0.00 | $0.00 | $36.84 | $0.00 |
| 2023 | 15162 | SD50 - SCHOOL DIST #50 | $574.03 | $574.01 | $0.00 | $0.00 | $1148.04 | $0.00 |
| 2023 | 15162 | FD1 - FIRE DISTRICT #1 | $260.04 | $260.04 | $0.00 | $0.00 | $520.08 | $0.00 |
| 2023 | 15162 | EMS1 - FIRE DIST #1 EMS | $110.62 | $110.61 | $0.00 | $0.00 | $221.23 | $0.00 |
| 2023 | 15162 | JCCD - JC Conservation District | $2.55 | $2.55 | $0.00 | $0.00 | $5.10 | $0.00 |
| 2023 | 15162 | NWA - Noxious Weed Assessment | $2.15 | $2.15 | $0.00 | $0.00 | $4.30 | $0.00 |
| 2023 | 15162 | OSS - On Site Septic | $20.50 | $20.50 | $0.00 | $0.00 | $41.00 | $0.00 |
| 2023 | 15162 | WAT - Clean Water District | $12.00 | $12.00 | $0.00 | $0.00 | $24.00 | $0.00 |
| 2023 | 15162 | TOTAL: | $2556.94 | $2556.84 | $0.00 | $0.00 | $5113.78 | $0.00 |
|
| 2023 | 15162 | $2556.94 | $2556.84 | $0.00 | $0.00 | $5113.78 | $0.00 |
Values
| (+) Improvement Homesite Value: | + | $0 | |
| (+) Improvement Non-Homesite Value: | + | $531,045 | |
| (+) Land Homesite Value: | + | $0 | |
| (+) Land Non-Homesite Value: | + | $187,000 | |
| (+) Curr Use (HS): | + | $0 | $0 |
| (+) Curr Use (NHS): | + | $0 | $0 |
| | | -------------------------- | |
| (=) Market Value: | = | $718,045 | |
| (–) Productivity Loss: | – | $0 | |
| | | -------------------------- | |
| (=) Subtotal: | = | $718,045 | |
| (+) Senior Appraised Value: | + | $0 | |
| (+) Non-Senior Appraised Value: | + | $718,045 | |
| | | -------------------------- | |
| (=) Total Appraised Value: | = | $718,045 | |
| (–) Senior Exemption Loss: | – | $0 | |
| (–) Exemption Loss: | – | $0 | |
| | | -------------------------- | |
| (=) Taxable Value: | = | $718,045 | |
Taxing Jurisdiction
| Owner: | COLBY A FOX | | |
| % Ownership: | 100.0000000000% | | |
| Total Value: | $718,045 | | |
| Tax Area: | 0111 - 1-50F1E1H2L1 |
| CE | COUNTY CURRENT EXPENSE | 0.9034619479 | $718,045 | $718,045 | $648.73 | | |
| CNTYDD | DEVELOPMENTAL DISABILITIES | 0.0052121823 | $718,045 | $718,045 | $3.74 | | |
| CNTYVET | VETERANS RELIEF | 0.0052777810 | $718,045 | $718,045 | $3.79 | | |
| MENTAL | MENTAL HEALTH | 0.0052121823 | $718,045 | $718,045 | $3.74 | | |
| ROADS | COUNTY ROADS | 0.7415066410 | $718,045 | $718,045 | $532.44 | | |
| ROADSCU | COUNTY ROADS TO CUR EXP | 0.0000000000 | $718,045 | $718,045 | $0.00 | | |
| HOSP2CASH | HOSP DIST #2 GENERAL | 0.0536075306 | $718,045 | $718,045 | $38.49 | | |
| SCH50BOND | SCHOOL DIST #50 BOND 2016 | 0.5377451389 | $718,045 | $718,045 | $386.13 | | |
| SCH50CP | SCHOOL DIST #50 CAP PROJ | 0.4573475088 | $718,045 | $718,045 | $328.40 | | |
| SCH50MO | SCHOOL DIST #50 EP & O | 0.8262822886 | $718,045 | $718,045 | $593.31 | | |
| CONSERVE | CONSERVATION FUTURES | 0.0275621078 | $718,045 | $718,045 | $19.79 | | |
| EMS1 | FIRE DIST #1 EMS | 0.4679948282 | $718,045 | $718,045 | $336.04 | | |
| FD1 | FIRE DIST #1 GENERAL | 1.2171942929 | $718,045 | $718,045 | $874.00 | | |
| LIB1 | LIBRARY DIST #1 GENERAL | 0.2868827388 | $718,045 | $718,045 | $205.99 | | |
| PORTPT | PORT OF PT GENERAL | 0.1134941229 | $718,045 | $718,045 | $81.49 | | |
| PORTPTIDD | PORT OF PT IDD 2019 | 0.2577346692 | $718,045 | $718,045 | $185.07 | | |
| PUD1 | PUD #1 GENERAL | 0.0597888892 | $718,045 | $718,045 | $42.93 | | |
| STATE | STATE SCHOOL PART 1 | 1.4940692947 | $718,045 | $718,045 | $1,072.81 | | |
| STATE2 | STATE SCHOOL PART 2 | 0.8050170049 | $718,045 | $718,045 | $578.04 | | |
| | Total Tax Rate: | 8.2653911500 | | | | | |
| | | | | Taxes w/Current Exemptions: | $5,934.93 | | |
| | | | | Taxes w/o Exemptions: | $5,934.93 | | |
Improvement / Building
| Improvement #1: | Residential Bldg | State Code: | 11 | 1492.0 sqft | Value: | $531,045 |
| Bathrooms (#): | 2 (FULL) | Bathrooms (#): | 1 (HALF) | | Bedrooms (#): | 2 | Exterior Wall: | SI/ST | | Fireplace: | SIN 1-GOOD | Floor Construction: | FRAME | | Foundation: | CONPR | Heating/Cooling: | ELBB | | Roof Cover: | COMP |   |   |
|
| | Type | Description | Class CD | Sub Class CD | Year Built | Area |
| | MA | Main Area | 4+ | 1S | 1969 | 1492.0 |
| | HWPOR | House Wood Porch | 4 | * | 1969 | 168.0 |
| | HDECK | House Deck | 4 | * | 1969 | 590.0 |
| | GBSMT | Basement Garage | 4 | 1S | 1969 | 550.0 |
| | SHED | Shed (Table Not Dep) | 2 | * | 1969 | 120.0 |
| | BSMTF | House basement finished | 4 | * | 1969 | 1038.0 |
| | CONCD | Concrete Drive | 4 | * | 1969 | 420.0 |
Sketch
Property Image
Land
| 1 | 5520-1155L | | 0.0000 | 0.00 | 0.00 | 0.00 | 1.00 | $187,000 | $0 |
Roll Value History
| 2026 | N/A | N/A | N/A | N/A | N/A |
| 2025 | $531,045 | $187,000 | $0 | $718,045 | $718,045 |
| 2024 | $531,045 | $187,000 | $0 | $718,045 | $718,045 |
| 2023 | $476,201 | $173,250 | $0 | $649,451 | $649,451 |
| 2022 | $454,556 | $160,000 | $0 | $614,556 | $614,556 |
Deed and Sales History
| 1 | 11/30/2004 | WD | Warranty Deed | O'HARE, HOMER & LOUISE | FOX, COLBY A | 0 | 0 | $329,000.00 | 102139 | 0 |
| 2 | 10/11/1999 | SWD | Statutory Warranty Deed | RALLS, JACK/CHARLYNE C | KOSSIAN, STEVEN P | 0 | 0 | $190,000.00 | 88099 | 0 |
| 3 | 11/24/1998 | SWD | Statutory Warranty Deed | PULLEN, ARTHUR H/COLLEEN | RALLS, JACK H/CHARLYNE C | 0 | 0 | $170,000.00 | 85867 | 0 |
| 4 | 03/06/1995 | SWD | Statutory Warranty Deed | DOROS, JAMES A/COLLINS, B | PULLEN, ARTHUR H/COLLEEN K | 0 | 0 | $136,500.00 | 76441 | 0 |
Payout Agreement
| No payout information available.. |