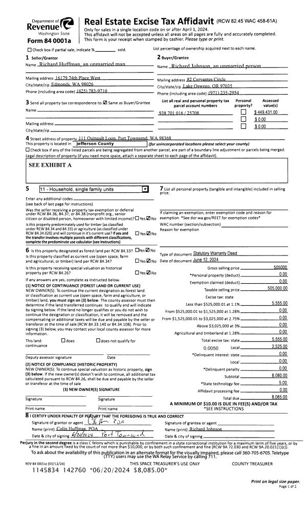
Property
Account |
| Property ID: | 25708 | Abbreviated Legal Description: | CAPE GEORGE COLONY DIV 4 BLK 10 LOT 17 |
| Parcel # / Geo ID: | 938701016 | Agent Code: | |
| Type: | Real | | |
| Tax Area: | 0111 - 1-50F1E1H2L1 | Land Use Code | 11 |
| Open Space: | N | DFL | N |
| Historic Property: | N | Remodel Property: | N |
| Multi-Family Redevelopment: | N | | |
| Township: | 30N | Section: | 12 |
| Range: | 2W |
Location |
| Address: | 111 QUINAULT LOOP PORT TOWNSEND, WA 98368 | Mapsco: | 011/016 |
| Neighborhood: | CAPE GEORGE COLONY (ALL), CRESTHAVEN & DIV 6 | Map ID: | |
| Neighborhood CD: | 5520 |
Owner |
| Name: | RICHARD JOHNSON | Owner ID: | 111005 |
| Mailing Address: | 111 QUINAULT LOOP PORT TOWNSEND, WA 98368-9463 | % Ownership: | 100.0000000000% |
| | | Exemptions: | |
Pay Tax Due
Select the appropriate checkbox next to the year to be paid. Multiple years may be selected.
*Convenience Fee not included
Taxes and Assessment Details
Property Tax Information as of
03/11/2026
Click on "Statement Details" to expand or collapse a tax statement.
* Please enter a valid date ** Please enter a valid date *
Statement Details |
| 2026 | 15088 | STATE - STATE LEVY (SCHOOL) | $566.93 | $566.91 | $0.00 | $0.00 | $0.00 | $1133.84 |
| 2026 | 15088 | COUNTY - COUNTY LEVIES (CE, DD, VET, MH) | $226.66 | $226.64 | $0.00 | $0.00 | $0.00 | $453.30 |
| 2026 | 15088 | CONSERVE - CONSERVATION FUTURES | $6.80 | $6.79 | $0.00 | $0.00 | $0.00 | $13.59 |
| 2026 | 15088 | COROADS - COUNTY ROADS (ROADS, DIV TO CE) | $182.85 | $182.84 | $0.00 | $0.00 | $0.00 | $365.69 |
| 2026 | 15088 | PORTPT - PORT DISTRICT | $91.55 | $91.53 | $0.00 | $0.00 | $0.00 | $183.08 |
| 2026 | 15088 | PUD1 - PUD #1 | $14.75 | $14.74 | $0.00 | $0.00 | $0.00 | $29.49 |
| 2026 | 15088 | LIB1 - LIBRARY DIST #1 | $70.74 | $70.74 | $0.00 | $0.00 | $0.00 | $141.48 |
| 2026 | 15088 | HD2 - HOSP DIST #2 | $13.22 | $13.22 | $0.00 | $0.00 | $0.00 | $26.44 |
| 2026 | 15088 | SD50 - SCHOOL DIST #50 | $449.13 | $449.12 | $0.00 | $0.00 | $0.00 | $898.25 |
| 2026 | 15088 | FD1 - FIRE DISTRICT #1 | $300.14 | $300.14 | $0.00 | $0.00 | $0.00 | $600.28 |
| 2026 | 15088 | EMS1 - FIRE DIST #1 EMS | $115.40 | $115.40 | $0.00 | $0.00 | $0.00 | $230.80 |
| 2026 | 15088 | JCCD - JC Conservation District | $2.55 | $2.55 | $0.00 | $0.00 | $0.00 | $5.10 |
| 2026 | 15088 | NWA - Noxious Weed Assessment | $2.98 | $2.97 | $0.00 | $0.00 | $0.00 | $5.95 |
| 2026 | 15088 | OSS - On Site Septic | $23.10 | $23.10 | $0.00 | $0.00 | $0.00 | $46.20 |
| 2026 | 15088 | WAT - Clean Water District | $13.00 | $13.00 | $0.00 | $0.00 | $0.00 | $26.00 |
| 2026 | 15088 | TOTAL: | $2079.80 | $2079.69 | $0.00 | $0.00 | $0.00 | $4159.49 |
|
| 2026 | 15088 | $2079.80 | $2079.69 | $0.00 | $0.00 | $0.00 | $4159.49 |
Statement Details |
| 2025 | 15139 | STATE - STATE LEVY (SCHOOL) | $591.32 | $591.31 | $0.00 | $0.00 | $1182.63 | $0.00 |
| 2025 | 15139 | COUNTY - COUNTY LEVIES (CE, DD, VET, MH) | $232.54 | $232.51 | $0.00 | $0.00 | $465.05 | $0.00 |
| 2025 | 15139 | CONSERVE - CONSERVATION FUTURES | $6.98 | $6.97 | $0.00 | $0.00 | $13.95 | $0.00 |
| 2025 | 15139 | COROADS - COUNTY ROADS (ROADS, DIV TO CE) | $186.30 | $186.28 | $0.00 | $0.00 | $372.58 | $0.00 |
| 2025 | 15139 | PORTPT - PORT DISTRICT | $94.89 | $94.88 | $0.00 | $0.00 | $189.77 | $0.00 |
| 2025 | 15139 | PUD1 - PUD #1 | $15.22 | $15.21 | $0.00 | $0.00 | $30.43 | $0.00 |
| 2025 | 15139 | LIB1 - LIBRARY DIST #1 | $72.08 | $72.07 | $0.00 | $0.00 | $144.15 | $0.00 |
| 2025 | 15139 | HD2 - HOSP DIST #2 | $13.57 | $13.56 | $0.00 | $0.00 | $27.13 | $0.00 |
| 2025 | 15139 | SD50 - SCHOOL DIST #50 | $432.15 | $432.15 | $0.00 | $0.00 | $864.30 | $0.00 |
| 2025 | 15139 | FD1 - FIRE DISTRICT #1 | $306.85 | $306.85 | $0.00 | $0.00 | $613.70 | $0.00 |
| 2025 | 15139 | EMS1 - FIRE DIST #1 EMS | $118.03 | $118.02 | $0.00 | $0.00 | $236.05 | $0.00 |
| 2025 | 15139 | JCCD - JC Conservation District | $2.55 | $2.55 | $0.00 | $0.00 | $5.10 | $0.00 |
| 2025 | 15139 | NWA - Noxious Weed Assessment | $2.15 | $2.15 | $0.00 | $0.00 | $4.30 | $0.00 |
| 2025 | 15139 | OSS - On Site Septic | $21.50 | $21.50 | $0.00 | $0.00 | $43.00 | $0.00 |
| 2025 | 15139 | WAT - Clean Water District | $13.00 | $13.00 | $0.00 | $0.00 | $26.00 | $0.00 |
| 2025 | 15139 | TOTAL: | $2109.13 | $2109.01 | $0.00 | $0.00 | $4218.14 | $0.00 |
|
| 2025 | 15139 | $2109.13 | $2109.01 | $0.00 | $0.00 | $4218.14 | $0.00 |
Statement Details |
| 2024 | 15170 | STATE - STATE LEVY (SCHOOL) | $519.91 | $519.90 | $0.00 | $0.00 | $1039.81 | $0.00 |
| 2024 | 15170 | COUNTY - COUNTY LEVIES (CE, DD, VET, MH) | $222.48 | $222.45 | $0.00 | $0.00 | $444.93 | $0.00 |
| 2024 | 15170 | CONSERVE - CONSERVATION FUTURES | $6.67 | $6.67 | $0.00 | $0.00 | $13.34 | $0.00 |
| 2024 | 15170 | COROADS - COUNTY ROADS (ROADS, DIV TO CE) | $179.02 | $179.01 | $0.00 | $0.00 | $358.03 | $0.00 |
| 2024 | 15170 | PORTPT - PORT DISTRICT | $91.89 | $91.89 | $0.00 | $0.00 | $183.78 | $0.00 |
| 2024 | 15170 | PUD1 - PUD #1 | $14.62 | $14.61 | $0.00 | $0.00 | $29.23 | $0.00 |
| 2024 | 15170 | LIB1 - LIBRARY DIST #1 | $69.26 | $69.26 | $0.00 | $0.00 | $138.52 | $0.00 |
| 2024 | 15170 | HD2 - HOSP DIST #2 | $12.98 | $12.98 | $0.00 | $0.00 | $25.96 | $0.00 |
| 2024 | 15170 | SD50 - SCHOOL DIST #50 | $420.63 | $420.62 | $0.00 | $0.00 | $841.25 | $0.00 |
| 2024 | 15170 | FD1 - FIRE DISTRICT #1 | $294.16 | $294.16 | $0.00 | $0.00 | $588.32 | $0.00 |
| 2024 | 15170 | EMS1 - FIRE DIST #1 EMS | $112.36 | $112.36 | $0.00 | $0.00 | $224.72 | $0.00 |
| 2024 | 15170 | JCCD - JC Conservation District | $2.55 | $2.55 | $0.00 | $0.00 | $5.10 | $0.00 |
| 2024 | 15170 | NWA - Noxious Weed Assessment | $2.15 | $2.15 | $0.00 | $0.00 | $4.30 | $0.00 |
| 2024 | 15170 | OSS - On Site Septic | $21.00 | $21.00 | $0.00 | $0.00 | $42.00 | $0.00 |
| 2024 | 15170 | WAT - Clean Water District | $12.50 | $12.50 | $0.00 | $0.00 | $25.00 | $0.00 |
| 2024 | 15170 | TOTAL: | $1982.18 | $1982.11 | $0.00 | $0.00 | $3964.29 | $0.00 |
|
| 2024 | 15170 | $1982.18 | $1982.11 | $0.00 | $0.00 | $3964.29 | $0.00 |
Statement Details |
| 2023 | 15194 | STATE - STATE LEVY (SCHOOL) | $498.67 | $498.67 | $0.00 | $0.00 | $997.34 | $0.00 |
| 2023 | 15194 | COUNTY - COUNTY LEVIES (CE, DD, VET, MH) | $217.61 | $217.59 | $0.00 | $0.00 | $435.20 | $0.00 |
| 2023 | 15194 | CONSERVE - CONSERVATION FUTURES | $6.53 | $6.52 | $0.00 | $0.00 | $13.05 | $0.00 |
| 2023 | 15194 | COROADS - COUNTY ROADS (ROADS, DIV TO CE) | $176.07 | $176.05 | $0.00 | $0.00 | $352.12 | $0.00 |
| 2023 | 15194 | PORTPT - PORT DISTRICT | $91.67 | $91.67 | $0.00 | $0.00 | $183.34 | $0.00 |
| 2023 | 15194 | PUD1 - PUD #1 | $14.43 | $14.42 | $0.00 | $0.00 | $28.85 | $0.00 |
| 2023 | 15194 | LIB1 - LIBRARY DIST #1 | $68.12 | $68.11 | $0.00 | $0.00 | $136.23 | $0.00 |
| 2023 | 15194 | HD2 - HOSP DIST #2 | $12.70 | $12.69 | $0.00 | $0.00 | $25.39 | $0.00 |
| 2023 | 15194 | SD50 - SCHOOL DIST #50 | $395.71 | $395.70 | $0.00 | $0.00 | $791.41 | $0.00 |
| 2023 | 15194 | FD1 - FIRE DISTRICT #1 | $179.26 | $179.26 | $0.00 | $0.00 | $358.52 | $0.00 |
| 2023 | 15194 | EMS1 - FIRE DIST #1 EMS | $76.26 | $76.25 | $0.00 | $0.00 | $152.51 | $0.00 |
| 2023 | 15194 | JCCD - JC Conservation District | $2.55 | $2.55 | $0.00 | $0.00 | $5.10 | $0.00 |
| 2023 | 15194 | NWA - Noxious Weed Assessment | $2.15 | $2.15 | $0.00 | $0.00 | $4.30 | $0.00 |
| 2023 | 15194 | OSS - On Site Septic | $20.50 | $20.50 | $0.00 | $0.00 | $41.00 | $0.00 |
| 2023 | 15194 | WAT - Clean Water District | $12.00 | $12.00 | $0.00 | $0.00 | $24.00 | $0.00 |
| 2023 | 15194 | TOTAL: | $1774.23 | $1774.13 | $0.00 | $0.00 | $3548.36 | $0.00 |
|
| 2023 | 15194 | $1774.23 | $1774.13 | $0.00 | $0.00 | $3548.36 | $0.00 |
Values
| (+) Improvement Homesite Value: | + | $0 | |
| (+) Improvement Non-Homesite Value: | + | $317,167 | |
| (+) Land Homesite Value: | + | $0 | |
| (+) Land Non-Homesite Value: | + | $176,000 | |
| (+) Curr Use (HS): | + | $0 | $0 |
| (+) Curr Use (NHS): | + | $0 | $0 |
| | | -------------------------- | |
| (=) Market Value: | = | $493,167 | |
| (–) Productivity Loss: | – | $0 | |
| | | -------------------------- | |
| (=) Subtotal: | = | $493,167 | |
| (+) Senior Appraised Value: | + | $0 | |
| (+) Non-Senior Appraised Value: | + | $493,167 | |
| | | -------------------------- | |
| (=) Total Appraised Value: | = | $493,167 | |
| (–) Senior Exemption Loss: | – | $0 | |
| (–) Exemption Loss: | – | $0 | |
| | | -------------------------- | |
| (=) Taxable Value: | = | $493,167 | |
Taxing Jurisdiction
| Owner: | RICHARD JOHNSON | | |
| % Ownership: | 100.0000000000% | | |
| Total Value: | $493,167 | | |
| Tax Area: | 0111 - 1-50F1E1H2L1 |
| CE | COUNTY CURRENT EXPENSE | 0.9034619479 | $493,167 | $493,167 | $445.56 | | |
| CNTYDD | DEVELOPMENTAL DISABILITIES | 0.0052121823 | $493,167 | $493,167 | $2.57 | | |
| CNTYVET | VETERANS RELIEF | 0.0052777810 | $493,167 | $493,167 | $2.60 | | |
| MENTAL | MENTAL HEALTH | 0.0052121823 | $493,167 | $493,167 | $2.57 | | |
| ROADS | COUNTY ROADS | 0.7415066410 | $493,167 | $493,167 | $365.69 | | |
| ROADSCU | COUNTY ROADS TO CUR EXP | 0.0000000000 | $493,167 | $493,167 | $0.00 | | |
| HOSP2CASH | HOSP DIST #2 GENERAL | 0.0536075306 | $493,167 | $493,167 | $26.44 | | |
| SCH50BOND | SCHOOL DIST #50 BOND 2016 | 0.5377451389 | $493,167 | $493,167 | $265.20 | | |
| SCH50CP | SCHOOL DIST #50 CAP PROJ | 0.4573475088 | $493,167 | $493,167 | $225.55 | | |
| SCH50MO | SCHOOL DIST #50 EP & O | 0.8262822886 | $493,167 | $493,167 | $407.50 | | |
| CONSERVE | CONSERVATION FUTURES | 0.0275621078 | $493,167 | $493,167 | $13.59 | | |
| EMS1 | FIRE DIST #1 EMS | 0.4679948282 | $493,167 | $493,167 | $230.80 | | |
| FD1 | FIRE DIST #1 GENERAL | 1.2171942929 | $493,167 | $493,167 | $600.28 | | |
| LIB1 | LIBRARY DIST #1 GENERAL | 0.2868827388 | $493,167 | $493,167 | $141.48 | | |
| PORTPT | PORT OF PT GENERAL | 0.1134941229 | $493,167 | $493,167 | $55.97 | | |
| PORTPTIDD | PORT OF PT IDD 2019 | 0.2577346692 | $493,167 | $493,167 | $127.11 | | |
| PUD1 | PUD #1 GENERAL | 0.0597888892 | $493,167 | $493,167 | $29.49 | | |
| STATE | STATE SCHOOL PART 1 | 1.4940692947 | $493,167 | $493,167 | $736.83 | | |
| STATE2 | STATE SCHOOL PART 2 | 0.8050170049 | $493,167 | $493,167 | $397.01 | | |
| | Total Tax Rate: | 8.2653911500 | | | | | |
| | | | | Taxes w/Current Exemptions: | $4,076.24 | | |
| | | | | Taxes w/o Exemptions: | $4,076.24 | | |
Improvement / Building
| Improvement #1: | Residential Bldg | State Code: | 11 | 936.0 sqft | Value: | $317,167 |
| Bathrooms (#): | 1 (FULL) | Bedrooms (#): | 1 | | Exterior Wall: | SI/ST | Fireplace: | WD ST-GOOD | | Floor Construction: | FRAME | Foundation: | CONPR | | Heating/Cooling: | HPUMP | Roof Cover: | COMP |
|
| | Type | Description | Class CD | Sub Class CD | Year Built | Area |
| | MA | Main Area | 5- | 1S | 1969 | 936.0 |
| | HWPOR | House Wood Porch | 4 | * | 1969 | 48.0 |
| | HDECK | House Deck | 4 | * | 1969 | 502.0 |
| | CARPTF | Carport W/Floor | 4 | * | 1969 | 280.0 |
| | SHED | Shed (Table Not Dep) | 4 | * | 1969 | 48.0 |
| | ASPHD | Asphalt Drive | 4 | * | 1969 | 1000.0 |
Sketch
Property Image
Land
| 1 | 5520-1165L | | 0.0000 | 0.00 | 0.00 | 0.00 | 1.00 | $176,000 | $0 |
Roll Value History
| 2026 | N/A | N/A | N/A | N/A | N/A |
| 2025 | $317,167 | $176,000 | $0 | $493,167 | $493,167 |
| 2024 | $317,167 | $176,000 | $0 | $493,167 | $493,167 |
| 2023 | $286,681 | $162,750 | $0 | $449,431 | $449,431 |
| 2022 | $273,650 | $150,000 | $0 | $423,650 | $423,650 |
Deed and Sales History
| 1 | 06/12/2024 | SWD | Statutory Warranty Deed | RICHARD HUFFMAN | RICHARD JOHNSON | | | $505,000.00 | 142760 | |
| 2 | 06/23/2017 | SWD | Statutory Warranty Deed | COLLEEN V JOHNSON | RICHARD HUFFMAN | | | $270,000.00 | 127970 | |
| 3 | 08/09/2005 | SWD | Statutory Warranty Deed | BULLEN, CHARLES A & JO AN | JOHNSON, COLLEEN V | 0 | 0 | $282,500.00 | 104503 | 0 |
| 4 | 03/29/2005 | QCD | Quit Claim Deed | BULLEN, CHARLES A/JO ANNE | BULLEN, CHARLES A/JO ANNE ETHE | | | $0.00 | 103175 | 0 |
| 5 | 03/29/2005 | QCD | Quit Claim Deed | ETHERIDGE, JO ANNE | BULLEN, CHARLES A/JO ANNE ETHE | | | $0.00 | 103174 | 0 |
| 6 | 05/31/1995 | QCD | Quit Claim Deed | MOLISKY, JOANNE ETHERIDGE | ETHERIDGE, JOANNE | 0 | 0 | $0.00 | 77043 | 0 |
| 7 | 05/03/1995 | QCD | Quit Claim Deed | MOLISKY, CHARLES F | MOLISKY, JOANNE ETHERIDGE | 0 | 0 | $0.00 | 76852 | 0 |
Payout Agreement
| No payout information available.. |