Property
Account |
| Property ID: | 25726 | Abbreviated Legal Description: | CAPE GEORGE COLONY DIV 4 BLK 10 LOTS 36 & 37 REST COVT #589990 |
| Parcel # / Geo ID: | 938701034 | Agent Code: | |
| Type: | Real | | |
| Tax Area: | 0111 - 1-50F1E1H2L1 | Land Use Code | 11 |
| Open Space: | N | DFL | N |
| Historic Property: | N | Remodel Property: | N |
| Multi-Family Redevelopment: | N | | |
| Township: | 30N | Section: | 13 |
| Range: | 2W |
Location |
| Address: | 37 QUILCENE PL PORT TOWNSEND, WA 98368 | Mapsco: | 011/035 |
| Neighborhood: | CAPE GEORGE COLONY (ALL), CRESTHAVEN & DIV 6 | Map ID: | |
| Neighborhood CD: | 5520 |
Owner |
| Name: | MICHAEL THORWICK & SHIRLEY SCHEIER | Owner ID: | 90708 |
| Mailing Address: | 37 QUILCENE PLACE PORT TOWNSEND, WA 98368 | % Ownership: | 100.0000000000% |
| | | Exemptions: | |
Pay Tax Due
Select the appropriate checkbox next to the year to be paid. Multiple years may be selected.
*Convenience Fee not included
Taxes and Assessment Details
Property Tax Information as of
03/10/2026
Click on "Statement Details" to expand or collapse a tax statement.
* Please enter a valid date ** Please enter a valid date *
Statement Details |
| 2026 | 15106 | STATE - STATE LEVY (SCHOOL) | $1391.22 | $1391.22 | $0.00 | $0.00 | $0.00 | $2782.44 |
| 2026 | 15106 | COUNTY - COUNTY LEVIES (CE, DD, VET, MH) | $556.22 | $556.19 | $0.00 | $0.00 | $0.00 | $1112.41 |
| 2026 | 15106 | CONSERVE - CONSERVATION FUTURES | $16.68 | $16.68 | $0.00 | $0.00 | $0.00 | $33.36 |
| 2026 | 15106 | COROADS - COUNTY ROADS (ROADS, DIV TO CE) | $448.70 | $448.70 | $0.00 | $0.00 | $0.00 | $897.40 |
| 2026 | 15106 | PORTPT - PORT DISTRICT | $224.64 | $224.64 | $0.00 | $0.00 | $0.00 | $449.28 |
| 2026 | 15106 | PUD1 - PUD #1 | $36.18 | $36.18 | $0.00 | $0.00 | $0.00 | $72.36 |
| 2026 | 15106 | LIB1 - LIBRARY DIST #1 | $173.60 | $173.60 | $0.00 | $0.00 | $0.00 | $347.20 |
| 2026 | 15106 | HD2 - HOSP DIST #2 | $32.44 | $32.44 | $0.00 | $0.00 | $0.00 | $64.88 |
| 2026 | 15106 | SD50 - SCHOOL DIST #50 | $1102.15 | $1102.15 | $0.00 | $0.00 | $0.00 | $2204.30 |
| 2026 | 15106 | FD1 - FIRE DISTRICT #1 | $736.55 | $736.55 | $0.00 | $0.00 | $0.00 | $1473.10 |
| 2026 | 15106 | EMS1 - FIRE DIST #1 EMS | $283.20 | $283.19 | $0.00 | $0.00 | $0.00 | $566.39 |
| 2026 | 15106 | JCCD - JC Conservation District | $2.55 | $2.55 | $0.00 | $0.00 | $0.00 | $5.10 |
| 2026 | 15106 | NWA - Noxious Weed Assessment | $2.98 | $2.97 | $0.00 | $0.00 | $0.00 | $5.95 |
| 2026 | 15106 | OSS - On Site Septic | $23.10 | $23.10 | $0.00 | $0.00 | $0.00 | $46.20 |
| 2026 | 15106 | WAT - Clean Water District | $13.00 | $13.00 | $0.00 | $0.00 | $0.00 | $26.00 |
| 2026 | 15106 | TOTAL: | $5043.21 | $5043.16 | $0.00 | $0.00 | $0.00 | $10086.37 |
|
| 2026 | 15106 | $5043.21 | $5043.16 | $0.00 | $0.00 | $0.00 | $10086.37 |
Statement Details |
| 2025 | 15157 | STATE - STATE LEVY (SCHOOL) | $1451.10 | $1451.09 | $0.00 | $0.00 | $2902.19 | $0.00 |
| 2025 | 15157 | COUNTY - COUNTY LEVIES (CE, DD, VET, MH) | $570.64 | $570.63 | $0.00 | $0.00 | $1141.27 | $0.00 |
| 2025 | 15157 | CONSERVE - CONSERVATION FUTURES | $17.11 | $17.11 | $0.00 | $0.00 | $34.22 | $0.00 |
| 2025 | 15157 | COROADS - COUNTY ROADS (ROADS, DIV TO CE) | $457.17 | $457.16 | $0.00 | $0.00 | $914.33 | $0.00 |
| 2025 | 15157 | PORTPT - PORT DISTRICT | $232.85 | $232.85 | $0.00 | $0.00 | $465.70 | $0.00 |
| 2025 | 15157 | PUD1 - PUD #1 | $37.34 | $37.34 | $0.00 | $0.00 | $74.68 | $0.00 |
| 2025 | 15157 | LIB1 - LIBRARY DIST #1 | $176.88 | $176.87 | $0.00 | $0.00 | $353.75 | $0.00 |
| 2025 | 15157 | HD2 - HOSP DIST #2 | $33.29 | $33.29 | $0.00 | $0.00 | $66.58 | $0.00 |
| 2025 | 15157 | SD50 - SCHOOL DIST #50 | $1060.52 | $1060.50 | $0.00 | $0.00 | $2121.02 | $0.00 |
| 2025 | 15157 | FD1 - FIRE DISTRICT #1 | $753.02 | $753.01 | $0.00 | $0.00 | $1506.03 | $0.00 |
| 2025 | 15157 | EMS1 - FIRE DIST #1 EMS | $289.63 | $289.63 | $0.00 | $0.00 | $579.26 | $0.00 |
| 2025 | 15157 | JCCD - JC Conservation District | $2.55 | $2.55 | $0.00 | $0.00 | $5.10 | $0.00 |
| 2025 | 15157 | NWA - Noxious Weed Assessment | $2.15 | $2.15 | $0.00 | $0.00 | $4.30 | $0.00 |
| 2025 | 15157 | OSS - On Site Septic | $21.50 | $21.50 | $0.00 | $0.00 | $43.00 | $0.00 |
| 2025 | 15157 | WAT - Clean Water District | $13.00 | $13.00 | $0.00 | $0.00 | $26.00 | $0.00 |
| 2025 | 15157 | TOTAL: | $5118.75 | $5118.68 | $0.00 | $0.00 | $10237.43 | $0.00 |
|
| 2025 | 15157 | $5118.75 | $5118.68 | $0.00 | $0.00 | $10237.43 | $0.00 |
Statement Details |
| 2024 | 15188 | STATE - STATE LEVY (SCHOOL) | $1484.16 | $1484.15 | $0.00 | $0.00 | $2968.31 | $0.00 |
| 2024 | 15188 | COUNTY - COUNTY LEVIES (CE, DD, VET, MH) | $635.09 | $635.07 | $0.00 | $0.00 | $1270.16 | $0.00 |
| 2024 | 15188 | CONSERVE - CONSERVATION FUTURES | $19.05 | $19.04 | $0.00 | $0.00 | $38.09 | $0.00 |
| 2024 | 15188 | COROADS - COUNTY ROADS (ROADS, DIV TO CE) | $511.04 | $511.02 | $0.00 | $0.00 | $1022.06 | $0.00 |
| 2024 | 15188 | PORTPT - PORT DISTRICT | $262.32 | $262.31 | $0.00 | $0.00 | $524.63 | $0.00 |
| 2024 | 15188 | PUD1 - PUD #1 | $41.72 | $41.71 | $0.00 | $0.00 | $83.43 | $0.00 |
| 2024 | 15188 | LIB1 - LIBRARY DIST #1 | $197.72 | $197.71 | $0.00 | $0.00 | $395.43 | $0.00 |
| 2024 | 15188 | HD2 - HOSP DIST #2 | $37.06 | $37.05 | $0.00 | $0.00 | $74.11 | $0.00 |
| 2024 | 15188 | SD50 - SCHOOL DIST #50 | $1200.75 | $1200.74 | $0.00 | $0.00 | $2401.49 | $0.00 |
| 2024 | 15188 | FD1 - FIRE DISTRICT #1 | $839.73 | $839.73 | $0.00 | $0.00 | $1679.46 | $0.00 |
| 2024 | 15188 | EMS1 - FIRE DIST #1 EMS | $320.75 | $320.74 | $0.00 | $0.00 | $641.49 | $0.00 |
| 2024 | 15188 | JCCD - JC Conservation District | $2.55 | $2.55 | $0.00 | $0.00 | $5.10 | $0.00 |
| 2024 | 15188 | NWA - Noxious Weed Assessment | $2.15 | $2.15 | $0.00 | $0.00 | $4.30 | $0.00 |
| 2024 | 15188 | OSS - On Site Septic | $21.00 | $21.00 | $0.00 | $0.00 | $42.00 | $0.00 |
| 2024 | 15188 | WAT - Clean Water District | $12.50 | $12.50 | $0.00 | $0.00 | $25.00 | $0.00 |
| 2024 | 15188 | TOTAL: | $5587.59 | $5587.47 | $0.00 | $0.00 | $11175.06 | $0.00 |
|
| 2024 | 15188 | $5587.59 | $5587.47 | $0.00 | $0.00 | $11175.06 | $0.00 |
Statement Details |
| 2023 | 15212 | STATE - STATE LEVY (SCHOOL) | $1434.68 | $1434.67 | $0.00 | $0.00 | $2869.35 | $0.00 |
| 2023 | 15212 | COUNTY - COUNTY LEVIES (CE, DD, VET, MH) | $626.06 | $626.04 | $0.00 | $0.00 | $1252.10 | $0.00 |
| 2023 | 15212 | CONSERVE - CONSERVATION FUTURES | $18.78 | $18.77 | $0.00 | $0.00 | $37.55 | $0.00 |
| 2023 | 15212 | COROADS - COUNTY ROADS (ROADS, DIV TO CE) | $506.52 | $506.52 | $0.00 | $0.00 | $1013.04 | $0.00 |
| 2023 | 15212 | PORTPT - PORT DISTRICT | $263.73 | $263.72 | $0.00 | $0.00 | $527.45 | $0.00 |
| 2023 | 15212 | PUD1 - PUD #1 | $41.50 | $41.50 | $0.00 | $0.00 | $83.00 | $0.00 |
| 2023 | 15212 | LIB1 - LIBRARY DIST #1 | $195.97 | $195.96 | $0.00 | $0.00 | $391.93 | $0.00 |
| 2023 | 15212 | HD2 - HOSP DIST #2 | $36.54 | $36.53 | $0.00 | $0.00 | $73.07 | $0.00 |
| 2023 | 15212 | SD50 - SCHOOL DIST #50 | $1138.44 | $1138.44 | $0.00 | $0.00 | $2276.88 | $0.00 |
| 2023 | 15212 | FD1 - FIRE DISTRICT #1 | $515.74 | $515.74 | $0.00 | $0.00 | $1031.48 | $0.00 |
| 2023 | 15212 | EMS1 - FIRE DIST #1 EMS | $219.39 | $219.38 | $0.00 | $0.00 | $438.77 | $0.00 |
| 2023 | 15212 | JCCD - JC Conservation District | $2.55 | $2.55 | $0.00 | $0.00 | $5.10 | $0.00 |
| 2023 | 15212 | NWA - Noxious Weed Assessment | $2.15 | $2.15 | $0.00 | $0.00 | $4.30 | $0.00 |
| 2023 | 15212 | OSS - On Site Septic | $20.50 | $20.50 | $0.00 | $0.00 | $41.00 | $0.00 |
| 2023 | 15212 | WAT - Clean Water District | $12.00 | $12.00 | $0.00 | $0.00 | $24.00 | $0.00 |
| 2023 | 15212 | TOTAL: | $5034.55 | $5034.47 | $0.00 | $0.00 | $10069.02 | $0.00 |
|
| 2023 | 15212 | $5034.55 | $5034.47 | $0.00 | $0.00 | $10069.02 | $0.00 |
Values
| (+) Improvement Homesite Value: | + | $0 | |
| (+) Improvement Non-Homesite Value: | + | $805,989 | |
| (+) Land Homesite Value: | + | $0 | |
| (+) Land Non-Homesite Value: | + | $404,250 | |
| (+) Curr Use (HS): | + | $0 | $0 |
| (+) Curr Use (NHS): | + | $0 | $0 |
| | | -------------------------- | |
| (=) Market Value: | = | $1,210,239 | |
| (–) Productivity Loss: | – | $0 | |
| | | -------------------------- | |
| (=) Subtotal: | = | $1,210,239 | |
| (+) Senior Appraised Value: | + | $0 | |
| (+) Non-Senior Appraised Value: | + | $1,210,239 | |
| | | -------------------------- | |
| (=) Total Appraised Value: | = | $1,210,239 | |
| (–) Senior Exemption Loss: | – | $0 | |
| (–) Exemption Loss: | – | $0 | |
| | | -------------------------- | |
| (=) Taxable Value: | = | $1,210,239 | |
Taxing Jurisdiction
| Owner: | MICHAEL THORWICK & SHIRLEY SCHEIER | | |
| % Ownership: | 100.0000000000% | | |
| Total Value: | $1,210,239 | | |
| Tax Area: | 0111 - 1-50F1E1H2L1 |
| CE | COUNTY CURRENT EXPENSE | 0.9034619479 | $1,210,239 | $1,210,239 | $1,093.40 | | |
| CNTYDD | DEVELOPMENTAL DISABILITIES | 0.0052121823 | $1,210,239 | $1,210,239 | $6.31 | | |
| CNTYVET | VETERANS RELIEF | 0.0052777810 | $1,210,239 | $1,210,239 | $6.39 | | |
| MENTAL | MENTAL HEALTH | 0.0052121823 | $1,210,239 | $1,210,239 | $6.31 | | |
| ROADS | COUNTY ROADS | 0.7415066410 | $1,210,239 | $1,210,239 | $897.40 | | |
| ROADSCU | COUNTY ROADS TO CUR EXP | 0.0000000000 | $1,210,239 | $1,210,239 | $0.00 | | |
| HOSP2CASH | HOSP DIST #2 GENERAL | 0.0536075306 | $1,210,239 | $1,210,239 | $64.88 | | |
| SCH50BOND | SCHOOL DIST #50 BOND 2016 | 0.5377451389 | $1,210,239 | $1,210,239 | $650.80 | | |
| SCH50CP | SCHOOL DIST #50 CAP PROJ | 0.4573475088 | $1,210,239 | $1,210,239 | $553.50 | | |
| SCH50MO | SCHOOL DIST #50 EP & O | 0.8262822886 | $1,210,239 | $1,210,239 | $1,000.00 | | |
| CONSERVE | CONSERVATION FUTURES | 0.0275621078 | $1,210,239 | $1,210,239 | $33.36 | | |
| EMS1 | FIRE DIST #1 EMS | 0.4679948282 | $1,210,239 | $1,210,239 | $566.39 | | |
| FD1 | FIRE DIST #1 GENERAL | 1.2171942929 | $1,210,239 | $1,210,239 | $1,473.10 | | |
| LIB1 | LIBRARY DIST #1 GENERAL | 0.2868827388 | $1,210,239 | $1,210,239 | $347.20 | | |
| PORTPT | PORT OF PT GENERAL | 0.1134941229 | $1,210,239 | $1,210,239 | $137.36 | | |
| PORTPTIDD | PORT OF PT IDD 2019 | 0.2577346692 | $1,210,239 | $1,210,239 | $311.92 | | |
| PUD1 | PUD #1 GENERAL | 0.0597888892 | $1,210,239 | $1,210,239 | $72.36 | | |
| STATE | STATE SCHOOL PART 1 | 1.4940692947 | $1,210,239 | $1,210,239 | $1,808.18 | | |
| STATE2 | STATE SCHOOL PART 2 | 0.8050170049 | $1,210,239 | $1,210,239 | $974.26 | | |
| | Total Tax Rate: | 8.2653911500 | | | | | |
| | | | | Taxes w/Current Exemptions: | $10,003.12 | | |
| | | | | Taxes w/o Exemptions: | $10,003.12 | | |
Improvement / Building
| Improvement #1: | Residential Bldg | State Code: | 11 | 1310.0 sqft | Value: | $527,812 |
| Bathrooms (#): | 2 (FULL) | Bathrooms (#): | 1 (FULL) | | Bedrooms (#): | 2 | Exterior Wall: | PL/T1 | | Fireplace: | SIN 1-GOOD | Floor Construction: | FRAME | | Foundation: | CONPR | Heating/Cooling: | HPUMP | | Inside Verify: | NO | Roof Cover: | COMP |
|
| | Type | Description | Class CD | Sub Class CD | Year Built | Area |
| | MA | Main Area | 4 | 1S | 2000 | 1310.0 |
| | HRPO | House Roof Patio | 4 | * | 2000 | 284.0 |
| | HWPOR | House Wood Porch | 4 | * | 2000 | 108.0 |
| | HCPOR | House Concrete Porch | 4 | * | 2000 | 80.0 |
| | HDECK | House Deck | 4 | * | 2000 | 824.0 |
| | GATT | House Attached Garage | 4 | 1S | 2000 | 576.0 |
| | BSMTF | House basement finished | 4 | * | 2000 | 1186.0 |
| | HWPOR | House Wood Porch | 4 | * | 2000 | 188.0 |
| Improvement #2: | Residential Bldg | State Code: | 11 | 1117.5 sqft | Value: | $278,177 |
| Bathrooms (#): | 1 (HALF) | Exterior Wall: | SI/ST | | Floor Construction: | CONCR | Foundation: | CONPR | | Heating/Cooling: | HPUMP | Inside Verify: | YES | | Roof Cover: | COMP |   |   |
|
| | Type | Description | Class CD | Sub Class CD | Year Built | Area |
| | MA | Main Area | 4- | 1S | 2015 | 1117.5 |
| | HCPOR | House Concrete Porch | 4 | * | 2017 | 84.0 |
| | SOLAR | Solar Panel | 5 | * | 2015 | 0.0 |
Sketch
Property Image
Land
| 1 | 5520-1145L | | 0.0000 | 0.00 | 0.00 | 0.00 | 1.00 | $280,500 | $0 |
| 2 | 5520-1145L | | 0.0000 | 0.00 | 0.00 | 0.00 | 1.00 | $123,750 | $0 |
Roll Value History
| 2026 | N/A | N/A | N/A | N/A | N/A |
| 2025 | $805,989 | $404,250 | $0 | $1,210,239 | $1,210,239 |
| 2024 | $805,989 | $404,250 | $0 | $1,210,239 | $1,210,239 |
| 2023 | $902,358 | $380,625 | $0 | $1,282,983 | $1,282,983 |
| 2022 | $861,343 | $357,500 | $0 | $1,218,843 | $1,218,843 |
Deed and Sales History
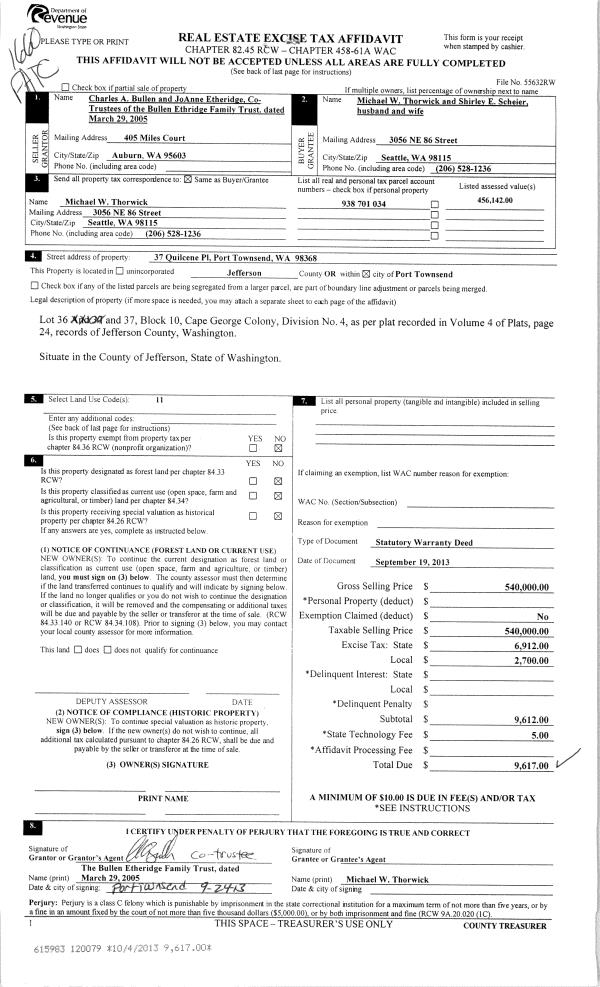
| 1 | 09/19/2013 | SWD | Statutory Warranty Deed | BULLEN ETHERIDGE FAMILY TRUST | MICHAEL THORWICK & SHIRLEY SCHEIER | | | $540,000.00 | 120079 | |
| 2 | 10/10/2007 | SWD | Statutory Warranty Deed | BRANCH, WILBURN L/CAMILLE | BULLEN, CHARLES/ETHERIDGE, | 0 | 0 | $642,500.00 | 110278 | 0 |
| 3 | 09/23/1999 | SWD | Statutory Warranty Deed | COOPER, LLOYD R | BRANCH, WILBURN L/CAMILLE H | 0 | 0 | $54,500.00 | 87938 | 0 |
| 4 | 02/10/1992 | SWD | Statutory Warranty Deed | CHASE, PAULINE | COOPER, LLOYD R | 0 | 0 | $16,000.00 | 67748 | 0 |
Payout Agreement
| No payout information available.. |