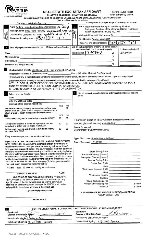
Property
Account |
| Property ID: | 25750 | Abbreviated Legal Description: | CAPE GEORGE COLONY DIV 5 BLK 12 LOT 1 |
| Parcel # / Geo ID: | 939001201 | Agent Code: | |
| Type: | Real | | |
| Tax Area: | 0111 - 1-50F1E1H2L1 | Land Use Code | 11 |
| Open Space: | N | DFL | N |
| Historic Property: | N | Remodel Property: | N |
| Multi-Family Redevelopment: | N | | |
| Township: | 30N | Section: | 13 |
| Range: | 2W |
Location |
| Address: | 481 SUNSET BLVD PORT TOWNSEND, WA 98368 | Mapsco: | 011/059 |
| Neighborhood: | CAPE GEORGE COLONY (ALL), CRESTHAVEN & DIV 6 | Map ID: | |
| Neighborhood CD: | 5520 |
Owner |
| Name: | VICTOR & NANCY RODRIGUEZ FAMILY TRUST | Owner ID: | 96571 |
| Mailing Address: | VICTOR & NANCY RODRIGUEZ TRUSTEES 1827 SW MYRTLE ST PORTLAND, OR 97201-2373 | % Ownership: | 100.0000000000% |
| | | Exemptions: | |
Pay Tax Due
Select the appropriate checkbox next to the year to be paid. Multiple years may be selected.
*Convenience Fee not included
Taxes and Assessment Details
Property Tax Information as of
03/10/2026
Click on "Statement Details" to expand or collapse a tax statement.
* Please enter a valid date ** Please enter a valid date *
Statement Details |
| 2026 | 15130 | STATE - STATE LEVY (SCHOOL) | $892.77 | $892.76 | $0.00 | $0.00 | $0.00 | $1785.53 |
| 2026 | 15130 | COUNTY - COUNTY LEVIES (CE, DD, VET, MH) | $356.94 | $356.91 | $0.00 | $0.00 | $0.00 | $713.85 |
| 2026 | 15130 | CONSERVE - CONSERVATION FUTURES | $10.71 | $10.70 | $0.00 | $0.00 | $0.00 | $21.41 |
| 2026 | 15130 | COROADS - COUNTY ROADS (ROADS, DIV TO CE) | $287.94 | $287.93 | $0.00 | $0.00 | $0.00 | $575.87 |
| 2026 | 15130 | PORTPT - PORT DISTRICT | $144.15 | $144.15 | $0.00 | $0.00 | $0.00 | $288.30 |
| 2026 | 15130 | PUD1 - PUD #1 | $23.22 | $23.21 | $0.00 | $0.00 | $0.00 | $46.43 |
| 2026 | 15130 | LIB1 - LIBRARY DIST #1 | $111.40 | $111.40 | $0.00 | $0.00 | $0.00 | $222.80 |
| 2026 | 15130 | HD2 - HOSP DIST #2 | $20.82 | $20.81 | $0.00 | $0.00 | $0.00 | $41.63 |
| 2026 | 15130 | SD50 - SCHOOL DIST #50 | $707.28 | $707.25 | $0.00 | $0.00 | $0.00 | $1414.53 |
| 2026 | 15130 | FD1 - FIRE DISTRICT #1 | $472.66 | $472.65 | $0.00 | $0.00 | $0.00 | $945.31 |
| 2026 | 15130 | EMS1 - FIRE DIST #1 EMS | $181.73 | $181.73 | $0.00 | $0.00 | $0.00 | $363.46 |
| 2026 | 15130 | JCCD - JC Conservation District | $2.55 | $2.55 | $0.00 | $0.00 | $0.00 | $5.10 |
| 2026 | 15130 | NWA - Noxious Weed Assessment | $2.98 | $2.97 | $0.00 | $0.00 | $0.00 | $5.95 |
| 2026 | 15130 | OSS - On Site Septic | $23.10 | $23.10 | $0.00 | $0.00 | $0.00 | $46.20 |
| 2026 | 15130 | WAT - Clean Water District | $13.00 | $13.00 | $0.00 | $0.00 | $0.00 | $26.00 |
| 2026 | 15130 | TOTAL: | $3251.25 | $3251.12 | $0.00 | $0.00 | $0.00 | $6502.37 |
|
| 2026 | 15130 | $3251.25 | $3251.12 | $0.00 | $0.00 | $0.00 | $6502.37 |
Statement Details |
| 2025 | 15181 | STATE - STATE LEVY (SCHOOL) | $931.19 | $931.18 | $0.00 | $0.00 | $1862.37 | $0.00 |
| 2025 | 15181 | COUNTY - COUNTY LEVIES (CE, DD, VET, MH) | $366.18 | $366.18 | $0.00 | $0.00 | $732.36 | $0.00 |
| 2025 | 15181 | CONSERVE - CONSERVATION FUTURES | $10.98 | $10.98 | $0.00 | $0.00 | $21.96 | $0.00 |
| 2025 | 15181 | COROADS - COUNTY ROADS (ROADS, DIV TO CE) | $293.38 | $293.36 | $0.00 | $0.00 | $586.74 | $0.00 |
| 2025 | 15181 | PORTPT - PORT DISTRICT | $149.43 | $149.42 | $0.00 | $0.00 | $298.85 | $0.00 |
| 2025 | 15181 | PUD1 - PUD #1 | $23.96 | $23.96 | $0.00 | $0.00 | $47.92 | $0.00 |
| 2025 | 15181 | LIB1 - LIBRARY DIST #1 | $113.51 | $113.50 | $0.00 | $0.00 | $227.01 | $0.00 |
| 2025 | 15181 | HD2 - HOSP DIST #2 | $21.37 | $21.36 | $0.00 | $0.00 | $42.73 | $0.00 |
| 2025 | 15181 | SD50 - SCHOOL DIST #50 | $680.55 | $680.53 | $0.00 | $0.00 | $1361.08 | $0.00 |
| 2025 | 15181 | FD1 - FIRE DISTRICT #1 | $483.22 | $483.22 | $0.00 | $0.00 | $966.44 | $0.00 |
| 2025 | 15181 | EMS1 - FIRE DIST #1 EMS | $185.86 | $185.86 | $0.00 | $0.00 | $371.72 | $0.00 |
| 2025 | 15181 | JCCD - JC Conservation District | $2.55 | $2.55 | $0.00 | $0.00 | $5.10 | $0.00 |
| 2025 | 15181 | NWA - Noxious Weed Assessment | $2.15 | $2.15 | $0.00 | $0.00 | $4.30 | $0.00 |
| 2025 | 15181 | OSS - On Site Septic | $21.50 | $21.50 | $0.00 | $0.00 | $43.00 | $0.00 |
| 2025 | 15181 | WAT - Clean Water District | $13.00 | $13.00 | $0.00 | $0.00 | $26.00 | $0.00 |
| 2025 | 15181 | TOTAL: | $3298.83 | $3298.75 | $0.00 | $0.00 | $6597.58 | $0.00 |
|
| 2025 | 15181 | $3298.83 | $3298.75 | $0.00 | $0.00 | $6597.58 | $0.00 |
Statement Details |
| 2024 | 15212 | STATE - STATE LEVY (SCHOOL) | $853.89 | $853.88 | $0.00 | $0.00 | $1707.77 | $0.00 |
| 2024 | 15212 | COUNTY - COUNTY LEVIES (CE, DD, VET, MH) | $365.40 | $365.38 | $0.00 | $0.00 | $730.78 | $0.00 |
| 2024 | 15212 | CONSERVE - CONSERVATION FUTURES | $10.96 | $10.95 | $0.00 | $0.00 | $21.91 | $0.00 |
| 2024 | 15212 | COROADS - COUNTY ROADS (ROADS, DIV TO CE) | $294.01 | $294.01 | $0.00 | $0.00 | $588.02 | $0.00 |
| 2024 | 15212 | PORTPT - PORT DISTRICT | $150.93 | $150.91 | $0.00 | $0.00 | $301.84 | $0.00 |
| 2024 | 15212 | PUD1 - PUD #1 | $24.00 | $24.00 | $0.00 | $0.00 | $48.00 | $0.00 |
| 2024 | 15212 | LIB1 - LIBRARY DIST #1 | $113.75 | $113.75 | $0.00 | $0.00 | $227.50 | $0.00 |
| 2024 | 15212 | HD2 - HOSP DIST #2 | $21.32 | $21.32 | $0.00 | $0.00 | $42.64 | $0.00 |
| 2024 | 15212 | SD50 - SCHOOL DIST #50 | $690.84 | $690.82 | $0.00 | $0.00 | $1381.66 | $0.00 |
| 2024 | 15212 | FD1 - FIRE DISTRICT #1 | $483.13 | $483.12 | $0.00 | $0.00 | $966.25 | $0.00 |
| 2024 | 15212 | EMS1 - FIRE DIST #1 EMS | $184.54 | $184.53 | $0.00 | $0.00 | $369.07 | $0.00 |
| 2024 | 15212 | JCCD - JC Conservation District | $2.55 | $2.55 | $0.00 | $0.00 | $5.10 | $0.00 |
| 2024 | 15212 | NWA - Noxious Weed Assessment | $2.15 | $2.15 | $0.00 | $0.00 | $4.30 | $0.00 |
| 2024 | 15212 | OSS - On Site Septic | $21.00 | $21.00 | $0.00 | $0.00 | $42.00 | $0.00 |
| 2024 | 15212 | WAT - Clean Water District | $12.50 | $12.50 | $0.00 | $0.00 | $25.00 | $0.00 |
| 2024 | 15212 | TOTAL: | $3230.97 | $3230.87 | $0.00 | $0.00 | $6461.84 | $0.00 |
|
| 2024 | 15212 | $3230.97 | $3230.87 | $0.00 | $0.00 | $6461.84 | $0.00 |
Statement Details |
| 2023 | 15236 | STATE - STATE LEVY (SCHOOL) | $822.93 | $822.92 | $0.00 | $0.00 | $1645.85 | $0.00 |
| 2023 | 15236 | COUNTY - COUNTY LEVIES (CE, DD, VET, MH) | $359.11 | $359.10 | $0.00 | $0.00 | $718.21 | $0.00 |
| 2023 | 15236 | CONSERVE - CONSERVATION FUTURES | $10.77 | $10.77 | $0.00 | $0.00 | $21.54 | $0.00 |
| 2023 | 15236 | COROADS - COUNTY ROADS (ROADS, DIV TO CE) | $290.55 | $290.53 | $0.00 | $0.00 | $581.08 | $0.00 |
| 2023 | 15236 | PORTPT - PORT DISTRICT | $151.27 | $151.27 | $0.00 | $0.00 | $302.54 | $0.00 |
| 2023 | 15236 | PUD1 - PUD #1 | $23.81 | $23.80 | $0.00 | $0.00 | $47.61 | $0.00 |
| 2023 | 15236 | LIB1 - LIBRARY DIST #1 | $112.41 | $112.40 | $0.00 | $0.00 | $224.81 | $0.00 |
| 2023 | 15236 | HD2 - HOSP DIST #2 | $20.96 | $20.95 | $0.00 | $0.00 | $41.91 | $0.00 |
| 2023 | 15236 | SD50 - SCHOOL DIST #50 | $653.02 | $653.00 | $0.00 | $0.00 | $1306.02 | $0.00 |
| 2023 | 15236 | FD1 - FIRE DISTRICT #1 | $295.83 | $295.82 | $0.00 | $0.00 | $591.65 | $0.00 |
| 2023 | 15236 | EMS1 - FIRE DIST #1 EMS | $125.84 | $125.84 | $0.00 | $0.00 | $251.68 | $0.00 |
| 2023 | 15236 | JCCD - JC Conservation District | $2.55 | $2.55 | $0.00 | $0.00 | $5.10 | $0.00 |
| 2023 | 15236 | NWA - Noxious Weed Assessment | $2.15 | $2.15 | $0.00 | $0.00 | $4.30 | $0.00 |
| 2023 | 15236 | OSS - On Site Septic | $20.50 | $20.50 | $0.00 | $0.00 | $41.00 | $0.00 |
| 2023 | 15236 | WAT - Clean Water District | $12.00 | $12.00 | $0.00 | $0.00 | $24.00 | $0.00 |
| 2023 | 15236 | TOTAL: | $2903.70 | $2903.60 | $0.00 | $0.00 | $5807.30 | $0.00 |
|
| 2023 | 15236 | $2903.70 | $2903.60 | $0.00 | $0.00 | $5807.30 | $0.00 |
Values
| (+) Improvement Homesite Value: | + | $0 | |
| (+) Improvement Non-Homesite Value: | + | $545,627 | |
| (+) Land Homesite Value: | + | $0 | |
| (+) Land Non-Homesite Value: | + | $231,000 | |
| (+) Curr Use (HS): | + | $0 | $0 |
| (+) Curr Use (NHS): | + | $0 | $0 |
| | | -------------------------- | |
| (=) Market Value: | = | $776,627 | |
| (–) Productivity Loss: | – | $0 | |
| | | -------------------------- | |
| (=) Subtotal: | = | $776,627 | |
| (+) Senior Appraised Value: | + | $0 | |
| (+) Non-Senior Appraised Value: | + | $776,627 | |
| | | -------------------------- | |
| (=) Total Appraised Value: | = | $776,627 | |
| (–) Senior Exemption Loss: | – | $0 | |
| (–) Exemption Loss: | – | $0 | |
| | | -------------------------- | |
| (=) Taxable Value: | = | $776,627 | |
Taxing Jurisdiction
| Owner: | VICTOR & NANCY RODRIGUEZ FAMILY TRUST | | |
| % Ownership: | 100.0000000000% | | |
| Total Value: | $776,627 | | |
| Tax Area: | 0111 - 1-50F1E1H2L1 |
| CE | COUNTY CURRENT EXPENSE | 0.9034619479 | $776,627 | $776,627 | $701.65 | | |
| CNTYDD | DEVELOPMENTAL DISABILITIES | 0.0052121823 | $776,627 | $776,627 | $4.05 | | |
| CNTYVET | VETERANS RELIEF | 0.0052777810 | $776,627 | $776,627 | $4.10 | | |
| MENTAL | MENTAL HEALTH | 0.0052121823 | $776,627 | $776,627 | $4.05 | | |
| ROADS | COUNTY ROADS | 0.7415066410 | $776,627 | $776,627 | $575.87 | | |
| ROADSCU | COUNTY ROADS TO CUR EXP | 0.0000000000 | $776,627 | $776,627 | $0.00 | | |
| HOSP2CASH | HOSP DIST #2 GENERAL | 0.0536075306 | $776,627 | $776,627 | $41.63 | | |
| SCH50BOND | SCHOOL DIST #50 BOND 2016 | 0.5377451389 | $776,627 | $776,627 | $417.63 | | |
| SCH50CP | SCHOOL DIST #50 CAP PROJ | 0.4573475088 | $776,627 | $776,627 | $355.19 | | |
| SCH50MO | SCHOOL DIST #50 EP & O | 0.8262822886 | $776,627 | $776,627 | $641.71 | | |
| CONSERVE | CONSERVATION FUTURES | 0.0275621078 | $776,627 | $776,627 | $21.41 | | |
| EMS1 | FIRE DIST #1 EMS | 0.4679948282 | $776,627 | $776,627 | $363.46 | | |
| FD1 | FIRE DIST #1 GENERAL | 1.2171942929 | $776,627 | $776,627 | $945.31 | | |
| LIB1 | LIBRARY DIST #1 GENERAL | 0.2868827388 | $776,627 | $776,627 | $222.80 | | |
| PORTPT | PORT OF PT GENERAL | 0.1134941229 | $776,627 | $776,627 | $88.14 | | |
| PORTPTIDD | PORT OF PT IDD 2019 | 0.2577346692 | $776,627 | $776,627 | $200.16 | | |
| PUD1 | PUD #1 GENERAL | 0.0597888892 | $776,627 | $776,627 | $46.43 | | |
| STATE | STATE SCHOOL PART 1 | 1.4940692947 | $776,627 | $776,627 | $1,160.33 | | |
| STATE2 | STATE SCHOOL PART 2 | 0.8050170049 | $776,627 | $776,627 | $625.20 | | |
| | Total Tax Rate: | 8.2653911500 | | | | | |
| | | | | Taxes w/Current Exemptions: | $6,419.12 | | |
| | | | | Taxes w/o Exemptions: | $6,419.12 | | |
Improvement / Building
| Improvement #1: | Residential Bldg | State Code: | 11 | 1510.0 sqft | Value: | $545,627 |
| Bathrooms (#): | 2 (FULL) | Bathrooms (#): | 1 (HALF) | | Bedrooms (#): | 3 | Exterior Wall: | SI/ST | | Fireplace: | SIN 1-GOOD | Floor Construction: | FRAME | | Foundation: | CONPR | Heating/Cooling: | F/A | | Roof Cover: | BLTUP |   |   |
|
| | Type | Description | Class CD | Sub Class CD | Year Built | Area |
| | MA | Main Area | 5- | 1S | 1964 | 1510.0 |
| | HCPOR | House Concrete Porch | 5 | * | 1964 | 24.0 |
| | HWPOR | House Wood Porch | 5 | * | 1964 | 420.0 |
| | GATT | House Attached Garage | 4 | 1S | 1964 | 420.0 |
| | BSMTF | House basement finished | 4 | * | 1964 | 782.0 |
| | GARAG | Garage (Table Not Dep) | 4 | * | 1964 | 910.0 |
| | CONCD | Concrete Drive | 5 | * | 1964 | 4700.0 |
| | HRPO | House Roof Patio | 4 | * | 1964 | 24.0 |
Sketch
Property Image
Land
| 1 | 5520-1145L | | 0.0000 | 0.00 | 0.00 | 0.00 | 1.00 | $231,000 | $0 |
Roll Value History
| 2026 | N/A | N/A | N/A | N/A | N/A |
| 2025 | $545,627 | $231,000 | $0 | $776,627 | $776,627 |
| 2024 | $545,627 | $231,000 | $0 | $776,627 | $776,627 |
| 2023 | $522,893 | $215,250 | $0 | $738,143 | $738,143 |
| 2022 | $499,125 | $200,000 | $0 | $699,125 | $699,125 |
Deed and Sales History
| 1 | 12/13/2016 | SPWD | Special Warranty Deed | FEDERAL HOME LOAN MTG CORP | VICTOR & NANCY RODRIGUEZ FAMILY TRUST | | | | 126860 | |
| 2 | 12/03/2014 | TRED | Trustee Deed | STEPHEN G SLATER | FEDERAL HOME LOAN MTG CORP | | | | 122348 | |
| 3 | 08/27/2009 | QCD | Quit Claim Deed | | | | | | 123793 | |
| 4 | 08/27/2009 | QCD | Quit Claim Deed | SLATER, JENNIFER P | SLATER, STEPHEN G | 0 | 0 | $0.00 | 113498 | 0 |
| 5 | 08/24/2000 | QCD | Quit Claim Deed | SLATER, STEPHEN G | SLATER, STEPHEN G/JENNIFER P | 0 | 0 | $0.00 | 90462 | 0 |
| 6 | 04/09/1993 | QCD | Quit Claim Deed | TAYLOR, CANDACE FRYE | SLATER, STEPHEN G | 0 | 0 | $0.00 | 71322 | 0 |
| 7 | 04/09/1993 | QCD | Quit Claim Deed | FRYE-TAYLOR, CANDACE | SLATER, STEPHEN G | 0 | 0 | $0.00 | 71007 | 0 |
Payout Agreement
| No payout information available.. |