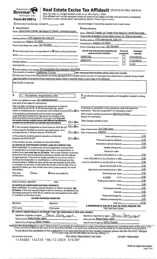
Property
Account |
| Property ID: | 25758 | Abbreviated Legal Description: | CAPE GEORGE COLONY DIV 5 BLK 12 LOT B (LESS N 75') |
| Parcel # / Geo ID: | 939001209 | Agent Code: | |
| Type: | Real | | |
| Tax Area: | 0111 - 1-50F1E1H2L1 | Land Use Code | 11 |
| Open Space: | N | DFL | N |
| Historic Property: | N | Remodel Property: | N |
| Multi-Family Redevelopment: | N | | |
| Township: | 30N | Section: | 13 |
| Range: | 2W |
Location |
| Address: | 510 SUNSET BLVD PORT TOWNSEND, WA 98368 | Mapsco: | 011/067 |
| Neighborhood: | CAPE GEORGE COLONY (ALL), CRESTHAVEN & DIV 6 | Map ID: | |
| Neighborhood CD: | 5520 |
Owner |
| Name: | NANCY B FARRELLY REVOCABLE TRUST | Owner ID: | 110958 |
| Mailing Address: | NANCY FARRELLY TRUSTEE 5755 VALENTINE RD STE 215 VENTURA, CA 93003-7467 | % Ownership: | 100.0000000000% |
| | | Exemptions: | |
Pay Tax Due
There is currently No Amount Due on this property.
Taxes and Assessment Details
Property Tax Information as of
03/12/2026
Click on "Statement Details" to expand or collapse a tax statement.
* Please enter a valid date ** Please enter a valid date *
Statement Details |
| | TOTAL: | $0.00 | $0.00 | $0.00 | $0.00 | $0.00 | $0.00 |
|
| | $0.00 | $0.00 | $0.00 | $0.00 | $0.00 | $0.00 |
Values
| (+) Improvement Homesite Value: | + | $0 | |
| (+) Improvement Non-Homesite Value: | + | $657,346 | |
| (+) Land Homesite Value: | + | $0 | |
| (+) Land Non-Homesite Value: | + | $308,000 | |
| (+) Curr Use (HS): | + | $0 | $0 |
| (+) Curr Use (NHS): | + | $0 | $0 |
| | | -------------------------- | |
| (=) Market Value: | = | $965,346 | |
| (–) Productivity Loss: | – | $0 | |
| | | -------------------------- | |
| (=) Subtotal: | = | $965,346 | |
| (+) Senior Appraised Value: | + | $0 | |
| (+) Non-Senior Appraised Value: | + | $965,346 | |
| | | -------------------------- | |
| (=) Total Appraised Value: | = | $965,346 | |
| (–) Senior Exemption Loss: | – | $0 | |
| (–) Exemption Loss: | – | $0 | |
| | | -------------------------- | |
| (=) Taxable Value: | = | $965,346 | |
Taxing Jurisdiction
| Owner: | NANCY B FARRELLY REVOCABLE TRUST | | |
| % Ownership: | 100.0000000000% | | |
| Total Value: | $965,346 | | |
| Tax Area: | 0111 - 1-50F1E1H2L1 |
| CE | COUNTY CURRENT EXPENSE | 0.9034619479 | $965,346 | $965,346 | $872.15 | | |
| CNTYDD | DEVELOPMENTAL DISABILITIES | 0.0052121823 | $965,346 | $965,346 | $5.03 | | |
| CNTYVET | VETERANS RELIEF | 0.0052777810 | $965,346 | $965,346 | $5.09 | | |
| MENTAL | MENTAL HEALTH | 0.0052121823 | $965,346 | $965,346 | $5.03 | | |
| ROADS | COUNTY ROADS | 0.7415066410 | $965,346 | $965,346 | $715.81 | | |
| ROADSCU | COUNTY ROADS TO CUR EXP | 0.0000000000 | $965,346 | $965,346 | $0.00 | | |
| HOSP2CASH | HOSP DIST #2 GENERAL | 0.0536075306 | $965,346 | $965,346 | $51.75 | | |
| SCH50BOND | SCHOOL DIST #50 BOND 2016 | 0.5377451389 | $965,346 | $965,346 | $519.11 | | |
| SCH50CP | SCHOOL DIST #50 CAP PROJ | 0.4573475088 | $965,346 | $965,346 | $441.50 | | |
| SCH50MO | SCHOOL DIST #50 EP & O | 0.8262822886 | $965,346 | $965,346 | $797.65 | | |
| CONSERVE | CONSERVATION FUTURES | 0.0275621078 | $965,346 | $965,346 | $26.61 | | |
| EMS1 | FIRE DIST #1 EMS | 0.4679948282 | $965,346 | $965,346 | $451.78 | | |
| FD1 | FIRE DIST #1 GENERAL | 1.2171942929 | $965,346 | $965,346 | $1,175.01 | | |
| LIB1 | LIBRARY DIST #1 GENERAL | 0.2868827388 | $965,346 | $965,346 | $276.94 | | |
| PORTPT | PORT OF PT GENERAL | 0.1134941229 | $965,346 | $965,346 | $109.56 | | |
| PORTPTIDD | PORT OF PT IDD 2019 | 0.2577346692 | $965,346 | $965,346 | $248.80 | | |
| PUD1 | PUD #1 GENERAL | 0.0597888892 | $965,346 | $965,346 | $57.72 | | |
| STATE | STATE SCHOOL PART 1 | 1.4940692947 | $965,346 | $965,346 | $1,442.29 | | |
| STATE2 | STATE SCHOOL PART 2 | 0.8050170049 | $965,346 | $965,346 | $777.12 | | |
| | Total Tax Rate: | 8.2653911500 | | | | | |
| | | | | Taxes w/Current Exemptions: | $7,978.95 | | |
| | | | | Taxes w/o Exemptions: | $7,978.95 | | |
Improvement / Building
| Improvement #1: | Residential Bldg | State Code: | 11 | 1344.0 sqft | Value: | $657,346 |
| Bathrooms (#): | 2 (FULL) | Bathrooms (#): | 1 (HALF) | | Bedrooms (#): | 1 | Exterior Wall: | SI/ST | | Fireplace: | DBL 2-GOOD | Floor Construction: | FRAME | | Foundation: | CONPR | Heating/Cooling: | HPUMP | | Roof Cover: | COMP |   |   |
|
| | Type | Description | Class CD | Sub Class CD | Year Built | Area |
| | MA | Main Area | 5+ | 1S | 1978 | 1344.0 |
| | HRPO | House Roof Patio | 5 | * | 1978 | 696.0 |
| | HDECK | House Deck | 5 | * | 1978 | 1070.0 |
| | GATT | House Attached Garage | 5 | 1S | 1978 | 624.0 |
| | SHED | Shed (Table Not Dep) | 5 | * | 1978 | 100.0 |
| | CONCD | Concrete Drive | 5 | * | 1978 | 2000.0 |
| | BSMTF | House basement finished | 3 | * | 1978 | 1344.0 |
Sketch
Property Image
Land
| 1 | 5520-1135L | Colony Lots Area of Excel Bay/Mtn Views | 0.0000 | 0.00 | 0.00 | 0.00 | 1.00 | $308,000 | $0 |
Roll Value History
| 2026 | N/A | N/A | N/A | N/A | N/A |
| 2025 | $657,346 | $308,000 | $0 | $965,346 | $965,346 |
| 2024 | $657,346 | $308,000 | $0 | $965,346 | $965,346 |
| 2023 | $652,078 | $288,750 | $0 | $940,828 | $940,828 |
| 2022 | $622,438 | $270,000 | $0 | $892,438 | $892,438 |
Deed and Sales History
| 1 | 06/06/2024 | QCD | Quit Claim Deed | NANCY B FARRELLY | NANCY B FARRELLY REVOCABLE TRUST | | | | 142724 | |
| 2 | 05/04/2021 | QCD | Quit Claim Deed | ROBERT T FARRELLY | NANCY B FARRELLY | | | | 136678 | |
| 3 | 05/04/2021 | SWD | Statutory Warranty Deed | DONNA M FRANDSEN | NANCY B FARRELLY | | | $825,000.00 | 136677 | |
| 4 | 09/29/2020 | QCD | Quit Claim Deed | GUNNAR BERSOS TRSTEE | DONNA M FRANDSEN | | | | 135371 | |
| 5 | 05/17/1999 | QCD | Quit Claim Deed | BERSOS, GUNNAR/SHIRLEY | BERSOS, GUNNAR & SHIRLEY/TRUST | 0 | 0 | $0.00 | 86906 | 0 |
Payout Agreement
| No payout information available.. |