Property
Account |
| Property ID: | 25810 | Abbreviated Legal Description: | CAPE GEORGE COLONY DIV 7 BLK 14 LOT 46 |
| Parcel # / Geo ID: | 939601445 | Agent Code: | |
| Type: | Real | | |
| Tax Area: | 0111 - 1-50F1E1H2L1 | Land Use Code | 11 |
| Open Space: | N | DFL | N |
| Historic Property: | N | Remodel Property: | N |
| Multi-Family Redevelopment: | N | | |
| Township: | 30N | Section: | 13 |
| Range: | 2W |
Location |
| Address: | 161 COLMAN DR PORT TOWNSEND, WA 98368 | Mapsco: | 013/021 |
| Neighborhood: | CAPE GEORGE COLONY (ALL), CRESTHAVEN & DIV 6 | Map ID: | |
| Neighborhood CD: | 5520 |
Owner |
| Name: | SANDRA J KISH REVOCABLE TRUST | Owner ID: | 102359 |
| Mailing Address: | SANDRA J KISH TRUSTEE 161 COLEMAN DR PORT TOWNSEND, CA 98368-9409 | % Ownership: | 100.0000000000% |
| | | Exemptions: | |
Pay Tax Due
Select the appropriate checkbox next to the year to be paid. Multiple years may be selected.
*Convenience Fee not included
Taxes and Assessment Details
Property Tax Information as of
03/11/2026
Click on "Statement Details" to expand or collapse a tax statement.
* Please enter a valid date ** Please enter a valid date *
Statement Details |
| 2026 | 15190 | STATE - STATE LEVY (SCHOOL) | $653.41 | $653.39 | $0.00 | $0.00 | $0.00 | $1306.80 |
| 2026 | 15190 | COUNTY - COUNTY LEVIES (CE, DD, VET, MH) | $261.23 | $261.22 | $0.00 | $0.00 | $0.00 | $522.45 |
| 2026 | 15190 | CONSERVE - CONSERVATION FUTURES | $7.84 | $7.83 | $0.00 | $0.00 | $0.00 | $15.67 |
| 2026 | 15190 | COROADS - COUNTY ROADS (ROADS, DIV TO CE) | $210.74 | $210.73 | $0.00 | $0.00 | $0.00 | $421.47 |
| 2026 | 15190 | PORTPT - PORT DISTRICT | $105.51 | $105.50 | $0.00 | $0.00 | $0.00 | $211.01 |
| 2026 | 15190 | PUD1 - PUD #1 | $16.99 | $16.99 | $0.00 | $0.00 | $0.00 | $33.98 |
| 2026 | 15190 | LIB1 - LIBRARY DIST #1 | $81.53 | $81.53 | $0.00 | $0.00 | $0.00 | $163.06 |
| 2026 | 15190 | HD2 - HOSP DIST #2 | $15.24 | $15.23 | $0.00 | $0.00 | $0.00 | $30.47 |
| 2026 | 15190 | SD50 - SCHOOL DIST #50 | $517.64 | $517.64 | $0.00 | $0.00 | $0.00 | $1035.28 |
| 2026 | 15190 | FD1 - FIRE DISTRICT #1 | $345.93 | $345.93 | $0.00 | $0.00 | $0.00 | $691.86 |
| 2026 | 15190 | EMS1 - FIRE DIST #1 EMS | $133.01 | $133.00 | $0.00 | $0.00 | $0.00 | $266.01 |
| 2026 | 15190 | JCCD - JC Conservation District | $2.55 | $2.55 | $0.00 | $0.00 | $0.00 | $5.10 |
| 2026 | 15190 | NWA - Noxious Weed Assessment | $2.98 | $2.97 | $0.00 | $0.00 | $0.00 | $5.95 |
| 2026 | 15190 | WAT - Clean Water District | $13.00 | $13.00 | $0.00 | $0.00 | $0.00 | $26.00 |
| 2026 | 15190 | TOTAL: | $2367.60 | $2367.51 | $0.00 | $0.00 | $0.00 | $4735.11 |
|
| 2026 | 15190 | $2367.60 | $2367.51 | $0.00 | $0.00 | $0.00 | $4735.11 |
Statement Details |
| 2025 | 15241 | STATE - STATE LEVY (SCHOOL) | $681.52 | $681.52 | $0.00 | $0.00 | $1363.04 | $0.00 |
| 2025 | 15241 | COUNTY - COUNTY LEVIES (CE, DD, VET, MH) | $268.02 | $267.98 | $0.00 | $0.00 | $536.00 | $0.00 |
| 2025 | 15241 | CONSERVE - CONSERVATION FUTURES | $8.04 | $8.03 | $0.00 | $0.00 | $16.07 | $0.00 |
| 2025 | 15241 | COROADS - COUNTY ROADS (ROADS, DIV TO CE) | $214.71 | $214.71 | $0.00 | $0.00 | $429.42 | $0.00 |
| 2025 | 15241 | PORTPT - PORT DISTRICT | $109.36 | $109.36 | $0.00 | $0.00 | $218.72 | $0.00 |
| 2025 | 15241 | PUD1 - PUD #1 | $17.54 | $17.53 | $0.00 | $0.00 | $35.07 | $0.00 |
| 2025 | 15241 | LIB1 - LIBRARY DIST #1 | $83.07 | $83.07 | $0.00 | $0.00 | $166.14 | $0.00 |
| 2025 | 15241 | HD2 - HOSP DIST #2 | $15.64 | $15.63 | $0.00 | $0.00 | $31.27 | $0.00 |
| 2025 | 15241 | SD50 - SCHOOL DIST #50 | $498.08 | $498.07 | $0.00 | $0.00 | $996.15 | $0.00 |
| 2025 | 15241 | FD1 - FIRE DISTRICT #1 | $353.66 | $353.66 | $0.00 | $0.00 | $707.32 | $0.00 |
| 2025 | 15241 | EMS1 - FIRE DIST #1 EMS | $136.03 | $136.02 | $0.00 | $0.00 | $272.05 | $0.00 |
| 2025 | 15241 | TOTAL: | $2385.67 | $2385.58 | $0.00 | $0.00 | $4771.25 | $0.00 |
|
| 2025 | 15241 | $2385.67 | $2385.58 | $0.00 | $0.00 | $4771.25 | $0.00 |
Statement Details |
| 2024 | 15272 | STATE - STATE LEVY (SCHOOL) | $110.97 | $110.97 | $0.00 | $0.00 | $221.94 | $0.00 |
| 2024 | 15272 | COUNTY - COUNTY LEVIES (CE, DD, VET, MH) | $72.96 | $72.94 | $0.00 | $0.00 | $145.90 | $0.00 |
| 2024 | 15272 | CONSERVE - CONSERVATION FUTURES | $2.19 | $2.19 | $0.00 | $0.00 | $4.38 | $0.00 |
| 2024 | 15272 | COROADS - COUNTY ROADS (ROADS, DIV TO CE) | $58.71 | $58.71 | $0.00 | $0.00 | $117.42 | $0.00 |
| 2024 | 15272 | PORTPT - PORT DISTRICT | $30.14 | $30.13 | $0.00 | $0.00 | $60.27 | $0.00 |
| 2024 | 15272 | PUD1 - PUD #1 | $4.79 | $4.79 | $0.00 | $0.00 | $9.58 | $0.00 |
| 2024 | 15272 | LIB1 - LIBRARY DIST #1 | $22.72 | $22.71 | $0.00 | $0.00 | $45.43 | $0.00 |
| 2024 | 15272 | HD2 - HOSP DIST #2 | $4.26 | $4.25 | $0.00 | $0.00 | $8.51 | $0.00 |
| 2024 | 15272 | SD50 - SCHOOL DIST #50 | $0.00 | $0.00 | $0.00 | $0.00 | $0.00 | $0.00 |
| 2024 | 15272 | FD1 - FIRE DISTRICT #1 | $96.47 | $96.47 | $0.00 | $0.00 | $192.94 | $0.00 |
| 2024 | 15272 | EMS1 - FIRE DIST #1 EMS | $36.85 | $36.84 | $0.00 | $0.00 | $73.69 | $0.00 |
| 2024 | 15272 | TOTAL: | $440.06 | $440.00 | $0.00 | $0.00 | $880.06 | $0.00 |
|
| 2024 | 15272 | $440.06 | $440.00 | $0.00 | $0.00 | $880.06 | $0.00 |
Statement Details |
| 2023 | 15296 | STATE - STATE LEVY (SCHOOL) | $113.03 | $113.03 | $0.00 | $0.00 | $226.06 | $0.00 |
| 2023 | 15296 | COUNTY - COUNTY LEVIES (CE, DD, VET, MH) | $75.71 | $75.70 | $0.00 | $0.00 | $151.41 | $0.00 |
| 2023 | 15296 | CONSERVE - CONSERVATION FUTURES | $2.27 | $2.27 | $0.00 | $0.00 | $4.54 | $0.00 |
| 2023 | 15296 | COROADS - COUNTY ROADS (ROADS, DIV TO CE) | $61.25 | $61.25 | $0.00 | $0.00 | $122.50 | $0.00 |
| 2023 | 15296 | PORTPT - PORT DISTRICT | $31.90 | $31.89 | $0.00 | $0.00 | $63.79 | $0.00 |
| 2023 | 15296 | PUD1 - PUD #1 | $5.02 | $5.02 | $0.00 | $0.00 | $10.04 | $0.00 |
| 2023 | 15296 | LIB1 - LIBRARY DIST #1 | $23.70 | $23.69 | $0.00 | $0.00 | $47.39 | $0.00 |
| 2023 | 15296 | HD2 - HOSP DIST #2 | $4.42 | $4.42 | $0.00 | $0.00 | $8.84 | $0.00 |
| 2023 | 15296 | SD50 - SCHOOL DIST #50 | $0.00 | $0.00 | $0.00 | $0.00 | $0.00 | $0.00 |
| 2023 | 15296 | FD1 - FIRE DISTRICT #1 | $62.37 | $62.36 | $0.00 | $0.00 | $124.73 | $0.00 |
| 2023 | 15296 | EMS1 - FIRE DIST #1 EMS | $26.53 | $26.53 | $0.00 | $0.00 | $53.06 | $0.00 |
| 2023 | 15296 | TOTAL: | $406.20 | $406.16 | $0.00 | $0.00 | $812.36 | $0.00 |
|
| 2023 | 15296 | $406.20 | $406.16 | $0.00 | $0.00 | $812.36 | $0.00 |
Values
| (+) Improvement Homesite Value: | + | $337,402 | |
| (+) Improvement Non-Homesite Value: | + | $0 | |
| (+) Land Homesite Value: | + | $231,000 | |
| (+) Land Non-Homesite Value: | + | $0 | |
| (+) Curr Use (HS): | + | $0 | $0 |
| (+) Curr Use (NHS): | + | $0 | $0 |
| | | -------------------------- | |
| (=) Market Value: | = | $568,402 | |
| (–) Productivity Loss: | – | $0 | |
| | | -------------------------- | |
| (=) Subtotal: | = | $568,402 | |
| (+) Senior Appraised Value: | + | $0 | |
| (+) Non-Senior Appraised Value: | + | $568,402 | |
| | | -------------------------- | |
| (=) Total Appraised Value: | = | $568,402 | |
| (–) Senior Exemption Loss: | – | $0 | |
| (–) Exemption Loss: | – | $0 | |
| | | -------------------------- | |
| (=) Taxable Value: | = | $568,402 | |
Taxing Jurisdiction
| Owner: | SANDRA J KISH REVOCABLE TRUST | | |
| % Ownership: | 100.0000000000% | | |
| Total Value: | N/A | | |
| Tax Area: | 0111 - 1-50F1E1H2L1 |
| CE | COUNTY CURRENT EXPENSE | N/A | N/A | N/A | N/A | | |
| CNTYDD | DEVELOPMENTAL DISABILITIES | N/A | N/A | N/A | N/A | | |
| CNTYVET | VETERANS RELIEF | N/A | N/A | N/A | N/A | | |
| MENTAL | MENTAL HEALTH | N/A | N/A | N/A | N/A | | |
| ROADS | COUNTY ROADS | N/A | N/A | N/A | N/A | | |
| HOSP2CASH | HOSP DIST #2 GENERAL | N/A | N/A | N/A | N/A | | |
| SCH50BOND | SCHOOL DIST #50 BOND 2016 | N/A | N/A | N/A | N/A | | |
| SCH50CP | SCHOOL DIST #50 CAP PROJ | N/A | N/A | N/A | N/A | | |
| SCH50MO | SCHOOL DIST #50 EP & O | N/A | N/A | N/A | N/A | | |
| CONSERVE | CONSERVATION FUTURES | N/A | N/A | N/A | N/A | | |
| EMS1 | FIRE DIST #1 EMS | N/A | N/A | N/A | N/A | | |
| FD1 | FIRE DIST #1 GENERAL | N/A | N/A | N/A | N/A | | |
| LIB1 | LIBRARY DIST #1 GENERAL | N/A | N/A | N/A | N/A | | |
| PORTPT | PORT OF PT GENERAL | N/A | N/A | N/A | N/A | | |
| PORTPTIDD | PORT OF PT IDD 2019 | N/A | N/A | N/A | N/A | | |
| PUD1 | PUD #1 GENERAL | N/A | N/A | N/A | N/A | | |
| STATE | STATE SCHOOL PART 1 | N/A | N/A | N/A | N/A | | |
| STATE2 | STATE SCHOOL PART 2 | N/A | N/A | N/A | N/A | | |
| | Total Tax Rate: | N/A | | | | | |
| | | | | Taxes w/Current Exemptions: | N/A | | |
| | | | | Taxes w/o Exemptions: | N/A | | |
Improvement / Building
| Improvement #1: | Residential Bldg | State Code: | 11 | 1152.0 sqft | Value: | $337,402 |
| Bathrooms (#): | 1 (FULL) | Bedrooms (#): | 2 | | Exterior Wall: | PL/T1 | Floor Construction: | FRAME | | Foundation: | CONPR | Heating/Cooling: | HPUMP | | Roof Cover: | COMP |   |   |
|
| | Type | Description | Class CD | Sub Class CD | Year Built | Area |
| | MA | Main Area | 4 | 1S | 2005 | 1152.0 |
| | HDECK | House Deck | 4 | * | 2005 | 392.0 |
| | GATT | House Attached Garage | 4 | 1S | 2005 | 384.0 |
| | HWPOR | House Wood Porch | 4 | * | 2005 | 48.0 |
| | SHED | Shed (Table Not Dep) | 5 | * | 2022 | 115.0 |
| | CARPTN | Carport W/O Floor | 5 | * | 2005 | 276.0 |
Sketch
Property Image
Land
| 1 | 5520-1145L | | 0.0000 | 0.00 | 0.00 | 0.00 | 1.00 | $231,000 | $0 |
Roll Value History
| 2026 | N/A | N/A | N/A | N/A | N/A |
| 2025 | $337,402 | $231,000 | $0 | $568,402 | $568,402 |
| 2024 | $337,402 | $231,000 | $0 | $568,402 | $568,402 |
| 2023 | $287,740 | $215,250 | $0 | $502,990 | $147,388 |
| 2022 | $274,661 | $200,000 | $0 | $474,661 | $147,388 |
Deed and Sales History
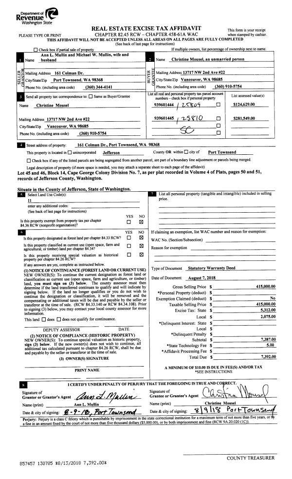
| 1 | 01/01/2020 | SWD | Statutory Warranty Deed | CHRISTINE MOUSEL | SANDRA J KISH REVOCABLE TRUST | | | $382,000.00 | 134015 | |
| 2 | 08/07/2018 | SWD | Statutory Warranty Deed | ANN MULLIN | CHRISTINE MOUSEL | | | $415,000.00 | 130785 | |
|   | |
| 3 | 05/23/2018 | QCD | Quit Claim Deed | | | | | | 130272 | |
| 4 | 07/18/2006 | SWD | Statutory Warranty Deed | MULLIN, ANN L | MULLIN, ANN L/MICHAEL W | | | $0.00 | 107170 | 0 |
| 5 | 02/04/2005 | QCD | Quit Claim Deed | MULLIN, MICHAEL | MULLIN, ANN L | 0 | 0 | $0.00 | 102686 | 0 |
| 6 | 01/28/2005 | SWD | Statutory Warranty Deed | REID, KRISTEN A. & ANTONY | MULLIN, ANN L | 0 | 0 | $0.00 | 102685 | 0 |
Payout Agreement
| No payout information available.. |