Property
Account |
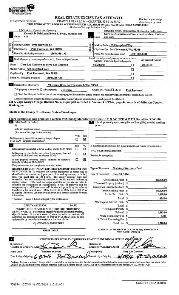
| Property ID: | 25849 | Abbreviated Legal Description: | CAPE GEORGE VILLAGE DIV 2 LOT 5 |
| Parcel # / Geo ID: | 940200005 | Agent Code: | |
| Type: | Real | | |
| Tax Area: | 0111 - 1-50F1E1H2L1 | Land Use Code | 11 |
| Open Space: | N | DFL | N |
| Historic Property: | N | Remodel Property: | N |
| Multi-Family Redevelopment: | N | | |
| Township: | 30N | Section: | 13 |
| Range: | 2W |
Location |
| Address: | 90 DENNIS BLVD PORT TOWNSEND, WA 98368 | Mapsco: | 014/029 |
| Neighborhood: | CAPE GEORGE VILLAGE DIV 1, 2, 3, 4 | Map ID: | |
| Neighborhood CD: | 5525 |
Owner |
| Name: | GARY L GARRISON | Owner ID: | 16294 |
| Mailing Address: | TERRY L GARRISON 820 SNAGSTEAD WAY PORT TOWNSEND, WA 98368-9668 | % Ownership: | 100.0000000000% |
| | | Exemptions: | |
Pay Tax Due
There is currently No Amount Due on this property.
Taxes and Assessment Details
Property Tax Information as of
03/11/2026
Click on "Statement Details" to expand or collapse a tax statement.
* Please enter a valid date ** Please enter a valid date *
Statement Details |
| | TOTAL: | $0.00 | $0.00 | $0.00 | $0.00 | $0.00 | $0.00 |
|
| | $0.00 | $0.00 | $0.00 | $0.00 | $0.00 | $0.00 |
Values
| (+) Improvement Homesite Value: | + | $0 | |
| (+) Improvement Non-Homesite Value: | + | $85,227 | |
| (+) Land Homesite Value: | + | $0 | |
| (+) Land Non-Homesite Value: | + | $88,000 | |
| (+) Curr Use (HS): | + | $0 | $0 |
| (+) Curr Use (NHS): | + | $0 | $0 |
| | | -------------------------- | |
| (=) Market Value: | = | $173,227 | |
| (–) Productivity Loss: | – | $0 | |
| | | -------------------------- | |
| (=) Subtotal: | = | $173,227 | |
| (+) Senior Appraised Value: | + | $0 | |
| (+) Non-Senior Appraised Value: | + | $173,227 | |
| | | -------------------------- | |
| (=) Total Appraised Value: | = | $173,227 | |
| (–) Senior Exemption Loss: | – | $0 | |
| (–) Exemption Loss: | – | $0 | |
| | | -------------------------- | |
| (=) Taxable Value: | = | $173,227 | |
Taxing Jurisdiction
| Owner: | GARY L GARRISON | | |
| % Ownership: | 100.0000000000% | | |
| Total Value: | $173,227 | | |
| Tax Area: | 0111 - 1-50F1E1H2L1 |
| CE | COUNTY CURRENT EXPENSE | 0.9034619479 | $173,227 | $173,227 | $156.50 | | |
| CNTYDD | DEVELOPMENTAL DISABILITIES | 0.0052121823 | $173,227 | $173,227 | $0.90 | | |
| CNTYVET | VETERANS RELIEF | 0.0052777810 | $173,227 | $173,227 | $0.91 | | |
| MENTAL | MENTAL HEALTH | 0.0052121823 | $173,227 | $173,227 | $0.90 | | |
| ROADS | COUNTY ROADS | 0.7415066410 | $173,227 | $173,227 | $128.45 | | |
| ROADSCU | COUNTY ROADS TO CUR EXP | 0.0000000000 | $173,227 | $173,227 | $0.00 | | |
| HOSP2CASH | HOSP DIST #2 GENERAL | 0.0536075306 | $173,227 | $173,227 | $9.29 | | |
| SCH50BOND | SCHOOL DIST #50 BOND 2016 | 0.5377451389 | $173,227 | $173,227 | $93.15 | | |
| SCH50CP | SCHOOL DIST #50 CAP PROJ | 0.4573475088 | $173,227 | $173,227 | $79.22 | | |
| SCH50MO | SCHOOL DIST #50 EP & O | 0.8262822886 | $173,227 | $173,227 | $143.13 | | |
| CONSERVE | CONSERVATION FUTURES | 0.0275621078 | $173,227 | $173,227 | $4.77 | | |
| EMS1 | FIRE DIST #1 EMS | 0.4679948282 | $173,227 | $173,227 | $81.07 | | |
| FD1 | FIRE DIST #1 GENERAL | 1.2171942929 | $173,227 | $173,227 | $210.85 | | |
| LIB1 | LIBRARY DIST #1 GENERAL | 0.2868827388 | $173,227 | $173,227 | $49.70 | | |
| PORTPT | PORT OF PT GENERAL | 0.1134941229 | $173,227 | $173,227 | $19.66 | | |
| PORTPTIDD | PORT OF PT IDD 2019 | 0.2577346692 | $173,227 | $173,227 | $44.65 | | |
| PUD1 | PUD #1 GENERAL | 0.0597888892 | $173,227 | $173,227 | $10.36 | | |
| STATE | STATE SCHOOL PART 1 | 1.4940692947 | $173,227 | $173,227 | $258.81 | | |
| STATE2 | STATE SCHOOL PART 2 | 0.8050170049 | $173,227 | $173,227 | $139.45 | | |
| | Total Tax Rate: | 8.2653911500 | | | | | |
| | | | | Taxes w/Current Exemptions: | $1,431.77 | | |
| | | | | Taxes w/o Exemptions: | $1,431.77 | | |
Improvement / Building
| Improvement #1: | Manufactured Home | State Code: | 11 | 720.0 sqft | Value: | $85,227 |
| Bathrooms (#): | 1 (FULL) | Bedrooms (#): | 2 | | Exterior Wall: | PL/T1 | Fireplace: | WD ST-GOOD | | Floor Construction: | FRAME | Foundation: | PO&BL | | Heating/Cooling: | F/A | Inside Verify: | NO | | Roof Cover: | METAL |   |   |
|
| | Type | Description | Class CD | Sub Class CD | Year Built | Area |
| | MA | Main Area | 2 | MSG | 1968 | 720.0 |
| | MWPOR | MH Wood Porch | 3 | * | 1968 | 180.0 |
| | MDECK | MH Deck | 3 | * | 1968 | 39.0 |
| | GDET | Detached Garage | 3 | * | 1968 | 576.0 |
| | ADDN | Addition (Table Not Dep) | 2 | * | 1968 | 150.0 |
| | ADDN | Addition (Table Not Dep) | 2 | * | 1968 | 96.0 |
| | MSKIRT_WD | MH Skirting - Wood | 3 | * | 1968 | 144.0 |
Sketch
Property Image
Land
| 1 | 5525-1175L | Village Wooded/Terr View Lots along Dennis Blvd. | 0.0000 | 0.00 | 0.00 | 0.00 | 1.00 | $88,000 | $0 |
Roll Value History
| 2026 | N/A | N/A | N/A | N/A | N/A |
| 2025 | $85,227 | $88,000 | $0 | $173,227 | $173,227 |
| 2024 | $85,227 | $88,000 | $0 | $173,227 | $173,227 |
| 2023 | $66,114 | $78,750 | $0 | $144,864 | $144,864 |
| 2022 | $63,109 | $55,000 | $0 | $118,109 | $118,109 |
Deed and Sales History
| 1 | 06/28/2016 | SWD | Statutory Warranty Deed | KENNETH D BRINK | GARY L GARRISON | | | $85,000.00 | 125748 | |
| 2 | 07/13/2011 | SWD | Statutory Warranty Deed | CARTER, ROBERT AKA CARTER | BRINK, KENNETH D/HELEN E | | | $40,000.00 | 116261 | 0 |
| 3 | 08/19/1997 | SWD | Statutory Warranty Deed | VEITENHANS, B CHRISTOPHER | PHILLIPS, RILLA M/TRUST | 0 | 0 | $60,250.00 | 82587 | 0 |
| 4 | 11/02/1993 | SWD | Statutory Warranty Deed | COX, RICHARD T | VEITENHANS, B CHRISTOPHER | 0 | 0 | $52,000.00 | 72538 | 0 |
| 5 | 01/23/1993 | QCD | Quit Claim Deed | HOLT, DONALD E/JAMES W | COX, RICHARD | 0 | 0 | $0.00 | 70356 | 0 |
Payout Agreement
| No payout information available.. |