Property
Account |
| Property ID: | 25866 | Abbreviated Legal Description: | CAPE GEORGE VILLAGE DIV 3 LOT 5 |
| Parcel # / Geo ID: | 940500005 | Agent Code: | |
| Type: | Real | | |
| Tax Area: | 0111 - 1-50F1E1H2L1 | Land Use Code | 11 |
| Open Space: | N | DFL | N |
| Historic Property: | N | Remodel Property: | N |
| Multi-Family Redevelopment: | N | | |
| Township: | 30N | Section: | 13 |
| Range: | 2W |
Location |
| Address: | 133 MARINE VIEW PL PORT TOWNSEND, WA 98368 | Mapsco: | 015/005 |
| Neighborhood: | CAPE GEORGE VILLAGE DIV 1, 2, 3, 4 | Map ID: | |
| Neighborhood CD: | 5525 |
Owner |
| Name: | COLLETTE C & SCOTT A CARPENTER | Owner ID: | 99524 |
| Mailing Address: | PO BOX 699 PORT TOWNSEND, WA 98368-0699 | % Ownership: | 100.0000000000% |
| | | Exemptions: | |
Pay Tax Due
Select the appropriate checkbox next to the year to be paid. Multiple years may be selected.
*Convenience Fee not included
Taxes and Assessment Details
Property Tax Information as of
03/11/2026
Click on "Statement Details" to expand or collapse a tax statement.
* Please enter a valid date ** Please enter a valid date *
Statement Details |
| 2026 | 15245 | STATE - STATE LEVY (SCHOOL) | $764.88 | $764.86 | $0.00 | $0.00 | $0.00 | $1529.74 |
| 2026 | 15245 | COUNTY - COUNTY LEVIES (CE, DD, VET, MH) | $305.81 | $305.78 | $0.00 | $0.00 | $0.00 | $611.59 |
| 2026 | 15245 | CONSERVE - CONSERVATION FUTURES | $9.17 | $9.17 | $0.00 | $0.00 | $0.00 | $18.34 |
| 2026 | 15245 | COROADS - COUNTY ROADS (ROADS, DIV TO CE) | $246.69 | $246.69 | $0.00 | $0.00 | $0.00 | $493.38 |
| 2026 | 15245 | PORTPT - PORT DISTRICT | $123.51 | $123.50 | $0.00 | $0.00 | $0.00 | $247.01 |
| 2026 | 15245 | PUD1 - PUD #1 | $19.89 | $19.89 | $0.00 | $0.00 | $0.00 | $39.78 |
| 2026 | 15245 | LIB1 - LIBRARY DIST #1 | $95.44 | $95.44 | $0.00 | $0.00 | $0.00 | $190.88 |
| 2026 | 15245 | HD2 - HOSP DIST #2 | $17.84 | $17.83 | $0.00 | $0.00 | $0.00 | $35.67 |
| 2026 | 15245 | SD50 - SCHOOL DIST #50 | $605.94 | $605.94 | $0.00 | $0.00 | $0.00 | $1211.88 |
| 2026 | 15245 | FD1 - FIRE DISTRICT #1 | $404.94 | $404.94 | $0.00 | $0.00 | $0.00 | $809.88 |
| 2026 | 15245 | EMS1 - FIRE DIST #1 EMS | $155.70 | $155.69 | $0.00 | $0.00 | $0.00 | $311.39 |
| 2026 | 15245 | JCCD - JC Conservation District | $2.55 | $2.55 | $0.00 | $0.00 | $0.00 | $5.10 |
| 2026 | 15245 | NWA - Noxious Weed Assessment | $2.98 | $2.97 | $0.00 | $0.00 | $0.00 | $5.95 |
| 2026 | 15245 | OSS - On Site Septic | $23.10 | $23.10 | $0.00 | $0.00 | $0.00 | $46.20 |
| 2026 | 15245 | WAT - Clean Water District | $13.00 | $13.00 | $0.00 | $0.00 | $0.00 | $26.00 |
| 2026 | 15245 | TOTAL: | $2791.44 | $2791.35 | $0.00 | $0.00 | $0.00 | $5582.79 |
|
| 2026 | 15245 | $2791.44 | $2791.35 | $0.00 | $0.00 | $0.00 | $5582.79 |
Statement Details |
| 2025 | 15297 | STATE - STATE LEVY (SCHOOL) | $797.79 | $797.78 | $0.00 | $0.00 | $1595.57 | $0.00 |
| 2025 | 15297 | COUNTY - COUNTY LEVIES (CE, DD, VET, MH) | $313.74 | $313.70 | $0.00 | $0.00 | $627.44 | $0.00 |
| 2025 | 15297 | CONSERVE - CONSERVATION FUTURES | $9.41 | $9.40 | $0.00 | $0.00 | $18.81 | $0.00 |
| 2025 | 15297 | COROADS - COUNTY ROADS (ROADS, DIV TO CE) | $251.35 | $251.33 | $0.00 | $0.00 | $502.68 | $0.00 |
| 2025 | 15297 | PORTPT - PORT DISTRICT | $128.02 | $128.01 | $0.00 | $0.00 | $256.03 | $0.00 |
| 2025 | 15297 | PUD1 - PUD #1 | $20.53 | $20.53 | $0.00 | $0.00 | $41.06 | $0.00 |
| 2025 | 15297 | LIB1 - LIBRARY DIST #1 | $97.24 | $97.24 | $0.00 | $0.00 | $194.48 | $0.00 |
| 2025 | 15297 | HD2 - HOSP DIST #2 | $18.31 | $18.30 | $0.00 | $0.00 | $36.61 | $0.00 |
| 2025 | 15297 | SD50 - SCHOOL DIST #50 | $583.06 | $583.04 | $0.00 | $0.00 | $1166.10 | $0.00 |
| 2025 | 15297 | FD1 - FIRE DISTRICT #1 | $414.00 | $413.99 | $0.00 | $0.00 | $827.99 | $0.00 |
| 2025 | 15297 | EMS1 - FIRE DIST #1 EMS | $159.24 | $159.23 | $0.00 | $0.00 | $318.47 | $0.00 |
| 2025 | 15297 | JCCD - JC Conservation District | $2.55 | $2.55 | $0.00 | $0.00 | $5.10 | $0.00 |
| 2025 | 15297 | NWA - Noxious Weed Assessment | $2.15 | $2.15 | $0.00 | $0.00 | $4.30 | $0.00 |
| 2025 | 15297 | OSS - On Site Septic | $21.50 | $21.50 | $0.00 | $0.00 | $43.00 | $0.00 |
| 2025 | 15297 | WAT - Clean Water District | $13.00 | $13.00 | $0.00 | $0.00 | $26.00 | $0.00 |
| 2025 | 15297 | TOTAL: | $2831.89 | $2831.75 | $0.00 | $0.00 | $5663.64 | $0.00 |
|
| 2025 | 15297 | $2831.89 | $2831.75 | $0.00 | $0.00 | $5663.64 | $0.00 |
Statement Details |
| 2024 | 15328 | STATE - STATE LEVY (SCHOOL) | $719.09 | $719.08 | $0.00 | $0.00 | $1438.17 | $0.00 |
| 2024 | 15328 | COUNTY - COUNTY LEVIES (CE, DD, VET, MH) | $307.71 | $307.69 | $0.00 | $0.00 | $615.40 | $0.00 |
| 2024 | 15328 | CONSERVE - CONSERVATION FUTURES | $9.23 | $9.22 | $0.00 | $0.00 | $18.45 | $0.00 |
| 2024 | 15328 | COROADS - COUNTY ROADS (ROADS, DIV TO CE) | $247.60 | $247.59 | $0.00 | $0.00 | $495.19 | $0.00 |
| 2024 | 15328 | PORTPT - PORT DISTRICT | $127.10 | $127.09 | $0.00 | $0.00 | $254.19 | $0.00 |
| 2024 | 15328 | PUD1 - PUD #1 | $20.21 | $20.21 | $0.00 | $0.00 | $40.42 | $0.00 |
| 2024 | 15328 | LIB1 - LIBRARY DIST #1 | $95.80 | $95.79 | $0.00 | $0.00 | $191.59 | $0.00 |
| 2024 | 15328 | HD2 - HOSP DIST #2 | $17.96 | $17.95 | $0.00 | $0.00 | $35.91 | $0.00 |
| 2024 | 15328 | SD50 - SCHOOL DIST #50 | $581.78 | $581.78 | $0.00 | $0.00 | $1163.56 | $0.00 |
| 2024 | 15328 | FD1 - FIRE DISTRICT #1 | $406.86 | $406.85 | $0.00 | $0.00 | $813.71 | $0.00 |
| 2024 | 15328 | EMS1 - FIRE DIST #1 EMS | $155.41 | $155.40 | $0.00 | $0.00 | $310.81 | $0.00 |
| 2024 | 15328 | JCCD - JC Conservation District | $2.55 | $2.55 | $0.00 | $0.00 | $5.10 | $0.00 |
| 2024 | 15328 | NWA - Noxious Weed Assessment | $2.15 | $2.15 | $0.00 | $0.00 | $4.30 | $0.00 |
| 2024 | 15328 | OSS - On Site Septic | $21.00 | $21.00 | $0.00 | $0.00 | $42.00 | $0.00 |
| 2024 | 15328 | WAT - Clean Water District | $12.50 | $12.50 | $0.00 | $0.00 | $25.00 | $0.00 |
| 2024 | 15328 | TOTAL: | $2726.95 | $2726.85 | $0.00 | $0.00 | $5453.80 | $0.00 |
|
| 2024 | 15328 | $2726.95 | $2726.85 | $0.00 | $0.00 | $5453.80 | $0.00 |
Statement Details |
| 2023 | 15352 | STATE - STATE LEVY (SCHOOL) | $650.94 | $650.93 | $0.00 | $0.00 | $1301.87 | $0.00 |
| 2023 | 15352 | COUNTY - COUNTY LEVIES (CE, DD, VET, MH) | $284.05 | $284.04 | $0.00 | $0.00 | $568.09 | $0.00 |
| 2023 | 15352 | CONSERVE - CONSERVATION FUTURES | $8.52 | $8.51 | $0.00 | $0.00 | $17.03 | $0.00 |
| 2023 | 15352 | COROADS - COUNTY ROADS (ROADS, DIV TO CE) | $229.82 | $229.82 | $0.00 | $0.00 | $459.64 | $0.00 |
| 2023 | 15352 | PORTPT - PORT DISTRICT | $119.67 | $119.65 | $0.00 | $0.00 | $239.32 | $0.00 |
| 2023 | 15352 | PUD1 - PUD #1 | $18.83 | $18.83 | $0.00 | $0.00 | $37.66 | $0.00 |
| 2023 | 15352 | LIB1 - LIBRARY DIST #1 | $88.92 | $88.91 | $0.00 | $0.00 | $177.83 | $0.00 |
| 2023 | 15352 | HD2 - HOSP DIST #2 | $16.58 | $16.57 | $0.00 | $0.00 | $33.15 | $0.00 |
| 2023 | 15352 | SD50 - SCHOOL DIST #50 | $516.54 | $516.53 | $0.00 | $0.00 | $1033.07 | $0.00 |
| 2023 | 15352 | FD1 - FIRE DISTRICT #1 | $234.00 | $234.00 | $0.00 | $0.00 | $468.00 | $0.00 |
| 2023 | 15352 | EMS1 - FIRE DIST #1 EMS | $99.54 | $99.54 | $0.00 | $0.00 | $199.08 | $0.00 |
| 2023 | 15352 | JCCD - JC Conservation District | $2.55 | $2.55 | $0.00 | $0.00 | $5.10 | $0.00 |
| 2023 | 15352 | NWA - Noxious Weed Assessment | $2.15 | $2.15 | $0.00 | $0.00 | $4.30 | $0.00 |
| 2023 | 15352 | OSS - On Site Septic | $20.50 | $20.50 | $0.00 | $0.00 | $41.00 | $0.00 |
| 2023 | 15352 | WAT - Clean Water District | $12.00 | $12.00 | $0.00 | $0.00 | $24.00 | $0.00 |
| 2023 | 15352 | TOTAL: | $2304.61 | $2304.53 | $0.00 | $0.00 | $4609.14 | $0.00 |
|
| 2023 | 15352 | $2304.61 | $2304.53 | $0.00 | $0.00 | $4609.14 | $0.00 |
Values
| (+) Improvement Homesite Value: | + | $0 | |
| (+) Improvement Non-Homesite Value: | + | $489,369 | |
| (+) Land Homesite Value: | + | $0 | |
| (+) Land Non-Homesite Value: | + | $176,000 | |
| (+) Curr Use (HS): | + | $0 | $0 |
| (+) Curr Use (NHS): | + | $0 | $0 |
| | | -------------------------- | |
| (=) Market Value: | = | $665,369 | |
| (–) Productivity Loss: | – | $0 | |
| | | -------------------------- | |
| (=) Subtotal: | = | $665,369 | |
| (+) Senior Appraised Value: | + | $0 | |
| (+) Non-Senior Appraised Value: | + | $665,369 | |
| | | -------------------------- | |
| (=) Total Appraised Value: | = | $665,369 | |
| (–) Senior Exemption Loss: | – | $0 | |
| (–) Exemption Loss: | – | $0 | |
| | | -------------------------- | |
| (=) Taxable Value: | = | $665,369 | |
Taxing Jurisdiction
| Owner: | COLLETTE C & SCOTT A CARPENTER | | |
| % Ownership: | 100.0000000000% | | |
| Total Value: | $665,369 | | |
| Tax Area: | 0111 - 1-50F1E1H2L1 |
| CE | COUNTY CURRENT EXPENSE | 0.9034619479 | $665,369 | $665,369 | $601.14 | | |
| CNTYDD | DEVELOPMENTAL DISABILITIES | 0.0052121823 | $665,369 | $665,369 | $3.47 | | |
| CNTYVET | VETERANS RELIEF | 0.0052777810 | $665,369 | $665,369 | $3.51 | | |
| MENTAL | MENTAL HEALTH | 0.0052121823 | $665,369 | $665,369 | $3.47 | | |
| ROADS | COUNTY ROADS | 0.7415066410 | $665,369 | $665,369 | $493.38 | | |
| ROADSCU | COUNTY ROADS TO CUR EXP | 0.0000000000 | $665,369 | $665,369 | $0.00 | | |
| HOSP2CASH | HOSP DIST #2 GENERAL | 0.0536075306 | $665,369 | $665,369 | $35.67 | | |
| SCH50BOND | SCHOOL DIST #50 BOND 2016 | 0.5377451389 | $665,369 | $665,369 | $357.80 | | |
| SCH50CP | SCHOOL DIST #50 CAP PROJ | 0.4573475088 | $665,369 | $665,369 | $304.30 | | |
| SCH50MO | SCHOOL DIST #50 EP & O | 0.8262822886 | $665,369 | $665,369 | $549.78 | | |
| CONSERVE | CONSERVATION FUTURES | 0.0275621078 | $665,369 | $665,369 | $18.34 | | |
| EMS1 | FIRE DIST #1 EMS | 0.4679948282 | $665,369 | $665,369 | $311.39 | | |
| FD1 | FIRE DIST #1 GENERAL | 1.2171942929 | $665,369 | $665,369 | $809.88 | | |
| LIB1 | LIBRARY DIST #1 GENERAL | 0.2868827388 | $665,369 | $665,369 | $190.88 | | |
| PORTPT | PORT OF PT GENERAL | 0.1134941229 | $665,369 | $665,369 | $75.52 | | |
| PORTPTIDD | PORT OF PT IDD 2019 | 0.2577346692 | $665,369 | $665,369 | $171.49 | | |
| PUD1 | PUD #1 GENERAL | 0.0597888892 | $665,369 | $665,369 | $39.78 | | |
| STATE | STATE SCHOOL PART 1 | 1.4940692947 | $665,369 | $665,369 | $994.11 | | |
| STATE2 | STATE SCHOOL PART 2 | 0.8050170049 | $665,369 | $665,369 | $535.63 | | |
| | Total Tax Rate: | 8.2653911500 | | | | | |
| | | | | Taxes w/Current Exemptions: | $5,499.54 | | |
| | | | | Taxes w/o Exemptions: | $5,499.54 | | |
Improvement / Building
| Improvement #1: | Residential Bldg | State Code: | 11 | 1448.0 sqft | Value: | $489,369 |
| Bathrooms (#): | 2 (FULL) | Bedrooms (#): | 2 | | Exterior Wall: | SI/ST | Fireplace: | PROPS-GOOD | | Floor Construction: | FRAME | Foundation: | CONPR | | Heating/Cooling: | F/A | Inside Verify: | NO | | Roof Cover: | COMP |   |   |
|
| | Type | Description | Class CD | Sub Class CD | Year Built | Area |
| | MA | Main Area | 5- | 1S | 2007 | 1448.0 |
| | HWPOR | House Wood Porch | 4 | * | 2007 | 40.0 |
| | HBAL | House Balcony | 4 | * | 2007 | 110.0 |
| | GBSMT | Basement Garage | 4 | * | 2007 | 473.0 |
| | BSMTF | House basement finished | 5 | * | 2007 | 187.0 |
| | CONCD | Concrete Drive | 4 | * | 2007 | 800.0 |
| | SHED | Shed (Table Not Dep) | 3 | * | 2007 | 100.0 |
Sketch
Property Image
Land
| 1 | 5525-1155L | | 0.0000 | 0.00 | 0.00 | 0.00 | 1.00 | $176,000 | $0 |
Roll Value History
| 2026 | N/A | N/A | N/A | N/A | N/A |
| 2025 | $489,369 | $176,000 | $0 | $665,369 | $665,369 |
| 2024 | $489,369 | $176,000 | $0 | $665,369 | $665,369 |
| 2023 | $458,867 | $162,750 | $0 | $621,617 | $621,617 |
| 2022 | $438,010 | $115,000 | $0 | $553,010 | $553,010 |
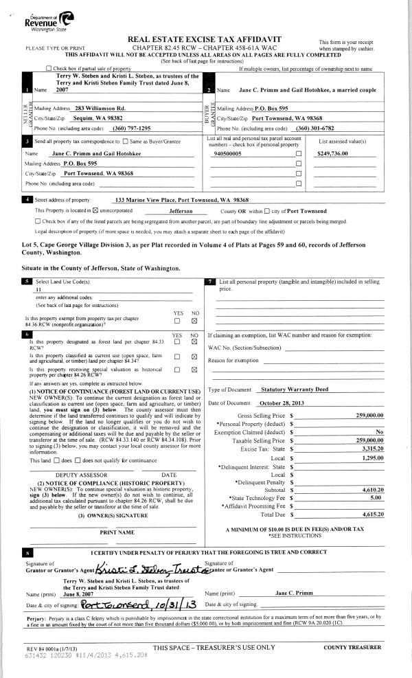
Deed and Sales History
| 1 | 06/28/2018 | SWD | Statutory Warranty Deed | JANE PRIMM & GAIL HOTOHKEE | COLLETTE C & SCOTT A CARPENTER | | | $391,000.00 | 130526 | |
| 2 | 10/28/2013 | SWD | Statutory Warranty Deed | TERRY W STEBEN TRUSTEE | JANE PRIMM & GAIL HOTOHKEE | | | $259,000.00 | 120230 | |
| 3 | 06/08/2007 | QCD | Quit Claim Deed | STEBEN, TERRY W/KRISTI L | STEBEN, TERRY W/KRISTI L TRUST | | | $0.00 | 109471 | 0 |
| 4 | 03/10/2006 | SWD | Statutory Warranty Deed | BUCKLEY, PATRICK C/DELREN | STEBEN, TERRY/KRISTI | 0 | 0 | $75,000.00 | 106199 | 0 |
| 5 | 09/30/2002 | SWD | Statutory Warranty Deed | WILKINSON STEVEN P | BUCKLEY, PATRICK C/DELRENE K | 0 | 0 | $35,000.00 | 95686 | 0 |
Payout Agreement
| No payout information available.. |